Portfolio.




David Santiago



![]()




David Santiago



Winter Studio 23-24
AutoCAD - Adobe Illustrator/Photoshop
Established at the northern terminus of Bartram’s Garden in Philadelphia, the goal for this equestrian center is to provide a home for the Fletcher Street Urban Riding Club while simultaneously connecting Bartram’s South to the greater Schuylkill River Trail Extension project.































































































































































































































































































Below depicts the positive feedback loop that is integrated into Suture’s design. The program is placed along a water filtration system that generates a circular system of reuse on the site. This loop constitutes the “Suture” of Bartram’s North.


































































































































































































































































































































































































































AutoCAD - Rhino 7 - Adobe Illustrator/Photoshop

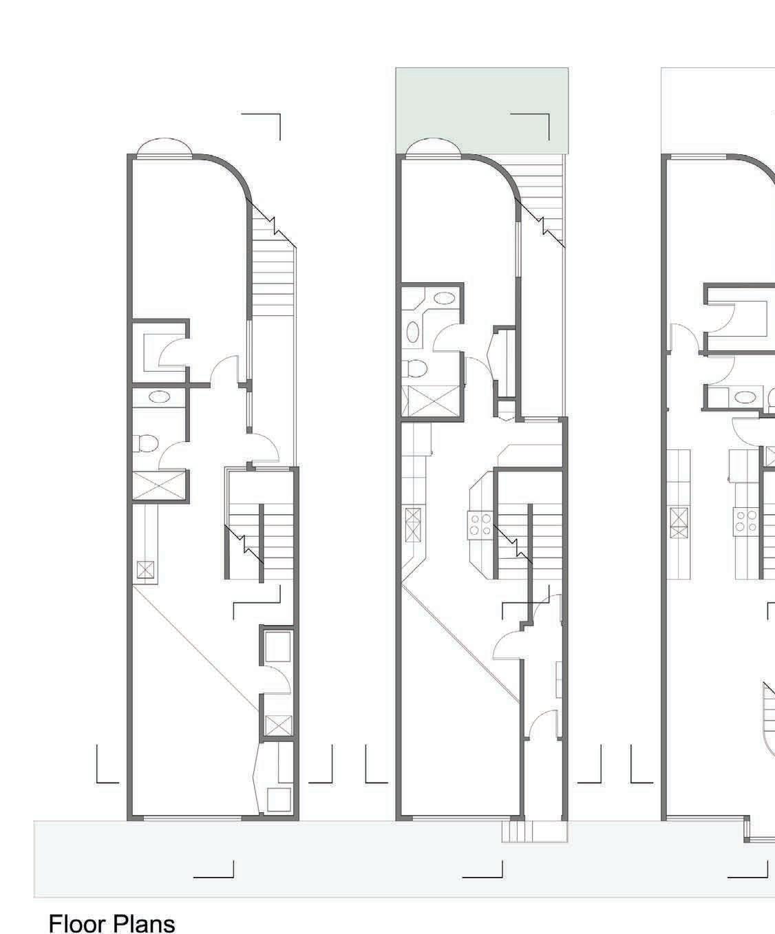
Sitting on a high point in Mantua, Two + Two offers panoramic views of Schuylkill Yards and University City in Philadelphia. The rowhome features two double story rental units with future options of expansion into one large home. Each unit features two lofts in each living space, and a chiseled design to filter light into the lower levels of the rowhouse.


















Two + Two is surrounded by a number of different typologies on a masterplanned site. The driving force behind the design is the idea of an owner - renter ownership structure. The unit is designed in such a manner that the lower unit can be easily converted into additional living space if the user desires.

The structure places a major emphasis on light capturing on the north and south facades as it is not placed on corner lots.
The south facade utilizes a stepping, chiseled pattern to bring light into the lower levels. The north facade contrasts this as a nearly fully glass canopy encompasses the lower living space.


The building utilizes a clean, simple layout with bedrooms relegated to the south while living spaces sit on the north side. Kitchens and bathrooms are centrally located for vertical stacks.














AutoCAD - Rhino 7 - Adobe Illustrator/Photoshop
Built on the site of the Samuel Powel School, Palisade incorporates the original structural system and reinterprets it for the 21st century. palisade facilitates a community center with a focus on rehabilitation and community health for the surrounding Powelton Village neighborhood.














































Palisade embodies the connection between community and rehabilitation. Located within the ribbed structure is a safe supplies depot, 12-step program meeting spaces, pharmacy, and multiple community flex spaces. The exterior makes use of the eastern half of the plot as a large park and nature preserve, with a central plaza encapsulated in the sunken superstructure.


Located in Francisville, Pennsylvania, Backbone functions as the spine connecting Francisville Park to the surrounding neighborhood. The sculptural form of Backbone imitates this concept. Making use of a large public courtyard, interactive roofs, and a semi-glazed library facade, the development invites one inward to explore while ricocheting you toward the adjacent park.























Apartment Floor Plans
Apartment Floor Plans



The form of Backbone echoes a rising motion to the north, following the topography upwards while creating a courtyard that is distinct from Francisville



















