Skip to main content

Derek Riordan Architectural Portfolio

Page 1

DEREKRIORDAN ARCHITECTURALPORTFOLIO

TABLEOFCONTENTS

THEEVERGREEN-EXTERIORRENDERING

THEEVERGREEN-SITEPLAN

THEEVERGREEN-FIRSTFLOORPLAN-PRESENTATIONDRAWING

THEEVERGREEN-SECONDFLOORPLAN-PRESENTATIONDRAWING

THEEVERGREEN-FIRSTFLOORPLAN-WORKINGDRAWING

THEEVERGREEN-SECONDFLOORPLAN-WORKINGDRAWING

THEEVERGREEN-BUILDINGELEVATION

THEEVERGREEN-UNITELEVATION

THEEVERGREEN-HERITAGEBUILDINGELEVATIONS

DETAILDRAWINGS-WALLSECTIONS

THEHONEYCOMB-NORTHANDSOUTHELEVATIONS

THEHONEYCOMB-EASTANDWESTELEVATIONS

THEHONEYCOMB-TYPICALFLOORPLANA

THEHONEYCOMB-TYPICALFLOORPLANB

THEHONEYCOMB-LONGITUDINALBUILDINGSECTIONA

THEHONEYCOMB-LONGITUDINALBUILDINGSECTIONB

THEHONEYCOMB-SUITEPLAN

THEHONEYCOMB-CONCEPTUALILLUSTRATION

THELAKEVIEWMODEL-3DPAPERCONSTRUCT

RELATEDWORKS-ACRYLICPAINTINGONCANVAS

PAGE4 PAGE6 PAGE8 PAGE9 PAGE10 PAGE11 PAGE12 PAGE14 PAGE15 PAGE16 PAGE18 PAGE19 PAGE20 PAGE22 PAGE24 PAGE26 PAGE28 PAGE29 PAGE30 PAGE32
THEEVERGREEN SOUTH-WESTEXTERIOR COMMERCIAL/RESIDENTIAL
THEEVERGREEN SITEPLAN SCALE 1:200 N UNIT1GREENROOF UNIT2GREENROOF P1 ELECTRICPANELSABOVEROOF ELECTRICPANELSABOVEROOF P11 ELECTRICPANELSABOVECARPORTS VICTORIASQUAREBLVD.
UNIT3GREENROOF UNIT4GREENROOF ELECTRICPANELSABOVEROOF ELECTRICPANELSABOVEROOF P10 UP1 P20 UP2 BICYCLERACKS ELECTRICPANELSABOVECARPORTS PROPOSEDGREENHOUSE HERITAGERESTORATION ENTRANCERESIDENTIAL BUILDINGAREA LOTCOVERAGE LOTAREA SOUTHSETBACK NORTHSETBACK FRONTSETBACK 25.7% 2300SQM 6.0M 0.75M 1.65M 590SQM ENTRANCECOMMERCIAL LEGEND
EXAMROOMA 11.7m2 DOCTOR'S OFFICE 10.8m2 BARRIERFREE WASHROOM 6.1m2 RECEPTION OFFICE 12.4m2 LOBBY 10.0m2 ENTRANCEAREA ANDDECK 13.1m2 ELEVATOR EXAMROOMB 11.7m2 GARBAGE ROOM 5.8m2 ELEC. PANEL 2.6m2 DN DN DN UNIT3 THEEVERGREEN 1stFLOORPLAN COMMERCIAL SCALE 1:75 N
THEEVERGREEN 2ndFLOORPLAN RESIDENTIAL SCALE 1:75 N UNIT3 MASTER BEDROOM 12.3m2 MASTERSUITE SUNROOM 5.4m2 BEDROOMSUITE SUNROOM 5.4m2 BEDROOM 9.8m2 W.C. 2.8m2 W D LINEN 2.9m2 EXTERIOR DECK 18.0m2 LIVING ROOM 20.1m2 DINING ROOM 12.7m2 KITCHEN 8.3m2 DN ELEVATOR B.F. WASHROOM 9.0m2
8 8 4 4 8 6 6 8 4 4 4 4 7 8 8 4 8 8 8 8 4 4 4 4 4 4 8 8 8 8 UNIT3 5 5 6 1 1 1 7 7 13 6 6 10 10 5 5 EXAMROOMA DOCTOR'S OFFICE B.F. WASH ROOM RECEPTION OFFICE LOBBY ENTRANCEAREA ANDDECK ELEVATOR EXAMROOMB GARBAGE ROOM ELEC. PANEL DN DN L4 L6 L6 L6 L6 L4 L4 L4 L4 L4 L4 L4 L4 L4 L4 L4 6 6 UP DN 213 213 550 1000 2100 1000 1350 213 6425 4065 1431 1100 800 800 900 800 800 900 800 800 737 800 800 900 800 800 900 800 800 3567 1350 5485 23028 1428 1513 144 1000 383 1000 765 1200 1750 144 3590 1200 1750 CD 4765 4765 4765 5990 213 223 6425 2451 1251 300 900 2451 1251 300 900 2265 1065 300 900 1620 2164 2798 100 100 900 1100 1251 1773 41 1000 649 600 600 600 600 1250 381 1648 381 736 1345 361 1200 225 600 3584 1826 72 475 460 836 1962 900 1800 1715 1200 1100 1200 1336 900 1484 1335 1400 720 250 550 SA 2735 1500 1686 SPF No.2 38 x 286 With Bridging @ 406mm O.C. THEEVERGREEN 1stFLOORPLAN COMMERCIAL SCALE 1:75 N
213 487 750 750 750 487 750 750 750 525 213 700 2250 2250 738 6425 6000 382 1800 300 800 800 800 1119 3000 900 139 80 2400 1100 4691 5750 800 800 800 800 1280 1100 1100 1100 6583 2400 5554 3300 2180 181 578 901 470 474 711 474 1000 470 497 1515 463 1655 186 1016 764 1876 1000 191 600 2840 754 980 613 975 1602 1831 900 50 50 209 52 950 58 189 1500 50 150 1500 416 900 100 3080 900 334 900 1303 652 1236 1600 600 1830 170 2250 525 487 2250 182 1830 1876 900 100 739 613 230 1020 2400 2316 460 2798 187 3300 150 3085 23002 1100 920 CD 1100 300 A/C 1796 SA SPF No.2 38 x 286 With Bridging @ 406mm O.C. 2 12 11 11 6 6 6 13 6 6 9 9 12 8 8 8 8 4 4 4 4 4 7 4 5 17 5 5 5 14 14 8 8 UNIT3 DN UP MASTER BEDROOM SUNROOM SUNROOM BEDROOM W.C. W D LINEN EXTERIOR DECK LIVING ROOM DINING ROOM KITCHEN ELEVATOR B.F. WASH ROOM 6 6 L6 L6 L6 L6 L6 L6 L1 L6 L6 L6 L6 L6 L6 L6 L6 L6 THEEVERGREEN 2ndFLOORPLAN RESIDENTIAL SCALE 1:75 N
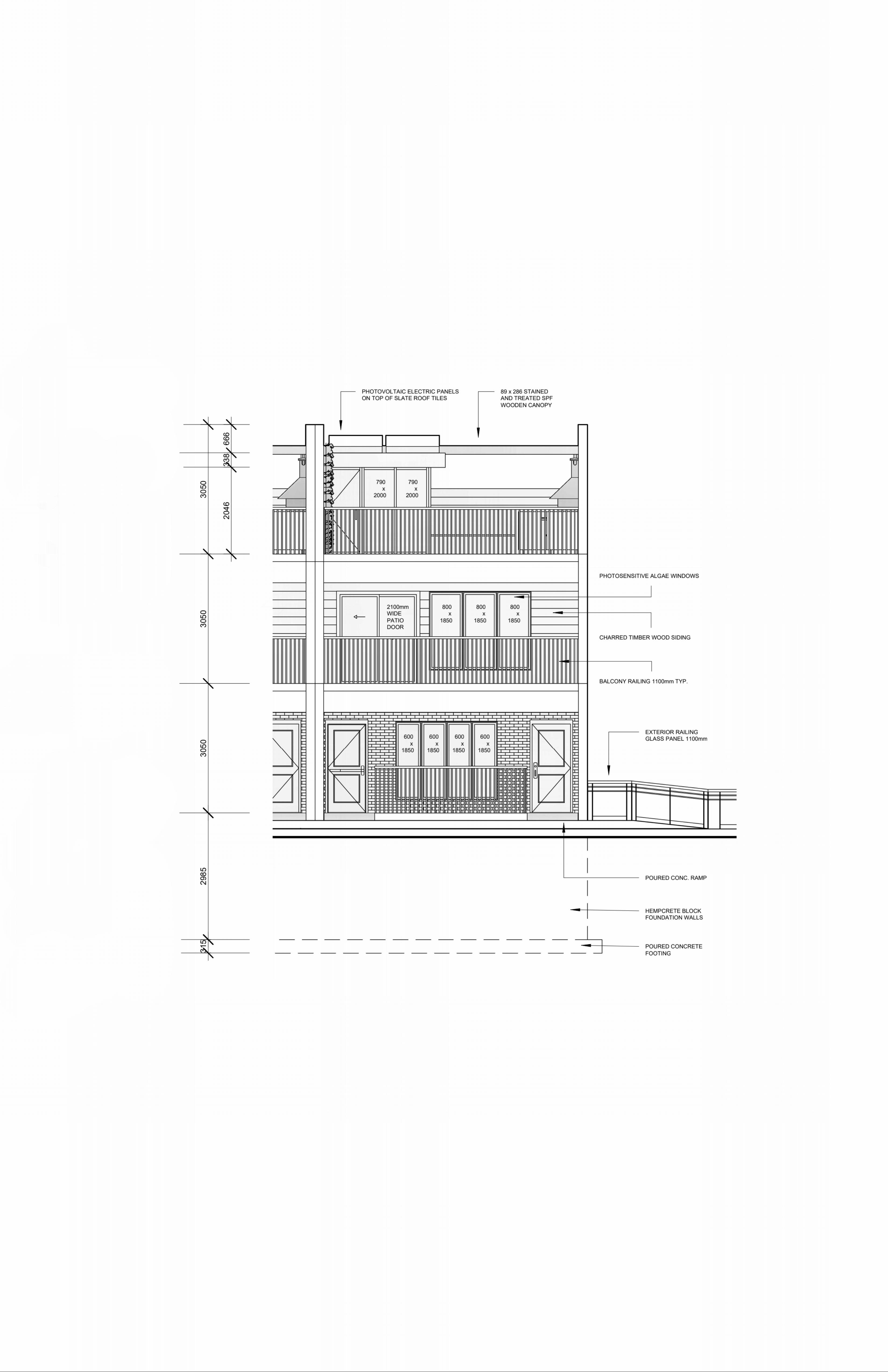
3050 3050 3050 ROOF 666 338 2046 2985 315 2100mm WIDE PATIO 2100mm WIDE PATIO 800 1850 800 1850 800 1850 800 1850 800 1850 800 1850 790 2000 790 2000 790 2000 790 2000 600 1850 600 1850 600 1850 600 1850 600 1850 600 1850 600 1850 600 1850 U/SFTG -3300 T/OFTG -2985 LEVEL1 0 LEVEL2 3050 LEVEL3 6100 U/SROOF 8146 T/OROOF 8484 T/O FIREWALL 9150 THEEVERGREEN SOUTHELEVATION SCALE 1:75
THEEVERGREEN UNIT4-SOUTHELEVATION SCALE 1:75 U/SFTG -3300 T/OFTG -2985 LEVEL1 0 LEVEL2 3050 LEVEL3 6100 U/SROOF 8146 T/OROOF 8484 T/O FIREWALL 9150
THEEVERGREEN HERITAGEBUILDINGWESTELEVATION-TOP HERITAGEBUILDINGSOUTHELEVATION-BOTTOM SCALE 1:75 HERITAGELEVEL2 1914 T/OROOF 6750 T/OCHIMNEY 8375 HERITAGELEVEL1 -1050 BASEMENTLEVEL -2700 U/SFOOTINGS -2900 HERITAGELEVEL2 1914 T/OROOF 6750 T/OCHIMNEY 8375 HERITAGELEVEL1 -1050 BASEMENTLEVEL -2700 U/SFOOTINGS -2900
EXT.WALLCLADDING TRANSITIONALDETAIL SCALE 1:5
PARAPETDETAIL THROUGHSCUPPER SCALE 1:5
THEHONEYCOMB NORTHELEVATION-TOP SOUTHELEVATION-BOTTOM SCALE 1:450
THEHONEYCOMB TOP-EASTELEVATION BOTTOM-WESTELEVATION SCALE 1:450
DN UP 1 3 A B D 1 A033 C 2 1 A039 1 A036 6033 6000 6000 8000 8000 8000 2600 24000 24000 6597 2620 6540 288 9431 129 830 7481 129 289 4468 788 4557 2057 129 809 5863 419 1997 422 1507 163 2555 150 980 163 163 1449 231 1359 1365 2077 3300 2310 4028 1820 1185 3602 2283 3538 3380 2420 2488 FD1 D01 D01 D01 D01 D02 D02 D02 D02 D06 D06 D03 D03 D06 D06 D03 D08 D08 D08 D08 D08 100.88 m² 2 BD 91.69 m² 1 BD 69.75 m² STUDIO 108.90 m² ASSISTED LIVING 1BD + DEN. G02 G01 G01 G01 G02 G02 PIPE SPACE PIPE SPACE PIPE SPACE PIPE SPACE PIPE SPACE PIPE IN-3 IN-3 IN-1 IN-1 EX-3 EX-1 IN-3 IN-1 SW4 SW3 SW4 SW3 SW1 EX-3 EX-1 36033 R.A. E. CL. GREEN SPACE GREEN SPACE GREEN SPACE G03 G03 G03 N
4 5 6 7 1 A037 6000 6000 6000 5300 6540 5458 810 5061 129 816 4822 861 129 129 4594 4406 345 1472 2498 129 163 1064 150 2850 150 2844 163 850 150 1000 2337 3036 1585 1323 2814 2958 2105 3418 3500 2488 1365 1908 3820 2690 3070 2038 1365 2858 FD1 D01 D01 D01 D02 D02 D06 D06 D06 D03 D03 D03 D08 D08 D08 D10 D12 D12 D12 D12 1 A038 64.58 m² STUDIO. 62.89 m² STUDIO. 92.22 m² 1 BD + DEN 95.39 m² 1 BD + DEN 103.43 m² ASSISTED LIVING 2BD G02 G02 G02 G02 G01 G01 G01 G02 G02 SPACE PIPE SPACE PIPE SPACE PIPE SPACE PIPE SPACE IN-3 IN-1 IN-1 IN-1 IN-1 SW4 SW4 SW4 SW3 SW4 SW3 D27 36033 F.H. F.A. CUTE JANITOR CL. GREEN SPACE GREEN SPACE GREEN SPACE G03 G03 G03 THEHONEYCOMB TYPICALFLOORPLANA RESIDENTIAL SCALE 1:100
N 7 8 9 10 A B D 1 A033 C 6000 6000 6000 6000 8000 8000 8000 24000 5461 6540 5464 781 129 6342 750 129 5901 750 129 781 129 6338 753 129 5901 750 129 4790 163 3500 5775 2725 3300 2710 3190 6311 1365 2858 3138 2483 2540 3820 1918 1365 2406 3232 D01 D01 D01 D01 D01 D01 D02 D02 D02 D02 D02 D02 D08 D08 D08 D08 D08 D08 D05 D03 D03 D06 D06 D06 D06 D07 92.22 m² 1 BD + DEN 78.15 m² 1 BD 73.26 m² STUDIO. 73.28 m² STUDIO. 74.77 m² ASSISTED LIVING STUDIO 95.39 m² 1 BD + DEN G01 G01 G01 G02 G01 PIPE SPACE PIPE SPACE PIPE SPACE PIPE SPACE PIPE SPACE PIPE SPACE IN-1 IN-3 IN-3 IN-3 IN-1 IN-1 EX-1 IN-3 IN-3 IN-3 IN-3 IN-1 IN-1 IN-1 IN-3 EX-1 G03 G03 G03 G03 GREEN SPACE GREEN SPACE GREEN SPACE GREEN SPACE CORRIDOR
11 12 13 14 15 2 A036 6000 6000 6000 6000 6540 21228 11258 129 6484 287 1511 11571 287 6311 2500 3073 1600 1600 1904 1558 6019 2150 1690 4502 3148 2480 3689 1365 1365 378 7871 129 3115 135 2419 135 10696 D01 D01 D01 D02 D02 D02 D02 D02 D02 FD1 D08 D08 D08 D08 D08 D08 D08 D03 D04 D07 D07 D06 D06 D06 173.88 m² 3 BD 101.67 m² ASSISTED LIVING 1BD + DEN 155.56 m² ASSISTED LIVING 2BD G01 G02 G02 G02 G02 G02 G01 G02 G02 G01 PIPE SPACE PIPE SPACE PIPE SPACE PIPE SPACE PIPE SPACE IN-3 SW3 EX-3 EX-2 G03 G03 SPACE GREEN SPACE GREEN SPACE SPACE F.H. THEHONEYCOMB TYPICALFLOORPLANB RESIDENTIAL SCALE 1:100

STEPPED BALCONIES WITH BUILT IN LOW MAITNANCE GARDENS

CORTEN STEEL & WOODEN STRIP ARCHITECTURAL ACCENTS

12 13 14 15 STAIR No. BICYCLE PARKING BICYCLE
BICYCLE
PARKING LEVEL
PARKING LEVEL
LEVEL
OUTDOOR BBQ & LOUNGE RETAIL UNIT 09 ASSISTED LIVING 1BD + DEN RETAIL UNIT 10 COVERED
PARKING
PARKING
ONE
TWO PARKING
THREE
EXTERIOR HIGH
50%
STAIR No. STAIR No.
EFFICIENCY APPLIANCES
ASSISTED LIVING SUITES
LOW MAITNENCE OUTDOOR POOL IN-2 IN-2 IN-2 SW2 SW3 SW3 SW3 SW3 EX-2 EX-2 EX-2 EX-2 6000 6000 6000 6000 ASSISTED LIVING 1 BD + DEN 1 BD + DEN PRIVATE TERRACE IN SUITE LED MOTION
SENSOR CORRIDOR LIGHTING LOW E TRIPLE GLAZED WINDOWS
GRND FL 0 L2 5000 L3 8500 L4 12000 L5 15500 L6 20500 L7 24000 USR 27500 8 9 10 11 P2 -7000 P1 -3500 P3 -10750 TOR(MECH) 31144 TOR 29590 POOL MECHANICAL ROOM No. 3 W.C. PARKING LEVEL ONE PARKING LEVEL TWO PARKING LEVEL THREE PENTHOUSE 1 FITNESS CENTRE CHANGE ROOM W.C. RETAIL UNIT 08 RETAIL UNIT 07 RETAIL UNIT 06 STUDIO. ASSISTED LIVING 2BD ASSISTED LIVING STUDIO 1 BD + DEN COVERED WALKWAY EXTERIOR GREEN WALL FRITZ-ALDER HOLLOW CORE DECK SLAB 41894 3750 3500 3500 5000 3500 3500 3500 5000 7000 2090 1554 250 2646 854 2646 854 2242 1258 4325 795 2705 795 2705 788 2712 788 4212 788 2712 788 3387 1144 946 PRIVATE TERRACE No. 3 No. 3 ASSISTED LIVING 2BD STUDIO ASSISTED LIVING STUDIO 1 BD + DEN STUDIO ASSISTED LIVING STUDIO 1 BD + DEN GREEN ROOF SOLAR PANELS PRIVATE TERRACE MAITNENCE GARDEN 3 BD + DEN SW3 SW3 SW3 IN-1 IN-1 IN-5 IN-1 IN-1 EX-2 EX-2 IN-1 IN-1 IN-5 IN-1 IN-6 IN-6 6000 6000 6000 THERMAL ENERGY METERS THEHONEYCOMB LONGITUDINALBUILDINGSECTIONA COMMERCIALANDRESIDENTIAL SCALE 1:150
5 6 7 8 STAIR No. 2 ELEV #1 6000 6000 6000 6000 ELEV #2 1930 RETAIL UNIT 06 1 BD + DEN ASSISTED LIVING STUDIO ASSISTED LIVING 1 BD FITNESS CENTRE ASSISTED LIVING ASSISTED LIVING ASSISTED LIVING ASSISTED LIVING ELEV #1 ELEV #2 ELEV #1 ELEV #2 ELEV #1 ELEV #2 ELEV #1 ELEV #2 ELEV #1 ELEV #2 ELEV #1 ELEV #2 ELEV #1 ELEV #2 ELEV #1 ELEV #2 ELEV #1 ELEV #2 PARKING LEVEL ONE PARKING LEVEL TWO PARKING LEVEL THREE STAIR No. 2 STAIR No. 2 1 BD + DEN 1 BD + DEN 3 BD + DEN PENTHOUSE 1 SOLAR SW1 SW4 IN-1 IN-1 IN-1 IN-5 IN-6 SW4 SW4 SW4 SW1 MASS TIMBER STRUCTURE: GLU-LAM BEAMS & COLUMNS CLT DECKING & DROPPED CEILING EXPOSED OPEN ACCESS CEILING IN COMMON SPACE LOW E TRIPLE GLAZED WINDOWS EX-2 FRITZ-ALDER HOLLOW COAR DECK SLAB 2646 854 2646 854 2242 1258 4325 788 2897 603 2712 788 2712 788 4212 788 2712 788 3387 1156 WAITING AREA SW4 SW4 SW1 SW1 SW1 SW1 50% ASSISTED LIVING SUITES
GRND FL 0 L2 5000 L3 8500 L4 12000 L5 15500 L6 20500 L7 24000 USR 27500 1 3 4 P2 -7000 P1 -3500 P3 -10750 2 1 A039 TOR(MECH) 31144 TOR 29590 STAIR No. 1 41894 3750 3500 3500 5000 7000 3500 5000 3500 3500 2090 1554 PARKING LEVEL ONE PARKING LEVEL TWO PARKING LEVEL THREE LOBBY AIR PURIFYING GREEN WALL 6033 6000 6000 1930 ELECTRICAL VEHICLE STATIONS ELECTRICAL VEHICLE STATIONS ELECTRICAL VEHICLE STATIONS R. AIR R. AIR R. AIR R. AIR R. AIR R. AIR R. AIR R. AIR R. AIR R. AIR NIGHT FLUSH VENTILATION SYSTEM LIVING 2BD STUDIO ASSISTED LIVING 1BD + DEN. MAIL ROOM 1 BD 2 BD. STUDIO ASSISTED LIVING 1BD + DEN 2BD STUDIO ASSISTED LIVING 1BD + DEN 2BD STUDIO ASSISTED LIVING 1BD + DEN 2BD STUDIO ASSISTED LIVING 1BD + DEN 2BD STAIR No. 1 STAIR No. 1 GREEN ROOF SOLAR PANELS POLUTION EATING FACADE RECYCLED CORTEN STEEL CLADDING GRADE SW4 SW1 SW3 SW1 ESW ESW SW1 SW1 SW1 IN-1 IN-1 SW2 24837 4476 2976 2976 3387 2976 3205 4832 2242 2646 2646 SW4 IN-1 IN-1 SW4 SW1 SW1 THEHONEYCOMB LONGITUDINALBUILDINGSECTIONB COMMERCIALANDRESIDENTIAL SCALE 1:150
8 9 D 1 A033 C W D ø 1500 PIPE SPACE PIPE SPACE KITCHEN DINING ROOM LIVING ROOM BEDROOM 7349 6000 7356 401 135 3179 129 2142 135 1500 135 753 747 11628 628 8000 3000 378 900 113 6987 228 2887 135 129 900 113 2314 2725 1040 129 401 1013 609 1013 914 402 1461 577 625 378 4364 114 2103 114 1804 114 2082 419 114 2016 128 610 5982 500 1212 4250 975 712 648 1634 605 345 510 896 721 852 243 1524 163 340 2886 90 PIPE SPACE PIPE SPACE BALCONY S CO D01 IN-3 IN-5 IN-2 IN-1 IN-2 IN-1 EX-1 G01 HVAC IN-1 IN-3 IN-5 D02 D05 D07 D08 D03 BULK HEAD ABOVE BULK HEAD ABOVE LOWERED CEILING 2.9M LOWERED CEILING 2.9M RANGE HOOD ABOVE 856 WASHROOM CABINETS ABOVE GUARD RAILING CLOSET CLOSET N THEHONEYCOMB SUITEPLANA-ASSISTEDLIVINGSTUDIO RESIDENTIAL SCALE 1:50
THEHONEYCOMB CONCEPTUALILLUSTRATION NOTTOSCALE
SEMI-DETACHED PAPERMODEL RESIDENTIAL SCALE 1:10
SEMI-DETACHED PAPERMODEL RESIDENTIAL SCALE 1:10
"STAN" ACRYLICONCANVAS
WORKSINPROGRESS ACRYLICONCANVAS

Turn static files into dynamic content formats.

Create a flipbook