Skip to main content

Architectural Portfolio - Internship

Page 1

ARCHITECTURAL PORTFOLIO

CONTENT •AYUSHMAN KINDERGARTEN •AURA SPA AND FITNESS RESORT •DISASTER RESILIENT SHELTER •WORKING DRAWINGS •OTHER MISCELLANEOUS •MANUAL SHEET WORKS •COMPETITION WORKS

AYUSHMAN KINDERGARTEN

The main concept behind the Ayushman Kindergarten is Books. Books are an essential tool in the process of learning. Which can be seen in the façade detailing of Ayushman.

DESIGN BRIEF

It is a preschool educational approach based on playing, singing, practical activities such as drawing, and social interaction as a part of transition from home toschool

USERS

The kindergarten is mainly for children for the age group 3 – 6 years old and also for the teaching and non-teaching staff but at all case children are the mainusers

ELEVATION

MASTERPLAN EXIT
1 View 2 View 3 View 4
View

NORTH ELEVATION

G ROUND FLOOR PLAN FIRST FLOOR PLAN EAST ELEVATION

SECTION AB

BIRD EYE VIEW
SPA AND FITNESS RESORT
AURA
M
T
P L A N
A S
E R
PLAN OF DELUXE VILLA PLAN OF STANDARD VILLA SECTION OF DELUXE VILLA SECTION OF STANDARD VILLA VIEWS ELEVATION ELEVATION

SECTION OF CAFE

PLAN OF CAFE

VIEWS

ELEVATION

SECTION OF RESTAURANT

PLAN OF RESTAURANT

VIEWS

ELEVATIONS

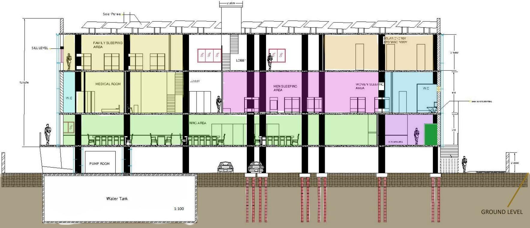
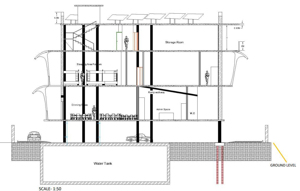
DISASTER RESILIENT SHELTER

ZONING

M
T
P L A N
A S
E R
CONCEPT

SECTIONS

SLIT LEVEL PLAN

SECTIONS

ELEVATIONS AIRFLOW ANALYSIS
Software used : VELUX D A
G
N A L Y S I S
Y L I
H T I N G A
W O R K I N G D R A W I N G
O T H
C
E O U S W O R K S
E R M I S
E L L A N
M
O R
S
A N U A L S H E E T W
K
C O M P E T I O N W O R K S https://www.youtube.com/watch?v=YwRFHxm9_PQ THE ENTIRE PROCESS OF DESIGN DEVELOPMENT AND SOLUTION TO EXSISTING PROBLEM HAS BEEN EXPLAINED IN THE VIDEO BELOW

THANK YOU

Turn static files into dynamic content formats.

Create a flipbook