




























![]()





























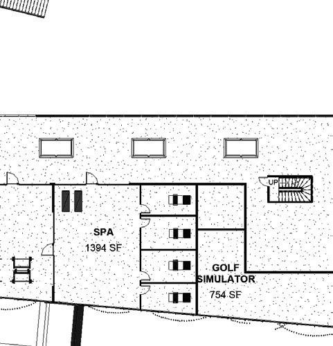
The goal for this project was for architecture and landscape to seamlessly intert wine to create a vibrant community oasis. This innovative design harmonizes nature and struct ure, featuring lush greenery that envelops multiple pools, ensuring a refreshing escape for ever yone. At the heart of this paradise is a stunning array of aquatic experiences, including a lively family pool, a serene lazy river, and an exclusive 21+ retreat for those seek ing tranquility There is also a skate park and playground designed to spark creativity and joy for those who dont want to get in the water. Meandering walk ing paths invite leisurely strolls, connect ing diverse spaces and fostering community interact ion. Parkside Paradise Pool isn’t just a destination; it’s a celebration of life, leisure, and the beauty of nature, designed for generations to come


















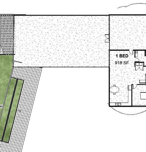
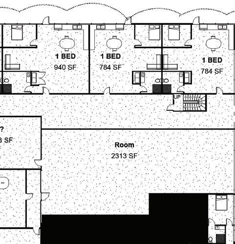
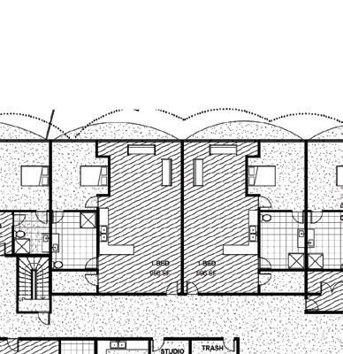
the diverse range of apart ments, amenities, and scenic views cater to various lifestyle preferences. The apart ment complex comprises various lifestyles and household needs, making the complex inclusive and welcoming to individuals, couples, and families alike. Each unit is thoughtfully designed to maximize space utilization and ensure comfor t, fostering a sense of home for every resident
Whether it's the downtown Cincinnati sky line, the serene beauty of the Ohio River, or the charm of downtown Covington, residents have the opport unity to enjoy breathtaking vistas from the comfor t of their homes. These scenic views not only contribute to the aesthetic appeal of the complex but also provide a sense of connect ion to the broader urban and natural environment.





































The primar y concept driving this architect ural project is centered around creating a museum experience that transcends traditional each other, providing visitors with a dynamic and immersive journey through the exhibits. The exterior facade is thoughtfully desgined to draw the visitors into the museum with a sence of awe. Once in the building, the design philosophy hinges on eradicating the conventional separation between exhibition spaces. Rather than distinc t, isolated areas, the museum is conceived as a continuous and exploration and discovery. A key aspect of the project is ensuring that each exhibit remains visible from various vantage points within the museum. This strategic placement of displays allows visitors to catch glimpses of upcoming attractions, sparking curiosity and as an intuitive guide through the museum's narrative. The intentional progression from louder to quieter spaces is not merely a mimic the rhythm of a stor y, guiding visitors through peaks of excitement and moments of contemplation. This deliberate design choice adds a layer of experiential depth, ensuring that the spatial journey is not only visually captivating but also emotionally resonant.














































































