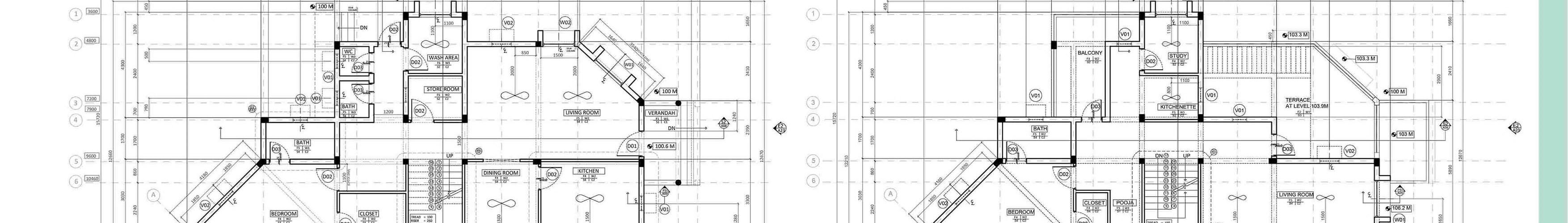
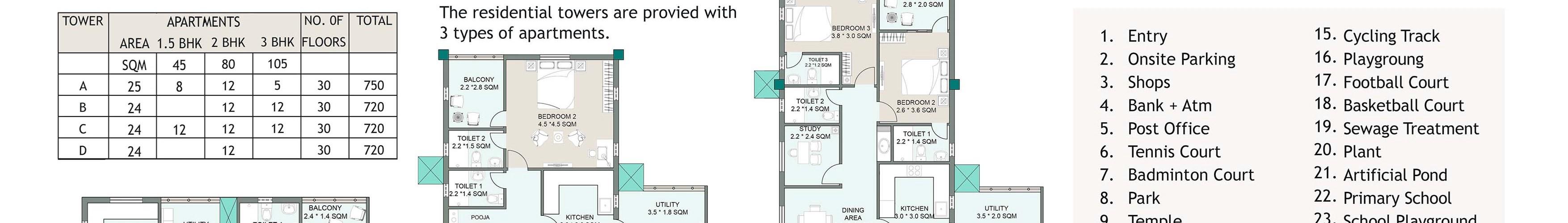
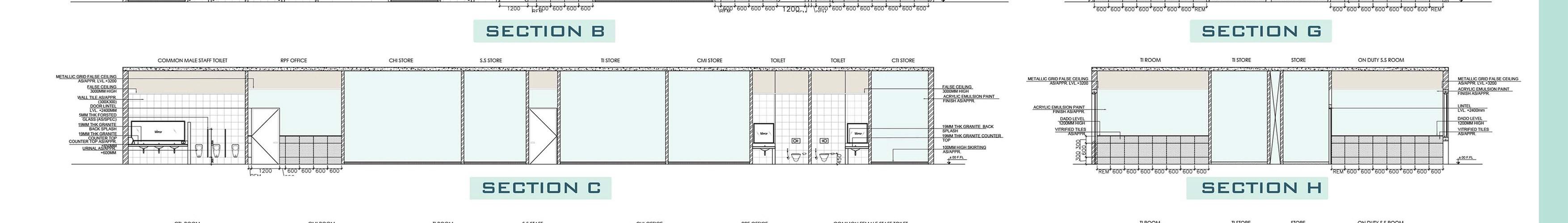
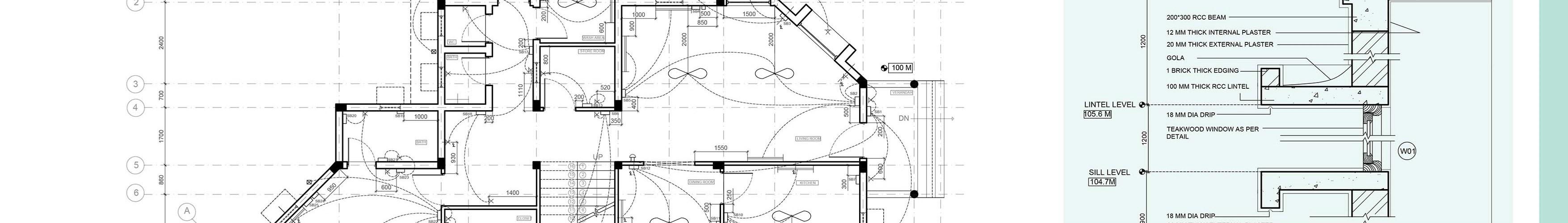
This is my architecture portfolio, a curated collection showcasing my selected works from 2019-2024. From innovative residential designs to multilevel residences, hotel, office buildings, etc. each piece reflects my passion for creative solutions and thoughtful aesthetics.