


![]()




Daylin Ata
Guacaneme Buitrago

Pontificia Universidad Javeriana
NZLC Auckland Campus
Colegio Nuestra Señora De La Presentación
Español: Nativo
Inglés : C1 Upper intermediate

Egresada de la universidad javeriana caracterizada por ser una persona íntegra, responsable , creativa , apasionada por la lectura eh interesada en aprender nuevas cosas .










01 02 03 urbe bio adaptativa proyecto luna habitat urban gap




Pais: Francia
Region: Isla de Francia
Departamento: Sena Saint Denis
Distrito: Saint Denis



EXISTENTE
1. Stade de france
2. Parc de la Légion d'Honneur
3. Jardinerie Truffaut Paris
Grand Stade
4. Basilique Cathédrale de Saint-Denis
5. Museo de Arte e Historia de Saint-Denis
6. Veepee (Verone campus)
7. Home of Education de la Légion D’honneur
8. Cinema Megarama
9. Cité du Cinema
10. Stade Gaston Bouillant
11. Parc des Chanteraines
12. Rio Sena
Río Sena
Valorización de parques
Estación del tren
ESPACIO PÚBLICO
Nodos de las Centralidades emergentes
Conectar mejor los equipamientos a través de los espacios públicos
Recalificación de nuevos bulevares
ZONAS DE MUTACIÓN
Zonas de revitalizacion urbana
Renovar la zac basílica
PROPUESTA
Zonas de proyecto
Puente articulador y conector
Bulevares (Ejes de coneccion)
Zonas de Esparcimiento
Conecciones Visuales
EspaciosAbiertos
COVID 19
PAISAJ E COMESTIBLE
Productividad Permanencias
Historia
Industrial
CONTAMINACIÓN
DESCONECCION
Elementos Naturales
Actividades (Industria)
SEGREGACIÓN
Río Sena
INUNDACIÓN
Iluminación Ventilación
SAINT DENI SDENIS
MULTICULTURALIDAD
Reconocer CohesiónSocial
OPEN LIVING
EDIFICIO HITO
PROGRAMAS
Flexibilidad Espacial
Actividades
Sociales Zonas de Esparcimiento Zonas de Productividad
RECORRIDOS
MULTICONFORT
Espacios de Permanencia PaisajeAbstracto Microjardines
Materialidad
Insonorización e Impermeabilización

CONECTAR
Ciudad
Trabajo
Esparcimiento
Vivienda
Natura
MOSTRAR
Reconocer
Patrimonio
Entorno
Actividdes
APROPIAR
Conocimiento
Proteger
Nutrir
Materializar
INTERCULTURALIZAR
Habitos y Preferencias
Historia
Cultura
Áreas para picnic
Parques Viveros




Siembra y recolección de cultivo y frutos
Sostenibilidad ambiental Captura de momentos
Antrozoología


Personas de 3ra edas jovenes y niños Turistas Deportistas Familias Profesionales

Zonas deportivas
Cafetería
Zonas de juego
Teatro
Coworking zonas de nado
Alquiler de bicicletas

Lote a desarrollar



linealidad de parque Plaza que conecta al parque



Restaurante
Ivernadero
Centro de distribución Deporte Comercio Galerias
Biblioteca

Cuerpos hídricos
Zonas verdes
Jardines Cultivos

Vivienda Espacios públicos

Vidrios absorbentes de radiación solar para producir energía
Huertas verticales
Huertas verticales dispuestas al exterior

Módulo básico invernaderos
Interior con huertas con una sección de cultivos horizontales
Adaptabilidad en invernaderos
Paneles adaptables

Paneles recogidos

Espacio privado Espacio social








Se debe pensar en un diseño que se integre con el proyecto y a la vez se vuelva una atracción por sí mismo
Espacio que genere una rentabilidad para el proyecto, confort para el que lo esté habitando
Se piensan en estas zonas verdes como espacios que potencien el diseño y sea más ameno el recorrido
se buscan formas orgánicas que se puedan adaptar en un ambiente natural dinámico localizado en la ciénaga de mallorquín de barranquilla, Planteando las actividades de shopping, teatro y zonas de permanencia con visuales al contexto cercano, además se reinterpreta la puerta de oro para formar un espacio más simbólico e icónico dentro del proyecto a través del levantamiento de un techo recorrible que genere la entrada principal y de la bienvenida al proyecto luna

ESTRUCTURA DOMO -TEATRO
se diseña la estructura a partir del concepto de naturaleza tomando como referencia las ramificaciones que tiene el tronco de los manglares, generando una composición geométrica modular que muestra la materialidad estructural del domo.




Se busca imágenes que representen a barranquilla desde los elementos simbólicos del carnaval de barranquilla hasta la fauna y la flora que caracteriza a la ciudad, para generar una apropiación y un conocimiento de la riqueza simbólica y natural que tiene barranquilla, así mismo el domo se volverá un elemento que represente el proyecto como un elemento único y diferente.













Ubicado en el norte de Bogotá entre la calle de 134 y la calle 153, se compone por sectores comerciales y residencias modernas, generando practicidad debido a sus usos e equipamientos del barrio.

MOVILIDAD

El barrio Cedritos limita con la Carrera Séptima y la Autopista Norte, dos de las principales vías de la ciudad y que facilitan en poco tiempo estar en los demás puntos cardinales de Bogotá, además este sector tiene conexiones con otras vías importantes.
EQUIPAMENTOS

Cedritos prevalece los equipamientos educativos, genera una conectividad de comercio en primer piso desde la cra 7 hasta el parque nueva autopista.

CEDRITOS
-Facilidad de acceso por vías principales
-Amplia opción de medios de transporte
-Dinámica económica y comercial
-Atención de servicios de salud
-Diversidad de tipología de vivienda
-Espacio público
-Ciclorrutas habilitadas por la avenida 19, cra 9a y la autopista norte
-Múltiples opciones educativas

Comercio Servicios
Equipamiento Educacional Transmilenio
Intervención vías del tren
Conectividad Ambiental
Busca desarrollar una red de caminos que potencien las relaciones espaciales y funcionales existentes y a través de un catalizador producir nuevas dinámicas pensadas en el usuario y el ecosistema - desarrollandolo por medio de un concepto determinado como eco profundidad que es la relación de diferentes sistemas integrados como un todo
LOCALIZACIÓN PROYECTO -CERCANÍAS 1KM-

PROYECTO
DISTRUBUCIÓN
CORREDOR DE COMERCIO
EQUIPAMIENTO SALUD
EQUIPAMIENTO EDUCACIONAL
RUTAS SITP
15 Minutos PROYECTO

CLUB COUNTRY
CERROS ORIENTALES CLL 134 CRA 9
PROPONEMOS GENERAR UNA CENTRALIDAD COMPACTA EN DONDE LAS AFLUENCIAS DEL SECTOR SE INTERSECTEN Y GENERAR UN ESPACIO DE ENCUENTRO ENTORNO A LAS ACTIVIDADES Y LAS RELACIONES CON EL SISTEMA ECOLOGIC

ATRAVES DE UN EJE CONTINUO CAMINABLE SOBRE LAS VIAS DEL TREN QUEREMOS GENERAR UNA CONECTIVIDAD URBANA EN COMUNICACION CON LAS DINAMICAS DEL ENTORNO


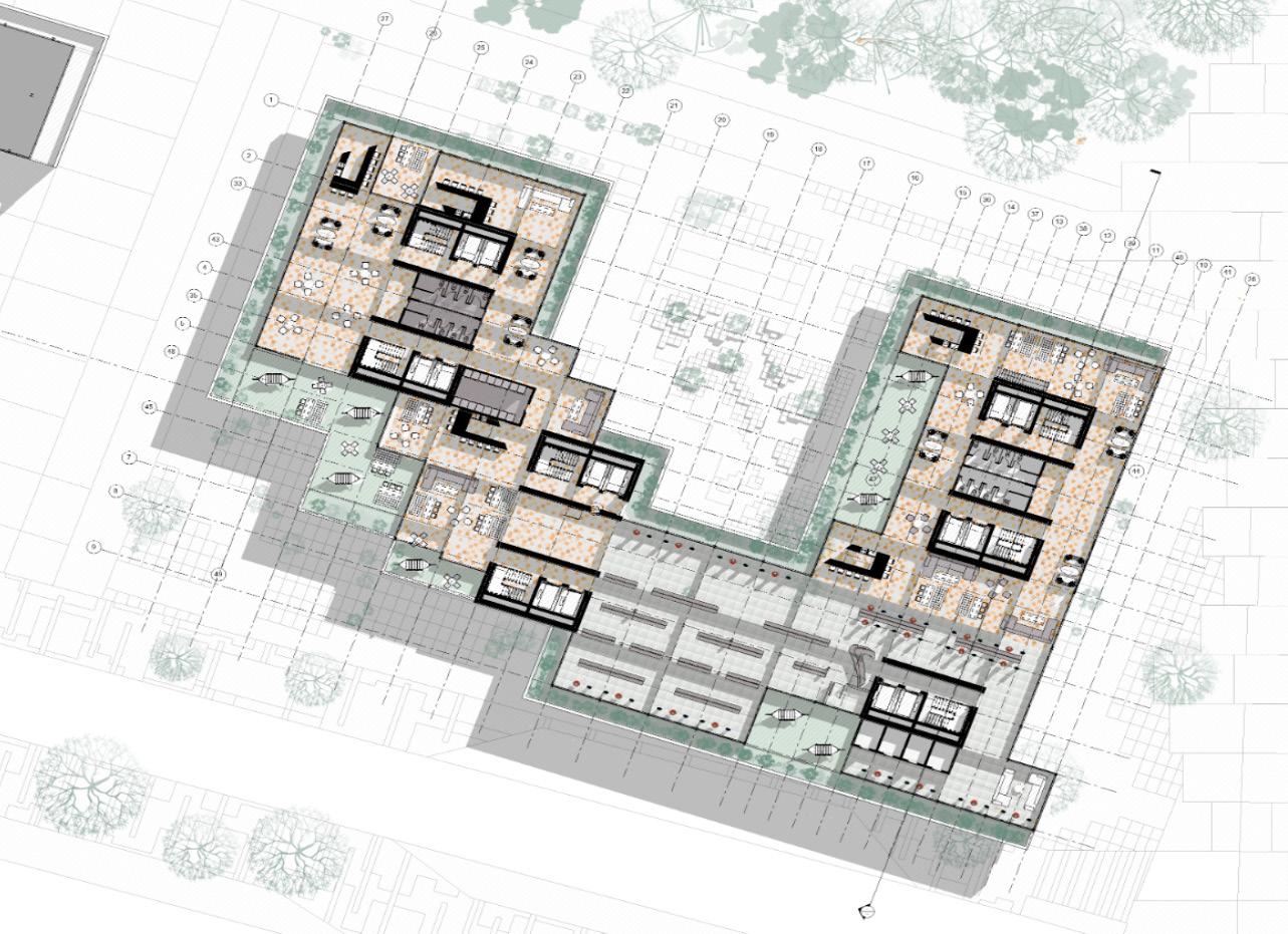
2DO PISO MULTIPROPÓSITO

6TO PISO MULTIPROPÓSITO
4TO PISO MULTIPROPÓSITO


11VO PISO MULTIPROPÓSITO



CORTE-DETALLE
Persiana y Jardineria





