FREDERICK DOUGLASS MEMORIAL HALL DECODING

Howard University Office of Real Estate Development and Capital Asset Management

![]()

Howard University Office of Real Estate Development and Capital Asset Management



Above: The Latin motto Veritas et Utilitas, meaning “Truth and Service,” encircles the Howard University seal.
Opposite: Howard University campus and reservoir with Douglass Hall site outlined in white, circa 2025
Veritas et Utilitas—Truth and Service. At Howard University, the search for truth inspires discovery. Service connects the university to the world. Together, they shape an education grounded in action and accountability.
Founded in 1867, Howard University is a private research institution with 14 schools and colleges offering more than 130 areas of study. Guided by a mission to prepare leaders across disciplines, Howard has awarded more than 120,000 degrees in the arts, sciences, and humanities and is nationally recognized for nurturing generations of Black professionals in medicine, engineering, law, architecture, and education. Howard’s historic central campus in Northwest Washington offers an urban setting where education, research, and community engagement converge to prepare leaders who advance social justice and global impact.
That mission shapes Howard’s academic programs, guides its public leadership, and is vividly expressed in the campus’s design and evolution. Published in 1996, The Long Walk: The Placemaking Legacy of Howard University traces this history. Authored by Harry G. Robinson III and Hazel Ruth Edwards, the book offers a meticulously researched
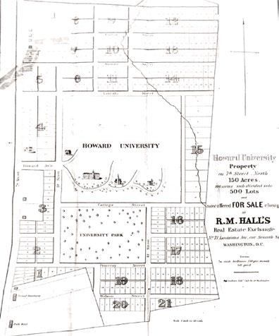
study documenting the campus’s progression from the original 150 acres acquired from John Smith in 1867 through the significant changes of the 20th century. This study illuminates how Howard’s architecture and landscape express a distinctive cultural identity and an enduring commitment to civic purpose.
Inspired by Robinson and Edwards’s work, Decoding Frederick Douglass Memorial Hall expands the narrative, diving deep into the life of a single building through its design, social context, and evolving role on campus. To decode architecture is to interpret how buildings express ideas and values. It means looking closely at form, symbolism, and material, and considering the cultural and political conditions in which a building was conceived and used. Decoding also traces the drift of meaning over time.
Decoding Frederick Douglass Memorial Hall is the first in a series developed by the Office of Real Estate Development and Capital Asset Management that explores the places that define Howard’s campus. This book offers insight into how architecture and social purpose align, and how design rooted in intention continues in Truth and Service.
Copyright © 2025 Howard University
All rights reserved. No part of this publication may be reproduced, distributed, or transmitted in any form or by any means, including photocopying, recording, or other electronic or mechanical methods, without the prior written permission of the publisher, except as permitted by US copyright law. For permission requests, contact Howard University.
This detail is from the fireplace surround within the historic Frederick Douglass Memorial Hall reading room. The black marble with white and gold veining is assumed to be Nero Portoro, typically quarried in Porto Venere, Italy, also known as the Gulf of Poets.


Frederick Douglass Memorial Hall embodies resilience at the heart of one of America’s most influential historically Black universities. This landmark stands as a living symbol of struggle and renewal during an era when questions of equity remain urgent.
As our nation continues to confront the legacies of segregation, disinvestment, and systemic inequality, recounting the story of Douglass Hall is essential. Ninety years after the opening ceremony welcomed students through its doors, the building’s origins illuminate deep connections between architecture and justice. The structure’s endurance through challenging times reveals our collective responsibility to advance the ideals championed by one of history’s greatest human rights advocates. This book documents the layered story of a place carrying the weight of our shared future, serving as a record and a call to action.
The story begins with a vision: a building imagined as a memorial to its namesake and a plan for a resilient future. Frederick Douglass, abolitionist, orator, writer, and Howard University trustee, stands at its center. From
there, the story moves through the minds and hands of those who brought the building to life: David Williston, the first professionally trained Black landscape architect in the United States, and Albert I. Cassell, Howard’s pioneering architect and campus planner, who translated vision into form.
Original blueprints from the MoorlandSpingarn Research Center and Howard University Libraries show the intent of Cassell and Williston in detail, and the architecture itself, with its materials and its symbols, carries a language of heritage. Chapter 2 closes with the building’s 1935 opening ceremony, examining who spoke, who stood in witness, and how funding shaped its early identity.
Next, we explore how Frederick Douglass Memorial Hall became a hallowed space. Over time, it emerged as a powerful symbol of equity and the ongoing pursuit of societal change. The building reflects a steadfast refusal to accept injustice and stands as a visible marker of progress. Its presence on campus has influenced national conversations and anchored generations of advocacy and scholarship.
A timeline runs through chapter 3, pairing milestones from Howard University with national events. They show how Douglass Hall remains woven into our broader social consciousness. A set of program vignettes deepens that narrative, featuring the ROTC legacy, the civil rights era, the mission of The Journal of Negro Education, and “Bones of Truth,” a tribute extending the legacy of Dr. William Montague Cobb. For nearly five decades, Cobb used anatomy to expose racism and to replace the pseudoscience of racial hierarchy with evidence-based truth.
This arc of history reaches a moment of national recognition when Frederick Douglass Memorial Hall, together with Andrew Rankin Memorial Chapel and Founders Library, was named a National Historic Landmark in honor of the legal and intellectual work that helped challenge segregation.
Seventeen years later, on January 2, 2018, temperatures hovered around zero, and eighty-year-old steam lines ruptured, scalding the building and all its contents. Water poured through its core, destroying lesson plans,
original research, and archives. Still, the structure held. “Pressure and Progress,” chapter 4, recalls the night of the event and the resulting actions Howard University took to stabilize, remediate, and then renovate and modernize Douglass Hall. From a framework of the American Institute of Architecture design excellence, the chapter tracks the evolution of Douglass Hall into a highly sustainable and resilient structure to serve the next generations.
The renovation built upon memory and record, so the drawings become a vital point of return. Chapter 5 includes plans, sections, and elevations from the most recent modernization project, as well as Albert Cassell’s floor plans from the original 1933 blueprints.
Today, Frederick Douglass Memorial Hall stands ready for paths yet taken. Restored with care and equipped for the demands of modern scholarship, Douglass Hall remains a place where Howard’s mission is carried boldly into the future.




Enditatque modicid quaestis et fugia dolesero que audaesti omnimi, aute doluptur?
rooms. Today, these informal zones support collaboration, quiet reflection, and peer-topeer learning.
The first-floor corridor was opened to create a bright, inviting entry commons, a shift that created a “hall of learning” feel that anchors student experience in arrival and intention. Arched openings and original proportions were restored along the corridors, re-establishing a sense of rhythm and architectural clarity that had been obscured over time.
Teaching spaces were reassigned from individual departments to the registrar, allowing scheduling based on real-time academic needs. If political science was not meeting in the classroom, sociology could use the space. This shift unlocked capacity across the building, enabling departments to expand their offerings and collaborate more freely.
Rising prominently on the Yard, Frederick Douglass Memorial Hall houses the liberal arts at Howard University. This home for disciplines rooted in inquiry, communication, and justice echoes Douglass’s lifelong commitment to critical thinking, eloquent expression, and informed action. When the university named a building in his honor, it was an enduring recognition of his impact and an affirmation of his values. Within these walls, generations of students and faculty have wrestled with complex questions and shaped the language of progress.
Classrooms were transformed to support a shift in teaching philosophy from passive lecture delivery to active, student-centered learning. The design introduces SCALE-UP environments, where round tables, flexible layouts, and mobile instruction promote collaboration. Interactive technology supports hands-on learning across disciplines, including shared screens, writable surfaces, and modular furnishings. Select original blackboards were preserved, maintaining a visual thread between past and present.
After demolition exposed a long-forgotten plaster ceiling above a warren of old offices, the team brought in skilled artisans trained in traditional plasterwork. Using time-honored methods and custom tools, the team recreated the original etched patterns by hand, a craft that has become increasingly rare in modern construction. Though not entirely lost, such expertise is practiced by only a small community of specialists committed to historic preservation.
insisted that literacy would make Douglass “unfit” to be a slave. In that moment of prohibition, Douglass grasped a profound truth: literacy leads to agency.
From its barrel-vaulted ceilings to its handcrafted millwork, the building required a meticulous preservation effort. In some cases, this work involved excavation and revelation. The discovery of a finely crafted fireplace, long entombed within the walls, marked the first hint of a forgotten elegance hidden beneath years of adaptation. As the restoration unfolded, ongoing efforts revealed bookshelves tucked within the frames of what had once been a grand library, their purpose obscured but never truly lost. These elements, unearthed and refinished, now stand as quiet tributes to the spirit of intellectual pursuit, evoking the timeless images of Frederick Douglass in his home library, surrounded by books, immersed in academic exploration.
Born into slavery in 1818 in Talbot County, Maryland, Frederick Augustus Washington Bailey would later choose a new name, Frederick Douglass, as part of his journey toward freedom. From his earliest years, Douglass understood education to be a gateway to emancipation. In his autobiography, he recounts how Sophia Auld, the wife of his enslaver, began teaching him to read until her husband stopped the lessons. Hugh Auld
Decoding Frederick Douglass Memorial Hall
Wood paneling, decorative plaster, and wrought-iron details were carefully restored or recreated. The team matched materials by hand and eye, guided by archival photos, field investigation, and institutional memory. Throughout the project, the team sought to build a dialogue between eras. Every restored detail reinforced the idea that Douglass Hall should feel as grounded in Howard’s legacy as it is equipped for its future.
After those first lessons with Auld, Douglass launched himself into a journey in selfdirected learning that embodied what we now recognize as the liberal arts tradition. He seized every opportunity to strengthen his facility with language, studying Webster’s spelling book, the Bible, and discarded schoolbooks. He read newspapers scavenged from the streets and traded bread for reading instruction from white children in the neighborhood. He observed, questioned, and engaged. One of the most formative texts he encountered was The Columbian Orator, a collection of essays and speeches on history, philosophy, and literature. These disciplines nurtured his critical thinking and rhetorical skills.
In 1838, at age 20, Douglass escaped enslavement by disguising himself as a sailor and traveling north. He settled jn New Bedford, Massachusetts, and then emerged into public life. In 1845, he published Narrative of the Life
In 1845, Frederick Douglass published Narrative of the Life of Frederick Douglass, an American Slave, offering a powerful account of his early life in slavery on Maryland’s Eastern Shore.


“Education means emancipation. It means light and liberty. It means the uplifting of the soul of man into the glorious light of truth.”
Frederick
of Frederick Douglass, an American Slave, a searing firsthand account of slavery that stirred action across the nation and beyond. His years of self-education prepared him for this moment of public emergence.
When Douglass began speaking at anti-slavery gatherings across the North and in Europe, his command of language and argument allowed him to meet the era’s most influential audiences on equal terms. He shattered stereotypes and revealed the falsehood of racial hierarchies. His speeches and writings illuminated the human cost of slavery and called for equality. In them, he revealed how education can inspire clear thinking, powerful communication, and just action. Douglass’s intellect and eloquence modeled a path by which learning reshapes self and society.
Frederick Douglass’s understanding of expression and representation extended beyond the written word. He became one of the most photographed Americans of the 19th century, using photography as a means to affirm Black dignity and counter racist stereotypes. In each portrait, Douglass
presented himself as serious, composed, and resolute. This deliberate visual strategy revealed how the humanities, including the visual arts, can bridge divides and forge understanding where words alone may falter.
His command of ideas, sharpened by study and guided by principle, found powerful outlets in print and speech. In 1847, Douglass founded The North Star, a newspaper that became a vital platform for abolitionist advocacy and Black intellectual culture. The paper’s writing, analysis, and dialogue shaped opinion and advanced equality. Through this endeavor and his speaking tours, Douglass collaborated with leading abolitionists and reformers, including William Lloyd Garrison, Gerrit Smith, Sojourner Truth, John Brown, and Harriet Tubman. The work anchored him in the heart of 19th-century debates on freedom, citizenship, and democracy.
Douglass’s influential presence allowed him to navigate fluidly across movements and audiences. In 1848, he participated in the Seneca Falls Convention, invited by Elizabeth M’Clintock, a Quaker abolitionist and advocate

1856 Portrait of Douglass. When this portrait was taken, mainstream depictions of Black Americans cast them as uneducated laborers, a caricature rooted in racism and control. Douglass understood the power of a photo to assist in changing that narrative.
Douglass, The Blessings of Liberty and Education, September 3, 1894 3
“To deny education to any people ... is to deny them the means of freedom and the rightful pursuit of happiness, and to defeat the very end of their being.”
Frederick Douglass, The Blessings of Liberty and Education, September 3, 1894
whose collaboration with Douglass reflected alliances across race and gender, grounded in shared ideals. Douglass was the only Black man known to speak at the Seneca Falls Convention, where he voiced strong support for the resolution on women’s suffrage. He viewed the struggle for gender equality as inseparable from the broader pursuit of justice and human rights. His ability to see connections and build coalitions captures the essence of the liberal arts mindset.
When Frederick Douglass joined Howard University’s Board of Trustees in 1871, the institution was still defining its future. Over the next quarter century, Douglass played a crucial role in shaping the institution’s early identity. His correspondence from this era reveals a man deeply engaged with the practical challenges of academia, assessing student concerns, weighing institutional decisions, and offering clear-eyed guidance during the university’s formative years.
Douglass balanced his duties at Howard with posts that placed him in local and national leadership. He served as US marshal for D.C.
(1877–1881), recorder of deeds for D.C. (1881–1886), and eventually as minister resident and consul general to Haiti (1889–1891). His career included advisory meetings with presidents, from Abraham Lincoln during the Civil War to Rutherford B. Hayes during Reconstruction. Although he did not seek the nomination, Douglass’s name was placed on the Equal Rights Party ticket in 1872 alongside Victoria Woodhull, underscoring his prominence and influence. These roles widened Douglass’s platform, enabling him to connect political power with cultural leadership in ways few of his era could.
His personal relationships reflected the same integrity that marked his public work. His first wife, Anna Murray Douglass, supported his escape from slavery and helped turn their Rochester home into a safe haven on the Underground Railroad. After Anna’s passing in 1882, Douglass married Helen Pitts, a white feminist and former secretary in his Washington office. Their interracial marriage provoked national controversy, as critics fixated on their age and racial differences. After Douglass’s death, Pitts helped preserve
his legacy by founding the Frederick Douglass Memorial and Historical Association, safeguarding his papers and correspondence. Their union reflected a shared commitment to moral courage and the conviction that individuals must challenge unjust conventions and act on principle.
In his later years, Douglass published his final autobiography, Life and Times of Frederick Douglass (1881, revised 1892). This expansive memoir built on the deeper reflections of his second autobiography, My Bondage and My Freedom (1855), and chronicled his rise from servitude to statesmanship. Together, these narratives offer a sweeping view of one man’s transformation and the nation’s unfinished struggle with the legacy of slavery. Life and Times remains one of the most comprehensive reflections on American democracy written by someone who had been excluded from it by birth.
Douglass remained active in his advanced years, continuing to write, travel, and speak across the country. On February 20, 1895, after addressing a women’s rights meeting of the
Top: Douglass in his study at Cedar Hill, his home in Washington, D.C. Bottom left: Douglass with his second wife, Helen Pitts Douglass (sitting), and her sister, Eva Pitts. Bottom right: 1894 cabinet card photograph of Douglass with his grandson, Joseph Henry Douglass, an internationally renowned concert violinist.
National Council of Women in Washington, D.C., Douglass returned home and succumbed to a heart attack that evening. He was 77.
Naming Frederick Douglass Memorial Hall for him affirms the values that shaped his life and continue to guide Howard University’s mission. Denied a formal education, Douglass taught himself through reading, observation, and dialogue. He used that knowledge to challenge injustice, shape civic thought, and expand the nation’s moral imagination. His journey reflects the purpose of the liberal arts: to cultivate minds that think critically, speak with clarity, and act with conviction.
Frederick Douglass’s story still resonates. It calls us to embrace the liberal arts as essential to a thriving democracy. It reminds us that education must nurture intellectual independence and ethical responsibility, a commitment Douglass upheld through his lifelong pursuit of knowledge and his insistence on linking learning to civic action. That spirit continues to shape Douglass Hall. Its recent modernization ensures the building remains a place for bold inquiry and meaningful action.



Frederick Douglass Memorial Hall was the first building constructed on Howard University’s campus as part of a cohesive architectural vision. That approach emerged from the 1932 Plan for the Proposed Development of Howard University, in which University Architect Albert Irvin Cassell designated it as Building 14. The structure embodied the institution’s values in form and material, shaping movement, hierarchy, memory, identity, and ambition across campus.
Currently, Howard University’s central campus reflects five distinct development phases, each influenced by university leadership, campus master plans, and architectural trends:
• 1867–1919: Founding period and early campus development evolving from informal building arrangements toward a unified pattern, organizing academic buildings around a central lawn
• 1920s–1949: Early 20th century and New Deal-era construction under University President Mordecai Johnson and architect Albert Irvin Cassell’s 1932 master plan
• 1950–1965: Modern era buildings influenced by the 1951 GSA (US General Services Administration) master plan
• 1966–1990s: Late 20th-century development guided by campus plans from 1966, 1971, 1975, 1986, and 1997
• 2000–2019: Early 21st-century development following the 2011 master plan
• 2020–2030: The Central Campus Plan pursues a balance between a heritage of preservation and propelling innovation and strategic, sustainable growth, aiming to activate the campus with new academic programs and structures
By the early 20th century, the US Department of the Interior, which oversaw the campus, recognized that many Howard facilities were in poor condition. In 1919, the US Department of Agriculture was tasked with creating a development plan for the university. The department’s proposal preserved the campus’s pastoral character, while replacing its informal layout with a unified development pattern that


Albert Cassell’s 1932 Plan for the Proposed Development of Howard University (Building 14,

“The Cassell plan is really the foundational plan on which the modern campus is built.”
Derrek Niec-Williams, Howard University Assistant Vice President for Planning and Architecture, 2022
grouped academic buildings around expansive open spaces. Regrettably, this initial plan remained unimplemented.
A turning point came in June 1926 when Dr. Mordecai Wyatt Johnson became Howard’s first Black president, a position he held until 1960. Throughout his 34-year tenure, Johnson established Howard as a center of excellence for African Americans. His influence extended beyond academia and included a deep interest in improving the university’s physical environment.
For the first time in the history of the university, President Johnson called upon Black design professionals to plan and implement campus improvements. Howard’s expansion coincided with substantial federal investment during the administration of President Herbert Hoover (1929–1933). Administered through the Department of the Interior, this work included a 1929 planning initiative that helped shape a long-term campus development plan. In 1930, Hoover signed legislation raising Howard’s annual federal appropriation from $385,000 to $1 million, a pivotal move that allowed the university to modernize and expand its campus infrastructure.
In 1922, Johnson created the university architect position, appointing Albert Irvin Cassell, an African American Cornell University architecture graduate who had joined Howard in 1920 as an assistant professor. As university architect, Cassell conducted a comprehensive campus survey that resulted in the 1932 Plan for the Proposed Development of Howard University. His plan introduced a formal arrangement reflecting symmetry and elegance, transforming the campus into an architecturally cohesive unit influenced by Beaux-Arts, Neoclassical Revival, and Colonial Revival styles.
The momentum that began under President Hoover continued into the Roosevelt administration, where the New Deal ushered in an era of federal investment in public institutions, including Howard University. Under President Franklin D. Roosevelt’s leadership, New Deal agencies such as the Public Works Administration (PWA) provided critical funding for campus expansion. These resources enabled the construction of major academic buildings, including Frederick Douglass Memorial Hall (1935), the Chemistry Building (1936), and the iconic Founders Library (1937). Together, these projects embodied the
university’s aspirations and the federal government’s growing commitment to Black higher education during the Great Depression.
Cassell designed buildings in the Georgian Revival style, arranged symmetrically around the main and lower quadrangles. He partnered with David Williston, America’s first professionally trained Black landscape architect, to create formal plantings, tree-lined pathways, and gardens at strategic locations. Thanks to the increased federal funding under Hoover and Roosevelt, Howard’s budget tripled, making it possible to execute Cassell’s vision of a formal, monumental campus, one that expressed dignity, permanence, and the rising intellectual and cultural ambitions of Black America.
After Cassell’s departure as university architect in 1938 following disagreements with the administration, other Black architects received commissions. Hilyard R. Robinson and Paul R. Williams designed Cook Hall, a men’s dormitory sited and styled in accordance with Cassell’s plan. The final major building from this era, funded through the Public Works Administration, was a tuberculosis annex at Freedmen’s Hospital, completed in 1941.

“What is the quality of your intent? When we intend to do good, we do … What each of us must come to realize is that our intent always comes through.”
Thurgood Marshall’s speech receiving the Liberty Award on July 4, 1992

Enditatque modicid quaestis et fugia dolesero que audaesti omnimi, aute doluptur?
rooms. Today, these informal zones support collaboration, quiet reflection, and peer-topeer learning.
The first-floor corridor was opened to create a bright, inviting entry commons, a shift that created a “hall of learning” feel that anchors student experience in arrival and intention.
Arched openings and original proportions were restored along the corridors, re-establishing a sense of rhythm and architectural clarity that had been obscured over time.
Classrooms were transformed to support a shift in teaching philosophy from passive lecture delivery to active, student-centered learning. The design introduces SCALE-UP environments, where round tables, flexible layouts, and mobile instruction promote collaboration. Interactive technology supports hands-on learning across disciplines, including shared screens, writable surfaces, and modular furnishings. Select original blackboards were preserved, maintaining a visual thread between past and present.
The Beaux-Arts framework informed the design of Frederick Douglass Memorial Hall. Located along the edge of the Yard, Douglass Hall helps define and frame this central open space, which reflects the classical quadrangle of historic academic campuses. This spatial organization places Douglass Hall and the Yard in deliberate dialogue, where the building’s classical features mirror the landscape’s orderly, civic character, reinforcing values of tradition, discipline, and progress. The building stands as an expression of Howard’s mission and a testament to the classical training that Albert Irwin Cassell and David Williston translated into a modern Black institutional context.
Teaching spaces were reassigned from individual departments to the registrar, allowing scheduling based on real-time academic needs. If political science was not meeting in the classroom, sociology could use the space. This shift unlocked capacity across the building, enabling departments to expand their offerings and collaborate more freely.
From its barrel-vaulted ceilings to its handcrafted millwork, the building required a meticulous preservation effort. In some cases, this work involved excavation and revelation. The discovery of a finely crafted fireplace, long entombed within the walls, marked the first hint of a forgotten elegance hidden beneath years of adaptation. As the restoration unfolded, ongoing efforts revealed bookshelves tucked within the frames of what had once been a grand library, their purpose obscured but never truly lost. These elements, unearthed and refinished, now stand as quiet tributes to the spirit of intellectual pursuit, evoking the timeless images of Frederick Douglass in his home library, surrounded by books, immersed in academic exploration.
Designing with intent is a core tenet of the classical tradition. That commitment to purposeful design was deeply embedded in the training Williston and Cassell received at Cornell University, where landscape and architectural disciplines drew heavily from the principles of the École des Beaux-Arts. Williston, graduating in 1898 as the first professionally trained African American landscape architect, received instruction in ordered spatial composition, axial organization,
After demolition exposed a long-forgotten plaster ceiling above a warren of old offices, the team brought in skilled artisans trained in traditional plasterwork. Using time-honored methods and custom tools, the team recreated the original etched patterns by hand, a craft that has become increasingly rare in modern construction. Though not entirely lost, such expertise is practiced by only a small community of specialists committed to historic preservation.
and the integration of site and structure. Likewise, when Cassell enrolled in 1917, the curriculum emphasized historical precedent, idealized forms, and symbolic composition. Students were taught to conceive buildings not just as utilitarian enclosures but as expressions of institutional meaning articulated through elements drawn from classical antiquity.
Wood paneling, decorative plaster, and wrought-iron details were carefully restored or recreated. The team matched materials by hand and eye, guided by archival photos, field investigation, and institutional memory. Throughout the project, the team sought to build a dialogue between eras. Every restored detail reinforced the idea that Douglass Hall should feel as grounded in Howard’s legacy as it is equipped for its future.


Profession
Born
Education


Role at Howard
Signature Style
Major Contributions at Howard Legacy
Landscape Architect
1868, North Carolina
Cornell University
Bachelor of Science in Agriculture (1898)
Landscape Architect
Classical landscape geometry, native planting
Shaped the campus through landscape design, planning, and preservation of open green space
Defined the user experience of HBCU campuses through landscape design guided by utility and beauty
Architect
1895, Maryland
Cornell University
Bachelor of Architecture (1919)
University Architect and Master Planner
Colonial Revival, Beaux-Arts symmetry
Campus planning and design of Douglass Hall, Founders Library, the Women’s Dormitory, and more, establishing a cohesive academic core
Comprehensive campus planning, institution-defining architecture such as Frederick Douglass Memorial Hall, and a lifelong commitment to mentoring the next generation of Black designers
Additional Work
Designed landscapes for numerous HBCUs, residential and civic projects, public parks, and memorials
Designed buildings for HBCUs, civic landmarks, and planned communities; advanced architecture through education, mentorship, and vision
“You have broken across all customary and well-trodden paths into a new field.”
President



Late 1890s image of David Williston (fifth from right) with the College of Agriculture Professor and Dean Isaac Roberts (bearded, center) and other Cornell University classmates. Right: A hand sketch by Williston appears in his thesis, “Atmospheric Drainage,” where he explored the benefits of windbreaks in controlling moisture, reducing flower loss, and attracting pollinators.
David Augustus Williston’s story begins on a family farm near Fayetteville, North Carolina, where each of thirteen children was given a garden plot. As his niece Dorothy Harris later recalled, Williston, the second oldest, planted vegetables but always made space for a patch of flowers. That early attention to order and beauty took root in his modest plot and continued to grow throughout his career.
Today, his contributions are recognized for their technical merit and the communities they serve. His work shaped campuses, civic projects, and professional pathways. His landscapes endure, as does his legacy of private practice and public service.
Educated at the Normal School of Howard University (1893–95) and then at Cornell University, Williston was among the first Black graduates of Cornell and the first Black student to graduate with a bachelor of science in agriculture. He studied under Liberty Hyde Bailey, chair of practical and experimental horticulture. Williston joined the famed Bailey’s Boys Club, a horticultural group led by the professor, whose members studied the leading plant scientists of the day. Williston’s senior thesis, “Atmospheric Drainage,” used field data from a peach orchard to evaluate the benefits of windbreaks. His research reflected a practical, scientific approach to horticulture and confirmed that windbreaks reduce

Below: Tuskegee Institute campus, April 5, 1918, when Williston served as superintendent of buildings and grounds
moisture loss and supported pollination. Williston later completed municipal engineering courses through the International Correspondence School in Pennsylvania.
According to historians Kirk Muckle and Dreck Wilson, writing in an article for Landscape Architecture Magazine, colleagues and students remember Williston as a learned man well-versed in Latin. He quoted from the classics, solved advanced mathematical problems with ease, and offered investment advice with the same confidence as horticultural wisdom.
Williston combined rigorous intellect with practical knowledge and a clear commitment to cultivating young minds.
Williston began teaching in 1898 at the State College of North Carolina at Greensboro. By 1902, he had joined the faculty at Tuskegee Normal and Industrial Institute as a professor of horticulture, where he would teach on and off for nearly three decades. In 1910, he became Tuskegee’s superintendent of buildings and grounds. There, he shaped the campus through formal site plans and extensive planting, often working with student

crews and struggling under limited funding. At Tuskegee, he formed close bonds with George Washington Carver and architect Robert R. Taylor. Together, they guided Tuskegee’s transformation into a national model for vocational and agricultural education.
Influenced by his time at Cornell and the teaching of Professor Bailey, Williston’s design approach reflected the English Landscape School. He selected plant materials with a painter’s eye and a scientist’s precision. He introduced native species alongside ornamentals, balancing aesthetic
vision with environmental adaptability. His landscapes shaped daily life at institutions nationwide, from Tuskegee to Alcorn State University, Fisk University, Clark University, and beyond.
The 1929 stock market crash brought widespread disruption to landscape and architectural design, stalling projects across the country and casting uncertainty over future commissions. However, Williston’s long-standing relationships with historically Black colleges and universities sustained his work during this volatile period. In the 1930s,
he moved to Washington, D.C., and established what is widely recognized as the first Black-owned landscape architecture firm in the United States.
His arrival in the capital coincided with a new era of federal investment. The New Deal, launched in response to the economic crisis, channeled resources into public infrastructure, housing, and educational facilities. This national focus on civic improvement created new opportunities for landscape architects, particularly those working in institutional and urban contexts.







Williston was well-positioned to participate. Washington had become a hub of Black professional life, and he joined a close-knit group of Black architects including Albert Cassell, John Lankford, Howard Mackey, and Hilyard Robert Robinson. Williston and Robinson had a long record of working together on numerous commissions, including the codesign of the site plans for the Langston Terrace Dwellings, the country’s first federally funded public housing development and a flagship example of New Deal priorities in action.
At Howard University, Williston worked on the 1932 campus plan alongside campus architect Albert Cassell. Historians Muckle and Wilson recount a moment of tension between the two. Williston reportedly objected to the placement of Founders Library, believing it blocked a long view of the city from the Yard. That debate aside, Williston shaped the landscape into a formal quadrangle, centering Frederick Douglass Memorial Hall, Rankin Chapel, and
Founders Library within a rhythm of paths and greens. Originally laid out as a lattice of walkways crisscrossing between prominent building entries, the design evolved into the pattern we recognize today. Eight paths now radiate from a circular center point, creating a sense of connection and convergence. The Yard emerged as a public space for gathering, dialogue, and protest, and it remains so today.
To the west of Georgia Avenue, Williston envisioned parks and tree-lined greens that connected Howard to the surrounding neighborhood. He understood how campus design could radiate outward, shaping institutional character and public life. His work at Howard, like his projects at other HBCUs, affirmed the power of education, community, and collective vision.
In 1946, during Howard University’s Charter Day, President Mordecai Wyatt Johnson praised Williston’s pioneering path and national
These Howard University figure-ground drawings trace the campus development from 1919 to a proposed 2030 future condition. The second image from left is of the 1932 campus plan vision, which introduced Douglass Hall as Building 14.
influence: “You have broken across all customary and well-trodden paths into a new field and have brought yourself, by repeated accomplishments, to be among the leading American landscape architects whose services are widely sought for private estates, college campuses, and landscape projects of state and federal governments.”
By the time of his death in 1962, Williston’s name was known within a close circle of students, colleagues, and institutions, but he has been too often overlooked in the broader history of landscape design.
Right: Late 1890s group photo of the Horticultural Lazy Club, known as “Bailey’s Boys,” a circle of Cornell students mentored by horticulturist Liberty Hyde Bailey. Williston (fourth from left) was the first African American member, gaining access to vital mentorship and networks that shaped his pioneering career in landscape architecture.
Below left: David Williston (top, left) alongside his brother Edward Davis Williston in portrait with other brothers and sisters. Below center: Williston’s 1958 handwritten donation to the Liberty Hyde Bailey memorial fund. Below right: Tuskegee Army Airfield site plan and photo, circa 1943; Williston’s attention to this project was instrumental to the success of the construction.






Left: Cornell University, Alpha Phi Alpha fraternity original crest, circa 1910s
Right: Cassell’s 351st Field Artillery Regiment returning from World War I on the transport Louisville, February 17, 1919
Below: Cassell’s graphite hand sketch of the proposed Frederick Douglass Memorial Hall, circa 1934


In the spring of 1913, a young man bends over a drafting table, working diligently with a graphite pencil. His instructor, one of the first African American engineering graduates from Cornell, watches closely, recognizing the force of intellect and vision taking shape before him. That young man was Albert Irvin Cassell, whose designs would reshape the landscape of Black higher education and infrastructure in the United States.
Albert Irvin Cassell (1895–1969) was born in Towson, Maryland, the third child of Albert Truman Cassell, a coal truck driver and trumpet player, and Charlotte “Lottie” Cassell, who washed laundry to help with household finances. At the age of 14, he entered a four-year program at Frederick Douglass High School, a segregated vocational school in Baltimore, where he studied carpentry and drafting. By the time of his graduation from the school in 1914, his talent had caught the attention of Ralph Victor Cook, the school’s head of technical education and a Cornelltrained engineer. Cook mentored Cassell and advocated for his admission to Cornell University’s architecture program in 1915.
At Cornell, Cassell entered an intellectual and cultural environment that expanded his sense of identity and artistic possibility. He joined Alpha Phi Alpha Fraternity, Inc., the first intercollegiate Greek-letter fraternity established for African American men. The fraternity’s rituals and iconography drew upon African and Egyptian symbolism, including representations of the Her-em-akhet, pharaohs, and pyramids, which reinforced ideals of heritage and leadership. Combined with the École des Beaux-Arts principles that shaped his architectural training, these influences helped inform the monumental character, symbolic richness, and classical order that came to define his later campus and civic designs.
Two years into his studies, Cassell was drafted into World War I and served in France with the 351st Field Artillery Regiment, 92nd Division. Cornell conferred his degree in 1919 as a “war diploma,” recognizing the interruption.
Cassell’s 1919 collaboration with William A. Hazel, an architect and educator, on five trade buildings at Tuskegee coincided with Hazel’s appointment as the first dean of Howard
University’s School of Architecture. Early in 1920, Cassell worked in Bethlehem, Pennsylvania, as chief draftsman for Howard J. Wiegner, designing silk mills and other industrial facilities. Soon, Hazel persuaded Cassell to join him in Howard’s new program.
By 1922, Cassell was appointed university architect and head of the Department of Architecture. He led the program through 1928, shaping what would evolve into the College of Engineering and Architecture. His tenure coincided with President Mordecai Johnson’s broader vision for Howard, in which architecture was conceived as a deliberate instrument of institutional identity and national positioning.
President Johnson recognized the university’s architecture needed to convey legitimacy, permanence, and cultural authority within the symbolic landscape of the nation’s capital. The campus could not simply provide functional space; it should actively project heritage, power, and leadership, affirming Howard’s standing as the preeminent African American institution at the center of national life.
Cassell designed a series of landmark buildings that established the campus as a national symbol of Black intellectual achievement.
In appointing Cassell as the first university architect, Johnson strategically aligned Howard’s facilities with this vision. Cassell’s École des Beaux-Arts training provided him with a classical architectural vocabulary, rooted in Roman and Greek precedents, that Washington, D.C., aristocrats and decisionmakers would understand and respect. This vocabulary also allowed Howard’s campus to embody a formal organizational order that echoed the city’s monumental planning traditions. For Johnson, Cassell’s appointment was less about stylistic preference and more about harnessing architecture as a symbolic language to assert Howard’s legitimacy in the nation’s civic and cultural milieu.
Cassell’s preparation for this role and his partnership with Williston also were informed by his early professional experience at the Tuskegee Normal and Industrial Institute (today’s Tuskegee University). Tuskegee’s architectural tradition was markedly different. Guided by Booker T. Washington and architect Robert R. Taylor, Tuskegee emphasized a practical design-build pedagogy in which students participated in design and
construction and used locally available materials. This interdisciplinary method, rooted in self-reliance and collective craftsmanship, embodied Tuskegee’s educational philosophy of cultivating the “head, hand, and heart.”
Tuskegee and Howard emerged from the same era of aspiration yet charted distinct paths, each shaping an architectural language that mirrored its educational philosophy. At Tuskegee, Booker T. Washington championed an ethic of practical learning and communal effort, where students literally built the campus that would, in turn, build them. The brickwork, forged by their own hands, became a quiet archive of self-reliance, craftsmanship, and the belief that labor and learning were inseparable. Its architecture grew from the soil outward it was rooted, tactile, and deeply connected to the rhythms of making.
Howard’s campus followed a different, but no less purposeful, trajectory. Influenced by Frederick Douglass’s insistence on broad intellectual pursuit and the urgent necessity of full participation in the national civic sphere, Howard sought an architectural presence that
reflected scholarly ambition and institutional legitimacy. Under Johnson’s leadership and through Cassell’s design vision, the buildings conveyed confidence, cultural authority, and the promise of professional advancement. This was a landscape shaped to signal belonging in the corridors of national discourse.
Seen together, these architectural traditions do not compete but converse. Tuskegee’s hands-on, community-built environment and Howard’s expression of academic stature reveal two complementary modes of empowerment. One was specifically grounded in the transformative nature of craft, and the other is a springboard for pursuit of intellectual leadership. Each campus embodies a philosophy that advanced African American education in its own way, using architecture as a pedagogical tool and a declaration of purpose.
Giving tangible form to this vision, Cassell designed a series of landmark buildings that established the campus as a national symbol of Black intellectual achievement: Frederick Douglass Memorial Hall (1935), the Chemistry
Building (1936), Founders Library (1937), and the Civil Engineering Building (1939). Together, these works form the core of the Howard University Campus Historic District, now listed on the National Register of Historic Places. During this time, Cassell also designed dormitories, hospitals, an athletic stadium, and utility infrastructure with the same level of architectural intention.
Cassell’s leadership at Howard extended beyond design. He helped secure major philanthropic grants, managed land acquisitions, and conducted detailed property surveys that shaped the university’s expansion. He laid the critical educational groundwork for the College of Architecture and oversaw technical and construction teams responsible for nearly every campus improvement between 1922 and 1938. In 1930, W. E. B. Du Bois, a co-founder of the NAACP and editor of The Crisis, its official magazine, invited Cassell to write about architecture as a profession for young African Americans. The request reflected Cassell’s recognition across Black academic and professional circles and his standing as a model for future generations.

Cassell’s service at Howard ended under strained circumstances with President Mordecai Johnson in 1938. The dismissal was controversial and appears to have stemmed from disagreements over his outside professional work, differences in vision for campus development, and conflicts with the administration. Some accounts suggest the university administration was uncomfortable with Cassell’s growing prominence and independent professional activities.
Nevertheless, Cassell continued practicing architecture independently and later through the firm of Cassell, Gray & Sutton. He completed major commissions for other historically Black colleges and universities,
including Morgan State University, Virginia Union University, and what is now the University of Maryland Eastern Shore, where his architecture continues to reinforce a sense of institutional pride. The breadth of his practice also extended to Masonic temples, churches, institutional buildings, and select private residences throughout Washington, D.C., and Baltimore.
Among his most significant post-Howard contributions were residential developments. He designed public and private housing for middle-income African Americans. These projects included the James Creek Dwellings (1943) and the Mayfair Mansions Apartments, completed in 1946. The latter development


Opposite: Albert Cassell’s office with shelves filled with books and folios. Cassell’s architectural papers are housed at Howard University’s Moorland-Spingarn Research Center. Inset: Letter from W.E.B. Du Bois to Cassell, December 9, 1930, where Du Bois asks Cassell to write an article on “Architecture As a Career for Young Colored People” to be published in The Crisis.
became one of the first privately financed, FHA-insured apartment communities for Black residents nationwide. Its 594 garden-style units were designed with dignity and affordability in mind. Mayfair won an architecture award from the Committee on Municipal Art of the Washington Board of Trade for its civic contribution.
From early in his career, Cassell’s vision extended beyond buildings to entire communities. In the 1930s, at the height of the Great Depression, he purchased 380 acres on the Chesapeake Bay near Prince Frederick, Maryland, where he planned an ambitious, self-sustaining settlement called Calvert Town. Designed for African Americans, the town was rooted in the ideals of economic self-reliance, cooperative development, and racial equity. Cassell envisioned farmland, factories, a hotel, hospital, theater, boardwalk, and modern infrastructure, including electrification and sewage treatment. He applied for Public Works Administration support and met with President Roosevelt to advocate for funding, but the project failed to secure federal backing. For all the strength of
Cassell’s vision, the period’s economic constraints proved decisive. Even with private investment and charitable appeals, the town was never realized.
In the 1960s, he returned to Calvert County with a new plan. Chesapeake Heights on the Bay was to be a summer resort community for African American families. It would include homes, a marina, commercial amenities, and recreational access to the Chesapeake. Though some lots were sold, the project stalled after Cassell’s death in 1969. Today, a single street, North Cassell Boulevard, is all that remains of his decades-long effort to build a community where design could be a force for equality.
At the height of the Cold War, Cassell designed a large-scale residential leasepurchase project in northwest Washington, including a proposed underground bomb shelter. The development was ultimately shelved as diplomatic relations between the US and the Soviet Union began to ease. Undeterred, Cassell and his firm continued to shape the capital’s built environment through
a wide range of commissions, from schools and residences to Pentagon renovations and computing facilities. Cassell also worked with major institutions, including the Roman Catholic Archdiocese of Washington and the District government.
Architecture was personal and generational for Cassell. He had six children and two stepchildren from three marriages. Four of the children studied architecture at his alma mater: Charles Cassell (’46), Martha Cassell (’47), Alberta Jeannette Cassell (’48), and Paula Cassell (’76). Together, the Cassells left an enduring mark on architecture and civic life.
After suffering a heart attack, Albert Irvin Cassell died at his home in Washington, D.C., on November 30, 1969. His funeral was held at Washington National Cathedral on December 3, followed by burial at Baltimore National Cemetery, where he received military honors. He left behind a built legacy that shaped the educational and civic infrastructure of Black America. His work endures. So does his vision of the campuses he transformed and the architects he inspired.
25





A selection of Albert Cassell’s architectural drawings, renderings, photographs, and site plans, reflecting his classical training, precision, and longrange planning for university, residential, and civic institutions.







As Cassell is designing Douglass Hall, the building details are where his intent becomes tactile, intimate, and precise. These details are where concept meets craft, and the materials, forms, and symbols articulate the message. The following visual study assists in decoding how the building’s architecture communicates its purpose and place in the campus fabric.



Douglass Hall portico columns
Opposite: Corinthian capital and Tower of the Winds drawings from Stuart and Revett’s The Antiquities of Athens (1762) and Andronicus’ De Architectura (25 BCE), original editions of which are held in Cornell’s Division of Rare and Manuscript Collections. Both of these would have been readily available during Cassell’s architectural studies.
The portico of Douglass Hall stands as an enduring symbol of strength and legacy. Stoically oriented east toward the Yard, Douglass Hall’s pediment, entablature, and columns have provided a meaningful architectural backdrop for significant events since the building’s dedication. The selection of the column order reflects Albert Cassell’s intentional engagement with classical precedent, informed by his education at Cornell University and his desire to embed the Western and North African intellectual traditions of Greek, Roman, and Egyptian heritage within the building’s form.
Cassell drew specifically from the Tower of the Winds ( Ωρολόγιο
), constructed c. 100 BCE in the Roman Agora of Athens. Designed by Andronicus of Cyrrhus, the tower integrated meteorological and horological functions, employing sundials, water clocks, and wind vanes, to embody the pursuit of empirical knowledge.
Cassell’s particular variation of the Corinthian order carries dual heritage references: the lower acanthus leaves reflect Western classical tradition, while the upper lotus-like “water leaves” evoke ancient Egyptian capitals. The lotus, which flourished in the fertile mud along the banks of the Nile, was a powerful symbol of cosmic creation and rebirth in ancient Egyptian design and mythology due to the way it closes at night and reopens each morning. Egyptian plant motifs like the lotus and papyrus predate and likely inspired later Greek and Western design traditions.
The fusion of lotus and acanthus motifs within Douglass Hall’s capitals provides a glimpse into Cassell’s intent to foreground African lineage within Howard’s architecture. By privileging Egyptian over Greco-Roman symbolism, he aligned the university with a broader intellectual movement among African American artists and activists. From the Harlem Renaissance to the Black Arts movement, Egypt was invoked as proof of Africa’s civilizational authority and as a counter to narratives that denied African contributions to the foundations of culture and learning.
Cassell’s window design for Douglass Hall reflects a thoughtful blend of classical proportion and modern function. In the 1920s, educators and architects were beginning to prioritize natural light and ventilation in schools, shaped by European modernist ideas and the industrial evolution of American building materials. Cassell’s window design integrated large windows into the façade, allowing for ample daylight to flood the interior. Campus lore asserts that he was pressured to employ smaller, more proportionally specific windows, which no doubt would have been more economical in this frugal era of construction. Yet, Cassell held steadfast.
By incorporating these large windows, Cassell was able to marry the symbolic dignity of classical architecture with the modern needs of educational spaces. The decision to integrate significant natural light into the building was a reflection of the period’s progressive health consciousness and a practical solution to enhance the learning environment.
Cassell’s experience designing silk mills in Bethlehem, Pennsylvania, likely influenced this
decision. In 1920, as chief draftsman for architect Howard J. Wiegner, he worked on projects like Laros and Lehigh Valley Silk Mills. These facilities featured wide-open floor plans supported by steel and timber trusses, along with generous window-to-wall ratios that maximized daylight for workers.
Echoes of that design logic surfaced during the renovation of Frederick Douglass Memorial Hall in 2020. Behind layers of alteration, the building’s open, light-filled wings revealed their industrial DNA. Both the north wing, home to the historic auditorium and library, and the south wing’s open commons used similar structural strategies. On the first floor, 15-over15 double-hung windows line the façade. The second and third floors feature 8-over-8 units, nearly identical to those used in the silk mills, and subsequently in Cassell’s buildings at Morgan State University. Originally constructed with individual panes of glass, these windows were removed and replaced in the late 20th century with insulated, singlepane double-hung units. While the historic muntin patterns remain, the material clarity and depth of the originals have been lost.
Morgan State University Memorial Chapel, Baltimore, Maryland, circa 1941


Laros and Lehigh Valley Silk Mill, Bethlehem, Pennsylvania, c. 1919. Cassell’s experience designing mills likely influenced his use of generous window-to-wall ratios that maximized daylight and married the dignity of classical architecture with the modern needs of educational spaces.

Integrated within the dentil band is the “meandros” pattern or “meander,” a Greek key motif symbolizing infinity, unity, and the cycle or journey of life.

The detailing within Douglass Hall is typically simple and illustrative of an economy of means and restraint of décor. As such, the areas where Cassell introduces more ornate details stand out. The finely crafted fretwork dentiling found in the millwork of the library lies at the intersection of Cassell’s classical architectural training and his foundational experience in skilled craftsmanship.
The use of dentils (an essential element of classical entablature) reflects Cassell’s BeauxArts education at Cornell University. The execution of these details in intricate woodwork signals a more tactile and material sensitivity, likely rooted in Cassell’s early vocational training in carpentry at Frederick Douglass High School in Baltimore. This dual background enabled Cassell to engage classical forms not only as abstract design principles but as expressive, embodied gestures grounded in the craftsmanship of making.
These details resonate as a foundational symbol of American democracy. Rendered in the language of neoclassicism, the choice aligns powerfully with Cassell’s broader project: to articulate African American institutional identity through architecture grounded in intellectual heritage, permanence, and the ideals of the Enlightenment. Design Details
Integrated within the dentil band is the “meandros” pattern or “meander,” a Greek key motif with countless historical variations. A decorative border built from a continuous line turning 90 degrees at regular intervals, it is an ancient symbol of infinity, unity, and the cycle or journey of life. Framing the thresholds to the library and reading room, this dentil’s specific articulation can be traced to the porticos of Independence Hall in Philadelphia. Given Cassell’s time working in Bethlehem, Pennsylvania, it is possible he traveled to Philadelphia, sketching and studying its architecture. One wonders if in choosing that motif he sought to echo a symbolic journey, linking personal and communal progress to the ideals of national independence and democratic expression.

Design Details

The cupola rises above the center of Douglass Hall and is unique in its assembly as an originally designed roof lantern for Howard University. Built before the cupola on Founders Library, it reflects Cassell’s exploration of how form and light can express purpose and presence. By day, it crowns the roofline with visual clarity. By night, it becomes a beacon, guiding students toward the heart of the Yard.
The cupola’s design follows a tripartite composition. A squared limestone base anchors it to the pitched roof. Above that, a glazed lantern made of lead-coated copper rises as the central element. At the top, a painted curved roof sheathed in lead-coated copper supports a cast bronze finial that completes the silhouette.
Material and meaning are fully intertwined in this structure. The lantern’s structure is notched, framed, and sheathed in Douglas fir—spelled “Douglass Fir” in Cassell’s original architectural drawings, likely as an intentional nod. This timber, highly valued in the 1920s for its strength and resilience, was probably sourced from the Pacific Northwest. Its
Opposite: Cupola atop Frederick Douglass Memorial Hall as illustrated within the 1933 blueprints
presence connects distant geographies, uniting coastlines through a structure that speaks to ideals of equity and belonging.
At its base, limestone blocks form a strong foundation, detailed with quoined corners that emphasize edges and reinforce a sense of permanence. Above, a limestone balustrade with hand-turned balusters supports carved urns. These ceremonial elements were originally designed with swags and finials, tying the lantern to classical design traditions. Within neoclassical architecture, urns symbolize remembrance, respect, restraint, and reason.
Double pilaster fluted Ionic order columns support the perimeter entablature for the rooftop. Given Cassell’s knowledge and reverence for architectural legibility, these columns suggest strength paired with refinement. The scroll-like volutes at their capitals recall ancient symbols of knowledge, pointing to a design rooted in intellect and intention. In the Hellenistic period, the Ionic order was often reserved for buildings associated with the gods of wisdom and the arts.













1–2. Howard University’s original 19th-century seal bore the motto “Equal Rights & Knowledge for All,” depicting Black and Native American figures surrounding the globe beneath a radiating sun. This imagery of inclusivity and enlightenment guided the university for four decades. As the institution grew, its emblem was reimagined. In the early 20th century, the modern seal was adopted, encapsulated in the pediment tympanum of Douglass Hall: the motto Veritas et Utilitas encircles a shield displaying an open book inscribed deo et reipublicae (“by God and the republic it is permitted”). These ideals are expressed in the architectural details of the building, where the open book motif framed by Corinthian acanthus leaves reinforces the enduring values of knowledge, purpose, and civic duty.
3. The base of the cupola and the ceremonial entry gates are crowned with limestone urns, symbolizing the building as a memorial.
4–5. Mahogany, prized for its deep, rich color and the high cost of harvesting and shipping it in the 1930s, was selected for the Frederick Douglass Reading Room, the building’s most scholarly and celebrated space.
6. Public corridors are finished with checkered-pattern terrazzo flooring, which supports the building’s warm atmosphere while offering exceptional durability and resilience. These original floors were preserved and restored with only light buffing and mopping.
7. At the building’s entry, white Carrara marble quarried in the Apuan Alps frames the bronze Frederick Douglass dedication plaque. The plaque reads: “This Building Dedicated to Frederick Douglass, 1817–1895: Enslaved Abolitionist; Publicist; Statesman; Friend of Education; University Trustee; Defender of Citizenship; Leader of Woman Suffrage; Pioneer in Social Rights; Famed Advocate of His Race; Inspirer of Coming Generations.”
8. Black and white marble with intense gold and white veining surrounds the fireplace in the Frederick Douglass Reading Room. It appears to be Nero Portoro, a dramatic variety quarried in Porto Venere, a region also known as the Gulf of Poets, and this harkens to the black marble mantle in Douglass’s own study in his home at Cedar Hill.
9. The bas-relief limestone panel above the entrance reflects Albert Cassell’s grounding in classical symbolism. At its center, an owl, long associated with Athena, the Greek goddess of wisdom, embodies the pursuit of knowledge. A lantern suggests hope, guidance, and the triumph of light over darkness, while a globe conveys wholeness and a global reach.
(Following spread)
10. Cassell’s design for Frederick Douglass Memorial Hall’s wrought iron entry gate features symmetrical scrollwork volutes with pointed finials, drawing on African and European influences. While architectural styles of the 1930s were influenced by the Art Deco and Art Nouveau movements, wrought iron gates typically maintained a more classical style. Typical of gates and balconies of the era in Southern cities like Charleston, Savannah, and New Orleans, wrought iron was often fabricated by skilled Black artisans, many of whom were freed slaves or their descendants. Ironwork was a symbol of resilience and craftsmanship within the Black community and a source of cultural pride despite social and economic challenges.






In 1935, Archibald J. Motley Jr., a defining figure in American modernism and the Harlem Renaissance, brought his vision to Howard University when he accepted a commission to create a mural for the entrance lobby of Frederick Douglass Memorial Hall. The work has vanished, its surface buried under layers of later paint, yet the story behind it still commands attention.
Commissioned by the New Deal’s Treasury Relief Art Project with a June 30, 1936, deadline, the mural may be linked to an easel painting titled Frederick Douglass (c. 1935), referenced in the Smithsonian’s art inventories catalog. Scholarship notes that it most likely served as a preparatory study for Motley’s larger work.
Howard President Mordecai Johnson and art department chair James V. Herring supported Motley by providing housing and appointing him visiting instructor. Motley was known for vibrant depictions of African American life in Chicago, capturing Jazz Age energy through bold color, stylized figures, and layered narratives that challenged racial stereotypes.
His work stands as a cornerstone of early 20th-century Black visual culture.
The Douglass Hall mural illustrated key moments from Frederick Douglass’s life and was installed prominently in the main entrance hall. Regrettably, the mural vanished under later alterations, and no photographs have been discovered. Despite its loss, the work represents a significant intersection of Black art, education, and public investment during the New Deal era.
Motley’s legacy continues at Howard University today. The Howard University Gallery of Art, one of the oldest galleries at a historically Black college, holds several of his works including The Picnic (1934), Saturday Night (1935). Barbeque (1935), and The Liar (1936). Together with his other paintings of this era— Black Belt (1934), Between Acts (1935), Africa (1937), and Carnival (1937)—Motley illuminates the beauty and vitality of Black life.

Archibald Motley posing with his work Portrait of My Mother (c. 1930) at the Thirty-Sixth Annual Exhibition by Artists of Chicago and Vicinity at the Art Institute of Chicago, February 11, 1932. A trailblazer of the Harlem Renaissance, Motley used his art to make Black life visible, vibrant, and unapologetically central to the American story.
Opposite, clockwise from top left: Details from The Liar (1936), Barbeque (1935), Saturday Night (1935), and The Picnic (1934)



1936 print of the distinguished Howard University Glee Club, directed by
A year earlier, the ensemble performed at the dedication of

On Tuesday, April 30, 1935, the Howard University community gathered in a moment of ceremony and significance to mark the opening of Frederick Douglass Memorial Hall. Dedications like this one brought together architecture, politics, education, and legacy in public view. In recalling the details of that day, we glimpse the ideals and ambitions etched into brick and stone, marking the promise of Howard’s ambitions.
The Washington Tribune reported a crisp morning, where “the chilly wind played havoc with the hats of hundreds of spectators.” The ceremony opened with music from the University Glee Club. Under the direction of Professor Roy M. Tibbs, a gifted pianist, educator, and the Glee Club’s founder, one can imagine the ensemble lifting Howard’s “Alma Mater,” giving voice to the values Douglass Hall was to uphold.
The Reverend Howard Thurman gave the invocation, adding spiritual weight to the proceedings. President Mordecai Wyatt Johnson followed, offering greetings and describing the new educational classroom
building as “the fulfillment of the Howard dream that started back in 1867.” He presented Albert I. Cassell, the architect and vision behind what the Tribune called “the beautiful American-structured edifice.” Johnson also read a letter from Helen Pitts Douglass, the second wife and widow of Frederick Douglass.
Several members of the Douglass family attended this momentous occasion: Joseph H. Douglass and Haley G. Douglass, both grandsons of Frederick Douglass, accompanied by their wives, and Frederick S. Weaver, a great-grandson. During the dedication, Joseph Douglass, a nationally known violinist and music teacher, presented a portrait he had painted of his grandfather to the university president.
Major Philip B. Fleming, acting deputy administrator of the Federal Emergency Administration of Public Works, formally presented the new building to Howard University on behalf of the federal government. He stood in for Secretary of the Interior Harold Ickes, head of the Public Works Administration, who could not attend
“We must bring to our classrooms an atmosphere of realism, a sense of the world … Our windows must face outward on life, not inward on cloistered gardens.”
Dr. Harry Woodburn Chase, Chancellor of New York University, Frederick Douglass Memorial Hall opening ceremony, April 30, 1935
due to pressing business commitments. Ickes had overseen the funding that made Douglass Hall possible. He was nationally recognized for his leadership in the New Deal and outspoken support of civil rights. According to the Tribune, Fleming praised the building as “a great achievement wholly satisfactory in every respect to the Administrator of Public Works,” and congratulated all who contributed to its construction.
Major Thad L. Hungate, chairman of the Board of Trustees of Howard University, accepted the building. He expressed his pleasure in receiving this important addition to the university’s educational resources. Justice James Cobb, a faculty member, also spoke, offering perspectives on the building’s significance to African American education and advancement.
The final formal address came from Dr. Harry Woodburn Chase, chancellor of New York University. A respected voice in national academic circles, Chase paid tribute to Frederick Douglass as “a distinguished man … who will always remain an outstanding figure in the history of America” and framed the
dedication of the new hall as a symbol of upward struggle and educational progress. In his remarks, Chase addressed the crisis of the age, the disillusionment of youth amid economic depression and instability, and the responsibility of universities to respond. “Youth is at a crisis in philosophy and faith as well as in employment,” he warned, urging institutions to cultivate critical thought and social understanding. He called on colleges to “face resolutely the fact that they are set down in the midst of a complex and bewildering world,” and to prepare students not just for careers but for “the life of the mind and of the spirit.” Echoing this belief, he declared, “We must bring to our classrooms an atmosphere of realism, a sense of the world … Our windows must face outward on life, not inward on cloistered gardens.”
Chase spoke with particular passion about the role of universities in the defense of free speech and liberal democracy. “A university is only a university when it is free to seek for truth in every field; when its atmosphere is one, not of propaganda, but of cool and detached weighing of facts and conclusions,” he argued in a plea that may be as urgent to students today as it was in 1935. “Youth must
be trained in the American atmosphere of freedom of expression if American institutions are to survive.”
Chase’s words carried the weight of national concerns for a distinguished audience whose presence underscored the day’s importance. Representatives of the faculties of the nine schools and colleges of the university attended the ceremony as well as students, trustees, and dignitaries, including the Honorable Theodore A. Walters, first assistant secretary of the interior; Congressman James P. B. Duffy of Rochester, New York, where Frederick Douglass had lived for many years; and Dr. Clark Foreman, special counsel to the Secretary of the Interior, among others.
After the ceremony, members of Howard University’s ROTC guided visitors through the building’s halls, showcasing classrooms, lecture spaces, and offices filled with possibility.
That spring morning in 1935, Frederick Douglass Memorial Hall stood as a place that would prepare thinkers and changemakers for the world ahead. Today, it stands revered. And as always, it stands for Howard.

Dr.
Chase, chancellor of New York University, delivered the formal address of the Frederick Douglass Memorial
opening ceremony on April 30, 1935.




Howard University Board of Trustees,
Opposite: Article from The Evening
on the




1967 Black is Best speech, in which Muhammad Ali exhorted students to abandon society’s concept of them and to fashion their own, based on pride in themselves and their people: “All you need to do is know yourself to set yourself free,” he said.

Enditatque modicid quaestis et fugia dolesero que audaesti omnimi, aute doluptur?
rooms. Today, these informal zones support collaboration, quiet reflection, and peer-topeer learning.
The first-floor corridor was opened to create a bright, inviting entry commons, a shift that created a “hall of learning” feel that anchors student experience in arrival and intention. Arched openings and original proportions were restored along the corridors, re-establishing a sense of rhythm and architectural clarity that had been obscured over time.
Teaching spaces were reassigned from individual departments to the registrar, allowing scheduling based on real-time academic needs. If political science was not meeting in the classroom, sociology could use the space. This shift unlocked capacity across the building, enabling departments to expand their offerings and collaborate more freely.
Frederick Douglass Memorial Hall stands as a proscenium and catalyst of American societal transformation. Dedicated in 1935 during the Great Depression, this academic building emerged from a specific historical context in which New Deal programs provided unprecedented funding for Black education through the Public Works Administration.
Classrooms were transformed to support a shift in teaching philosophy from passive lecture delivery to active, student-centered learning. The design introduces SCALE-UP environments, where round tables, flexible layouts, and mobile instruction promote collaboration. Interactive technology supports hands-on learning across disciplines, including shared screens, writable surfaces, and modular furnishings. Select original blackboards were preserved, maintaining a visual thread between past and present.
From its barrel-vaulted ceilings to its handcrafted millwork, the building required a meticulous preservation effort. In some cases, this work involved excavation and revelation. The discovery of a finely crafted fireplace, long entombed within the walls, marked the first hint of a forgotten elegance hidden beneath years of adaptation. As the restoration unfolded, ongoing efforts revealed bookshelves tucked within the frames of what had once been a grand library, their purpose obscured but never truly lost. These elements, unearthed and refinished, now stand as quiet tributes to the spirit of intellectual pursuit, evoking the timeless images of Frederick Douglass in his home library, surrounded by books, immersed in academic exploration.
The hall’s construction took place against a backdrop of rigid segregation. While Jim Crow laws maintained racial boundaries across the American South, Howard University created intellectual spaces where African American scholars could develop the arguments that would ultimately dismantle legal segregation. The liberal arts departments housed within Douglass Hall, including History, Philosophy, English, Political Science, and Sociology, became incubators for revolutionary thinking.
This academic center materialized during the cultural flowering of the Harlem Renaissance and the economic devastation of the 1930s. Its walls witnessed students and faculty navigating
After demolition exposed a long-forgotten plaster ceiling above a warren of old offices, the team brought in skilled artisans trained in traditional plasterwork. Using time-honored methods and custom tools, the team recreated the original etched patterns by hand, a craft that has become increasingly rare in modern construction. Though not entirely lost, such expertise is practiced by only a small community of specialists committed to historic preservation.
the contradictions of fighting for democracy abroad during World War II while facing discrimination at home. These experiences shaped the civil rights strategies that would unfold within its classrooms and corridors.
Wood paneling, decorative plaster, and wrought-iron details were carefully restored or recreated. The team matched materials by hand and eye, guided by archival photos, field investigation, and institutional memory. Throughout the project, the team sought to build a dialogue between eras. Every restored detail reinforced the idea that Douglass Hall should feel as grounded in Howard’s legacy as it is equipped for its future.
By the 1950s, Douglass Hall had become ground zero for scholarship supporting Brown v. Board of Education, marking it as the intellectual birthplace of the legal arguments that transformed American education. The campus hosted visits from Dr. Martin Luther King Jr. and served as a gathering place during the burgeoning civil rights movement. When Muhammad Ali spoke to students there in 1967, the hall had firmly established itself as a platform for Black voices challenging the status quo.
Student activism came directly to Douglass Hall in 1968 when 1,000 students held a rally in front of the building. From there, a group of students entered the Administration Building, demanding curriculum reforms that would better reflect their experiences and aspirations.
“I wish I could say that racism and prejudice were only distant memories. We must dissent from the indifference. We must dissent from the apathy. We must dissent from the fear, the hatred, and the mistrust … We must dissent because America can do better, because America has no choice but to do better.”
As Howard University grew and evolved, so did Douglass Hall. It became home to the W. Montague Cobb Research Laboratory, strengthening its role in advancing science and anthropological research. Recent renovations also have preserved its legacy while preparing the space to support the needs of today’s academic community.
The timeline of Douglass Hall parallels the African American journey through Reconstruction’s promise, Jim Crow’s oppression, the civil rights movement’s triumphs, and contemporary struggles for equality. The building has witnessed America’s evolution from legal segregation to the election of its first Black president and vice president.
Understanding Frederick Douglass Memorial Hall within this broader social context reveals how academic spaces function as anchors during turbulent times. The building embodies Howard University’s educational mission while simultaneously serving as sanctuary, laboratory, and launching pad for generations of leaders who reshaped American society.
Right: Howard University 1954 commencement, where Nnamdi Azikiwe, the first president of independent Nigeria; Thurgood Marshall, the Supreme Court’s first African American justice; and Chester Bliss Bowles, American ambassador, all received honorary degrees in law. Roy Williston Bornn, office of government secretary in the US Virgin Islands, received an honorary degree in humane letters.



1867

Howard University was established by an act of Congress on March 2, 1867, and named after General Oliver Otis Howard, a Civil War hero and commissioner of the Freedmen’s Bureau.

1865–1877
Reconstruction: Post-Civil War efforts to integrate formerly enslaved people into American society
1877–1900s
Jim Crow laws establish segregation across the American South.
1871-1895

Frederick Douglass served on the university’s Board of Trustees.
Early 1900s
The College of Liberal Arts at Howard grows significantly and existing academic facilities become insufficient.
1918 ROTC program established.
1920
Albert Cassell joins Howard University as assistant professor of architecture.
1922
Cassell becomes university architect and head of the architecture department at Howard.
1909
The National Association for the Advancement of Colored People (NAACP) is founded, focusing on legal challenges to discrimination.

1917–1918
US participation in World War I: Approximately 380,000 Black Americans serve in the military.
1920s
The Harlem Renaissance flourishes, representing a cultural awakening in literature, music, art, and intellectual thought among Black Americans.

present research developed in Cobb Research Lab. At the Internathe Web and Social Media (ICWSM) in Munich Germany, Dr. Jackson (pictured to left) and Caitlin Kuhlman copresented work on the need to include vulnerable populations on the analysis of data from vulnerable populations. This recently published work was also authored by Dr. Fatimah Jackson and most recent issue of Frontiers in

1926
presentation was at the EuropeGenetics (ESHG) in Gothenannual meeting of human gepresented work on computational identifying drug binding site side efrepurposing as well as ensuring that Dr. research on African Genomics represented.
By Chiderah Uzoukwu

Dr. Mordecai Wyatt Johnson (1890–1976) becomes the first African American president of Howard, beginning a transformative 34-year tenure.
1932
Dr. William Montague Cobb establishes the Laboratory of Anatomy and Physical Anthropology at Howard University College of Medicine, and The Journal of Negro Education is established.
One of the main projects of the summer 2019 has been the digital documentation of the skulls of the Cobb Collection. In this project, I assist 3rd Howard University medical student Nicholas Guthrie in the photographing of each skull. The camera used for is a Nikon D3200 with an 18 55mm lens.

The lights used for photography is the LED Studio Lights and a LED Ring Light, with an attached stand. The photography of these skulls is essential for inventory purposes and also for future facial reconstruction studies of the Cobb Collection. Accurate photographs will allow us to correctly reconstruct the faces of the people of the Cobb Collection using advanced software. Scientifically, accurate facial reconstruction of these individuals could lead to refining the model of African Americans.
1934

Howard University applies for federal funding through the Public Works Administration (PWA), a New Deal agency. Architectural plans are drawn for a new academic building to house liberal arts departments.
1935
1929–1939
The Great Depression severely impacts all Americans, with particularly devastating effects on Black communities.
1932
Jackson in front of her poster presentation at the ESHG meetings in Sweden significance of these scientific be underestimated. Through Dr. exposure, the innovative research of Laboratory is revealed to a broad potential for future, multicultural colexpanded. We appreciate the internaLatifa Jackson has extended and projects in the CRL. ****
In the Cobb Research Lab, we photographed 201 skulls, each in the anterior, temporal, posterior, rostral, and caudal positions. The different photos of each skull are significant because when combined they will permit a 3-D reconstruction of the face. Matching the face to each skull makes the research on the Cobb Collection more realistic for the undergraduate and graduate student studying this collection. It’s also a reminder that the Cobb Collection is comprised of real people, mothers, fathers, sons, and daughters who once walked the early. The facial reconstructions will help us better visualize the as -lived lives of the people in this historic collection.****
Franklin D. Roosevelt elected president; his New Deal programs begin in 1933.
PWA approves Howard’s funding request and construction begins on the future Douglass Hall.
April 30, 1935
Douglass Hall opening ceremony.
1947
In step with the US Air Force, Howard University launches its own Air Force ROTC program.
1954
Faculty and students in Douglass Hall develop the scholarship and legal arguments to support Brown v. Board of Education.

1956
Dr. Martin Luther King Jr. makes the first of many appearances at Howard, delivering a sermon titled “The Challenge of a New Age” at Andrew Rankin Memorial Chapel. He spoke at the height of the Montgomery bus boycott and helped galvanize student interest in civil rights activism.
webpage for more news on this event.
www.cobbresearchlab.com
1933–1939
New Deal programs provide federal funding for public works and education, including at historically Black colleges and universities.
HU Anatomy Department donates fossil casts to CRL for teaching purposes


1939–1945
World War II: More than 1.2 million Black Americans serve in segregated military units.
1948
President Truman issues Executive Order 9981, desegregating the US Armed Forces.
1954
The Brown v. Board of Education Supreme Court decision outlaws segregation in public schools.
1955–1956
Professor Daryl P. Domning (left) and Dr. Shomarka Keita (right) examine fossil hominid skulls recently donated to the CRL by the Anatomy Department. These casts will be used for comparative and reference purposes with the human materials in the Cobb Collection. We are grateful for this generous gift. ****

Following Rosa Parks’s arrest on December 1, 1955, for refusing to give up her bus seat, the Montgomery bus boycott begins, catalyzing the modern civil rights movement.


1967
Howard University →
1950s–1960s
Douglass Hall serves as a forum of student debate, lectures, and Black intellectual life, especially during the early civil rights movement.


1969
Social Context →
1957
Little Rock Nine integrate Central High School in Arkansas, requiring federal troops for protection.

Muhammad Ali speaks to students at Douglass Hall.
1968
Student protests during the civil rights movement include a rally that begins in front of Douglass Hall, leading to curriculum reforms.
Dr. James E. Cheek becomes president of Howard University, succeeding civil rights lawyer James Nabrit Jr. Cheek leads Howard for 20 years and receives the Presidential Medal of Freedom in 1983. Dr. Franklyn G. Jenifer follows (1990–1994), marking the first time a Howard alumnus held the office. He is succeeded by Dr. H. Patrick Swygert (1995–2008), Dr. Sidney A. Ribeau (2008–2013), Dr. Wayne A. I. Frederick (2014–2023), and Dr. Ben Vinson III (2023–2025).

1985
Howard University sets aside three rooms in Douglass Hall to create a new biological anthropology laboratory for the W. Montague Cobb Collection.
1993
The W. Montague Cobb Research Laboratory is expanded.
1960
The sit-in movement begins at a Greensboro, North Carolina lunch counter.

1963
The March on Washington for Jobs and Freedom; Martin Luther King Jr. delivers “I Have a Dream” speech.
1964
The Civil Rights Act outlaws discrimination based on race, color, religion, sex, or national origin. 58

1965
Malcolm X is assassinated in New York City. The Voting Rights Act is signed into law, prohibiting discriminatory voting practices and expanding access to the ballot box for minority groups. Days later, unrest erupts in Watts, Los Angeles.
1968
1960s–90s
Martin Luther King Jr. is assassinated; upheaval comes to cities nationwide. The Black Power movement gains momentum.
1978
University of California v. Bakke: The Supreme Court case limits but upholds Affirmative Action.
1980s
Drug epidemic devastates Black urban communities; the war on drugs leads to mass incarceration.
1991
Rodney King beating and a subsequent 1992 Los Angeles uprising highlight continuing racial tensions.



2001
The US National Park Service nominates the three structures anchoring Howard’s historic Upper Quadrangle—Frederick Douglass Memorial Hall, Andrew Rankin Memorial Chapel, and Founders Library—for the National Register of Historic Places.
2018
Major renovation of Frederick Douglass Memorial Hall, led by Page, now Stantec, and prominent Howard alumnus Ronnie McGhee, begins.
2021
Douglass Hall reopens with restored and updated facilities.


2024
Douglass Hall served as the backdrop for the official launch of Vice President Kamala Harris’s 2024 presidential campaign.
2025
90th anniversary of the dedication of Frederick Douglass Memorial Hall
2001
September 11 attacks lead to shifts in national security policies and increase in Islamophobia.
2008
Barack Obama elected as the first Black president of the United States.

2013
The Black Lives Matter movement begins after George Zimmerman is acquitted in the killing of Trayvon Martin.

2020
George Floyd’s murder sparks nationwide protests against police brutality and systemic racism.
2021
Kamala Harris becomes the first female, first Black, and first South Asian vice president.


Howard’s military training and ROTC programming spans more than 100 years.




At Howard University, excellence is a discipline. It’s woven into the legacy of leadership, service, and resilience that defines the Reserve Officers’ Training Corps (ROTC) on campus. Established in 1918, Howard’s ROTC is one of the nation’s oldest and most enduring ROTC programs. From its beginnings, it has equipped students to lead with purpose and distinction.
Howard’s program began in the crucible of World War I. In 1917, Joel Spingarn, then chair of the NAACP board, rallied students at Rankin Chapel, urging them to champion Black participation in the war effort. Responding to that call, Howard University formed the Committee of Concerned Men and persuaded the War Department to establish the first officer training camp for African Americans at Fort Des Moines, Iowa. That impetus launched the Student Army Training Corps at Howard in 1918, laying the groundwork for an official ROTC presence that prepared Black military members for leadership beyond infantry roles.
Between 1922 and 1942, approximately 450 Howard University students earned army commissions through the school’s military training program. By the onset of World War II, they made up more than half of all commissioned Black officers, many of whom would go on to serve with distinction during the war years from 1941 to 1945.
The establishment of ROTC at Howard reflected a profound historical pattern in which African Americans have expressed patriotism as a path toward equal rights. From the American Revolution through the Civil War and the Spanish-American War, Black soldiers served, hoping their sacrifices would earn them the freedoms and recognition long denied. This enduring belief and steadfast sense of duty acted as an undercurrent in Howard’s commitment to military training. For decades, the ROTC program moved in and out of Frederick Douglass Memorial Hall, beginning shortly after the building’s completion in 1935. Its recurring presence created a symbolic connection between military instruction and the traditions of Black intellectual leadership and civic responsibility that define the space.
Today, Howard’s ROTC programs continue this legacy, offering students from historically underrepresented backgrounds access to higher education, leadership development, and career opportunities that reach far beyond the military.
As the US military evolved in the mid-20th century, so did Howard’s ROTC program. In 1946, following General Dwight D. Eisenhower’s general order establishing the first round of Air ROTC units and before the US Air Force became an independent branch, Howard founded its own Air ROTC detachment and broke away from the Army ROTC battalion. Within a year, the new unit earned national recognition, receiving the Air Supply award and outperforming longestablished military institutions such as the Citadel. In 1948, the program graduated its first six lieutenants. Against this backdrop, President Harry Truman issued executive orders to desegregate the federal workforce and the armed forces.
“We were fighting for the double victory— victory over fascism abroad and racism at home.”
Tuskegee Airman Roscoe C. Brown Jr. in the 2012 documentary Double Victory: The Tuskegee Airmen at War, produced by Lucasfilm
While these developments marked a turning point for inclusion, they also set the stage for challenges to the ROTC’s presence and policies on campus. Initially, ROTC was mandatory for all physically fit male students at Howard University, a policy that became a focal point of student activism in the late 1960s. In 1968, students organized protests and sit-ins opposing the requirement, arguing they should not be compelled to serve in a military that did not protect or support them.
By the 1950s and 1960s, conversations around gender inclusion began to surface. While women were not yet permitted to join ROTC, Howard’s program introduced a symbolic role known as “Miss Coed Cadet,” a female representative elected by the student body. Clad in uniform and featured in promotional photographs, she was a visible, though ceremonial, figure of support. It was not until the 1970s that women were officially allowed to enroll in the program. The first female cadets were commissioned in 1976.
In the late 1980s, Howard’s ROTC program became the central training location for a consortium of D.C. universities. Cadets enrolled
at other institutions, such as Georgetown, George Washington, American, and Catholic universities, completed their military science coursework and leadership training at Howard, reinforcing Howard University’s role as a regional leader in military education.
As the program expanded its influence, it also adapted to unforeseen circumstances that reshaped its campus presence. The steam line break in 2018 damaged Douglass Hall, forcing ROTC to relocate. This crisis accelerated essential renovations to the historic building, including structural excavation and modernization. Army ROTC now operates from the Mordecai Johnson Building, while Air Force ROTC continues in Douglass Hall. While physical locations may have changed, the mission of leadership, truth, and service remains constant.

Jacqueline Frazier, Howard University’s first “Honorary Coed Cadet Colonel” elected by her peers to represent the ROTC program. Women were not allowed to enroll in ROTC until the 1970s.
They gathered on the steps of Frederick Douglass Memorial Hall, voices raised and notebooks in hand. Some came from history classes. Others from psychology or education. All came with questions. What would it take to move beyond separate but equal? What kind of evidence could dismantle a legal system built to exclude? And, how could a university become a proving ground for justice?
For generations of Howard students and faculty, Douglass Hall has served as a testing ground for ideas, arguments, and demands that shaped the trajectory of the civil rights movement. In this building honoring the great abolitionist Frederick Douglass, Howard University scholars crafted the research that dismantled segregation.
The rigorous work was part of a larger coordinated effort between Howard University faculty and the NAACP Legal Defense and Educational Fund to challenge racial segregation in public education. In the 1940s and 1950s, this collaboration took shape under the leadership of Charles Hamilton Houston, former dean of the Howard University School of Law, and his protégé, Thurgood Marshall.
Together they laid the groundwork for Brown v. Board of Education of Topeka, the landmark 1954 Supreme Court case that declared school segregation unconstitutional.
Within Douglass Hall, faculty and student research exposed the wide-reaching effects of segregation, ranging from the damage to Black children’s self-worth to disparities in teacher training, school resources, and curriculum. Many of these findings appeared in The Journal of Negro Education, edited in part from Douglass Hall’s third floor. The journal became a vital platform for publishing and disseminating data on educational inequality and the psychological toll of systemic racism.
The ideas advanced in the journal soon found footing in real-world strategy and collaboration. In April 1952, The Journal of Negro Education hosted its 20th-anniversary conference at Howard. Leading scholars gathered to test legal theories, identify weaknesses, and address real-world implementation challenges. The sessions took place in Rankin Chapel, resulting in a sharpened, interdisciplinary plan to confront segregation nationwide.
According to Dr. Paul P. Cooke, a civil rights educator who served as professor at Miner Teachers College from 1954 to 1955 and later became president of the District of Columbia Teachers College, no other university supplied as many expert witnesses or as broad a research base for desegregation litigation as Howard. However, before those arguments reached the courts, they were battle-tested at the university. In Douglass Hall and Founder’s Library, faculty and students staged rigorous moot court sessions to prepare NAACP attorneys for the fight ahead. Thurgood Marshall, lead counsel in Brown v. Board of Education, faced tough, unflinching questions from Howard law students. When Supreme Court Justice Felix Frankfurter pressed Marshall to define “equal,” he didn’t hesitate, because Howard had already asked.
By the 1960s, Douglass Hall remained a focal point, but the character of the struggle began to shift. A new generation of students and faculty expanded the conversation from legal desegregation to cultural and institutional self-determination. Professor Nathan Hare, a sociologist and early advocate of the Black power movement, taught and organized in
“All you need to do is know yourself to set yourself free.”
Muhammad Ali, Black Is Best speech, Howard University, April 22, 1967
Douglass Hall. In 1967, he invited heavyweight boxing champion Muhammad Ali to speak to students in front of the building. Ali delivered an impromptu address on April 22 that explored race, Islam, and the teachings of Elijah Muhammad. The speech took place just six days before Ali refused induction into the Vietnam War, a move that would lead to his arrest and boxing suspension. The message was consistent with the political climate brewing at Howard, where equality would not be delivered solely through court rulings.
That same year, Professor Hare authored The Black University Manifesto, a bold call for Howard to realign its governance, curriculum, and mission with the needs of the Black community. Student activism escalated ahead of Hare’s dismissal in June, targeting the university’s constraints on free speech and academic freedom. As tensions rose with ongoing demonstrations and class boycotts, four suspicious fires were discovered in Douglass Hall on May 26, 1967.
From March 19 to March 23, 1968, nearly 1,000 students took over the Administration Building to protest the university’s threat to expel dozens of students who had disrupted the Charter Day Convocation weeks earlier. Their demands included a new student code of
conduct, a student-led judiciary committee, stronger integration of African American history and culture into the academic core, and the resignation of then President James Nabrit. After four days of occupation, the administration conceded to most of their demands, though Nabrit remained in office until 1969.
The momentum continued into the summer. During the June 1968 commencement ceremony, students turned their focus to the university’s mandatory ROTC policy. While Secretary Lewis Blaine Hershey, head of the Selective Service Board, delivered the keynote address, graduates gathered near Douglass Hall and burned his effigy in protest. Their message was unmistakable: they refused to be forced to fight for a nation that did not support its Black population. The students’ activism was successful, and Howard removed the ROTC requirement.
Amid this unrest, Dr. Martin Luther King Jr. left a lasting imprint on Howard’s civil rights legacy. Beginning in 1956, King made multiple visits to the university, where he spoke to students and faculty about nonviolence, racial justice, and moral courage. He received an honorary degree at the 1957 commencement, alongside Jackie Robinson, and delivered landmark addresses including the 1963 Gandhi
Memorial Lecture, where he condemned violence while advocating for nonviolent resistance. During his 1966 Charter Day address, he urged students to confront what he called the world’s “three towering evils”—racial injustice, poverty, and war. His final visit was in November 1966, when he again delivered the Gandhi Memorial Lecture, continuing his message of nonviolent social change.
In the following years, Howard welcomed a wide range of civil rights leaders and visionaries, notably Malcolm X, Lyndon B. Johnson, Gloria Richardson, Andrew Young, and Kamala Harris, among others. Each added dimensions to the evolving conversation around justice, power, and Black leadership. And just as the voices have changed, new questions emerge. What does justice look like in education? Who decides what gets taught? And how does a university stay accountable to the people it serves?
Douglass Hall remains a place where the answers to these questions take shape. It has hosted the research, resistance, and reckoning at the center of Howard’s civil rights legacy. From scholarly journals to student protests and legal arguments to cultural awakenings, Frederick Douglass Memorial Hall has served as the intellectual engine of change.
A Backdrop to History
President Harry S Truman, Dr. Martin Luther King Jr., Jackie Robinson, Thurgood Marshall, and Muhammad Ali, among other notable figures, have been honored in official events and ceremonies amid the gracious structures of Douglass Hall, Rankin Memorial Chapel, and Founders Library.






A platform for truth. A tool for change. The Journal of Negro Education turned scholarship into strategy for generations of Black educators and thinkers.
Founded at Howard University in 1932, The Journal of Negro Education was established to address the systemic neglect of Black educational experiences in mainstream academic publishing. Edited for more than three decades by Dr. Charles Henry Thompson, the first African American to earn a doctorate in educational psychology, the journal became a platform for interdisciplinary research that exposed racial inequities in schooling across the United States.
From its inception, the journal pursued a three-part mission: to collect and publish factual data related to education in Black communities; to provide a forum for critical evaluation of educational policies and practices; and to sponsor original research into the conditions and challenges affecting Black learners. Its contributors included leading scholars in education, law, sociology, and psychology, many of whom taught or conducted research in Douglass Hall.
The journal’s editorial offices were located on Douglass Hall’s third floor during key decades of desegregation activism. Its articles provided evidence of the psychological harm caused by segregated schooling and documented the material disparities that persisted despite legal claims of equality. The Journal of Negro Education became a trusted source of data and expert analysis for attorneys preparing constitutional challenges, including those working with the NAACP Legal Defense and Educational Fund.
Over the decades, a succession of editors has shaped the direction of The Journal of Negro Education and sustained its influence.
Following founding editor Charles Henry Thompson, leadership of the journal passed to Walter G. Daniel, Earle H. West, Charles A. Martin, Faustine C. Jones-Wilson, Sylvia T. Johnson, R. C. Saravanabhavan, Frederick D. Harper, and Ivory A. Toldson. Under their stewardship, the journal has documented and analyzed the evolving landscape of Black education across generations.

“When you achieve equality, and freedom, and fairness, it’s not because I grant it to you. It’s because you fought for it because it is your right. This is not about benevolence or charity; it is about every human being’s God-given right.”

Dr. William Montague Cobb built one of the world’s largest documented skeletal collections, preserving crucial biological data from marginalized Americans dating to the mid-19th century. His meticulous documentation transformed these remains into powerful evidence that disproved racist and pseudoscientific biological theories and revealed how socioeconomic factors shaped human health and development.

In this rare glimpse of Dr. William M. Cobb’s workspace, c. 1970s, America’s first Black physical anthropologist is surrounded by the evidence that fueled his life’s work. From the classroom and his laboratory, Cobb challenged scientific racism through rigorous research, built one of the world’s largest documented skeletal collections, and mentored generations of Black scientists. His scholarship transformed anthropology while fighting tirelessly for health equality and civil rights.
Step into the Cobb Laboratory at Howard University, and you enter a space built for uncovering truth through science and history. In the low light of the laboratory, the walls are lined with archival cabinetry holding the remains of lives once lived, documented with precision and preserved with care. Whiteboards etched with anatomical sketches, tidy lab tables, and labeled specimen containers beckon students to continue Cobb’s legacy. There’s a quiet intensity here, the kind that builds over decades of purpose.
In this room, the past speaks. Not in whispers, but through data and research. The lab holds Dr. William Montague Cobb’s legacy, a reflection of his belief that the human body is a source of scientific understanding and a keeper of cultural memory.
In 1932, Dr. William Montague Cobb established the Laboratory of Anatomy and Physical Anthropology at Howard University College of Medicine. A visionary, Cobb sought to create a scientific resource that could advance the understanding of human
biological diversity. Over the next three decades, Cobb and his team dissected, documented, and prepared cadavers, eventually assembling what became a groundbreaking collection of human skeletons housed in the Numa P. G. Adams Building of the College of Medicine. Cobb’s work challenged racial bias in science at a time when African American contributions were marginalized. By curating this collection, he provided invaluable documentation of African American human biology, offering counternarratives to dominant racial pseudoscience.
After Cobb stepped down as chair of the Department of Anatomy in 1969 and retired in 1973, activity around the collection slowed. A decade later, Cobb initiated conversations with Dr. Michael Blakey, then a research associate in physical anthropology at the Smithsonian National Museum of Natural History. Their conversations sparked a turning point. Blakey, a rising expert in bioarchaeology, stepped in to help revive the work Cobb had started decades earlier.
Left: Students in Howard University’s anatomy lab worked closely with cadavers, learning human structure through drawing, dissection, and direct observation. Opposite, right: Dr. Michael Blakey of Howard University examines remains unearthed during a Manhattan construction project, part of a broader effort to uncover the lives and labor of enslaved Africans in colonial New York.
By 1985, Howard University set aside three rooms in Frederick Douglass Memorial Hall to create a new biological anthropology laboratory. Dr. Michael R. Winston, then vice president for academic affairs, championed the initiative. A year later, the Graduate School of Arts and Sciences provided computer equipment, giving the team new tools to begin cataloging and analyzing artifacts. Momentum returned and, with it, a renewed sense of purpose.
In 1987, Howard University formally placed the Cobb collection under the curatorship of Dr. Michael Blakey. He had the support of Dr. William Montague Cobb, along with Dr. Raymond Hayes, dean of medical education, and Dr. S. Taseer Hussain, a professor of anatomy and evolutionary biology. Together, they began the critical work of restoring the collection. That year, 190 skeletons were transferred to the Department of Sociology and Anthropology. Under a grant from the Division of Academic Affairs, the team documented 189 human skeletons and one juvenile chimpanzee. Faculty and students also created a computer database linking nearly 1,000 cadaver records.

The rest of the collection, roughly 500 skeletons, remained stored in the basement of the Numa P. G. Adams Building. The collection faced significant threats, including fungal growth, incomplete degreasing, inadequate

Below and inset: The “Negro Burial Ground” as it appeared on a 1755 map of New York City. Right: 18th-century view showing that during the time it was in use, the burial ground was located outside the city’s boundaries in a relatively desolate area.

cabinetry, and limited accessibility. These stakes were too high to ignore, prompting decisive action. Between 1992 and 1994, with $177,000 in support from the National Science Foundation, the lab launched an intensive curation effort. Dr. Joyce A. Ladner, a sociologist, civil rights activist, and then vice president for academic affairs at Howard University, secured 1,085 square feet of additional space at Douglass Hall, clearing the way for a full-scale recovery. More than 30 students and staff cleaned, inventoried, and rehoused every specimen. They expanded the digital record and stabilized the collection for future research. The effort safeguarded decades of scientific and cultural data that might have otherwise disappeared.

In 1991, construction workers uncovered the skeletal remains of more than 400 Africans at a federal construction site in Lower Manhattan. Advocacy from community activists led to the recognition of the site as a historic burial ground. The US General Services Administration contracted Howard University, with the Cobb Laboratory at the forefront, to lead the analysis.
Under Dr. Blakey’s direction, the project revealed profound insights into the lives of African-descended people in colonial New York. By studying the remains, his team discovered distinctive alterations to the teeth




In 2022, Howard University partnered with Unlimited Restoration, Inc. (URI) to return its archaeological collection to Frederick Douglass Memorial Hall.
of 27 individuals. These markings, common in certain African traditions, confirmed the individuals’ African birth. The team also analyzed more than 1.5 million artifacts. The remains were reinterred in 2003, but soil samples and artifacts remain housed in the Cobb lab. This work powerfully countered myths of Northern exceptionalism regarding slavery and earned national acclaim.
In 1993, the laboratory expanded once again. The renovation made room for the growing Cobb collection and supported the intensive work of the African Burial Ground project. Professor Mark Mack stepped into the role of director, and over the next two decades, he led the lab into a new era of remarkable growth, where science, history, and community were in constant dialogue. His leadership continued until his passing in 2012.
In 2013, Dr. Fatimah Jackson took on the role of director. A nationally recognized biologist and anthropologist, she brought energy and vision to the lab’s next chapter. She secured
major grants from organizations such as the National Park Service and the National Geographic Society, advancing research and visibility. Her contributions earned widespread recognition, including Howard University’s STEM Woman Researcher of the Year and the Charles R. Darwin Lifetime Achievement Award in 2020.
In 2018, the steam plant failure at Howard University put the Cobb collection at risk. Rising heat and humidity threatened the integrity of the materials. The staff responded quickly, packing approximately 75 storage cabinets and relocating them offsite to a storage facility to prevent damage.
In 2022, the university partnered with Unlimited Restoration, Inc. (URI) to bring the collection and other archaeological materials back to Frederick Douglass Memorial Hall. The relocation required technical skill and meticulous planning. URI designed a strategy that prioritized physical preservation and biological integrity. Technicians wore
protective garments to avoid introducing outside DNA. Each drawer was removed with care, its contents secured using archivalquality materials and returned to its cabinet for transport.
Forklifts and material lifts carried the cabinets to the laboratory. Once in place, the team reversed the process. Cabinets were installed in their final locations, packing materials were removed, and drawers were returned to their original order. The effort protected the collection, preserved its structure, and renewed access for long-term research and education.
Today, the W. Montague Cobb Biological Anthropology Laboratory continues to serve as a vital hub for interdisciplinary research and education. It is a cornerstone of African American biohistorical research, advancing understanding of health disparities, ancestry, and cultural resilience. Step inside, and Cobb’s legacy is still at work, measured in specimens studied, data collected, and minds challenged to discover what others have overlooked.
73 Decoding Frederick Douglass Memorial Hall
Dr. William Montague Cobb stood at the intersection of science, medicine, and civil rights, carving a path of extraordinary achievement during a time of profound social barriers. Born in Washington, D.C., on October 12, 1904, Cobb was an exceptional student from the start, learning to read and write before entering school, guided by his parents’ careful instruction.
His academic journey began at Paul Laurence Dunbar High School, where he excelled academically and athletically. At Amherst College, Cobb continued to distinguish himself, winning cross-country championships and boxing titles as he prepared for a groundbreaking career. For his outstanding performance in biology, he earned the Blodgett Scholarship, which allowed him to study embryology during a summer at the Marine Biological Laboratory in Woods Hole, Massachusetts.
Cobb began medical school at Howard University in 1925. Drawing on his embryology training, he earned a teaching position as an instructor in his senior year. While completing an internship at Howard’s Freedman’s Hospital, he married Hilda B. Smith and
welcomed their first daughter, Carolyn. Smith’s sister, Dr. Ruth Smith-Lloyd, would later become the first African American woman to earn a PhD in anatomy.
After receiving his medical degree in 1929, Cobb pursued doctoral studies in anatomy at Western Reserve University, earning his PhD in 1932. He continued at Western as a fellow, where he studied craniofacial growth and development. In parallel, he began teaching at Howard University College of Medicine as an assistant professor. He joined the anatomy department, eventually becoming its chair, a position he held for nearly three decades.
During his tenure, Cobb established Howard University’s Cobb Skeletal Collection, which would evolve into the Cobb Research Laboratory, housing more than 600 human and animal skeletons. In 1936, he authored a 107-page brochure detailing the laboratory’s mission, titled The Laboratory of Anatomy and Physical Anthropology of Howard University. The collection became a vital resource for countering the era’s racially biased medical and anthropological theories.
His teaching philosophy was as innovative as it was rigorous. Cobb developed a graphic method of instruction that required students to draw anatomical structures, beginning with the surface form and building inward as they progressed through dissection. He also brought creativity into the classroom, capturing his lectures on 8mm film, reciting poetry, and referencing classic literature to bring anatomy to life.
He published A Graphic Method of Anatomy in 1946, a teaching tool that reflected his belief in visual learning. For Cobb, teaching was never passive. He was known to ask students to contribute “new wisdom,” pushing them beyond memorization and into the habit of original thought.
A man of wide-ranging talents, Cobb was also a violinist and often performed during his lectures. His love for the arts and science coexisted seamlessly, reinforcing his deeply humanistic worldview.
Cobb’s scholarly output was prolific. Over his lifetime, he published more than 1,100 academic papers and five books. At the heart
Dr. William Montague Cobb teaches a class at Howard University in 1971. Cobb taught anatomy at the school for nearly 50 years.
of his work was a clear and urgent thesis that racial prejudice against Black people was often sustained by false belief in biological inferiority. He used his anthropological expertise to expose and dismantle that myth, challenging the scientific foundations of racism. His article Race and Runners exemplified this mission, confronting assumptions about athletic performance and rejecting race-based determinism in medicine and science.
Throughout his career, Cobb was an active member of several academic societies. He joined the American Association of Physical Anthropologists in 1930, serving twice as its vice president (1948–1950 and 1954–1956) and as president from 1957 to 1959. He held visiting professorships at numerous institutions, among them Stanford University, the University of Maryland, and Harvard University. Cobb received honors from more than 100 organizations in recognition of his scholarly and civic contributions. In 1969, he was appointed Howard University’s first Distinguished Professor of Anatomy, a title he held until retiring as Distinguished Professor Emeritus in 1973.

Cobb’s advocacy reached well beyond the classroom. He was active in organizations such as the National Urban League, the Association for the Study of Negro Life and History, and the NAACP, where he served on the board for more than three decades and was president from 1976 to 1982. From 1949 to 1977, he edited the Journal of the National Medical Association, the official publication of the first African American medical society. He became the organization’s president in 1963. Through his work with the Imhotep National Conference, he strove to eliminate hospital discrimination, embodying his drive for systemic change.
His legacy as a leader was recognized at the highest levels. His contributions earned him honors, including the Henry Gray Scientific Achievement Award in 1980 from the American Association for Anatomy (AAA). In
2019, the AAA established the W. M. Cobb Award in Morphological Sciences, honoring early-career investigators who carry forward Cobb’s commitment to biomedical excellence.
Dr. Cobb’s influence spanned generations, disciplines, and communities. He taught more than 6,000 anatomy students and helped shape the future of American medicine and anthropology. He and his wife, Hilda, raised two daughters, Carolyn and Hilda Amelia, and welcomed four grandchildren. The Cobbs built a thriving family life in Washington, D.C.
William Montague Cobb died on November 20, 1990, at the age of 86, from pneumonia. His legacy lives on through his immeasurable contributions to anatomical science and his tireless advocacy for Black representation across medicine and research.




A National Historic Landmark designation is the federal government’s highest level of recognition for historic properties, reserved for places that defined the nation’s identity. These are the sites where the American story took a turn, where history was made, and the future was forged. Only about 2,500 properties carry this distinction; each earned its place by influencing the course of the nation.
Frederick Douglass Memorial Hall forms a landmark trio alongside Andrew Rankin Memorial Chapel and Founders Library. Together these buildings embody the legal, intellectual, and moral groundwork laid at Howard University to confront segregation and pave the way for Brown v. Board of Education. Within their walls, research became action and strategy catalyzed constitutional change.
In August 2000, the National Park Service submitted a collective nomination rather than elevating each building separately. The decision acknowledged that no single structure could fully convey Howard’s role in advancing civil rights. Anchored by the Upper Quadrangle, the trio of buildings and their
surrounding spaces formed an interconnected landscape where a movement took shape. The US Department of the Interior granted the official honor on January 3, 2001.
Historian Turkiya L. Lowe prepared the nomination as part of a broader study on the desegregation of public education. At the time, she was working with the National Park Service and the National Conference of Preservation Educators. She later became the first African American woman to serve as chief historian and deputy federal preservation officer of the Park Service. Howard’s faculty, administrators, and archives contributed essential research that grounded the nomination in evidence and conviction.
Within that collective recognition, Douglass Hall stands out as a center of scholarship and strategy. Its place affirms that the fight against systemic racism advanced not only by public protest but also by way of rigorous legal argument and disciplined academic work. The ideas tested within this building, refined through persistence and resolve, helped reframe the American story.
Decoding Frederick Douglass Memorial Hall

Nettie Hunt and her daughter Nickie sit on the steps of the US Supreme Court following the high court’s ruling in the Brown vs. Board of Education case.


Top left: Students fill the Administration Building in the 1968 demonstration. Top right: Hundreds of Howard students rally in D.C. after the grand jury decision in the Michael Brown shooting, 2014. Bottom left: Occupy D.C. march and rally from Douglass Hall to the US Chamber of Commerce, 2011. Bottom right: Howard students picket the National Crime Conference in D.C. in December, 1934, when leaders of the conference refused to discuss lynching as a national crime.



“Every building on campus has been impacted by this.”
Aaron Baltimore, Executive Director of Facilities, Howard University, 2018

Enditatque modicid quaestis et fugia dolesero que audaesti omnimi, aute doluptur?
rooms. Today, these informal zones support collaboration, quiet reflection, and peer-topeer learning.
The first-floor corridor was opened to create a bright, inviting entry commons, a shift that created a “hall of learning” feel that anchors student experience in arrival and intention. Arched openings and original proportions were restored along the corridors, re-establishing a sense of rhythm and architectural clarity that had been obscured over time.
Classrooms were transformed to support a shift in teaching philosophy from passive lecture delivery to active, student-centered learning. The design introduces SCALE-UP environments, where round tables, flexible layouts, and mobile instruction promote collaboration. Interactive technology supports hands-on learning across disciplines, including shared screens, writable surfaces, and modular furnishings. Select original blackboards were preserved, maintaining a visual thread between past and present.
On January 2, 2018, a steam line beneath 6th Street NW cracked open in multiple places during a deep freeze in Washington, D.C. The line, more than eighty years old and critical to campus infrastructure, suffered one of its worst breaks directly in front of and within Frederick Douglass Memorial Hall. High-pressure steam tore through the building, damaging walls, ceilings, floors, and mechanical systems. Condensation pooled in corners and soaked into surfaces. According to Facilities’ Executive Director Aaron Baltimore, it moved through Douglass Hall “like a wildfire.”
Teaching spaces were reassigned from individual departments to the registrar, allowing scheduling based on real-time academic needs. If political science was not meeting in the classroom, sociology could use the space. This shift unlocked capacity across the building, enabling departments to expand their offerings and collaborate more freely.
After demolition exposed a long-forgotten plaster ceiling above a warren of old offices, the team brought in skilled artisans trained in traditional plasterwork. Using time-honored methods and custom tools, the team recreated the original etched patterns by hand, a craft that has become increasingly rare in modern construction. Though not entirely lost, such expertise is practiced by only a small community of specialists committed to historic preservation.
$100 million claim to address the damages. Central to that effort was a comprehensive restoration and modernization project for Frederick Douglass Memorial Hall.
From its barrel-vaulted ceilings to its handcrafted millwork, the building required a meticulous preservation effort. In some cases, this work involved excavation and revelation. The discovery of a finely crafted fireplace, long entombed within the walls, marked the first hint of a forgotten elegance hidden beneath years of adaptation. As the restoration unfolded, ongoing efforts revealed bookshelves tucked within the frames of what had once been a grand library, their purpose obscured but never truly lost. These elements, unearthed and refinished, now stand as quiet tributes to the spirit of intellectual pursuit, evoking the timeless images of Frederick Douglass in his home library, surrounded by books, immersed in academic exploration.
The fractures triggered cascading failures across campus. Two of three boilers at the university’s central plant failed. The remaining heat was directed to the hospital to protect patient care. Heating systems collapsed as pipes burst and water spread. Douglass Hall, the nursing building (Annex 1), and the steam plant were total losses. All three were closed, and for the first time in decades, classes and office functions had to be completely relocated. In video updates and town halls, Howard University laid out its recovery plans and activated its insurance coverage, filing a
Wood paneling, decorative plaster, and wrought-iron details were carefully restored or recreated. The team matched materials by hand and eye, guided by archival photos, field investigation, and institutional memory. Throughout the project, the team sought to build a dialogue between eras. Every restored detail reinforced the idea that Douglass Hall should feel as grounded in Howard’s legacy as it is equipped for its future.
In the days that followed, more than five hundred classes were reassigned. Faculty adjusted. Students bundled up. Orientation was postponed. Howard’s spring semester started eight days late, and when it did resume, many rooms still had no heat. The break exposed vulnerabilities in campus systems, but it also brought the university community together. Students opened dorm rooms to friends who had no hot water. Staff worked through weekends, and alumni offered help. Across campus, the response was immediate and collective.
What started as repair soon became a thoughtful restoration, shaping the future of Frederick Douglass Memorial Hall. With classes temporarily relocated and programs scaled back, the building finally had room to breathe, a rare pause that made major upgrades possible after years of overprogramming and heavy use.




Howard University alumnus and professor Ronnie McGhee, along with his firm McGhee & Associates, played an instrumental role in documenting existing conditions and surveying the historic building. The firm developed a digital building information model to capture the architecture and systems, laying the groundwork for the next critical phases of design and construction. The design team also led site meetings and worked closely with Gilbane Building Company to achieve the building’s delicately restored façade and carefully detailed interior.
The steam system rupture at Frederick Douglass Memorial Hall in January 2018 could have signaled the end of a storied space. Instead, it became a catalyst. Amid scorched walls, soaked archives, and displaced faculty, the conversation quickly shifted from crisis to opportunity. This was a moment to rebuild with intention.
Architects Page, now Stantec, and R. McGhee & Associates stepped into the project with a charge not only to repair, but to reimagine. What would it mean to restore a National Historic Landmark while preparing it for the future of teaching and learning? How could the design honor its historic character while meeting the evolving needs of students, faculty, and academic life? The answers would shape one of the most consequential restoration efforts in Howard University’s recent history.
Here was a chance to rethink and retool Frederick Douglass Memorial Hall for a new generation. However, the timeline was unforgiving. The original schedule, which allowed two years for design and construction, was cut in half. The university needed the building reopened for the 2021 academic year. Page, now Stantec, and R. McGhee developed a dual-track strategy to meet the moment. One track focused on immediate stabilization, the other on advancing a bold new vision for a reimagined Douglass Hall.
The design team first explored two core schemes. One would restore the original layouts and systems as they were. The other, called “Repair + Enhance,” envisioned an evolved version of Douglass Hall that honored Albert Cassell’s intent while meeting a contemporary academic institution’s spatial, pedagogical, and sustainability standards. Howard University chose the latter.
Decoding Frederick Douglass Memorial Hall









“These buildings are national treasures, and we ought to treat them as such for current and future students to experience Howard at its fullest.”
Senior Vice President Rashad Young at the May 2023 ribbon-cutting and dedication ceremonies
Spatial reorganization began with the insight that the building had significantly underutilized square footage, especially in faculty office layouts. Offices were resized and consolidated to create new shared commons, seminar rooms, study lounges, and team rooms. Today, these informal zones support collaboration, quiet reflection, and peer-to-peer learning.
The first-floor corridor was opened to create a bright, inviting entry commons, a shift that fostered a “hall of learning” feel that anchors student experience in arrival and purpose. Arched openings and original proportions were restored along the corridors, reestablishing a sense of rhythm and architectural clarity that had been obscured over time.
Classrooms were transformed to support a shift in teaching philosophy from passive lecture delivery to active, student-centered learning. The design introduces SCALE-UP environments, where round tables, flexible layouts, and mobile instruction promote collaboration. Interactive technology supports hands-on learning across disciplines, including
shared screens, writable surfaces, and modular furnishings. Select original blackboards were preserved, maintaining a visual thread between past and present.
Teaching spaces were reassigned from individual departments to the registrar, allowing scheduling based on real-time academic needs. If political science was not meeting in the classroom, sociology could use the space. This shift unlocked capacity across the building, enabling departments to expand their offerings and collaborate more freely.
From its barrel-vaulted ceilings to its handcrafted millwork, the building required a meticulous preservation effort. In some cases, this work involved excavation and revelation. The discovery of a finely crafted fireplace, long entombed within the walls, marked the first hint of a forgotten elegance hidden beneath years of adaptation. As the restoration unfolded, ongoing efforts revealed bookshelves tucked within the frames of what had once been a grand library, their purpose obscured but never truly lost. These elements, unearthed
and refinished, now stand as quiet tributes to the spirit of intellectual pursuit, evoking the timeless images of Frederick Douglass in his home library, surrounded by books, immersed in academic exploration.
After demolition exposed a long-forgotten plaster ceiling above a warren of old offices, project leadership brought in skilled artisans trained in traditional plasterwork. Using time-honored methods and custom tools, these specialists recreated the original etched patterns by hand, a craft that has become increasingly rare in modern construction. Though not entirely lost, such expertise is practiced by only a small community of specialists committed to historic preservation.
Wood paneling, decorative plaster, and wrought-iron details were carefully restored or recreated. Craftsmen matched materials by hand and eye, guided by archival photos, field investigation, and institutional memory. Throughout the project, the team sought to build a dialogue between eras. Every restored detail reinforced the idea that Douglass Hall should feel as grounded in Howard’s legacy as it is equipped for its future.
“Sustainability is a major factor in everything that we do, touching just about every aspect of building or renovating a facility on campus as well as the design of spaces in between and around those buildings.”
Derrek Niec-Williams, Howard University Assistant Vice President for Planning and Architecture, 2020
Behind the scenes, the building was completely reengineered. Mechanical, electrical, and plumbing systems were stripped down and rebuilt. A new HVAC system enhances energy performance while supporting air quality and acoustic comfort. Lighting throughout the building is smart and responsive, using daylight sensors to reduce power consumption. The new systems meet rigorous energy benchmarks while preparing the building for climate resilience.
Douglass Hall had to be brought back online before the new central plant was even designed. To meet that challenge, the building was reimagined as a fully independent system, functioning as a standalone facility. This approach stabilized the building and returned it to active use as part of the classroom inventory, all while allowing time and flexibility to modernize and construct the new central plant.
Below grade, storm and sanitary systems were rerouted and rebuilt to prevent flooding, and a comprehensive drainage strategy was installed to guard against future weather events. Designed to wick away water, the system reduces pressure on surrounding infrastructure while protecting the building. WaterSense technology controls usage through advanced metering and flow regulation. Low-flow fixtures, improved drainage, and smart stormwater management support a more responsible relationship between Douglass Hall and its surrounding landscape.
For these efforts, Douglass Hall earned LEED certification under the US Green Building Council’s LEED v4 ID+C: Commercial Interiors rating system in June 2022. LEED (Leadership in Energy and Environmental Design) is the world’s most widely used green building certification system. It provides a framework for healthy, highly efficient, and cost-saving buildings, affirming Howard University’s commitment to sustainable, performancedriven design.

Restoring a National Historic Landmark in the heart of Washington, D.C., comes with extraordinary responsibility—and regulation. The design and construction team worked under the pressure of a compressed timeline and pandemic conditions while navigating a thicket of preservation and code compliance requirements.
Because the building is historically designated, every change had to meet D.C. preservation mandates, zoning rules, and building and energy codes, while also protecting its original character. Upgrades were limited to only the safest, most essential repairs unless additional approvals were secured.
Above: USGBC LEED Silver certification plaque in Frederick Douglass Memorial Hall Opposite: Renovated Douglass Hall classrooms, circulation, and 6th Street entry detail








“These improvements enhance student learning, increase quality of life, and build resilience, while also uplifting the stories of alumni and showcasing the building’s profound impact on campus and communities across the globe.”
Dr. Wayne A. I.
Frederick, President of Howard University, at the May 2023 ribbon-cutting and dedication ceremonies
The work was classified as “Level 2 Alterations” under the IEBC to maintain compliance. This approach allowed for careful reconfiguration of interior spaces and updated systems while preserving critical architectural features like the barrel-vaulted ceilings, decorative millwork, and the monumental stairway. Replacing original materials had to be done with matching configuration, height, and scale.
Accessibility upgrades were thoughtfully integrated. A previously installed ADAcompliant ramp supports access at the main entry, while the renovation introduced new elevators, widened doorways, and added accessible restrooms. Thresholds were removed where possible to create smoother transitions throughout. These enhancements were fully integrated into the design, removing barriers without compromising the building’s architectural character. Well-being extended to material choices as well. All finishes were low- or no-volatile organic compounds. Natural light and views were prioritized in learning
spaces. Acoustic zoning was introduced to reduce distraction. These design decisions reflect a broader belief that healthy spaces support healthy minds.
In addition to navigating the complex coding and permitting landscape, the restoration redefined how collaboration works under crisis. Undertaken during the height of the COVID-19 pandemic, the project demanded a complete rethinking of how people, tools, and time could interact on a construction site.
What emerged was a model for adaptive, resilient project delivery. With health and safety at the forefront, project managers introduced a series of innovations that kept work moving without compromising care. Virtual walkthroughs replaced in-person meetings. Strict sequencing of trades minimized overlap and reduced onsite density. Remote coordination tools enabled real-time collaboration between architects, contractors, and university stakeholders across homes, screens, and sometimes time zones.
These methods became best practices. The use of digital project tracking, phased scheduling, and shared performance metrics laid the groundwork for more efficient, transparent, and inclusive project management and created a roadmap for future restoration efforts across campus. In the middle of a global health crisis, the team proved that bold, thoughtful work could still flourish. The process became as meaningful as the product.
Renovations were completed in 2021. Faculty returned to thoughtfully restored offices. ROTC resumed its presence on familiar ground. Students reentered classrooms framed by history and reimagined for the future. Howard formally celebrated its renewal on May 11, 2023, during Commencement week, as part of a ribbon-cutting and dedication ceremony for three historic campus buildings: Douglass Hall, the Undergraduate Library, and the Armour J. Blackburn University Center. University leaders, alumni, and guests gathered to honor spaces that remain at the heart of Howard’s academic and cultural life.


Howard University site section drawing by Albert Cassell. The Yard is situated on a plateau that slopes downward, creating a valley before continuing its gentle descent toward the National Mall and eastward over the legendary McMillan Reservoir.

Enditatque modicid quaestis et fugia dolesero que audaesti omnimi, aute doluptur?
rooms. Today, these informal zones support collaboration, quiet reflection, and peer-topeer learning.
The first-floor corridor was opened to create a bright, inviting entry commons, a shift that created a “hall of learning” feel that anchors student experience in arrival and intention. Arched openings and original proportions were restored along the corridors, re-establishing a sense of rhythm and architectural clarity that had been obscured over time.
The life of a building unfolds in layers. Society and context shape its purpose. Modernization reveals its endurance and adaptation. We turn now to drawings, as they bind these layers together. They serve as the medium where vision first took form, and they are the record that allows us to see how the building has been understood, reshaped, and renewed.
Classrooms were transformed to support a shift in teaching philosophy from passive lecture delivery to active, student-centered learning. The design introduces SCALE-UP environments, where round tables, flexible layouts, and mobile instruction promote collaboration. Interactive technology supports hands-on learning across disciplines, including shared screens, writable surfaces, and modular furnishings. Select original blackboards were preserved, maintaining a visual thread between past and present.
Teaching spaces were reassigned from individual departments to the registrar, allowing scheduling based on real-time academic needs. If political science was not meeting in the classroom, sociology could use the space. This shift unlocked capacity across the building, enabling departments to expand their offerings and collaborate more freely.
From its barrel-vaulted ceilings to its handcrafted millwork, the building required a meticulous preservation effort. In some cases, this work involved excavation and revelation. The discovery of a finely crafted fireplace, long entombed within the walls, marked the first hint of a forgotten elegance hidden beneath years of adaptation. As the restoration unfolded, ongoing efforts revealed bookshelves tucked within the frames of what had once been a grand library, their purpose obscured but never truly lost. These elements, unearthed and refinished, now stand as quiet tributes to the spirit of intellectual pursuit, evoking the timeless images of Frederick Douglass in his home library, surrounded by books, immersed in academic exploration.
Architectural drawings transcend technical documentation; they are theoretical constructs that translate thought into a tangible built experience. Through plans, sections, and perspectives, architects reveal intention: a plan conveys order and circulation, a section exposes depth and light, and a perspective projects atmosphere and experience. Drawings are never neutral. They document and shape design, serving as instruments of persuasion and instruction.
The drawings that follow trace this dual role across Frederick Douglass Hall at Howard University. A charcoal sectional drawing illustrates the sweep of the campus, from the high northern plateau of the Yard, through the lower Valley, to the steep descent toward
Decoding Frederick Douglass Memorial Hall
After demolition exposed a long-forgotten plaster ceiling above a warren of old offices, the team brought in skilled artisans trained in traditional plasterwork. Using time-honored methods and custom tools, the team recreated the original etched patterns by hand, a craft that has become increasingly rare in modern construction. Though not entirely lost, such expertise is practiced by only a small community of specialists committed to historic preservation.
Florida Avenue and the city beyond. Within the building itself, sectional perspectives reveal how classrooms, seminar spaces, and faculty offices stack and interconnect. Larger cuts through the central core and north wing highlight critical spatial relationships, including the procession from Sixth Street to the Yard, and then to the historic reading room and the largest seminar hall.
Wood paneling, decorative plaster, and wrought-iron details were carefully restored or recreated. The team matched materials by hand and eye, guided by archival photos, field investigation, and institutional memory. Throughout the project, the team sought to build a dialogue between eras. Every restored detail reinforced the idea that Douglass Hall should feel as grounded in Howard’s legacy as it is equipped for its future.
Placed alongside these contemporary studies are Cassell’s original 1933 hand drawings. His blueprints capture not only plans and dimensions but also interior elevations, window and roof details, bookshelves, and paneled systems, sketched with the clarity and elegance that hand drawing achieves. In contrast, the new computer-generated drawings, produced through building information modeling, offer exact digital constructions rendered as two-dimensional representations. The historic works embody architectural intention, while the contemporary reveal the precision of that intention as a means of forensic exploration, seeking the vision first imagined and its reinterpretation through renovation nearly a century later.

Section looking northeast

“For several decades, the History Department occupied the third floor; Sociology and Anthropology occupied the second floor; Political Science occupied the first floor; and ROTC was located on the ground floor.”
—Dr. Ruben Patterson, Dean of the College of Arts and Sciences, in Frederick Douglass Memorial Hall Significance to Howard University, May 23, 2023

Connecting from the legendary Yard through to the 6th Street entry gates, Douglass Hall is laterally integrated into the Howard University campus. The internal circulation stairs provide vertical connection from the first-level student study commons to every floor above.


































































































































Once simply labeled as “Unassigned,” the basement wings of Douglass Hall became increasingly important as the university expanded. The north and south wings were soon occupied, and between the early 1940s during World War II and the mid-1960s during the Vietnam War, the ROTC program was relocated to this lower level. Around the same time, the men’s and women’s locker rooms were converted into meeting spaces, and the storage area to the west was excavated and incorporated into the usable floor area.













There is something electric about standing in a place that has influenced Howard’s intellectual life for nearly a century. Inside Frederick Douglass Memorial Hall, the voices of poets, philosophers, scientists, and scholars continue to resonate. They echo from classrooms where questions challenge assumptions, from corridors where ideas take root, and from chalkboards and smart boards alike. This building exists because ideas matter.
For nearly a century, Douglass Hall has anchored Howard University’s liberal arts education. It has been the starting line for lives dedicated to service, justice, discovery, and truth. But this hall has never stood still. It continues to rise and adapt alongside the minds within it.
Today, liberal arts education at Howard thrives on bold curiosity and a deep sense of responsibility. Learning here is interdisciplinary. Students connect language study to global perspectives and examine history through the lenses of law, society, and culture. They ask hard questions: tracing the legacies of slavery and colonialism, weighing debates on justice and reparations, and analyzing how policy and environment shape public health in Black and Brown communities. This inquiry demands tools that match its ambition: classrooms wired for dialogue across distance, systems designed to conserve resources and build resilience, and spaces that support solitary thinking and shared purpose.
But what about tomorrow? The next generation will arrive determined to solve challenges that defy traditional boundaries, and the curriculum will need to address emerging scholarship such as algorithmic bias, data colonialism, and posthumanism. Leading in these areas will require deeper integration across disciplines, more access to integrated AI and hands-on research, and an unwavering commitment to ethics and cultural understanding.
Frederick Douglass Memorial Hall is renewed and prepared, honoring its past and equipped to meet today’s demands, but the work ahead will require even more robust infrastructure. The future requires advanced computing power, secure data environments, highcapacity connectivity, and collaborative spaces where analysis moves from insight to action. With bold investment, Douglass Hall will continue to be where Howard’s brightest minds turn possibilities into impact.
Frederick
Douglass, American abolitionist and orator, 1862

“We’ve
railed against injustice for decade upon decade — a lifetime of struggle, and progress, and enlightenment that we see etched in Frederick Douglass’s mighty, leonine gaze.”
Blight, David W. Frederick Douglass: Prophet of Freedom. New York: Simon & Schuster, 2018.
Douglass, Frederick. Frederick Douglass: Autobiographies. Edited by Henry Louis Gates Jr. New York: Library of America, 1994.
Johnson, Melanie. “Frederick Douglass Legacy Alive at Howard University.” Spectrum News, May 22, 2018. https://www.spectrumlocalnews.com/nys/ rochester/news/2018/05/22/frederick-douglass-legacy-alive-at-howard-university
Muse, Clifford L. “Howard University and the Federal Government During the Presidential Administrations of Herbert Hoover and Franklin D. Roosevelt, 1928–1945.” The Journal of Negro History 76, no. 1/4 (1991): 1–20. https://www.jstor.org/stable/2717406.
Page. Howard University Central Campus Master Plan 2020. Washington, DC: Howard University, 2020.
Robinson, Harry G., III, and Hazel Ruth Edwards. The Long Walk: The Placemaking Legacy of Howard University. Washington, DC: Howard University, 1996.
Wexler, Laura. “A More Perfect Likeness: Frederick Douglass and the Image of the Nation.” The Yale Review 99, no. 4 (October 2011). Accessed April 22, 2025. https://www. muse.jhu.edu/article/793084
African American Registry. “Albert I. Cassell, Architect Born.” Accessed April 13, 2025. https://aaregistry.org/ story/albert-i-cassell-architect-born/.
Aloi, Daniel. “Building on Opportunity: The Cassell
Family of Architects.” Ezra Magazine, Fall 2014. https:// ezramagazine.cornell.edu/FALL14/People.html.
The Baltimore Sun (Baltimore, MD). “Plan $9,500,000 Negro Homestead: Group Working to Have Colony Located in Calvert County.” January 31, 1935. Newspapers. com. Accessed April 13, 2025. https://www.newspapers. com/.
Boone, Kofi. “Notes Toward a History of Black Landscape Architecture.” Places Journal, October 2020. Accessed March 22, 2025. https://placesjournal.org/article/ notes-toward-a-history-of-black-landscape-architecture/?cn-reloaded=1
Chase, Harry Woodburn. Address of Chancellor Chase at the Dedication Exercises at Howard University of the Frederick Douglass Memorial. Washington, DC, April 30, 1935. Records of the Office of the President – Chase, Collection no. 263.0045, box 78, folder 10. New York University Special Collections.
Cornell Chronicle. “First African American Landscape Architect Launched Career at Cornell.” February 7, 2018. https://news.cornell.edu/stories/2018/02/first-african-american-landscape-architect-launched-career-cornell
Cornell School of Integrative Plant Science. “David A. Williston ’98 Was the First Professionally Trained African American Landscape Architect in the US” SIPS History Blog, December 22, 2021. https://blogs.cornell.edu/ sipshistory/2021/12/22/david-a-williston-98-was-thefirst-professionally-trained-african-american-landscapearchitect-in-the-u-s/.
The Cultural Landscape Foundation. “Albert Irvin Cassell.” Accessed April 13, 2025. https://www.tclf.org/ pioneer/albert-irvin-cassell.
———. “David A. Williston.” Accessed March 21, 2025. https://www.tclf.org/pioneer/david-williston.
Evening Star (Washington, DC). “Colored Artist Painting Murals.” October 18, 1935. Chronicling America: Historic American Newspapers. Library of Congress. Accessed May 15, 2025
Evening Star (Washington, DC). “Colored Violinist Pneumonia Victim.” December 8, 1935. Chronicling America: Historic American Newspapers. Library of Congress. Accessed May 15, 2025. https://chroniclingamerica.loc. gov/lccn/sn83045462/1935-12-08/ed-1/seq-11/.
Evening Star (Washington, DC). “New Howard University Building Presented.” April 30, 1935, B1. Chronicling America: Historic American Newspapers. Library of Congress. Accessed May 15, 2025. https://chroniclingamerica.loc. gov/lccn/sn83045462/1935-04-30/ed-1/seq-17/
Green, Jared. “A New Look at the Trail-Blazing David A. Williston.” The Dirt. American Society of Landscape Architects, August 8, 2016. https://dirt.asla. org/2016/08/08/a-new-look-at-the-trail-blazing-davida-williston/.
Heung, Camille. “Cassell, Albert I. (1895–1969).” BlackPast, June 23, 2008. Accessed April 13, 2025. https:// www.blackpast.org/african-american-history/cassell-albert-i-1895-1969/.
The Hilltop (Washington, DC). “Distinguished Artist to Paint Murals for Frederick Douglass Hall Entrance.” 1935.
Howard University. 1924 Bison. A Human Boy’s Diary. “Men’s Glee Club.” Howard University Digital Howard. Accessed April 9, 2025. https://dh.howard.edu/cgi/viewcontent.cgi?article=1000&context=mens_glee_club.
———. “Charter Day 79th Anniversary, Alumni Achieve-
ment Awards.” March 2, 1946.
———. “Gallery of Art.” College of Fine Arts. Accessed April 12, 2025. https://finearts.howard.edu/gallery-art
———. “Historical List of Trustees: Chronological Order.” Office of the Secretary, August 2024. https://secretary. howard.edu/sites/secretary.howard.edu/files/2024-08/ Historical%20List%20of%20Trustees_Chron%20Order_0.pdf.
Lebovich, William. “Albert I. Cassell.” In African American Architects: A Biographical Dictionary, 1865–1945, edited by Dreck Spurlock Wilson, 89–93. New York: Routledge, 2004.
Logan, Rayford W., and Michael R. Winston. “Cassell, Albert Irvin (1895–1969).” In Dictionary of American Negro Biography. 1st ed. New York: Norton, 1982.
Muckle, Kirk, and Dreck Spurlock Wilson. “David Augustus Williston: Pioneering Black Professional Landscape Architect.” Landscape Architecture 72, no. 1 (January 1982): 82–85. https://www.jstor.org/stable/26434589.
National Park Service. “Harold Ickes.” US Department of the Interior. Accessed April 9, 2025. https://www.nps. gov/people/harold-ickes.htm.
———. “Learning from Leaders: David Williston.” US Department of the Interior, October 14, 2020. https://www. nps.gov/articles/david-williston-learning-from-leaders. htm.
“New Memorial to Fred Douglass at H.U. Is Dedicated.” The Washington Tribune (Washington, DC), May 4, 1935. Chronicling America: Historic American Newspapers Library of Congress. Accessed May 15, 2025. https:// chroniclingamerica.loc.gov/lccn/sn87062236/1935-0504/ed-1/seq-2/
Raverty, Dennis. “Archibald Motley.” Illinois Historical Art Project. Illinois State Museum Society. Accessed April 12, 2025. https://www.illinoisart.org/essays/archibald-motley
Robinson, Jontyle Theresa. The Art of Archibald J. Motley, Jr. Chicago: Chicago Historical Society, 1991. Exhibition catalog. With contributions by Wendy Greenhouse and Archibald J. Motley Jr.
Sefton, Susan, and Lisa Berk. “Calvert Town: Albert Cassell’s Unfulfilled Dream.” Equity in History. Calvert County Historical Society. Accessed April 13, 2025. https://www. equityinhistory.org/article/calvert-town-albert-cassellsunfulfilled-dream.
Smithsonian Institution Archives. “Sneak Peek from the Stacks: Howard University’s Glee Club and Roy Tibbs.” SIRIS Blog, July 11, 2012. https://si-siris.blogspot. com/2012/07/sneak-peek-from-stacks-howard.html.
The Washington Times (Washington, DC). “Hall Dedicated at Howard U.” April 30, 1935, 12. Chronicling America: Historic American Newspapers. Library of Congress. Accessed May 15, 2025. https://chroniclingamerica.loc. gov/lccn/sn84026749/1935-04-30/ed-1/seq-12/.
Wilson, Dreck Spurlock, ed. African-American Architects: A Biographical Dictionary, 1865–1945. New York: Routledge, 2004.
Adetiba, Temi. “50 Years Later: The Demonstration That Changed Howard and the Legacy It Left.” The Hilltop, March 31, 2018. https://www.thehilltoponline. com/2018/03/31/50-years-later-the-demonstrationthat-changed-howard-and-the-legacy-it-left .
Association of the United States Army. “ROTC: 100
Years of Producing America’s Leaders (1916–2016).” October 1, 2015. Accessed April 5, 2025. https://www. ausa.org/articles/rotc-100-years-producing-america%E2%80%99s-leaders-1916-2016
Black in Anatomy. “Dr. W. Montague Cobb.” Accessed April 5, 2025. https://www.blackinanatomy.org/dr-w-mcobb-video.
Cobb, W. Montague. “A Graphic Approach to a Compleat Anatomy.” Journal of the National Medical Association 38, no. 5 (1946): 155–163. https://www.ncbi.nlm.nih.gov/ pmc/articles/PMC2616883.
———. “The Artistic Canons in the Teaching of Anatomy.” Journal of the National Medical Association 36, no. 1 (1944): 3–14. https://www.ncbi.nlm.nih.gov/pmc/articles/ PMC2615970/.
———. “The Howard University Medical Department, 1868–1968.” Journal of the National Medical Association 60, no. 2 (1968): 81–91. https://www.pmc.ncbi.nlm.nih. gov/articles/PMC2571791/pdf/jnma00276-0081.pdf.
Cobb Institute. “W. Montague Cobb.” Accessed April 5, 2025. https://www.thecobbinstitute.org/w-montaguecobb
Howard University. “Editors-in-Chief.” The Journal of Negro Education. Accessed April 5, 2025. https://www. jne.howard.edu/about-us/editors-chief.
———. “Mission and History.” The Journal of Negro Education. Accessed April 5, 2025. https://www.jne.howard. edu/about-us/mission-and-history
———. “W. Montague Cobb Research Laboratory.” Office of the Provost. Accessed April 5, 2025. https://www. provost.howard.edu/cobblab.
———. W. Montague Cobb Lab: Report and Announcement, November 15, 1995. Washington, DC: Office of the Provost, 1995. https://www.provost.howard.edu/ sites/provost.howard.edu/files/2023-06/W.%20Montague%20Cobb%20Lab%20-%20Report%2C%20Announcement%2C%2011.15.95.pdf
Howard University Army ROTC. “Bison Battalion ROTC History.” Accessed April 5, 2025. https://www.army. howard.edu/about-rotc/bison-bn-rotc-history.
Kiger, Patrick. “Muhammad Ali’s Speech at Howard University, 1967.” Boundary Stones: WETA’s Washington DC History Blog, April 14, 2014. https://www.boundarystones. weta.org/2014/04/14/muhammad-alis-speech-howard-university-1967.
Logan, Rayford W. Howard University: The First Hundred Years, 1867–1967. New York: New York University Press, 1969.
Lowe, Turkiya L. National Historic Landmark Nomination: Andrew Rankin Memorial Chapel, Frederick Douglass Memorial Hall, and Founders Library, Howard University Washington, DC: National Park Service and District of Columbia Office of Planning, Historic Preservation Office, August 2000. https://www.planning.dc.gov/sites/ default/files/dc/sites/op/publication/attachments/Howard%20University%20NHL%20nom.pdf
Mack, Mark E., and Michael L. Blakey. “The New York African Burial Ground Project: Past Biases, Current Dilemmas, and Future Research Opportunities.” Historical Archaeology 38, no. 1 (2004): 10–17. https://www.jstor. org/stable/25617128.
National Park Service. “Chief Historians of the National Park Service.” US Department of the Interior. Accessed April 5, 2025. https://www.nps.gov/orgs/1220/npschiefhistorians.htm
———. “Landmarks that Transformed Education Racial Desegregation in Public Education in the United States.” Washington, DC: US Department of the Interior, 2007. https://www.npshistory.com/publications/nhl/ theme-studies/civil-rights-deseg-pub-edu-sup.pdf.
Rankin-Hill, Lesley M., and Michael L. Blakey. “W. Montague Cobb (1904–1990): Physical Anthropologist, Anatomist, and Activist.” American Anthropologist 96, no. 1 (1994): 74–96.
Scarupa, Harriet Jackson. “W. Montague Cobb: His Long, Storied, Battle-Scarred Life.” New Directions 15, no. 2 (1988). https://dh.howard.edu/cgi/viewcontent.cgi?article=1489&context=newdirections
TheDig. “Howard University ROTC: A Legacy of Excellence.” YouTube video, 5:37. Posted January 11, 2023. https://www.youtube.com/watch?v=Df-uyFHnS1k
URi. “Contents Relocation of Significant Collections.” Accessed May 7, 2025. https://www.urinow.com/projects/ content-relocation-of-significant-collections.
YouTube. “Muhammad Ali Speaks to Black People About Knowledge of Self at Howard University.” Video, 6:21. Posted by Black Culture Films, July 30, 2017. https:// www.youtube.com/watch?v=5L4ydezIUG0.
Yu, Rin-rin. “Martin Luther King Jr.’s Legacy at Howard.” The Dig, Howard University, January 27, 2022. Accessed August 28, 2025. https://thedig.howard.edu/all-stories/ martin-luther-king-jrs-legacy-howard.
Yu, Rin-rin, and Amber D. Dodd. “Howard University’s History of the Reserve Officers’ Training Corps.” The Dig: Howard University Newsroom, July 25, 2023. https:// www.thedig.howard.edu/all-stories/howard-universitys-history-reserve-officers-training-corps.
Zinn Education Project. “March 19, 1968: Howard University Protest.” Accessed April 5, 2025. https://www. zinnedproject.org/news/tdih/howard-university-protest .
Barnes, Sophia. “Howard University Students Return to Classes in Dorm Basements, Gyms after Heating Issues.” NBC Washington. January 16, 2018. https://www. nbcwashington.com/news/local/howard-university-students-return-to-classes-in-dorm-basements-gyms-afterheating-issues/2028622.
Broom, Scott. “Damage at Howard U. Worse Than Many Imagined.” WUSA9. January 18, 2018. https://www. wusa9.com/article/news/local/dc/damage-at-howard-uworse-than-many-imagined/65-509288666
Cohen, Justin. “Howard University Stricken with Damages; A Test of Resilience.” The Hilltop. January 21, 2018. https://www.thehilltoponline.com/2018/01/21/howard-university-stricken-with-damages-a-test-of-resilience
Page. Howard University Central Campus Master Plan 2020. Washington, DC: Howard University, 2020.
PR Newswire. “Howard University Celebrates Ribbon-Cutting and Dedication Ceremonies for Three Historic Campus Buildings.” PR Newswire. May 8, 2023. https://www.prnewswire.com/news-releases/ howard-university-celebrates-ribbon-cutting-and-dedication-ceremonies-for-three-historic-campus-buildings-301817934.
Smith, Victoria. “Promises of New-and-Improved Douglass Hall.” The Hilltop. November 14, 2019. https://www. thehilltoponline.com/2019/11/14/promises-of-new-andimproved-douglass-hall.
5. DRAWINGS

The abbreviation “HU MSRC” designates photos and drawings graciously provided by The Moorland-Spingarn Research Center at Howard University.
Except where noted below in parentheses, images are copyright Page, now Stantec, or public domain.
Frederick Douglass Memorial Hall Sixth Street elevation entry details, 1933 blueprint (HU MSRC), cover
Photograph of Frederick Douglass circa 1879 (National Archives and Records Administration), p. iv
Aerial view of Howard campus, p. vi
Howard University seal, Foreword, p. vii
Detail of marble in Frederick Douglass Reading Room, Howard University, Contents page, p. viii
Frederick Douglass Memorial Hall, Howard University circa 1930 (Scurlock; Thomsen-Ellis Co.), Prologue, p. x
Frederick Douglass Memorial Hall pediment detail (Howard University), p. xii–xiii
Douglass Hall west elevations, sections, and details, 1933 blueprint (HU MSRC), p. xiv–1
Frederick Douglass in 1845, at around age 27 (Getty Images), p. 2
1856 portrait of Frederick Douglass (Getty Images), p. 3
Frederick Douglass in his study at Cedar Hill, his home in
Washington, D.C. (HU MSRC), p. 5
Frederick Douglass with his second wife, Helen Pitts Douglass, and her sister Eva Pitts, p. 5
Frederick Douglass with his grandson, p. 5
1932 Plan for the Proposed Development of Howard University by University Architect Albert Irvin Cassell (Smithsonian Institution), p. 6-7
1931 B&W aerial photograph of Howard University (Source ?), p. 8
Douglass Hall south elevation and details, 1933 blueprint (HU MSRC), p. 10-11
Cornell University College of Architecture, drafting room, White Hall, c. 1910 (Cornell University), p. 11
1932 Aerial view from Albert Cassell’s 1932 Plan for the Proposed Physical Development of Howard University, p. 12
Portrait of David Augustus Williston (The Cultural Landscape Foundation), p. 13
Portrait of Albert Irvin Cassell (The Cultural Landscape Foundation), p. 13
Douglass Hall plot plan, 1933 blueprint (HU MSRC), p. 14
Late 1890s image of David Williston with College of Agriculture professor and Dean Isaac Roberts and other Cornell University classmates (Cornell University), p. 15
Hand sketch by David Williston from his thesis, “Atmospheric Drainage” (Cornell University), p. 15
Tuskegee Institute campus, April 1918 (Library of Congress), p. 16–17
Howard University figure-ground drawings tracing the campus development from 1919 to a proposed 2030 future condition, p. 18
Group photo of the Horticultural Lazy Club, informally known as “Bailey’s Boys,” in the late 1890s (Cornell University), p. 19
David Williston alongside his brother Edward Davis Williston in portrait with other brothers and sisters. (Cornell University), p. 19
Williston’s 1958 handwritten bequest to the Liberty Hyde Bailey memorial fund (Cornell University), p. 19
Earliest known photos and drawings of the Tuskegee Army Airfield (Cornell University), p. 19
1943 site plan for Tuskegee Airfield (Cornell University), p. 19
Cassell’s graphite hand sketch of the proposed Frederick Douglass Memorial Hall c. 1934 (HU MSRC), p. 21
Albert Cassell c. 1917–18, 351st Field Artillery Regiment, 92 Division (Alamy), p. 21
Cassell’s hand-drafted and rendered front elevation of Douglass Hall, (Smithsonian Institution), p.22
Cassell’s office with shelves filled with books and folios (HU MSRC), p. 24
Letter from W.E.B. Du Bois to Albert Cassell, December 9, 1930 (Special Collections and University Archives, University of Massachusetts Amherst Libraries), p. 24
Color brochure for house at Chesapeake Heights, a 520-acre summer resort community for African Americans in Prince Frederick, MD (HU MSRC, p. 26
Color brochure for kitchen interior of a house at Chesapeake Heights (HU MSRC), p. 26
Site blueprint for Mayfair Mansions on Anacostia Parkway in SE Washington, D.C. (HU MSRC), p. 26
The Afro American Newspaper Offices in Washington, D.C. (HU MSRC), p. 26
Steel fabrication drawings for water tower at Chesapeake Heights. dated December 12, 1960 (HU MSRC), p. 26
Cassell’s graphite hand sketch of the proposed Founders’ Hall façade (HU MSRC), p. 27
Cassell’s graphite hand sketch of the proposed George Washington Church, February 22, 1963 (HU MSRC), p. 27
Founders Library image from 4th Street across the “valley” (HU MSRC), p. 27
Bird’s-eye perspective of Seaton Elementary School, Cassell and Gray Architects (HU MSRC), p. 27
Millwork details, wood shutters, roof scuttle, and urn detail for the Maryland Training School for Colored Girls, Glen Bernie, Maryland, Albert I. Cassell Architect, June 14, 1938 (HU MSRC), p. 27
Douglass Hall exterior details, 1933 blueprint (HU MSRC), p. 28
Douglass Hall cross section details, 1933 blueprint (HU MSRC), p. 29
Corinthian capital and Tower of Winds drawings from
Stuart James & Revett’s The Antiquities of Athens (Library of Congress), p. 30
Douglass Hall portico columns detail (Anice Hoachlander Photography), p. 31
Laros and Lehigh Valley silk mill, Morgan State University Memorial Chapel, and Douglass Hall window detail sketches, p. 32
Morgan State University Memorial Chapel, Baltimore, MD c. 1941 (photograph by Alexander Heilner), p. 33
Laros and Lehigh Valley silk mill, p. 33
Douglass Hall 6th street façade detail (Anice Hoachlander Photography), p. 33
Douglass Hall, interior detail of crown moulding at Reading Room showing dentil band with “meandros” pattern (Anice Hoachlander Photography), p. 34
Meander motifs at Independence Hall, Philadelphia, PA (photographer unknown), p. 35
Restored cupola detail from NW western façade entry (Anice Hoachlander Photography), p. 36
Douglass Hall cupola, 1933 blueprints (HU MSRC), p. 37
Howard University Seal circa 1930 (HU MSRC), p. 38
Frederick Douglass Memorial Hall pediment detail, Howard University, p. 38
Douglass Hall, detail of cupola base and limestone balustrade (Anice Hoachlander Photography), p. 38
Douglass Hall, Frederick Douglass Reading Room mahogany details, p. 38
Douglass Hall, terrazzo floor patterning detail, p. 38
Douglass Hall, Frederick Douglass dedication plaque and limestone surround at foyer, p. 38
Douglass Hall, Reading Room marble fireplace surround patterning detail, p. 38
Douglass Hall, detail of inset limestone relief panel at 6th Street façade (Anice Hoachlander Photography), p. 38
Douglass Hall, wrought iron entry gate detail, 1933 blueprint (HU MSRC), p. 40
Douglass Hall, wrought iron entry gate detailing at 6th Street façade (Anice Hoachlander Photography), p. 41
Archibald J. Motley Jr., The Liar, 1936 (Howard University Gallery of Art), p. 42
Archibald J. Motley Jr., Barbecue, 1934 (Howard University Gallery of Art), p. 42
Archibald J. Motley Jr., The Picnic, 1936 (Howard University Gallery of Art), p. 42
Archibald J. Motley Jr., Saturday Night, 1935 (Howard University Gallery of Art), p. 42
Archibald Motley posing with his work Portrait of My Mother, 1930 (Getty Images), p. 43
Archibald J. Motley Jr., Black Belt c. 1934 (Hampton University Museum), p. 44–45
1936 print of the distinguished Howard University Glee Club, directed by Roy W. Tibbs. (HU MSRC), p. 46–47
Dr. Harry Woodburn Chase, Chancellor of New York University, 1933 (Historic Images), p. 49
Program from the Frederick Douglass Memorial Hall opening ceremony on April 30, 1935 (HU MSRC), p. 49
Dr. Chase’s notes from his address (New York University Special Collections), p. 49
Howard University Board of Trustees, c. 1935–1936 (HU MSRC), p. 50
Mordecai Johnson, President of Howard University, circa 1937–1938 (Alamy), p. 50
The Evening Star front page, Tuesday, April 30, 1935 (Library of Congress), p. 51
Muhammad Ali, 1967 “Black is Best” speech, Saturday, April 22, 1967 (Howard Bingham / PBS), p. 52-53
Nnamdi Azikiwe, Thurgood Marshall, Chester Bliss Bowles, and Roy Williston Bornn at Howard University commencement, 1954 (HU MSRC), p. 54-55
Howard University original campus boundary map, p. 56
Bird’s eye view sketch of Howard University campus. (Coord these two w/ DNW; got from slide deck), p. 56
ROTC Program established (Howard Communications), p. 56
“Contrabands,” Cumberland Landing, Virginia, 1862 (Library of Congress), p. 56
NAACP Annual Conference, 1929, including W.E.B. Du Bois, James Weldon Johnson, Walter White, William Pickens, Arthur Spingarn, Daisy Lampkin, and Robert Bagnall (Library of Congress), p. 56
Archibald J. Motley Jr., Street Scene Chicago, 1936 (Valerie Gerrard Browne), p. 56
Mordecai Wyatt Johnson as a young man (Robert W. Woodruff Library, Atlanta University Center, Atlanta University Photographs), p. 57
Mass photography of skulls, Cobb Research Lab News, Vol 5, Issue 4 Summer 2019, article by Chiderah Uzoukwu (Howard University), p. 57
A young lady at Howard University works in a new PWA-funded Chemistry Building, ca. 1937 (National Archives), p. 57
Frederick Douglass Memorial Hall (Photo by Scurlock; Thomsen-Ellis Co.), p. 57
Rev. Martin Luther King Jr. (Horace Cort, Photographer, Associated Press), p. 57
African American flood victims lined up at Red Cross relief station (Margaret Bourke-White, Time & Life Pictures / Getty Images), p. 57
African Americans in the Great Depression and New Deal (Library of Congress), p. 57
“Above and Beyond the Call of Duty.” Dorie Miller with his Navy Cross at Pearl Harbor, May 27, 1942, color-offset poster (Library of Congress), p. 57
Rose Parks on the bus, Montgomery, Alabama (Getty Images), p. 57
Howard University Protest at Frederick Douglass Hall during May 1967 (Library of Congress), p. 58
Muhammad Ali, 1967 “Black is Best” speech, Saturday, April 22, 1967 (Howard Bingham / PBS), p. 58
African burial ground outside New York City (David T. Valentine / Library of Congress), p. 58
Image of Cobb Collection during restoration and preservation efforts, 2018 (photograph by Unlimited Restoration), p. 58
Sit-in movement begins at Greensboro, North Carolina lunch counter (Smithsonian), p. 58
Malcolm X in 1964 (Herman Hiller, World Telegram staff photographer), p. 58.
Los Angeles police officers during the Watts riots, August 13, 1965 (John Malmin / Los Angeles Times), p. 58
Rodney King being beaten by police officers, March 3, 1991, from CBS Television broadcast, March 15, 1991 (CBS via AFP / Getty Images), p. 58
Frederick Douglass Memorial Hall from The Yard (Anice Hoachlander Photography), p. 59
Ronnie McGhee, FAIA, NCARB, LEED AP, c. 2020 (Photograph by R. McGhee & Associates), p. 59
Vice President Kamala Harris delivers concession speech on the campus of Howard University, November 6, 2024 (Ben Curtis / AP), p. 59
Frederick Douglass ‘Hope’ poster (QuoteArtisan), p. 59
Woman holding sign at rally honoring Trayvon Martin outside One Police Plaza in New York City, July 20, 2013 (Kena Betancur / Getty Images), p. 59
Official portrait of President-elect Barack Obama by Pete Souza (Library of Congress), p. 59
Official Vice Presidential portrait of Kamala Harris (Government Publishing Office), p. 59
Minnesota State Patrol troopers in formation following the murder of George Floyd, May 29, 2020 (Creative Commons), p. 59
Howard University, Base visit of members of the band, 1961 (HU MSRC), p. 60
Howard University, Colonel Dinkins and Retired Major General Davidson present awards to outstanding senior cadets (HU MSRC), p. 60
Howard University cadets Stand at Attention (HU MSRC), p. 60
Howard University , ten cadets stand at attention (HU MSRC), p. 60
Miss Jacqueline Frazier, the first Howard University student to be honored by the R.O.T.C. Battalion as “Honorary Coed Cadet Colonel” (HU MSRC), p. 62
President Truman at Frederick Douglass Hall (HU MSRC), p. 65
Jackie Robinson and Martin Luther King Jr. receiving honorary degrees from Howard University in front of Douglass Hall, 1957 (Archives Center, National Museum of American History), p. 65
President Lyndon B. Johnson delivers commencement address at Howard, June 4, 1965 (Alamy), p. 65
Muhammad Ali visits Howard University, 1975 (HU MSRC), p. 65
The Journal of Negro Education, Vol. XXX, no. 2, 1961 (Journal of Negro Education), p. 66
The Journal of Negro Education, Volume 91, Number 3, Summer 2022 (Journal of Negro Education), p. 66
Vice President Harris concedes the election at Howard University (Getty Images), p. 67
Illustration from “Can Skeletons Have a Racial Identity” Sabrina Imbler, October 19, 2021 (John M. Daugherty / Science Source), p. 68
Dr. William Montague Cobb’s workspace c. 1970s (New York Times), p. 69
Dr. W. Montague Cobb in the 1960s, teaching anatomical comparison (New York Times), p. 70
Dr. Michael Blakey of Howard University examines remains unearthed during the Manhattan Construction Project (Historical Images), p. 70
Maerschalck map of the City of New York clearly shows the African Burial Ground and its surrounding neighborhood, 1754 (Library of Congress), p. 71
African Burial Ground and the Commons Historic District, p. 71
Images of Cobb Collection during restoration and preservation efforts, 2018 (Unlimited Restoration), p. 72
Dr. William Montague Cobb teaches a class at Howard University in 1971 (Howard University), p. 75
Andrew Rankin Memorial Chapel (Society of Architectural Historians), p. 76
Frederick Douglass Memorial Hall (Smithsonian Institution), p. 76
Founders Library (Library of Congress), p. 76–77
A woman and her daughter hold up the newspaper proclaiming the ruling by the US Supreme Court (Getty
Images), p. 78
Student demonstrators fill the administration building, March 20, 1968 (Getty Images), p. 79
Hundreds of Howard students rally in D.C. after Grand Jury decision in Michael Brown shooting, 2014 (Getty Images / Chip Somodevilla), p. 79
Occupy DC march and rally from Douglass Hall to US Chamber of Commerce, 2011 (Getty Images / Chip Somodevilla), p. 79
Howard students picket the National Crime Conference in D.C. in December, 1934, when leaders of the Conference refused to discuss lynching as a national crime (Getty Images), p. 79
4. PRESSURE AND PROGRESS
Steam leaking from fractured steam piping during deep freeze weather event, 2018 (The Washington Post), p. 80-81
Four interior views of Frederick Douglass Memorial Hall before restoration and modernization (photography by Raymond Curtis), p. 82
Five interior views of Frederick Douglass Memorial Hall during restoration and modernization (photography by Raymond Curtis), p. 84
Three exterior / cupola views of Frederick Douglass Memorial Hall during restoration and modernization (photography by Raymond Curtis), p. 85
Restored Douglass Hall Reading Room, 2020 (Anice Hoachlander Photography), p. 86
US Green Building Council Certification plaque, 2021
(Photograph by Todd Ray), p. 88
Restored Douglass Hall active learning classroom, 2020 (Anice Hoachlander Photography), p. 89
Restored Douglass Hall 6th Street façade, 2020 (Anice Hoachlander Photography), p. 89
Restored Douglass Hall student commons and first level hallway, 2020 (Anice Hoachlander Photography), p. 89
Restored Douglass Hall seminary room, 2020, (Anice Hoachlander Photography), p. 89
Restored Douglass Hall façade at The Yard, 2020 (Anice Hoachlander Photography), p. 90–91
Restored Douglass Hall façade at The Yard, oblique view, 2020 (Anice Hoachlander Photography), p. 92
Restored Douglass Hall façade at The Yard, east portico detail, 2020 (Anice Hoachlander Photography), p. 93
Restored Douglass Hall 6th Street entry court, 2020 (Anice Hoachlander Photography), p. 95
Howard University site section showing main campus and Founders Library, drawing by Albert Cassell (HU MSRC), p. 96–97
Douglass Hall section perspective looking northeast, p. 98–99
Douglass Hall section perspective showing connection from 6th Street entry gates to the Yard. p. 100
Douglass Hall transverse section looking west, p. 101
Douglass Hall roof plan, p. 102
Douglass Hall east-west section, p. 102
Douglass Hall east elevation, p. 102
Douglass Hall south, north, and west elevations, p. 103
Douglass Hall ground floor plan, 1933 blueprint (HU MSRC), p. 104
Douglass Hall ground floor plan, 2020, p. 105
Douglass Hall first floor plan, 1931 drawing (HU MSRC), p. 106
Douglass Hall first floor plan, 2020, p. 107
Douglass Hall second floor plan, 1933 blueprint (HU MSRC), p. 108
Douglass Hall second floor plan, 2020, p. 109
Douglass Hall third floor plan, 1933 blueprint (HU MSRC), p. 110
Douglass Hall third floor plan, 2020, p. 111
Douglass Hall attic plan, 1933 blueprint (HU MSRC), p. 112
Douglass Hall roof plan, 1933 blueprint (HU MSRC), p. 113
Eight photographs of Howard University today (Howard University communications), p. 114
Head and shoulders portrait of Frederick Douglass (Library of Congress), p. 116
Archibald J. Motley Jr., Gettin’ Religion, 1948 (Whitney Museum), p. 120
View from Douglass Hall of iron entry gate, reversed (Anice Hoachlander Photography), inside back cover
Douglass Hall exterior details, 1933 blueprint (HU MSRC), end pages
127 Decoding Frederick Douglass Memorial Hall
What does it mean to honor a legacy?
Breathing new life into a space that carries generations of memory, meaning, and momentum is the spirit behind this book and the journey to create it. Collaborating with the Howard University team, we followed our curiosity through archives, books and blueprints, campus walks, Google deep dives, and illuminating conversations. Along the way, we are reminded that legacy is not static; it’s something stewarding and renewing.
We are deeply grateful to the Howard University team for their leadership, vision, and unwavering commitment:
Dr. Wayne A. I. Frederick
Interim President, Howard University
Anthony Freeman
Vice President and Chief Real Estate Officer
Senior Advisor to the President
Derrek Niec-Williams
Assistant Vice President for Planning and Architecture, Real Estate Development and Capital Asset Management
Jordan Strudwick
Deputy Director of Communication and Archives, Real Estate Development and Capital Asset Management
Michelle Lockley
Executive Assistant
Real Estate Development and Capital Asset Management
Aaron Baltimore
Executive Director of Facilities
Thank you to the Howard University Archives, Moorland-Spingarn Research Center, for safeguarding the past and giving us the threads to help weave this story; and to the New York University Special Collections Elmer Holmes Bobst Library for the original text of Dr. Henry Woodburn Chase’s opening ceremony address.
Thanks as well to Jake McKinney for refining the architectural drawings, and to Allayah Cherry and Tully Mahoney for their careful cataloging of images and persistence in tracking down copyrights that made the book possible. We are also grateful to Stacey N. Jones, our diligent technical editor.
Our heartfelt thanks go to the design and construction teams whose expertise, imagination, and dedication brought new life to a historic place:
Architecture and Interiors Page, now Stantec
Associate Architect and Historic Preservation R. McGhee & Associates
Historic Preservation EHT Traceries
Electrical and Fire Protection Page, now Stantec
Mechanical and Plumbing
Classic Heating & Cooling, Metropolitan Engineering
Structural Engineering SK&A Structural Engineers
Audiovisual and IT
Convergent Technologies Design Group
Sustainability Page, now Stantec
Specifications Rosa D. Cheney LLC
Envelope Consultant Wiss, Janney, Elstner Associates
Stormwater Management VIKA Capitol LLC
Contractor Gilbane Building Company
Photography Anice Hoachlander Photography
And finally, thank you to all those who came before us: the students, scholars, and stewards of Frederick Douglass Memorial Hall whose pursuit of excellence continues to shape the spirit of Howard University.
Gratefully,
Jennifer Hebblethwaite
Dylan Jhirad
Marc Massay
Todd Ray
With Sincere Thanks
Ronnie McGhee
FAIA, NCARB, LEED
We provide a special acknowledgment to Ronnie McGhee for his exceptional service to the Frederick Douglass Memorial Hall project among so many more and, more broadly, for a lifetime of contributions to the university as a student, professor, and practicing architect. For more than 30 years, Ronnie McGhee has shaped the built environment through his expertise in new construction, rehabilitation, and historic preservation, completing landmark projects such as Washington Harbor, the John Adams and Thomas Jefferson buildings of the US Library of Congress, and the awardwinning Whitelaw Hotel Apartments.
As an associate professor at Howard University for 16 years, Ronnie McGhee has mentored thousands of architectural students, instilling the values of excellence, civic responsibility, and professional rigor. Many of the architectural luminaries who have guided campus planning, design, and construction trace their education to his mentorship, reflecting a living legacy of Howard University School of Architecture principles.
Through his professional practice as principal of R. McGhee & Associates, his service on public boards, and his advocacy for emerging professionals, Ronnie McGhee has consistently leveraged his expertise to expand opportunities for African American architects and the broader community. Elevated to the College of Fellows of the American Institute of Architects (FAIA), his career exemplifies the integration of scholarship, practice, and civic engagement that defines Howard University’s architectural heritage.
Jon Seavey
March 9, 1959 – April 9, 2022
Jon Seavey was among the region’s most accomplished and respected construction leaders, admired for his expertise, integrity, and unwavering dedication. As a senior executive at Gilbane Construction, Jon Seavey guided some of Howard University’s most significant building projects with care and precision. His work aligned closely with Howard’s mission, advancing facilities that support academic excellence while creating opportunities for African American and minority contractors throughout the region.
Over decades, Jon Seavey built a career distinguished by his command of complex construction management and his ability to lead teams through multimillion-dollar projects. At Howard, his stewardship of campus development reflected not only technical mastery but also a deep understanding of the institution’s vision. His projects were investments in Howard’s future and in the broader community it serves.
Jon Seavey also championed mentorship, cultivating the next generation of construction professionals and opening doors for those historically excluded from the industry. His colleagues valued his sharp negotiation skills, social sensibility, and dry wit, qualities that made him a trusted leader and a respected partner.
The Frederick Douglass Memorial Hall renovation and modernization project was Jon Seavey’s last with Howard University. Jon’s passing leaves a profound void. His contributions to Howard and to the region’s construction community will endure as a testament to his dedication and vision.

Frederick
Douglass Memorial Hall

This volume is the first in a series conceived by the Howard University Office of Real Estate Development and Capital Asset Management (REDCAM) to illuminate the University’s diverse architectural heritage, its social context, and its ongoing relationship to community and change.