Expression Through Emotion - Design Portfolio By David Gomez

Page 1

E M O T I O N through E X P R E S S I O N SELECTED WORKS of DAVID GOMEZ 2 0 1 7 - 2 0 2 3

In

memory of Michael Wayne Kuenstle

C O N T E N T S

May 2019

Advanced Architectural Design Studio II Critics: Mark McGlothlin & Bradley Walters

December 2019

Advanced Architectural Design Studio III Critics: Jeff Carney & Sarah Gamble

MICRO-GRIDS FOR SISTER CITIES

May 2019

African Architecture Seminar Critic: James Inedu-George

WEAVING PATH

May 2017

Advanced Topics In Digital Architecture

Critic: Lee-Su Huang

CHARLESTON INSTITUTE OF MODERN DANCE

May 2017

Architectural Design Studio VI

Critic: Michael Kuenstle

4
URBAN CATALYST
CALLIE MORGAN JUNCTION Gatewood, Seattle, WA January 2023 StoryBuilt Design Team SPATIAL PROFESSIONAL CHAPTER II CHAPTER I 28 08 44 60 68 72 EPHEMERAL RUINS

PRISMATIC INTERVAL ·

December 2018

Advanced Architectural Design Studio I

Critics: Lee-Su Huang & Lisa Huang

CATALYST VORTEX

May 2017

Advanced Topics In Digital Architecture Critic: Lee-Su Huang

ALTERED VESSELS

May 2017

Advanced Topics In Digital Architecture Critic: Lee-Su Huang

VESTIGES OF GRIEF: AN IMPETUS OF HOPE

May 2020

Master’s Research Project Thesis

Critics: Sarah Gamble & Bradley Walters

5 CHAPTER III CHAPTER IV FABRICATION PUBLICATION 84 86 90 82
FIGURA LUMINIS
6

CHAPTER I

PROFESSIONAL

/prəˈfeSH(ə)nəl/ · adjective design relating to the provision of architectural services under a professional practice.

7

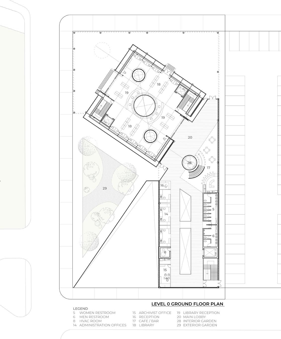
GATEWOOD, SEATTLE, WA

CONSTRUCTION PROJECT NUMBER 6775268-CN

Callie includes 3 multi-family buildings with a total of 34 stacked residential units and 14 parking stalls in the heart of West Seattle.

This multi-family residential project contains a mix of dwelling types including energy-efficient, 1 bedroom, 2 bedroom, and 3 bedroom units. The proposed construct incorporates both private and shared exterior amenity spaces for its residents.

The main objective of the project seeks to generate a contextually appropriate densification that responds to the scale of surrounding neighborhoods, adding to the urban edge and streetscape of an evolving urban fabric in the Morgan Junction area.

CALLIE MORGAN JUNCTION
8
SHEET # SHEET NAME A205 INTERIOR ELEVATIONS-UNIT C01 A206 INTERIOR ELEVATIONS-UNIT C02 A207 INTERIOR ELEVATIONS-UNIT C01 HC SHEET # SHEET NAME BE807 AIR BARRIER DIAGRAMS BE808 AIR BARRIER DIAGRAMS BE809 AIR BARRIER DIAGRAMS DESIGN TEAM STORYBUILT
Rendering Top Project Massing Diagram Left Material Palette References Right BOX RIB ALUMINUM PANEL BOX RIB ALUMINUM PANEL STAINED CEDAR HORIZONATL PLANK FIBER CEMENT PANEL 9 6314 41st Ave. SW Seattle, Washington 98136 BLDG. A BLDG. B BLDG. C KEY PLAN STAMP SDCI STAMP MORGAN JUNCTION RESIDENCES 50% CD ISSUE DATE: 11.23.2022 SHEET # SHEET NAME M00 1 COVER SHEET AND GENERAL INFORMATION M1A1 HVAC PLAN LEVEL 1 BLDG A M1A2 HVAC PLAN LEVEL 2 BLDG A January 2023
Site Plan Project Technical Composition Spatial Distribution Callie · Morgan Junction · Gatewood, Seattle, WA 10
Rendered Site Plan Project Experiential Composition Design Scheme StoryBuilt · January 2023 11

BUILDING C

BUILDING C

CEMENTITIOUS SIDING 60 " F E N C E AIR INTAKE TRASH ENCLOSURE STAINED CEDAR HORIZONTAL PLANK SIDING 1 C01 LEVEL - 1 262.00' C02 LEVEL 274.65' C03 LEVEL 284.31' C04 LEVEL 294.56' C05 ROOF 302.90' 2 '4 " 84 " 1 03 " 98 " 1 27 3 / 4 " BLDG. C AVG. GRADE 261.81' BLDG. C MAX HEIGHT 311.81' PROPERTY LINE CEMENTITIOUS SIDING CS-1 STAINED CEDAR HORIZONTAL PLANK SIDING WD-1
METAL AWNING C T.O. ROOF PARAPET 305.23' 7' - 9" ENTRY LIGHT AND SCONCE, W6 W8 W20 W27 W26 W11 W1 W8 W20 W20 W19 W6 W1 4 32 3 / 4 " 5 0 '0 " PREFINISHED ALUMINUM BOX RIB PANEL MTL-1 W11 W16 W17 THROUGH WALL FLASHING ALIGNED AT WINDOW HEAD FLASHING NORTH ELEVATION DOCUMENTATION 1/8" = 1'-0" 2 WEST ELEVATION DOCUMENTATION C01 LEVEL - 1 262.00' C02 LEVEL 274.65' C03 LEVEL 284.31' C04 LEVEL 294.56' C05 ROOF 302.90' 24 " 84 " 1 03 " 98 " 1 27 3 / 4 " BLDG. C AVG. GRADE 261.81' BLDG. C MAX HEIGHT 311.81' 7 STAINED CEDAR HORIZONTAL PLANK SIDING WD-1 CEMENTITIOUS SIDING CS-1 PREFINISHED ALUMINUM BOX PANEL MTL STAINED CEDAR HORIZONTAL
16'-0 7/8" 7'-9" 5 0 '0 " C T.O. ROOF PARAPET 305.23' W20 W27 W26 W11 W8 W20 W20 W19 W6 W11 W16 W17 2x4 WALLS AT VERTICAL CEMENTITIOUS SIDINGS B06 ROOF 306.50' 2 3 1 4 " 2 '6 " BLDG. B MAX. HEIGHT 309.08' CEMENTITIOUS SIDING PREFINISHED ALUMINUM BOX RIB PANEL MTL-1 CEMENTITIOUS PANEL CP-1 PROPERTY LINE 16'-0" 16'-0" 16'-0 7/8" B T.O. ROOF PARAPET 309.00' W3 W12 W3 W12 W3 W12 W3 W12 W3 W12 W12 W12 W12 W12 Front Elevation Project Technical Composition Façade Design Scheme
12
Callie · Morgan Junction · Gatewood, Seattle, WA

EXTERIOR MATERIAL KEY

CP-1CEMENTITIOUS PANEL

CS-1CEMENTITIOUS SIDING

MTL-1PREFINISHED ALUMINUM BOX RIB PANEL

MTL-2PREFINISHED ALUMINUM BOX RIB PANEL

WD-1STAINED CEDAR HORIZONTAL PLANK SIDING

WDW-1COMPOSITE FRAME UNIT WINDOW

BUILDING A

A01 LEVEL 259.00' A02 LEVEL 269.83' A03 LEVEL 279.50' A04 LEVEL 289.17' A05 LEVEL 299.42' 2 3 4 5 1 1 03 " 98 " 98 " 1 01 0 " BLDG. A AVG. GRADE 258.49' BLDG. A MAX HEIGHT 308.99' 6 BOX RIB PANEL MTL-1 HORIZONTAL PLANK SIDING WD-1 CEMENTITIOUS PANEL CP-1 CEMENTITIOUS SIDING CS-1
PROPERTY LINE 16'-0" 16'-0" 16'-0" 16'-0" 16'-0 7/8" 4'-11 3/8" A LOW T.O. PARAPET 305.75' A HIGH T.O. PARAPET 309.00' 33 " 64 " 5 06 " SCONCE AND UNIT ADDRESS SCUPPER AND DOWNSPOUT, TYP. W6 W6 W8 W6 W6 W8 W6 W6 W8 W6 W6 W8 W8 W6 W6 W1 W2 T W2 T W10 W1 W2 T W24 W23 W24 W23 W24 W23 W24 W23 W24 W23 W1 W2 T W1 W2 T W2 T W1 W11 W1 W2 T W2 T W2 T W2 T W1 W1 W1 W1 W10 W10 W10 W10 W11 W11 W11 W11 C05 24 " BLDG. C MAX HEIGHT 311.81' 6 PREFINISHED ALUMINUM BOX RIB PANEL MTL-1 CEMENTITIOUS SIDING CS-1 PROPERTY LINE 6'-3" 16'-0" C T.O. ROOF PARAPET 305.23' SCUPPER AND DOWNSPOUT, TYP. W12 1. ALL SIGNS AND PERMIT APPROVAL CODE OR ELEVATIONS SAFETY T 1/8" = 1'-0" 2 WEST ELEVATION_PRESENTATION
W24 T
Scheme
January 2023 13
Shaded Front Elevation Materiality Composition Façade Design
StoryBuilt ·
Plan Project Technical Composition Spatial Distribution Callie · Morgan Junction · Gatewood, Seattle, WA 14 REF WH W/D UP UP UP W/D REF WH DW W/D REF WH DW W/D REF WH DW W/D REF WH DW DN DN DN DN DN DN UP REF WH W/D DW DW MICRO UP UP A B C D E F G 2 A503 1 A603 PRIVATE PATIO PRIVATE PATIO PRIVATE PATIO PRIVATE PATIO PRIVATE PATIO PRIVATE PATIO 96'-1 3/4" UNIT C01 TYPE A UNIT C01 TYPE A UNIT C01 TYPE A UNIT C01 TYPE A UNIT C01 TYPE B UNIT C01 TYPE B A205 1 2 A205 5 1 A402 A402 A401 A401 264.40 263.90 263.60 263.00 262.50 262.00 264.40 264.40 264.40 264.40 264.40 15'-2" 16'-0" 16'-0" 16'-0" 16'-0" 16'-0" 11 3/4" 1'-0 3/4" R.O. 2'-6" 7" R.O. 4'-10" 3'-11 1/2" 4'-1 1/2" R.O. 2'-6" 7" R.O. 4'-10" 3'-11 1/2" 4'-1 1/2" R.O. 2'-6" 7" R.O. 4'-10" 3'-11 1/2" 4'-1 1/2" R.O. 2'-6" 7" R.O. 4'-10" 3'-11 1/2" 4'-1 1/2" R.O. 2'-6" 7" R.O. 4'-10" 3'-11 1/2" 4'-6" R.O. 2'-6" 6" R.O. 4'-10" 3'-9 1/2" 3'-1" 96'-1 3/4" PLANTER PLANTER PLANTER PLANTER PLANTER PLANTER PROPERTY LINE BEDROOM BATHROOM KITCHEN LIVING LIVING KITCHEN BEDROOM BATHROOM BATHROOM BATHROOM BATHROOM BATHROOM BEDROOM BEDROOM BEDROOM BEDROOM KITCHEN KITCHEN KITCHEN KITCHEN LIVING LIVING LIVING LIVING WA3 J4 J5 J4 J4 J5 J4 J4 J4 J5 J4 J4 J4 SD S/C SD S/C SD S/C SD S/C SD S/C SD S/C A207 1 A207 4 U12 U12 U12 U12 U12 U12 U12 U12 U12 U12 U12 U5 U14 U6 U5 U5 U12 U11 U14 U8 U2 U7 U11 U14 U8 U2 U11 U14 U8 U2 U7 U11 U14 U8 U2 U7 U5 U14 U6 U5 U5 U7 J5 J4 10'-10" J5 J4 J5 J5 J5 C6 C6 C6 C6 C6 C6 C6 C6 C6 C6 C6 C6 C6 C6 C6 C6 W25 W6 W25 W6 W25 W6 W25 W6 W25 W6 W25 W6 W17 19 -2 R O 5 -0 11 -10 WA3 WA4 WA3 ALL IN ONE COMBO WASHER AND DRYER ALL IN ONE COMBO WASHER AND DRYER WA3 36 -0 2'-10" 3'-10" 5'-1" 6'-1" 3'-11" 1'-11 1/2" 3'-2 1/2" 3'-7 1/2" 3 -8 1 2 8 -4 2 -4 1 2 5 -1 1/2 2'-2" 2'-9 3/8" 3'-10" 5'-1" 6'-2 3/8" 3'-11" 1'-11 1/2" 3'-2 1/2" 3'-7 1/2" 3 -8 1 2 8 -4 2 -4 1 2 5 -1 1 2 2'-2" 2'-10" 3'-10" 5'-1" 6'-1" 3'-11" 1'-11 1/2" 3'-2 1/2" 3'-7 1/2" 3 -8 1 2 8 -4 2 -4 1 2 5 -1 1 2 2'-2" 2'-10" 3'-10" 5'-1" 6'-1" 3'-11" 1'-11 1/2" 3'-2 1/2" 3'-7 1/2" 3 -8 1 2 8 -4 2 -4 1 2 5 -1 1 2 2'-2" 6'-10 1/2" 3'-3 1/2" 1'-11 1/2" 3'-2 1/2" 3 -10 1 2 8 -4 2 -4 1 2 5 -1 1 2 3'-3 1/2" 3'-8 1/2" 4'-8 1/2" 3'-7 1/2" 2'-5" 1'-4" 1'-9 1/2" 6'-10 1/2" 3'-3 1/2" 1'-11 1/2" 3'-1 7/8" 3 -10 1 2 8 -4 2 -4 1 2 5 -1 1 2 3'-3 1/2" 3'-8 1/2" 4'-8 1/2" 3'-7 1/2" 2'-5" 1'-4" 1'-9 1/2" C4 C4 A603 2 A603 2 A603 2 A603 2 A603 A603 4 A503 RECURIO BIO RETENTION PLANTER, POWDER COATED ALUMINUM WITH WIRE MESH SCREEN, TYP. RECURIO BIO RETENTION PLANTER, POWDER COATED ALUMINUM, TYP. HOSE BIB HOSE BIB A301 A301 2 A302 1 A313 PLANTER PLANTER PLANTER PLANTER PLANTER 1. DO NOT SCALE PLANS 2. ALL DIMENSIONS SHOWN ARE TO FACE OF STUD, U.N.O. 3. FURNITURE SHOWN FOR REFERENCE ONLY. 4. ALL WALLS TO BE FULL HEIGHT TO UNDERSIDE OF STRUCTURE, UNLESS NOTED OTHERWISE. 5. V.I.F. ALL STAIR RISER HEIGHTS. 6. SLOPE ALL DECKS, WALKWAYS AND CANOPIES AWAY FROM BUILDING, 2% MIN., U.N.O. 7. PROVIDE 1/2" MAX. THRESHOLD AT ALL DOORS, U.N.O. 8. VERIFY ALL WINDOW AND DOOR R.O. DIMENSIONS WITH MANUFACTURER PRIOR TO FRAMING. CONTACT ARCHITECT IN CASE OF DISCREPANCY. 9. INTERIOR DOOR AND CASED OPENING JAMBS ADJACENT TO WALL INTERSECTIONS TO BE FRAMED 4 1/2" FROM THE ADJACENT WALL U.O.N. FLOOR PLAN GENERAL NOTES SD S/C LEGEND SMOKE DETECTOR SMOKE DETECTOR & CARBON MONOXIDE ALARM SAFETY GLAZING T StoryBuilt holds all rights of copyright drawings. Any reproductions, alteration, modifications, usage or incorporation documents may not occur without written permission of StoryBuilt. © 2022 StoryBuilt dba PSW Homes, 6314 41st Ave. SW BLDG. A BLDG. BLDG. C KEY PLAN ISSUES SHEET INFORMATION STAMP 900 S. 1st Austin, storybuilt.com SDCI STAMP MORGAN JUNCTION RESIDENCES FLOOR PLAN LEVEL BLDG. C A121 1/4" = 1'-0" 1 BLDG. C LEVEL 1 FLOOR PLAN 3BUILDING PERMIT 4100% DD 7BP CORRECTION #1 850% CD
Building C - Level 1 Floor

Building C - Level 1 Reflective Ceiling Plan Project Technical Composition RCP Scheme

StoryBuilt · January 2023 15 WH WH WH WH WH WH A B C D E F G CL EQ EQ LC EQ EQ LC LC 8'-0" 3'-10" 3'-4" CL CL 3 -1 1 2 6 -3 3 -1 CL EQ EQ LC 1'-4" C EQ EQ LC EQ EQ CL CL CL 5 -5 1 8 5 -0 2 -4 SD S/C SD S/C SD S/C SD S/C SD S/C SD S/C F01 F01 F06 F03 F01 F01 F01 F01 F01 F04 F09 F09 F01 F01 F03 F06 F01 F01 F01 F01 F01 F04 F01 F01 F03 F06 F01 F01 F01 F01 F01 F04 F09 F09 F09 F09 F09 F01 F01 F03 F06 F01 F01 F01 F01 F01 F04 F09 F09 F09 F01 F01 F01 F01 F03 F03 F06 F06 F01 F01 F01 F01 F09 F09 C EQ EQ F04 F04 F01 F01 F01 F01 F01 F01 F01 F01 F01 F01 F01 F01 F01 F01 F01 F01 F05 F05 FA2 F05 F05 F05 F05 F05 F05 F05 F05 F05 F05 F05 F05 F05 F05 F05 F05 F05 F05 F05 F05 F05 RCP NOTES: 1. SEE SHEET G002 FOR ALL MOUNTING HEIGHTS FOR ALL FINISH MATERIALS, TRIM, AND ELECTRICAL FIXTURES. 2. REVIEW LIGHTING LAYOUT PRIOR TO FRAMING FLOOR AND CEILING JOISTS. WHERE LIGHTING CONFLICTS WITH FRAMING MEMBERS, REVIEW WITH PSW PRIOR TO MOVING FIXTURES. 3. FIXTURES CENTERED ON ROOMS & HALLWAYS UNLESS NOTED OTHERWISE 4. 240V RECEPTORS REQUIRED AT OVEN & MICRO/OVEN APPLIANCES. SEE INT. ELEVATIONS FOR MOUNTING HEIGHTS 5. FIXTURES CALLED OUT AS "WM" SIGNIFIES WALL MOUNTED 6. AT AC UNIT, PROVIDE RECEPTACLE ON DEDICATED 15 AMP GFCI BREAKER. WATER HEATER TO BE PLACED ON SAME BREAKER. SEE ARCHITECTURAL SITE PLAN FOR AC LOCATION PER UNIT. 7. CARBON MONOXIDE ALARMS PLACED OUTSIDE OF EACH SLEEPING AREA IN THE IMMEDIATE VICITNY OF THE BEDROOMS AND ON EACH LEVEL PURSUANT TO SFC SECTION 915.1.1. REFLECTED CEILING PLAN LEGEND F01 4"RECESSED DOWNLIGHT F01F FIRE RATED F01W WET RATED F02 4"RECESSED DOWNLIGHT F02F FIRE RATED F02W WET RATED F04 VANITY SCONCE F05 UNDER CABINET LIGHT F06 SURFACE MOUNTED LINEAR F07 CEILING PENDANT LIGHT F09 EXTERIOR SCONCE SD S/C SMOKE DETECTOR SMOKE DETECTOR & CARBON MONOXIDE ALARM FURR DOWN CEILING F03 SURFACE MOUNTED DOWNLIGHT StoryBuilt holds all rights of copyright drawings. Any reproductions, alteration, modifications, usage or incorporation documents may not occur without written permission of StoryBuilt. © 2022 StoryBuilt dba PSW Homes, 6314 41st Ave. SW BLDG. A BLDG. BLDG. C KEY PLAN ISSUES SHEET INFORMATION STAMP 900 S. 1st Austin, storybuilt.com SDCI STAMP MORGAN JUNCTION RESIDENCES REFLECTED CEILING PLAN -BLDG C LEVEL A170 1/4" = 1'-0" 1 C01 LEVEL 3BUILDING PERMIT 4100% DD 7BP CORRECTION #1 850% CD C D E F G CL EQ CL EQ CL EQ EQ CL CL 20 70 20 CL EQ EQ S/C S/C SD SD S/C S/C SD SD S/C SD SD S/C S/C SD SD S/C S/C SD SD CL 20 1 2 "1 CL E Q E Q CL 30 1 2 20 CL CL CL E Q E Q CL 20 " CL CL 21 " 62 2' 8" F06 F06 F06 F06 F06 F06 F03 F04 F01 F01 F03 F03 F03 F03 F04 F03 F03 F03 F04 F01 F01 F03 F03 F03 F01 F01 F01 F01 F01 F01 F01 F01 F01 F01 F01 F01 F01 F01 F01 F01 F01 F01 F01 F01 F01 S/C F06 F06 F03 F04 F01 F01 F03 F03 F03 F01 F01 F01 F01 F01 F01 F01 F06 F06 F03 F04 F01 F01 F03 F03 F03 F01 F01 F01 F01 F01 F01 F01 OVEN & MICRO/OVEN APPLIANCES. SEE INT. ELEVATIONS FOR MOUNTING HEIGHTS 5. FIXTURES CALLED OUT AS "WM" SIGNIFIES WALL MOUNTED 6. AT AC UNIT, PROVIDE RECEPTACLE ON DEDICATED 15 AMP GFCI BREAKER. WATER HEATER TO BE PLACED ON SAME BREAKER. SEE ARCHITECTURAL SITE PLAN FOR AC LOCATION PER UNIT. 7. CARBON MONOXIDE ALARMS PLACED OUTSIDE OF EACH SLEEPING AREA IN THE IMMEDIATE VICITNY OF THE BEDROOMS AND ON EACH LEVEL PURSUANT TO SFC SECTION 915.1.1. REFLECTED CEILING PLAN LEGEND F01 4"RECESSED DOWNLIGHT F01F FIRE RATED F01W WET RATED F02 4"RECESSED DOWNLIGHT F02F FIRE RATED F02W WET RATED F04 VANITY SCONCE F05 UNDER CABINET LIGHT F06 SURFACE MOUNTED LINEAR F07 CEILING PENDANT LIGHT F09 EXTERIOR SCONCE SD S/C SMOKE DETECTOR SMOKE DETECTOR & CARBON MONOXIDE ALARM FURR DOWN CEILING F03 SURFACE MOUNTED DOWNLIGHT StoryBuilt holds all drawings. Any modifications, usage documents may written permission © 2022 StoryBuilt BLDG. C KEY PLAN ISSUES SHEET INFORMATION STAMP SDCI STAMP MORGAN JUNCTION RESIDENCES REFLECTED PLAN -BLDG
3BUILDING PERMIT 4100% DD 7BP CORRECTION 850% CD
A171
Spatial Distribution Callie · Morgan Junction · Gatewood, Seattle, WA 16 W/D W/D W/D WH WH WH DN UP UP DN DN UP W/D WH W/D WH DN UP W/D WH UP DN DN UP A B C D E F G 1 A603 1 A603 96'-1 3/4" UNIT C02 UNIT C02 UNIT C02 UNIT C02 UNIT C02 UNIT C02 A206 A402 A402 1 A401 1 A401 36 -0 6'-0 1/2" R.O. 8'-0" 8'-0" R.O. 8'-0" 8'-0" R.O. 8'-0" 8'-0" R.O. 8'-0" 8'-0" R.O. 8'-0" 8'-0" R.O. 9'-6" 7 1/4" 96'-1 3/4" 7 R O 2 -6 1 -9 R O 6 -6 7 -10 R O 5 -0 4 -3 R O 6 -6 1 -1 36 -0 4 15 -1 1 2 R O 3 -0 17 -10 1/2 W26 W6 W23 W23 W23 W23 W23 W22 W20 W20 W9 T W22 W22 W22 W22 PROPERTY LINE BENT STEEL AWNING TYP. BENT STEEL AWNING TYP. 5'-7" R.O. 7'-0" 9'-0" R.O. 7'-0" 9'-0" R.O. 7'-0" 9'-0" R.O. 7'-0" 9'-0" R.O. 7'-0" 9'-0" R.O. 7'-0" 3'-6 3/4" W22 BEDROOM BEDROOM BEDROOM BEDROOM BEDROOM BEDROOM BATHROOM BATHROOM BATHROOM BATHROOM BATHROOM BATHROOM BEDROOM BEDROOM BEDROOM BEDROOM BEDROOM BEDROOM CORRIDOR CORRIDOR CORRIDOR CORRIDOR CORRIDOR CORRIDOR WA1 WA1 WA1 WA1 5' 3" J4 J4 J4 SD SD SD SD SD SD SD SD SD SD SD SD S/C S/C S/C S/C S/C S/C S/C S/C S/C S/C U2 U3 U3 U14 U6 U3 U2 U3 U3 U14 U6 U3 U2 U3 U3 U14 U6 U3 U6 U6 U6 U3 U3 U3 U2 U3 U3 U14 U6 U3 U6 U3 J4 J4 16'-0 3/8" 1" 15'-11" 1" 15'-11" 1" 15'-11" 1" 15'-11" 1" 16'-0 3/8" C6 C6 C6 C6 C6 C6 C6 C6 C6 C6 C6 C6 C6 C6 C6 C6 C6 C6 C6 C6 W16 WA7 11 -7 3 -10 1 2 3 -2 5 -11 10 1/2" 2'-9 1/2" 3'-9" 3'-2" 5 -0 1 2 5 -1 1 2 11 -7 3 -10 1 2 3 -2 5 -11 10 1/2" 2'-9 1/2" 3'-9" 3'-2" 5 -0 1 2 5 -1 1 2 11 -7 3 -10 1 2 3 -2 5 -11 10 1/2" 2'-9 1/2" 3'-9" 3'-2" 5 -0 1 2 5 -1 1 2 11 -7 3 -10 1 2 3 -2 5 -11 10 1/2" 2'-9 1/2" 3'-9" 3'-2" 5 -0 1 2 5 -1 1 2 1'-8" 1'-8" U2 U3 U3 U14 U6 U3 U6 U3 C6 C6 C6 C6 C6 11 -7 3 -10 1 2 3 -2 5 -11 10 1/2" 2'-9 1/2" 3'-9" 3'-2" 5 -0 1 2 5 -1 1 2 1'-8" A603 A603 A603 A603 A603 A603 A603 A603 A603 A603 A603 A603 11 -7 3 -10 1 2 3 -2 5 -11 LC 10 1/2" 2'-7 3/4" 3'-10 3/4" 3'-1 3/8" 5 -0 1 2 5 -1 1 2 1'-8" U3 U14 U3 U6 U6 U3 U3 C6 C6 C6 C6 C6 G012 G012 A503 A301 1 A301 A302 A313 1. DO NOT SCALE PLANS 2. ALL DIMENSIONS SHOWN ARE TO FACE OF STUD, U.N.O. 3. FURNITURE SHOWN FOR REFERENCE ONLY. 4. ALL WALLS TO BE FULL HEIGHT TO UNDERSIDE OF STRUCTURE, UNLESS NOTED OTHERWISE. 5. V.I.F. ALL STAIR RISER HEIGHTS. 6. SLOPE ALL DECKS, WALKWAYS AND CANOPIES AWAY FROM BUILDING, 2% MIN., U.N.O. 7. PROVIDE 1/2" MAX. THRESHOLD AT ALL DOORS, U.N.O. 8. VERIFY ALL WINDOW AND DOOR R.O. DIMENSIONS WITH MANUFACTURER PRIOR TO FRAMING. CONTACT ARCHITECT IN CASE OF DISCREPANCY. 9. INTERIOR DOOR AND CASED OPENING JAMBS ADJACENT TO WALL INTERSECTIONS TO BE FRAMED 4 1/2" FROM THE ADJACENT WALL U.O.N. FLOOR PLAN GENERAL NOTES SD S/C LEGEND SMOKE DETECTOR SMOKE DETECTOR & CARBON MONOXIDE ALARM SAFETY GLAZING T StoryBuilt holds all rights of copyright drawings. Any reproductions, alteration, modifications, usage or incorporation documents may not occur without written permission of StoryBuilt. © 2022 StoryBuilt dba PSW Homes, 6314 41st Ave. SW BLDG. A BLDG. BLDG. C KEY PLAN ISSUES SHEET INFORMATION STAMP 900 S. 1st Austin, storybuilt.com SDCI STAMP MORGAN JUNCTION RESIDENCES FLOOR PLAN LEVEL BLDG. C A122 1/4" = 1'-0" 1 BLDG. C LEVEL 2 FLOOR PLAN 3BUILDING PERMIT 4100% DD 7BP CORRECTION #1 850% CD
Building C - Level 2 Floor Plan Project Technical Composition
Unit C01 - Bathrom & Kitchen Interior Elevations Project Technical Composition Spatial Distribution Callie · Morgan Junction · Gatewood, Seattle, WA 18 REF WH DW BLOCKING FOR GRAB TYP. PF-05 PF-06 PF-10 TA03 BLOCKING FOR GRAB BARS 30 16 3" 1'-6" 2'-0" 3 1/4" 1'-6" 2'-0" 2 3/4" AP-06 CT-K 1 1/2" 2'-0" 3" 1'-0" 3/4" 2'-3" 1 1/2" 1'-0" 3/4" AP-02 CAB-K 30 16 30 3 1 4 A205 1 2 A205 4 5 SB Project No: StoryBuilt holds all rights of copyright to these drawings. Any reproductions, alteration, modifications, usage or incorporation into other documents may not occur without the prior written permission of StoryBuilt. © 2022 StoryBuilt dba PSW Homes, LLC 6314 41st Ave. SW Seattle, Washington 98136 BLDG. A BLDG. B BLDG. C KEY PLAN ISSUES SHEET INFORMATION STAMP 900 S. 1st St., Suite 110 Austin, Texas 78704 512.289.1313 storybuilt.com SDCI STAMP MORGAN JUNCTION RESIDENCES 1905 INTERIOR ELEVATIONS-UNIT C01 A205 1/2" = 1'-0" 5 UNIT C01-BATH ELEV 2 1/2" = 1'-0" 2 UNIT C01-KITCHEN ELEV 2 1/2" = 1'-0" 3 UNIT C01 -KITCHEN 1/2" = 1'-0" 6 UNIT C01 -BATHROOM 3BUILDING PERMIT 06.13.2022 7BP CORRECTION #1 11.16.2022 850% CD 11.22.2022 1" 1'-0" 2'-3" 1'-0" CL 6 31 0 21 PF-05 PF-06 TA10 TA01 CAB-B CT-B F04 PF-10 TA02 PROVIDE BLOCKING FOR FUTURE GRAB BARS, TYP. PF-04 3" 1" 36 1" 1'-0" 2'-6" 2'-6" 2'-6" 1'-6" 2'-0" 3 1/4" 1" 1'-0" 2'-6" 2'-6" 2'-6" 1'-6" 2'-0" 2 3/4"0 AP-03 AP-06 AP-02 CT-K CAB-K AP-04 PF-02M 1 1/2" 80 3 6 " 1/2" = 1'-0" 4 UNIT C01-BATH ELEV 1 5 UNIT 1/2" = 1'-0" 1 UNIT C01-KITCHEN ELEV 1 2 UNIT REF 2'-3" 1'-0" PF-05 PF-06 TA10 TA01 CAB-B CT-B F04 PF-10 PROVIDE BLOCKING FOR FUTURE GRAB BARS, TYP. PF-04 PF-05 PF-06 PF-10 TA03 BLOCKING FOR GRAB BARS 36 1" 1'-0" 2'-6" 2'-6" 2'-6" 1'-6" 2'-0" 3 1/4" AP-04 PF-02M 2'-3" 1 1/2" 1'-0" 3/4" 36 A205 1 2 A205 4 5 1'-0" C01-BATH ELEV 1 1/2" = 1'-0" 5 UNIT C01-BATH ELEV 2 1/2" = 1'-0" 6 UNIT C01 -BATHROOM REF WH DW BLOCKING FOR GRAB BARS 3166 A205 1 2 A205 4 5 SB Project No: StoryBuilt holds all rights of copyright to these drawings. Any reproductions, alteration, modifications, usage or incorporation into other documents may not occur without the prior written permission of StoryBuilt. © 2022 StoryBuilt dba PSW Homes, LLC 6314 41st Ave. SW Seattle, Washington 98136 BLDG. A BLDG. B BLDG. C KEY PLAN ISSUES STAMP 900 S. 1st St., Suite 110 Austin, Texas 78704 512.289.1313 storybuilt.com SDCI STAMP MORGAN JUNCTION RESIDENCES 1905 INTERIOR ELEVATIONS-UNIT C01 A205 1/2" = 1'-0" 3 UNIT C01 -KITCHEN 1/2" = 1'-0" 6 UNIT C01 -BATHROOM 3BUILDING PERMIT 06.13.2022 850% CD 11.22.2022 DW 1" 1'-0" 2'-3" 1'-0" CL 6 31 2 21 0 PF-05 PF-06 TA10 TA01 CAB-B CT-B F04 PF-10 TA02 PROVIDE BLOCKING FOR FUTURE GRAB BARS, TYP. PF-04 PF-05 PF-06 PF-10 TA03 BLOCKING FOR GRAB BARS 30 16 31" 1'-0" 2'-6" 2'-6" 2'-6" 1'-6" 2'-0" 3 1/4" 1" 1'-0" 2'-6" 2'-6" 2'-6" 1'-6" 2'-0" 2 3/4" 80 AP-03 AP-06 AP-02 CT-K CAB-K AP-04 PF-02M 1 1/2" 2'-0" 3" 1'-0" 3/4" 2'-3" 1 1/2" 1'-0" 3/4" AP-02 CAB-K 30 16 30 3 1 4 A205 4 5 1/2" = 1'-0" 4 UNIT C01-BATH ELEV 1 1/2" = 1'-0" 5 UNIT C01-BATH ELEV 2 1/2" = 1'-0" 1 UNIT C01-KITCHEN ELEV 1 1/2" = 1'-0" 2 UNIT C01-KITCHEN ELEV 2 1/2" = 1'-0" 3 UNIT C01 -KITCHEN 1/2" = 1'-0" 6 UNIT C01 -BATHROOM DW 1" 1'-0" 2'-3" 1'-0" 21 0 PF-05 PF-06 TA01 CAB-B CT-B TA02 PROVIDE BLOCKING FOR FUTURE GRAB BARS, TYP. PF-05 PF-06 BLOCKING FOR GRAB BARS 3" 136 1" 1'-0" 2'-6" 2'-6" 2'-6" 1'-6" 2'-0" 3 1/4" 1" 1'-0" 2'-6" 2'-6" 2'-6" 1'-6" 2'-0" 2 3/4"0 AP-03 AP-06 AP-02 CT-K CAB-K AP-04 PF-02M 1 1/2" 2'-0" 3" 1'-0" 3/4" 2'-3" 1 1/2" 1'-0" 3/4" AP-02 CAB-K 3136 80 3 6 " A205 1 2 1/2" = 1'-0" 4 UNIT C01-BATH ELEV 1 1/2" = 1'-0" 5 UNIT C01-BATH ELEV 2 1/2" = 1'-0" 1 UNIT C01-KITCHEN ELEV 1 1/2" = 1'-0" 2 UNIT C01-KITCHEN ELEV 2 1/2" = 1'-0" 3 UNIT C01 -KITCHEN 1/2" = 1'-0" 6 UNIT C01 -BATHROOM
Unit C02 - Bathrom & Kitchen Interior Elevations Project Technical Composition Spatial Distribution StoryBuilt · January 2023 19 PF-05 PF-11 TA03 5 1" 2'-3" 1'-0" 2'-3" CL 60 2 21 0 PF-05 PF-06 CT-B TA01 CAB-B TA02 PF-10 F04 F04 PF-04 PF-04 PF-05 PF-06 PF-10 TA03 A206 1 21 2 1" 1'-0" 2'-9" 1'-0" PF-05 TA01 CT-B CAB-B 1/2" = 1'-0" 5 UNIT C02-BATH 1 ELEV 1 1/2" = 1'-0" 6 UNIT C02 -BATHROOM 2 1/2" = 1'-0" 1 UNIT C02 -BATH ELEV 1 1/2" = 1'-0" 2 UNIT C02 -BATH ELEV 2 1/2" = 1'-0" 3 UNIT C02 -BATHROOM 1 1/2" = 1'-0" 4 UNIT C02-BATH 1 ELEV WH REF DW0 AP-01 CAB-K CT-K 1/2" 1'-3" 1'-6" 3'-0" 1/2" 2'-0" PF-02 800 136 1" 1'-3" 3'-3" 1 1/2" 2'-3" 2'-6" 2'-3" 2 1/4" 2 1/4" 2'-3" 2'-6" 2'-3" 1 1/2" 1 1/2" 3'-0" 1 1/2" 1'-3" 1" AP-02 AP-03 CAB-K CT-K AP-04 PF-05 PF-11 TA03 A206 5 4 A206 7 8 1" 2'-3" 1'-0" 2'-3" CL 30 21 0 PF-05 PF-06 CT-B TA01 CAB-B TA02 PF-10 F04 F04 PF-04 PF-04 PF-05 PF-06 PF-10 TA03 A206 1 2 CL 21 0 21 6 1" 1'-0" 2'-9" 1'-0" PF-05 TA10 TA01 CT-B CAB-B TA02 F04 PF-04 1/2" = 1'-0" 7 UNIT C02-KITCHEN ELEV 1 1/2" = 1'-0" 8 UNIT C02-KITCHEN ELEV 2 1/2" = 1'-0" 5 UNIT C02-BATH 1 ELEV 1 1/2" = 1'-0" 6 UNIT C02 -BATHROOM 2 1/2" = 1'-0" 9 UNIT C02 -KITCHEN 1/2" = 1'-0" 1 UNIT C02 -BATH ELEV 1 1/2" = 1'-0" 2 UNIT C02 -BATH ELEV 2 1/2" = 1'-0" 3 UNIT C02 -BATHROOM 1 1/2" = 1'-0" 4 UNIT C02-BATH 1 ELEV WH REF DW 30 AP-01 CAB-K CT-K 1/2" 1'-3" 1'-6" 3'-0" 1/2" 2'-0" PF-020 30 166 1" 1'-3" 3'-3" 1 1/2" 2'-3" 2'-6" 2'-3" 2 1/4" 2 1/4" 2'-3" 2'-6" 2'-3" 1 1/2" 1 1/2" 3'-0" 1 1/2" 1'-3" 1" AP-02 AP-03 CAB-K CT-K AP-04 PF-05 PF-11 TA03 A206 5 4 A206 7 8 CL1 2 30 PF-05 TA10 TA01 CT-B CAB-B TA02 F04 PF-04 1/2" = 1'-0" 7 UNIT C02-KITCHEN ELEV 1 1/2" = 1'-0" 8 UNIT C02-KITCHEN ELEV 2 1/2" = 1'-0" 9 UNIT C02 -KITCHEN WH REF DW 3AP-01 CAB-K CT-K 1/2" 1'-3" 1'-6" 3'-0" 1/2" 2'-0" PF-020 3166 1" 1'-3" 3'-3" 1 1/2" 2'-3" 2'-6" 2'-3" 2 1/4" 2 1/4" 2'-3" 2'-6" 2'-3" 1 1/2" 1 1/2" 3'-0" 1 1/2" 1'-3" 1" AP-02 AP-03 CAB-K CT-K AP-04 PF-05 PF-11 TA03 A206 5 4 A206 7 8 CL 21 0 " 30 " PF-05 TA10 TA01 CT-B CAB-B TA02 F04 PF-04 1/2" = 1'-0" 7 UNIT C02-KITCHEN ELEV 1 1/2" = 1'-0" 8 UNIT C02-KITCHEN ELEV 2 1/2" = 1'-0" 9 UNIT C02 -KITCHEN WH REF DW 30 AP-01 CAB-K CT-K 1/2" 1'-3" 1'-6" 3'-0" 1/2" 2'-0" PF-02 830 16 31" 1'-3" 3'-3" 1 1/2" 2'-3" 2'-6" 2'-3" 2 1/4" 2 1/4" 2'-3" 2'-6" 2'-3" 1 1/2" 1 1/2" 3'-0" 1 1/2" 1'-3" 1" AP-02 AP-03 CAB-K CT-K AP-04 PF-05 PF-11 TA03 A206 5 4 A206 7 8 1" 2'-3" 1'-0" 2'-3" CL 60 21 0 PF-05 PF-06 CT-B TA01 CAB-B TA02 PF-10 F04 F04 PF-04 PF-04 PF-05 PF-06 PF-10 TA03 A206 1 2 CL 20 2 31 0 6 1" 1'-0" 2'-9" 1'-0" PF-05 TA10 TA01 CT-B CAB-B TA02 F04 PF-04 1/2" = 1'-0" 7 UNIT C02-KITCHEN ELEV 1 1/2" = 1'-0" 8 UNIT C02-KITCHEN ELEV 2 1/2" = 1'-0" 5 UNIT C02-BATH 1 ELEV 1 1/2" = 1'-0" 6 UNIT C02 -BATHROOM 2 1/2" = 1'-0" 9 UNIT C02 -KITCHEN 1/2" = 1'-0" 1 UNIT C02 -BATH ELEV 1/2" = 1'-0" 2 UNIT C02 -BATH ELEV 1/2" = 1'-0" 3 UNIT C02 -BATHROOM 1 1/2" = 1'-0" 4 UNIT C02-BATH 1 ELEV PF-05 PF-11 TA03 5 1" 2'-3" 1'-0" 2'-3" CL 30 21 PF-05 PF-06 CT-B TA01 CAB-B TA02 PF-10 F04 F04 PF-04 PF-04 PF-05 PF-06 PF-10 TA03 A206 1 2 21 0 2 1" 1'-0" 2'-9" 1'-0" PF-05 TA01 CT-B CAB-B 1/2" = 1'-0" 5 UNIT C02-BATH 1 ELEV 1 1/2" = 1'-0" 6 UNIT C02 -BATHROOM 2 1/2" = 1'-0" 1 UNIT C02 -BATH ELEV 1 1/2" = 1'-0" 2 UNIT C02 -BATH ELEV 2 1/2" = 1'-0" 3 UNIT C02 -BATHROOM 1 1/2" = 1'-0" 4 UNIT C02-BATH 1 ELEV
20
Building B - Section Perspective Project Experiential Composition Spatial Distribution Callie · Morgan Junction · Gatewood, Seattle, WA
StoryBuilt · January 2023 21
Building A - Section Perspective Project Experiential Composition Spatial Distribution

BUILDING C

BUILDING B

BUILDING C

BUILDING B

BUILDING B

B06 ROOF 306.50' B01 LEVEL 259.75' B02 LEVEL 265.25' BLDG. B AVG. GRADE 259.08' BLDG. B MAX. HEIGHT 309.08' COURTYARD PEDESTRIAN PATH
PROPERTY LINE UNIT B01 UNIT B02 UNIT B02 20' - 10" 17'30' - 11" 5 00 " UPPER FLOOR B T.O. ROOF PARAPET 309.00' RA1 29' - 10" B03 T.O. SUBFLOOR 278.15' B04 T.O. SUBFLOOR 287.81' B05 T.O. SUBFLOOR 298.06' B02 T.O. SUBFLOOR 269.15' 26 " 8 '5 1 / 4 " 1 03 " 9 '8 " 90 " 3 '1 0 3 / 4 " 56 " 5 00 " WA1 WA6 WA5 WA3 WA1 WA2 WA4 C6 C6 Stair FA5 Stair FA4 Stair FA4 Stair FA4 6 1/8" = 1'-0"
AT
A & B B06 ROOF 306.50' B01 LEVEL 259.75' B02 LEVEL 265.25' BLDG. B AVG. GRADE 259.08' BLDG. B MAX. HEIGHT 309.08' COURTYARD / PEDESTRIAN PATH
SECTION
BUILDING
PROPERTY LINE UNIT B01 UNIT B02 UNIT B02 20' - 10" 17' - 0" 30' - 11" 5 00 " UPPER FLOOR B T.O. ROOF PARAPET 309.00' RA1 29' - 10" B03 T.O. SUBFLOOR 278.15' B04 T.O. SUBFLOOR 287.81' B05 T.O. SUBFLOOR 298.06' B02 T.O. SUBFLOOR 269.15' 26 " 8 '5 1 / 4 " 1 03 " 9 '8 " 90 " 3 '1 0 3 / 4 " 56 " 5 00 " WA1 WA6 WA5 WA3 WA1 WA2 WA4 WA1 WA4 WA4 C6 C6 Stair FA5 Stair FA4 Stair FA4 Stair FA4 6 = 1'-0" SECTION AT BUILDING A & BB06 ROOF 306.50' B01 LEVEL 259.75' B02 LEVEL 265.25' BLDG. AVG. GRADE BLDG. MAX. PEDESTRIAN
PROPERTY LINE UNIT B01 UNIT B02 UNIT B02 20' 10" 17'11" 5 00 " UPPER FLOOR T.O. PARAPET 309.00' RA1 29' - 10" B03 T.O. SUBFLOOR 278.15' B04 T.O. SUBFLOOR 287.81' B05 T.O. SUBFLOOR 298.06' B02 T.O. SUBFLOOR 269.15' 2 '6 " 8 '5 1 4 " 1 03 " 9 '8 " 90 " 3 '1 0 3 / 4 " 56 " 5 00 " WA1 WA6 WA5 WA3 WA1 WA2 WA4 C6 C6 Stair FA5 Stair FA4 Stair FA4 Stair FA4 6 = SECTION AT A B B01 LEVEL 259.75' BLDG. B AVG. GRADE 259.08' 5 - WA5 Stair FA4 6
UNIT C01 UNIT C02 UNIT C02 8' - 9" 2 '4 " 85 1 / 4 " 1 0 '3 " 9 '8 " 1 16 1 / 2 " WA7 WA3 C6 C6 C6 WA4 WA1 WA2 Stair FA4 Stair FA4 Stair FA5 RA1 1/8" = 1'-0" SECTION AT BUILDING A & B B01 LEVEL 259.75' B02 LEVEL 265.25' BLDG. B AVG. GRADE 259.08' PEDESTRIAN PATH UNIT B01 UPPER FLOOR B02 T.O. SUBFLOOR 269.15' 9 31 0 3 / 4 " 56 " WA6 WA5 WA3 WA4 Stair FA4 6
UNIT C01 UNIT C02 UNIT C02 8' - 9" 2 '4 " 85 1 / 4 1 03 " 98 " 1 16 1 / 2 " WA7 WA3 C6 C6 C6 WA4 WA1 WA2 Stair FA4 Stair FA4 Stair FA5 RA1 1/8" = 1'-0" SECTION AT BUILDING A & B Building B - Cross Section Project Technical Composition Spatial Distribution Callie · Morgan Junction · Gatewood, Seattle, WA 22

BUILDING A

BUILDING A

BUILDING B

BUILDING A

BUILDING B

BUILDING B

BUILDING B

BUILDING B

A05 LEVEL 299.42' A06 LOW ROOF 303.42' A06 HIGH ROOF 306.92' BLDG. A AVG. GRADE 258.49' BLDG. A MAX HEIGHT 308.99' COURTYARD / PEDESTRIAN PATH
PROPERTY LINE UNIT A01 UNIT A01 UNIT A02 UNIT A02 20' - 10" 17' - 0" 5 06 " A HIGH T.O. PARAPET 309.00' A01-2 LEVEL 259.58' RA1 RA1 5' - 11" A04 T.O. SUBFLOOR 289.06' A02 T.O. SUBFLOOR 269.73' A03 T.O. SUBFLOOR 279.40' 2 '1 " 36 " 40 " 1 04 1 / 4 " 98 " 9 '8 " 1 01 3 / 4 " WA3 WA1 WA1 WA4 WA4 WA5 WA7 WA7 WA2 C6 Stair FA5 Stair FA4 Stair FA4 A501 4 2 3 4 5 1 6
A05 LEVEL 299.42' A06 LOW ROOF 303.42' A06 HIGH ROOF 306.92' BLDG. A AVG. GRADE 258.49' BLDG. A MAX HEIGHT 308.99' / PATH
PROPERTY LINE UNIT A01 UNIT A01 UNIT A02 UNIT A02 0" 5 06 " A HIGH T.O. PARAPET 309.00' A01-2 LEVEL 259.58' RA1 RA1 5' - 11" A04 T.O. SUBFLOOR 289.06' A02 T.O. SUBFLOOR 269.73' A03 T.O. SUBFLOOR 279.40' 2 '1 " 36 " 40 " 1 04 1 / 4 " 98 " 9 '8 " 1 01 3 / 4 " WA1 WA4 WA4 WA5 WA7 WA7 WA2 C6 Stair FA5 Stair FA4 Stair FA4 A501 4 2 3 4 5 1
A05 LEVEL A06 LOW ROOF A06 HIGH ROOF BLDG. A AVG. GRADE BLDG. MAX HEIGHT / PATH
PROPERTY LINE UNIT A01 UNIT A01 A02 UNIT A02 0" 5 06 " A T.O. PARAPET LEVEL RA1 11" A04 SUBFLOOR A02 SUBFLOOR A03 SUBFLOOR 21 3 6 4 0 1 0 ' 4 1 / 4 9 8 9 8 1 0 1 3 / 4 WA1 WA4 WA4 WA5 WA7 WA7 WA2 Stair FA5 Stair FA4 Stair FA4 A501 4 2 3 4 5 1
BLDG. A AVG. GRADE 258.49' A01-2 LEVEL 259.58' WA5 2 3 4 5 1
5'-6 7/8" BLDG. A AVG. GRADE 258.49' PATH UNIT A01 A01-2 LEVEL 259.58' A02 T.O. SUBFLOOR 269.73' 1 0 '1 3 / 4 " WA5 WA7 2 3 4 5 1
5'-6 7/8" Building A - Cross Section Project Technical Composition Spatial Distribution StoryBuilt · January 2023 23

Interior Separation Wall Assembly Details Project Technical Composition Assembly Scheme

Building A - Wall Section Details Project Technical Composition Assembly Scheme
Callie · Morgan Junction · Gatewood, Seattle, WA 24 UNIT UNIT BACKER BOARD AND SEALANT T.O.P. AT 4TH FLOOR MIN. OF 16" UNFACED FIBERGLASS INSULATION FOR FIRESTOPPING, ALIGNED TO THE BOT. OF PLATE OR APPROVED NON-RIGID ALTERNATIVE RC-1 AIR GAP 1" UNIT UNIT BACKER BOARD AND SEALANT MIN. OF 16" UNFACED FIBERGLASS INSULATION FOR FIRESTOPPING, ALIGNED TO THE BOT. OF PLATE OR APPROVED NON-RIGID ALTERNATIVE BACKER ROD AND SEALANT UNIT UNIT PERIMETER ISOLATIONS STRIP FC2 J4 AIR GAP 0' 1" DRAFTSTOP UNIT UNIT BACKER ROD AND SEALANT T.O.S. AT 1ST FLOOR SILL SEALER J4 AIR GAP 0' 1" T.O.S. AT 1ST FLOOR BACKER ROD AND SEALANT SILL SEALER UNIT UNIT J4 UNIT UNIT BACKER BOARD AND SEALANT MIN. OF 16" UNFACED FIBERGLASS INSULATION FOR FIRESTOPPING, ALIGNED TO THE BOT. OF PLATE OR APPROVED NON-RIGID ALTERNATIVE BACKER ROD AND SEALANT UNIT UNIT PERIMETER ISOLATIONS STRIP FC1 J4 AIR GAP 0' 1" DRAFTSTOP StoryBuilt holds drawings. modifications, documents written © 2022 StoryBuilt BLDG. C KEY PLAN ISSUES SHEET INFORMATION STAMP SDCI STAMP MORGAN JUNCTION RESIDENCES INTERIOR A840 1 1/2" = 1'-0" 3 TENANT SEPARATION WALL AT ROOF 1 1/2" = 1'-0" 2 TENANT SEPARATION WALL AT FLOOR/CEILING 1 1/2" = 1'-0" 1 TENANT SEPARATION WALL AT SLAB 1 1/2" = 1'-0" 4 INTERIOR BEARING WALL AT SLAB 1 1/2" = 1'-0" 5 SEPARATION WALL AT FLOOR/CEILING 3BUILDING 4100% DD 7BP CORRECTION 850% CD T.O.S. AT 1ST FLOOR BACKER ROD AND SEALANT SILL SEALER UNIT UNIT J4 UNIT UNIT BACKER BOARD AND SEALANT MIN. OF 16" UNFACED FIBERGLASS INSULATION FOR FIRESTOPPING, ALIGNED TO THE BOT. OF PLATE OR APPROVED NON-RIGID ALTERNATIVE BACKER ROD AND SEALANT UNIT UNIT PERIMETER ISOLATIONS STRIP FC1 J4 AIR GAP 0' - 1" DRAFTSTOP 3 2 1 1 1/2" = 1'-0" 4 INTERIOR BEARING WALL AT SLAB 1 1/2" = 1'-0" 5 SEPARATION WALL AT FLOOR/CEILING A06 LOW ROOF 303.42' A LOW T.O. PARAPET 305.75' WA3 WA5 WA4 RA1 A01-2 LEVEL 259.58' FA2 FA1 A04 T.O. SUBFLOOR 289.06' A02 T.O. SUBFLOOR 269.73' A03 T.O. SUBFLOOR 279.40' 24 " 1 44 1 4 " 10 5 8 87 3 / 8 " 10 5 8 87 3 8 " 10 5 8 " 32 1 / 8 " 51 1 4 62 " FA1 FA3 A820 9 A820 3 A820 7 A820 3 A801 10 A801 9 FURRED OUT WALL @ KITCHEN A860 3 A05 LEVEL 299.42' PLANTER WA4 WA4 A01-2 LEVEL 259.58' FA2 FA1 RA2 FA3 A04 T.O. SUBFLOOR 289.06' A03 T.O. SUBFLOOR 279.40' 1 04 1 4 " 10 5 8 87 3 / 8 " 10 5 8 1 89 1 8 " A T.O. PARAPET 303.75' 4 42 " A820 10 36 A820 3 A820 7 A820 1 A801 10 A801 2 A820 3 A820 3 A820 1 A820 1 SB Project No: StoryBuilt holds all rights of copyright to these drawings. Any reproductions, alteration, 6314 41st Ave. SW Seattle, Washington 98136 BLDG. A BLDG. B BLDG. C KEY PLAN ISSUES SHEET INFORMATION STAMP 900 S. 1st St., Suite 110 Austin, Texas 78704 512.289.1313 storybuilt.com SDCI STAMP MORGAN JUNCTION RESIDENCES 1905 BUILDING A WALL SECTIONS A501 3/8" = 1'-0" 1 BUILDING A @ COURTYARD 3/8" = 1'-0" 2 BUILDING A @ PATIO 3BUILDING PERMIT 06.13.2022 4100% DD 07.19.2022 7BP CORRECTION #1 11.16.2022 850% CD 11.22.2022 PLANTER WA4 WA4 FA2 FA1 RA2 FA3 1 04 1 4 " 10 5 8 87 3 / 8 " 10 5 8 1 89 1 8 " 4 42 " A820 10 36 A820 3 A820 7 A820 1 A801 10 A801 2 A820 3 A820 3 A820 1 A820 1 A05 LEVEL 299.42' A01-2 LEVEL 259.58' A04 T.O. SUBFLOOR 289.06' A03 T.O. SUBFLOOR 279.40' 35 " 1 54 1 8 10 5 8 87 3 / 8 " 10 5 8 92 3 8 11 7 8 RA2 FA2 WA6 WA1 A T.O. PARAPET 303.75' 4 42 " WA3 A860 3 A802 3 FURR OUT TO MATCH WALL BELOW A802 5 A802 2 A05 LEVEL 299.42' A01-2 LEVEL 259.58' A04 T.O. SUBFLOOR 289.06' A03 T.O. SUBFLOOR 279.40' A T.O. PARAPET 303.75' PLANTER WA7 WA7 FA1 FA1 RA2 FA3 1 04 1 4 " 10 5 8 87 3 / 8 " 10 5 8 1 89 1 8 " 4 42 " 36 A801 1 A801 2 A820 3 A820 1 A820 1 A820 3 A860 5 3/8" = 1'-0" 2 BUILDING A @ PATIO 3/8" = 1'-0" 3 BUILDING A @ STAIR @ WA7 FCP

StoryBuilt · January 2023

Roof, Floor and Wall Assembly Details Project Technical Composition Assembly Scheme

25 INTERIOR 1. PARTITION TYPES 8. USE WATER-RESISTANT FINISHED MATERIAL. EXCEPTION: WHERE THE GYPSUM BOARD 9. MAINTAIN RATING 10. FIRE RATED AND SMOKE THE CONCEALED SPACE FEET OF EACH END REFER TO THE SPECIFICATIONS. 11. REFER TO THE 2016 ASSOCIATED UL DESIGN. 12. PROVIDE PAINT OR PARTITION TYPE PARTITION MODIFIER (IF APPLICABLE; REF. PARTITION STUD DESIGNATION STANDARD PARTITION TAG: 2. ALL STUDS AND GYPSUM 3. ALL FIRE RATED PARTITIONS 4. OUTLET BOXES ON 5. PROVIDE CONTINUOUS 6. PROVIDE CONTINUOUS RATED PARTITIONS. 7. ANY WALL REQUIRED SMOKE BARRIERS, 1. FLOORING PER PLANS; SEE FINISHES FOR STC & IIC RATINGS 2. 3/4" ACOUSTICAL UNDERLAYMENT AS SPEC'D 3. 3/4" SHEATHING; MIN. GRADE "C-D" 4. TRUSSES; REF. STRUCTURAL; 5. 1 LAYER 5/8" TYPE C GYPSUM BOARD ASSEMBLY: UL# L521 FIRE RATING: 1 HOUR 1. FLOORING PER PLANS; SEE FINISHES FOR STC & IIC RATINGS 2. 1-1/2" GYPSUM CEMENT TOPPING SLABWEATHER BARRIER 3. 3/4" ACOUSTICAL UNDERLAYMENT AS SPEC'D 4. 3/4" SHEATHING; MIN. GRADE "C-D" 5. TRUSSES; REF. STRUCTURAL; 6. PROVIDE R-38 BATT INSULATION 7. PLYWOOD SHEATHING 8. 1 LAYER 5/8" TYPE C GYPSUM BOARD 9. SOFFIT MATERIAL AS SCHEDULED EXTERIOR INTERIOR ASSEMBLY: PER SBC 722.6 FIRE RATING: 1 HOUR 1. FLOORING PER PLANS; SEE FINISHES FOR STC & IIC RATINGS 2. 1-1/2" GYPSUM CEMENT TOPPING SLABWEATHER BARRIER 3. 3/4" ACOUSTICAL UNDERLAYMENT AS SPEC'D 4. 3/4" SHEATHING; MIN. GRADE "C-D" 5. TRUSSES; REF. STRUCTURAL; 6. PROVIDE R-38 BATT INSULATION 7. GENIE CLIP 8. (2) LAYERS 5/8" TYPE C GYPSUM BOARD ASSEMBLY: UL# L521 FIRE RATING: 1 HOUR STC: 59 IIC: 48 1. SINGLE PLY ROOFING MEMBRANE AS SPEC'D 2. 1/4" PROTECTION BOARD 3. R-20 POLYISO RIGID INSULATION 4. TEMPORARY ROOF MEMBRANE/VAPOR BARRIER 5. ROOF SHEATHING PER STRUCTURAL 6. R-30 BATT INSULATION 7. TRUSS FRAMING PER STRUCURAL 8. (2) LAYERS 5/8" TYPE X GWB, FIRE RATING: 1 HOUR RATED ASSEMBLY: PER SBC 721.1, TABLE 721.1(3), ITEM 21-1.1 1. WOOD DECKING ON SLEEPERS 2. ROOF MEMBRANE 3. COVER BOARD 4. R-20 POLYISO RIGID INSULATION 5. SHEATHING PER STRUCTURAL 6. 1/4-INCH BEAD OF CONSTRUCTION ADHESIVE 7. R-30 BATT INSULATION 8. TRUSS FRAMING PER STRUCURAL 9. (2) LAYERS 5/8" TYPE X GWB, FIRE RATING: 1 HOUR RATED ASSEMBLY: PER SBC 721.1, TABLE 721.1(3), ITEM 21-1.1 1. METAL PANEL 2. 1" FURRING SYSTEM/ RAINSCREEN AIR SPACE 3. WEATHER BARRIER 4. EXTERIOR 5/8 TYPE X GYPSUM BOARD AT WA1.R 5. PLYWOOD SHEATHING 6. WOOD FRAMING, 2X6 @ 16 O.C. 7. R-21 BATT INSULATION 8. 5/8 TYPE X GYPSUM BOARD EXTERIOR INTERIOR ASSEMBLY: U356 FIRE RATING: 1 HOUR WA1.R ASSEMBLY: U305 FIRE RATING: 1 HOUR 1. CEMENITIOUS SIDING 2. 1" FURRING SYSTEM/ RAINSCREEN AIR SPACE 3. WEATHER BARRIER 4. EXTERIOR 5/8 TYPE X GYPSUM BOARD AT WA2.R 5. PLYWOOD SHEATHING 6. WOOD FRAMING, 2X6 @ 16 O.C. 7. R-21 BATT INSULATION 8. 5/8 TYPE X GYPSUM BOARD EXTERIOR INTERIOR ASSEMBLY: U356 FIRE RATING: 1 HOUR WA2.R ASSEMBLY: U305 FIRE RATING: 1 HOUR 1. DRAINAGE MAT 2. WATERPROOFING 3. 6" TO 8" CONCRETE WALL, REF STRUCTURE 4. R-10 RIGID INSULATION 5. WOOD FRAMING, 1-1/2" FLAT FRAMED OR 2X4 AT PLUMBING WALLS 6. 5/8 TYPE X GYPSUM BOARD EXTERIOR INTERIOR ASSEMBLY: IBC 722.2.1.1 FIRE RATING: 1+ HOUR 1. DRAINAGE MAT 2. WEATHER BARRIER 3. 6" TO 8" CONCRETE, REF STRUCTURE 4. R-10 RIGID INSULATION 5. R-21 BATT INSULATION 6. WOOD FRAMING, 2X6 @ 16 O.C. 7. 5/8 TYPE X GYPSUM BOARD EXTERIOR INTERIOR ASSEMBLY: IBC 722.2.1.1 FIRE RATING: 1+ HOUR 1. WOOD SIDING, CEDAR BOARD T&G 2. 1" FURRING SYSTEM/ RAINSCREEN AIR SPACE 3. WEATHER BARRIER 4. EXTERIOR 5/8 TYPE X GYPSUM BOARD AT WA3.R 5. PLYWOOD SHEATHING 6. WOOD FRAMING, 2X6 @ 16 O.C. 7. R-21 BATT INSULATION 8. 5/8 TYPE X GYPSUM BOARD EXTERIOR INTERIOR ASSEMBLY: U356 FIRE RATING: 1 HOUR WA3.R ASSEMBLY: U305 FIRE RATING: 1 HOUR 1. CEMENITIOUS PANEL 2. 1" FURRING SYSTEM/ RAINSCREEN AIR SPACE 3. WEATHER BARRIER 4. EXTERIOR 5/8 TYPE X GYPSUM BOARD AT WA4.R 5. PLYWOOD SHEATHING 6. WOOD FRAMING, 2X6 @ 16 O.C. 7. R-21 BATT INSULATION 8. 5/8 TYPE X GYPSUM BOARD EXTERIOR INTERIOR ASSEMBLY: U356 FIRE RATING: 1 HOUR WA4.R ASSEMBLY: U305 FIRE RATING: 1 HOUR W A L L S Z E A S S C H E D U L E D UNIT UNIT ASSEMBLY: PER SBC 721.1, TABLE 721.1(3), ITEM 21-1.1 FIRE RATING: 1 HOUR 1. FLOORING PER PLANS; SEE FINISHES FOR STC & IIC RATINGS 2. 1x10 WOOD BASE FOR PAINT 3. 5/64" ACOUSTICAL UNDERLAYMENT; PLITEQ GENIEMAT RST02 OR EQUAL 4. RESILIENT CHANNELS 5. (2) LAYERS 5/8" TYPE X GYP. BD. 6. MINERAL WOOL ACOUSTIC BATTS 7. (1) LAYER 5/8" TYPE C GYPSUM BOARD 8. 7/16" PLYWOOD OR 2X 9. 2X STAIR SUPPPORTS @ 16"O.C. MAX 10. 2X12 TREAD 1. 1X10 WOOD BASE FOR PAINT 2. TREAD AND RISER TO MATCH SCHEDULED FLOORING 3. NOSING PER FLOORING MANUFACTURER 4. (1) LAYER 5/8" GYP.BD 5. 2X STAIR SUPPORTS @ 16" O.C. MAX 6. 7/16" PLYWOOD OR 2X 7. 2X12 TREAD 1. METAL ROOF 2. 1/4" PROTECTION BOARD 3. R-20 POLYISO RIGID INSULATION 4. TEMPORARY ROOF MEMBRANE/VAPOR BARRIER 5. ROOF SHEATHING PER STRUCTURAL 6. R-30 BATT INSULATION 7. TRUSS FRAMING PER STRUCURAL 8. (2) LAYERS 5/8" TYPE X GWB, FIRE RATING: 1 HOUR RATED ASSEMBLY: PER SBC 721.1, TABLE 721.1(3), ITEM 21-1.1 WALL TYPE STUD SIZE C42x44 C4R2x44 C62x66 C6R2x68"16" WALL TYPE STUD SIZE J4(2) 2x410 J52x4, 2x612 INTERIOR EXTERIOR WALL ASSEMBLIES FLOOR ASSEMBLIES ROOF ASSEMBLIES 1 1/2" = 1'-0" FA1 TYPICAL FLOOR ASSEMBLY 1 1/2" = 1'-0" FA3 1 HR FLOOR ASSEMBLY @ OVERHANG 1 1/2" = 1'-0" FA2 1 HR FLOOR ASSEMBLY BETWEEN UNITS 1 1/2" = 1'-0" RA1 1 HR TYPICAL ROOF ASSEMBLY 1 1/2" = 1'-0" RA2 1 HR ROOF DECK ASSEMBLY 1 1/2" = 1'-0" WA1 EXT. FRAMED WALL AT METAL PANEL 1 1/2" = 1'-0" WA2 EXT. FRAMED WALL AT CEMENTIOUS SIDING 1 1/2" = 1'-0" WA6 EXT. REINFORCED CONCRETE WALL 1 1/2" = 1'-0" WA5 EXT. REINFORCED CONCRETE WALL 1 1/2" = 1'-0" WA3 EXT. FRAMED WALL AT WOOD SIDING 1 1/2" = 1'-0" WA4 EXT. FRAMED WALL AT CEMENTIOUS PANEL 1 1/2" = 1'-0" C PARTITION 1 1/2" = 1'-0" J PARTITION 1 1/2" = 1'-0" FA5 1 HR STAIR @ STACKED UNITS 1 1/2" = 1'-0" FA4 NON RATED INTERIOR STAIR 1 1/2" = 1'-0" RA3 ROOF DECK ASSEMBLY 1 1/2" WA7 EXT.
26

\

CHAPTER II

SPATIAL

ˈspā-shəl \ · adjective

design relating to, occupying, or having the character of space.

27

The main concept behind the Urban Catalyst, focuses on generating a spatial stimulant that harmonizes the urban context within the city of Philadelphia, along with its natural and cultural characteristics. The project consists on developing an extension to the Parkway Central Library in order to provide an architectural home to an endless collection of books that are part of the history of Philadelphia.

Located on the northern lot behind the Free Library of Philadelphia, the project takes advantage of the varied opportunities the site provides; from the landmark adjacencies, such as the Barnes Foundation and the Free Library, to the axis of collision within the historic urban grid witnessed in N 20th St.

28
N 20th St Approach Perspective Top Spatial Explorations Sketch Illustrations Left Notions of Wisdom + Enlightenment Diagram Right 29
Advanced Architectural Design Studio II Critics Mark McGlothlin & Bradley Walters May 2019

Fragments of Reflection

Urban Catalyst · Franklintown, Philadelphia, PA
30
Physical Model Basswood & Mylar

Hierarchy of Spaces

The initial approach consisted in developing a construct that explores the essence of rituals by bringing together the concepts of wisdom and enlightenment through spatial fragments. These series of spaces would guide the user through a set of experiences that require interaction, reflection and resolve in order to become enlightened.

Inspired on various Buddhist rituals practiced worldwide, these sequence of spatial fragments focus on the path towards the enlightenment of the inner self by consciously reflecting on one’s past life in order to be able to successfully transition and leave ordinary life to be born anew.

Advanced Architectural Design Studio II · May 2019
Sketch Illustrations Organizational Diagrams Path toward Enlightenment Section Drawing Experiential Vignette 31

Urban Catalyst · Franklintown, Philadelphia, PA

Urban Analysis of Philadelphia

Group Physical Model

Basswood,

Form Exploration

Iterational Models

Cardboard,

Urban Context Influence Site Plan

Gestural Diagram

Cardboard, Chipboard, Graphite, Metal Mesh, Mylar, Paint, Steel Wire & Yarn Foam & Bristol
32
Advanced Architectural Design Studio II · May 2019 Urban Catalyst Composition Ground Floor Plan Spatial Distribution 33
Volumetric Hierarchy 34
35
Urban Catalyst · Franklintown, Philadelphia, PA 38

The primary volume suggests a representation of knowledge as a pure and translucent form, a delicate cube oriented in relation to the Parkway Axis, in an effort to relieve the collision of grids between the historic and the natural aspects of Philadelphia and provide a seamless transition between them.

Composed of lightweight materials including, ETFE and lightweight steel

Advanced Architectural Design Studio II · May 2019
39

Analysis of Structural Components & Assembly

Detailed Section Breakdown of Systems

Urban Catalyst · Franklintown, Philadelphia, PA
40
Advanced Architectural Design Studio II · May 2019 41
Urban Catalyst · Franklintown, Philadelphia, PA Level -1 Level 3 Level 0 Level 4 Level -2 Level 2 Level -3 Level 1 42

Hierarchy of Structural Systems & Materiality Exploded Axonometric Assemblage

Advanced Architectural Design Studio II · May 2019
43
Advanced Architectural Design Studio III Critics Jeff Carney & Sarah Gamble December 2019

Explorative Assembly of Intertwined Textures

Iterational Model Studies

Ephemeral Ruins · Timber Island, Carrabelle, FL
46
Basswood, Bristol, Cardboard, Chipboard, Fabric, Metal, Rubber & Vellum.
Advanced Architectural Design Studio III · December 2019
47
Constructed Assembly of the Florida Panhandle Region 1” = 200’ Scale - Collective Physical Model Basswood, Bristol, Cardboard, Chipboard, Fabric, Metal, Plaster, Rubber, Vellum & Watercolor Paper
Ephemeral Ruins · Timber Island, Carrabelle, FL
Constructed Analysis of Carrabelle 72” x 24” - Transect Drawing Bottom
48
Manifestation of Concepts | Reflection Perspectival Montage Top
Advanced Architectural Design Studio III · December 2019 Manifestation of Concepts | Carving Perspectival Montage Top 49

CONTINUED ON

2023 – Expression Through Emotion - Design Portfolio

Compilation of design work, including professional, spatial, fabrication and publication design by David Gomez.

Focused on professional work in the design field and the Master’s of Architecture & Bachelor’s of Design academic work held at the University of Florida’s College of Design, Construction and Planning, School of Architecture.

https://relayto.com/david3/64011cdfc5ec8/flip-book

Turn static files into dynamic content formats.

Create a flipbook
Issuu converts static files into: digital portfolios, online yearbooks, online catalogs, digital photo albums and more. Sign up and create your flipbook.
Expression Through Emotion - Design Portfolio By David Gomez by David Gomez - Issuu