Skip to main content

BIM PORFOLIO | DAVID

Page 1

PORTFOLIO

DAVID SIBY

ARCHITECTURE

BIM

2024
PROJECTS 2023 -

•Identify the client requirements

•Project feasibility check

•Client BEP

•MIDP (Master Information Delivery Plan)

•Initial Assessment

•Research and Inspiration

•Concept Development

•Space Planning

•Mossing and Form Studies Material and -

Color Selection

•Visualization

•Collaboration and Coordination

•Conceptual Documentation

•Design Evaluation and Feedback

•Design Studies - Arc and Documentation

•Design Studies - Sir and Documentation

•Facade Design Studies and Documentation

•Coordination Model Integration

•Client Package Submission

•Government Package Submission

•Interference Check

•Model Coordination

•Clash Detection - Navisworks

•Clash Resolution

•Design Development

•Technical Package Production

•Fire NOVoration pion

•Reinforcement Drawings

•Detailing

•Model Coordination

•Clash Detection - Navisworks

•Clash Resolution

•Design Development

•Technical Package Production

•Fire NOVaration plan

•Reinforcement Drawings

•Detailing

Contents RIBA Plan of Work 1. PROJECT OUTLINE 2. ENZYMES TOWER 3. NAVISWORKS 5. FACADE - DYNAMO 4. 3D RENDERS 01. Introduction 02. About 03. Massing 04. Site Plan 05. Coordination Diagram 06. Floor Plans 07. RCP 08. Structural Layout 09. Elevation 10. Section 11. Family Creation ......... 05 ......... 06 ......... 28 ......... 34 ......... 32 01. Clash Test 02. Simulation The drawings in this portfolio represent a culmination of the work completed over an 6-month training period, highlighting the skills developed for a BIM Architect. The primary focus was on utilizing Revit, Navisworks, Dynamo, and Twinmotion Additional tools were employed to enhance visualization. Preparation and Briefing Preparation and Briefing Concept Design Package Design Development Technical Design Manufacfuring and Construction Handout & Close Out
•Facility Management Cobie IFC 00 01 02 03 04 05 06 PROJECT OUTLINE CONTENTS 2 3

ENZYMES TOWER HONG KONG

The vision for this project is to create a truly iconic landmark at the intersection of Wellington St. and Queens Road Centralin the central district of Hong Kong Island. The goal is to design a building that not only stands out as an architectural marvel but also becomes a symbol of progress and modernity for the entire city.

The existing building at the project site, has become outdated and inefficient in its use of space. The client recognizes that the prime location demands a more ambitious approach to maximize the site’s potential. By exploring the possibility of constructing another building volume, the client seeks to address the under-utilized area, optimizing the Gross Floor Area (GFA) available on the site.

Software Used:

Modeling : Revit

Clash Detection : Navis work

Diagram : Revit & Photoshop.

Render : Lumion & Twinmotion

Post production : Photoshop, Indesign

Role in Team : Architecture Model, Structure Model, Clash detection, 3D Visualization

( MEP by Consultants )

Introduction

ABOUT THE PROJECT

Description: Site:

The proposed building will be a mixed-use development, combining both Office and Service Apartments within the same structure. This mixed-use approach is a response to the dynamic needs of the central district.

Client Information : Enzyme APD Ltd

Project Coordinates :

(E 114° 9’ 12.12’’ N 22° 17’ 5.40’)

Building Type : Office

Site Area : 203.7 sqm

Current Utilise GFA : 1430.7 sqm

Maximum Site Occupation :162.7 sqm

Height Requirement : 21 Floors

FAR : 13.8

Level of development : LOD 350

FORM EVOLUTION

02

Existing Building Envelop at the intersection of Wellington St. and Queens Road Central

The project site’s location at the intersection of Wellington St. and Queens RoadCentralisundeniably one of the most strategic and coveted spots in Hong Kong Island’s central district.

MASSING STUDY

•Maximise height through extrusion to accommodate more floors and increase the number of stories.

•Incorporate set-bocks in accordance with local regulations to odd extra stories, compensating for any lost gross floor area.

•Create sky gardens and public spaces to expand the building’s volume, recover the lost GFA, and further increase the number of stories.

•4 point view by creating vast terrace or balcony that create a conception of leisure in office space.

•Ground level is public space with private lobby for office, the ground space con be used for workshops and expositions.

04

Creating a series of set backs allowed as per the local regulation the addition of extra stories, in order to make up for the lost GFA.

Extrude to the maximum allowed number of stories.

05

The creation of sky gardens and public spaces, also allows the volume to grow higher recovering GFA, increasing the final number of stories

BIM Portfolio | Selected works 2023 - 2024 Novatr Capstone Project
Fig: 01 Site Location
Fig: 06 Massing Op 1 Fig: 08 Final Massing Fig: 07 Massing Op 2 Fig: Fig: Fig: 03 Fig:
6 7

SITE PLAN

The site plan demonstrates compliance wi1h regulations by providing generous open space around the building. The ground floor is designed as both an entrance lobby for the building and a potential public area. Additionally, the plan includes basement parking spaces to enhance convenience for occupants and visitors

COORDINATION DIAGRAM

The illustration shows the integration of different work areas, following a simulated BIM execution plan, to construct a 21-story building. The visual provides a glimpse of a section of the complete 3D rendering of the structure (Level 15 to Level21).

The MEP model was done by another professional, and after the conclusion it was necessary to combine the mep model with structure and architectural

3D VIEW

BIM Portfolio | Selected works 2023 - 2024 Novatr Capstone Project
09 Site Plan Scale 1:100
Fig:
SITE PLAN
8 2 3 4 5 6 A B C N 816216419 E 833845456 Property Line Property Line 1 1 7 2400 0 -75 117 1000 99° 96° 165° 4050 6000 8125 7200 4625 30000 6° 1 6 0 1200 QUEENS ROAD CENTRAL WELLINGTON STREET ENTRANCE FROM UG ENTRANCE LOBBY LIFT LOBBY 96° 165° 4050 6000 8125 7200 4625 30000 E-10 1339 FOOTPATH 003 ENZ - ARC 3 A101_Site Plan ENZYME - ONEISTOX Capstone Project Queens Road Central, Central N 22° 17' 5.40'' E 114° 9' 12.12'' Project Status Checker 1 : 100 Site Lead Local Electrical Project Drawing Firefighting Interior Structural Mechanical COORDINATION ENZYME Capstone Queens Sheung Hong N E
11 Site Plan Scale 1:100
Fig:
Table: 01 Floor Area for level 15 to level 21 Fig: 12 Site Plan Scale 1:100 Fig: 13 Site Plan Scale 1:100
Fig: 10 Exterior Elevation - Birds eye view - Rendered in Twinmotion

The floor plans are a simplified version of detail floor plans from working drawings illustrated using Revit. This condensed representation provides a comprehensive view of the building’s design, aiding stakeholders in understanding the spatial arrangement and functionality.

Room Schedule L16

Schedule L16

This information can be used to make informed decisions during the construction process, ensuring proper placement of furniture, precise installation of doors/windows, and a clear understanding of the building’s vertical organisation.

BIM Portfolio | Selected works 2023 - 2024 Novatr Capstone Project Fig: 14 Level 16 Floor Plan Scale 1:100 FLOOR PLAN LEVEL 16 LEVEL 16 DETAILS SECTION LEVEL 18 10 11 2 3 4 5 6 A B C 1 19950 96° SD1 165° 1 7 1 7 6° LIFT LOBBY OFFICE1 OFFICE2 RM. TOI. LIFT2 LIFT1 TOI. RM. STAIRCASE BALCONY FD1 FD1 D4 D4 D4 D4 WL1 CW3 6 FD1 120 FD1 12060500 D1 D1 SW2 SW1 SW1 WL1 60500 R1 8125 7200 4625 Property Line AREA SCHEMES Lead Design BIM Consultant Local Architect Electrical Engineer @ A1 Project Name Drawing Title Project No: Drawing No: Firefighting Consultant Interior Designer Structural Engineer Mechanical Engineer GENERAL NOTES 1. This drawing is Enzyme APD's property and must not be retained copied or used without Enzyme APD's authority. 2. All drawings are to be read in conjunction with other relevant drawings and specifications of the same and other disciplines. 3. This drawing is not to be scaled. Only written dimensions are to be followed. Any discrepancy must be advised to the Architect and the Engineer. 4. All dimensions are metric unless otherwise indicated. 5. The walls are dimensioned to the unfinished face of masonry or concrete unless otherwise noted. 6. Final coordination is the responsibility of the contractor. Any discrepancy must be brought to the attention of the Architect and the Engineer and must be resolved before commencement of work. ABC Design Consultancy 806, Arion Commercial Center, 2-12 Queen's Road West Sheung Wan, Hong Kong ABC Design Consultancy 806, Arion Commercial Center, 2-12 Queen's Road West Sheung Wan, Hong Kong ABC Design Consultancy 806, Arion Commercial Center, 2-12 Queen's Road West Sheung Wan, Hong Kong AEC Engineering Co 1208, IFC, West Kowloon Hong Kong AEC Engineering Co AEC Engineering Co 1208, IFC, West Kowloon Hong Kong 1208, IFC, West Kowloon Hong Kong ABC ABC ABC AEC AEC AEC 806, Arion Commercial Center, 2-12 Queen's Road West Sheung Wan, Hong Kong 003 ENZ ARC 5 A103_Floor Plan_Atypical ENZYME ONEISTOX Capstone Project Queens Road Central, Central District Sheung Wan, Hong Kong N 22° 17' 5.40'' E 114° 9' 12.12'' Owner Rev Description Date 1 : 100 ATYPICAL FLOOR L 16 1 1 : 200 ATYPICAL FLOOR L 16 2 Schedule L16 Area 32 m² 30 m² LOBBY 13 m² STAIRCASE 13 m² 3 m² Room Schedule L16 Name Area LIFT1 3 m² BALCONY 3 m² TOI. 2 m² TOI. 2 m² RM. 1 m² RM. 1 m² TYPICAL FLOOR L 18 67900 2 3 4 L18 SSL 67750 L19 SSL 71450 1 OFFICE1 BALCONY TOI. LIFT1 LIFT2 TOI. OFFICE2 FD1 120 FD1 120 8125 7200 4625 1500 275 600 ATYPICAL FLOOR L 16 60500 2 3 4 L16 SSL 60350 L17 SSL 64050 1 150 OFFICE1 BALCONY TOI. LIFT1 LIFT2 TOI. OFFICE2 FD1 120 FD1 120 275 600 8125 7200 4625 Structural Engineer Mechanical Engineer GENERAL NOTES 1. This drawing is Enzyme APD's property and must not be retained copied or used without Enzyme APD's authority. 2. All drawings are to be read in conjunction with other relevant drawings and specifications of the same and other disciplines. 3. This drawing is not to be scaled. Only written dimensions are to be followed. Any discrepancy must be advised to the Architect and the Engineer. 4. All dimensions are metric unless otherwise indicated. 5. The walls are dimensioned to the unfinished face of masonry or concrete unless otherwise noted. 6. Final coordination is the responsibility of the contractor. An discrepancy must be brought to the attention of the Architect and the Engineer and must be resolved before commencement of work. ABC Design Consultancy 806, Arion Commercial Center, 2-12 Queen's Road West Sheung Wan, Hong Kong ABC Design Consultancy 806, Arion Commercial Center, 2-12 Queen's Road West Sheung Wan, Hong Kong ABC Design Consultancy 806, Arion Commercial Center, 2-12 Queen's Road West Sheung Wan, Hong Kong AEC Engineering Co 1208, IFC, West Kowloon Hong Kong AEC Engineering Co AEC Engineering Co 1208, IFC, West Kowloon Hong Kong 1208, IFC, West Kowloon Hong Kong AEC Enzyme APD Ltd 806, Arion Commercial Center, 2-12 Queen's Road West Sheung Wan, Hong Kong Queens Road Central, Central Rev Description Date 1 : 50 Section A-A' - Callout 1 1 1 50 Section A-A' - Callout 2 2 A B C 19950 SD1 165° 7 7 LIFT LOBBY OFFICE1 LIFT2 LIFT1 TOI. RM. STAIRCASE BALCONY FD1 D4 D4 WL1 CW3 6 FD1 12060500 D1 SW2 SW1 R1 8125 7200 1 100 ATYPICAL FLOOR L 16 1 1 : 200 ATYPICAL 2 Room Schedule L16 Name Area OFFICE2 32 m² OFFICE1 30 m² LIFT LOBBY 13 m² STAIRCASE 13 m² LIFT2 3 m² Room Schedule L16 Name Area LIFT1 3 m² BALCONY 3 m² TOI. 2 m² TOI. 2 m² RM. 1 m² RM. 1 m² AREA SCHEMES NON SELLABLE AREA SELLABLE AREA CP2 70.00° 8125 7200 4625 19950 Lead Design BIM Consultant Client Local Architect Electrical Engineer Project Name Drawing Title Project No: Drawing No: Scale: Firefighting Consultant Interior Designer Structural Engineer Mechanical Engineer Stage: Date: ABC Design Consultancy 806, Arion Commercial 2-12 Queen's Road Sheung Wan, Hong ABC Design Consultancy 806, Arion Commercial 2-12 Queen's Road Sheung Wan, Hong ABC Design Consultancy 806, Arion Commercial 2-12 Queen's Road Sheung Wan, Hong AEC Engineering 1208, IFC, West Kowloon Hong Kong AEC Engineering AEC Engineering 1208, IFC, West Kowloon Hong Kong 1208, IFC, West Kowloon Hong Kong ABC ABC ABC AEC AEC AEC Enzyme APD Ltd 806, Arion Commercial 2-12 Queen's Road Sheung Wan, Hong As indicated 003 - ENZ ARC 4 003 11/09/22 A102_Floor Plan_Typical ENZYME ONEISTOX Capstone Project Queens Road Central, Central District Sheung Wan, Hong Kong N 22° 17' 5.40'' E 114° 9' 12.12'' Project Status Owner 1 : 200 TYPICAL FLOOR L 18 1 Room Schedule L18 Name Area OFFICE1 30 m² OFFICE2 21 m² STAIRCASE 14 m² LIFT LOBBY 13 m² LIFT1 3 m² LIFT2 3 m² Room Schedule L18 Name Area BALCONY 3 m² TOI. 2 m² TOI. 2 m² RM. 1 m² RM. 1 m² 1 : 100 TYPICAL FLOOR L18 2 19950 1 7 AREA SCHEMES NON SELLABLE AREA SELLABLE AREA Lead Design BIM Consultant Client Local Architect Electrical Engineer @ A1 Project Name Drawing Title Project No: Drawing No: Scale: Check: Firefighting Consultant Interior Designer Structural Engineer Mechanical Engineer Stage: Drawn: Date: ABC Design Consultancy 806, Arion Commercial Center, 2-12 Queen's Road West Sheung Wan, Hong Kong ABC Design Consultancy 806, Arion Commercial Center, 2-12 Queen's Road West Sheung Wan, Hong Kong ABC Design Consultancy 806, Arion Commercial Center, 2-12 Queen's Road West Sheung Wan, Hong Kong AEC Engineering Co 1208, IFC, West Kowloon Hong Kong AEC Engineering Co AEC Engineering Co 1208, IFC, West Kowloon Hong Kong 1208, IFC, West Kowloon Hong Kong ABC ABC ABC AEC AEC AEC Enzyme APD Ltd 806, Arion Commercial Center, 2-12 Queen's Road West Sheung Wan, Hong Kong As indicated 003 ENZ ARC 5 003 04/12/24 A103_Floor Plan_Atypical ENZYME ONEISTOX Capstone Project Queens Road Central, Central District Sheung Wan, Hong Kong N 22° 17' 5.40'' E 114° 9' 12.12'' Project Status Owner 1 : 100 ATYPICAL FLOOR L 16 1 1 : 200 ATYPICAL FLOOR L 16 2
Name Area OFFICE2 32 m² OFFICE1 30 m² LIFT LOBBY 13 m² STAIRCASE 13 m² LIFT2 3 m²
Name Area LIFT1 3 m² BALCONY 3 m² TOI. 2 m² TOI. 2 m² RM. 1 m² RM. 1 m² AXIN L 16 1
Room
Meeting Room Lobby Elevator Staircase Office Room Balcony Toilet
Fig: 17 Level 16 Axonometric View Fig: 16 Area Plan
1:70
Fig:
15 Level 16 Floor Section Scale
Table: 02 Level 16 Room Areas

Schedule L18

Schedule L18

The floor plans are a simplified version of detail floor plans from working drawings illustrated using Revit. This condensed representation provides a comprehensive view of the building’s design, aiding stakeholders in understanding the spatial arrangement and functionality. This information can be used to make informed decisions during the construction process, ensuring proper placement of furniture, precise installation of doors/windows, and a clear understanding of the building’s vertical organisation.

AXIN L 16 1 AXIN L 18 2 BIM Portfolio | Selected works 2023 - 2024 Novatr Capstone Project FLOOR PLAN LEVEL 18 LEVEL 18 DETAILS SECTION LEVEL 18 12 13 AREA SCHEMES NON SELLABLE AREA SELLABLE AREA 2 3 4 5 6 A B C 1 LIFT LOBBY OFFICE2 OFFICE1 TOI. RM. RM. TOI. LIFT1 LIFT2 STAIRCASE BALCONY D4 FD1 120 FD1 120 FD1 120 FD1 120 D4 D4 D4 WL1 CP2 70.00° CP1 CP3 SD1 120 8125 7200 462567900 19950 D1 D1 SW1 SW1 WL1 67900 R1 Property Line Lead Design BIM Consultant Client Local Architect Electrical Engineer @ A1 Project Name Drawing Title Project No: Drawing No: Scale: Rev. Check: Firefighting Consultant Interior Designer Structural Engineer Mechanical Engineer Stage: Drawn: Date: or used without Enzyme APD's authority. 2. All drawings are to be read in conjunction with other relevant drawings and specifications of the same and other disciplines. 3. This drawing is not to be scaled. Only written dimensions are to be followed. Any discrepancy must be advised to the Architect and the Engineer. 4. All dimensions are metric unless otherwise indicated. 5. The walls are dimensioned to the unfinished face of masonry or concrete unless otherwise noted. 6. Final coordination is the responsibility of the contractor. Any discrepancy must be brought to the attention of the Architect and the Engineer and must be resolved before commencement of work. ABC Design Consultancy 806, Arion Commercial Center, 2-12 Queen's Road West Sheung Wan, Hong Kong ABC Design Consultancy 806, Arion Commercial Center, 2-12 Queen's Road West Sheung Wan, Hong Kong ABC Design Consultancy 806, Arion Commercial Center, 2-12 Queen's Road West Sheung Wan, Hong Kong AEC Engineering Co 1208, IFC, West Kowloon Hong Kong AEC Engineering Co AEC Engineering Co 1208, IFC, West Kowloon Hong Kong 1208, IFC, West Kowloon Hong Kong ABC ABC ABC AEC AEC AEC Enzyme APD Ltd 806, Arion Commercial Center, 2-12 Queen's Road West Sheung Wan, Hong Kong As indicated 003 - ENZ ARC - 4 003 11/09/22 A102_Floor Plan_Typical ENZYME ONEISTOX Capstone Project Queens Road Central, Central District Sheung Wan, Hong Kong N 22° 17' 5.40'' E 114° 9' 12.12'' Project Status Owner David Novatr Rev Description Date 1 : 200 TYPICAL FLOOR L 18 1 Room Schedule L18 Name Area OFFICE1 30 m² OFFICE2 21 m² STAIRCASE 14 m² LOBBY 13 m² 3 m² 3 m² Room Schedule L18 Name Area BALCONY 3 m² TOI. 2 m² TOI. 2 m² RM. 1 m² RM. 1 m² 100 TYPICAL FLOOR L18 TYPICAL FLOOR L 18 67900 2 3 4 L18 SSL 67750 L19 SSL 71450 1 OFFICE1 BALCONY TOI. LIFT1 LIFT2 TOI. OFFICE2 FD1 120 FD1 120 8125 7200 4625 1500 275 600 2 3 4 L17 SSL 64050 1 275 600 8125 7200 4625 Structural Engineer Mechanical Engineer GENERAL NOTES 1. This drawing is Enzyme APD's property and must not be retained copied or used without Enzyme APD's authority. 2. All drawings are to be read in conjunction with other relevant drawings and specifications of the same and other disciplines. 3. This drawing is not to be scaled. Only written dimensions are to be followed. Any discrepancy must be advised to the Architect and the Engineer. 4. All dimensions are metric unless otherwise indicated. 5. The walls are dimensioned to the unfinished face of masonry or concrete unless otherwise noted. 6. Final coordination is the responsibility of the contractor. Any discrepancy must be brought to the attention of the Architect and the Engineer and must be resolved before commencement of work. AEC Engineering Co 1208, IFC, West Kowloon Hong Kong AEC Engineering Co AEC Rev Description Date 1 50 Section A-A' - Callout 1 1 3 4 5 6 A B C LIFT LOBBY OFFICE1 TOI. RM. LIFT1 LIFT2 STAIRCASE BALCONY D4 FD1 120 FD1 120 D4 WL1 CP2 70.00° CP1 CP3 SD1 120 8125 720067900 19950 D1 SW1 R1 1 200 TYPICAL 1 Room Schedule L18 Name Area OFFICE1 30 m² OFFICE2 21 m² STAIRCASE 14 m² LIFT LOBBY 13 m² LIFT1 3 m² LIFT2 3 m² Room Schedule L18 Name Area BALCONY 3 m² TOI. 2 m² TOI. 2 m² RM. 1 m² RM. 1 m² 1 : 100 TYPICAL FLOOR L18 2 AREA SCHEMES NON SELLABLE AREA SELLABLE AREA CP2 70.00° 8125 7200 4625 19950 Lead Design BIM Consultant Client Local Architect Electrical Engineer Project Name Drawing Title Project No: Drawing No: Scale: Firefighting Consultant Interior Designer Structural Engineer Mechanical Engineer Stage: Date: ABC Design Consultancy 806, Arion Commercial 2-12 Queen's Road Sheung Wan, Hong ABC Design Consultancy 806, Arion Commercial 2-12 Queen's Road Sheung Wan, Hong ABC Design Consultancy 806, Arion Commercial 2-12 Queen's Road Sheung Wan, Hong AEC Engineering 1208, IFC, West Kowloon Hong Kong AEC Engineering AEC Engineering 1208, IFC, West Kowloon Hong Kong 1208, IFC, West Kowloon Hong Kong ABC ABC ABC AEC AEC AEC Enzyme APD Ltd 806, Arion Commercial 2-12 Queen's Road Sheung Wan, Hong As indicated 003 - ENZ ARC 4 003 11/09/22 A102_Floor Plan_Typical ENZYME ONEISTOX Capstone Project Queens Road Central, Central District Sheung Wan, Hong Kong N 22° 17' 5.40'' E 114° 9' 12.12'' Project Status Owner 1 : 200 TYPICAL FLOOR L 18 1 Room
Name Area OFFICE1 30 m² OFFICE2 21 m² STAIRCASE 14 m² LIFT LOBBY 13 m² LIFT1 3 m² LIFT2 3 m² Room Schedule L18 Name Area BALCONY 3 m² TOI. 2 m² TOI. 2 m² RM. 1 m² RM. 1 m² 1 : 100 TYPICAL FLOOR L18 2 AREA SCHEMES NON SELLABLE AREA SELLABLE AREA CP2 70.00° 8125 7200 4625 19950 Lead Design BIM Consultant Client Local Architect Electrical Engineer @ A1 Project Name Drawing Title Project No: Drawing No: Scale: Rev. Check: Firefighting Consultant Interior Designer Structural Engineer Mechanical Engineer Stage: Drawn: Date: ABC Design Consultancy 806, Arion Commercial Center, 2-12 Queen's Road West Sheung Wan, Hong Kong ABC Design Consultancy 806, Arion Commercial Center, 2-12 Queen's Road West Sheung Wan, Hong Kong ABC Design Consultancy 806, Arion Commercial Center, 2-12 Queen's Road West Sheung Wan, Hong Kong AEC Engineering Co 1208, IFC, West Kowloon Hong Kong AEC Engineering Co AEC Engineering Co 1208, IFC, West Kowloon Hong Kong 1208, IFC, West Kowloon Hong Kong ABC ABC ABC AEC AEC AEC Enzyme APD Ltd 806, Arion Commercial Center, 2-12 Queen's Road West Sheung Wan, Hong Kong As indicated 003 - ENZ - ARC 4 003 11/09/22 A102_Floor Plan_Typical ENZYME - ONEISTOX Capstone Project Queens Road Central, Central District Sheung Wan, Hong Kong N 22° 17' 5.40'' E 114° 9' 12.12'' Project Status Owner David Novatr 1 : 200 TYPICAL FLOOR L 18 1 Room
Name Area OFFICE1 30 m² OFFICE2 21 m² STAIRCASE 14 m² LIFT LOBBY 13 m² LIFT1 3 m² LIFT2 3 m² Room
Name Area BALCONY 3 m² TOI. 2 m² TOI. 2 m² RM. 1 m² RM. 1 m² 1 : 100 TYPICAL FLOOR L18 2
Schedule L18
Executive Office Lobby Elevator Staircase Office Room Balcony Toilet
Fig: 18
Level 18 Floor Plan Scale 1:100
Fig: 21 Level 18 Axonometric View Fig: 20 Area Plan Fig: 19 Level 18 Floor Section Scale 1:70 Table: 03 Level 18 Room Areas

Schedule L18

The following is RCP for Level 16 -Office. Gulamb timber slat of 50 x 100mm have been used for the ceiling.

2 types of ceiling lighting have been used such as drop pendant light and round flush mount light

BIM Portfolio | Selected works 2023 - 2024 Novatr Capstone Project CEILING PLAN LEVEL 16 14 15 2 3 4 5 6 A B C 1 60W 120V Ceiling Light Flat Round 100W 277V Pendant Light - Disk C1 C2 8125 7200 4625 6° C1 C1 C1 C1 C1 63175 64050 63175 Property Line ATYPICAL FLOOR L 16 60500 L16 SSL 60350 2675 50 100 63275 ATYPICAL FLOOR L 16 60500 L16 SSL 60350 2675 50 63225 Local Architect Electrical Engineer @ A1 Drawing Title Project No: Drawing No: Scale: Rev. Check: Stage: Drawn: Date: GENERAL NOTES 1. This drawing is Enzyme APD's property and must not be retained copied or used without Enzyme APD's authority. 2. All drawings are to be read in conjunction with other relevant drawings and specifications of the same and other disciplines. 3. This drawing is not to be scaled. Only written dimensions are to be followed. Any discrepancy must be advised to the Architect and the Engineer. 4. All dimensions are metric unless otherwise indicated. 5. The walls are dimensioned to the unfinished face of masonry or concrete unless otherwise noted. 6. Final coordination is the responsibility of the contractor. Any discrepancy must be brought to the attention of the Architect and the Engineer and must be resolved before commencement of work. ABC Design Consultancy 806, Arion Commercial Center, AEC Engineering Co 1208, IFC, West Kowloon Hong Kong ABC AEC As indicated 003 - ENZ ARC - 10 003 04/30/24 E101_RCP_Atypical N 22° 17' 5.40'' E 114° 9' 12.12'' Project Status DAVID NOVATR Rev Description Date FLOOR L 16 - Ceiling Plan 1 : 25 Section 1 - Callout 1 1 : 25 Section 1 - Callout 2 3 2 3 4 5 6 A B C 1 60W 120V Ceiling Light Flat Round 100W 277V Pendant Light - Disk C1 C2 8125 7200 4625 6° C1 C1 C1 C1 C1 63175 64050 63175 Property Line ATYPICAL FLOOR L 16 60500 L16 SSL 60350 2675 50 100 63275 ATYPICAL FLOOR L 16 60500 L16 SSL 60350 2675 50 63225 Local Architect @ A1 Project No: Drawing No: Scale: Rev. Check: Stage: Drawn: Date: 1. This drawing is Enzyme APD's property and must not be retained copied or used without Enzyme APD's authority. 2. All drawings are to be read in conjunction with other relevant drawings and specifications of the same and other disciplines. 3. This drawing is not to be scaled. Only written dimensions are to be followed. Any discrepancy must be advised to the Architect and the Engineer. 4. All dimensions are metric unless otherwise indicated. 5. The walls are dimensioned to the unfinished face of masonry or concrete unless otherwise noted. 6. Final coordination is the responsibility of the contractor. Any discrepancy must be brought to the attention of the Architect and the Engineer and must be resolved before commencement of work. ABC Design Consultancy 806, Arion Commercial Center, 2-12 Queen's Road West Sheung Wan, Hong Kong 1208, IFC, West Kowloon Hong Kong ABC AEC As indicated 003 - ENZ - ARC - 10 003 04/30/24 E101_RCP_Atypical Project Status DAVID NOVATR Rev Description Date FLOOR L 16 - Ceiling Plan 1 : 25 Section 1 - Callout 1 2 1 : 25 Section 1 - Callout 2 3 2 3 4 5 1 60W 120V Ceiling Light Flat Round 100W 277V Pendant Light - Disk C1 C2 8125 7200 4625 6° C1 C1 C1 C1 C1 63175 64050 63175 Property Line 2675 50 100 63275 ATYPICAL FLOOR L 16 60500 L16 SSL 60350 2675 50 63225 Local Architect @ A1 Drawing Title Project No: Drawing No: Scale: Rev. Check: Stage: Drawn: Date: 1. This drawing is Enzyme APD's property and must not be retained copied or used without Enzyme APD's authority. 2. All drawings are to be read in conjunction with other relevant drawings and specifications of the same and other disciplines. 3. This drawing is not to be scaled. Only written dimensions are to be followed. Any discrepancy must be advised to the Architect and the Engineer. 4. All dimensions are metric unless otherwise indicated. 5. The walls are dimensioned to the unfinished face of masonry or concrete unless otherwise noted. 6. Final coordination is the responsibility of the contractor. Any discrepancy must be brought to the attention of the Architect and the Engineer and must be resolved before commencement of work. ABC Design Consultancy 806, Arion Commercial Center, 2-12 Queen's Road West Sheung Wan, Hong Kong 1208, IFC, West Kowloon Hong Kong ABC AEC As indicated 003 ENZ ARC - 10 003 04/30/24 E101_RCP_Atypical Project Status DAVID NOVATR Rev Description Date 1 : 25 Section 1 - Callout 2 3 AREA SCHEMES NON SELLABLE AREA SELLABLE AREA CP2 70.00° 8125 7200 4625 19950 Lead Design BIM Consultant Client Project Name Drawing Title Project No: Drawing No: Scale: Firefighting Consultant Structural Engineer Mechanical Engineer Stage: Date: ABC Design Consultancy 806, Arion Commercial 2-12 Queen's Road Sheung Wan, Hong ABC Design Consultancy 806, Arion Commercial 2-12 Queen's Road Sheung Wan, Hong ABC Design Consultancy 806, Arion Commercial 2-12 Queen's Road Sheung Wan, Hong AEC Engineering 1208, IFC, West Kowloon Hong Kong AEC Engineering AEC Engineering 1208, IFC, West Kowloon Hong Kong 1208, IFC, West Kowloon Hong Kong ABC AEC AEC Enzyme APD Ltd 806, Arion Commercial 2-12 Queen's Road Sheung Wan, Hong As indicated 003 - ENZ ARC 4 003 11/09/22 A102_Floor Plan_Typical ENZYME ONEISTOX Capstone Project Queens Road Central, Central District Sheung Wan, Hong Kong N 22° 17' 5.40'' E 114° 9' 12.12'' Project Status Owner 1 : 200 TYPICAL FLOOR L 18 1 Room
Name Area OFFICE1 30 m² OFFICE2 21 m² STAIRCASE 14 m² LIFT LOBBY 13 m² LIFT1 3 m² LIFT2 3 m² Room
Name Area BALCONY 3 m² TOI. 2 m² TOI. 2 m² RM. 1 m² RM. 1 m² 1 : 100 TYPICAL FLOOR L18 2
Schedule L18
Fig: 22 Level 16 Ceiling Plan Scale 1:100 Fig: 26 Render View of Ceiling Type 2
Table: 04 RCP Legend Fig: 23 Detail Section - Ceiling Type 1 Scale 1:25 Fig: 24 Detail Section - Ceiling Type 2 Scale 1:25
Fig: 25 Render View of Ceiling Type 1

The structural arrangement follows a straightforward or ganizational approach, featuring merely five columns. A spaciouscentral core is incorporated with walls oriented in various directions. This design choice serves to reduce the number of columns, there by maximizing the available open space, a crucial factor for office environments. The secondary core layout comprises two condensed compartments, dedicated to housing all the elevators. The structural documentation operates independently but is coordinated within the architectural files, functioning as a Revit link.

L15 SSL

NVT_BEAM_CONC_B1_500X600MM 7 Concrete-Rectangular Beam L15 SSL

NVT_BEAM_CONC_B4-200X600MM 3 Concrete-Rectangular Beam L15 SSL

NVT_BEAM_CONC_B5-150X600MM 1 Concrete-Rectangular Beam L15 SSL

L16 SSL

NVT_BEAM_CONC_B1_500X600MM 7 Concrete-Rectangular Beam L16 SSL

NVT_BEAM_CONC_B3-250X600MM 1 Concrete-Rectangular Beam L16 SSL

NVT_BEAM_CONC_B4-200X600MM 3 Concrete-Rectangular Beam L16 SSL

NVT_BEAM_CONC_B5-150X600MM 1 Concrete-Rectangular Beam L16 SSL

L17 SSL

NVT_BEAM_CONC_B1_500X600MM 7 Concrete-Rectangular Beam L17 SSL

NVT_BEAM_CONC_B3-250X600MM 1 Concrete-Rectangular Beam L17 SSL

NVT_BEAM_CONC_B4-200X600MM 3 Concrete-Rectangular Beam L17 SSL

NVT_BEAM_CONC_B5-150X600MM 1 Concrete-Rectangular Beam L17 SSL

L18 SSL

NVT_BEAM_CONC_B1_500X600MM 6 Concrete-Rectangular Beam L18 SSL

NVT_BEAM_CONC_B3-250X600MM 1 Concrete-Rectangular Beam L18 SSL

NVT_BEAM_CONC_B4-200X600MM 3 Concrete-Rectangular Beam L18 SSL

NVT_BEAM_CONC_B5-150X600MM 1 Concrete-Rectangular Beam L18 SSL

L19 SSL

STRUCTUTRAL FRAMING SCHEDULE Type Count Family Reference Level

NVT_BEAM_CONC_B1_500X600MM 6 Concrete-Rectangular Beam L19 SSL

NVT_BEAM_CONC_B3-250X600MM 1 Concrete-Rectangular Beam L19 SSL

NVT_BEAM_CONC_B4-200X600MM 3 Concrete-Rectangular Beam L19 SSL

NVT_BEAM_CONC_B5-150X600MM 1 Concrete-Rectangular Beam L19 SSL

L20 SSL

NVT_BEAM_CONC_B1_500X600MM 6 Concrete-Rectangular Beam L20 SSL

NVT_BEAM_CONC_B3-250X600MM 1 Concrete-Rectangular Beam L20 SSL

NVT_BEAM_CONC_B4-200X600MM 3 Concrete-Rectangular Beam L20 SSL

NVT_BEAM_CONC_B5-150X600MM 1 Concrete-Rectangular Beam L20 SSL

L21 SSL

NVT_BEAM_CONC_B1_500X600MM 6 Concrete-Rectangular Beam L21 SSL

NVT_BEAM_CONC_B3-250X600MM 1 Concrete-Rectangular Beam L21 SSL

NVT_BEAM_CONC_B4-200X600MM 3 Concrete-Rectangular Beam L21 SSL

NVT_BEAM_CONC_B5-150X600MM 1 Concrete-Rectangular Beam L21 SSL

EDGE SLAB DETAILS LEVEL

BIM Portfolio | Selected works 2023 - 2024 Novatr Capstone Project STRUCTURAL PLAN LEVEL 16
16 16 2 3 4 5 6 A A B B C C 1 1 2 4 5 6 1-2 2-2 3-2 4-2 5-2 6-2 3 B1 C1 C1 B1 B1 B3 B1 B1 B1 B1 200MM THICK SLAB B1 B4 B4 B4 B5 C1 C1 4050 6000 8125 7200 4625 500 456250 7070 200 7000 200 4275 500 1771 500 Lead Design BIM Consultant Client Local Architect Electrical Engineer Project Name Drawing Title Project No: Drawing No: Scale: Firefighting Consultant Interior Designer Structural Engineer Mechanical Engineer Stage: Date: 3. This drawing is not to be scaled. Only written dimensions are followed. Any discrepancy must be advised to the Architect and Engineer. 4. All dimensions are metric unless otherwise indicated. 5. The walls are dimensioned to the unfinished face of masonry or unless otherwise noted. 6. Final coordination is the responsibility of the contractor. An must be brought to the attention of the Architect and the Engin be resolved before commencement of work. ABC Design Consultancy 806, Arion Commercial Center, 2-12 Queen's Road West Sheung Wan, Hong Kong ABC Design Consultancy 806, Arion Commercial Center, 2-12 Queen's Road West Sheung Wan, Hong Kong ABC Design Consultancy 806, Arion Commercial Center, 2-12 Queen's Road West Sheung Wan, Hong Kong AEC Engineering Co 1208, IFC, West Kowloon Hong Kong AEC Engineering Co AEC Engineering Co 1208, IFC, West Kowloon Hong Kong 1208, IFC, West Kowloon Hong Kong ABC ABC ABC AEC AEC AEC Enzyme APD Ltd 806, Arion Commercial Center, 2-12 Queen's Road West Sheung Wan, Hong Kong 1 100 003 - ENZ ARC - 12 003 04/13/24 S102_Framing Plan_Atypical ENZYME ONEISTOX Capstone Project Queens Road Central, Central District Sheung Wan, Hong Kong N 22° 17' 5.40'' E 114° 9' 12.12'' Project Status Owner Rev Description STRUCTURAL PLAN BEAM SCHEDULE S.NO. 500 X 600MM 250 X 600MM 200 X 600MM 150 X 600MM COLUMN SCHEDULE size count 900 x 500mm STRUCTURAL SLAB Level SS1 200MM +60350 SSL Structural Engineer Mechanical Engineer GENERAL NOTES 1. This drawing is Enzyme APD's property and must not be retained copied or used without Enzyme APD's authority. 2. All drawings are to be read in conjunction with other relevant drawings and specifications of the same and other disciplines. 3. This drawing is not to be scaled. Only written dimensions are to be followed. Any discrepancy must be advised to the Architect and the Engineer. 4. All dimensions are metric unless otherwise indicated. 5. The walls are dimensioned to the unfinished face of masonry or concrete unless otherwise noted. 6. Final coordination the responsibility of the contractor. An discrepancy must be brought to the attention of the Architect and the Engineer and must be resolved before commencement of work. AEC Engineering Co 1208, IFC, West Kowloon Hong Kong AEC Engineering Co 1208, IFC, AEC AEC Rev Description Date STRUCTUTRAL FRAMING SCHEDULE Type Count Family Reference Level
Fig: 27 Level 16 Structural Framing Plan Scale 1:100 Fig: 28 Structure 3D View
Fig:
Parallel to Slab Support Zone 3 Table: 05 Beam Schedule Zone 3 330 80 320 150 80 275 150 80 275 500 Mortar Zone between precast elements Mortar Zone between precast elements 80MM reinforced slab topping tied to edge beam with couplers Edge beam half joint onto primary beam CC3 CB6 CC3 SSL +5,800 M Level - E1 275 275 Mortar Zone between 330 80 320 Mortar Zone precast Precast 550/550mm FL5 Mortar precast Precast 550/550mm FL5 450 450 1923 SW2 +67750 SSL 1 : 20 EDGE BEAM PARALLEL TO SLAB SUPPORT 2 1 : 20 COLUMN/BEAM/SLAB 1 1 : 100 L18 SSL 4 330 80 320 150 80 275 150 80 275 500 Mortar Zone between precast elements Mortar Zone between precast elements 80MM reinforced slab topping tied to edge beam with couplers Edge beam half joint onto primary beam CC3 CB6 CC3 SSL +5,800 M Level E1 275 275 320 330 80 Mortar Zone between precast elements Mortar Zone between precast elements FL5 CC3 CC3 SSL +5,800 M Level E1 CB6 500 Mortar precast Precast 550/550mm FL5 1 : 20 EDGE BEAM PARALLEL TO SLAB SUPPORT 2 1 : 20 EDGE BEAM TO SLAB (NON-SPAN TYPE) 3 1 : COLUMN/BEAM/SLAB 1 1 : COLUMN/BEAM/SLAB 5 1 : 100 L18 SSL 4
Fig: 28 Edge Beam to slab (Non-Span type)
28 Edge Beam

The totol height of the project is 82700mm form ground level, there are a total of 21 floors with a basement. The following details are for Zone 3, i.e, Level16- Level 22. The figure here shows the section for the building and a blowup section showing the different floor types used, different, external facade and the ceiling type. The axonometric shows the external and internal building elements

Door D1 Single Leaf 900 x 2100 mm 4" Dia Pipe Wall W1 100mm thk. !5 mm Finish 2 Side 70mm cellulose Wall Door Pocket Sliding Wall W2 200mm thk. 500 x 50 mm thk. Mullion Glazed Louvers Floor F1 150mm (ARC.) 25mm Ceramic Tile 75mm Foam Seal Fill 50mm Cement Screed Floor F1 (STR) 200mm Concrete False Ceiling C2 50mm thk. Gypsum BIM Portfolio | Selected works 2023 - 2024 Novatr Capstone Project SECTION 20 21 Level 0 0 L 1 5000 L 2 8700 L 3 12400 L 4 16100 L 5 19800 L 6 23500 L 7 27200 L 8 30900 L 9 34600 L 10 38300 L 11 42000 L 12 45700 L 13 49400 L 14 53100 L 15 56800 ATYPICAL FLOOR L 16 60500 L 17 64200 L 18 67900 L 19 71600 L 20 75300 L 21 79000 L 22 82700 2 3 4 5 6 Basement 1 -3700 1 3700 3700 3700 3700 3700 3700 3700 3700 3700 3700 3700 3700 5000 3700 3700 3700 3700 3700 3700 3700 3700 3700 38300 Level 0 0 3 6 2 6 1 2675 100 150 CP2 64.00° C2 F1 D4 120 WL1 OFFICE 2 175 400 200 275 L 18 67900 L 19 71600 D4 120 F1 WL1 2675 50 150 225 400 200 Lead Design BIM Consultant Client Local Architect Electrical Engineer @ A1 Project Name Drawing Title Project No: Drawing No: Scale: Rev. Check: Firefighting Consultant Interior Designer Structural Engineer Mechanical Engineer Stage: Drawn: Date: GENERAL NOTES This drawing is Enzyme APD's property and must not be retained copied or used without Enzyme APD's authority. All drawings are to be read in conjunction with other relevant drawings and specifications of the same and other disciplines. This drawing is not to be scaled. Only written dimensions are followed. Any discrepancy must be advised to the Architect and the Engineer. All dimensions are metric unless otherwise indicated. The walls are dimensioned to the unfinished face of masonry or concrete unless otherwise noted. Final coordination is the responsibility of the contractor. Any discrepancy must be brought to the attention of the Architect and the Engineer and must be resolved before commencement of work. ABC Design Consultancy 806, Arion Commercial Center, 2-12 Queen's Road West Sheung Wan, Hong Kong ABC Design Consultancy 806, Arion Commercial Center, 2-12 Queen's Road West Sheung Wan, Hong Kong ABC Design Consultancy 806, Arion Commercial Center, 2-12 Queen's Road West Sheung Wan, Hong Kong AEC Engineering Co 1208, IFC, West Kowloon Hong Kong ABC ABC ABC AEC AEC AEC Enzyme APD Ltd 806, Arion Commercial Center, 2-12 Queen's Road West Sheung Wan, Hong Kong As indicated 003 ENZ ARC - 6 003 04/13/24 A104_Section A-A' ENZYME ONEISTOX Capstone Project Queens Road Central, Central District Sheung Wan, Hong Kong N 22° 17' 5.40'' E 114° 9' 12.12'' Project Status Owner Author Checker Rev Date 200 Section A - A' 1 : 50 Section A - A' - Detail 2 2 1 : 50 Section A - A' - Detail 1 3 2 3 4 5 6 1 3700 3700 3700 3700 3700 3700 3700 3700 3700 3700 3 6 L 18 67900 L 19 71600 4 C1 D4 120 F1 F2 WL1 3700 R1 2675 50 150 OFFICE 1 225 400 200 GENERAL NOTES 1. This drawing is Enzyme APD's property and must not be retained copied or used without Enzyme APD's authority. 2. All drawings are to be read in conjunction with other relevant drawings and specifications of the same and other disciplines. 3. This drawing is not to be scaled. Only written dimensions are to be followed. Any discrepancy must be advised to the Architect and the Engineer. 4. All dimensions are metric unless otherwise indicated. 5. The walls are dimensioned to the unfinished face of masonry or concrete unless otherwise noted. 6. Final coordination is the responsibility of the contractor. Any discrepancy must be brought to the attention of the Architect and the Engineer and must be resolved before commencement of work. Rev Description Date 1 : 50 Section A - A' - Detail 1 3 3700 3700 3700 3700 3700 3700 3700 3700 3700 3700 3700 3700 5000 3700 3700 3700 3700 3700 3700 3700 3700 3 6 1 CP2 64.00° C2 F1 D4 120 WL1 OFFICE 2 175 200 275 L 18 67900 C1 D4 120 F1 F2 WL1 3700 R1 2675 50 OFFICE 1 225 400 Client @ A1 Project Name Drawing Title Project No: Drawing No: Scale: Rev. Check: Stage: Drawn: Date: ABC Design Consultancy 806, Arion Commercial Center, 2-12 Queen's Road West Sheung Wan, Hong Kong ABC Design Consultancy 806, Arion Commercial Center, 2-12 Queen's Road West Sheung Wan, Hong Kong ABC Design Consultancy 806, Arion Commercial Center, 2-12 Queen's Road West Sheung Wan, Hong Kong AEC Engineering Co AEC Engineering Co AEC Engineering Co Enzyme APD Ltd 806, Arion Commercial Center, 2-12 Queen's Road West Sheung Wan, Hong Kong As indicated 003 ENZ ARC 6 003 04/13/24 A104_Section A-A' ENZYME ONEISTOX Capstone Project Queens Road Central, Central District Sheung Wan, Hong Kong N 22° 17' 5.40'' E 114° 9' 12.12'' Project Status Owner Author Checker 1 : 50 Section A - A' - Detail 2 2 1 : 50 Section A - A' - Detail 1 3
Fig: 33 SECTION A-A’ Fig: 34 Callout Detail 2 Scale 1:50 Fig: 35 Callout Detail 3 Scale 1:50 Door D1 Single Leaf 900 x 2100 mm 4" Dia Pipe Wall W1 100mm thk. !5 mm Finish 2 Side 70mm cellulose Wall Door Pocket Sliding Wall W2 200mm thk. 500 x 50 mm thk. Mullion Glazed Louvers Floor F1 150mm (ARC.) 25mm Ceramic Tile 75mm Foam Seal Fill 50mm Cement Screed Floor F1 (STR) 200mm Concrete False Ceiling C2 50mm thk. Gypsum Floor F1 (STR) 200m Concrete HVAC Sysytem Beam B3 250 x 600 mm Beam B1 500 x 600 mm False Ceiling Gypsum 50 mm thk. Column C1 500 x 900 mm Floor F1mm (ARC.) 25mm Ceramic Tile 75mm Foam Seal Fill 50mm Cement Screed Railing Rectangular Mullion 600 x 400 mm Axonometric view 1(External) 1 Axonometric View 2 (Internal) 2
Fig: 36 Axonometric View 2 (Internal)
2
Fig: 37 Axonometric View
(External)
BIM Portfolio | Selected works 2023 - 2024 22 23
Fig: 38 Zone3 Exploaded
3D
View Fig: 39 3D View

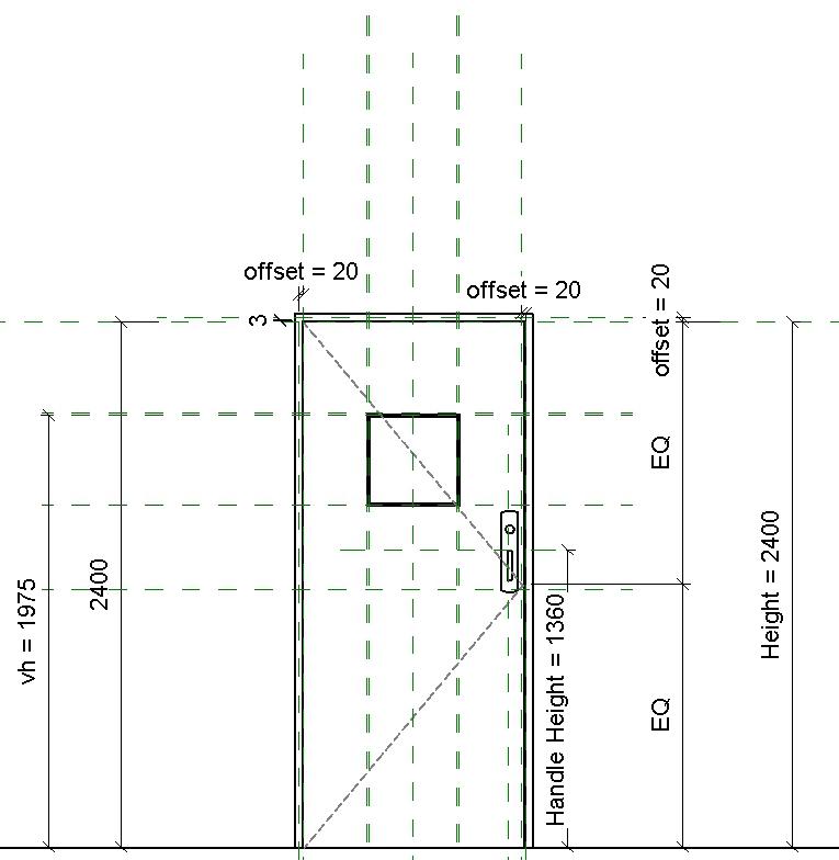
This section of portfolio shows some of the instances of the family that was created. Various family were created for the project such as Doors, Walls, Floors, Railing, Column, Beams, Staircase etc. Doors were created with parametric values and Fire ratings.

BIM Portfolio | Selected works 2023 - 2024 Novatr Capstone Project
FAMILY CREATION - WALL 24 25 2445 2400 900 2100 900 1950 850 2214 738 900 2100 1090 15 45 15 INSULATION (CELLULOSE) GYPSUM BOARD 15 70 15 INSULATION GYPSUM BOARD FLOOR FINISH INSULATION (FOAM SEAL) CEMENT SCREED RCC SLAB AS/STR 25 FLOOR FINISH INSULATION CEMENT SCREED 50 50 50 FLOOR FINISH CEMENT SCREED 50 50 GRASS 400 1 : 30 D 1 : 5 75MM PARTITION WALL Copy 1 1 1 : 5 100MM THICK WALL 2 FLOOR F1 Copy 1 1 : 5 FLOOR F2 Copy 1 4 1 : 5 FLOOR 3 Copy 1 5 2445 900 900 850 2214 2100 15 45 15 INSULATION (CELLULOSE) GYPSUM BOARD 15 70 15 INSULATION (CELLULOSE) GYPSUM BOARD GENERAL NOTES 1. This drawing is Enzyme or used without Enzyme 2. All drawings are to be specifications of the same 3. This drawing is not to followed. Any discrepancy Engineer. 4. All dimensions are metric 5. The walls are dimensioned unless otherwise noted. 6. Final coordination is must be brought to the be resolved before commencement Rev 1 : 5 75MM PARTITION WALL Copy 1 1 1 : 5 100MM THICK WALL Copy 1 2 FLOOR FINISH INSULATION (FOAM SEAL) CEMENT SCREED RCC SLAB AS/STR 50 75 25 FLOOR FINISH INSULATION 50 50 50 GRASS CEMENT SCREED 400 50 1 : 30 D 1 : 5 FLOOR F1 Copy 1 3 1 : 5 FLOOR F2 Copy 1 4 1 : 5 FLOOR F4 F5 F6 Copy 1 6 2445 2214 2100 FLOOR FINISH INSULATION (FOAM SEAL) CEMENT SCREED RCC SLAB AS/STR 50 75 25 FLOOR FINISH INSULATION CEMENT SCREED 50 50 50 FLOOR FINISH CEMENT SCREED 50 50 GRASS CEMENT SCREED 400 50 1 30 D 1 : 5 75MM PARTITION WALL Copy 1 1 1 : 5 100MM THICK WALL Copy 1 2 1 : 5 FLOOR F1 Copy 1 3 1 5 FLOOR F2 Copy 1 4 1 : 5 FLOOR 3 Copy 1 5 1 : 5 FLOOR F4 F5 F6 Copy 1 6 2445 2400 2100 1950 2214 738 900 2100 1090 INSULATION (CELLULOSE) GYPSUM BOARD INSULATION (CELLULOSE) GYPSUM BOARD FLOOR FINISH INSULATION (FOAM SEAL) CEMENT SCREED RCC SLAB AS/STR 50 75 25 FLOOR FINISH INSULATION CEMENT SCREED 50 50 50 FLOOR FINISH CEMENT SCREED 50 50 GRASS CEMENT SCREED 50 1 : 30 D 1 : 5 75MM PARTITION WALL Copy 1 1 1 : 5 100MM THICK WALL Copy 2 1 : 5 FLOOR F1 Copy 1 3 1 : 5 FLOOR F2 Copy 1 4 1 : 5 FLOOR 3 Copy 1 5 FLOOR F4 F5 F6 Copy 1 FLOOR FINISH INSULATION (FOAM SEAL) CEMENT SCREED RCC SLAB AS/STR 50 75 25 GRASS CEMENT SCREED 400 50 1 : 30 D 1 : 5 FLOOR F1 Copy 1 3 1 : 5 FLOOR F4 F5 F6 Copy 1 6 2445 2400 900 2100 900 1950 850 2214 738 900 2100 1090 15 45 15 INSULATION (CELLULOSE) GYPSUM BOARD 15 70 15 INSULATION GYPSUM BOARD FLOOR FINISH INSULATION (FOAM SEAL) CEMENT SCREED RCC SLAB AS/STR FLOOR FINISH INSULATION CEMENT SCREED 50 50 50 FLOOR FINISH CEMENT SCREED 50 50 GRASS 400 50 1 : 30 D 1 5 75MM PARTITION WALL Copy 1 1 1 5 100MM THICK WALL 2 FLOOR F1 Copy 1 1 : 5 FLOOR F2 Copy 1 4 1 : 5 FLOOR 3 Copy 1 5
FAMILY CREATION - DOOR FAMILY CREATION - FLOOR
Door Schedule Fig: 40 Door Legend Door D1 Single Leaf 850 X 1950 Door D4 Pocket Door 738 X 2214 Door D2 Single Leaf 900 X 2100 Door D5 Glass Door 900 X 2100 Door D3 Single Leaf 900 X 2400 Door D6 Fire Rated Door 1090 X 2445 Fig: 42 Fire Door Parameters Fig: 41 Fire Door Plan & Elevation
Fig: 39
43 Floor Family Legend Floor F2 150mm Thk. Wall W1 75mm Thk. Wall W2 100mm Thk. Floor F1 150mm Thk. Floor F4 400mm Thk. Floor F3 100mm Thk.
Fig:
44 Wall Family Legend
Fig:

NAVISWORK - CLASH DETECTION

Novisworks clash detection is a valuable process that plays a crucial role in the coordination and successful execution of construction projects. By utilizing the powerful clash detection capabilities of Navisworks software, clashes and conflicts between different building elements, such as architectural, structural, and MEP components, can be identified and addressed. Clash detection involves the automated analysis of models from different disciplines to identify clashes where elements intersect or overlap in the virtual space

NAVISWORKS CLASH DETECTION MATRIX

NAVISWORK - CLASH REPORT

BIM Portfolio | Selected works 2023 - 2024 Novatr Capstone Project
26 27
Fig: 46 Clash Arc vs Str Fig: 49 Clash Report Arc vs Str Fig: 50 Clash Report Str vs MEP Fig: 51 Clash Report After Resolving and Assigning all the Clashes Fig: 47 Clash Arc vs MEP Fig: 48 Clash Str vs MEP Fig: 45 Naviswork Clash Detection Tablle: 07 Clash detection Matrix
ARC WALL & FLOOR N/A N/A N/A N/A STR STRUCT. T01 N/A N/A N/A N/A N/A N/A N/A Low Priority High Priority MEP SIT SITE N/A MEP T02 T03 T04 N/A MEP SITE CLASH DETECTION MATRIX ARC STR MEP SIT WALL & FLOOR STRUCT.

NAVISWORK - 4D & 5D PLANNING

4D Simulation:

Timeliner simulation con be easily prepared via naviswork with help of project data put together in a CSV file.

• Setting Sets as per 4D parameter.

• Attaching the sets to their corresponding data entries.

• We can extract that simulation just by exporting it in a movie format.

5D Planning:

It includes information related to cost estimation and quantity related data of the project, which helps with information about purchasing, installing, running and maintenance

BIM Portfolio | Selected works 2023 - 2024 Novatr Capstone Project
28 29
Fig: 53 Timeliner Table: 8 Quantification Report Fig: 52 4D Simulation

3D RENDER VIEWS

BIM Portfolio | Selected works 2023 - 2024 Novatr Capstone Project
30 31
Fig: 54 Street View Fig: 56 East Side View Fig: 55 Office View - Exterior Fig: 57 South -West side View

REVIT FAMILY + DYNAMO

This is a small project in Revit using Dynamo and Revit family. At first created a triangle facade ACP panel with parameters which then imported to conceptual massing and with Dynamo, assigned the values of openings and shuffled them all along the facade.

BIM Portfolio | Selected works 2023 - 2024 Novatr Capstone Project
32 33
Fig: 62 Exterior 3D View Render in Lumion Fig: 63 3D View Render in Lumion Fig: 59 Creating a Facade Panel family in Revit Fig: 60 Setting Parameters Fig: 61 Exterior Elevation Fig: 58 Dynamo Script

https://www.linkedin.com/in/david-siby https://issuu.com/dave4444 Poomattam0@gmail.com +91 75 61 81 8055

Turn static files into dynamic content formats.

Create a flipbook