David Cordato's Architectural Portfolio 2023

Page 1

DAVID W. CORDATO

Architectural Portfolio 2015 - 2023

SMALL PROJECTS 34 BUNGENDORE HIGH SCHOOL (CC Documentation & SSDA Presentation) 36 LIVERPOOL HIGH SCHOOL (SSDA Aplication & Documentation) 37 PARRAMATTA ROAD (Construction & DA Documentation) 40 PARNENO STREET (New Multi-Residential Construction) 44 THE GREAT BARRIER (Infrastructure) 45 PEAKING THROUGH THE TREES (Sustainable Housing) 46 SYDENHAM APARTMENTS (Mixed Use/ Co-Housing) 04 KYTHERA (New House) 06 WOLSELEY STREET APARTMENT (Internal Alterations & Additions) 07 GLEBE (Shoptop Addition & Alteration) 08 BOWER STREET (External Alterations & Additions) 10 CORBEN STREET (Additions & Alterations) 12 PERONNE AVENUE (Construction Documentation) 14 ST GEORGES CRESENT (New Residential House) 16 MACEDONIAN CHAPEL (Religious Building Alterations & Additions) 18 KINGSWAY (Residential Alterations & Additions) 20 EUROKA STREET (Residential Alterations & Additions) 23 THE WHY FACTORY (Exhibition) CONTENTS MEDIUM PROJECTS LARGE PROJECTS 24 IBIS HOTEL, ST PETERS (Additions & Alterations) 26 IBIS HOTEL, MASCOT (Additions & Alterations) 28 IBIS HOTEL, THORNLEIGH (Additions & Alterations) 30 QUEENS CLUB (Construction Documentation) 31 GOODISON STREET (Childcare) 32 TALLAWONG PRIMARY SCHOOL (SSDA Aplication & Documentation)

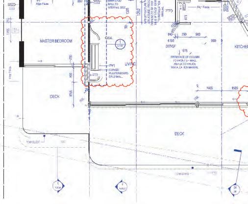
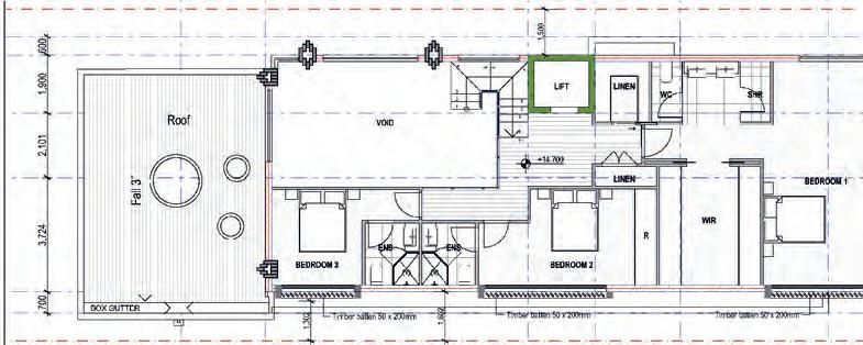
KYTHERA, Greece

These buildings are to be a holiday house on the Island of Kythera, in Greece. This is a second iteration of this project. I had an existing driveway which was to be utilised for the entry to the site, this has meant that majority of the house is on a lower level, next to the existing olive grove. the area also has a unique 15m boundary setback, which has influenced the placement and shape of the rooms. As it sits on a hill, the view towards the sea is key, so the deck and outdoor spaces have been orientated towards this direction. Additionally the Client requested the use of traditional materials and techneques that can be acheived by the local builders and not require people to be brought in from other parts of Europe. This has required a study of recently constructed building on the island, as well as a study of traditional materials such as the stone that comes from the island to be used for the lower level of the main house. This project is currently under going changes to add further construction details post a site visit to the island.

Enscape Renders
04 SMALL PROJECTS DWC DESIGNS
05 KYTHERA SMALL PROJECTS
Lower Ground Plan (above); Ground Floor Plan (below)

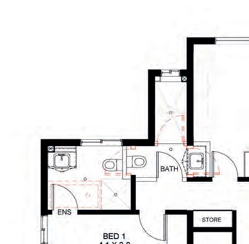
WOLSELEY STREET APARTMENT, Drummoyne

This project was completed through my own small firm. I was originally tasked with formalising the existing toilet, where the main bathroom now sits, however it ended up being more efficient to turn the former bathroom with seperate toilet into an ensuite from the main bed and a main bathroom in the former toilet and hallway space. This re-work required additional plumbing to be cored into the slab which was able to be acheived by the unit being an elevated ground floor with the MSB/ service areas being below the new wet areas.

The new entry door to Bed 2 has also brought light into the rear of the living space which was an added benefit of using the previous doorway for the sink area. The new laundry was inspired by the existing tiling, with an attempt to tie it into the existing kitchen flooring which was to be retained. The kitchen was minimally updated as to tie the new laundry into the larger space, this was acheived by updating the benchtops and sink to match the laundry finishes. The key additions to the other spaces was more storage as this minimises the clients requirements for additional furniture to be brought in.

Floor Plans (above), Photo of Ensuite & Laundry (below)
06 SMALL PROJECTS DWC DESIGNS

GLEBE POINT ROAD, Glebe

This project is still in the early concept stages as the Survey only came in recently. Although there are some initial concepts that I’m working through for this project. Currently it is two small shops that where split in the late 70s early 80s. at the time they had the tops as studios. The intent is to return them to one building, with a larger ground floor shop, and one bedroom apartment on the first floor, and a two bedroom above. The project is currently moving onto revit, where the lights will be adjusted and compliance checks can be done.

Concept Floor Plan Sketches S
07 SMALL PROJECTS DWC DESIGNS
Concept Southern Elevation

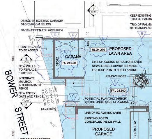
BOWER STREET, Manly

This project was very interesting, we were asked to re-do the front, as well as the pool area, with a grotto below. I included it being one that I had a lot of contact with the client to refine the final design. The image above was on Sketchup and shows the street scape, with our proposal’s minimal impact. The plans and sections shown are of the garage and cabana areas which required back and forth with the council to get approved. The project was an old one from the office so it was in AutoCAD, which I used to alter and add our new design to. This project required an indepth study of the neighbours as the intent was to build on both boundaries.

SketchUp Render
08 SMALL PROJECTS SQUILLACE
AutoCAD Drawings; Plan & Section 09 BOWER STREET SMALL PROJECTS

REVIT Floor Plans Level 1 (above); Floor Plans Level 2 (below)

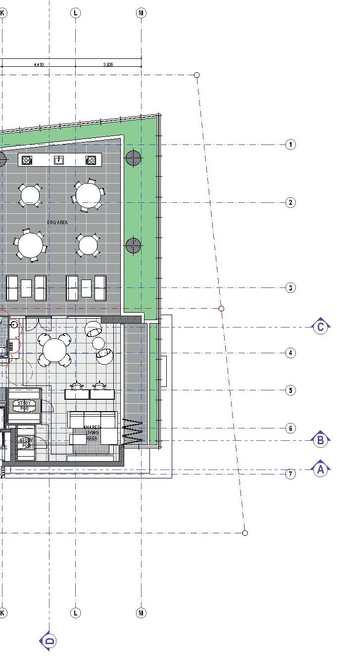
CORBEN STREET, Surry Hills

This project though small I enjoyed the constraints of a tight site and thought we had to break the height plane, the outcome would provide more benefits than negatives. The simplicity of adding the roof terrace in preference of the existing roof has given this small urban property much needed green space. I worked directly under the associate to do the modelling and drawings and due to this being an additional DA to the original that was only just starting, it will be able to be constructed in preference to the proposed roof. There were also concerns from the outlook from the street that had to be considered with the spiral stairs design and placement.

10 SMALL PROJECTS SQUILLACE
11 CORBEN STREET SMALL PROJECTS
Elevations (above), Section (below)

PERONNE AVENUE, Clontarf

This project was one I helped out with as it was well into construction when I joined the team. However I was able to help model and co-ordinate a couple of elements that required further levels of detail than originally foreseen. The first being the ‘Garden Stairs’ which had to be engineered to hang over a shotcrete wall. This required modeling the existing as acurately as possible so that the engineer could understand the intent. We also had to co-ordinate a number of services to be placed below the stairs and get it to marry into an existing driveway slab.

The second is the fireplace, which sits above a similar one in the room below. The flue’s required a bit of co-ordination so that they would look good together on the second floor. As well as the requirements for the fireplace, there was also a TV unit to be built in which, required further co-ordination with the various trades, and main builder on site.

Photo of street entry, with the Stairs as the main focus (above), REVIT Plans of canterleivered Stair (below)
12 SMALL PROJECTS SQUILLACE
13 PERONNE AVENUE SMALL PROJECTS
REVIT Wall Setout Plan, showing the fireplace (above) Photo on site (below)

ST GEORGES CRESENT, Drummoyne

This house was an interesting process as it required a S4.55, as the approved design was being modernised before construction. This gave us the heights and angles for our ‘folds’ which follow the approved pitches but removes the returns to allow clerestory windows to be utilised. I had to then work out the overlaps between the plans, with the basement and ground floor being similar enough to begin construction under the approved plans.

I was able to model it in a large amount of detail, as the client wanted to see it in as much detail as possible internally and externally. I was also able to model a pool that sits at an upper level behind the rear deck, and the surounding context buildings as to allow the clients to better discuss the proposed changes with the neighbouring houses.

ArchiCAD Render of Street Entry
14 SMALL PROJECTS TASMEEN
Roof Level Ground Level Level 1 15 SMALL PROJECTS ST GEORGES CRESENT

MACEDONIAN CHAPEL, Sutherland

I wanted to include this project because of the interaction between the new structure and the existing chapel structure. This is because it is a minature replica of a traditional church from North Macedon, and the community was required to approve of the design as to generate the funding for this project. I was required to draw up the exisiting building acurately as to insure that the addition could be priced accurately and fitted with the existing form. Due to it’s location in a heritage cemetery, it required their approval in addition to the congregation. They required features such as the ability to lock the doors in an open position, and it to not impact further on the surounding area. I enjoyed the various meetings that were required for the project, having to listen to a number of stakeholders provided a unique experience on such a small project.

ArchiCAD Render (above), Floor Plan/ Roof Plan (below)
Soil 14. Galvanised Structural Channel Box Gutter 15. Exisiting Roof, replace Tiles with Standing Seam. 15A. Modified to a Facetted Hip Roof. 16. Standing Seam Roof with a Zinc Matt Finish 17. Sump and DP 18. Modified DP KEY: 1. Exisiting Concrete 2. Cut to match new 3. Existing Slab 4. New Concrete 5. Removed DP’s 6. Tile Flooring 7. Exisiting Roof Line Above 8. Remove Timber Columns 9. New Concrete Slab 10. GMS CHS Column/ DP 11. Roof Above 12. Bi-Fold Doors 13. Grade Surounding 16 SMALL PROJECTS VIC LAKE ARCHITECTURE
1 3 4 5 6 7 EXTG CHAPEL 1 2 3 4 5 6 7 9 EXTG CHAPEL 1 2 3 4 5 6 7 9 EXTG CHAPEL 2 3 4 5 6 7 8 EXTG CHAPEL EASTELEVATION SOUTHELEVATION NORTHELEVATION WESTELEVATION Site plan, an overlay of the proposed design onto the exisiting survey. 17 MACEDONIAN CHAPEL SMALL PROJECTS

KINGSWAY, Cronulla

The Kingsway Appartment, this project provided a number of opportunities for me to learn about how to retrofit an existing space for a new purpose. The client wanted to convert his existing office into his new home. This oportunity opened up to them after a change in the regulations for that area. The key issues were trying to fit the required amenities into such an irregular site, in addition providing high quaility spaces that complement the view.

I was involved in all stages of this projects documentation for council submission, and was under the Practice Architect, and worked along side an in house interiors designer, for the specifications. This was a really interesting project to start with measuring out the office and ending with a bespoke apartment, I found this to be a good learning experience.

Perspective view from the Kingsway, looking at the proposed addition.
18 SMALL PROJECTS VIC LAKE ARCHITECTURE

PEDESTRIANWALK(LOCALVEHICULARTRAFFICONLY)

PREYMAN SQUARE

THEESPLANADE

KEY:

Site Plan, showing the unique location of the exisiting building. (above); Proposed Floor Plan, here we were required to convert the space in to a modern 2 bedroom apartment. Which better utilised its location. (below)

SUBJECTSITE(LOT7)

EXTGLANDSCAPEDAREA PAVEDAREA

DUNNINGHAM PARK NORTH CRONULLA BEACH ROOFABOVE RESTAURANT 'SEALEVEL' CARPARK ENTRANCE
2-6KINGSWAY TERRACE/ BALCONY FIRSTFLOOR RESTAURANTROOF GROUNDFLOOR TERRACE/ BALCONY FIRSTFLOOR TERRACE/ BALCONY SECONDFLOOR LEADSTO GERRALEST. TOWARDS ROCKPOOLS MAIN ENTRANCE CAFEROOF 'NEXTDOOR CRONULLA' HOG'S
CRONULLA KINGSWAY
2McDONALDSTREET
8-18KINGSWAY
AUSTRALIA'S STEAKHOUSE
TERRACE/ BALCONY SECONDFLOOR
ROOF SECONDFLOOR ROOF THIRDFLOOR AWNING GROUNDFLOOR PED ES TR I A N W ALK TO M cDONALDST BATE BAY
SAND WATER 19 KINGSWAY SMALL PROJECTS

EUROKA STREET, Waverton

This project involved the alteration and addition of an existing Heritage Terrace in Waverton. My role focused on delivering a drawing package for both trades and the client. This involved creating a Windows/ Doors Schedule, Concrete/Masonry/Cladding Scope drawings as well as the room details and renders. This was coupled with a developing design process that changed the project based on various code requirements, which was an interesting design challenge to tackle. Included in the package are selected drawings I enjoyed from the project, like the custom ‘Wolf’ Brand Oven in the Kitchen and the custom TV Cabinet for the Master Bedroom.

Perspective view from Dining Area into Kitchen, with Laundry to the right through the closed door.
20 SMALL PROJECTS 4D ARCHITECTURE & DESIGN

Kitchen Detailing; above is the detailed drawing set combined with Revit renders of the Kitchen. Through the process there was a number of key product specifications that influenced the final design.

21 EUROKA STREET SMALL PROJECTS

Bedroom Detailing; This drawing was selected because I was given the task to fit a variety of elements into a small area. This included the TV in such a way that the doors wouldn’t obstruct the function, while also providing hanging space in built-ins that are too shallow for a traditional instillation method. Above shows the renderings of the doors closed and open.

22 EUROKA STREET SMALL PROJECTS

THE WHY FACTORY

This project was completed in conjunction with the ‘Why Factory’ in Delft (Netherlands). The subject was conceived by Winy Maas (MVRDV), when he visited Sydney at the beginning of the subject to run an intensive workshop. Then when we went to Delft for the second half of the subject we worked closely with him and the teaching staff at Delft University. I worked on the graphic representation of the ‘game’ engine, along with final presentation of the three universities projects. It was a great experience studying at a foreign university, and provided insight into a working firm through our visits to the MVRDV offices.

Photos featuring the final presentations of the globes and the future world ‘game’ engine, at the TU Delft Institute.
23 SMALL PROJECTS DELFT UNIVERSITY
The early iterations of the presentation required the globes to be hung. I was assigned the design of the presentation space; the hanging system was an option we had entertained.

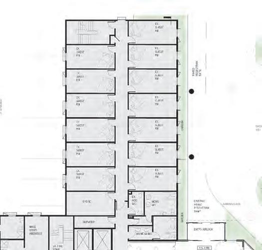
IBIS HOTEL, St Peters

This is the first of the IBIS projects I was working on. There were four which my team worked on with the first three I drew up the majority. The St Peters Tavern was an extension to an existing IBIS Hotel, to which we added a Pub and some new Accommodation above, while retaining the rear of the existing building. I included the Enscape Renders as they turned out well with the addition of the Signage modeled from the consultants drawings as well as the window boxes that I made as a family to make the application to multiple projects easier. The tiling also required a brass inlay that I modeled so that it would pop in the renders. I also included the plan for the Pub Layout as I worked a lot with interiors to work out patron numbers and other BOH requirements for Pub venues.

Render
REVIT
24 MEDIUM PROJECTS SQUILLACE
25 IBIS ST PETERS MEDIUM PROJECTS
Ground Floor Plan (above); REVIT Render (below)

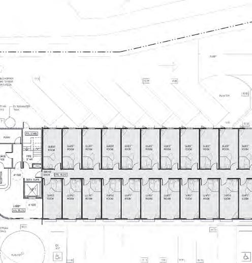
IBIS HOTEL, Mascot

This was the second and largest of the IBIS projects I worked on, which was to wrap the existing Hotel as to just replace the existing one storey lobby area on O’Riordan Street. This project included a large gym, office level for the client, as well as a conference center/ hotel restaraunt, with the pub level on the Ground. The bronze facade was an interesting thing to model as well as the art deco inspired awnings with the signage included. This project again had all existing windows having a window box added, as to bring up the existing to the level of the new. This project required extensive details relating to the interface with the existing building as it was a budget hotel the ceiling levels required us to combine floors internally to gain the required head room for the commercial spaces.

26 MEDIUM PROJECTS SQUILLACE
REVIT Renders
27 IBIS MASCOT MEDIUM PROJECTS
Ground Floor Plan (above) Elevation (below)

IBIS HOTEL, Thornleigh

This is the third IBIS Hotel I worked on. It was the most challenging to model, due to the nature of the site boundary and location on the corner. The Thornleigh Tavern was inspired by the classic pub look, which had to meld into the existing L shape of the Hotel behind. Due to this a number of curves were required along the primary facade which required a consistent aesthetic to avoid drawing the eye to any one point. I enjoyed the process for this DA as it required a lot of fine tuning and special council requirements due to it’s proximity to the main road.

28 MEDIUM PROJECTS SQUILLACE
REVIT Renders
29 IBIS THORNLEIGH MEDIUM PROJECTS
Render of Corner Approach (above); Level 1 Plan (above)

First Floor Details

QUEEN’S CLUB, CBD

This was an interesting project to help out with, as it is an existing club that was staging the build as to continue operations while upgrading the building. It was in the construction stage of the second and now first where we had to account for a change in the slab and beams as they had not been confirmed till demolition was conducted. The key areas we had to adjust were around the club room and the drawing room, where the walls fold away. In addition the mechanical ducting needed to be redesigned to accommodate the drop in the beams.

As this was an in construction heritage project it was interesting to see what areas where of concern as well as they key features that where being removed to then be rectified. This was an existing AutoCAD file that I made amendments to.

DRAWING ROOM 2.05 SITTING ROOM A 2.06 SECOND FLOOR RL 31.11 FFL 2.714 FFL 2.540 LIBRARY 2.03 DRAWING ROOM 2.05 SOUTHERN LIGHTWELL (E)FD (E)FD (E)FD (E)FD DRAWING ROOM 2.05 SITTING ROOM A 2.06 CLUB ROOM 2.07 STAIR HALL 2.01 HALL 2.15 DUCT STAIR 1 2.02 LIFT GOODS LIFT FH ROOF DECK 2.11 SERVERY 2.13 STAFF ROOM 2.12 WESTERN LIGHTWELL STAIR 3 2.10 ROOF POWDER RM 2.14 FHR FHR SITTING ROOM B 2.16 (E)D (E)D (E)D (E)D ADJOINING PROPERTY ADJOINING PROPERTY (E)FD (E)FD BAR STORE 2.08 BAR 2.09 (N)D (N)D (N)D (N)FD (N)D (N)D LIBRARY 2.03 First Floor Plan 30 MEDIUM PROJECTS TKD ARCHITECTS

GOODISON STREET, Kellyville

35 Goodison Street was a larger project that I was involved with the design of the exterior finishes and the drawing up of 3D visualisations. I have included 4 of the exterior perspectives that show the various angles of the Childcare Centre. Due to its proximity to the ‘Moran Aged Care’ facility, there were design considerations for the exterior finishes as to not overlook their building. This was also applied to the outdoor play area that is located on the opposite side of the building to the main road. A requirement of the renders was to use the landscape plan to accurately represent the real planting conditions proposed for the site.

SW Exterior Perspective: Main entry from the pedestrian crossing.
31 MEDIUM PROJECTS4D ARCHITECTURE & DESIGN
NE Exterior Perspective: Highlighting street signage to match the proposed design.

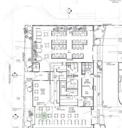
TALLAWONG PRIMARY, Tallawong

The new Primary School was one of two sites we where working on in Tallawong, with this being the smaller of the two proposed Schools. As this was a green fill site, it provided the opportunity to start fresh and provide a multi-storey primary for the developing area. The challenges came with the requirements for the ILP roads through our site significantly reduced out buildable area, this was in addition to cost constraints that pushed the Hall and building as to have an at grade car-park in preference to an underground that was to sit below the hall.

I had a lot of fun designing the facade with the given materials (they were to reference the other site) we had consultation from the elders in the area that wanted to promote the Yellow Tail Black Cockatoos and the Wattle tree that are both prevalent in the native landscape. However this is one of the projects that has been paused and they are in preference focusing on the other site first and will do this one in the future if they get further funding. Alex Kibble was the principal lead of this project so I gained some good insight into the School infrustructure processes.

Site Plan
32 MEDIUM PROJECTS TKD ARCHITECTS
Main entry Enscape Render
Internal Circulation Enscape Render 6m SETBACK SUBSTATION PRIMARY SPORTS COURT HYDRANT BOOSTER ASSEMBLY GAS MAIN WATER MAIN 30 BIKE SPACES 30 BIKE SPACES 132 m² COMMONS SSP430.33-41 65 m² SLU SSP430.02/SSP440.01 63 m² SSP430.02/SSP440.01 66 m² SLU SSP430.02/SSP440.01 MEETING ROOM SSP601.15 11 m² ADULT SSP603.15 6 m² SSP603.10 ACC. WC SSP603.10 STAFF WC PS602.12 4 m² AMB. WC SSP603.22 m² LDY PS602.11 32 m² SPECIAL PS502.01 32 m² SPECIAL PROGRAMS MCR PS201.99 2 m² PS611.02 2 m² PS611.02 KLA STORE PS501.34 STAFF ACC.WC PS602.11b 22 m² OFFICE PS501.14 4 m² PS502.03 LIBRARY MAIN AREA PS501.04 122 m² STAFF LOUNGE OFFICE & ST. PS613.01-03 EDB PS611.02 12 m² BCR PS501.22 14 m² ST. PS605.01 22 m² PE/ PERF. STORE MSB PS611.01 20 m² OSHC PS613.05 246 m² HALL PS503.03 250 m² COLA PS504.05 37 m² KITCHENETTE PS604.03 2 m² SOUND PS503.51 12 m² CANTEEN OFFICE &ST. PS604.13 11 m² CHAIR.ST. 3 m² CLN ST PS301.03 49 m² STAGE RAMP STAFF ACC.WC PS602.12 6 m² ACC.WC 18 m² ST. PS503.33 9 m² WC PS603.01b 8 m² WC PS202.08 1 m² EDB PS611.02 18 m² DEP. PRINCIPAL INTERVIEW PS201.04 19 m² PRINCIPAL PS201.02 10 m² PS302.02 25 m² DEP. PRINCIPAL PS201.03 1 m² PS611.02 m² PS201.05 CLERICAL PS201.05 12 m² INTERVIEW PS201.04 ENTRY PS201.01 9 m² SICK BAY PS201.07 ACC.WC PS201.08 11 m² SEC.ST. PS201.06 6 m² ACC WC PS602.12 GATE MIN 2926 3 m² M WC PS603.01b F WC PS603.01a WASTE PAD 55m2 DDA(35) DDA(36) 1 2 3 4 5 6 7 8 9 10 11 12 13 15 16 17 18 19 20 21 22 23 24 25 26 M WC PS603.01b 3 m² M WC F WC PS603.01a m² F WC 3 m² PS603.01b 14 34 33 32 31 30 29 28 27 3 m² F WC 3 m² F WC BULK STORE PS605.11 CLEANER ST. PS605.31 3 m² F WC M WC PS603.01b m² M WC SITE BOUNDARY - 169.419 m SITE BOUNDARY - 172.975 m SITE BOUNDARY 35.526 m SITEBOUNDARY-7.0837m SITEBOUNDARY-7.153m STAIR SOUTH STAIR 1 NORTH STAIR 4 TIERED SEATING FFL 48500 FFL 48500 FFL 48500 FFL 48500 10 m² EOT 41 m² 3 m² F WC PS603.01a 3 m² F WC PS603.01a m² F WC PS603.01a 3 m² F WC 3 m² F WC M WC PS603.01b 3 m² M WC PS603.01b M WC PS603.01b 5 m² ACC.WC PS602.12 RUN OFF ZONE RUN OFF ZONE 1:14 1:14 3m LANDSCAPE SETBACK GENERATOR CARPARK GATE6 m² M STAFF PS602.11 F STAFF AMENITIES PS602.11 Rear Enscape Render Ground Floor Plan 33 TALLAWONG MEDIUM PROJECTS

BUNGENDORE HIGH SCHOOL, Queanbeyan

The Bungendore High School is a 450 student with the capacity to be 600 in the future school. It is currently sharing the primary school site across the road that will be fully converted into a primary school once this is completed. I worked on two of the stages of this project the first being a full CC set that had been coordinated with all services and had stage 1 (demo) started. This gave me a good understanding of the unique requirements in the construction of these spaces, however they are similar to multi-residential and commercial in some ways which is interesting.

The second stage was directly under Robert Denton, where we prepared a series of presentations to stakeholders each week. This resulted in the switching of the location of the Gym with the sports courts and the allowance for the increase in student numbers to 600 at a future time. This was a invaluable experience to deal with the representatives from these stakeholders as these documents were to be used in the legal case that was under way.

34 LARGE PROJECTS TKD ARCHITECTS
New Class Room Block Plans New Primary in Existing Library Section
LIBRARY GYM SPORTS COURTS CRICKET NETS SCHOOL COMMONS SERVICE EASEMENT RAIL CORRIDOR ADMIN GLS MICK SHERD OVAL RETAINING WALL + BALL CONTROL FENCE 2.1m TIMBER LAPPED & CAPPED FENCE CURRENT GYMNASIUM LOCATION CURRENT SPORTS COURT LOCATION CURRENT CRICKET NET LOCATION KEY: 63 TURALLO TERRACE
COTTAGE) GYMNASIUM 700.05 701.69 + 696.710 + + BOUNDARY ASSUMED LEVEL 35 BUNGENDORE LARGE PROJECTS
Proposed Elevation (Above), Proposed Site Plan (Below)
(SIGNALMAN’S

Gym Floor Plan

LIVERPOOL HIGH SCHOOL, Liverpool

The new school at Liverpool is to be a 1000 Student Co-ed High School on the site of the current Girls High School. I was brought on to help with this during the SSDA Stage, however due to the stakeholder engagement the design was rapidly developing. There were a number of spaces that had looser EFSG requirements that i was able to have some freedom with, in particular the Gym above were we where able to reduce circulation by streamlining room functions and providing the required fire escapes. I was in charge of the concept furniture plans that included internal walls and doors, which provided an interesting area that had prescribed numbers but not layouts of items required. In addition I did majority of the landscape co-ordination on this project and reviewed and noted the design to work with the existing levels and proposed building levels.

Enscape Render 86.5 m² CANTEEN 21.5 m² CANTEEN OFFICE ST. 21.0 m² FOYER 105.0 m² STAGE 62.0 m² CIRCULATION 63.5 m² SPORTS EQUIP. ST. 21.5 m² BULK ST. 63.0 m² LARGE EQUIP. ST. 75.0 m² CHAIR ST. 18.0 m² GARDEN ST. 58.0 m² OUTDOOR EQUIP. ST. 12.5 m² CONTROL ROOM 8.0 m² CIRCULATION 7.0 m² STAFF ACC. WC 7.0 m² STUDENT ACC. WC 17.5 m² FIRST AID 14.5 m² ST09 727.0 m² GYMNASIUM 15.5 m² ST08 15.5 m² ST07 102.5 m² WC CHANGE (GIRLS) 26.0 m² AIRLOCK 102.5 m² WC / CHANGE (BOYS) 37.5 m² MSR 11.5 m² STUDENT ACC. WC SHWR 4.5 m² EOTF SHWR 4.5 m² EOTF SHWR 10.5 m² BCR 9.0 m² CLEAN ST. 36 LARGE PROJECTS TKD ARCHITECTS

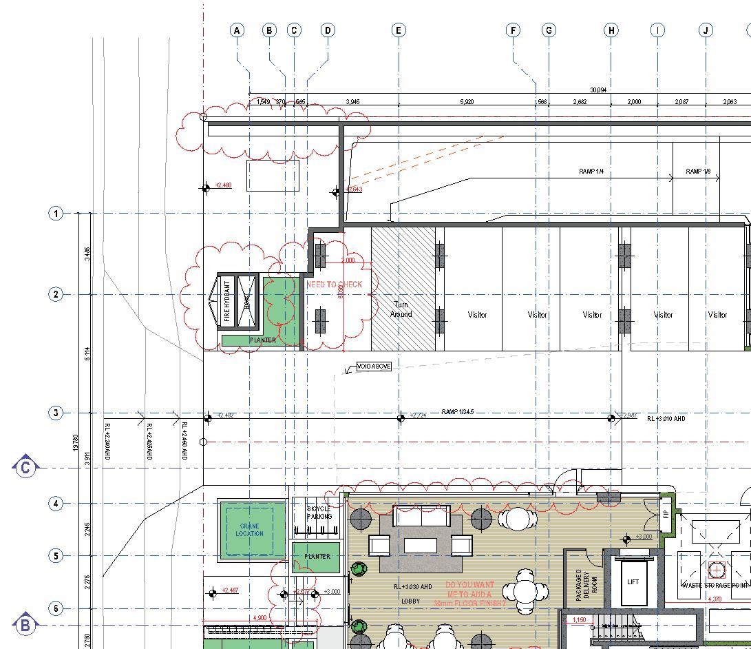
PARRAMATTA ROAD, Homebush

This project is both a Construction and DA project, where my team is working on the construction documentation for the lower portion of the tower as the DA for the upper portion is being negotiated with Council. I have been mainly on the construction side with a focus on the the ‘Podium’, however we have had to co-ordinate the services and structure to accommodate the additional levels above. This project has been split into multiple CC phases which has provided an interesting exploration into the staging of a project of this size, with the first CC being focused on the structure and initial service co-ordination. The second required far greater details with the package being over 140 pages, and only focused on the basement and ‘podium’ showing the detail required to deliver a project of this size and scale. The drawings included are still under development, however one of the most interesting constraints was to work with the existing basement to ground floor, this has required addtional co-ordination to strengthen the existing columns to handle the additional weight of the tower.

Parramatta Road Elevation (Podium)
37 LARGE PROJECTS SQUILLACE
REVIT
for
documentation for
38 PARRAMATTA ROAD LARGE PROJECTS
Render,
Construction
the ‘Podium’
Ground Floor Plan, showing the surounding site, with Ismay Reserve and Parramatta Road being the focal point. Typical Floor Plan for the Podium Levels. 39 LARGE PROJECTS PARRAMATTA ROAD

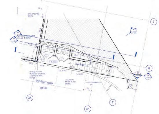
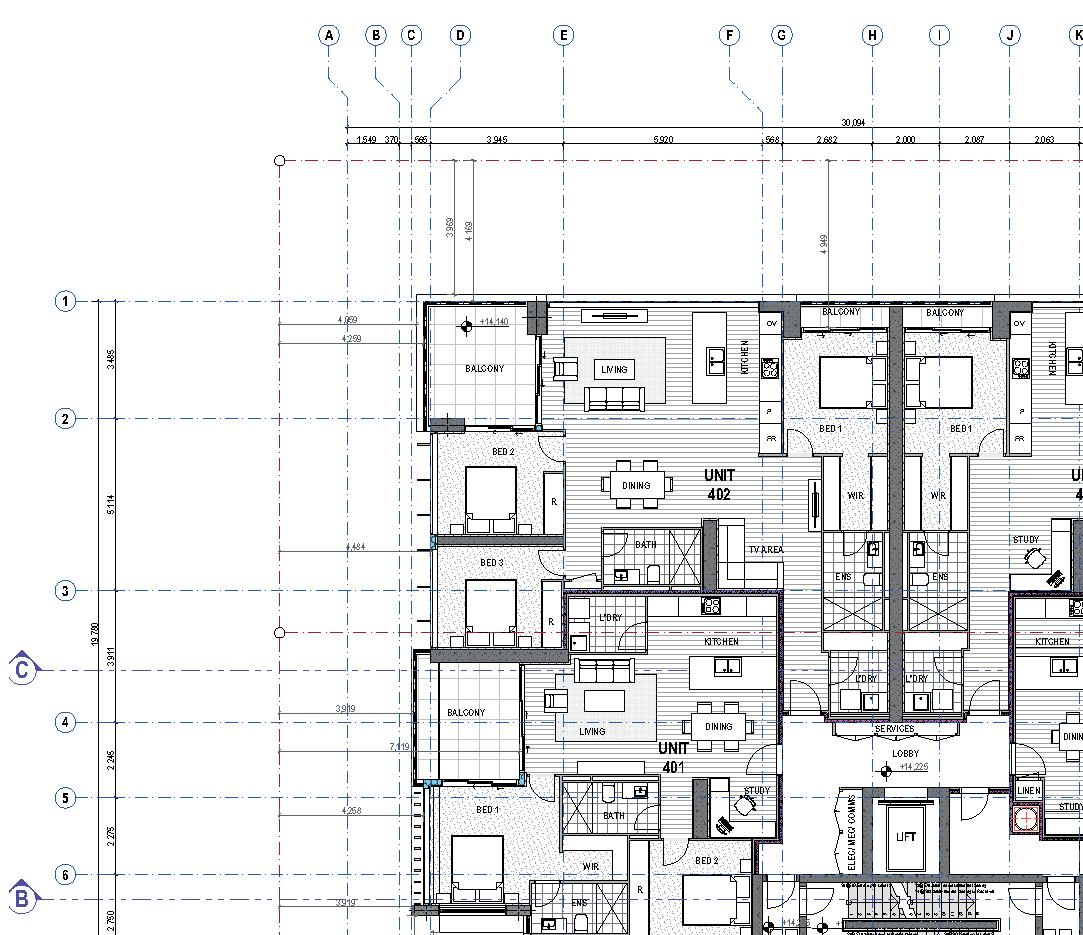
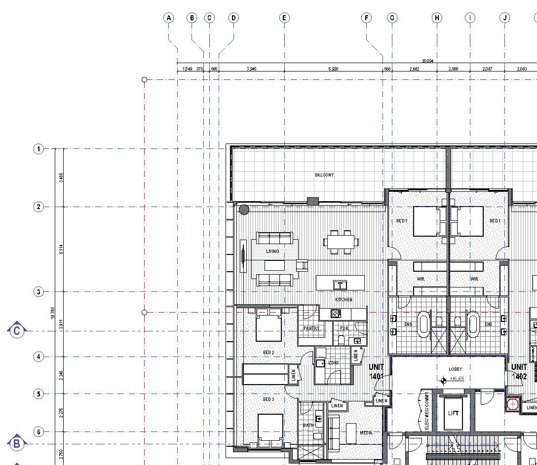
PARNENO STREET, Chevron Island

This project was a tower on the Gold Coast, where the firm I worked for purchased an existing DA, which we were to do Construction for, both documentation and build. This was an interesting project because we had very little information on the DA side and had to draw it from what we had. As the builder was our company, I worked closely with the Project Manager for this project to resolve the various issues we had when making the project buildable. In particular, with the structural requirements for a tower to sit on a sand island, with constant encroachment of sea water from below. This was also heavily co-ordinated with the structural engineer for this project. The other area was the glass edged pool, where we had to place it within large structural elements, providing the space below for float tanks and other pool service equipment. As the apartments were being sold as we were in construction, the layouts for a number of the typicals became unique to the client’s specification, which provided an unique opportunity to work with the future owners of these apartments.

ArchiCAD Render with Photoshopping
40 LARGE PROJECTS TASMEEN
Fire Stair Section 41 PARNENO STREET LARGE PROJECTS
Ground and Level 1 Common Area Plans. 42 LARGE PROJECTS PARNENO STREET
Level 4 Typical and Level 14 Typical Floor Plans 43 PARNENO STREET LARGE PROJECTS

No-DredgeZone LARGE PROJECTS UTS

THE GREAT BARRIER

No-DredgeZone

‘The Great Barrier’ was intended to provoke a conversation between the various ‘actors’ that occupy The Great Barrier Reef. Through a study of the area we found that one of the greatest risks to the fragile coral reefs are the shipping lanes that sit between the coast line and the reef, with shipping access ways dredged through the reef itself. Hence our long bridge that acts on the reef at multiple levels, with a port at the end providing access to Queensland for the largest ships. The bridge acts as a physical barrier to close the existing lane, and is situated along a currently dredged sea passage to Cairns. Below, the structure is designed to promote coral growth over time, and houses research facility and hotel opportunities along the line. 44

PEAKING THROUGH THE TREES

Peaking through the Trees, was an attempt at self sufficiency in Sydney’s Aerotropolis. This task provided a large number of issues relating to consumption, where we had limited space for food, housing, employment, power, and water treatment. Hence the ‘ziggurats’ were designed to combine a number of functions within one structure. The form was referencing the location at the foothills of the Blue Mountains, and was an attempt to break up the flatness of the area around South Creek. There was an attempt to use these buildings as a protected habitat for the endangered bird species in the area with the plantings chosen to promote indigenous species.

L8 L7 L6 L5 L4 L3 L2 L1 G B1 B2 Housing Units Green Infrastructure Blue Infrastructure Commercial Spaces Shared Recreation Circulation
Montage showing the Ziggurats, surrounded by new parklands. Site plan showing the other facilities and amenities supporting the buildings.
45 LARGE PROJECTS UTS
Section through one of the Inverse Ziggurats, demonstrating the split in program required to achieve a level of self sufficiency within the confines of our site. Along with the description the future citizens of the new area. These planters were dedicated to the propagation of the Endangered Plant Species that were once common in the area. This was used to recreate the lost habitats of native fauna as well as the flaura.

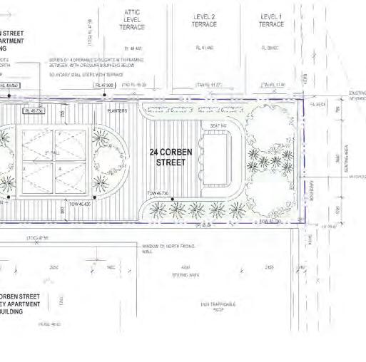
SYDENHAM APARTMENTS

The Sydenham Apartments was a housing project situated within the context of the expansion of the Sydenham to Bankstown metro line. This provided the opportunity for greater density within walking distance of the train lines. The project developed was influenced by the surrounding suburb, and was intended to subvert the existing proposal by providing the same or greater population numbers within our design. The focus was on formalising the living situation on the industrial side of Sydenham, by infusing the positives of the residential side, with tight frontages and a focus on the Sydenham Green in the middle of the suburb. The project used 50/50 split as a design intention where the site was half park, half building, the rooms were half living, half service. This was combined with the introduction of smaller shopping streets, linked by the network of pocket parks providing new pathways through the suburb.

46 LARGE PROJECTS UTS
Rear Facade Street Level Perspective

The Sections above were designed to not just show how the building operates through different cuts but also to demonstrate how the roof is desgined to replicate the roof of the building it replaces. There was also a need to show the variety in the built form that surrounds these new buildings.

Section: 26-32 Buckley Street Section: 75-77 Railway Parade Section: 9 Barclay Street Section: 21 Buckley Street The suburban scale plan shows the sites where our buildings will be located to create a network of parks and pedestrian ways through Sydneham extending out from the station. At the site scale, the buildings are emphasised by the inclusion of pedestrian crossings and the park that sits beside them.
47 LARGE PROJECTS SYDENHAM APARTMENTS

Turn static files into dynamic content formats.

Create a flipbook
Issuu converts static files into: digital portfolios, online yearbooks, online catalogs, digital photo albums and more. Sign up and create your flipbook.