DARYL YU diploma selected works

Page 1


PORTFOLIO

ACADEMICANDPROFESSIONALWORKS

darylyu961@gmail.com+6591515521

DARYLYU

Ienjoythecomplexityandtechnicality,alongsidethecreativity,thatgoesinto architecturaldesign.Howeveryabstractandtechnicaldetailcomestogethertoform somethingbreathtaking.ThereisnothingmoreIwishtopursuelol

16thMay2005

Singaporean Chinese darylyu961@gmail.com +6591515521

SKILLS&EXPERIENCE

SOFT

▪ QUICKLEARNER- TOLEARNWITHPURPOSEANDDIRECTION

▪ MANIPULATIVENETWORKINGCAPABILITIES – NETWORKINGOVERDEADWORK

▪ FIRMANDDECISIVE

▪ WORKINGLIKETHECOMPANYDEPENDSONME

TECHNICAL

▪ AUTOCADTECHNICALDRAFTING

▪ SKETCHUP3DMODELLING

▪ TWINMOTIONRENDERING

▪ REVITMODELLING

▪ PROFESSIONALPOWERPOINTPRESENTATIONS

EXPERIENCE

▪ PROFESSIONALTECHNICALDRAWINGS

▪ CLIENTPROPOSALMEETINGS

▪ BOOTHSETUPS

▪ SITEMANAGEMENT

▪ PROFESSIONALCOMMUNICATIONS

KALLANG RÉVERIE

Kallang Reverie revitalizes the old terminal, transforming it into an exhibition, and art gallery space celebrating Singapore's evolving artistic culture Old Kallang Airport as a venue is a conscious act of preserving and recontextualizing a historic site Leveraging the site's Art Deco heritage and well-situated venue that introduces Kallang reverie as a pivotal cultural node

Becoming a cultural landmark fostering artistic collaboration while preserving its legacy The former departure hall now serves as a metaphorical “departure lounge” for local talents, embodying bold disruption, reflection, and directional tension

It becomes a unique venue for public gatherings, blending history with modern design Kallang Reverie provides a collaborative space for artists, institutions, and events, preserving the site’s legacy and positioning it as a cultural landmark in Kallang

just like art, it is not just a commitment to valuing and sustaining a cultural identity but also a spontaneous choice of location to leverage off well situated site

montage view of exterior interaction

Kallang reverie, both externally and internally, ultimately acts as an orientation point alongside the idea of becoming a pivotal node for art and innovation within Kallang and Singapore even

Smooth peeling façade structures and internal walls provide and unguided flow, just like navigating and artistic endeavor alone The idea of disruption can be seen in its evident peeling structures and its evidently uniquely crafted stairwell that both is the exhibition alongside hosting exhibitions

OAASIS

THEHOLISTICAPPROACHTOHOMELESSNESS

Where architecture meets compassion, and homelessness is addressed with a holistic approach This innovative project goes beyond the conventional idea of a shelter, focusing on the psychological needs of its residents By providing spaces that facilitate positive interactions and activities, Oasis becomes a beacon of growth in mindset for those seeking refuge

In every corner of this redesigned space, residents find opportunities for personal development, community engagement, and a pathway to a brighter tomorrow

montage

TW flow roofing and facade improvement program aims to help re-evaluate and better design the roofing and facade which was barely thought of by the group initial roofing designed was an “ out of place “ structure that had no intention purpose nor thought put in place did not match Tampines, facade needed a new refreshment that would pay homage to Tampines history and also be a familiar sight to the town folks as more technology is being implemented and turns the community center into a foreign and scary place for the town folks

TW flow combats technological advancements in a small town called Tampines west by fusing digestible technology for both the younger and older generations both. a cohesive yet smart facade and roofing provides a familiar yet exciting experience for the folks of Tampines west, while paying homage to the roots of Tampines west

montage view of
hall

The tempinis tree, also known as tembusu trees, are most commonly found in tampines tampines west also used to be a famous sand quarry as technology advances, heritage and nature is quickly disappearing bricks built with sand found from the quarry, and detailed with tembusu tree’s silhouette, adds meaningful character to the community center, paying homage to the iconic aspects of Tampines as technology advances

montage
view of familiar digital facade

EMBARK

SHAPINGLEADERSTHROUGHSPACEANDLIGHT

The renovation of Nacli Learning studio aims to fuse architectural qualities with leadership growth The innovative architectural style produces confident, decisive and calm leaders through use of organic forms and movements inspired by caves, play of levels, lights and shadows in a dynamic environment

Dynamic environment refers to a place where users have freedom of speech, thought and interaction, within a space that encourages confident movements to produce leadership qualities

montage view of orientation foyer
montage

THE MODERN PRIARIE

The Modern Prairie: An oasis of wisdom emerging from isolation, where the boundless horizon intersects with the sublime elegance of glass-bricked brutalism Embracing the uncomplicated essence of the plains, it invites knowledge seekers to delve into solitude, nurturing contemplation amidst the murmurs of the breeze and the magnetic charm of its architectural prowess

montage view of working zone
montage

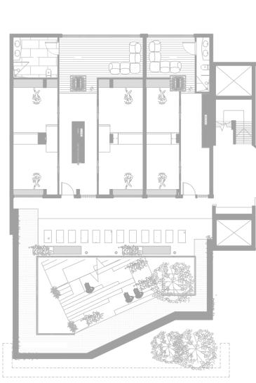
RESIDENTIAL UNIT AMK 352

completed in2025

This meticulously crafted residential unit embraces a refined and restrained palette, allowing the architectural language to take center stage A key design approach is the careful articulation of lines, capturing and extending existing structural elements to create a cohesive and intentional spatial flow Wall-to-beam alignments, ceiling recesses, and floor transitions are thoughtfully composed to guide movement and define zones without the need for excessive partitions These lines not only establish visual rhythm but also integrate seamlessly with bespoke carpentry, reinforcing continuity and precision in detailing Every junction and connection is meticulously refined to enhance the sense of order and sophistication Designed with a growing young family in mind, the home fosters a nurturing and dynamic environment, where thoughtful design enriches daily living

4PLUS8 TECHNICAL STANDARDS

Turn static files into dynamic content formats.

Create a flipbook
Issuu converts static files into: digital portfolios, online yearbooks, online catalogs, digital photo albums and more. Sign up and create your flipbook.
DARYL YU diploma selected works by Daryl Yu - Issuu