SC_Ozen Concept Development_230823

Page 1

Doha, Qatar

Concept Overview Vision & Mission Mood Board Layouts Guest Journey Overview Treatment Offering Product Houses Uniforms Private Label 03 04 05 06-07 08-13 14-18 19-24 25-28 29-31 CONTENT

CONCEPT OVERVIEW

The hammam's enduring legacy as a space for purification, self-care, and social interaction has made it an integral part of cultural heritage. Its timeless allure continues to captivate people from all walks of life, offering a sanctuary of warmth, serenity, and rejuvenation.

Our Hammam facility is thoughtfully designed to provide a serene oasis amidst the hustle and bustle of everyday life. Inspired by the age-old bathing rituals of the Middle East and North Africa, our facilities offer an authentic and immersive experience that nourishes both the body and soul.

Ozen is more than just a place for physical cleansing; it is a social hub that nourished relationships, provides support, and celebrated local culture. Ozen fosters a sense of belonging and contributes to the overall well-being of its guests and the community.

Spa Connectors - 03

VISION

Ozen is a luxurious Hammam sanctuary, where ancient traditions meet modern relaxation. A world of tranquility and indulgence that takes guests on a journey of rejuvenation and self-care.

MISSION

Offering ancient treatments and rituals that transcend time and space, using the finest natural ingredients such as premium-quality oils, natural clays, and aromatic herbs to create a truly sensory journey that nourishes the body, uplifts the spirit, and restores inner balance.

Spa Connectors - 04

MOOD BOARD

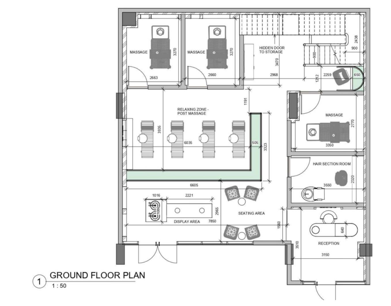
FACILITIES - GROUND FLOOR

·

·

·

·

· Reception

Display & Waiting Area

1 x Hair Section Room

3 x Massage Treatment Rooms

Relaxation Zone

· Waiting Area

Spa Connectors - 06

FACILITIES - MEZZANINE FLOOR

· 4 x Hammam Treatment Rooms

· Seating Area

· Changing Room with lockers and showers

Spa Connectors - 07

GUEST SERVICE JOURNEY

GUEST JOURNEY

ARRIVAL

CHECK-IN

OZEN WELLCOME RITUAL

SOUND BATH

Arrival to Ozen. Receptionist to greet the Guest by her name and escort her to the Sitting Area.

Welcome drink - Reconfirm the treatment - Guest fills out an intake form. Once done, the Receptionist introduces the Therapist. Guest is then guided to the treatment room.

This experience begins with a soothing and remineralising foot soak & traditional foot scrub. After that Therapist performs an aromatic inhalation to help restore balance before commencing the treatment. Helps to ground, relax and de-stress the body.

Therapist will perform 5min Sound Bath ritual.

EXPERIENCE

Treatment experience

TEA RITUAL

This time is for the Guest to gently transition from the deep relaxation of the hammam/body treatment to a state of wakefulness. The act of drinking tea will help them become more alert while maintaining a sense of tranquility.

AFTER TREATMENT

Therapist will escort the Guest to the Relaxation Lounge.

.

Spa Connectors - 09

WELCOME DRINK

MOROCCAN MINT TEA

Before the cleansing and detoxifying rituals of the Hammam, a small pot of fresh green tea leaves and sprigs of spearmint are carefully brewed in boiling water.

Additional touch point for the guest experience can be the traditionally pouring from a height into small glass cups, a process known as "pouring high."

The sweet, fragrant, and slightly bitter taste of Moroccan mint tea perfectly complements the rejuvenated state obtained from the Hammam. This centuries-old tradition represents the warmth and hospitality that Moroccans are renowned for, fostering a sense of community and connection.

ROSE WATER OR ORANGE BLOSSOM ELIXIR

A refreshing, fragrant blend to welcome our guests on a hot day.

Spa Connectors - 10

SCENTING RECOMMENDATION FOR COLD TOWELS

Eucalyptus. Known for its refreshing and invigorating properties, eucalyptus is often used in Hammams to create a calming and soothing atmosphere. Its aromatic fragrance can help clear the mind and improve respiratory function.

Lavender. With its calming and stress-relieving properties, lavender is a popular scent in Hammams The soothing aroma of lavender can help relax the mind, relieve anxiety, and induce better sleep.

Orange Blossom. The delicate and sweet aroma of orange blossom creates a tranquil and uplifting ambiance in a Hammam. It can evoke feelings of happiness and joy while providing a sense of peace and serenity.

Frankincense. Used for centuries in aromatherapy, frankincense has a rich, resinous scent that promotes deep relaxation and spiritual grounding. Its woody and balsamic aroma can enhance the overall experience in a Hammam.

Jasmine. The intoxicating fragrance of jasmine flowers is often used in Hammams to create an atmosphere of sensuality and luxury. Jasmine's floral scent is believed to have uplifting and moodenhancing effects.

Sandalwood. Known for its warm and woody aroma, sandalwood is commonly used in wellness rituals including Hammams. Its earthy scent helps promote relaxation, balance emotions, and create a peaceful atmosphere.

Spa Connectors - 11

SOUND THERAPY BEFORE THE TREATMENT

Preparation for the Hammam: starting a hammam session with a sound of a singing bowl can mentally and emotionally prepare guests for the experience ahead, helping them transition into a state of relaxation.

From the Supine position (face up), the therapist will place a larger singing bowl directly on the abdomen (over a warm cloth, towel, or over the massage sheet as the bowl will be cold upon initial contact), and then the therapist will gently strike the bowl with the felt mallet in an upward motion–striking all four sides of the bowl to represent the four major directions (east, west, north, and south). The therapist can place the smaller bowl on the sternum/chest area closest to the heart and follow the same technique.

When the session starts with the singing bowls on the receiver’s body, the person is able to drop into the session in an easier fashion–the “monkey mind” ceases sooner with the bowls at the beginning of the session.

Spa Connectors - 12

SIGNATURE AFTER-TREATMENT TEA

The combination of rose and cardamom creates a sensory experience that complements the physical and mental benefits of the Hammam ritual. The scents and flavors of these ingredients contribute to an overall feeling of relaxation, rejuvenation, and wellbeing during and after the Hammam session. The use of rose and cardamom in the Hammam tradition reflects their historical significance in local culture and their association with beauty, fragrance, and holistic health.

Roses have deep cultural significance in many Middle Eastern and North African countries, including Morocco, where Hammam rituals are prevalent. The aroma of rose is believed to be uplifting and soothing, promoting relaxation and creating a pleasant atmosphere during the Hammam experience.

Cardamom is known for its aromatic and therapeutic properties. It has a unique flavor profile that adds depth and warmth to culinary preparations, including tea. In the context of a Hammam, cardamom may be infused with rose petals to create a fragrant and invigorating beverage that is traditionally served after the Hammam session.

Spa Connectors - 13

TREATMENT OFFERING

·

HAMMAM

Hammam stands tall as Ozen's signature treatment. The ancient cleansing ritual that includes steam, exfoliation and nourishing treatments offers a transformative experience of relaxation and rejuvenation.

Traditional Hammam 60 min

Face cleanser and beldi soap. Exfoliation with the kessa. A body mask suited to guest's desired result, followed by the splash shower gel.

Turkish Bath Ceremony - 60 mins | with massage - 90 mins

· Steam of Hammam

·

Body Scrub with Kese

· Indulgent Foaming Massage

Moroccan Royal Hammam | Body, Face and Hair - 90 mins

Black Soap Body Scrub

· White Body Wrap with Honey & Royal Jelly

· Radiance Treatment

· Hair Treatment with Argan Oil

Ozen Signature Hammam 75 min

Hair mask with relaxing scalp massage using Argan oil. Beldi soap massage and signature kessa exfoliation. Clay body mask. Hammam facial - deep cleansing and exfoliation followed by bespoke face mask.

Spa Connectors - 15

MASSAGES

Combining a massage with a hammam ritual creates an immersive wellness experience, addressing both physical and mental relaxation.

· Oriental Massage

· Deep Tissue Massage

· Lymphatic Drainage Massage

· Swedish Massage

· Sports Massage

· Head Massage

Spa Connectors - 16

FACIALS

Ozen facial treatments focuse on using natural and traditional ingredients to cleanse, exfoliate, and nourish the skin, leaving it feeling refreshed and glowing.

Deep Facial - 75 min. A steam-powered double cleanse is followed by exfoliation and extraction. Targeted mask and serum treatments are followed with a deeply firming facial massage for maximum results.(Izil)

Express Hydrating Facial - 30 min

Eye Rejuvenation - 20 min

Weekly Care Facial - 60 min. A steam-powered double cleanse is followed by exfoliation and extraction. Skin is treated with cream and serum treatments based on skin type and desired result. (Izil)

Izil Signature Facial - 90 min. A steam-powered double cleanse is followed by exfoliation and extraction. Mask and serum treatments are followed with a gua sha massage for tightening and lifting. Skin is left hydrated, plumped, and lifted. (Izil)

Spa Connectors - 17

HAIR RITUALS

Express Hair Deep Nutrition Treatment. Double mask with mist. Deep cleansing with a shampoo, conditioner application and leave-in lotion. Blow-dry.

Hair Deep Nutrition Treatment. A double mask. A hair wrap under steam for maximum absorption. Deep cleansing with a shampoo, conditioner application and leave-in lotion. Blow-dry.

Express Scalp Purifying Treatment. Natural salt scrub with clay mask scalp treatment. Deep cleansing with a shampoo, conditioner application and leave-in lotion. Blow-dry.

Scalp Purifying Treatment. Natural salt scrub and anti-dandruff mask. Deep cleansing with a shampoo, conditioner application and leave-in lotion. Blow-dry.

Hair Boost Treatment. Purifying clay mask. Anti hair-loss mask applied under steam for maximum absorption. Deep cleansing with a shampoo, conditioner application and leavein lotion. Blow-dry.

Hair Deep Henna Healing. A holistic treatment to revive and repair hair fibers. izil's Henna Verbena mask. Deep cleansing with a shampoo, conditioner application and leave-in lotion. Blow-dry.

Connectors - 18
Spa

PRODUCT HOUSES

PRODUCT HOUSES

Spa Connectors - 20

PRODUCT HOUSES

Inspired by the rich cultural heritage and scenic beauty of Morocco, marocMaroc is the world's most developed hammam brand. Products play with light, water, oil and plants which detoxify, soften and leave the body glowing. A sensory experience integrating a luxurious wellness journey with ancient rituals and high quality ingredients.

Hammam Evasion - 60 min. A purifying hammam experience which involves a delicate scrub with a kessa glove and the luscious exfoliator "Miel d'Ambre, finished by "Infusion d'Orange" a calming Moroccan orange blossom soaping treatment.

Hammam Lumiere Sur Le Corps - 120 min. The ultimate hammam experience my marocMaroc. The traditional hammam experience is followed by a ceremonial massage using must try marocMaroc products.

Ceremonial Massage - 75 min. Inspired by Moroccan beauty rituals, this massage allows the body to shed all its tensions. An aromatic journey using the smooth and nourishing "Onguent d'Argan"

Candle Sensory Awakening Massage - 60 min. Drawing on the Moroccan wisdom of ancestors, this massage enhances the body and relaxes the mind with the soothing heat of the "Paillettes d'Amber" candle.

Purity Facial Terre Du Desert - 60 min. After the use of hot stones, delicate scrub is applied to the skin before the ultra purifying ghassoul mask "Terre du Desert". The "Richessed' Arganier" face cream is used for gentle hydration.

Radiance Facial "Richesse D'Arganier" - 60 min. Harnessing the power of argan oil and smooth honey, this radiance ritual uses alternate temperature (hot and cold) to rebuild the skin's acid mantle.

Spa Connectors - 21

PRODUCT HOUSES

A Parisian beauty brand with specific treatments inspired by Eastern traditions of beauty care. From pure Argan Oils and Shea butters, to traditional hammam ritual products, Charme d'Orient prides itself in selecting quality products made in the finest tradition.

Thousand and One Nights Hammam - 90 min. A radiance treatment for the face and body. Steam of hammam, a perfumed alum stone scrub and a remineralising body wrap.

Royal Hammam. For body, face and hair. Treatment includes steam of hammam, black soap body scrub, white body wrap with honey and royal jelly, radiance treatment and a hair treatment with Argan Oil.

Banya Treatment. A traditional Russian bath which is an exclusive new offering at Charme d' Orient. The treatment includes steam of hammam and tonic massage with venik and the option of getting a scrub with alum stone.

Intensive Repair Treatment - 75 min. A massage and body wrap with shea butter repairing and nourishing the body as well as the face.

Oriental Journey - 90 min. Pink crystal and argan shell scrub, massage and body wrap with argan butter and radiance treatment.

Relaxing Escape - 120 min. Dead seas salt body scrub. White mask with honey and royal jelly. Radiance treatment and shea butter relaxing massage.

100% Natural Colored Clays Facial - 25 min. Choice of 4 clay colours according to skin type with the option of adding a 10 minute massage.

Secret of Youth of The Prickly Pear Facial - 90 min. A complete facial care followed by a back massage with organic argan oil for smooth and bright skin. Includes a flask of prickly pear oil.

Spa Connectors - 22

PRODUCT HOUSES

The very first luxury spa concept inspired by ancestral traditions of wellness of the Maghreb and the East. Discover behind each door of Maison d'Asa sensorial journeys that pays tribute to our star destinations through bespoke signature treatments, certified organic skincare products and enchanting scents.

Ancestral Purification Bath - 60 min. A bath ceremonial full of scents and delicacies that stems from the Maghreb’s pure ancestral tradition: Beldi soap and ghassoul combined with other perfuming and hydrating notes that make this treatment mesmerizing.

Berber Bath Ceremony - 60 min. A praise to the cosmetic products from the Moroccan terroir, a delight for the skin, where all senses travel to the heart of Morocco through the textures, the scents and the materials: body and exfoliation, body and face mask, wrapping, hydration. No part of the body is left aside. A guaranteed feeling of “letting go”.

Lymphatic Draining - 60 min. Manual lymphatic drainage is a soft massage technic that aims to stimulate the flow of lymph, the body’s natural defense system. It is performed by sweet and slow handlings of fingers and palm of the hand over the entire body, following the direction of the flow of lymph and varying the pressure applied.

Oriental Wood Massage - 60 min. This deeply revitalizing treatment is performed with a precious organic oil inspired by oriental aromatic secrets and fossilized wood stones. This ritual is just like a journey where muscular tensions fly away and the mind clears itself to attain a state of inner vitality and intense interior peace. It is a true experience to live with the scents and the movements that link dreams and harmony between body and senses.

Argan Chips Moroccan Delight Facial - 60 min.

A lifting and firming face treatment that purifies, softens and invigorates the skin. It echoes Morocco thanks to its precious organic ingredients that generate multiple benefits. Regeneration, hydration, firmness, radiance, anti-ageing.

Spa Connectors - 23

PRODUCT HOUSES

In creating the Spa treatments, Les Marrakech studied the history of the orient and spok y traditions. The treatments, made with products that are both sensuous and effective, offer a journey into this rich and ancient culture.

Grand Royal Bliss - 120 min. Hammam and traditional body scrub with black soap and kessa glove / herbal ghassoul full body mask / facial adapted to the client's skin / 60 ‘ relaxing massage.

Oriental Hammam - 30 min. Hammam and traditional body scrub with black soap.

Relaxing Massage - 60 min.

Deep Tissue Massage - 60 min.

Aromatic Back Massage - 30 min. Verbena, Rose, Rosemary, Thyme, Sesame.

Skin Care / Facial Treatment - 60 min. Adapted to the client's skin specific needs, treatment for the face and neck. Inspired by the famous Moroccan hammam rituals and traditional beauty.

Spa Connectors - 24

UNIFORMS - MOODBOARD

UNIFORMS - THEPAPIST

Spa Connectors - 26

UNIFORMS - HAMMAM THEPAPIST

A "peshtemal" and a swimsuit.

A "peshtemal" is a traditional Turkish towel that is commonly used in hammams (Turkish baths) for both clients and therapists. It's a lightweight and highly absorbent towel made from Turkish cotton or linen, and it has a long history of use in Turkish culture. Peshtemals are not only functional but also have cultural significance and aesthetic appeal.

Hammam therapists wear a peshtemal as part of their uniform. The peshtemal can be wrapped around the body, similar to a robe, providing modesty and coverage while allowing for freedom of movement.

Spa Connectors - 27

UNIFORMS - RECEPTIONIST

Spa Connectors - 28
PRIVATE LABEL

PRIVATE LABEL - DARK TONES

Argan Oil

Black Soap

Honey Coffee Scrub

Orange Blossom

Hydrating Dry Body Oil

Dry Brushes and Mitts

Connectors - 30
Spa

PRIVATE LABEL - LIGHT TONES

Argan Oil

Black Soap

Honey Coffee Scrub

Orange Blossom

Hydrating Dry Body Oil

Dry Brushes and Mitts

Spa Connectors - 31
Kathryn.moore@spaconnectors.com www.spaconnectors.com +971 58 220 1809 GET IN TOUCH

Turn static files into dynamic content formats.

Create a flipbook
Issuu converts static files into: digital portfolios, online yearbooks, online catalogs, digital photo albums and more. Sign up and create your flipbook.