PORTFOLIO ARQUITECTURA








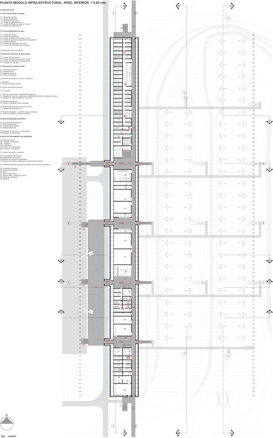
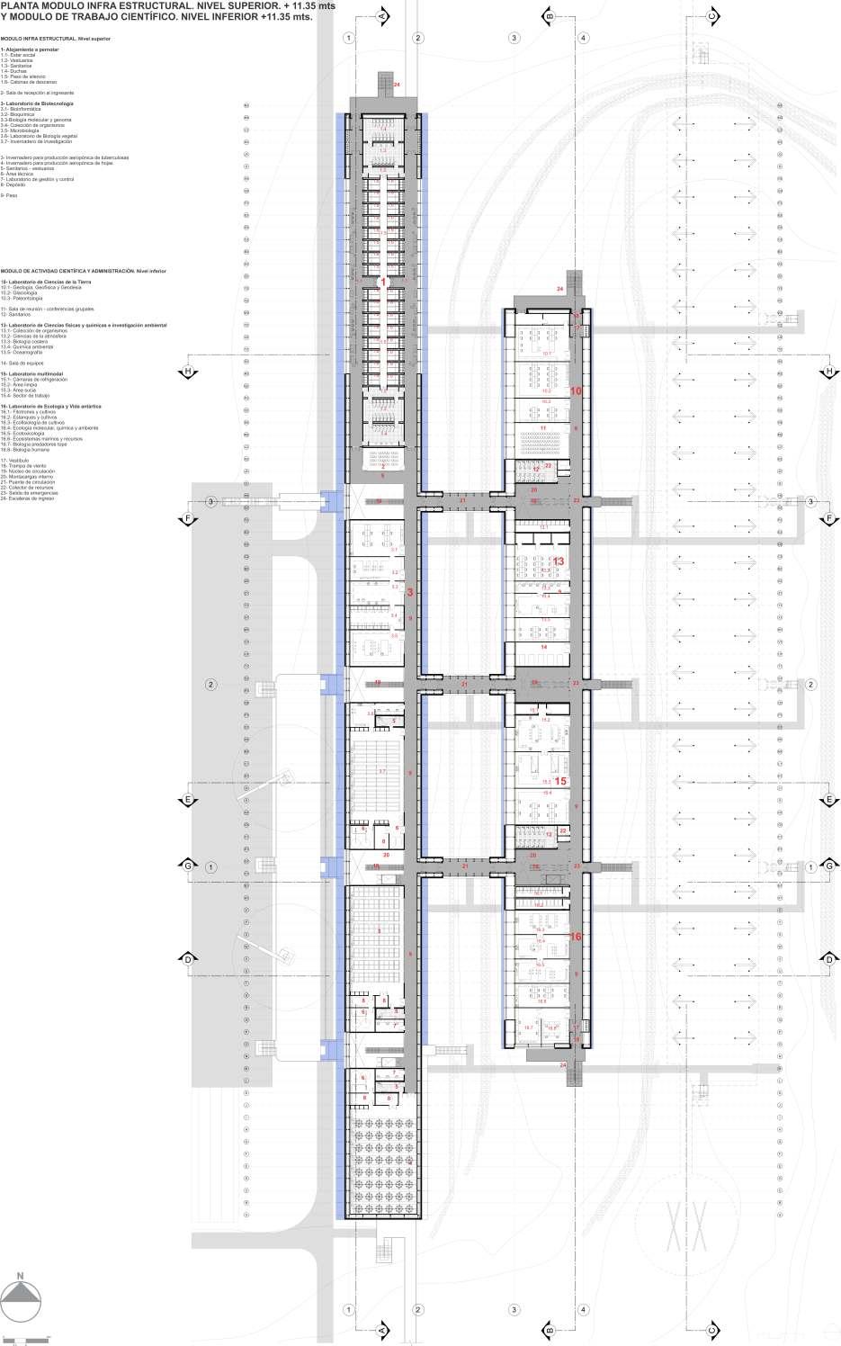
1- Estación hidroeléctrica
2- Presa hídrica
3- Vertedero
4- Parque de la capitalinidad
5- Fuente de la humanidad
6- Fuente Luis Revol
7- Plaza eólica
8-AccesoAuditorio CDI
9- Bicicletero apilable con montacarga automático
10-Acceso a edificio
11-Acceso estacionamiento vehicular subterraneo
12- Centro de recepción al visitante
13- Escalera de emergencia
14-Ascensores para personal de trabajo
15- Cabina de seguridad
16-Ascensor montacarga
17- Cafetería
18- Restaurante
19-Acceso parada monoriel por escaleras mecánicas
20- Rampa
21- Sanitarios

PLANTA EDIFICIO DE INVESTIGACIÓN. NIVEL 1 - AUDITORIO

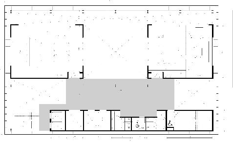
PLANTA EDIFICIO DE INVESTIGACIÓN. NIVEL 2 - BIBLIOTECA

PLANTA EDIFICIO DE INVESTIGACIÓN. NIVEL 3- OFICINAS ADMINISTRATIVAS

PLANTA EDIFICIO DE INVESTIGACION. NIVEL 4- TALLERES

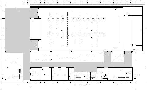
1- Auditorio capacidad 190 personas
2- Escenario
3- Técnica
4- Camarín
5- Salida de emergencia
6- Escalera de emergencia
7- Sanitarios
8- Ascensores personal de trabajo
9- Ascensores para visitantes
10- Escaleras para visitantes
13- Hall abierto 14- Foyer 15- Ascensor montacarga
1- Hall abierto
2- Escalera para visitantes
3-Ascensores para visitantes
4-Ascensor montacarga
5-Ascensor personal de trabajo
6- Sanitarios
7- Escalera de emergencia
8- Biblioteca
9- Mediateca
10- Lockers
11- Recepción
12- Área de estudio exterior
PLANTA EDIFICIO DE INVESTIGACIÓN. NIVEL 5 - PATIO SOCIAL

PLANTA EDIFICIO DE INVESTIGACIÓN. NIVEL 6 - LABORATORIOS

PLANTA EDIFICIO DE INVESTIGACIÓN. NIVEL 7 - LABORATORIOS
1- Hall abierto
2- Escalera para visitantes
3-Ascensores para visitantes
4-Ascensor montacarga
5-Ascensor personal de trabajo
6- Sanitarios
7- Escalera de emergencia
8- Recepción
9- Recursos humanos
10-Administración
11- Sala de reuniones
12- Dirección Epec
13- DirecciónAguas cordobesas
14- Secretaria
15- Office
16- Sala de comunicaciones
17-Archivo

PLANTA EDIFICIO DE INVESTIGACIÓN. NIVEL 8 - TERRAZA SOCIAL Y PRÁCTICAS
1- Hall abierto
2- Escalera para visitantes
3-Ascensores para visitantes
4-Ascensor montacarga
5-Ascensor personal de trabajo
6- Sanitarios
7- Escalera de emergencia
8-Taller

1- Espacio de uso colectivo
2- Kiosco autoservice
3- Hall abierto
4- Escalera para visitantes
5- Ascensores para visitantes
6- Ascensor montacarga
7- Ascensor personal de trabajo
8- Sanitarios
9- Escalera de emergencia
1- Hall abierto
2- Escalera para visitantes
3-Ascensores para visitantes
4-Ascensor montacarga
5-Ascensor personal de trabajo
6- Sanitarios
7- Escalera de emergencia
8- Laboratorio de Ecología y biomecanica
9- Laboratorio de biotecnología
10- Biocultivos
11- Bioquímica
12- Colección de cultivos
1- Hall abierto
2- Escalera para visitantes
3-Ascensores para visitantes
4-Ascensor montacarga
5-Ascensor personal de trabajo
6- Sanitarios
7- Escalera de emergencia
8- Laboratorio de Clima
9- Sala seca
10- Sala fría
11- Laboratorio Meteorología del espacio
12- Detector de partículas
13-Aerogenerador
14- Pasarela técnica
1- Hall abierto
2- Escalera para visitantes
3-Ascensores para visitantes
4-Ascensor montacarga
5-Ascensor personal de trabajo
6- Sanitarios
7- Escalera de emergencia
8-Terraza





