Skip to main content

Danylo. Portfolio

Page 1

Portfolio

Barabaš Danylo

Barabaš Danylo

18.06.2001

Kontaktní telefon +380 96 003 1902

E-mail danylo.arch@gmail.com Instagram @barabash.da.nila

Vzdělání

Znalost programů

ČVUT FA

Navazující magisterský obor

“Architektura a urbanismus”

Oděská státní akademie stavebního inženýrství a architektury

Uspěchy

Workshop : SESAM 2021 Poliklinika in Slavutyč

Workshop : Jižní pobřeží Ukrajiny . Od

vyšetření k růstu .

Skadovs´k - Geničesk 2030

Expozice : Výstava v muzeu sochy “Dvojčata”

Pracovní zkušenosti

“binar.studio “

-Architektonická studie

-výkresy nábytku

-vyměřování před stavbou

-prezentace a zalamování

“Urban Sustain Architects“

-znázornění analytických

schemat území

-ilustrace scénářů využití prostoru

Kresba a BIM

Revit

Autocad

SketchUp

LayOut

Rhinoceros

Grasshopper

Post processing

Photoshop

Illustrator

Indesign Blender

Visualizace

3ds Max + Corona

Twinmotion

Znalost jazyků

Čeština B2

Angličtina B1

Ruština Mateřský

Další dovednosti

Řidičský průkaz sk. B

2023 20182022 01/2021 10/2020 08/2021 03/202103/2023 07/202109/2021

Hasičská stanice

Příchod do parku

Analýza území pro nové městečko

Městečko pro 5000 lidí

Blokový dům

Kancelář knihovny

Rozvojová strategie

Instrukce pro péči o nábytek

Vizuailizace

Kresba nábytku

Vzdělávací projekty

Skutečné pracovní případy

1 2 3 4 5 6 7 8 9 10
Obsah

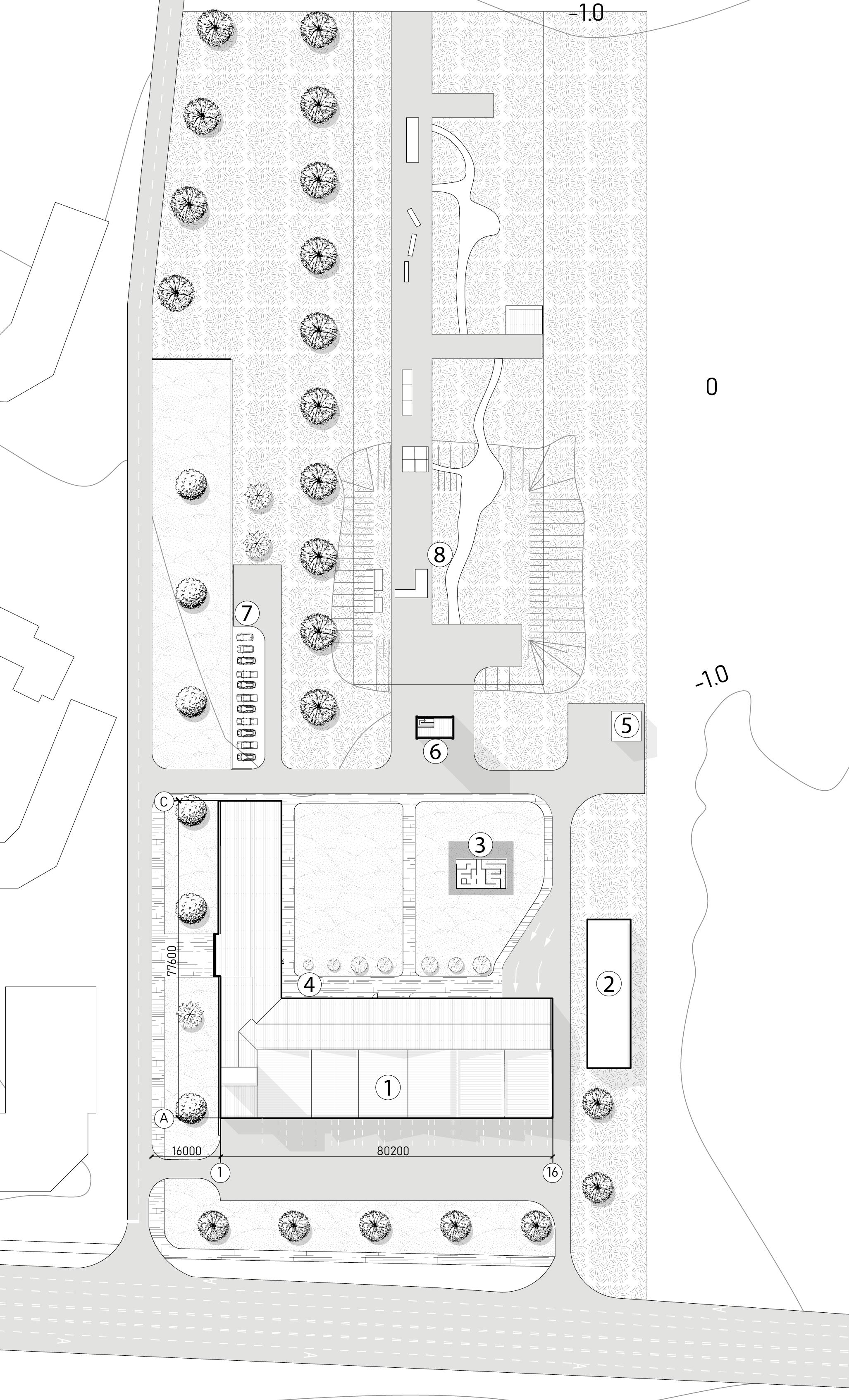
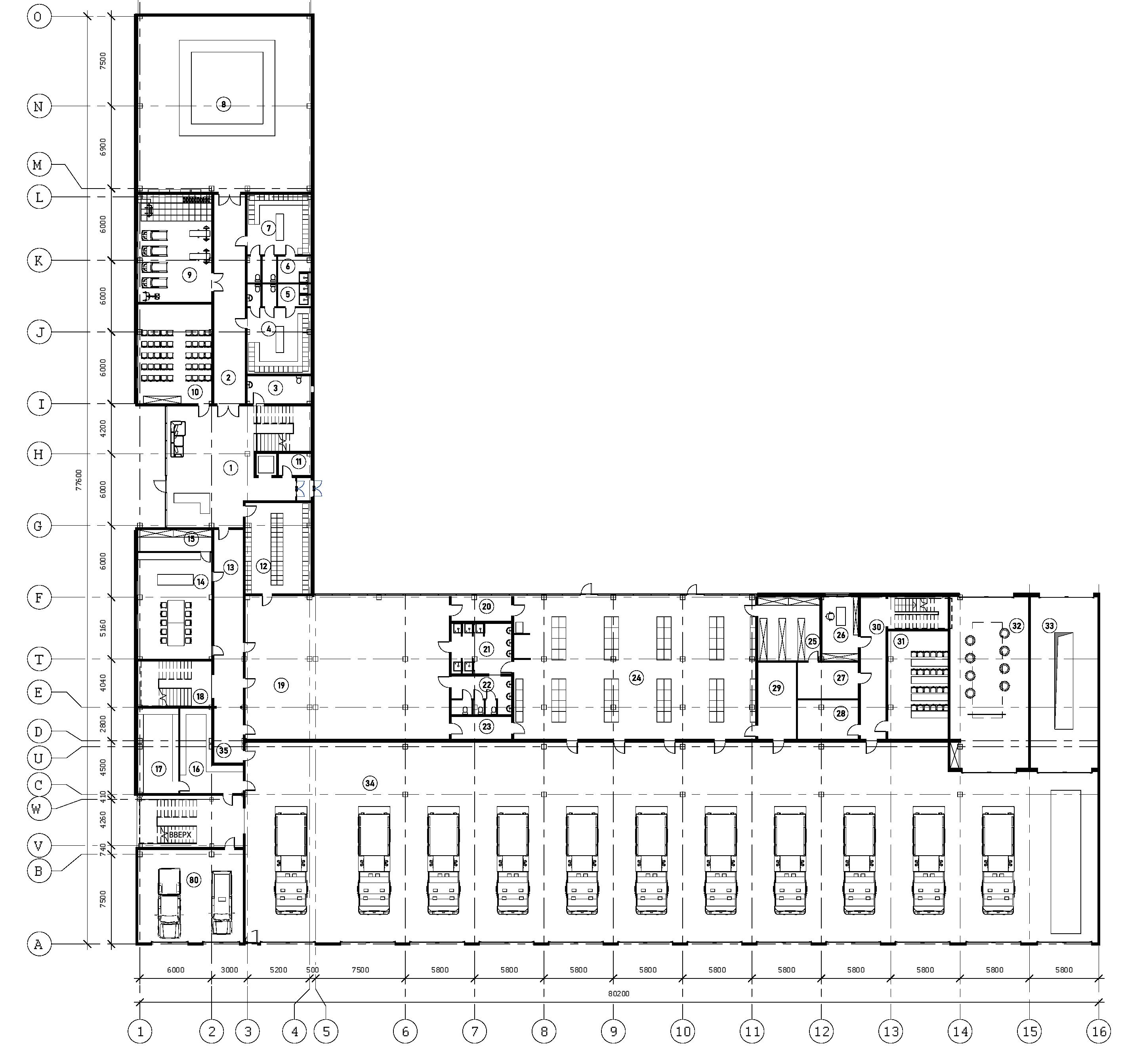
Hasičská stanice

Přízemí , Plán

1. Hala 2. Chodba 3. Koupelna pro 4. Šatna 5. Koupelna a sprchový kout 6. Koupelna a sprchový kout 7. Šatna 8. Tělocvična 9. Tělocvična 10 Pokoj pro obyvatelstvo 11 Spíž 12 Šatní skříň 13 Chodba 14 Jídelna 15 Spíž 16 Složení požárních hadic 17 Mytí požárních hadic 19 Strážní místnost 20 Brána 100 m² 46 m² 12 m² 29 m² 10 m² 11 m² 27 m² 211 m² 55 m2 51 m² 5 m² 41 m2 71 m2 54 m2 11 m² 25 m² 24 m² 202 m² 10 m² 21 Sprchový kout 22 Toaleta 23 Brána 24 Pokojspeciální oděvy 25 Složení osobních ochranných prostředků 26 Kancelář magistra 27 Kompresor 28 Složení 29 Prádelna 30 Pokoj 31 Pokoj bezpečnosti provozu 32 Myčka aut 33 ST 34 Garáž 20 m² 16 m² 9 m² 238 m² 28 m² 16 m² 15 m² 16 m² 21 m² 39 m2 45 m² 93 m2 80 m² 1162 m2

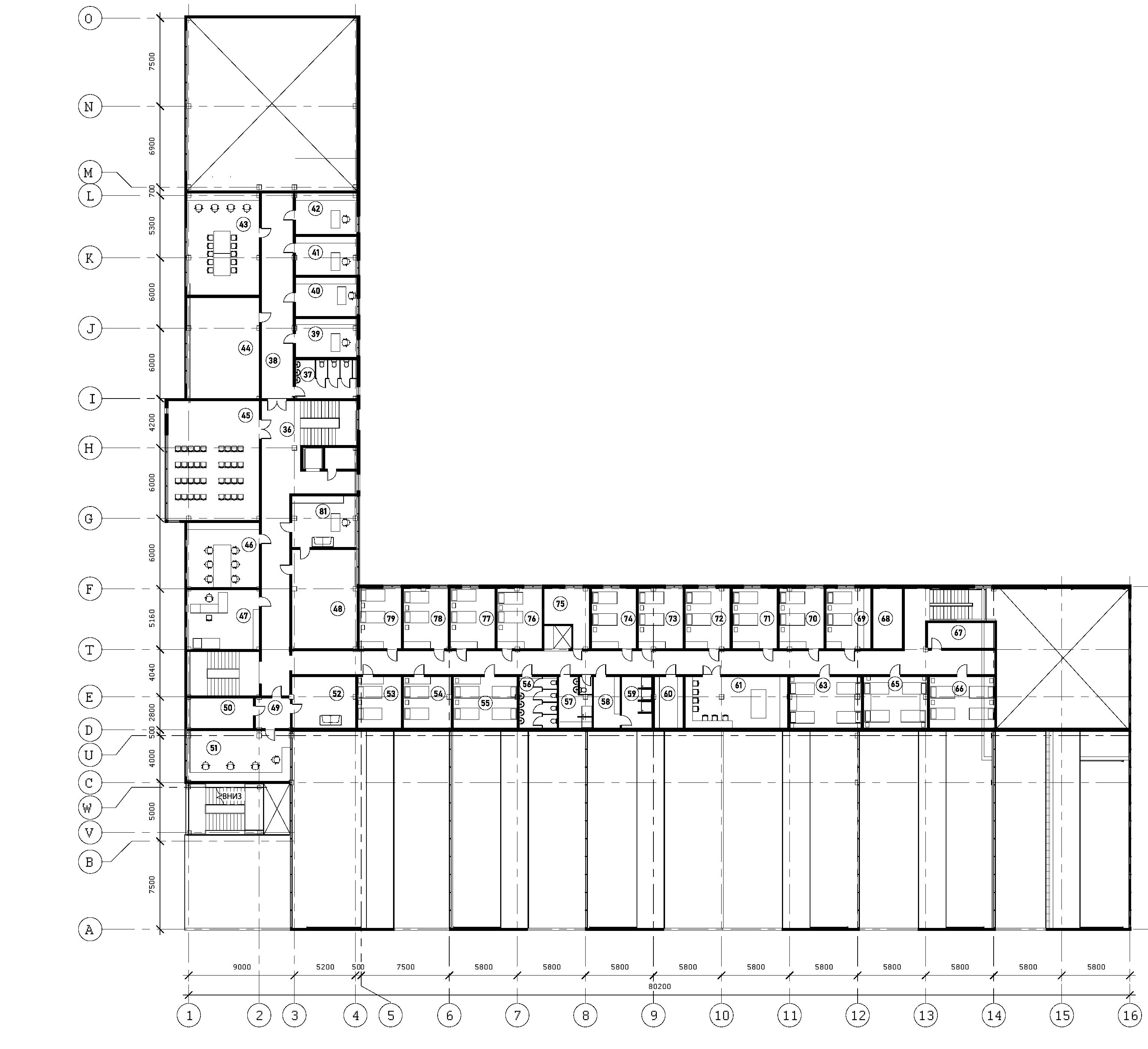
Prvně Patro , Plan

37 Toaleta 38 Pokoj 39 Kancelář úředníka 40 Kancelář 41 Kancelář náčelníka díly 42 Kancelář 43 Zasedací místnost 44 Pokoj 45 Tréninková třída 46 Kancelář 47 Lékařská ordinace 48 Pokoj psychologický vykládání 49 Tambour 50 Hardware 51 Expedice 52 Místnost pro zaměstnance 53 Pokoj 54 Pokoj 55 Pokoj 56 WC 17 m² 47 m² 17 m² 17 m² 17 m² 18 m² 53 m² 53 m² 79 m² 34 m² 31 m² 46 m² 8 m² 15 m² 37 m² 23 m² 16 m² 18 m² 23 m² 57 Sprchový kout 58 Šatna 59 Sprchový kout 60 Prádelna 61 Pokoj 63 Pokoj 81 Ordinace psychologa 14 m² 10 m² 10 m² 11 m² 11 m² 38 m² 26 m²
Západní fasáda Jižní fasáda

struktura doPravy v Prostoru

výcviková věž Generálný Plán Sekce 2-2 N
CEMETERY

Fotografíe místa projektování

Park

Příchod do parku Oděsa. Ukrajina

Železnice

Stánek s terasou

Přepravní kontejner s připojenou terasou

Polní cesta Vyhlídková terasa Stromořadí Pergola Cyklistická stezka

Cílová destinace:

Vstupní referenční bod

Místo pro kulturní akce

Ochrana před sluncem a deštěm

Uživatelé

Osm set metrů od parku se nachází tři sídliště

Záchod

Vyhlídková terasa

Kavárna

Chodník

Cyklistická stezka

Parkoviště pro kola

ráno dopoledne odpoledne večer
Axonometrie PřícHod do Parku

vyHlídková terasa

Zvláštnost

umístění

Kolem neustále projíždějí vlaky a nízko přistávají letadla

Úkol

Organizovat: bezpečné místo pro sledování vlaků a letadel. místo k odpočinku a přizpůsobit ho pro zimní použití.

Leto Zima

Fotografíe místa projektování

analýza území

Situační plán

Dopravní schéma

Hranice obce Hranice města Dálnice

Tramvajová trať Železnice

Zastavka

Zastavka

Plán reliéfu Schéma zelených porostů

městečko

Vysvětlující poznámka

1. autobusové nádraží 2. Hasičská stanice 3. Městská rada 4. Policie 5. Dům kultury 6. Knihovna 7. Stánky na trhu 8. Trh 9. Hotel 10. Restaurace 11. Skleníky 12. Blokový dům 13. Mateřská škola 14. Škola 15. Mateřská škola 16. Sportovní areál 17. Lázeňský dům
1-1
2-2
3-3
Profily Maketа
Sekce
Sekce
Sekce
silniční

Každá jednotka domu je určena pro čtyřčlennou rodinu.

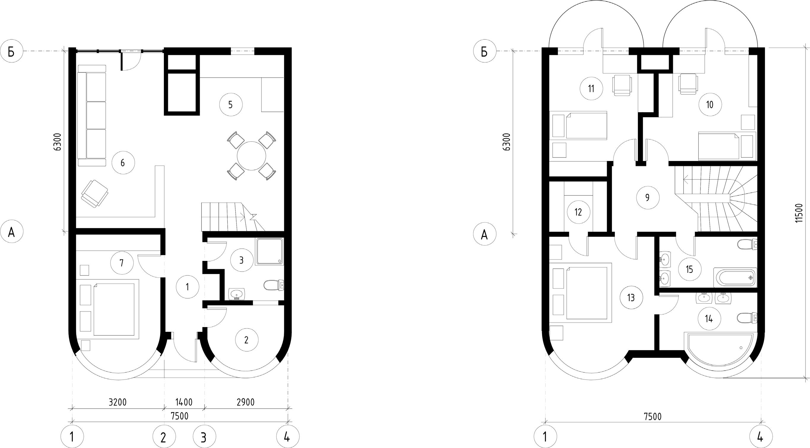
Blokový dům
Blokový dům
1. Vstupní hala 2. Prádelna 3. Záchod 4. Přístup na terasu 5. Kuchyně 6. Obývací pokoj 7. Ložnice 8. Schodiště 9. Hala 10. Dětský pokoj 11. tskéDětský pokoj 11. Dětský pokoj 12. Šatna 13. Ložnice 14. Záchod Plán přízemí Plán 1. patra

kancelář kniHovny muzeum umění oděsa

Skutečný projekt se bohužel neuskutečnil kvůli válce

Knihovna muzea umění se nachází v historické budově.

Cíl: renovace a změna designu kanceláře se zachováním starožitného nábytku a návrhem nového.

1. Vstupní prostor 9 m²

2. Knihovna 30 m²

3. Pracovna 1 14 m²

4. Chodba 4 m²

5. Koupelna 3 m²

6. Pracovna 2 15 m²

Velyka Oleksandrivka Koncept rozvoje

rozvojová strateG ie

Velyka Oleksandrivka Chersons´ká oblast´ Ukrajina

Velikoalexandrovský okres v Chersonské oblasti má největší CKP v pilotním projektu - přes 6000 m2.

Přeměna kulturního domu zahrnuje úpravu suterénu pro různé funkce, pouliční scény pro filmové a divadelní festivaly, co-workingový prostor pro matky a dětskou vědeckou laboratoř, terasu a solární elektrárnu na střeše. Centrum kulturních služeb v Velykí

Aleksandorce spojuje funkce klubu s velkým sálem pro 600 lidí, knihovny, umělecké školy, turistického centra a muzea současného umění na bázi umělecké rezidence.

KREATIVNÍ EKONOMIE

DIGITANLÍ KULTURNÍ SLUŽBY KOMFORTNÍ DOPRAVA ROZVOJ KULTURY
VELYK A OLEKSANDRIVKA SPA

VÁNOČNÍ JARMARK

KINO EXPOZICE DISCO

vizualizace HotovéHo

modelu

vizualizace HotovéHo

modelu

Byt ve Švýcarsku

-modelování židlí

-vizualizace terasy

instagram.com/barabash.da.nila
behance.net/danila1
danylo.arch@gmail.com

Turn static files into dynamic content formats.

Create a flipbook