Skip to main content

Designový projekt interiéru hotelu

Page 1

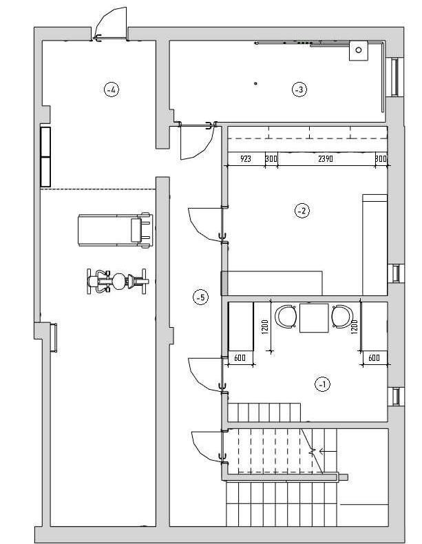
Plán měření suterénu

Poznámka: - Všechny rozměry jsou předběžné a vyžadují úpravu po instalaci;

3913 2099 4150 150 2940 1131 1280 4465 410 2786 1600 430 4870 5000 250 247 197 5293 1689 310 110 3913 100 1120 1200 940 644 Odpadní voda 150 600 600 А 3 Plán měření suterénu Hotel na ulici Puškinská 07.02.2023 1
SUTERÉNNÍCH MÍSTNOSTÍ № Místnosti S -1
10 м² -2
15 м² -3
-4
TABULKA
Pokoj pro personál
Prádelna
Kotelna 10 м²
Tělocvična2 30 м² -5 Suterénní chodba 15 м² Celkem: 5 85 м²

Poznámka: - Všechny rozměry jsou předběžné a vyžadují úpravu po instalaci;

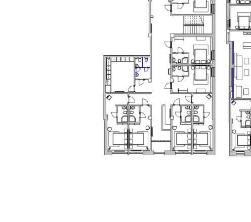
Plán měření přizemí

6 7 11 11.1 12 12.1 13 14 8 10 15 16 17 18 19 15.1 16.1 17.1 18.1 19.1 13.1 14.1 260 960 270 265 960 270 760 860 560 790 860 650 770 860 670 1430 420 105 505 960 1190 1510 330 1940 190 495 2601 4990 1495 200 1390 6535 2170 275 1950 3218 275 3977 2960 150 3057 2580 2820 200 2600 1300 3055 2581 2820 1090 1490 2500 3752 4262 3481 791 440 2170 325 1450 805 1909 946 650 2165 2840 660 4265 250 2740 835 970 90 3650 3740 295 1710 2005 220 2745 2965 475 1725 2200 1200 200 230 1160 450 1730 2180 2300 2300 161 220 940 100 1350 2290 1501 1190 100 1750 450 2200 200 1201 1120 230 1401 1670 520 2190 1160 1450 1510 1346 1315 1500 3820 960 100 2610 770 4795 2355 1865 1325 6260 4275 420 1375 4275 420 1360 1495 2216 300 5420 3690 3690 2165 1500 2300 3120 220 5100 100 5420 210 650 1550 2200 650 1530 2180 1170 230 1400 420 1330 90 2445 2355 2300 3150 660 465 1845 2970 1510 1460 240 400 420 350 660 1540 220 2200 1410 1200 200 630 1570 1400 2200 2300 3150 1460 1500 2960 5450 650 1550 220 240 475 5450 815 3050 100 285 90 325 90 270 310 1700 1775 430 220 1345 200 5420 1215 А 3 Plán měření přizemí Hotel na ulici Puškinská 07.02.2023 2
TABULKA MÍSTNOSTÍ PŘÍZEMÍ № Místnosti S 6 Tambur 5 м² 7 Chodba 85 м² 8 WC pro zaměstnance 5 м² 10 Kuchyně 20 м² 11 Pokoj typ 1 15 м² 11.1 Pokoj typ 1 5 м² 12 Pokoj typ 1 15 м² 12.1 Pokoj typ 1 5 м² 13 Pokoj typ 1 15 м² 13.1 Pokoj typ 1 5 м² 14 Pokoj typ 1 20 м² 14.1 Pokoj typ 1 5 м² 15 Pokoj typ 2 15 м² 15.1 Pokoj typ 2 5 м² 16 Pokoj typ 2 15 м² 16.1 Pokoj typ 2 5 м² 17 Pokoj typ 3 15 м² 17.1 Pokoj typ 3 5 м² 18 Pokoj typ 3 15 м² 18.1 Pokoj typ 3 5 м² 19 Pokoj typ 3 15 м² 19.1 Pokoj typ 3 5 м² Celkem: 22 270 м²

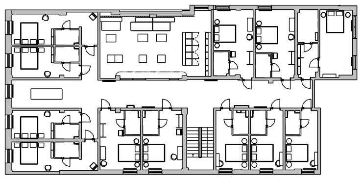
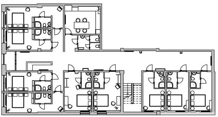
Plán m ěření 1. patro TABULKA

Poznámka: - Všechny rozměry jsou předběžné a vyžadují úpravu po instalaci;

20 21 22 23 24 25 26 27 28 29 30 31 32 33 24.1 24.2 25.1 26.1 29.1 30.1 31.1 32.1 28.1 27.1 21.1 22.1 23.1 5903 1735 1246 2980 1745 1235 210 6168 2980 1710 180 296 2685 2583 1890 2838 230 81 250 1559 40 5898 270 3510 90 3600 3915 2293 2099 1501 6208 50 2085 430 1110 3625 3718 2310 2120 1505 1164 470 486 101 281 180 1221 230 1963 2193 1401 1405 1990 200 1215 190 1539 1000 790 2725 610 2350 1115 90 330 80 250 250 261 71 6000 10129 2204 450 5650 420 1405 6041 1490 3050 40 4255 700 2850 268 90 80 2823 1510 2290 220 161 1190 200 470 1720 2190 1390 1390 460 1730 200 1190 2190 3845 3845 2593 230 40 1379 421 4295 250 1490 1083 6355 2570 2606 2700 2616 85 60 4295 420 230 220 2305 946 1440 1120 220 2205 480 1340 200 470 2215 1400 3820 2315 220 1490 1601 1000 101 1500 1100 100 2817 1490 345 440 1405 215 660 220 2206 1400 2306 3110 2190 1500 5416 660 240 2201 1400 88 2060 330 4946 140 5416 3648 80 80 600 630 1726 3150 2270 260 400 420 320 240 650 1950 1400 240 650 1400 2195 3145 1500 2195 230 490 1351 231 650 1514 2295 3105 5400 3105 1465 635 865 90 2567 40 260 1490 8125 4395 3020 436 3582 5772 1360 1879 2361 4860 685 2640 1490 6355 70 70 260 550 200 155 2445 А 3 Plán měření 1. patro Hotel na ulici Puškinská 07.02.2023 3
№ Místnost S 19.2 Zasedací místnost 15 м² 20 Co-working 55 м² 21 Pokoj typ 3 15 м² 21.1 Pokoj typ 3 5 м² 22 Pokoj typ 3 15 м² 22.1 Pokoj typ 3 5 м² 23 Pokoj typ 3 15 м² 23.1 Pokoj typ 3 5 м² 24 Pokoj typ 4 20 м² 24.1 Pokoj typ 4 5 м² 24.2 Pokoj typ 4 5 м² 25 Pokoj typ 2 20 м² 25.1 Pokoj typ 2 5 м² 26 Pokoj typ 2 20 м² 26.1 Pokoj typ 2 5 м² 27 Pokoj typ 2 15 м² 27.1 Pokoj typ 2 5 м² 28 Pokoj typ 2 15 м² 28.1 Pokoj typ 2 5 м² 29 Pokoj typ 1 15 м² 29.1 Pokoj typ 1 5 м² 30 Pokoj typ 1 20 м² 30.1 Pokoj typ 1 5 м² 31 Pokoj typ 1 15 м² 31.1 Pokoj typ 1 5 м² 32 Pokoj typ 1 15 м² 32.1 Pokoj typ 1 5 м² 33 Chodba 75 м² Celkem : 28 380 м²
MÍSTNOSTÍ 1.PATRO

TABULKA MÍSTNOSTÍ PŘÍZEMÍ

Plán demontáže přizemí

Demontáž stropů Armstrong

Demontáž svítidel Armstrong

Další instalace demontovaného umyvadla (list 7)

Poznámka:

- Všechny rozměry jsou předběžné a vyžadují úpravu po instalaci;

- Nespecifikovaná svítidla Armstrong v místech, kde se má strop demontovat, zůstávají na místě a jsou zavěšena na ocelových lanech (schéma 1);

А 3 Plán
přizemí Hotel na ulici Puškinská 07.02.2023 4
demontáže
Stávající
schéma 1
konstrukce
№ Místnosti S 6 Tambur 5 м² 7 Chodba 85 м² 8 WC pro zaměstnance 5 м² 10 Kuchyně 20 м² 11 Pokoj typ 1 15 м² 11.1 Pokoj typ 1 5 м² 12 Pokoj typ 1 15 м² 12.1 Pokoj typ 1 5 м² 13 Pokoj typ 1 15 м² 13.1 Pokoj typ 1 5 м² 14 Pokoj typ 1 20 м² 14.1 Pokoj typ 1 5 м² 15 Pokoj typ 2 15 м² 15.1 Pokoj typ 2 5 м² 16 Pokoj typ 2 15 м² 16.1 Pokoj typ 2 5 м² 17 Pokoj typ 3 15 м² 17.1 Pokoj typ 3 5 м² 18 Pokoj typ 3 15 м² 18.1 Pokoj typ 3 5 м² 19 Pokoj typ 3 15 м² 19.1 Pokoj typ 3 5 м² Celkem: 22 270 м²

Stávající konstrukce

Poznámka:

- Všechny rozměry jsou předběžné a vyžadují úpravu po instalaci;

- Nespecifikovaná svítidla Armstrong v místech, kde se má strop demontovat, zůstávají na místě a jsou zavěšena na ocelových lanech (schéma 1);

schéma 1

20 21 22 23 24 25 26 27 28 29 30 31 32 33 24.1 24.2 25.1 26.1 29.1 30.1 31.1 32.1 28.1 27.1 21.1 22.1 23.1 А 3
Hotel na
07.02.2023 5 Plán demontáže 1. patro TABULKA MÍSTNOSTÍ 1.PATRO № Místnost S 19.2 Zasedací místnost 15 м² 20 Co-working 55 м² 21 Pokoj typ 3 15 м² 21.1 Pokoj typ 3 5 м² 22 Pokoj typ 3 15 м² 22.1 Pokoj typ 3 5 м² 23 Pokoj typ 3 15 м² 23.1 Pokoj typ 3 5 м² 24 Pokoj typ 4 20 м² 24.1 Pokoj typ 4 5 м² 24.2 Pokoj typ 4 5 м² 25 Pokoj typ 2 20 м² 25.1 Pokoj typ 2 5 м² 26 Pokoj typ 2 20 м² 26.1 Pokoj typ 2 5 м² 27 Pokoj typ 2 15 м² 27.1 Pokoj typ 2 5 м² 28 Pokoj typ 2 15 м² 28.1 Pokoj typ 2 5 м² 29 Pokoj typ 1 15 м² 29.1 Pokoj typ 1 5 м² 30 Pokoj typ 1 20 м² 30.1 Pokoj typ 1 5 м² 31 Pokoj typ 1 15 м² 31.1 Pokoj typ 1 5 м² 32 Pokoj typ 1 15 м² 32.1 Pokoj typ 1 5 м² 33 Chodba 75 м² Celkem : 28 380 м² Demontáž stropů Armstrong
Plán demontáže 1. patro
ulici Puškinská
Demontáž svítidel Armstrong

Plán instalace přízemí

TABULKA

Kuchyňský dřez Odtok + studená a teplá voda

Nové konstrukce

Stávající konstrukce

Poznámka: - Všechny rozměry jsou předběžné a vyžadují úpravu po instalaci;

Instalace skleněných tvárnic (následují dokončovací práce a instalace elektroinstalace)

Instalace skleněných tvárnic (následují dokončovací práce a instalace elektroinstalace)

Instalace skleněných tvárnic (následují dokončovací práce a instalace elektroinstalace)

6 7 11 11.1 12 12.1 13 14 8 10 15 16 17 18 19 15.1 16.1 17.1 18.1 19.1 13.1 14.1 2000 600
Odtok
studená a teplá voda
montáž H=2000 mm, šířka křídla 600 mm 1520 75 980 980 75 600 170 600 170 500
Instalace toalety Odtok + studená voda Umyvadlo
+
Montáž dělicího panelu (sádrokarton + sádrokartonový profil) + Dveře pro zapuštěnou
1320
920
Odtok + studená voda А 3 Plán instalace přízemí Hotel na ulici Puškinská 07.02.2023 7
Odsavač par
1920 Myčka nádobí
MÍSTNOSTÍ PŘÍZEMÍ № Místnosti S 6 Tambur 5 м² 7 Chodba 85 м² 8 WC pro zaměstnance 5 м² 10 Kuchyně 20 м² 11 Pokoj typ 1 15 м² 11.1 Pokoj typ 1 5 м² 12 Pokoj typ 1 15 м² 12.1 Pokoj typ 1 5 м² 13 Pokoj typ 1 15 м² 13.1 Pokoj typ 1 5 м² 14 Pokoj typ 1 20 м² 14.1 Pokoj typ 1 5 м² 15 Pokoj typ 2 15 м² 15.1 Pokoj typ 2 5 м² 16 Pokoj typ 2 15 м² 16.1 Pokoj typ 2 5 м² 17 Pokoj typ 3 15 м² 17.1 Pokoj typ 3 5 м² 18 Pokoj typ 3 15 м² 18.1 Pokoj typ 3 5 м² 19 Pokoj typ 3 15 м² 19.1 Pokoj typ 3 5 м² Celkem: 22 270 м²
Pohled nadělicí panel v místnosti č. 8

TABULKA MÍSTNOSTÍ 1.PATRO

Plán instalace 1. patro

Instalace skleněných tvárnic (následují dokončovací práce a instalace elektroinstalace)

Instalace skleněných tvárnic (následují dokončovací práce a instalace elektroinstalace)

Instalace skleněných tvárnic (následují dokončovací práce a instalace elektroinstalace)

20 21 22 23 24 25 26 27 28 29 30 31 32 33 24.1 24.2 25.1 26.1 29.1 30.1 31.1 32.1 28.1 27.1 21.1 22.1 23.1
skleněných tvárnic (následují dokončovací práce a instalace elektroinstalace)
skleněných příček příčka s dveřmi 2570 4514 3465 3042 3042 3042
Instalace
Instalace
PVC Strip Industrial Curt 1732 600 6520 400 440 180 175 2805 650 Montáž stropní klimatizační jednotky А 3 Plán instalace 1. patro Hotel na ulici Puškinská 07.02.2023 8
№ Místnost S 19.2 Zasedací místnost 15 м² 20 Co-working 55 м² 21 Pokoj typ 3 15 м² 21.1 Pokoj typ 3 5 м² 22 Pokoj typ 3 15 м² 22.1 Pokoj typ 3 5 м² 23 Pokoj typ 3 15 м² 23.1 Pokoj typ 3 5 м² 24 Pokoj typ 4 20 м² 24.1 Pokoj typ 4 5 м² 24.2 Pokoj typ 4 5 м² 25 Pokoj typ 2 20 м² 25.1 Pokoj typ 2 5 м² 26 Pokoj typ 2 20 м² 26.1 Pokoj typ 2 5 м² 27 Pokoj typ 2 15 м² 27.1 Pokoj typ 2 5 м² 28 Pokoj typ 2 15 м² 28.1 Pokoj typ 2 5 м² 29 Pokoj typ 1 15 м² 29.1 Pokoj typ 1 5 м² 30 Pokoj typ 1 20 м² 30.1 Pokoj typ 1 5 м² 31 Pokoj typ 1 15 м² 31.1 Pokoj typ 1 5 м² 32 Pokoj typ 1 15 м² 32.1 Pokoj typ 1 5 м² 33 Chodba 75 м² Celkem : 28 380 м² Poznámka:
jsou
vyžadují úpravu po instalaci; Nové konstrukce Stávající konstrukce
- Všechny rozměry
předběžné a

TABULKA SUTERÉNNÍCH MÍSTNOSTÍ

№ Místnosti S

-1 Pokoj pro personál 10 м²

-2 Prádelna 15 м²

-3 Kotelna 10 м²

-4 Tělocvična2 30 м²

-5 Suterénní chodba 15 м²

Celkem: 5 85 м²

Poznámka: - Všechny rozměry jsou předběžné a vyžadují úpravu po instalaci;

-5 -1 -2 -3 -4 923 1200 600 300 2390 300 390 2600 1270 А 3 Plán nábytku a vybavení suterénu Hotel na ulici Puškinská 07.02.2023 9
Plán nábytku a vybavení suterénu Schéma skladu Schéma prádelny

Poznámka: - Všechny rozměry jsou předběžné a vyžadují úpravu po instalaci;

Plán nábytku a vybavení přizemí

3565 1600 2000 1200 490 1600 2000 490 1200 1600 2000 2000 1600 2000 1600 1000 1000 1000 1000 1600 2000 2000 1600 735 735 735 735 500 400 400 500 1000 3505 1200 1600 2000 1600 400 500 735 735 1000 4545 2515 735 245 1200 300 1200 300 2000 500 400 735 735 245 245 245 245 1230 580 580 1230 19 19.1 18 18.1 17 17.1 16 16.1 15.1 15 11.1 12.1 12 11 13 13.1 14.1 14 10 8 А 3 Plán nábytku a vybavení přizemí Hotel na ulici Puškinská 07.02.2023 10
TABULKA MÍSTNOSTÍ PŘÍZEMÍ № Místnosti S 6 Tambur 5 м² 7 Chodba 85 м² 8 WC pro zaměstnance 5 м² 10 Kuchyně 20 м² 11 Pokoj typ 1 15 м² 11.1 Pokoj typ 1 5 м² 12 Pokoj typ 1 15 м² 12.1 Pokoj typ 1 5 м² 13 Pokoj typ 1 15 м² 13.1 Pokoj typ 1 5 м² 14 Pokoj typ 1 20 м² 14.1 Pokoj typ 1 5 м² 15 Pokoj typ 2 15 м² 15.1 Pokoj typ 2 5 м² 16 Pokoj typ 2 15 м² 16.1 Pokoj typ 2 5 м² 17 Pokoj typ 3 15 м² 17.1 Pokoj typ 3 5 м² 18 Pokoj typ 3 15 м² 18.1 Pokoj typ 3 5 м² 19 Pokoj typ 3 15 м² 19.1 Pokoj typ 3 5 м² Celkem: 22 270 м²

- Všechny rozměry jsou předběžné a vyžadují úpravu po instalaci;

2000 1600 2000 1600 1600 2000 2000 1600 490 1200 1200 490 1600 2000 1600 2000 500 400 400 500 1600 2000 735 735 735 735 245 245 500 400 400 500 2000 1600 500 400 400 500 400 500 2000 1600 500 400 735 735 735 735 1700 950 2000 1600 400 800 900 3000 4010 500 2000 1600 2000 1600 735 735 400 600 245 735 1600 2000 700 1500 1200 490 580 1230 1200 490 1000 1000 1000 1000 700 700 700 700 900 700 700 900 700 700 700 900 700 1000 19.2 31.1 32.1 32 31 29 29.1 30.1 30 20 28 21.1 22.1 25 26 23.1 24.2 33 884 800 884 23 22 21 24 24.1 25.1 26.1 27 27.1 28.1 31 33 790 1523 1390 726 1204 А 3
Hotel na ulici Puškinská 07.02.2023 11
TABULKA MÍSTNOSTÍ 1.PATRO № Místnost S 19.2 Zasedací místnost 15 м² 20 Co-working 55 м² 21 Pokoj typ 3 15 м² 21.1 Pokoj typ 3 5 м² 22 Pokoj typ 3 15 м² 22.1 Pokoj typ 3 5 м² 23 Pokoj typ 3 15 м² 23.1 Pokoj typ 3 5 м² 24 Pokoj typ 4 20 м² 24.1 Pokoj typ 4 5 м² 24.2 Pokoj typ 4 5 м² 25 Pokoj typ 2 20 м² 25.1 Pokoj typ 2 5 м² 26 Pokoj typ 2 20 м² 26.1 Pokoj typ 2 5 м² 27 Pokoj typ 2 15 м² 27.1 Pokoj typ 2 5 м² 28 Pokoj typ 2 15 м² 28.1 Pokoj typ 2 5 м² 29 Pokoj typ 1 15 м² 29.1 Pokoj typ 1 5 м² 30 Pokoj typ 1 20 м² 30.1 Pokoj typ 1 5 м² 31 Pokoj typ 1 15 м² 31.1 Pokoj typ 1 5 м² 32 Pokoj typ 1 15 м² 32.1 Pokoj typ 1 5 м² 33 Chodba 75 м² Celkem : 28 380 м² Poznámka:
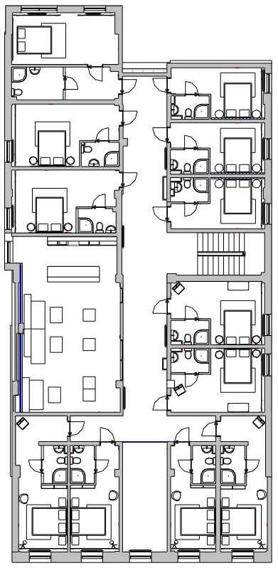
Plán nábytku a vybavení 1. patro
Plán nábytku a vybavení 1. patro

Výkaz materiálu pro stěny suterénu

Výkaz materiálu pro stěny přízemí

Výkaz materiálu pro stropy přízemí

Výkaz materiálu pro stropy

Plán dokončení 1. patro

Výkaz materiálů pro povrchovou úpravu stěn v místnostech

Materiál stěn S

Bílá barva 1498.5 м²

Terakotová barva 42.4 м²

Chodba

Terakotová barva 19.8 м²

Chodba 1. patro

Terakotová barva 19.1 м²

Chodba v suterénu

Terakotová barva 3.2 м²

Co-working Barva lila 6.8 м²

Kuchyně přízemí

Terakotová barva 5 м²

Pokoj 11

Terakotová barva 5.1 м²

Pokoj 11 koupelna

Terakotová barva 13.4 м²

Pokoj 12

Terakotová barva 7.1 м²

Pokoj 12 koupelna

Terakotová barva 13.3 м²

Pokoj 13

Terakotová barva 4.6 м²

Pokoj 13 koupelna

Terakotová barva 13.3 м²

Pokoj 14

Terakotová barva 6.5 м²

Pokoj 14 koupelna

Terakotová barva 13.4 м²

Pokoj 15 Zelená barva 5 м²

Pokoj 15 koupelna

Zelená barva 15.7 м²

Výkaz materiálů pro povrchovou úpravu stěn v místnostech

Materiál stěn S

Pokoj 16 Zelená barva 5.7 м²

Pokoj 16 koupelna Zelená barva 13.8 м²

Pokoj 17 Barva modrá 4.4 м²

Pokoj 17 koupelna Barva modrá 15.6 м²

Pokoj 18 Barva modrá 5.4 м²

Pokoj 18 koupelna Barva modrá 14 м²

Pokoj 19 Barva modrá 4.1 м²

Pokoj 19 koupelna Barva modrá 13.8 м²

Pokoj 21

Barva modrá 4.9 м²

Pokoj 21 koupelna Barva modrá 18.4 м²

Pokoj 22

Barva modrá 5.1 м²

Pokoj 22 koupelna Barva modrá 17.2 м²

Pokoj 23

Barva modrá 4.7 м²

Pokoj 23 koupelna Barva modrá 16.9 м²

Pokoj 24

Béžová barva 5.6 м²

Pokoj 24 koupelna Béžová barva 23.2 м²

Pokoj 24 vstupní chodba

Béžová barva 2.6 м²

Pokoj 25 Zelená barva 5.8 м²

Výkaz materiálů pro povrchovou úpravu stěn v místnostech

Zasedací místnost Terakotová barva 4.6 м² 2037.7 м²

7 19 18 17 16 15 12 12.1 11.1 7 13 13.1 14.1 14 10 8 15.1 16.1 17.1 18.1 19.1 23 22 21 27 28 32 31 19.2 29 30 20 26 25 24 24.1 24.2 23.1 22.1 21.1 28.1 32.1 29.1 30.1 27.1 3913 2099 4150 150 2940 1131 1280 4465 410 2786 1600 430 4870 5000 250 247 197 5293 1689 310 110 3913 100 1120 -5 -1 -2 -3 -4 А 3 Plány dokončení Hotel na ulici Puškinská 07.02.2023 12 Plán dokončení přizemí
Materiál S Barva modrá 67.1 м² Bílá barva 557.8 м² Terakotová barva 159.7 м² Zelená barva 47.9 м² 832.6 м² Plán dokončení suterénu
Materiál S Bílá barva 190.9 м² Terakotová barva 11.6 м² 202.6 м²
materiálu
Materiál S Barva lila 7.4 м² Barva modrá 76.5 м² Béžová barva 35.3 м² Bílá barva 752.4 м² Terakotová barva 116.2 м² Zelená barva 93.6 м² 1081.4 м²
Výkaz
pro stěny 1. patro
Materiál S Zelená barva 38.7 м² Barva modrá 46.5 м² Terakotová barva 186.7 м² 271.8 м²
Materiál S Terakotová barva 44.9 м² 44.9 м²
Výkaz materiálu pro stropy suterénu
patro Materiál S Zelená barva 82.0 м² Béžová barva 29.3 м² Barva modrá 46.2 м² Terakotová barva 165.7 м² Barva lila 59.3 м² 382.5 м²
1.
Materiál stěn S Pokoj 25 koupelna Zelená barva 14.3 м² Pokoj 26 Zelená barva 5.3 м² Pokoj 26 koupelna Zelená barva 14.1 м² Pokoj 27 Zelená barva 5.1 м² Pokoj 27 koupelna Zelená barva 13.7 м² Pokoj 28 Zelená barva 5 м² Pokoj 28 koupelna Zelená barva 16.7 м² Pokoj 29 Terakotová barva 4.9 м² Pokoj 29 koupelna Terakotová barva 13.3 м²
Terakotová
Pokoj 30
barva 7 м² Pokoj 30 koupelna Terakotová barva 13.9 м²
Terakotová
Terakotová
Pokoj 31 Terakotová barva 4.8 м² Pokoj 31 koupelna
barva 13.4 м² Pokoj 32
barva 7 м² Pokoj 32 koupelna Terakotová barva 13.5 м² Tělocvična Terakotová barva 7.7 м²

Plán elektroinstalace suterénu

TABULKA SUTERÉNNÍCH MÍSTNOSTÍ

№ Místnosti S

-1 Pokoj pro personál 10 м²

-2 Prádelna 15 м²

-3 Kotelna 10 м²

-4 Tělocvična2 30 м²

-5 Suterénní chodba 15 м² Celkem: 5 85 м²

Poznámka:

- Všechny rozměry jsou předběžné a vyžadují úpravu po instalaci;

Jediný tlačítkový spínač Odnímatelná zásuvka (2 kusy)

Stávající zásuvka

Zásuvka 220 V nová (15 ks)

Armstrong stropní sv ětlo stávající

Armstrong stropní světlo nové

3075 625 360 1233 580 190 5085 1920 1970 585 1155 600 1080 190 Н= 300 400 Н= 300 Н= 900 Н= 890 Н= 475 Н= 475 Н= 480 Н= 470 Н= 980 Н= 330 Н= 330 Н= 330 Н= 1000 160 Н= 300 Н= 300 300 400 Н= 1000 740 Н= 300 Н= 300 Sušicí stroje Pračky Н= 1000 1140 915 1225 625 625 625 960 1300 А 3 Plán elektroinstalace suterénu Hotel na ulici Puškinská 07.02.2023 14

Plán elektroinstalace přizemí

TABULKA MÍSTNOSTÍ PŘÍZEMÍ

Poznámka: - Všechny rozměry jsou předběžné a vyžadují úpravu po instalaci;

Jediný tlačítkový spínač

Stávající zásuvka TV

Výstup stávající s přidáním druhého (18 ks)

Zásuvka 220 V (10 kusů)

Elektrický výstup (16 ks)

Závěsné svítidlo (6 kusů)

Stropní světlo Armstrong

Stropní vestavné stropní svítidlo (3 kusy) Stávající zásuvka

Jednoduchý tlačítkový spínač (15 kusů)

6 7 11 11.1 12 12.1 13 14 8 10 15 16 17 18 19 15.1 16.1 17.1 18.1 19.1 13.1 14.1 1110 3230 1050 3160 1080 3180 1080 3190 540 540 520 520 530 540 500 510 510 510 Н= 300 300 300 300 300 300 300 Н= 300 Н= 300 Н= 300 Н= 300 Гр. 9.2 Гр 8.2 Гр 7.2 300 280 Н= 900 Н= 900 270 Н= 900 260 Н= 900 Н= 900 275 210 Н= 900 300 230 300 Н= 900 600 800 800 800 850 Н= 1530 Н= 890 Н= 1530 Н= 890 Н= 830 Н= 230 Н= 1500 Н= 890 Н= 1520 Н= 900 Н= 300 Н= 1570 Н= 890 Н= 1530 Н= 900 Н= 300 Н= 1600 Н= 1560 Н= 865 Н= 260 Н= 1560 Н= 890 Н= 300 Н= 880 Н= 1500 Н= 1500 Н= 1510 Н= 880 Н= 290 Н= 1800 Н= 890 Н= 290 Н= 1520 Н= 1600 Н= 880 Н= 890 Н= 290 Н= 880 Н= 1520 Н= 1580 Н= 1600 Н= 890 Н= 280 Н= 1510 Н= 875 Н= 880 Н= 880 Н= 300 Н= 860 150 Н= 900 Н= 300 Н= 1100 480 Н= 900 Гр 9.1 Гр 8.1 Н= 900 Гр 7.1 Н= 900 Гр. 6 Гр. 5 265 Гр 2 Гр. 4 Гр. 3 Гр. 1 Гр. 11 Гр 10 1770 1000 1170 Гр. 12 600 Н= 900 Н= 300 1050 600 Н= 300 Zásuvky 220 V z podlahy H= 580 H= 580 H= 580 H= 580 H= 560 H= 560 H= 560 H= 560 H= 580 H= 580 H= 580 H= 580 H= 580 H= 580 H= 560 H= 560 H= 560 H= 560 1000 Гр. 10 600 1215 320 1815 680 480 480 680 760 1003 А 3 Plán elektroinstalace přizemí Hotel na ulici Puškinská 07.02.2023 15
№ Místnosti S 6 Tambur 5 м² 7 Chodba 85 м² 8 WC pro zaměstnance 5 м² 10 Kuchyně 20 м² 11 Pokoj typ 1 15 м² 11.1 Pokoj typ 1 5 м² 12 Pokoj typ 1 15 м² 12.1 Pokoj typ 1 5 м² 13 Pokoj typ 1 15 м² 13.1 Pokoj typ 1 5 м² 14 Pokoj typ 1 20 м² 14.1 Pokoj typ 1 5 м² 15 Pokoj typ 2 15 м² 15.1 Pokoj typ 2 5 м² 16 Pokoj typ 2 15 м² 16.1 Pokoj typ 2 5 м² 17 Pokoj typ 3 15 м² 17.1 Pokoj typ 3 5 м² 18 Pokoj typ 3 15 м² 18.1 Pokoj typ 3 5 м² 19 Pokoj typ 3 15 м² 19.1 Pokoj typ 3 5 м² Celkem: 22 270 м²

Plán elektroinstalace přizemí 1. patro

TABULKA

Poznámka: - Všechny rozměry jsou předběžné a vyžadují úpravu po instalaci;

-Vyměňte žárovky stávajících stropních svítidel.

Teplota 4000K

Jediný tlačítkový spínač

Stávající zásuvka TV

Stávající zásuvka

Stávající zásuvka s přidáním druhého (22 ks)

Zásuvka 220 V (28 kusů)

Jednoduchý tlačítkový spínač (18 kusů)

Stmívač LED pásků

Elektrický výstup (20 ks)

Závěsné svítidlo (6 kusů)

Stropní světlo Armstrong

440 530 1280 530 1080 520 540 560 530 1210 510 510 2110 1210 530 1230 1220 530 300 Н= 300 Н= 300 300 Н= 300 Н= 300 300 300 Н= 300 Н= 300 300 300 300 300 Н= 300 Н= 300 530 515 520 530 520 540 440 Н= 550 Н= 550 Н= 300 265 Вывод для LED Гр. 19.2 Вывод для LED Гр 20.2 Вывод для LED Гр. 21.2 1935 1150 Н= 1000 Н= 1000 Н= 1000 Н= 900 Н= 550 Н= 300 Н= 300 286 300 920 200 Гр. 19.2 Гр. 20.2 Гр. 21.2 23 22 21 27 28 32 31 29 30 20 26 25 24.2 24.1 24 290 Н= 900 Вывод под бра Н=1800 Гр 14 290 Н= 900 Вывод под бра Н=1800 Гр 13 250 Н= 900 Вывод под бра Н=1800 Гр 15 290 Н= 900 Вывод под бра Н=1800 Гр. 16 280 Н= 900 Вывод под бра Н=1800 Гр. 17 280 Н= 900 Вывод под бра Н=1800 Гр. 18 210 Н= 900 Вывод под бра Н=1800 Гр. 19.1 275 Н= 900 Вывод под бра Н=1800 Гр 20.1 245 Н= 900 Вывод под бра Н=1800 Гр 21.1 450 Н= 900 Вывод под бра Н=1800 Гр. 24 215 Н= 900 Вывод под бра Н=1800 Гр 23 670 Н= 900 Вывод под бра Н=1800 Гр 22 1285 950 950 2220 Н= 900 Гр 27 Гр 27 400 1500 1000 1000 800 Н= 900 Вывод под неон Н=2000 Гр 26 300 Вывод под Led на уровне пола Гр 27 Гр. 25 Н= 900 2290 2600 Вывод потолочный для проектора 480 Н= 890 Н= 300 Н= 1600 Н= 1530 Н= 880 Н= 900 Н= 880 Н= 885 Н= 280 Н= 1520 Н= 1590 Н= 880 Н= 1500 Н= 880 Н= 270 Н= 1630 Н= 890 Н= 300 Н= 1500 Н= 880 Н= 290 Н= 1540 Н= 1600 Н= 880 Н= 890 Н= 280 Н= 1520 Н= 1660 Н= 260 Н= 860 Н= 260 Н= 1570 Н= 1520 Н= 860 Н= 870 Н= 280 Н= 1720 Н= 1520 Н= 870 Н= 300 Н= 870 Н= 860 Н= 250 Н= 830 Н= 1650 Н= 1520 Н= 870 Н= 860 Н= 270 Н= 1520 Н= 300 Н= 300 Н= 1630 Н= 870 Н= 260 Н= 1530 Н= 860 Н= 1730 Н= 1650 Н= 850 Н= 250 Н= 860 Н= 1500 1285 2695 Вывод из пола под розетки ( монтаж в стол) Н= 880 Н= 900 Н= 900 Гр 25 Гр. 26 Гр 14 Гр 13 Гр 16 Гр. 15 Гр 17 Гр 18 Гр 19.1 Гр 20.1 Гр 21.1 Гр 22 Гр. 23 Гр. 24 Вывод из пола под розетки (монтаж в фасад) 2400 315 Н= 560 Н= 560 Н= 560 Н= 560 Н= 560 Н= 560 Н= 560 Н= 560 Н= 550 Н= 550 Н= 570 Н= 570 Н= 570 Н= 570 Н= 540 Н= 540 Н= 540 Н= 540 Н= 550 Н= 550 Н= 540 Н= 550 2805 2805 5770 Вывод из потолка для кондиционера Н= 900 1200 33 26.1 25.1 23.1 22.1 21.1 27.1 28.1 32.1 31.1 29.1 30.1 Гр. 27 Н= 300 Н= 300 А 3 Plán elektroinstalace přizemí 1. patro Hotel na ulici Puškinská 07.02.2023 16
№ Místnost S 19.2 Zasedací místnost 15 м² 20 Co-working 55 м² 21 Pokoj typ 3 15 м² 21.1 Pokoj typ 3 5 м² 22 Pokoj typ 3 15 м² 22.1 Pokoj typ 3 5 м² 23 Pokoj typ 3 15 м² 23.1 Pokoj typ 3 5 м² 24 Pokoj typ 4 20 м² 24.1 Pokoj typ 4 5 м² 24.2 Pokoj typ 4 5 м² 25 Pokoj typ 2 20 м² 25.1 Pokoj typ 2 5 м² 26 Pokoj typ 2 20 м² 26.1 Pokoj typ 2 5 м² 27 Pokoj typ 2 15 м² 27.1 Pokoj typ 2 5 м² 28 Pokoj typ 2 15 м² 28.1 Pokoj typ 2 5 м² 29 Pokoj typ 1 15 м² 29.1 Pokoj typ 1 5 м² 30 Pokoj typ 1 20 м² 30.1 Pokoj typ 1 5 м² 31 Pokoj typ 1 15 м² 31.1 Pokoj typ 1 5 м² 32 Pokoj typ 1 15 м² 32.1 Pokoj typ 1 5 м² 33 Chodba 75 м² Celkem : 28 380 м²
MÍSTNOSTÍ 1.PATRO
А 3 Schéma malování Hotel na ulici Puškinská 07.02.2023 21

Čelní

Malování stropu v místnosti

Malování stěn po obvodu místnosti

Barva: NCS S 4050-Y80R

Přesah stropu 300 mm

Malování stěn po obvodu místnosti

Barva bílá RAL 9010

Plán pokoje

Věšák typ 1

Zrcadlo typ 1

Zrcadlo typ 2

Malba v barv ě stěny

Instalace zrcadla

Uzel 1

Regálová jednotka

Židle typ 1

Noční skříňka typ 1

Koberec

Obrázek

Postel 1600x2000

Noční skříňka typ 1

Stojací lampa

Malba v barvě stěny

1600 2000 2000 1400 500 400 840 1065 1000 300 1000 2500 Симметрично Симметрично 400 340 50 Přizemí 1. Patro 300 Сущ. плитка Zrcadlo А 3 Schéma pokoje typ 1 Hotel na ulici Puškinská 17.02.23 17
Rozložení na plánu
1
pohled na stěnu Uzel

Malování stropu v místnosti

Malování stěn po obvodu místnosti

Barva: NCS S 4050-Y80R

Přesah stropu 300 mm

Malování stěn po obvodu místnosti

Barva : bílá RAL 9010

Rozložení na plánu

Plán pokoje

Malba v barv ě stěny

Zrcadlo typ 2

Židle typ 1

Noční skříňka typ 2

Přizemí 1. Patro Симметрично Симметрично 1000 300 50 2 0 0 0 1400 1 6 0 0 2000 1 2 0 0 490 1 2 3 0 7 6 8 7 5 1 300 Сущ. плитка А 3 Schéma pokoje typ 2 Hotel na ulici Puškinská 17.02.23 18 Koberec Noční skříňka
2 Postel 1600x2000 Věšák
2 Stůl typ 2 Instalace zrcadla Uzel 1 Узел 1 Разрез: вид слева
typ
typ
pohled na stěnu
Čelní

Malování stropu v místnosti

Malování stěn po obvodu místnosti

Barva NCS S 4550-R80B синий

Přesah stropu 300 mm

Malování stěn po obvodu místnosti

Barva bílá RAL 9010

Absence skleněných bloků

Vložení zaslepovací desky pro 2 jednotky MDF (lakované)

Instalace zásuvkového bloku

Přizemí 1. Patro 5 блоков Symetricky 15 ks Symetricky 300 50 8 0 0 7 4 9 570 1 6 0 0 2000 1 2 0 0 300 1400 3 7 9 4 0 0 1 0 0 0 300 Сущ. плитка А 3 Schéma pokoje typ 3 Hotel na ulici Puškinská 17.02.23 19
Plán
stěnu
Čelní pohled na
Rozložení na plánu Instalace zrcadla
Uzel 1
Uzel 1
Malba v barv ě stěny

Malování stropu v místnosti

Malování stěn po obvodu místnosti Barva : NCS S 4550-R80B синий Přesah stropu 300 mm

Malování stěn po obvodu místnosti Barva : bílá RAL 9010

Přizemí 1. Patro 2000 1400 1600 2000 1500 700 780 600 2100 735 735 400 600 735 245 1200 300 1000 2900 50 300 300 Сущ. плитка А 3 Schéma pokoje typ 4 Hotel na ulici Puškinská 17.02.23 20
Plán
Rozložení na plánu
Čelní pohled na stěnu Uzel 1 Instalace zrcadla Uzel 1
Malba v barv ě stěny

DVÍ ŘKA

DESKA 1 2 Lakování MDF

DTD EGGER 40 mm

Všechny rozměry jsou předběžné Zhotovitel musí zkontrolovat rozměry a upřesnit detaily.

Umístění v plánu

Zajištění otvorů pro elektrické zásuvky v zástěře (viz plán elektroinstalace 2. patra)

505 505 600 600 600 600 600 900 4010 100 380 380 1200 900 600 518 380 380 500 4010 А 3 Kuchyně 1 patro Hotel na ulici Puškinská 17.02.23 35
3 2 1
Regály Lednička Lednička

Umístění v plánu

Pohled zepředu

835 970 810 530 2728 368 251 2495 610 618 900 100 970 824 600 600 600 1200 750 370 370 600 300 600 600 970 835 0 4792 380 380 200 340 340 450 450 320 230 410 600 600 290 600 40 760 100 570 821 3295 550 600 А 3 Kuchyně přizemí Hotel na ulici Puškinská 17.02.23 25 1 2
Všechny rozměry jsou předběžné Zhotovitel musí zkontrolovat rozměry a upřesnit detaily. Výrobník ledu Myčka nádobí
Pohled zleva
ŘKA DESKA Lakování
Pohled shora DVÍ
MDF DTD EGGER 40 mm
600 600 600 600 600 100 760 900 3000 380 380 3000 900 600 100 760 900 900 380 380 А 3 Kuchyně 1. patro Hotel na ulici Puškinská 17.02.23 36 Regály 1 2
Zhotovitel
Všechny rozměry jsou předběžné
musí zkontrolovat rozměry a upřesnit detaily.
zepředu Pohled zleva
Umístění v plánu
Pohled
DVÍ ŘKA DESKA Lakování MDF DTD EGGER 40 mm
Pohled shora
А 3 Co-working Hotel na ulici Puškinská 07.02.2023 30
Čelní pohled na stěnu 1 Čelní pohled na stěnu 2
Plán Čelní pohled na stěnu 3 Čelní pohled na stěnu 4

Všechny rozměry jsou předběžné Zhotovitel musí zkontrolovat rozměry a upřesnit detaily.

1000 2500 600 650 650 600 R 50 R 50 150 650 650 650 650 150 2900 1000 2500 R50 R50 600 650 650 600 А 3 Panel. Recyklovaný plast Hotel na ulici
17.02.23 27
Puškinská
PANEL 1 Recyklovaný plast 20 mm Umístění v plánu Počet exemplářů 1 Panel typ 2 Panel typ 1 Panel typ 3 Počet exemplářů 6 Počet exemplářů 8
3913 600 100 1660 210 670 300 610 1660 100 670 210 1550 900 1000 1000 1000 300 2390 300 920 3910 1720 900 А 3 Prádelna Hotel na ulici Puškinská 17.02.23 37
DVEŘE
KARKAS 1 DTD laminovaná
1 DTD laminovaná Umístění v
plánu
Pohled zepředu Pohled zleva
Všechny rozměry jsou předběžné Zhotovitel musí zkontrolovat rozměry a upřesnit detaily. Pohled shora

Všechny rozměry jsou předběžné Zhotovitel musí zkontrolovat rozměry a upřesnit detaily.

Umístění v plánu

Rám: pohled shora

835 25 40 1800 1300 900 800 300 835 520 25 565 25 520 190 25 226 25 190 655 275 1660 430 430 25 13 25 270 25 270 25 270 25 270 25 13 25 1660 25 393 25 393 860 655 835 25 275 55 25 25 25 135.00° 135 .00° 12 25 R50 135.00° 13500° 25 25 А 3 Barový pult Hotel na ulici Puškinská 17.02.23 26
pohled zepředu
obkladu z MDF a rámu
Rám:
Spojení
pohled zleva Закрепить к полу Připevnění k podlaze 1 2
Rám:
Pohled zepředu Pohled zleva Pohled shora DVÍ ŘKA DESKA Lakování MDF DTD EGGER 40 mm Axonometrie
Axonometrie

Turn static files into dynamic content formats.

Create a flipbook