Skip to main content

2023 Professional Portfolio - Daniel Bennett

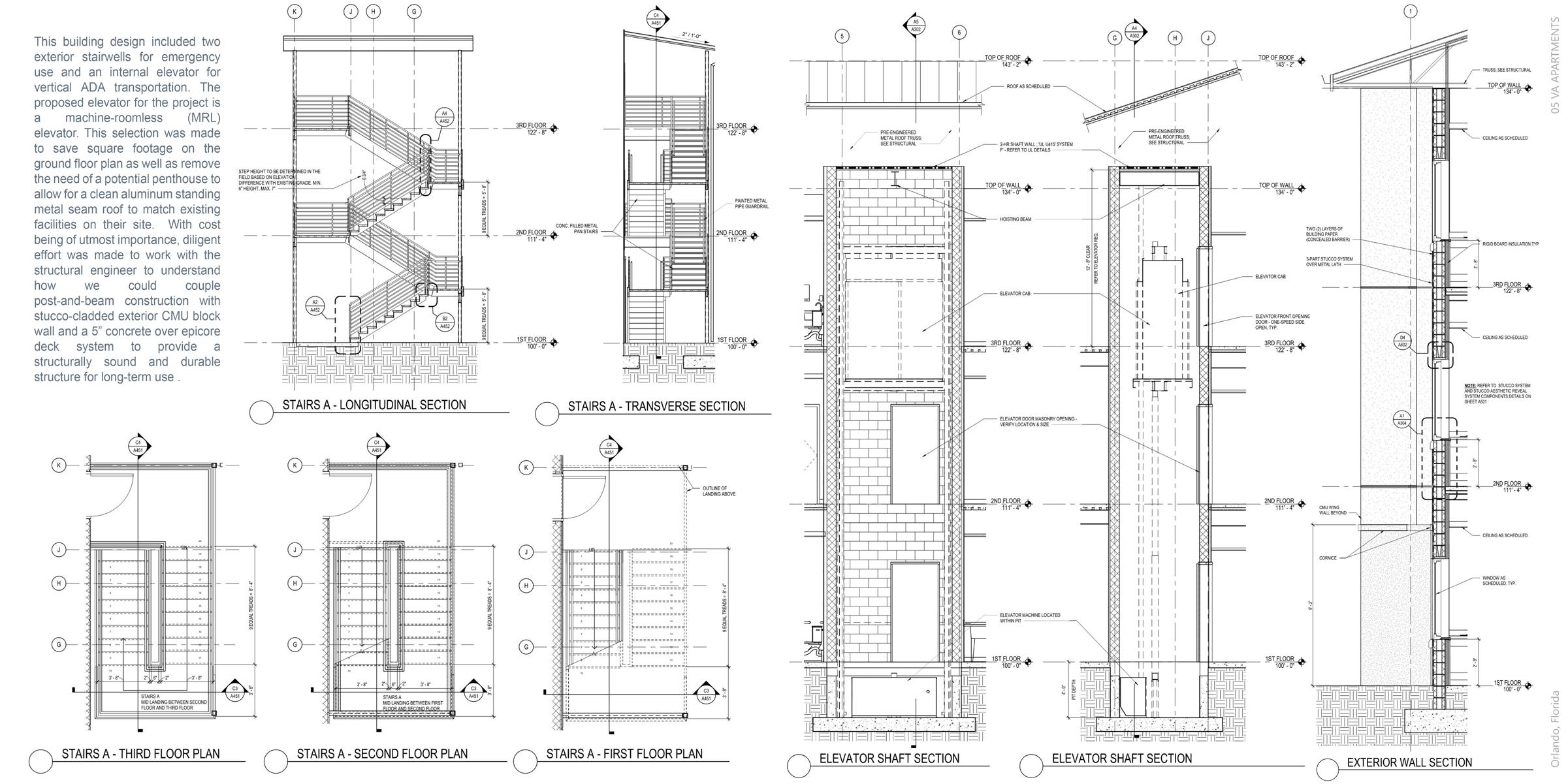
Page 1

III

Turn static files into dynamic content formats.

Create a flipbook