Skip to main content

PERANCANGAN KONSEP HUNIAN FLEXIBILITY DAN SUISTAINABLE PADA PASAR STASIUN ANGKE

Page 1

DOSEN KOORDINATOR : Ir. RUDY SURYA, M.T., M.Ars DOSEN KELAS : Ir. RUDY SURYA, M.T., M.Ars DOSEN PEMBIMBING : Ir. RUDY SURYA, M.T., M.Ars DANIEL WIJAYA 315180198 PROGRAM STUDI SARJANA ARSITEKTUR JURUSAN ARSITEKTUR DAN PERANCANGAN FAKULTAS TEKNIK UNIVERSITAS TARUMANAGARA PERANCANGAN KONSEP HUNIAN FLEXIBILITY DAN SUISTAINABLE PADA PASAR STASIUN ANGKE
2 DANIELWIJAYA-315180198 KONTEN 3 BIODATA 4 LATAR BELAKANG 6 LANDASAN TEORI 8 ANALISIS MAKRO 9 INFORMASI TAPAK 9 ANALISIS MIKRO 10 BLOCKPLAN 12 SITEPLAN 13 DENAH 16 POTONGAN 18 TAMPAK 20 DETAIL 21 3D RENDER

"

Halo , Perkenalkan saya daniel wijaya mahasiswa jurusan arsitektur di Universitas Tarumanagara Saya mengambil jurusan arsitektur karena saya menyukai halhal yang berkaitan dengan perancangan bangunan dan suka belajar tentang hal - hal yang baru . Menjadi mahasiswa arsitektur sendiri merupakan suatu kebanggan bagi saya dan saya berharap dapat memberikan kontribusi yang baik untuk lingkungan dan sekitarnya ,

DANIELWIJAYA

daniel.315180198@stu.untar.ac.id daniel.wijaya810@gmail.com +6281388166749

Penjaringan , Jakarta Utara

SEMINAR

Architalk 0.3 : Green building technology , the future we need ? (2022) Ekspolorasi dan implementasi arsitektur nusantara pada karya arsitektur (2020)

Pengetahuan dasar dalam konstruksi rumah tinggal (2022) masterclass 2021 : considering the earthquake webinar (2021)

Pembangunan kampung apung 2021 :diskusi terbuka pengabdian masyarakat di kalangan mahasiswa (2021)

DANIELWIJAYA-315180198 skill AUTOCAD REVIT SKETCHUP LUMION CANVA PENDIDIKAN SD PERMAI JAKARTA UTARA , INDONESIA SMP PERMAI JAKARTA UTARA , INDONESIA SMA PERMAI JAKARTA UTARA , INDONESIA UNIVERSITAS TARUMANAGARA JAKARTA BARAT , INDONESIA (2006-2012) (2012-2015) (2015-2018) (2018-SEKARANG) INTRODUCTION 3
"

LATARBELAKANG

Kawasan jembatan lima merupakan kawasan yang didominasi oleh aktivitas jual beli barang dan juga merupakan kawasan hunian berkepadatan tinggi dengan tingkat ekonomi masyarakatnya dari menengah ke bawah dengan kepadatan yang tinggi .

Sehingga pada kawasan jembatan lima banyak penghuni yang memanfaatkan lantai dasar mereka digunakan untuk toko untuk menjual barang dagangnya namun dampak dari menjual barang mereka menyebabkan kemacetan maupun rasa tidak nyaman oleh pengguna jalan akibat dari membuang hasil barang dagangnnya di jalan dan juga mengambil lahan di trotoar maupun jalan untuk dijadikan tempat untuk menjual barang dagangannya

Oleh karena permasalahan itu dan isu - isu yang terdapat di sekitar kawasan jembatan lima diperlukannya penataan kembali pada kawasan tersebut salah satunya disekitaran pasar angke agar tidak menyebabkan permasalaha lingkungan dan juga ketidaknyamanan bagi pengguna jalan .

Terdapat penghuni / penjual yang menjual barang dagangnnya hingga memakan jalanan di stasiun angke

Sampah - sampah seperti pembungkus sayuran dan sisa sisa sayuran dibuang di jalan

Sering terjadi kepadatan akibat adanya kendaraan pengangkut buah - buahan yang berdiri di tengah jalan dan kendaraan umum seperti bajaj memarkirkan di jalanan

Trotoar yang seharusnya digunakan untuk pejalan kaki dialihfungsikan menjadi warung -warung

5
1 2
3
4
ISU DAN PERMASALAHAN SEKITAR PASAR STASIUN ANGKE

LANDASANTEORI

Dwellings

PengertianDwellings

istilah konsep dwelling menurut Martin Heidegger suatu cara / makna dalam bertempat tinggal yang dimana dwelling digunakan sebagai tempat untuk berhenti yang memiliki keraguan untuk pergi ke dunia luar

Sedangkan menurut Christoper Alexander dwelling adalah bukan sekedar ruang beratap yang menaungi di kepala atas kita namun dwelling memiliki 3 arti yaitu : 1. ruang dimana kita bertemu orang lain untuk bertukar pikiran , produk dan perasaan 2. tempat dimana kita mencapai kesepakatan dengan orang lain terhadap nilai - nilai umum di lingkungan masyarakat 3. Dunia kecil yang merupakan tempat kita menjadi diri kita sendiri .

Jenis - jenis Dwellings berdasarkan fungsinya

Shared Dwellings

sebuah ruang yang dapat dipakai untuk bersama bukan untuk kelangan tertentu saja .

Flexible Dwellings

Sebuah ruang yang dapat berganti sesuai dengan kebutuhan

Narrow Dweliings

Sebuah ruang sempit yang kemudian disesuaikan dengan kondisi dan kebutuhannya

Vertical Dwellings

Sebuah konsep berhuni yang dibangun secara vertikal

Temporary Dwellings

Ruang yang tidak tetap yang dapat berganti

Typologies

Penggunaan ruang yang dapat dipakai untuk berbagai macam aktivitas

Kebutuhan ruang yang muncul akibat kebutuhan yang mendesak

Efficient Dwellings Informal Dwellings Dense Dwellings

Ruang yang tumbuh akibat kepadatan usaha untuk mengekspansi ruang untuk kebutuhan berhuni

Extensive Dwellings

Pengertian Tipologi Bangunan menurut Anthony Vidler Tipologi bangunan adalah sebuah studi/ penyelidikan tentang penggabungan elemen-elemen yang memungkinkan untuk mencapai/ mendapatkan klasifikasi organisme arsitektur melalui tipe-tipe.

Sedangkan menurut Jones (2017) topologi adalah "identifikasi tipe-tipe esensial dari bangunan atau elemen - dapat tampak terutama sebagai usaha sistematisasi dan penataan sebuah bangunan "

Dwelling Typologies

Dwelling Typologies berasal dari kata Dwellings dan Typologies yang jika disimpulkan Dwellings typologies adalah menempatkan arsitektur yang ditempatkan diri sesuai dengan kebutuhan penghuninya tsb

DANIELWIJAYA-315180198 6
DANIELWIJAYA-315180198 7
G
G
S
D W E L L I N G S & T Y P O L O
I E S D W E L L I N G S & T Y P O L O
I E

ANALISISMAKRO

LUAS WILAYAH : 0,46 km² JUMLAH PENDUDUK : 24.698 jiwa KEPADATAN PENDUDUK : 53 691 jiwa/km²

Jembatan lima memiliki populasi penduduk dan hunian yang tinggi yang juga merupakan pusat pertokoan namun ruang terbuka hijau pada kawasan jembatan lima ini sangat minim .Dengan tingkat populasi yang tinggi dengan aktivitas yang banyak diperlukan tempat yang berbeda dengan suasana yang berbeda sebagai tempat untuk meredakan rasa stress

Disekitar kawasan terdapat berbagai macam fasilitas yang terdiri dari sekolah , pasar , pusat grosir ,stasiun angke , pasar angke dan tempat ibadah yang dilengkapi juga dengan beberapa transportasi umum seperti angkot , kereta api , bajaj dan transportasi umum lainnya,

DANIELWIJAYA-315180198 8
Pusatgrosir/eceran barang - barang perabo rumahtangga StasiunAngke
SDNAngke05
KELURAHAN JEMBATAN LIMA , JAKARTA BARAT Pasarjembatanlima
PasarAngke

Tapak berada di Jalan Stasiun angke dan Jalan Sawah lio V dengan zonasi perumahan padat dan masuk kedalam zona R-1

Mata pencaharian penduduk sekitar tapak terdiri dari pedagang kaki lima , pedagang buah , pedagang sayuran , pedagang ikan dan daging dan lain - lainnya.

TAPAK

TAPAK

TAPAK

2.KLB 1,6 = 6.387,68 m2

3.KDH 20% = 798,46 m2

ANALISIS MIKRO

AKSESBILITAS

Aksesbilitas menuju tapak dapat dilalui oleh jalan Stasiun angke dan Jalan Swah lio V yang memiliki lebar jalan 6 M Jalan - jalan tersebut biasanya dilalui oleh kendaraan roda dua hingga roda empat dan juga terdapat pejalan kaki yang melintas

Transportasi umum disekitaran tapak dapat dijangkau dengan mudah karena tersedianya bajaj , stasiun kereta angke , pemberhentian angkot dan kendaraan umum lainnya

KEBISINGAN

Kebisingan pada tapak berasal dari aktivitas masyrakat yang berjualan di sekitar pasar angke , kendaraan dan kereta api yang berada dekat dengan tapak

Respon: massa bangunan yang nantinya digunakan untuk hunian akan terletak jauh dari sumber kebisingan yang besar dan akan menggunakan bahan material yang dapat mengurangi suara dari luar maupun dalam bangunan / ruangan .

SIRKULASI UDARA

tapak akan mendapatkan udara dari arah timur utara pada tapak

Respon: bangunan akan dibuat banyak bukaan sehingga tidak memerlukan penchayaan buatan pada pagi - sore hari .

DANIELWIJAYA-315180198 9
DANIELWIJAYA-315180198 10
11 DANIELWIJAYA-315180198
DANIELWIJAYA-315180198 12
DANIELWIJAYA-315180198 13
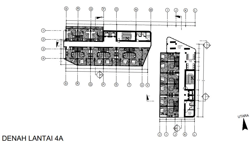
DANIELWIJAYA-315180198 14
DANIELWIJAYA-315180198 15
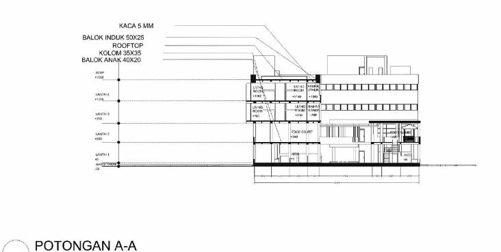
DANIELWIJAYA-315180198 16
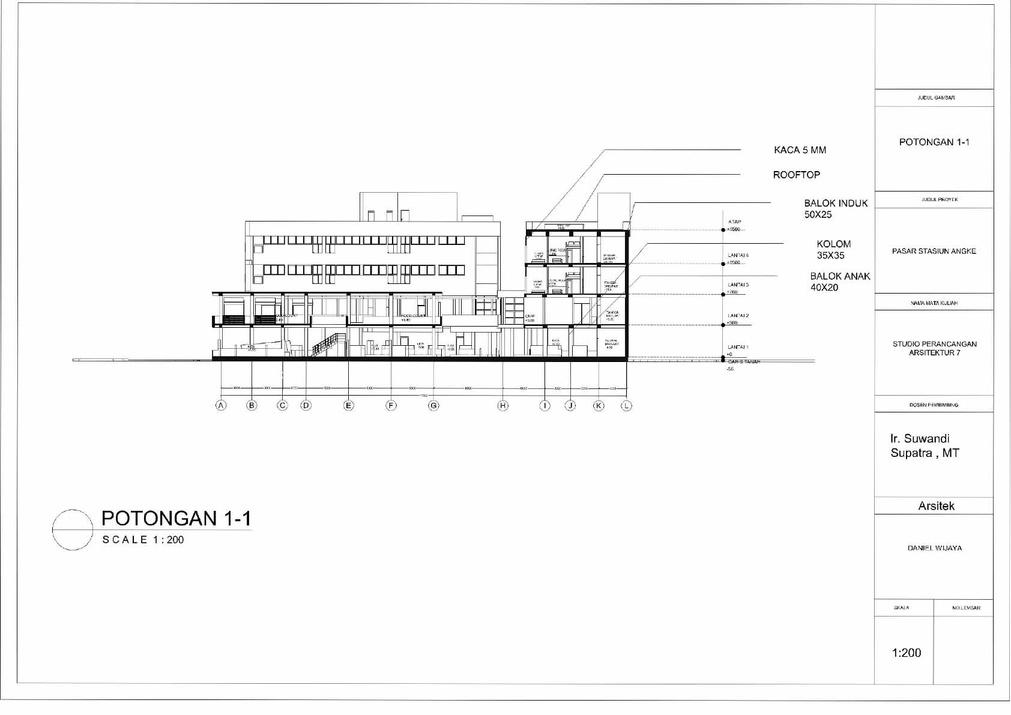
DANIELWIJAYA-315180198 18
DANIELWIJAYA-315180198 19

Detail Roof Top

DANIELWIJAYA-315180198 20
DANIELWIJAYA-315180198 21 MAIN ENTERANCE VIEW SOUTH ENTERANCE VIEW SOUTH ENTERANCE VIEW VIEW TOP LOBBY APARTEMEN FOOD COURT
scan here for more !

Turn static files into dynamic content formats.

Create a flipbook