Skip to main content

DISSERTATION

Page 1

SOCIALIST HOUSING: AN INVESTIGATION INTO BERLIN’S RESIDENTIAL ARCHITECTURE & ITS IMPACT ON SOCIAL INTEGRATION

W18518485

CC3 Dissertation

PREFACE

After visiting Berlin for a summer school project, I found myself fully immersed in the city. The significant presence of socialist architecture took me by surprise, almost resembling Eastern European countries where my family grew up. Particularly striking, was the proximity of prefabricated houses to the city centre, dominating the eastern landscape, notably on Karl-Marx Straße where the street seemed never ending with towering monolithic concrete blocks stretching endlessly. While aware of Berlin’s division in the past, I was astounded by how it mimicked an urban fabric reminiscent of post-socialist cities.

Furthermore, I was intrigued by the way the socialist architecture left an imprint on contemporary society. I found myself wondering how Western society perceived a lifestyle in housing that once was representative of socialist ideals. This exploration led me to research socialist architecture and its implication on today’s society.

Keywords: Socialist architecture, socialism, cultural identity, social integration, gentrification

ACKNOWLEDGEMENTS

I would like to express my gratitude to my tutor Dr Mireille Tchapi for valuable guidance on this research project, and to those who dedicated their time to share their experiences in interviews.

TABLE OF CONTENTS LIST OF DEFINITIONS……………………………………………………………………………….4 LIST OF FIGURES 5 INTRODUCTION……………………………………………………………………….………….….7 HISTORICAL CONTEXT: THE RISE OF PREFABRICATED SYSTEM IN USSR 7
& Socialism Ideology
of Politically Opposing Architecture Styles Stalinka Khrushevka THEORETICAL CONTEXT …11
Identity & Social Integration RESEARCH METHODOLOGY & HYPOTHESIS…………………………………………………12
Questions Interviews & Findings Case Study FULFILMENT OF PREFABRICATED SYSTEM IN BERLIN 15 Marzahn-Hellersdorf Mitte Comparison CONCLUSION 20 FIGURES………………………………………………………………………………...……………21 BIBLIOGRAPHY 32 APPENDIX 38 Catalogue of Interviews Fun Experiment
Architecture
Catalogue
Cultural
Research

LIST OF DEFINITIONS

Plattenbau/ten (ger.) – large panel-system prefabricated building. Direct translation: ‘panel construction’

GDR – German Democratic Republic (1949-90)

FRG – Federal Republic of German (1949-90)

Mikrorayon (rus. микрорайон) – Micro district, neighbourhood

WBS-70 – Wohnungsbauserie 70th edition, one of the prefabricated housing typologies

P2 – ‘P’ stands for parallel and refers for load-bearing walls constructed parallel to wall surfaces, one of the prefabricated housing typologies

Memi – A colloquial term used by Berliners for the housing complex at Memhardstraße in Mitte, Berlin.

Aussiedler (ger.) – People of German origin in Eastern Europe and former Soviet Union who exercise their right to come and live in Germany. Direct translation: ‘emigrants’

SED (Sozialistische Einheitspartei Deutschlands) (ger.) – Socialist Unity Party

NTR (rus. Научно-технологическая революция) - Scientific-and-technological revolution proclaimed by Khrushev

Socialism – a set of beliefs that states all people are equal and should share equally in a country’s money, or the political systems based on these beliefs.

Communism – a set of beliefs in society without different social classes in which the methods of production are owned and controlled by all its members and everyone works as much as they can and receives what they need

Kommunalka (rus. коммуналка) – a type of residential building following the October Revolution 1917 where unrelated individuals or family members live together, sharing the kitchen, shower, toilet and common room. Later replaced by Stalinkas and Khrushevkas.

Stalinka (rus. сталинка) – a type of a postconstructivist residential building from Stalinist architecture in USSR (1935-50).

Khrushevka (rus. хрущёвка) – a type of residential building constructed from bricks and prefabricated panels during Krushev’s rule in USSR (1950 -1970).

LIST OF FIGURES

Located after the conclusion.

Figure 1 - 30 Jahre DDR… und morgen baue ich! (30 years of GDR… and, tomorrow, I build)

Figure 2 - From Garden City to Eco-urbanism: The quest for sustainable neighbourhood development

Figure 3 - Дом серии К-7 (модификация К-7-3-4) в Кузьминках [House Series K-7(modification K-7-3-4) in Kuzminki]

Figure 4 - HLM of Jardin Frémin, in Survilliers

Figure 5 - Residents of Bärensteinstrasse in Marzahn 1982: Working hard for their new home

Figure 6 - Red Gate Building Moscow, Russia

Figure 7 - Apartment building on Bolshaya Kaluzhskaya street in Moscow. Façade

Figure 8 - Apartment building on Bolshaya Kaluzhskaya street in Moscow. Plan of a residential section and furniture placement plan

Figure 9 - Floor plans and furniture layouts of one-, two-, and three-room khrushchevkas

Figure 10 –We will greet Builders’ Day commendably!” Poster celebrating the construction of prefabricated homes and Serialisation will accelerate the construction of new housing units.

Figure 11 – Location of Marzahn-Hellersdorf.

Figure 12 - WBS-70 housing topology in Marzahn

Figure 13 – Art murals in Marzahn

Figure 14 –‘Georg-Knorr-Park plan proposed by David Chipperfield

Figure 15 – Locating Memhardstraße in Berlin

Figure 16 – Axonometric view of Memhardstraße housing in Berlin

Figure 18 - The ground floor where “Platte” studios are in Memhardstraße housing complex, Berlin

Figure 19 - Where rent is highest and lowest in Berlin, average rent for an apartment by district in 2018 (euro/ sq m)

Figure 20 - Floor plan of one of the maisonette apartments and studio apartments

Figure 21 - Archives of floor plans of a typical WBS-70 apartment

Copyright Ó Daniel Poshtovenko 2024

rights Reserved

All

INTRODUCTION

Architecture is known to often serve as a visual bridge that reveals a place’s past and thus can be an art used to evoke a multitude of emotions, some of which are discussed in this dissertation, like nostalgia, pleasant memory and even distaste. Berlin is no exception. It is a city constructed of many rich historical layers, some being relatively recent. One historic period has left an imprint on Berlin in the form of architecture. After the capture of Berlin in 1945 to end World War II, the Allies (UK, USA, USSR, and France) divided the city amongst themselves. This led to the formation of two republics, the Federal Republic of Germany (FRG) and German Democratic Republic (GDR). The tensions between two republics increased resulting in a thirty-mile concrete wall to be erected that split the city into two. The GDR and FRG were left to develop in their respectful ways and consequently build in ways that would satisfy the government and its ideology. The GDR was highly influenced by the Soviet Union and hence why the typologies are parallel to that in Moscow for example. By looking at the theoretical context behind prefabricated housing in USSR, this paper investigates the housing typologies of the former GDR and their course into the present day. Socialist prefabricated housing plays a critical role in Berlin, given that they dominate the landscape with most of the city’s population living in a former GDR estate. This research strives to unravel controversies surrounding the estates, which after the fall of the Berlin Wall have completely transformed the outlook on them. The paper explores two case studies: Marzahn Housing Estate and Memhardstraße Housing Estate and by thoroughly understanding these places contextually it is possible to determine ways in which the population of these estates integrate with the greater city of Berlin. By evaluating postsocialist housing in relation to its progression through key events, this paper attempts to propose a critical understanding of means in

which architecture engages with society Starting from the emergence of prefabricated construction in the Soviet Union and ending in the present day, the dissertation will attempt to conclude the extent to which socialist architecture is fostering social integration and if it is done successfully with the aid of primary sources like interviews, to books and articles analysing the social and physical composition of housing estates in GDR and USSR

HISTORICAL CONTEXT: THE RISE OF PREFABRICATED SYSTEM IN USSR

Architecture & Socialist Ideology

To understand the current housing situation of Berlin, it is worth questioning the existence of panel blocks and analysing their role in the post-war society. After the Second World War, much of Germany and the USSR were in ruins and needed to quickly remobilise economically. Especially Berlin where most of the city centre was severely damaged due to fighting (around 60 percent) leaving 80 percent of all the urban fabric to be pre-1945x. Despite the urban crisis in the newly formed German Democratic Republic (from now on GDR), this was not the government’s foremost priority. However, in 1971 the new chairman of the SED ,Sozialistische Einheitspartei Deutschlands (Socialist Unity Party), Enrich Honecker, announced the new Housing Program that aimed to build up to 3 million new apartments on the outskirts of cities using prefabricated concrete panels (or Plattenbau in German) (Van Der Hoorn, 2015).

Socialism is a set of beliefs that states all people are equal and should share equally in a country’s money, or the political systems based on these beliefs, whilst communism is the belief in society without different social classes in which the methods of production are owned and controlled by all its members and everyone works as much as they can and receives what they need (Dagger and Ball, 2023). From the definitions above, one can look

7

at the past examples of architecture on the postsoviet block and begin to compare through analysing whether the socialist dream was fulfilled and how successfully was it done. After East Berlin was occupied by Soviet forces, the way of living became greatly influenced by one of USSR (Figure 1), including the same views on religion, language, politics, and arts is no exception. Across all soviet republics, housing was a big issue, due to the mass destruction and the poor living conditions of communal apartments (rus. Kommunalki) (Varga-Harris, 2015) These apartments were essentially a reuse concept, carved from existing homes of the prerevolutionary elite before the Bolsheviks took over. In apartments as such tenants shared the kitchen, bathroom, and storage space. The dictatorship of Stalin favoured the ironic division between the party members and the rest of the public and this was evident through the architecture, while other leaders that proceeded after relied on true socialist politics to influence the standardisation of architecture (Choate, 2010). The architecture of the Stalin era was regarded as being too ornamental, thus deeming it too ‘bourgeois’ – a reminder of the monarchy.

Lead by the new leader of the Central Committee of the Communist Party of the Soviet Union, Nikita Khrushev, a new urban theory was developed to ease city planning to manage, track and distribute population in the USSR. The urban theory was to publicise the ‘separate apartment’ (rus. Otdel’naja kvartira) consisting of a main room (for a family of three) serving the function of a combined bedroom, study, small kitchen, and a bathroom. Separate apartments were reserved for the communist party elites, but Khrushev wanted to make this style of living a norm for the whole union. The rise of the microdistrict (rus. Mikorayon) was a consequence of the NTR, known as ‘scientificand-technological revolution’ (rus. Nauchnotehnologicheskaya revolutsiya). This revolution centred science as the way of socialist developing with technology, that being

a more effective use of materials, automation of production and optimisation of building arrangements. The micro district bore a resemblance to the garden cities of 19th century and to the 20th century adaptation of the garden city by Clarence Arthur Perry (West, 2019) Perry’s idea of a Neighbourhood Concept was subdivided into islands of green spaces, playgrounds, and a school in the centre, which was a walkable distance to home (Figure 2) Likewise, the micro district shares similarities with the model city of Perry with an abundance of green spaces Khrushev insisted that architects should consider productivity and effectiveness of constructing in attempts to cut costs for mass production. His program set the goals of creating 650–660 million square meters of housing between 1959 and 1965, while asserting that the problem of cramped, communal housing would be solved within the next decade (West, 2019). One way to achieve these goals were sparked by previous research on prefabricated building during the period of Stalin’s reign. Soviet architects like Vitaly Lagutenko, engineer of the K7 series construction (Figure 3), looked towards French prefabricated panel construction for inspiration in their techniques and practices, specifically of Habitation à Loyer Modéré (Figure 4). The idea not only addressed the physical flaws but the social ones too. It was a way to minimise governmental efforts and effectively use the local powers, as a much more efficient way of dealing with issues. The neighbourhood was designed to be an organism that made up the city. The fact that they are modular, meant that the city would easily expand with the population increase (West, 2019)

The vision of socialist architects encouraged social interaction and a participation of all in community development, whether party or selfdriven. The tasks included maintaining the cleanness of shared communal apartments, landscaping the new courtyards with shrubs, arranging recreational events, and upholding social order (Varga-Harris, 2015). These efforts aimed to foster a proletarian property and

8

promote rejuvenation of Soviet society (Figure 5) All this evidence reveals Khrushev’s efforts were becoming successful in achieving a political regime that collectively brought people together. Moreover, it meant that all the socialist Eastern Bloc would seamlessly be unified not only through the communist ideology of equal ownership, but the physical appearance of architecture too To a certain degree, the proposal was successful in adapting to the society, since it offered living conditions that were obscured in GDR, like a central heating system and green spaces with playgrounds, again promoting the concept of a socialist family (Sammartino, 2016). The intention was for these neighbourhoods to be a functioning machine within a city – an escape from the capitalist chaos happening in the centre. The change from pre-1945 to Plattenbauten underlines Roger Scruton’s (2013), words, where architecture is made to adjust to society and not vice versa, since the estates were a result of society’s economic and political conditions discussed previously. Therefore, perhaps this could be sufficient evidence to prove the success of the Plattenbau, given the circumstances of that immediate society.

And yet, Scruton (2013) also writes that architecture should be “infinitely vulnerable to changes in its surroundings” . This is suggestive of the prefabricated housing failure to be open and inclusive to changes. It was not constructed for change, hence why it is arguably hard to make any alterations and why it is difficult to find information on a mass-scale renovations of apartments as such in East Berlin. Even before the construction had begun, they were seen as ‘monotonous’, ‘uniform’ and ‘carelessly designed’(Varga-Harris, 2015; McCarthy, 1997). This is demonstrative of the lack of social responsibility the leaders had when executing the Housing Program, because they didn’t consider the possibility of adaptable design in the future, having constructed the walls to be load-bearing. This could be a result of prioritising the development of the centre

and thus much of the budget would go towards that. Another factor could lie in the type of construction. Following the scientific-andtechnological revolution, the aim was to produce a mass amount of housing at a quick rate. So, functionality and efficiency were the main concerns at that stage of time. This concern pends the following query: should this have been a temporary solution to the housing crisis to enable future amendments? When questioned about the quality of the build, Khrushev responded: ‘You have to decide: do you build a thousand adequate apartments, or seven hundred very good ones? And would a citizen rather settle for an adequate apartment now, or wait ten to fifteen years for a very good one?’ So Khrushev acknowledged the ‘adequate’ state of the apartments, implying that the goal was quantity over quality. This decision is reflected in future views and experiences of people. In 2011, one leader of the Russian Federation, Vladimir Putin, expressed his discontent to the State Duma regarding these estates: “People should be taken out of such slums!”, adding, “Such houses are impossible to live in; they are a direct hazard to people’s health and safety.” (VargaHarris, 2015) It’s an interesting contrast to show the shift of perspective in housing estates as the political and technological advancements developed in the post-soviet bloc.

Catalogue of Politically Opposing Architecture Styles

Stalinka

Named after a General Secretary of the Communist Party, Joseph Stalin (1922-52), the Stalinka was characterised as a highly ornate and extravagant form of housing. Ksenia Choate (2010) in ‘From Stalinkas to Khrushchevkas’ writes that the aims of the classical language were to assert power and claim respect for his regime. Much like in other countries like Germany and Italy, dictators like Hitler and Mussolini, classicism was regarded as the highest form of artistic expression in

9

attempts to reflect the power of the regime (Figure 6) According to the author, this architecture was made to feel people ‘inadequate’ and ‘insignificant’. In other words, architecture was a tool to justify their dominance by devaluing most of the population, as a means to keep them in fear.

The apartment building built in Moscow, 1949, shows the extent to which Stalin’s neoclassicism had an effect in the capital (Figure 7). As seen in Figure 7, the windows of the façade are symmetrical paired with a grand arched opening. Everything is carefully curated down to the material choice of the façade, seen from the textured stonework. The ornamental factors are not limited to the exterior. Aesthetic qualities over functional ones were preferred under Stalin’s design philosophy given that the furniture itself reflected complex ideals through curved wooden furniture and patterned ceilings Looking at the closer at the apartments, the living room was the compositional centre opening to the front room (entry hall) and kitchen, highlighting its importance with decorated folded glass doors (Figure 8).

Considering a typical Stalinka apartment, it is interesting how the style emerged from the prerevolutionary palce, while trying to maintain an essence of simplicity (not to the point where it resembled the development of the counterpart western society).

Khrushevka

After the Stalin’s death, a change of political regime resulted in a shift of perspectives on what socialist architecture entails. As discussed previously, Khrushevs efforts returned to true communist ideologies of equality by abolishing unnecessary ornamental qualities in architecture (especially in housing) much like the banned avant-garde constructivist ideologies during Stalin’s rule (Choate, 2010).

Two primary methods of prefabricated housing construction dominated the techniques employed in the Soviet Union during the 1950s and 60s: frameless large block and large panel construction The panel construction consisted of a prefabricated concrete panel that were transported from the factory and assembled onsite, where the exterior panels had openings for windows. The latter block system was similar but much smaller that panel construction. Both methods of housing allowed for 3-5 storeys and one/three room apartments ranging between 24 to 80 rooms in a block with ceiling height being 2.5-2.7 m (3 metres in Stalinist architecture) (Choate, 2010) Compared to Stalinkas, Khrushevkas rooms weren’t centred around a table in the living room given the limiting space, but rooms now had specific functions (often multifunctional with the aid of partitions like curtains). The furniture became much smaller/lighter and did not resemble that of Stalinkas or prerevolutionary palaces, as well as the facades became much simpler. This simplicity allowed for mass production and a cut in cost. A soviet architect, Mordinov, at a government’s conference of construction representatives announced that the ornamental details on the façade of the apartments belonging to Moscow State University make up 19%. He compared them to panelled buildings that only take 6% of the cost (Varga-Harris, 2015) Based on the evidence above it is understandable why Stalinist architecture did not address the housing crisis as effectively as the prefabricated construction in terms of scale. Furthermore, Khrushevkas better represented the true socialist values concerning design aesthetics. The size of the panel naturally determined room spaces, and thus had the power to change the way people occupied them resulting into a more minimalist solution (Figure 9).

10

THEORETICAL CONTEXT

Cultural Identity & Social Integration

This chapter sets out to expose the theoretical concepts surrounding prefabricated panelled housing from a social perspective. The discussion will delve into how the socialist homes in connection with ideologies in USSR have an impact one’s memories and how they correlate to forming a sense of belonging. As previously discussed, the communist government strived to unify the nation through mass-producing nearly identical building typologies. These new housing units were propagated throughout Union (Figure 10). However, by the end of the USSR, these homes became relics of the past ideology, no longer serving a political purpose. Goldberger (2009) points out that architecture responds to cultural change. Since the cultural context is never static, architecture is perceived in relation to this context, in this case it is the shift of a political regime of both from a monarchy to communism (1917) and communism to democracy (1990s). This is another way in which socialist prefabricated homes were successful in pushing for cultural identity.

Le Corbusier asserted the idea that to build in the ‘right way’ is to stay faithful to the moment (Scruton, 2016). Arguably, when Khrushev declared a scientific-and-technological revolution, he embraced the technological development of the time: the panel Goldberger (2009) also acknowledges that architecture is the ‘ultimate physical representation of a culture’, an iconic symbol resonating with people’s common experience from 1950 and onwards, which is why socialist architecture is a symbol of the Easter Bloc.

Similarly, Scruton (2013) highlights the Marxist views on the aesthetics of architecture, noting that critical understanding is reached when you situate the building in its socioeconomic conditions that determined it to reveal its true meaning (understanding the

meaning through appearance). If one considers the times when the concrete homes were erected, the panels do in fact reflect the technological advancements and thus the aesthetic aspect of the build does stay true to its setting. And yet, Scruton (2013) recognises the flaw of Marxist view on meaning as a rationale for judging architecture fails. This view doesn’t provide a meaning to the architecture experience outside the external factors, neglecting human interaction with architecture. Regarding prefabricated housing, designers set out to create rooms, for example kitchens, of minimal dimensions to be just enough for people to use them, hence suggesting that basic human conditions weren’t perceived as a priority in comparison to the goals set out by the government. Goldberger (2009) talks about the harmonious concept of Vitruvius’s triad where firmness, delight and commodity are interdependent to contribute to building’s status. Since space is a vital attribute to architecture, given the economy of space in apartments, one could say commodity is the limiting factor, if not the aesthetic aspect.

Antoine Lahoud (2008) mentions in his study, ‘The role of cultural (architecture) factors in forging identity’, that since architecture reveals and reflects the identity of nation’s people, they are ought to be protected. But what happens when the nation no longer accommodates identity? After the collapse of the Soviet Union, the communist ideals were abolished and yet the majority of the East still live in prefabricated homes today. Lahoud carries on saying that it is the historic sources (like architecture) that help the nation understand the present as a factor of the past to shape the future.

The findings from the interviews show that in all instances there has been a degree of some renovation. Uģis Bratuškins (2019) talks about how after 1991, denationalisation and privatisation of apartment blocks were extremely common. In Riga, Latvia alone almost 99% of the state-owned building were

11

offered up for privatisation with more that 80% of the housing stock was privately owned by 2006. Privatisation of the property allows for individual freedom to accommodate the apartment to their desires (even if its company owned). On the other hand, in Berlin 1.6 million out of 2 million apartments were rented in 2018 and these apartments are either owned by private landlords or housing associations. Housing associations that are owned by the government take initiative to do renovations in order to comply with contemporary building regulations (Droste, Knorr-Siedow, Thevissen, 2019). Despite being outdated in meaning that could be applied to today’s society, as a Marxist might say, they hold a fragment of the nation’s history and a cluster of memories, from playing in the playground to helping neighbours.

RESEARCH METHODOLOGY

The goal of the following research is to gain a further understanding of people’s experiences living in the estates, which will ultimately help to come to a somewhat coherent conclusion Research that investigates prefabricated houses from a social perspective allows for a better understanding of their role in society, and to what extent they play a crucial role in everyday lives, even provide an opportunity to learn how different cultures perceive that lifestyle; this should open to a conversation relating to belonging.

Hypothesis: Socialist housing allows for social integration by providing a sense of belonging and cultural identity of communities into the contemporary society.

Research Questions

What influence does socialist architecture have on contemporary society?

Do people who lived in USSR notice any difference between apartments in post-socialist republics and Germany?

Have people accepted socialist architecture as being part of their everyday life?

Are the communities in the estates/districts part of the city or are they their own entity? Or both?

Interviews

A phenomenological approach to this research was undertaken. An effective methodology was to conduct an interview, which allowed the person to give a genuine insight to their life in the estates. Something to take into consideration is the format of this interview. Conducting an interview that puts minimal pressure for the person is a way to escape an interrogation atmosphere. It is important to start the interview with finding out their experience before and after the collapse of the USSR/fall of Berlin Wall and contrast it with the current. It is equally worth noticing the demographic of people who are to be interviewed. The interviews would be taken from a person living in Berlin, Germany and comparing their experience with people who lived in post-soviet countries (notably Latvia and Ukraine), as well as a consideration of age for a view on how different generations perceive life in prefabricated estates. By choosing more than one person from USSR, ensures a variety of views given that the USSR consisted of many cultures and therefore different cultural upbringing. Another aim is to find out whether the people living there were affected by any changes (if there were any) concerning the built environment. One of difficulties of conducting the interviews was time. There was no sense of a strict timing to conduct the interview since the interview with Yuriy was longer than the other two. Concerning the interviewer effect and privacy, two of the interviewees are author’s family members, so these aspects are significantly minimised. Although, when interviewing the person from Berlin, the interview felt a lot more tense, and responses were shorter.

12

The following interview provided intriguing findings. Gennadij (Latvia) seems to be fond of his memories living in the estates speaking nostalgically of spending his childhood in the playground and how he did not witness any problems or difficulty living in the estates whilst growing up. Compared to the perspective from Yuriy (Ukraine), where he has much more criticism and background knowledge on life in the prefabricated house. The comparison may lie in the age gap, since Yuriy notably has more experience and thus is able to express his experience in a way that a younger person may not. Rachel Mohr and Kate Brown (2021) conducted a study that explored generational differences in memories of individuals and their findings proved that people aged 37-85 were able to give detailed descriptions of the USSR, even though their views varied. Many older people mentioned their satisfaction of education, healthcare, and housing in USSR, much like Gennadij. Others were more aware of the macro-level political and economic issues, like Yuriy. The experience of Dmitriy after 10 years of living in Berlin proved to clarify the mentality of a resident. Like Gennadij in his childhood, Dmitriy is satisfied with life in a prefabricated apartment. From his responses, it was clear that his perception of living in a panelled house is norm. All interviewees mentioned that work is being done to adapt the apartments to suit contemporary living conditions (renovations including insulating, changing pipework, knocking walls down for more space etc.).

“There was a situation in Khabarovsk krai where I remember them bringing 3,4,5 floor panels but forgot the basement, first and second ones [noises of amusement]”

-Yuriiy, 85

13

Question

How long have you been living in this apartment?

Purpose of Question

A question that sets the tone of the interview. Light-hearted question that starts of personal and allows a basis for an analysis to see how time influences experience when writing a review. How does it feel to have lived all this stime in this apartment? What are the emotions you are feeling?

Do you recall how you acquired this apartment?

Did you feel a part of a community in your house/micro district?

Do you think the prefab promoted communist ideals and satisfied the population successfully?

Have there been any developments you know of in the area you live/d? Has that affected the community in the estates?

Have you observed any signs of social degradation? Do you think it’s problematic? Why/not?

Do you see the place you lived becoming something else without it being destroyed?

Do you have any positive/negative memories with the estates?

Would you live in a prefab house now that you have lived here?

A question to extract descriptive words to later compare answers with other people.

To understand the logistics behind how one might get an apartment. This will give an opportunity to express their opinion on this issue.

This is to understand whether the socialist intent of a cohesive community was successful. Of course, this is subjective from person to person and there are numerous factors that dictate the response, but at least the person will provide a reason to why they do (not) feel a certain way and whether architecture could play a part to feelings.

Gets the person to consider the greater scope of reasoning behind previous governmental actions – this could be determined by the state of the nation all the way down to a micro scale of neighbourhood. An open question allowing for an interesting discussion.

Continuing to make the person consider the surrounding environment and whether it had an impact on the way the estates are perceived.

This question aims to reveal some issues or strengths social interaction in the estates.

Offers an outlook on the future of the estates given their (lack of)/progression.

Returns the focus back on the person being interviewed – allows them to reflect and weigh their experience.

Aimed at people who do not live there anymore. By asking them this question, it gives them a moment to compare their lives in two settings. This question also puts the estates into perspective and reveals strengths and weaknesses from a social position.

14
Table to show reasoning behind questions

Case Study

By evaluating two case studies, it opens an opportunity to carry out in-depth research of not only the architecture, but the micro details of a neighbourhood and community, Marzahn and Mitte in this case. It explores the relationship between architecture, politics, and society in a post-socialist environment in attempts to investigate the concepts discussed in ‘Theoretical Context’. Furthermore, the aim of this study is to provide a comparative analysis between two projects within the realm of socialist housing in Berlin. One study focuses more on a project that stereotypically is looked down upon due to its previous history (Marzahn) and the other housing system is being embraced for other reasons which are tackled in the discussion (Mitte) Materials such as articles, newspapers and other essays will be the main sources of information for the analysis, as well as a memoir for personal insights on today’s social life in Marzahn The limitation of the chosen method is generalising the findings and applying them to different settings. Although other capitals of the postsocialist bloc have similar situations, the one discussed in this essay considers factors specific to Berlin’s progression, however this was whilst under the influence of USSR.

FULFILMENT OF PREFABRICATED SYSTEM IN BERLIN

“It’s hard to shift preconceptions about the prefab housing estates in East Berlin. They say Marzahn is a concrete wasteland, but in reality, it is exceptionally green. There are wide streets, ample parking spaces, good pavements and dropped kerbs at crossings. If you’ve got wheels, you can get around just fine”. (Oskamp, 2022)

Marzahn-Hellersdorf

The following discussion is based on two case studies that have been carefully selected to approach a conclusion to the hypothesis.

Located in the east of Berlin, Marzahn Housing complex is one of the biggest prefabricated residential estates built in the 1970s (Figure 11) The estate was built to accommodate up to 175,000 residents in 59,646 apartments. (Sammartino, 2016). While the estate received a multitude of positive recognition when the construction had been completed, over the years the stigma around this estate became rather contrary. Initially, people saw it as something completely contemporary and revolutionary, however as time went by many realised that the apartments, they have received offered a different reality discussed in this section.

Marzahn was designed using three predominant blocks styles: five, eleven and twenty-two stories of the Wohnungsbau Serie 70 (WBS-70) and P2 (Figure 12). Despite being seen as a revolutionary invention before the Reunification, now these models have their own complications. Because officials in the past aimed to produce housing efficiently, like it was in the USSR, it has led to numerous issues tenants of Marzahn experience today including dampness, the lack of insulation and soundproofing (Kemper, 1998). Considering the changes to building regulations since their construction, the current living conditions for some is undesirable.

While this is the case, Marzahn has shown evidence of integrating with the community. During the Mural Fest in 2019 (Visit Berlin, 2019), the government invested into reshaping the area by inviting artist from all over Berlin to produce artwork on the facades of the buildings (Figure 13) A range of art styles are now scattered around Marzahn introducing another layer of life to the area, covering the true nature of the grey monotoned blocks. Echoing the words of Goldberger (2009) discussed previously, architecture is influenced by its cultural shift. In this case, it is responding to gentrification that is happening in Berlin, especially in areas like Prenzlauer Berg and Kreuzberg. Gentrification typically refers to the

15

urban transformation process occurring within cities, characterised by minimal initial property investments leading to reinvestments, resulting in the change of the social composition as its physical (Bernt, 2016) After the privatisation of housing stock in Germany, the restoration and renovation of prefabricated properties anticipated higher rent to make investments profitable (Kemper, 1998). Alongside taxdeductions offered by the government, more investments were made into underdeveloped areas of former GDR, which resulted in distorted range of communities living together (Bernt, 2016). Berlin’s rents have jumped by almost a third in three moths claims The Local Germany (2023). Individuals who can’t afford to pay high rents are forced to move to outside the centre, especially artists. Vanessa Mathews (2010) states that artists are typically attracted to locations that are ‘edgy’, ‘run-down’ and ‘experimental’; Marzahn perfectly fits that category based on its past. Research shows that colours have a psychological impact on human perception. Specifically, grey is a contradictory colour, being one that evokes a sense of neutral calmness and sophistication, and one that stimulates a state of weariness (The Psychology of Colours – Ordinary Grey, 2018). During the Modernist era, grey architecture symbolised new construction methods, and hence why many building are grey. Not to mention, the motto for Berlin Mural Fest was “the end of the grey zone” (Visit Berlin, 2019). So, painting over grey introduces contrast and interest. While this is a creative approach to establish a new sense of belonging that represent society today, little does the art address spatial concerns It does not escape the fact that investments have been focused on Mitte’s development, neglecting other districts including Marzahn-Hellersdorf.

Considering larger physical interventions, David Chipperfield Architects (2019) intend to propose a residential and commercial neighbourhood on a former industrial 9-hectare site in Marzahn (Figure 14) Situated on the

boundary of the housing estate near GeorgKnorr-Park, this project demonstrates a new mode of living neglecting the existing prefabricated blocks. While the proposal’s plan appears to respond to the estates, it seems like a weak justification. Despite its potential to change the course of Marzahn’s future development, it can pose a false reading of the area and it is highly probable that it will bring a new demographic leading to an accelerated social segregation (defined as the separation of groups of people with different characteristics) (Browne, 2023) Being in such a proximity to the housing blocks, perhaps this project does indeed bring a progressive awareness for the community. However, the lack of funding in the past for retrofit projects at a scale that of GeorgKnorr-Park, could pose future difficulties for social development.

From a social perspective, Marzahn has had complications related to the community that occupy the estate. Previously, the area was known to be a prosperous community in the times of GDR, however after the 1991 Reunification many residents migrated to the west of Germany and Berlin in search for employment opportunities, as businesses were closing in GDR. Approximately one-fifth of its population was lost since 1995, leading Marzahn to be one of the poorest districts in Berlin with high crime, drug, and unemployment rates (Shand, 2013) Respectively, there has been a negative stigma of the area It is an interesting instance where the Plattenbau, once a symbol of socialist advancement, became a place of segregation, and social disparity Additionally, the housing was designed specifically for the socialist style of living, and to go against that presents a difficulty While the city was developing, Marzahn remained stuck in its own timeframe, due to lack of funding.

As mentioned, social (ethnic) segregation has been lingering in the estate and East Berlin Several communities inhabit the Plattenbauten, among them is the Russian-speaking

16

community (ger Aussiedler). This community fled Germany to Russia after experiencing economic difficulties and later in 1990 were allowed to return (now comprising 17 and per cent of the local population). Aussiedler immigrants suffer from unemployment rates due to insufficient German language skills and lack of qualification recognition. The locals accuse the Russian-speaking community of not wanting to integrate with society by speaking their language or conforming to the Russian stereotype (Matejskova, 2013). So, not only is Marzahn seen alienated from the rest of Berlin, but it also experiences division, showcasing that architecture could have an indirect influence over certain relationships amongst communities. The collapse of the GDR forced to people to see their differences where the Russian language reminds people of the past, hence why the community experiences prejudice Granted that Marzahn is considered a multicultural area it is not gentrified like other districts of Berlin, like Kreuzberg, due to investment priorities, meaning it has retained most of the demographic established earlier (Kil & Silver, 2006). By putting a wall between communities, prejudice is intensified and passes through generations showing how prefabricated influences social partition.

“The number of refugees in MarzahnHellersdorf district is high in comparision to other area of Berlin. There are currently 3,384 living here, 15.15% of all refugees on record in the city” (Oskamp, 2022).

Conversely, Marzahn appears ready to leave behind social repercussions since the Reunification. Even though the Plattenbau remain physically unchanged, people’s perception of them changes, and it is evident through integration projects issued by the local authorities and non-profit organisations. The inclusion of Marzahn into a nation-wide program in 1999, Social Integrative City, brought funding for new projects like Aussiedler help Aussiedler (Matejskova, 2013). Other facilities became meeting points for

communities to engage like churches that provide meals and inclusivity for foreigners. People are drawn to activities they enjoy doing, and in the process build connections with the opposing culture. An important factor to consider when dealing with change is memory. Goldberger (2009) describes architecture as a powerful tool to build common cultural experiences, making it prominent in memory regardless of its aesthetics. Memories ought to be respected because they form place identity over time. Plattenbauten are successful in retaining their image with minimal physical interventions, which heightens people’s nostalgic view of the GDR. In the interview conducted by the author, Dima (M, millennial) feels part of the community and sees no issues with the prefabricated apartments.

Besides residents, outsiders are also becoming more accustomed to the concrete landscape of Marzahn. Artists are beginning to romanticise the Plattenbauten given their settlement rate (Van Der Hoorn, 2015). They soon realised the reality and brought forth a new created image of their home, looking beyond the stereotypes portrayed by the Western World. Mélanie Van der Hoorn (2015) argues that in order to open up the Plattenbauten and make people aware of their potential, they need to be “free of connotations” , again proving it is public’s responsibility to see architecture as an asset and not as a static misconception in society. For architecture to change, people need to change their outlook. Furthermore, Goldberger (2009) asserts that people experience architecture as a backdrop to their lives and that numbness to it diminishes when the intensity fades, like with the interviewees.

“Many people think Marzahn is teeming with former GDR bigwigs and SED part officials. Its not true, id stake my life on it, especially as I work.” (Oskamp, 2022).

17

The building complex at Memhardstraße 2-10 is in Berlin-Mitte district near Alexanderplatz built between 1981 and 1983. After its completion, the housing complex went through a stage of success but over time it turned into a place of low maintenance, which invited a wave of drug addicts. Now, the place is experiencing revitalisation due to its location (Figure 15).

At a first glance, the building may seem like another prefabricated house in Berlin, however this is not the case. Apart from being built according to the modular principle with a reinforced concrete skeleton and exposed concrete panels, the Memhardstraße complex architecturally differs from other modular housing systems (Fürstenberger, 2023) It is divided into four components, which have up to twelve floors with public uses on the ground and first floors and apartments above (Figure 16). It could be expressed that the architecture alone can be an adequate case for its success. Aline Fürstenberger (2023) argues in ‘Plattenbau-Erbe der DDR’ (Prefabricated building heritage of the GDR) that this housing complex fits in with surrounding context – even relatively recent buildings. An example of that can be seen through the various heights of the four components that seemingly create a ‘harmonious transition’ to the existing building on Rosa-Luxemburg-Straße. Not to mention, the exterior façade provides a visual interest for the public featuring bespoke textures and finishes, which are still appreciated. Façades that face the street, are a warmer tone of grey and are panelled with red clink bricks, not only creating a homogenous context with surrounding beige buildings, but also liberates itself from the dull aesthetic that is imposed (Figure 17). Furthermore, locals have given their own personality with graffiti, which in turn results in a livelier environment and characterises the place with memories. The interiors also remain well preserved and are to some extent romantic, providing views where the radio tower at Alexanderplatz can be seen.

By being different from the usual prefabricated houses it contributes to the physical identity of Mitte district. Besides, there is a movement to preserve the exterior condition of the estate, noted by Fürstenberger (2023). If the building is under monument protection, it will be harder to change, if not impossible. So, why would officials preserve a building if it will restrict it from being flexible in future generations? Ultimately, a listed status would constrain the architecture to remain dogmatic.

Moreover, the housing complex is shown to socially integrate through interior renovation. In 2021 part of the ground floor was converted to a designer fashion store, ‘Platte’. This business utilises the rooms on the ground floor as studio spaces and houses fashion shows/events in the courtyard (Figure 18) Richard Rogers (1997) writes that a Compact City addresses the monofunctional uses of places. It is a concept stating that an overlapping between leisure, work and living leads to a harmonious city. For that reason, Memhardstraße becomes an ‘open-minded’ space that brings people together. If ‘Platte’ decided to establish in a new build, it would support the modernist claim of a ‘close-minded’ space that strives for private consumption. Therefore, this adaptive project embraces the notion of fostering inclusive communities through inviting a young demographic, indirectly exposing them to prefabricated architecture, and so increasing the likelihood to accepting the building in its true state.

On the other hand, ‘Platte’ is an example of active gentrification In 2018, statistics show that rent is the highest in Mitte, along with Friedrichshain-Krezberg, costing 12.51 euro per square metre compared to MarzahnHellersdorf at 7.77 (Figure 19). However, Memi is the only place where rents are relatively low – one tenant pays half the average rent in Mitte (‘Berliner Zeitung’, 2013) An article describes ‘Platte’ as the “shop in the basement that sells clothes whose individual prices are close to the monthly rents of people

18
Mitte

on the floors above”. Although one good say this is a sign of inclusivity, it also promotes a a new socioeconomic demographic, which can lead to inequality within the estate. Displacement of long-term residents is also likely due to potential increase in rents, stripping Memi of its cultural memories.

“Any attempts to convince the members of the changed society that the socialistic residential environment is sufficiently humane and of high quality seem cynical in the 21st century.” (Džervus, 2013)

Undoubtably, the adaptability of the Memhardstraße estate depends on its locals. Up until recently, all socialist housing has been viewed negatively, and this one is no exception. Some see this estate as a trauma and often associate the rough appearance with crime and vandalism (‘Berliner Zeitung’, 2013) A headline became popular in Berlin: “The drug bunker at Alexanderplatz” by the ‘BZ- The Voices of Berlin’(Schwarz, 2011). Though this is the case, evidence shows people are in control with their home. A boom of young professionals moves to apartments here because of cheap rents and the excellent location of the estate. A Berliner describes their relationship with the place as such: “Great location, cheap rent. In return, they accept the ugliness of the building”. If it is indeed an exchange of aesthetics for affordability, it could be said that appearance no longer has a role in newcomers. This idea goes against what Vitruvius wrote in ‘Ten Books on Architecture’ where architecture’s success is determined by the presence of all three elements: functionality (firmitas), usability (utilitas) and aesthetics (venustas)(Jacobson, 2014) Therefore, the estate’s success to adaptability lies not in its aesthetic appeal, but in its ability to change function, and the memories it holds.

Comparison

Marzahn and Memhardstraße were built as a response to the housing shortage in GDR after the war. While they are both classified as Plattenbau, they are very different. Marzahn is predominantly built using the WBS-70 topology, made up of 1.20m x 1.20m panels to allow for flexible apartment sizes. By 1990s, 644,900 units of this type had been built in GDR, comprising 44 percent of all prefabricated apartments (Sammartino, 2016). This marked the third phase of Plattenbau which focused on quantity over quality. In comparison, Memi represented a project in the fourth phase. The officials realised WBS-70 type were not suitable for the centre. In the eyes of the GDR, a design lead approach was a way of achieving social acceptability, and hence why they adapted a new style. Perhaps this suggests that location and size of the project influences the social progression in the future.

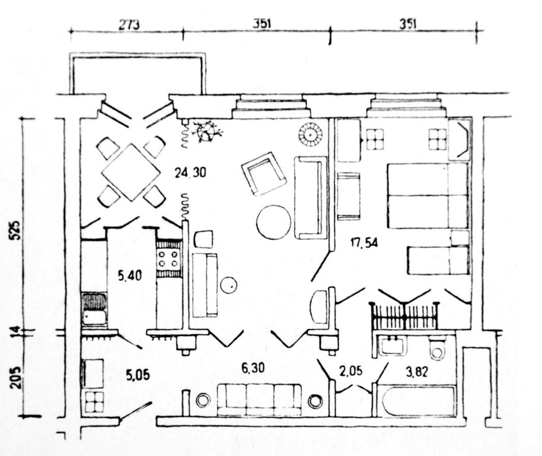
In terms of their special arrangement, the prefabricated apartments in Memi and Marzahn are slightly different, but nevertheless were equally as small. Since Memi was designed for people of higher status, as mentioned before, one would think that apartments were more spacious. Figures 20 and 21 show the plans of each type. Though Memi is more playful with its apartment arrangement, the dimensions are similar. Although, it is worth mentioning that Memi has maisonette apartments, which typical WBS-70 and P2 do not, suggesting that architects of Memi did plan for a variety of apartment sizes, perhaps for the elite.

While Marzahn was intended for large families and migrant workers, Memi was home to lecturers, artists, and politicians. This explains the different approaches to design. The Marzahn project’s focus was to provide homes as stated per Housing Program. Marzahn was a short-term goal, and the architecture disregards future generations. Since it was based on a Modernist utopia of a car-led city, it takes a long time to get from one area of the estate to

19

the other (Kil and Silver, 2006) Marzahn is not set for the person, thus creating a virtual barrier between society and architecture. Memi on the other hand, is only a small portion of the size of Marzahn. Logically, the architecture has opportunity to be more meaningful in design. Compared to Marzahn’s basic concrete panels, Memi’s creative use of materials sets them two apart

From a social standpoint, looking at the demographics in both areas and comparing how they changed, shows whether they integrate with society. These Plattenbauten recently attracted more residents, therefore they cannot be viewed as failed objects. More people are moving to the outskirts of the city due to an increased rent cost, hence why places like Marzahn is becoming a. more desirable destination. Furthermore, the social disparity is easing due to people’s initiatives, indicating that Marzahn is becoming a part of the city in that regard, whilst maintaining its multicultural identity. More prefabricated homes are getting renovated, once again showing how they are becoming more accustomed to contemporary living.

This interpretation contrasts with that of Memi. Upon its construction, Memi was designed to seem appealing in the centre; to assert dominance of the socialist regime in GDR, proving that consciously people will adapt a style to the building relative to their sociopolitical importance. However, with the arrival of an expensive shop on the lower level, this opens to potential social issues like inequality, which could lead to displacement. While Marzahn retained its identity through the redevelopments, Memi is losing it.

CONCLUSION

In conclusion, socialist housing in the former GDR is merits acknowledgment for their contribution to society’s development. This study aimed to critique the level of success in integrating the estates to the social environments throughout their existence. This paper reported findings to support the claims through looking at the physical signs of engagement to communities, like refurbishments and other interventions, as well as social factors – these were considerably harder to find.

A notable limitation to this dissertation lied in the lack of personal experience. Observing how socialist housing integrated to society requires a first-hand immersion to experience the shift of dynamics of that time. Thus, judgements are constrained from external sources The research could have been consolidated on a deeper level had it not been investigated by one who’s personal experience is intangible compared to people who inhabit the estates. Nonetheless, the sources have provided a basis for a conclusive assessment, being that Plattenbauten have become a part of society, and to neglect their existence would mean dismissing a chapter in Berlin’s development and the communities it has hosted.

The discussion above has proved how different approaches can be taken to address a controversial issue as such in a way that respects the past, present and acknowledges their impact on future generations

20

FIGURES

Figure 1 – ’30 Jahre DDR… und morgen baue ich!’ (30 years of GDR… and, tomorrow, I build) (Lindner, B. and Lindner, W., 1979)

Figure 2 – The basic components of Clarence Perry’s Garden City/Neighbourhood Unit (Perry, 1929)

21

Figure 3 – Дом серии К-7 (модификация К-7-3-4) в Кузьминках [House Series K7(modification K-7-3-4) in Kuzminki)](Surikov, 2006)

22
Figure 4 – HLM of Jardin Frémin, in Survilliers , France. (Poschadel, 2011)
23
Figure 5 – Residents of Bärensteinstrasse in Marzahn 1982: Working hard for their new home (Zimmermann, 1982) Figure 6 – Red Gate Building in Moscow, Russia (Savin, 2019)

(Rzyanin, 1951).

24
Figure 7 – Apartment building on Bolshaya Kaluzhskaya street in Moscow. Façade (Rzyanin, 1951). Figure 8 – Apartment building on Bolshaya Kaluzhskaya street in Moscow. Plan of a residential section (Rzyanin, 1951) and Furniture placement plan (Alekseev et al., 1954).

(Rzyanin,

(Rzyanin, 1951).

25
Figure 9 – Floor plans and furniture layouts of one, two, and three-room khrushchevkas (Baranov, 1958). 1951) and Furniture placement plan (Alekseev et al., 1954). Figure 10 – “We will greet Builders’ Day commendably!” Poster celebrating the construction of prefabricated homes (Stroitel′, 1956) (Rzyanin, 1951) and Furniture placement plan (Alekseev et al., 1954).

Figure 10 –“Serialisation will accelerate the construction of new housing units” Poster celebrating the construction of prefabricated homes (Havlín, 1960)

(Rzyanin, 1951) and Furniture placement plan (Alekseev et al., 1954).

(Rzyanin, 1951).

Figure 11 – Location of Marzahn-Hellersdorf (Wikipedia, 2010)

(Rzyanin, 1951).

26

Figure 12 – WBS-70 housing topology in Marzahn (Bezirksmuseum, 1984). (Rzyanin, 1951).

Figure 13 – Art murals in Marzahn, 2019 (Schuleit, 2019). (Rzyanin, 1951).

27

Figure 14 – Georg-Knorr-Park plan proposed by David Chipperfield Architects (David Chipperfield Architects, 2019).

(Rzyanin, 1951).

Figure 15 – Locating Memhardstraße in Berlin (Fürstenberger, 2023).

(Rzyanin, 1951).

28
v v v

16 – Axonometric view of Memhardstraße housing in Berlin (Fürstenberger, 2023).

(Rzyanin, 1951).

Figure 17 – Range of facades and their textures of Memhardstraße housing in Berlin (Fürstenberger, 2023).

(Rzyanin, 1951).

29
Figure

Figure 18 – The ground floor where “Platte” studios are in Memhardstraße housing complex, Berlin (Platte, 2021).

(Rzyanin, 1951).

Figure 19 – Where rent is highest and lowest in Berlin, average rent for an apartment by district in 2018 (euro/ sq m) (McCarthy, 2018).

(Rzyanin, 1951).

30

20 – Floor plan of one of the maisonette apartments and studio apartments (Fürstenberger, 2023).

(Rzyanin, 1951).

Figure 21 – Archives of floor plans of a typical WBS-70 apartment (Imkewoelk, 2015).

(Rzyanin, 1951).

31
Figure

BIBLIOGRAPHY

‘Berliner Zeitung’ (2013) ‘Plattenbau am Alexanderplatz: Das ist unser Haus’, Berliner Zeitung, 13 March, Available at: https://www.berliner-zeitung.de/plattenbau-am-alexanderplatz-das-ist-unserhaus-li.71640 (Accessed 24 October 2023). Translated by Google Translate.

Bernt, M. (2016) ‘How post-socialist is gentrification? Observations in East Berlin and Saint Petersburg’, Eurasian Geography and Economics, pp. 57:4-5, 565-587, doi:10.1080/15387216.2016.1259079. (Accessed 8 October 2023).

Browne, J. (2023) ‘Segregation’, Encyclopaedia Britannica, 8 October. Available at: https://www.britannica.com/topic/segregationsociology#:~:text=segregation%2C%20separation%20of%20groups%20of,discrimination%20to%20s elf%2Dimposed%20separation. (Accessed 3 January 2024).

Choate, K. (2010) ‘From “Stalinkas” to “Khrushchevkas”: The transition to minimalism in urban residential interiors in the Soviet Union from 1953 to 1964’, Logan: Utah State University. Available at: https://digitalcommons.usu.edu/cgi/viewcontent.cgi?article=1624&context=etd (Accessed 24 December 2023).

Dagger, R. and Ball, T. (2023) ‘Socialism’, Encyclopaedia Britannica, 8 October. Available at: https://www.britannica.com/money/topic/socialism (Accessed 3 January 2024).

David Chipperfield Architects (2019) Georg-Knorr-Park Berlin, Germany 2019. Available at: https://davidchipperfield.com/projects/georgknorrpark (Accessedm 15 October 2023).

Droste, C., Knorr-Siedow, T. and Thevissen, F. (2019) ‘Housing in Berlin: Question and Answers’, Berliner Fachstelle gegen Diskriminierung auf dem Wohnungsmarkt Available at: https://www.google.com/url?sa=t&rct=j&q=&esrc=s&source=web&cd=&ved=2ahUKEwjp6vQ082DAxUdYEEAHY5NCxMQFnoECA4QAQ&url=https%3A%2F%2Fwww.berlin.de%2Fpoliti sche-bildung%2Fpublikationen%2Fbroschueren%2Freihe-fragen-undantworten%2F20200101_lpb_wohnen-inberlin_en_bfrei.pdf&usg=AOvVaw03PqD2AQRFPkU3BSpbSedk&opi=89978449 (Accessed 7 January 2024).

Džervus, p. (2013), ‘Postmodern Discourse of Post-Soviet Large Housing Districts: Modelling the Possibilities’, Rigas Tehnikas Universitates Zinatniskie Raksti,7, pp. 51-58. Available at: https://www.proquest.com/docview/1400720876?pqorigsite=primo&sourcetype=Scholarly%20Journals (Accessed: 28 September 2023).

Fürstenberger, A. (2023), ‘Plattenbau-Erbe der DDR. “Memi” ein Gebäuderkomplex mit Denmalcharakter”, Technischen Universität Wien Fakultät für Architektur und Raumplanung. doi: 10.34726/hss.2023.95581(Accessed 5 November 2023) (Translated by Google Translate).

Glendinning, M. (2021) ‘The USSR: Developed Socialism and Extensive Urbanism’, in Glendinning M. (ed.) Mass Housing: Modern Architecture and State Power – a Global History. London: Bloomsbury Visual Arts, pp. 298–341. Available at: http://dx.doi.org/10.5040/9781474229302.ch-011 (Accessed 26 December 2023).

Goldberger, P. (2009) Why Architecture Matters, London: Yale University Press.

32

Jacobson, M. (2014), Invitation to Architecture, Newtown: The Taunton Press.

Kemper, F.-J. (1998), ‘Residential segregation and housing in Berlin: changes since unification’, Humboldt Available at: https://www.proquest.com/scholarly-journals/residential-segregationhousing-berlin-changes/docview/1026693591/se-2?accountid=14987 (Accessed: 30 December 2023). Goldberger, P (2009) Why Architecture Matters, Pennsylvania: Yale University Press.

Kil, W. and Silver, H. (2006) ‘From Kreuzberg to Marzahn: New Migrant Communities in Berlin’, German Politics and Society, 24(81), pp. 95-121. doi: 10.3167/gps.2006.240404. (Accessed 7 October 2023).

Lahoud, A. (2008) ‘The role of cultural (architecture) factors in forging identity’, National Identities, 10(4), pp. 389-98. doi: 10.1080/14608940802518963. (Accessed 27 December 2023).

Matejskova, T. (2013) ‘The Unbearable Closeness of The East: Embodied Micro-Economies of Difference, Belonging, and Intersecting Marginalities in Post-Socialist Berlin’, Urban Geography, 34(1), pp. 30-52. doi: 10.1080/02723638.2013.778630. (Accessed 8 November 2023).

Matejskova, T. and Leitner, H. (2011) ‘Urban encounters with difference: the contact hypothesis and immigrant integration projects in eastern Berlin’, Social & Cultural Geography, 12(7), pp.717-741, doi: 10.1080/14649365.2011.610234. (Accessed 11 October 2023).

Mathews, V. (2010) ‘Aestheticizing Space: Art, Gentrification and the City’, Geography Compass, 4, pp. 660-675. https://doi.org/10.1111/j.1749-8198.2010.00331.x (Accessed 4 January 2024)

Martinez, M. and Alkousaa, R. (2023) ‘Berlin’s renters face more misery as housing crisis deepens’, Reuters, 16 November. Available at: https://www.reuters.com/world/europe/berlins-renters-facemore-misery-housing-crisis-deepens-2023-1116/#:~:text=In%20the%20last%20seven%20years,t%20always%20been%20like%20this. (Accessed 3 January 2024).

McCarthy, J. (1997) ‘Housing regeneration in former East Berlin’, European Planning Studies, 5(6), pp. 793-802. doi:10.1080/09654319708720438. (Accessed 8 October 2023).

Mohr, R. & Kate, P.B. (2021), ‘Generational and Geographic Effects on Collective Memory of the USSR; Communist and Post-Communist Studies, 54(1-2), pp. 156-175. Available at https://www.proquest.com/docview/2738649742?pqorigsite=primo&sourcetype=Scholarly%20Journals (Accessed 2 January 2024).

Minkjan, M. (2016) ‘Berlin Marzahn: Social Housing with Marquis Hawkes’, Failed Architecture, 18 August. Available at: https://failedarchitecture.com/berlin-marzahn-social-housing-with-marquishawkes/ (Accessed 16 November 2023).

Oskamp, K. (2022) Marzahn, Mon Amour, Bath: Peirene Press Ltd. (Translated by Heinrich Jo).

Rogers, R. (1997) Cities for a small planet, London: Faber and Faber Limited.

Sammartino,A. (2016) ‘Mass Housing, Late Modernism, and the Forging of Community in New York City and East Berlin’, The American Historical Review, 121(2), pp. 492–521. Available at: https://www.jstor.org/stable/43955772 (Accessed 23 October 2023).

33

Sandler, D. (2016) ‘Counterpreservation: Architectural Decay in Berlin since 1989’, Cornell University Press. Available at: http://www.jstor.org/stable/10.7591/j.ctt1d2dnjg.6. (Accessed 13 October 2023).

Schmitz, T. (2011) ‘Die Plattenfänger’, Süddeutche Zeitung, 19 July, Available at: https://www.sueddeutsche.de/leben/haessliches-kulturgut-die-plattenfaenger-1.1121975 (Accessed 25 October 2023). (Translated by Google Translate).

Schwarz, U. (2011) ‘Der Drogen-Bunker am Alexanderplatz’, BZ, Die Stimmer Berlins, 13 May. Available at: https://www.bz-berlin.de/archiv-artikel/der-drogen-bunker-am-alexanderplatz-2 (Accessed 21 December 2023). (Translated by Google Translate).

Scruton, R. (2013) The Aesthetics of Architecture, Woodstock: Pinceton University Press.

Shand, R. (2013) ‘The Social City: Marzahn and Potsdam.’, Governing Sustainable Urban Renewal, [Online]London: Taylor & Francis Group, pp. 91–129. Available at: https://ebookcentral.proquest.com/lib/westminster/reader.action?docID=3061304&ppg=92 (Accessed: 23 October 2023).

Soloveitchik, R. (2017) ‘Little Russia’, Berlin Policy Journal, 1 March. Available at: https://berlinpolicyjournal.com/little-russia/ (Accessed 28 December 2023).

Swope, C. (2017) Building Socialism: Architecture and Urbanism in East German Literature, 19551973, New York: Bloomsbury Academic & Professional. Available at: https://ebookcentral.proquest.com/lib/westminster/detail.action?docID=5017664 (Accessed 4 November 2023)

‘The Local Germany’ (2023) ‘Berlin’s rental prices rose by almost a third in three months’, The Local Germany, 9 March. Available at: https://www.thelocal.de/20230309/berlin-rental-prices-rose-byalmost-a-third-in-three-months (Accessed 2 January 2024).

‘The Psychology of Colours (Part 11) – Ordinary Grey’ (2018) Available at: https://steemit.com/psychology/@ksolymosi/the-psychology-of-colours-part-11-ordinary-grey (Accessed 20 December 2023).

Treija, S. and Bratuškins, U. (2019) ‘Socialist Ideals and Physical Reality: Large Housing Estates in Riga, Latvia’, in Hess D.B. and Tammaru T. (eds.) Housing Esates in the Baltic Countries, Cham: Springer Open, pp161-81. doi: 10.1007/978-3-030-23392-1. (Accessed 2 January 2024).

Van Der Hoorn, M. (2004), ‘Consuming the “Platte” in East Berlin: The New Popularity of Former GDR Architecture’, Home Cultures, 1(2), pp. 89-126. doi: 10.2752/174063104778053527 (Accessed 14 October 2023).

Varga-Harris, C. (2015), Stories of House and Home: Soviet Apartment Life during the Khrushchev Years, Ithaca: Cornell University Press. Available at: https://ebookcentral.proquest.com/lib/westminster/detail.action?docID=4189256&pq-origsite=primo# (Accessed 24 December 2023).

Visit Berlin (no date), Colourful Walls: Murals in Marzahn-Hellersdorf. Available at: https://www.visitberlin.de/en/colorful-walls-murals-marzahn-hellersdorf (Accessed 3 October 2023)

34

West, D. (2019) The cybernetic eye: scientific planning in the Soviet Mikroraion, The Journal of Architecture, 24(5), pp. 699-717, doi: 10.1080/13602365.2019.1667402. (Accessed 22 December 2023).

Image References

Figure 1 - Lindner, B. and Lindner, W. (1979) ‘30 Jahre DDR… und morgen baue ich!’ (30 years of GDR… and, tomorrow, I build) [image], in Zupagrafika. Panelki, pp.8.

Figure 2 - Perry, C. (1929) ‘From Garden City to Eco-urbanism: The quest for sustainable neighbourhood development’, [image], Scientific Figure on ResearchGate. Available at: https://www.researchgate.net/figure/The-basic-components-of-Clarence-Perrys-Neighborhood-UnitPerry-1929_fig7_282075470 (Accessed 8 January 2024)

Figure 3 - Surikov, A. (2006) ‘Дом серии К-7 (модификация К-7-3-4) в Кузьминках’ [House Series K-7(modification K-7-3-4) in Kuzminki)]. [image] in Wikipedia. Available at:

https://ru.wikipedia.org/wiki/%D0%9A7_(%D1%81%D0%B5%D1%80%D0%B8%D1%8F_%D0%B4%D0%BE%D0%BC%D0%BE%D0 %B2)#/media/%D0%A4%D0%B0%D0%B9%D0%BB:K-7_apartment.jpg (Accessed 7 January 2024).

Figure 4 - Poschadel, P. (2011) ‘HLM of Jardin Frémin, in Survilliers’ [image] in Wikipedia. Available at: https://en.wikipedia.org/wiki/HLM#/media/File:Survilliers_(95),_barre_HLM_du_Jardin_Fr%C3%A 9min.jpg (Accessed 7 January 2024).

Figure 5 - Zimmermann, P. (1982) ‘Residents of Bärensteinstrasse in Marzahn 1982: Working hard for their new home’, [image], in Berliner Zeitung. Available at: https://www.berlinerzeitung.de/panorama/maedchen-aus-ost-berlin-mein-langer-weg-zurueck-nach-marzahn-li.435934 (Accessed 7 January 2024)

Figure 6 - Savin, A. (2019) ‘Red Gate Building Moscow, Russia’ in Wikipedia [image]. Available at: https://en.wikipedia.org/wiki/Stalinist_architecture#/media/File:Moscow_Red_Gate_Building_asv201 9-06.jpg (Accessed 7 January 2024).

Figure 7 - Rzyanin, A (1951) ‘Apartment building on Bolshaya Kaluzhskaya street in Moscow. Façade’ in Choate, K. ‘From “Stalinkas” to “Khrushchevkas”: The transition to minimalism in urban residential interiors in the Soviet Union from 1953 to 1964’, [image], Logan: Utah State University. Available at: https://digitalcommons.usu.edu/cgi/viewcontent.cgi?article=1624&context=etd (Accessed 7 January 2024).

Figure 8 - Rzyanin, A (1951) ‘Apartment building on Bolshaya Kaluzhskaya street in Moscow. Plan of a residential section’ in Choate, K. ‘From “Stalinkas” to “Khrushchevkas”: The transition to minimalism in urban residential interiors in the Soviet Union from 1953 to 1964’, [image], Logan: Utah State University. Available at: https://digitalcommons.usu.edu/cgi/viewcontent.cgi?article=1624&context=etd (Accessed 7 January 2024). and

35

Alekseev, V (1954) ‘Furniture placement plan’ in Choate, K. ‘From “Stalinkas” to “Khrushchevkas”: The transition to minimalism in urban residential interiors in the Soviet Union from 1953 to 1964’, [image], Logan: Utah State University. Available at: https://digitalcommons.usu.edu/cgi/viewcontent.cgi?article=1624&context=etd (Accessed 7 January 2024).

Figure 9 - Baranov, L (1958) ‘Floor plans and furniture layouts of one-, two-, and three-room khrushchevkas in Choate, K. ‘From “Stalinkas” to “Khrushchevkas”: The transition to minimalism in urban residential interiors in the Soviet Union from 1953 to 1964’, [image], Logan: Utah State University. Available at: https://digitalcommons.usu.edu/cgi/viewcontent.cgi?article=1624&context=etd (Accessed 7 January 2024).

Figure 10 – Stroitel’ (1956) ‘“We will greet Builders’ Day commendably!” Poster celebrating the construction of prefabricated homes’, [image], in Varga-Harris, C. Stories of House and Home: Soviet Apartment Life during the Khrushchev Years, Ithaca: Cornell University Press. Available at: https://ebookcentral.proquest.com/lib/westminster/detail.action?docID=4189256&pq-origsite=primo# (Accessed 24 December 2023).

and Havlín P (1960) ‘Serialisation will accelerate the construction of new housing units’, [image], in Zupagrafika. Panelki, pp.9.

Figure 11 - Wikipedia. (2010) ‘Location of Marzahn-Hellersdorf.’ [image] in Wikipedia. Available at: https://en.wikipedia.org/wiki/Marzahn-Hellersdorf#/media/File:Berlin_Bezirk_MarzahnHellersdorf_(labeled).svg (Accessed 7 January 2024).

Figure 12 - Berzigsmuseum (1984) ‘WBS-70 housing topology in Marzahn.’ [image] in Rubin, E. Beyond Domination: Socialism, Everyday Life in East German Housing Settlements, and New Directions in GDR Historiography pp. 8. Available at: https://www.researchgate.net/figure/WBS-70buildings-in-Marzahn-1984-Courtesy-of-Bezirksmuseum-Marzahn-Hellersdorf-eV_fig5_317266751 (Accessed 7 January 2024).

Figure 13 – Schuleit, M. (2019) ‘Art murals in Marzahn, 2019’ [image] in Visit Berlin Colourful Walls: Murals in Marzahn-Hellersdorf Available at: https://www.visitberlin.de/en/colorful-wallsmurals-marzahn-hellersdorf (Accessed 7 January 2024).

Figure 14 – David Chipperfield Architects (2019) ‘Georg-Knorr-Park plan proposed by David Chipperfield Architects’ [image] Available at: https://davidchipperfield.com/projects/georgknorrpark (Accessed 7 January 2024).

Figure 15 – Fürstenberger, A. (2023), ‘Locating Memhardstraße in Berlin’, in Fürstenberger, A. ‘Plattenbau-Erbe der DDR. “Memi” ein Gebäuderkomplex mit Denmalcharakter”, Technischen Universität Wien Fakultät für Architektur und Raumplanung. doi: 10.34726/hss.2023.95581(Accessed 5 November 2023)

36

Figure 16 – Fürstenberger, A. (2023), ‘Axonometric view of Memhardstraße housing in Berlin’, [image] in Fürstenberger, A. ‘Plattenbau-Erbe der DDR. “Memi” ein Gebäuderkomplex mit Denmalcharakter”, Technischen Universität Wien Fakultät für Architektur und Raumplanung. doi: 10.34726/hss.2023.95581(Accessed 5 November 2023).

Figure 17 - Fürstenberger, A. (2023), ‘Range of facades and their textures of Memhardstraße housing in Berlin’, [image] in Fürstenberger, A. ‘Plattenbau-Erbe der DDR. “Memi” ein Gebäuderkomplex mit Denmalcharakter”, Technischen Universität Wien Fakultät für Architektur und Raumplanung. doi: 10.34726/hss.2023.95581(Accessed 5 November 2023).

Figure 18 - Platte, (2019) ‘The ground floor where “Platte” studios are in Memhardstraße housing complex, Berlin’ [image]. Available at: https://platte.berlin/en/about/ (Accessed 24 December 2024).

Figure 19 – McCarthy, N. (2018) ‘Where rent is highest and lowest in Berlin, average rent for an apartment by district in 2018’ [chart]. Available at https://www.statista.com/chart/18614/averagerent-for-an-apartment-in-berlin-by-district/ (Accessed 24 December 2024)

Figure 20 – Fürstenberger, A. (2023), ‘Floor plan of one of the maisonette apartments and studio apartments’, [image] in Fürstenberger, A. ‘Plattenbau-Erbe der DDR. “Memi” ein Gebäuderkomplex mit Denmalcharakter”, Technischen Universität Wien Fakultät für Architektur und Raumplanung. doi: 10.34726/hss.2023.95581(Accessed 5 November 2023).

Figure 21 – Imkewoelk (2015), ‘Archives of floor plans of a typical WBS-70 apartment’, [image] Imkewoelk. Available at: https://iw-up.com/en/projekte/wbs-70-hinter-der-platte/ (Accessed 16 December 2023).

37

APPENDIX: Catalogue of Interviews

How long have you been living in this apartment?

Do you recall how you acquired this apartment?

“All my life. We lived in a panel house when I served in Kazakhstan in x. There was a 5-storey house we lived on the fourth floor. The army built this house at the end of the spring. They built in fairly quick; they pick up the panel with the crane and fix them together. They all do it in the factory and bring it on site –very efficient method at that time. To the point that half of the house could be built in one day. The army officials sent people to build according to the health assessment and speciality.”

“I served in the army at that time, and there was a person who monitors officers whether they have apartments or not. They get given a certain number of apartments, which they then give to the officers.”

Did /do you feel a part of a community in your house/microdistrict?

Do you think the prefab promoted communist ideals and satisfied the population successfully?

“Of course, I did! Every action that happened you were affected. Everyone is dependent on something. That’s what unified us.”

“If you take the whole picture, the government thought it was successful, but when people finally got the apartments, they realise that the quality was very low. In our kitchen, only one person could be cooking, so it was very small. There wasn’t family time in the kitchen. You were expected to be satisfied with where you lived.”

“I lived in a prefabricated home until I was 25 in different locations.

In Rezekne, Riga, Daugavpils and Valmiera.”

“At that time these apartments were given for free. We were meant to be given a 4-bedroom house but there was a doctor who for some reason acquired it (maybe because of bribery)”

“Of course, we were all equal. I know there was a doctor living above us, and we were sure at them times we could come to him with confidence and ask for help. It was a mutual relationship between all living in the estate.”

“A person, regardless of his social status, had the right to personal housing. At that time people were happy if they had water and heating, which became available to all.”

“I’ve lived in MarzahnHellersdorf for 10 years.”

“Government just gave the apartment. You go prepare all the documents, go there. If you go there and they have a flat available, it’s yours”

“Yes, I very much do!”

“This is interesting and I would say this is more of a political question. We live in a building built by soviet soldiers. Now, everyone lives and doesn’t look back at that time.”

38

How does it feel to have lived all this stime in this apartment? What are the emotions you are feeling?

“We lived in the south of Kazakhstan so when the sun heated the panel up, and it gets very hot. We had the option to choose what floor to live, of course we chose the first because there was no lift. In Ukraine the panels I lived were built in 1981 and compared to Kazakhstan it was colder. You are above the basement and the air comes up to our first floor. All the electrical, heating and water systems were in the basement – whether they are on depends on the officials. The moisture is very high in the panel blocks, that why furniture absorbs it and grows mouldy. No comfort. It isn’t comfortable for the kids because they want to run! If you heat the house up, you need to shut the doors… so there is a small limitation here. After the construction is complete, we had to change the windows because the wind and even the rain got into our apartment. Brick houses are much better. The panels were intended for 50 years… however they are still standing. Plastering the facades was a common way of insulating the building too. But other times you had to wear warm clothes indoors. On the inside, we insulated using wooden panels. Concrete panels heat up quickly but also lose heat quickly. In the city there are estates that were built by Hungarians and Czechs – the people that live there aren’t complaining. They have a different technology compared to the ones our people did. Often, we heard our neighbours, and they heard us. If a dog was left alone, the whole block could hear her.”

“Fantastic. I never experienced any discomfort living in these estates. There was always a separate room”

“I didn’t even think about it. Alright, we’ve always lived in a panel home all my life. In Latvia and here (in Germany) too. There basically isn’t any difference.”

So you think there isn’t a difference between buildings in Latvia and Germany?

“If you put it into perspective, concrete is always concrete, right?”

39

Do you see the place you lived becoming something else without it being destroyed?

Do you have any positive/negative memories with the estates?

“No, it will only be taken down for health and safety reasons. People have spent money on insulating homes. Not far from us there is a long 9-storey panel house, the local government set out to insulate these houses for efficiency.”

“Of course, I’ve converted one myself. We took;’ walls down and combined rooms. I know you can even combine apartments together. Obviously, there are limitations such as low ceiling heights and windows since you can’t change their placement due to planning authorities.”

“No, as I said before there will be a large-scale renovation. The government is preserving these buildings and making them a nice place to live in.”

Would you live in a prefab house now that you have lived here?

“The fact that I had my own apartment, couldn’t evict me for example without my permission, was a privilege. I was happy with everything I had. If there were any problems, I could call a specialist to fix something.”

“No, I wouldn’t return there, however I must admit after our project on windows and insulating walls/ floor, which made our life more accommodating. Knowing the materials and the quality of the build in Ukraine, there’s a big difference compared to the flat we live in the UK. Even though it could be warm outside, if the moisture is high, you will experience discomfort; it’s a different story with brick homes.”

“Yes, I vividly remember playing in the courtyards. Everything is friendly between kids and adults.”

“You know, in my opinion, I probably won’t. Because, having lived in a home I understand there are advantages like your own garden and private parking. You can go out and do a BBQ with friends – something you couldn’t do back there. From a family perspective, a house is much better. However, the apartment requires less maintenance in terms of heating.” /

“In panelled homes its all the same. There are neighbours, satisfied and not. Other don’t care.”

So, you have nothing to complain about living in a prefabricated house?

“Yes, very much so.”

40

Have there been any developments you know of in the area you live/d? Has that affected the community in the estates?

“Yes, there has been built a new development for the elite. Back in the times you couldn’t buy or sell apartments until the USSR collapsed. These apartments were built from the investments of future residents – this was a cheaper option. People get just the apartments, and they furnish themselves. In the panelled homes, everything was furnished (toilet, bathroom, oven, etc.). chairs and tables you had to buy yourself.”

“No, even the factories looked the same. Just a tall block multiplied.”

Have you observed any signs of social degradation? Do you think it’s problematic? Why/not?

“Yes, we observed it. Why? Because, this was a social lifestyle, not a premium one. It was housing for people who couldn’t earn much or for. Through conversations in the playground and neighbours. If they can’t have a bottle of drink, they can’t converse.”

“No, the was a totalitarian system of equality. No one cared where you live and still don’t. No one is going to say, ‘Wow, you live here, you’re a moron’.”

“I can’t really say specifically, but in some time, there will be a major renovation. In the last 10 years, the buildings have insulated as well as renovating every balcony, plumbing systems, and kitchen all for free all from government’s expense. They even paid us compensation for the inconvenience – 300€ for the balcony and the same amount for the plumbing system and kitchen with bathroom. We were given a choice of either of three tiles for the bathroom. A certain number of apartments are owned by the government – there are private panelled houses too.”

“No, there really isn’t anything like that here. The only thing I would say is different nationalities treat each other differently. Of course, there are individuals who behave themselves like a pig, but that shouldn’t be a problem of nationality.”

Yuriy, Silent Generation – lived in Ukraine majority of his life. An army officer who travelled across the Soviet Union (Central Asia, Eastern Europe, and GDR).

Gennadijs, Millennial – lived in Latvia majority of his life. Moved to the UK.

Dima, Millennial – lived in Latvia then later moved to Berlin, Germany.

41

Fun Experiment

To develop a more comprehensive understanding of the topic, I decided to purchase a small replica of the Plattenbau to see what it was like to build an estate. Much like the actual slabs, these puzzle pieces slotted together to form a cardboard block. Of course, I did not have to lift any concrete slabs or get dirty, but it provided an insight of how quick and easy it was to build – indeed revolutionary in that era.

42

Turn static files into dynamic content formats.

Create a flipbook