Skip to main content

Design Portfolio DLYH

Page 1


PORTFOLIO

YEAR 3, JANUARY 2020

Address:
Jalan Petaling, City Centre, 50000 Kuala Lumpur, Wilayah Persekutuan Kuala Lumpur, Malaysia

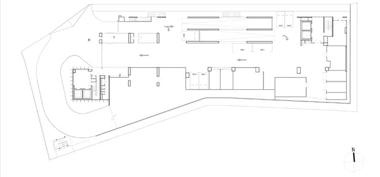
The theater is situated next to the subway and stands tall with its unique form when compared to its context. The prominent features that this project tested on are the angled designs on openings and roof, and different materials inspired by Kengo Kuma’s work: Kyushugeibunkan. The ground floor consist of receptional spaces while the main stage and black box are situated on the floor above. This project reflects on spatial organisation between having a car park, reception spaces, large theater rooms and back of house operations.

First Floor
Side View
Interior Views

The Glowing Market

YEAR 3, SEPTEMBER 2020

Petaling, City Centre, 50000 Kuala Lumpur, Wilayah Persekutuan Kuala Lumpur, Malaysia

Address:
Jalan
Temporary Market stall (day)
The day experience of Petaling Street
Spatial Interpretation

This is a variety market project that encompases the experiences of environment and culture around the famous Petaling Street Market in Kuala Lumpur, Malaysia. The market cultures were observed throroughly and multiple experiences can be found during the day and night. Light is a significant ephemeral element that was found. During the day, the stalls provide shades for the people from the harsh sunlight and heat. During the night, the stalls provide lights like beacons to give them presence to the people.

The night experience of Petaling Street
Structural Interpretation
Temporary Market stall (night)
Structural

The project focuses on using translucent polycarbonate panels for the effects of light. During the day, the polycarbonate glows from the outside to the inside, and vice-versa during the night. The idea has close ties to the massive influence of chinese lanterns around the site. Metal framing structures were used because of the light nature of the system that does not interfere the light from the polycarbonate.

Parts of the markets are segmented into different categories for each block. It is common to find specific areas in Petaling Street that sells specific goods. For example, you can find a whole stretch of food market stalls on the street branching of the main street of market stalls.

The Italian Presence

YEAR 4, SEPTEMBER 2022

Address:

Centro Direzionale, 20124 Milan, Metropolitan City of Milan, Italy

Facade study of various buildings in Milan

This project is a gallery building that was designed with the context in mind. The Centro Direzionale has become a modern area with large scaled buildings like the Unicredit Tower and the Lombardia Tower. The experience of the area becomes alienated from the rest of the city, creating a completely different culture and environment.

The project aims to create an icon and statement of the classical and traditional Milanese architecture found in various parts of the city, to bring the Milanese identity back to an area that feels lacking of. Arches and vaults are a significant element of the architecture found in Milan and the project aims to incorporate them in a way to create a spatial experience that modern buildings in the Centro Direzionale does not have.

Typology study of Milanese buildings
Interpretation of Vaults being used for a Gallery
Formation of vaults concept
Typology study of Milanese buildings

The accomodation of the building is split by levels. The ground floor that is easily accessible as storefronts are public spaces. The main function of the building, the Gallery, has to be accessed through the courtyard found at the center of the building, closely related to the multiple typologies found in the city of Milan. The implementation of vaults and arches were subjected to be experimented with different sizes of vaults and arches. Inspirations were gotten from the likes of Francesca Borromini, and Andrea Palladio.

Elevation Section

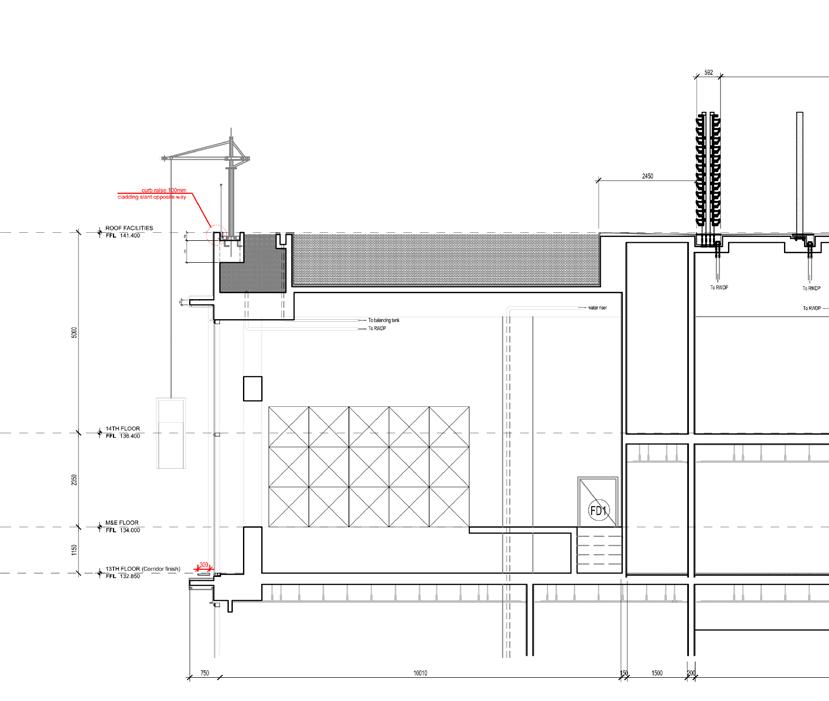
111 Menerung

PROFESSIONAL PRACTICE, MARCH 2021

Address:

Status: Under construction

Jalan Penaga, Bukit Bandaraya, Wilayah Persekutuan, 59000 KL, Malaysia

The building project is a highrise residential building with 111 number of residential lots, all stratified.

The Building includes eight floors of car park to fulfil the carpark requirement, stated in building code of Kuala Lumpur, Malaysia. The residential building also have a floor dedicated to lifestyle and leisure facilities located at the roof of the building.

During this project, I was tasked to make drawings for the tendering stage of the project. Drawings like section, elevation, plans, sections of specific rooms, window schedules, balustrade schedules, door schedules, aluminium facade screen schedule and others.

I have learnt alot from this project especially because I was thrusted from a conceptual point of view of architecture to the practical working side of architecture.

Refuse Chamber Section 1
Refuse Chamber Section 2

Square Park

Address:

Jalan 1/23c, Kampung Baru Air Panas, 53200 KL, Malaysia

Status: Competition Entry

This marketspace uses an origami form roof that acts as canopy while retaining connection to the environment. This contemporary market design includes clusters of market stalls with platforms on top for sitting areas or leisure.

The programmes that this marketplace has are retail shops, plazas, food courts, market halls, and vertical farms.

Isometric Diagram

Lot 2 & 4 Semenyih

JANUARY 2021

Address:

Status: In development

Jalan Sungai Lalang, Semenyih, Selangor, Malaysia

Lot 2

Lot 2 is a project that drew inspiration from Marcio Kogan’s work from Brazil. The house includes 2 bedrooms, 3 toilets, a living room, gardens, swimming pool and parking lots for 4 cars.

This contemporary design is formed from a series of cuboids with various materials.

Lot 4

Lot 4 is a design projection of the surrounding context. The house includes 3 bedrooms and features different types of living spaces and viewing decks.

The heavy use of wooden slits creates volumetric detail while circular openings were a homage to the harmonius chinese designs that ties the living spaces together.

Anyara

Hills JANUARY 2022

Address:

Status: In development

Jalan Sungai Lalang, Semenyih, Selangor, Malaysia

This is a clubhouse development scheme to facilitate the proposed residential area that is to be developed. The clubhouse is designed on a slope in the middle of a forest. To sort out the spaces we decided to use the contour to our advantage.

The clubhouse is divided into different segments of spaces on different ground levels: the main hall, restaurants and spa. The minimalistic structures and architecture create a background canvas for the plantings to look vibrant.

In the Backyard YEAR 5, JANUARY 2022

Address: Croydon, London, UK

This Thesis design scheme is a asylum seekers’ accomodation network that aims to create suitable environments for asylum seekers while exploring more viable economic models.

The Community center is a response to the mental health crisis and lack of assistance to the asylum seekers according to “Are asylum seekers and refugees provided with appropriate mental health support in the United Kingdom?”

The community center consists of courtyards specific to programmes such as communal area, education center, healthcare center and advisory center. Each courtyard have different characteristics that can range from a water garden to a stepped garden that allows various recreational activities.

The design aims to feel less like a institution to create a more inviting environment for people who have experienced trauma or mental health problems.

Turn static files into dynamic content formats.

Create a flipbook