Architecture Portfolio_Danielle Breyton

Page 1


Architecture

Portfolio

Danielle Breyton

Growing up in a small town east of San Francisco, I was surrounded by a wide range of architectural styles. Whether traveling into the city, heading northeast to Lake Tahoe, or south to Santa Cruz, I was constantly exposed to the diverse vernaculars of urban, mountain, and coastal architecture. While I was initially unsure of what path wanted to pursue, I always knew it would center around design in some form.

Though I hadn’t planned on attending college, a suggestion from my father led me to apply to the University of Arizona—and I decided to give it the “old college try.” After spending my first year as an undeclared major, a meeting with the architecture advisor sparked a realization: architecture combined all the elements I was passionate about. From that moment on, I was fully committed.

After years of late nights, coffee-fueled studio sessions, and a lot of hard work, earned my Bachelor of Architecture in May 2023. Upon graduating, I returned to California and began my career in Los Angeles at Standard Architecture Design, a high-end residential firm. There, I gained valuable experience in schematic design, construction documents, rendering, and project coordination.

Now, after a year and a half of working in residential architecture, I’m eager to broaden my experience by contributing to larger-scale projects within a more expansive and collaborative firm environment.

No.1_ About Me

Danielle Breyton

@ danielle.breyton@gmail.com

+1 (925) 708-5532

@ Danielle Breyton

Objective

To secure a full-time position as an Architectural Designer where can apply my design, construction, and graphic communication skills while continuing to grow professionally within a collaborative and creative environment.

My experience at Onyx Creative, Standard Architecture, and in the Design Build program has given me a well-rounded foundation in both the technical and conceptual aspects of architecture.

I take pride in being a motivated and adaptable team player with a lively, eager personality and a deep passion for learning. am excited to contribute to a larger team, take on new challenges, and absorb as much knowledge as can from those around me to support both my growth and the success of the firm.

Skills

• Hardworking and Driven

• Organized

• Self Motivated

• Leadership

• Collaboration

• Attention to Detail

• Rhino 3D Modeling

• Auto Cad

• Revit

• Enscape Rendering

• Project Management

• Adobe Creative Cloud Suite

• Social Media Management

• Lumion 3D Rendering

EXPERIENCE

Standard Architecture | Design

• August 2023 - April 2025

• Full time designer working on high-end residential projects.

• Work on construction documents and produce graphic presentations for the client

• Work through schematic design with development of quick graphical diagrams and designs.

• Produce detailed renders for clients to get a glimpse into the design progression and to ensure the design meets their standards

Onyx Creative

• March 2022 - March 2023

• Full & Part - time Architectural intern & Design Professional

• Worked on several projects in different software programs. Ranging from residential homes in the Tucson area to department stores located all over the U.S.

• Worked and collborated with other Onyx offices around the country.

Design Build

• As part of the Design Build Program at the UA, we worked in teams to build 2 faculty homes which were 2 bedroom 1 bath. We designed and built everything; from the framing to the windows to the bathrooms and most importantly the kitchen. This program taught me the “real world challenges” of designing the building, building the building and all the while keeping the project within our finacial contraints.

EDUCATION

Bachelors of Architecture Jan 2019 - May 2023

University of Arizona

Graduated May 13th of 2023

Student Profile Interview: https://capla.arizona.edu/profiles/2023/danielle-breyton

AFFILIATIONS

AIA

- 2023

- 2023

Carpinteria, Ca

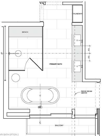
I was first introduced to the Padaro Lane project during my initial project meeting at my supervisor’s desk. This 2,000-squarefoot beachfront home in Santa Barbara, CA, was in the early stages of a complete renovation. The client envisioned expanding the home deeper into the elongated lot to increase square footage and create a serene retreat from the pace of life in Los Angeles.

Every project begins with a conversation to understand the client’s goals, design vision, and lifestyle needs. Based on these discussions, we develop a series of curated mood boards to align our design direction with their aspirations. The mood board shown reflects the final direction selected by the client and served as the foundation for the design process moving forward.

PADARO
Padaro Lane

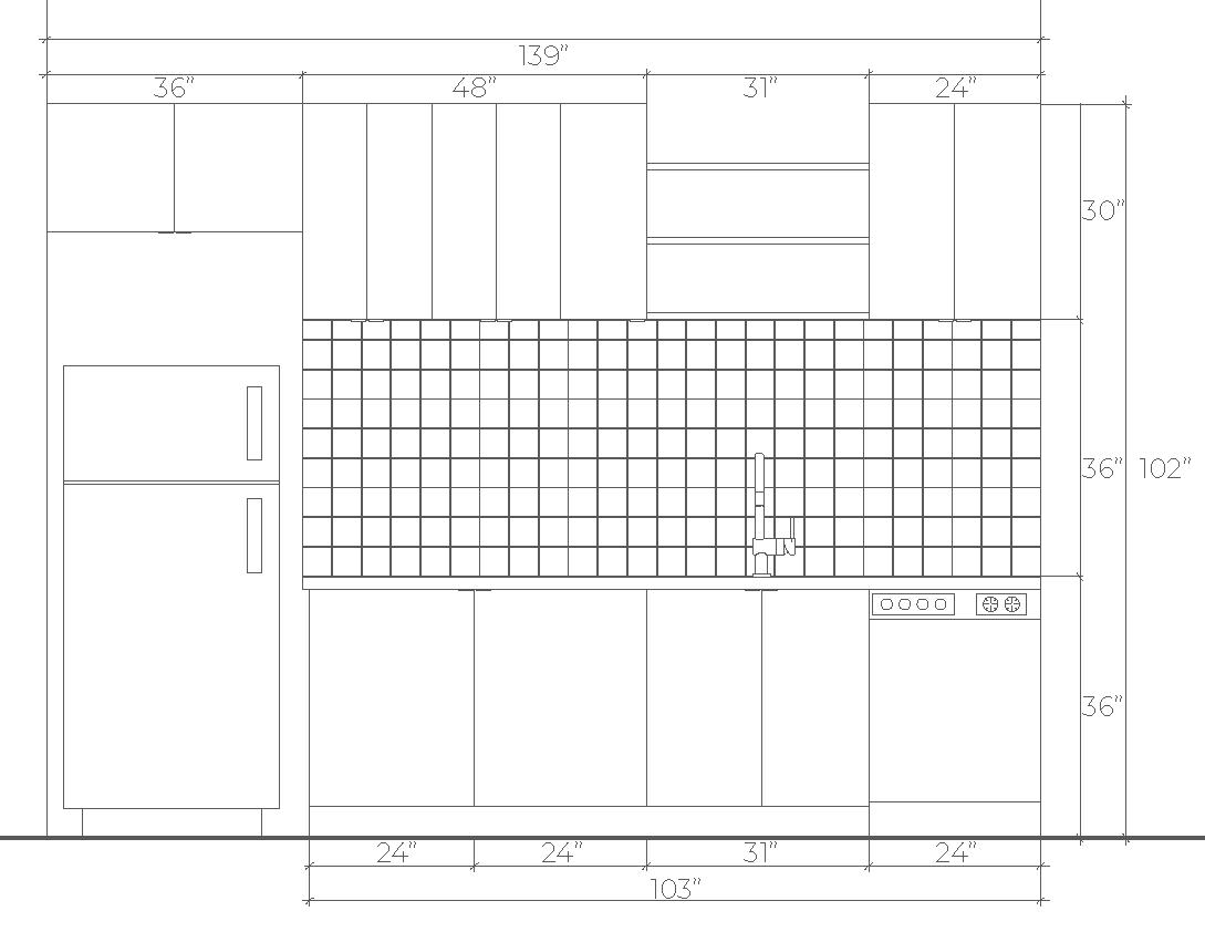
These kitchen axon renders are one example of how we provided options for the client. The client requested majority of things to be done in render version as it is easy to understand and help visualize, something we often don’t think about as we are trained to understand and visualize drawings.

Kitchen Options

Options

Design Options

Located in Palm Springs, this home was redesigned to better reflect the client’s lifestyle and aesthetic while allowing them to remain in the house during the renovation. The initial scope focused on three rooms, starting with a bunk room designed specifically for their children and guests. Working within existing structural constraints, including fixed windows, required multiple design iterations and creative problem-solving.

Once the bunk room was complete, the scope expanded to include the drum room and billiard room. Both spaces retained their original functions but were updated with custom built-ins and new furnishings to enhance functionality and style. In the drum room, a Murphy bed replaced an old builtin desk, offering added flexibility without sacrificing its primary use. The billiard room remained largely intact, with the addition of a custom built-in to display the client’s extensive vinyl collection and provide a permanent setup for their record player.

Bunk Room Axons

West Elevation
South Elevation

Billiard Room

This design includes fully open shelves surrounding the entire built-in. Includes an elongated rattan front to hide speakers but allow sound through. Design Option 01

Design Option 02

This design includes fully open shelves surrounding the entire built-in. Includes an elongated wood slatted front to hide speakers but allow sound through.

Design Option 03

This design includes slatted shelves on both sides of the built-in, creating slots for records to slide into. The elongated rattan front to hide speakers is also included.

Design Options Mood Board Design Inspo

Design Build No.4_

Row House 01

As part of the architecture program at the University of Arizona, students were divided into clusters to deepen their expertise in a particular focus area. selected the Material Matters cluster and was chosen to join the Design Build studio—an immersive experience that allowed us to both design and construct two homes, each consisting of two bedrooms and one bathroom.

Within this studio, we were assigned individual responsibilities on-site and contributed to different aspects of the builds. This hands-on experience provided invaluable insight into the construction process, designing within budget constraints, adapting to on-site challenges, and developing a strong appreciation for the physical demands of building.

For the first home, I worked as part of a two-person team responsible for designing and constructing the kitchen, which we intentionally made the central gathering space of the home. In the second project, I designed and built a custom storage and lounge nook integrated into a wall. These experiences reinforced the connection between thoughtful design and practical execution, while also highlighting the importance of collaboration, adaptability, and craftsmanship.

Working within a limited budget challenged us to be resourceful with our materials. While our initial design called for rustic wood for the exposed shelves, the cost exceeded our constraints. Fortunately, the university was undergoing a renovation at the time, allowing us to repurpose original wood from Old Main—the first building ever constructed at the University of Arizona. This not only aligned with our aesthetic vision but also added a meaningful layer of history to the project.

In addition to our design and construction responsibilities, each team member was assigned a specific role to help maintain organization and workflow—ranging from tool management to site security. My role was managing the Design Build studio’s social media presence. I designed the logo featured above for our Instagram account and was responsible for curating posts, creating promotional flyers, and keeping the university community informed about our progress and upcoming events.

Design Build No.4.2_

For the second home, was tasked with utilizing a recessed nook created by pre-framed structural walls. Since we couldn’t alter the existing dimensions, we focused on designing a functional yet inviting space. Given its location just off the main living area, we incorporated lower storage cabinets and a built-in bench, offering both practical storage and a cozy seating area with views through the floor-to-ceiling windows.

During construction, we encountered a challenge: the wall was out of plumb and not square, causing the pre-cut wood slats to misalign. To stay on schedule and avoid material waste, we adapted the design onsite, reworking the layout to fit the existing conditions. One key adjustment was relocating the cabinets to accommodate a warped corner, which allowed us to create custom-angled shelving that fit seamlessly within the irregular space. This experience underscored the importance of making quick, thoughtful decisions in the field when plans meet real-world conditions.

Row House 02

Ponderosa Pathway

At the start of our final year, we were challenged to identify a specific biome and environmental issue within Arizona to serve as the foundation for a semester-long design project. Given Arizona’s diverse landscape, I was particularly drawn to forested regions and chose to study the Coconino National Forest surrounding Flagstaff.

During my research, I discovered that Flagstaff faces a significant drug and alcohol abuse crisis, contributing to high rates of hospitalization and mortality. This insight shifted my focus toward designing a combined inpatient and outpatient rehabilitation center that could serve the community while being integrated into the healing environment of the forest.

I identified a site at the edge of the Coconino Forest, just off Lower Coconino Avenue. The location offers both seclusion and accessibility—set back far enough to avoid the distractions of city life, yet still conveniently close to downtown for ease of access. After selecting the broader area, conducted a thorough site analysis and ultimately chose a level clearing atop a nearby ridge, which provided an ideal foundation for a campusstyle layout tailored to the needs of the rehabilitation center.

My research focused on how architectural design can support mental health and healing. After visiting several rehabilitation centers across Arizona, I identified key spatial and material strategies that foster recovery. This exploration shaped the heart of my project: Ponderosa Pathways, a hybrid inpatient and outpatient rehabilitation center in Flagstaff.

Recognizing a lack of outpatient options in the area, aimed to create a facility that allows individuals— particularly students from nearby Northern Arizona University—to receive care while maintaining aspects of their daily lives.

The center is constructed entirely from Cross-Laminated Timber (CLT), chosen for both its biophilic benefits and sustainability—utilizing trees cleared from the site itself. Floor-to-ceiling windows in every room maximize natural light and maintain a strong visual connection to the forest.

Pathways between buildings wind gently through the trees, minimizing environmental impact while encouraging a deeper connection to nature—an essential element in the healing process.

Communal Building
Entrance Building - Looking West
Building Section
Reflection Room
Quarters

Thank you

925-708-5532

After completing my education at the University of Arizona and gaining hands-on experience at Onyx Creative and Standard Architecture Design, feel well-prepared—and genuinely excited—to apply my skills in a collaborative, real-world environment.

Please feel free to reach out via email or phone.

look forward to connecting with you. Thank you for your time and consideration.

danielle.breyton@gmail.com

Danielle Breyton

Turn static files into dynamic content formats.

Create a flipbook
Issuu converts static files into: digital portfolios, online yearbooks, online catalogs, digital photo albums and more. Sign up and create your flipbook.