Skip to main content

Portafolio Daniel Guzmán González

Page 1

D A N I E L G U Z M Á N P O R T A F O L I O 2 0 1 9 - 2 0 2 3
DG D A N I E L G U Z M Á N A R Q U I T E C T O E N F O R M A C I Ó N P O R T A F O L I O 2 0 2 3 P A G 2

S O B R E M Í

¡Hola! Mi nombre es Daniel Guzmán González y soy un estudiante de arquitectura apasionado por el diseño innovador y sostenible. Actualmente estudio el pregrado de arquitectura en la Pontificia Universidad Javeriana Cali. Me considero una persona recursiva y adaptable, lo que me ha permitido trabajar en equipo y compartir proyectos con otros profesionales. En cuanto a proyectos aparte de los realizados en la universidad, he tenido la oportunidad de trabajar como asistente proyectual de arquitectos. Todos estos proyectos me han permitido desarrollar habilidades en diseño, planificación, ejecución y liderazgo, que me gustaría poner en práctica en mi trabajo futuro. Durante mis estudios, he tenido la oportunidad de tomar cursos de formación en programas útiles como Photoshop, Illustrator, InDesign, Rhinoceros, Sketchup, Revit, etc. Con estas herramientas, puedo materializar mis ideas y plasmarlas en proyectos concretos. Estoy entusiasmado por el futuro y lo que el diseño puede hacer para mejorar el mundo en el que vivimos. Gracias por visitar mi portafolio y espero poder trabajar contigo en el futuro. ¡Gracias!

P O R T A F O L I O 2 0 2 3 P A G . 3

Biografía

IDIOMAS

Español · Nativo

Inglés · Intermedio Nivel B2

Euskera . Básico PL1

Equipamiento cultural en El Mortiñal

Viviendas en Gabarrari Hondarribia

FORMACIÓN ACADÉMICA

✦ Pregrado en Arquitectura - 2022 - actualidad Pontificia Universidad Javeriana Cali

✦ Grado en Fundamentos de Arquitectura - 2019 - 2022 Universidad del País Vasco

✦ Técnico en Dibujante Técnico - 2019 Instituto Técnico Industrial San Juan Bosco

✦ Bachiller - 2019

Instituto Técnico Industrial San Juan Bosco

Museo El Kano

P O R T A F O L I O 2 0 2 3
ÍNDICE ✦
· · · · · · · · · · · · · · · · · · · · · · · · · · · · ✦
· · · · · · · · · · · · · · ✦
· · · · · · · · · · · · · · · ✦ Edificio
· · · · · · · · · · · · · · · · · · · · ✦
· · · · · · · · · · · · · · · · · · · · · · · · · · · · · · · · · · ✦ Refugio
· · · · · · · · · · · · · · · · · · · · · · · · · ✦ Pergolado Ondarreta · · · · · · · · · · · · · · · · · · · · · · · · · · · · · ✦ Gráficos Illustrator · · · · · · · · · · · · · · · · · · · · · · · · · · · · · · ✦ Hobby · · · · · · · · · · · · · · · · · · · · · · · · · · · · · · · · · · · · · · · · · · Pág. 6 Pág. 7 Pág. 8 Pág. 9 Pág. 10 Pág. 11 Pág. 12 Pág. 13 Pág. 14 P A G 4
Edificio Universitario
residencial en Bergara
de pesca Kalixto
P O R T A F O L I O 2 0 2 3 P A G . 5 D I S E Ñ O D E P R O Y E C T O S A Ñ O 2 0 1 9 H A S T A A C T U A L I D A D DG D A N I E L G U Z M Á N

E D I F I C I O

U N I V E R S I T A R I O

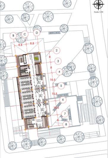
Este proyecto es un edificio universitario concebido como una sede adicional en la ciudad de Cali para la Javeriana Cali. Su diseño innovador destaca por su continuidad espacial tanto vertical como horizontal, permitiendo una conexión natural y fluida entre los diferentes espacios del edificio. Se utilizaron diferentes estrategias de diseño para crear una experiencia de usuario única, como vacíos, materiales y texturas que definieron los diferentes ambientes y facilitaron la orientación dentro del edificio. Es así que este proyecto de edificio universitario es una obra maestra de la continuidad espacial, que permite una conexión natural y fluida entre los diferentes espacios del edificio.

P O R T A F O L I O 2 0 2 3 P A G 6

E Q U I P A M I E N T O

C U L T U R A L E N E L M O R T I Ñ A L

Este proyecto es un centro cultural diseñado para satisfacer las necesidades de la comunidad del barrio El Mortiñal en Cali. El edificio se integra perfectamente en el paisaje, gracias a su diseño que se inspira en la forma de la montaña circundante. El centro cultural destaca por su gran continuidad horizontal, lo que lo convierte en un espacio versátil para diferentes actividades culturales y sociales. Se utilizaron diferentes estrategias de diseño, como la disposición de espacios híbridos, patios interiores y elementos naturales para crear un ambiente agradable y sostenible. En resumen, es un ejemplo de cómo la arquitectura puede integrarse armoniosamente en el entorno natural para proporcionar un espacio funcional y versátil para la comunidad.

P O R T A F O L I O 2 0 2 3 P A G . 7

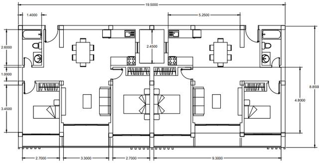
V I V I E N D A S E N G A B A R R A R I H

D A R R I B I A

Este proyecto se trata de un complejo residencial pensado especialmente para familias con niños pequeños. Ubicado en Gabarrari Hondarribia, se buscó diseñar un espacio central que fuera seguro y acogedor para los niños, y para ello se optó por ubicar las fachadas principales hacia el exterior y las barras edificatorias en el interior del complejo, creando un espacio cerrado y protegido del ruido y la contaminación del entorno.

Además, se consideró la protección contra las rafagas heladas que ocurren la mayor parte del año en la zona, diseñando el espacio central como un patio que se encuentra resguardado de los vientos, pero al mismo tiempo permite la entrada de luz y aire. De esta manera, se logró una distribución adecuada de los espacios y una integración armónica con el entorno natural, creando una atmósfera agradable y confortable para las familias residentes.

P O R T A F O L I O 2 0 2 3 P A G 8
O N

E D I F I C I O

R E S I D E N C I A L

E N B E R G A R A

Para el proyecto de viviendas residenciales para personas mayores en Bergara, se buscó una conexión emocional con su pasado y se tomó como referencia la arquitectura típica de la época franquista.

El objetivo fue recrear un ambiente familiar y acogedor, pero con las comodidades y facilidades modernas necesarias para mejorar la calidad de vida de los residentes. Se cuidó cada detalle en la selección de materiales y acabados para generar la sensación de hogar y tranquilidad que se buscaba. Además, se priorizó la accesibilidad y la seguridad de los residentes, con la disposición de espacios amplios y adaptados a sus necesidades. El proyecto buscó un equilibrio entre la nostalgia y la modernidad, para crear un hogar confortable y seguro para los ancianos que habitan en Bergara.

P O R T A F O L I O 2 0 2 3 P A G 9

M U S E O

E L K A N O

En este proyecto, el objetivo principal era diseñar un museo que estuviera completamente integrado en el tejido urbano y patrimonial del puerto de El Kano. Se buscó generar un edificio que tuviera un carácter distintivo y atractivo para los visitantes, pero que al mismo tiempo estuviera en armonía con la arquitectura y construcciones vecinas.

El museo fue concebido para albergar elementos históricos y culturales relacionados con los viajes marítimos realizados en la región, con una especial atención a las técnicas de navegación y a las embarcaciones que se utilizaban en la zona. Para ello, se diseñaron diferentes áreas expositivas, cada una de ellas con una temática específica y con un diseño que respetaba el contexto histórico y cultural de la zona.

P O R T A F O L I O 2 0 2 3 P A G . 1 0

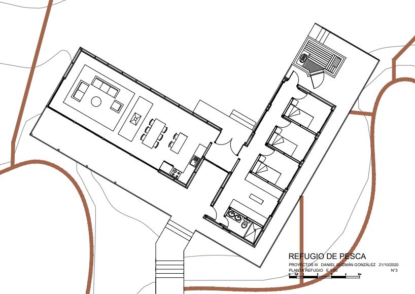
R E F U G I O

D E P E S C A

K A L I X T O

El proyecto del refugio de pescadores en Kalixto busca brindar un espacio seguro y cómodo para aquellos que se dedican a la pesca en la región. La arquitectura del refugio busca integrarse en el entorno natural, utilizando materiales y colores que armonicen con el paisaje. Se busca crear un ambiente acogedor y funcional, donde los pescadores puedan relajarse y disfrutar de la naturaleza en su tiempo libre.

El diseño del refugio está pensado para satisfacer las necesidades específicas de los pescadores, ofreciendo espacios adecuados para el almacenamiento de sus herramientas y equipos, así como para la preparación y el cocinado del pescado. Además, se han previsto espacios para el descanso y el disfrute de la vista del mar y del paisaje natural.

P O R T A F O L I O 2 0 2 3 P A G . 1 1

P E R G O L A D O

O N D A R R E T A

El Pergolado de Ondarreta es un proyecto que busca mejorar la experiencia de la comunidad y turistas en la calle Ondarreta mediante un sistema de estructuras que se despliegan de manera lineal en la zona. Estas estructuras están diseñadas para albergar diferentes actividades, desde comercio hasta exposiciones y presentaciones culturales. El objetivo es enriquecer la actividad y economía del barrio y mejorar la experiencia de los visitantes. La idea es que este proyecto contribuya a fortalecer la identidad de la zona y a promover su desarrollo económico y cultural.

P O R T A F O L I O 2 0 2 3 P A G 1 2

G R Á F I C O S

I L L U S T R A T O R

Este proyecto se enfoca en la creación de ilustraciones para enriquecer la representación gráfica de algunos planos de proyectos previamente realizados. Estas ilustraciones fueron creadas utilizando Adobe Illustrator, aprovechando los conocimientos previos en la aplicación de esta herramienta. El objetivo de estas ilustraciones es presentar de manera más clara y atractiva la información contenida en los planos y así facilitar la comprensión y comunicación del proyecto a los clientes y usuarios. Las ilustraciones se adaptan al estilo y tono general del proyecto, y buscan resaltar aspectos clave del mismo mediante el uso de colores, sombras, perspectivas y otros elementos gráficos.

P O R T A F O L I O 2 0 2 3 P A G . 1 3

H O B B Y

En cuanto a mis pasatiempos, me considero una persona creativa y talentosa en varias áreas. Disfruto de la pintura al óleo, el dibujo y la escultura, dandome amplitud en el manejo de diferentes materiales y técnicas artísticas. También tengo un fuerte interés particular por la ilustración digitales, me gusta crear fanarts en este medio, siendo esta actividad la que más disfruto realziar actualmente.

En cuanto a la música, disfruto tocar tanto el piano como la guitarra, ya que tengo una sensibilidad para la melodía y la armonía.

La música y el arte son dos formas de expresión muy poderosas y personales que tengo para desestresarte, disfrutar y relajarme durante mi tiempo libre.

P O R T A F O L I O 2 0 2 3 P A G 1 4
DG D A N I E L G U Z M Á N Contacto: 315 826 9389 danielguzman898@javerianacali.edu.co

Turn static files into dynamic content formats.

Create a flipbook