SENSIBILITÀ E SPAZIALITÀ
ARCHITETTO E
INTERIOR DESIGNER
Daniel Felipe Carrillo Estefan - Architect & Interior Designer
Cellulare: +39 3519082089
Mail: danielcarrillo3000@gmail.com
Master: Interior Contract Design
Milano, Italy
![]()
ARCHITETTO E
INTERIOR DESIGNER
Daniel Felipe Carrillo Estefan - Architect & Interior Designer
Cellulare: +39 3519082089
Mail: danielcarrillo3000@gmail.com
Master: Interior Contract Design
Milano, Italy
Ogni spazio racconta una storia, e ogni progetto è una sinfonia di creatività e passione. Sono Daniel Carrillo, architetto di Bogotá, Colombia. Ho completato un Master in Interior Contract Design presso l’Istituto Marangoni di Milano, dopo aver studiato alla Pontificia Universidad Javeriana in Colombia. La mia passione per la luce, le texture e l’organizzazione degli spazi mi spinge a esplorare idee innovative. Con esperienza in diversi programmi di design, creo esperienze immersive che uniscono forma e funzione. Mi dedico all’ottimizzazione degli spazi e ti invito a scoprire il processo trasformativo dietro ogni progetto.



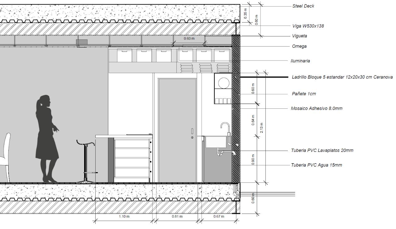
Proposta In an effort to better understand the space, a transversal section of the kitchen (170 m² apartment) was made, showing an open area with good lighting. The central island includes stoves, drawers, and bar stools. Behind the island, the cabinets have frames for glasses and plates. This side also includes the sink and structural details like walls, beams, and steel deck.




g
marcos correspondientes donde se guardan los vasos y platos como indica el dibujo. En este mismo lado ubic correspondientes (Corte en detalle, tuberÃas, achurrado de muros) y en este mismo lugar se enseña toda la parte e como lo es los muros, el detalle del perfil viga, el steel deck y el acotamiento de segmentos.
En busqueda de entender mejor el espacio se realizó el corte traversal de la cocina (apto 170 m2) que es un espa donde se encuentra una isla en el centro con los fogones, cajones y sillas de tipo bar. Posterior a la isla se hubic marcos correspondientes donde se guardan los vasos y platos como indica el dibujo. En este mismo lado ubic correspondientes (Corte en detalle, tuberÃas, achurrado de muros) y en este mismo lugar se enseña toda la parte e como lo es los muros, el detalle del perfil viga, el steel deck y el acotamiento de segmentos.
En busqueda de entender mejor el espacio se realizó el corte traversal de la cocina (apto 170 m2) que es un espa donde se encuentra una isla en el centro con los fogones, cajones y sillas de tipo bar. Posterior a la isla se hubi marcos correspondientes donde se guardan los vasos y platos como indica el dibujo. En este mismo lado ubic correspondientes (Corte en detalle, tuberÃas, achurrado de muros) y en este mismo lugar se enseña toda la parte como lo es los muros, el detalle del perfil viga, el steel deck y el acotamiento de segmentos.


Progetto Moonstone Missoni Tower
Mentori Carlo Colombo / Massimiliano Ferrari
Brand Identity
Patterns

Ispirato al delicato gradiente dell’acqua, dal turchese profondo al beige sabbia, creando una serena e armoniosa fusione di colori.






I motivi Missoni sono abilmente combinati per creare uno spazio complesso ma coerente. Motivi audaci e colorati si armonizzano con serene tonalità di blu turchese e beige sabbia, dando vita a un’esperienza visiva dinamica e affascinante.
Progetto Moonstone Missoni Tower














Sezione Longitudinale

Sezione Trasversale








Versatility
Sustainability
Functionality

Glamour Allure for Poltrona Frau
Programmi Archicad (Piano 2D), Forger ( Modellazione 3D), Lumion ( Render)
Proposta di divano cercando di integrare in un unico elemento diversi tipi di esperienze. Al centro, un’esperienza più di gruppo, mentre ai lati esperienze più individuali.

Prototipo Architettonico Di Alloggio A Cartagena 1.50
Programmi Archicad (Piano 2D), ( Modellazione 3D), Lumion ( Render)
PLANTA PISO 1
Escala Dibujo: 1:50




AXONOMETRIA
Volumetria










CORTE LONGITUDINAL / CORTE COLUMNA N
DETALLE

Proposta un prototipo architettonico di alloggi a cartagena, colombia, utilizzando materiali e tecniche tradizionali della zona. è stato impiegato un piano 2d, incorporando diversi tipi di linee, texture e ortogonalità nei segmenti. nelle visualizzazioni sono stati utilizzati materiali organici come juncos, enea, e la palma di iraca. l’intenzione era quella di creare un’architettura sostenibile, abbracciando l’uso di elementi naturali per connettersi con l’ambiente.
AXONOMETRIA
Volumetria
AXONOMETRIA
Volumetria




Prototipo Architettonico Di Alloggio A Cartagena
Nel progetto si è cercato di concentrarsi sulla materialità , dove fossero spiegati e riconosciuti ciascuno dei materiali utilizzati, i sistemi costruttivi, le superfici e come il terreno e la posizione influenzano questi materiali. Generando una sezione come questa, si permette di identificare l’organizzazione degli spazi per capire cosa c’è internamente, strato per strato.
Vigas en madera Teca- cumarú. Producidas en el caribe (7.62 cm x 15.24 cm x 2m.
Malla Aislante Teja de Ceramica
Listones de madera
Muros de Tierra ( Tierra compactada)
Sistema estructural Interno
Columnas Teca/ Cumarú
Soporte Placa Madera Teca
Recubrimiento de Placa / Microcemento
Malla Aislante
en Concreto







Prototipo Archittettonico




















Sezione Longitudinale. Scala 1:50 Programmi Archicad (Piano 2D)





