BRUBAKER selected works
kent state CAED 2020 - 2024
STUDIO
PROFESSIONAL
![]()
kent state CAED 2020 - 2024
STUDIO
PROFESSIONAL
Spring 2024 // integrated design studio
This project provides the city of Los Angeles with an integral location that creates a space for multi use recreational sporting activities. An engineered open air outdoor pavilion which can house basketball games and other mixed used activities, is what greets the visitor. This pavilion take advantage of the climate of Los Angeles while providing shade from the summer sun. The two structures operate separately, not touching, joined together with their spatial languages and the tension created between the two structures being close to each other. Throughout the project, a language of sleek sharp geometries provide those using or passing a sense of curiosity as each facade provides a new play with the geometries.
The project serves as a community hub that not only hosts organized basketball games, but movie nights, and public events like concerts or ceromonies as well. The structure itself utilizes a steel cantilever form that is anchored in three corners, while suspended in the other. this ensures on unobstructed view while entering the site. The shell of the pavilion uses aluminum panels, along with an ETFE roof that still allows diffused light to illuminate the court.
Location: Los Angeles, CA
Instructor: F. William Lucak
Project type: Urban Sports Complex
Collaborator: Aaron Rombach
Showcased in 2024 Kent State CAED IDS Exhibition





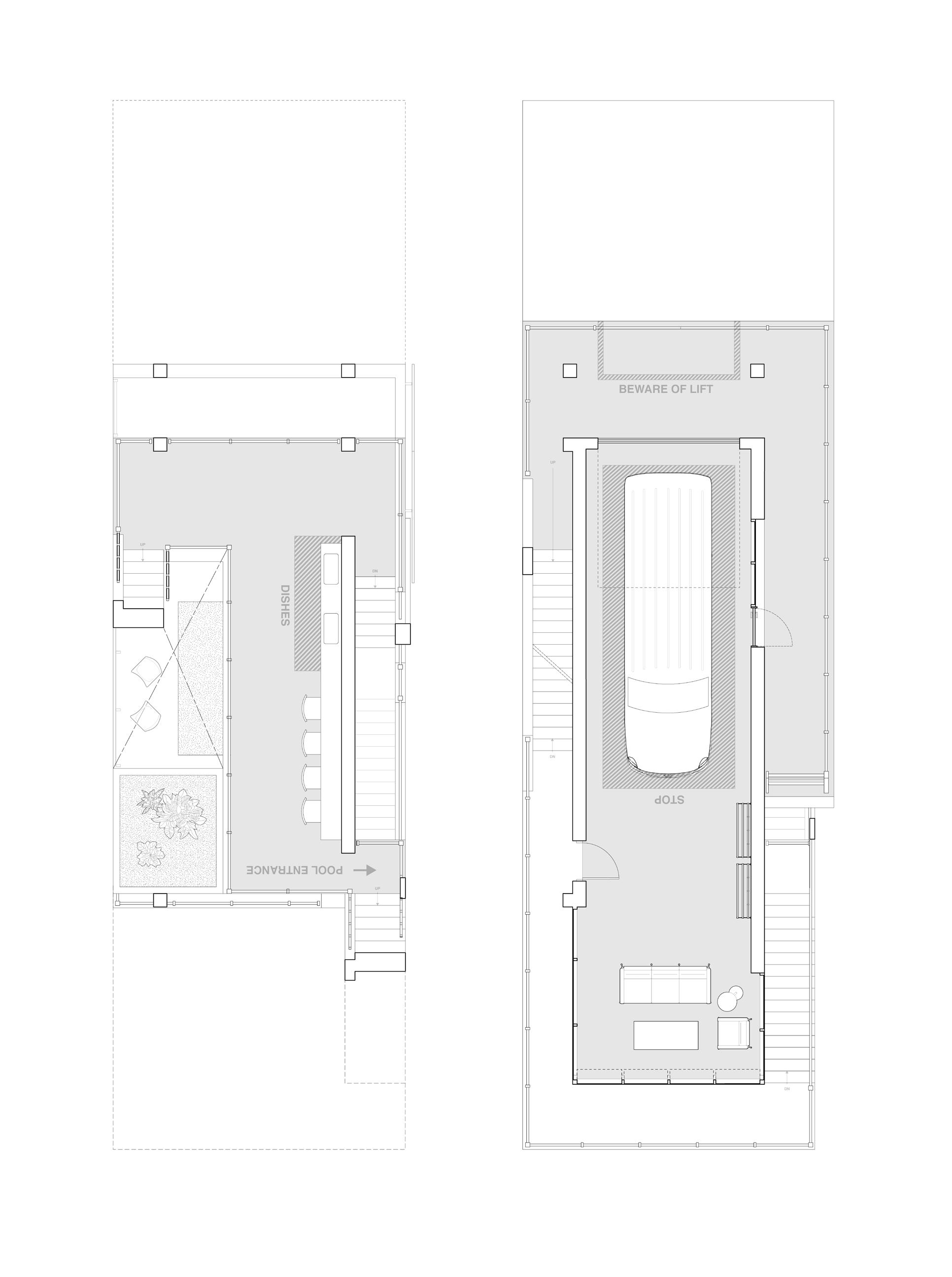
721 LA has an “L” shape configured layout, where the pavilion resides in the negative space of the form. One can enter from both the south, via an exterior underpass, and the east via an outdoor corridor flanked by the structure and pavilion. Upon entering the building, one is greeted with the towering climbing wall just beyond
the lobby. Also located on the first floor is the largest multipurpose space along with the main chaning rooms. The second level houses the raquetball courts and offices, the third contains an additional multipurpose space; finally, the fourth accomodates the rooftop terrace.





Spring 2025 // graduate design studio (case study)
Part one of this design charrette focuses on the analysis, fabrication, and speculative transformation of existing or conceptual ocular-centric architectural projects. The project’s formal, material, and environmental strategies are examined before being placed within an invented synthetic landscape defined by unique geological, hydrological, and ecological conditions. This process integrates design speculation with technical precision, involving the production of models, renderings, and animations that explore spatial and atmospheric effects. By situating these “visual apparatices” within a new contextual framework, the exercise investigates its original design intent and potential adaptations within an ecologically and materially responsive environment.
This model-focused exploration of Neil Denari’s No Mass House, emphasizes precise fabrication and spatial analysis within a monochromatic, sandy landscape. The terrain is defined by smooth, undulating forms in subtle sandy tones, creating a minimal yet tactile environment that harmonizes with the house’s geometry. Lightweight, white vegetation is introduced as an ethereal counterpoint, reinforcing a sense of abstraction while maintaining a connection to ecological conditions. The model is designed for viewing from multiple perspectives, allowing shifts in perception as the architecture interacts with its speculative setting through variations in scale, depth, and atmospheric effects.
Location: Somwhere with sand
Instructor: Jon Yoder
Project type: Synthetic Landscape Readaption
Contributor: Neil M. Denari Architects (NMDA)

rendering // first floor “window” view



No Mass House // unassembled isometric of “windows”


No Mass House // assembled isometric of “windows”



Fall 2024 // graduate design studio
Participating in the 2025 Biennale d’Architecture et de Paysage d’Île-de-France, this work is contributed to a project titled “QUATRE DEGRÉS CELSIUS ENTRE TOI ET MOI” (“Four Degrees Celsius Between You and Me”), curated by Philippe Rahm and Sana Frini. The exhibition will explore the potential transformation of Île-de-France’s climate by 2100 into conditions resembling subtropical regions like Mexico or the Caribbean due to climate change. This work focuses on researching tropical housing typologies, technologies, and materials to address extreme temperatures, using housing as a testing ground for innovative architectural responses to rising heat. The project, if selected, will culminate in an exhibition from May 15 to July 13, 2025, at the École Nationale Supérieure d’Architecture de Versailles, where two students will present digital meshes, full-scale props, animations, and projections, reimagining architecture as a dynamic response to global environmental shifts.
Location: St. Thomas, USVI + Paris, France
Instructor: Iván Bernal
Project type: Urban Residential
Collaborator: N/A



// progress work
This project began by generating a conceptual image of a rocket production facility using AI, then refining and constructing elements of the image digitally. Inspired by this industrial context, developed a smaller-scale residential design, drawing on vernacular architecture from St. Thomas, USVI, and Paris, France, to address both hot and cold climates (shown above). The design integrated operable systems commonly used in campers, while maintaining the compact footprint of a single-car garage.
compacted plan

expanded plan
























The camper-inspired approach evolved into a larger-scale concept—a vertical urban campground.The structure features concrete waffle slabs with dedicated spaces for campers, which are placed via a lift system. These adaptable spaces allow occupants to set up camp and immerse themselves in the urban environment, blending the intimacy of camping with the vibrancy of city exploration.

Spring 2023 // third-year design studio
Just under half of the total area of Skid Row is used for transportation, being streets, sidewalks, and parking lots. This idea imagines to rezone the streetscape and give portions of, or entire, streets back to the people. Scaling down the width of the road creates more space for temporary housing and communal areas on the urban block. Skid Row is very rich in aid for the homeless population; however, their only option is to occupy the public spaces of the area, more specifically near the buildings that provide food and services. Reimagining the streetscape would create a new infrastructure for the homeless population while supplying a solution for transitional, temporary, or nonmarket housing.
Location: Skid Row, Los Angeles, CA
Instructor: Taraneh Meshkani
Project type: Affordable Housing // Urban Design
Collaborator: Jarrett Cromling

// one-lane iteration

// two-lane iteration
1

4

2

5

3

6

// two-lane reimagination progression
Simple modular housing units are prefabricated off-site, allowing for efficient construction and quality control before being transported to the site by cranes. Each module is designed to be customized and adaptable, enabling various configurations that respond to different spatial needs and urban contexts. As many of these modules are arranged in clusters, they begin to form unique micro-communities, with shared courtyards, walkways, or staggered volumes that encourage interaction and individuality. Over time, this modular approach fosters a dynamic urban identity, as residents personalize and adapt their living spaces within the flexible architectural framework.

// example floor plan of modules




// perspective render

// isometric line drawing
PM2.5 05
Fall 2022 // second-year design studio
This project explores when the boundaries between the natural and the mechanical dissolve, creating a hybridized system of coexistence. The exposed HVAC infrastructure, often hidden in traditional design, becomes a celebrated element — functioning as the “organs” of a structure while coexisting with natural elements like trees and greenery. By integrating these systems, the design reflects the realities of the Anthropocene, an era where human intervention and natural processes are inextricably linked. The juxtaposition of industrial and organic components challenges the conventional perception of infrastructure, positioning architecture as a dynamic ecological system that supports both human comfort and environmental regeneration. This speculative vision redefines the role of mechanical systems, not as mere utilities but as integral, visible, and performative components of a living, breathing architecture.
Location: Anywhere
Instructor: Danny Wills
Project type: Research // Experimental
Collaborator: N/A


// initial concept collage
// site plan
The floor plan and overall form is influenced from duct-like forms of HVAC systems, creating an interconnected yet distinct separation between two buildings. A straight path of grating, reminiscent of an air return vent or service corridor, divides the structures while maintaining visual and functional continuity. The lower building serves as a flexible workshop or personal-use space, embodying an industrial aesthetic with exposed structural elements that echo the mechanical inspiration. The upper building, intended as the primary two-floor living space, follows a similarly structured flow, allowing for adaptable interior configurations. The absence of fixed furniture reinforces the modularity of the design, emphasizing the malleability of space while maintaining the infrastructural essence of HVAC systems as both form and function.





// perspective render
personal // adaptive reuse
This small-scale project envisions the transformation of a singlestory 1953 fire station into a conceptual restaurant, blending adaptive reuse with contemporary design strategies. The proposal centers on a complete interior redesign, reimagining the open, utilitarian space of the firehouse into a dynamic dining experience while preserving elements of the station’s industrial character. Structural renovations and the replacement of outdated glazing with modern solutions allow natural light to redefine the atmosphere, highlighting the interplay between old and new materials. The design emphasizes spatial fluidity, with areas for communal dining and intimate seating zones that respond to the building’s unique proportions. This adaptive reuse extends to a former YMCA site, merging two distinct typologies into a cohesive, revitalized space that respects the fire station’s historical identity while introducing a bold, modern culinary destination.
Location: Waterville, OH
Project type: Experimental // Restaurant
Collaborator: N/A



// rendered section