Skip to main content

My first document

Page 1

PORTAFOLIO

DANIELA URBINA ROSERO ESTUDIANTE DE ARQUITECTURA. 2021-2023

Hola! Mi nombre nombre es Daniela Urbina, actualmente curso el pregrado de Arquitectura en la Ponficia Universidad Javeriana Cali. Me considero una persona creativa y con facil adaptabilidad a los cambios, tengo buen desempeño en trabajos colaborativos y liderazgo. He realizado proyectos de vivienda unifamiliar y multifamiliar, equipamentos urbanos y equipamentos educativos. Me apasiona el diseño y la innovación en la arquitectura y el mundo.

Gracias por visitar mi portafolio.

Información de contacto

Celular: 3146656927

Correo: danielaurbina@javereianacali.edu.co

FORMACIÓN ACADEMICA

- Instituto San Fransisco de Asís (2007-2013)

Básica primaria

- Sagrado Corazón de Jesus Bethlemitas (2014-2020)

Bachiller Academico

- Brighton English Center (2019-2021)

International Certification Of Advanced English

- Pontificia Universidad Javeriana Cali (2021-Actualidad)

Pregrado en Arquitectura

PROGRAMAS

-Autodesk Autocad

-Autodesk Revit

-Sketch Up

-Adobe Illustrator

-Adobe Photoshop

IDIOMAS

-Español (Nativo)

-Ingles (C1)

-Italiano (A1)

-Portugues (A1)

V PERFIL DEL ESTUDIANTE
INDICE 01 ELEMENTOS BASICOS 02 VIVIENDA MULTIFAMILIAR LA FLORA 03 CENTRO CULTURAL NACIONAL 04 CAMPUS HIBRIDO UNIVERSITARIO 05 RENOVACIÓN URBANA JORGE ISAAC 06 ILUSTRACIONES
1

ELEMENTOS BASICOS

A. BALDOSA

La baldosa busca introducirnos a la geometría de forma bidimencional, explorar las formas, angulos y armonias atraves de lineas. También fue la inducción al circulo cromatico y la armonia de las paletas de color, en este caso fueron colores calidos.

D. CELOSIA

La celosía busca introducirnos a la geometría de forma tridimencional, hablamos de formas constituidas a partir del cuadrado y la variación de angulos.

Como primer paso realizamos un boceto que permita cierta exploración geometrica.

Posteriormente se identifican los principios y elementos que componen la propuesta.

- Diagonales

- Medias

- Distancias

La combinación de 4 modulos de baldosa es capaz de crear formas mas compuestas y diferentes resultados.

EL MODULO AGRUPACIÓN

B. ARQUITECTURA SENSORIAL

Se busca ilustrar una emoción atraves de un concepto o forma, en este caso se representa la compañia con figuras simples y colores neutros.

C. MALLA DE 9 CUADRADOS

Se exploran los ordenes espaciales atraves de una malla de 9 cuadrados, en este ejercicio se manejo el órden de axialidad.

Se compone un modulo de forma tridimencional y se explora los llenos y vacios, al igual que el grosor y textura de los materiales.

Finalmente, se desarrollan 4 modulos que en su agrupación permiten una tolerancia adecuada del sol y aire.

01
2

VIVIENDA MULTIFAMILIAR

UBICACIÓN: CALLE 47 NORTE-AVENIDA 4BN

BARRIO LA FLORA, CALI, COLOMBIA.

El Proyecto en La Flora es una vivienda multifamiliar localizada en uno de los sectores mas exclusivos de Cali. El edificio ofrece una experiencia de vivienda junto a la tranquilidad del parque La Flora y las zonas comerciales ubicadas a menos de 5 minutos del proyecto.| Ofrece apartamentos simples y duplex de 3 y 4 habitaciones, zonas comunes para todas las edades y usuarios.

Calle 47 norte

ZONIFICACIÓN

Calle47norte Avenida4BN

Comercio

Apartamentos secillos (2-3 hab.)

Duplex (5 hab.)

Duplex (3 hab.)

Duplex (4 hab.)

02
Avenida 4BN 3
MEMORIA

FACHADAS

FACHADA PARQUE LA FLORA CORTE TRANSVERSAL C1. FACHADA AVENIDA 4BN CORTE LONGITUDIONAL C2.
4

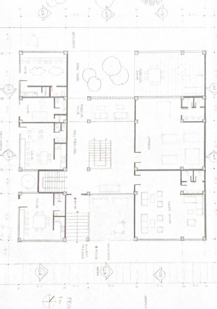
PLANTAS

PLANTA PRIMER PISO ESC. 1:100 Planta Segundo Piso Esc. 1:00 Planta Tercer Piso Esc. 1:00 Planta Cuarto Piso Esc. 1:00
5V

Calle5oeste

CENTRO CULTURAL EL NACIONAL

UBICACIÓN: Calle 5 Oeste, Carrera 18, Barrio El Nacional, Cali, Colombia.

El Equipamento Urbano esta ubicado al noroeste de la ciudad, el proyecto busca crear espacios integrales de educación, recreación y culltura para todos los usuarios.}

Mantiene una planta publica que fortalece la seción publica del barrio y la actividad urbana, genera zonas comerciales que mitigen el efecto invasivo del comercio informal y crea una circulación serpenteante que mantenga una relación constante interior-exterior.|

ESTRATEGIAS DE IMPLANTACIÓN

Se toma como referente: La Embajada de Paises Bajos - Rem Koolhas

Conceptos a implementar:

Carrera 18

A) Circulación que envuelva el contexto.

Calle5 oeste

Carrera 18

B) Paramentarse con los vecinos y dar continuidad a la manzana.

03
6
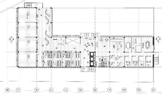
PLANTA PUBLICA ESC. 1:1000 7
CORTE POR FACHADA ESC. 1:200 CORTE TRANSVERSAL ESC. 1:250
8
FACHADA CRRA 18 ESC. 1:250

CAMPUS HIBRIDO UNIVERSITARIO

UBICACIÓN: Calle 5ta, carrera 44, Barrio Versalles, Cali, Colombia.x

Crra44

El campus hibrido es un proyecto que busca generar espacios para cultura, descanso y educación, generando espacios integrales para sus usuarios y fomentando los nuevos comportamientos de coworking.

El proyecto ofrece una planta publica que se mantiene en dialogo con la ciudad y la calle 5ta, provee espacios de teatrino, exposiciones al aire libre y zonas de libre permanencia. Las circulaciones interiores y exteriores estan en constante dialogo con los cerros.|

ESTRATEGIAS DE IMPLANTACIÓN

tipología barra

2. fragmentar, permitir conexiones urbana

3. conectar para una doble planta publica

4. agregar un volumen

5. agregar un volumen de caracter privado

6. retranqueos y cubiertas utiiles.

04 CALLE 5T A
9
PLANTA PUBLICA ESC. 1:250 10
PLANTA ZONA HIBRIDA ESC. 1:250 PLANTA AULAS (TIPO) ESC. 1:250 PLANTA AULAS VARIACIÓN ESC. 1:250
11
PLANTA AULAS VARIACIÓN ESC. 1:250 FACHADA CALLE 5TA
12
FACHADA CALLE 5TA

RENOVACIÓN URBANA EN JORGE ISAAC

UBICACIÓN: Calle 26, carrera 6ta, Barrio Jorge Issac, Cali, Colombia.

La renovación urbana es un proyecto que busca conectar el barrio con el corredor verde, generar densificación y calidad de vivienda y crear relaciones sensibles a nivel de barrio y ciudad que sean capaces de mitigar las problematicas sociales del sector.

Se utilizan tipologías moleculares, bloque adosado y bloque corredor para generar oferta de vivienda vis y no vis desde los 55m2.

ESTRATEGIAS DE IMPLANTACIÓN

1. Conservar - acondicionar edificios

2. Escalonar el proyecto

Vivienda

Zonas comunes

05 EALLC 26 CRRA6
LECAL 26 CRRA6
Comercio
13
3. Zonificar por niveles
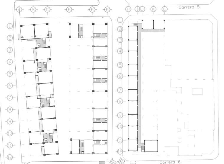
PLANTA PUBLICA ESC. 1:500 14
PLANTA DE TRANSICIÓN ESC. 1:500
TIPO VIS TIPO NO VIS TIPO A TIPO B TIPO A TIPO B TIPO C TIPO D ESC. 1:100 ESC. 1:100 15
PLANTA TIPO ESC. 1:500
06 7 16
ILUSTRACIONES
“CASA EN LAS PALMAS” Tecnica: acuarela “CASA EN LA LAGUNA” Tecnica: lácpices y marcador “LAGO HOUSE” en Illustrator “LAGO HOUSE” en Illustrator
7 17 “LAGO HOUSE” en Illustrator “LAGO HOUSE” en Illustrator
“VERDE” en Photoshop
“CASA VERANO” en Photoshop

PORTAFOLIO

Turn static files into dynamic content formats.

Create a flipbook
My first document by Daniela Urbina - Issuu