

![]()


architecture & real estate
portfolio 2025








danela_pedroza@berkeley.edu I +1 786 769 5152 I linkedin.com/danielapedrozag
Berkeley CA, 2022 - May 2025
University of California Berkeley Master of Architecture
Certificate in Real Estate Development
Munich Germany, 2017 - 2021
Technical University Munich Bachelor of Architecture
Barcelona Spain, 2019 - 2020 Universitat Politècnica de Catalunya Year Abroad
UC Berkeley, 2023 Design Process Award skills
Languages English, Spanish, German
Software
Archicad, Rhino, Photoshop, Illustrator, InDesign, Revit, Figma
Cupertino CA, May 2023 - Aug 2022
Apple, 3D Visual Merchandise Innovation Intern Product Design I R&D I Project Managment
Remote, Sep 2023 - Present Harvest, Marketing Social Media Intern Graphic Design I Clean Tech Start Up I Community Building
Munich Germany, Feb 2022 - Aug 2022 Westwing, Innovation and Design Intern Interior Design I Sustainability Management I Conceptualization
Munich Germany, Oct 2020 - Jan 2022 Henn, Community Engagement Architecture I PR I Organization`

Munich Germany, Aug 2020 - Nov 2020 Pool Leber Architects, Design Intern Architectural Design I Urban Design I Visualization
Berkeley CA, Jan 2024 - Present University of California Berkeley, Graduate Student Instructor Communication I Leadership I Collaboration





Hygiene Point. Ferry Building. Exploring Monumentality.
Social Architecture I Innovation Duogong in Form and Scale Facade Exploration, Materiality




Munich, Germany

San Francisco, California
Construction Drawings Arcade, Storage and Gardens








Water Accesibility I Social Architecture
Technical University Munich
Prof. Francis Kere
In Collaboration with: Laura Schmidel
































Axonometric View Interior View Section Model of Construction












































3. Usage of water
water used for washing room, hand washing and water collection


4. Recollection of water Detail A

Above: Detail A



























in Form and Scale
UC Berkeley
Prof. David Jaehning
In Collaboration with: Sascha Fawaz







Elevation from Dock 1/8” - 1’-0”
Elevation from Dock 1/8”-1’0”




























Cross Section 1/8”-1’0”






Facade Exploration, Materiality
Technical University Munich
Prof. Stephen Bates, Bruno Kucker
In Collaboration with: Laura Schmidel, Oyko Tok

























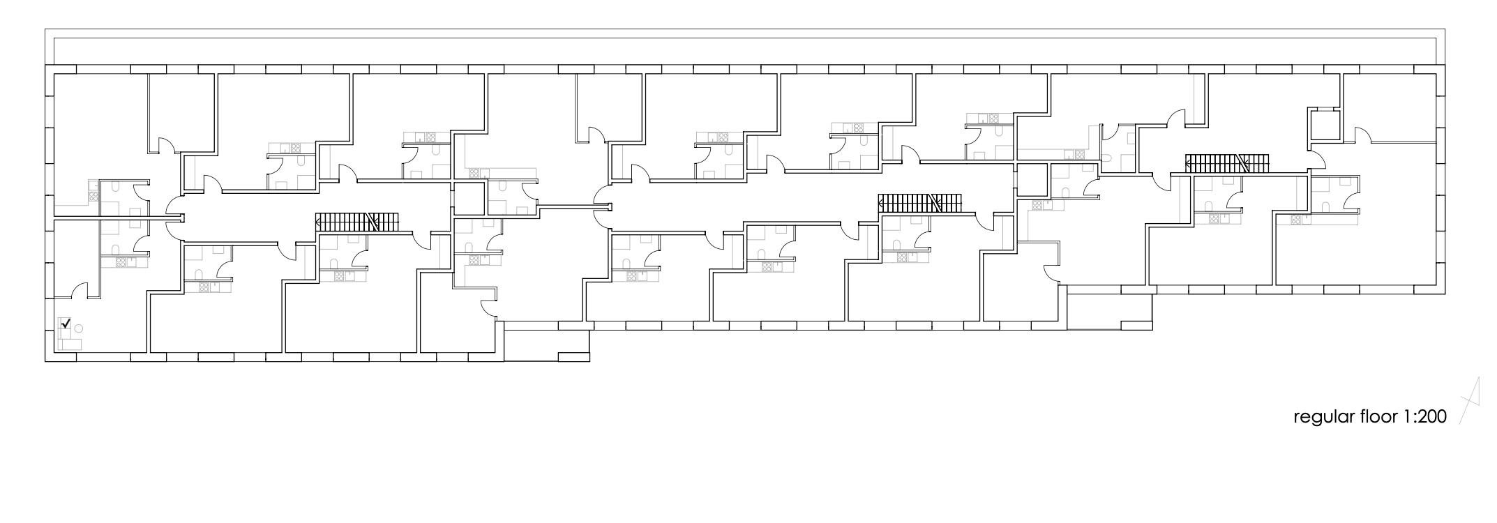
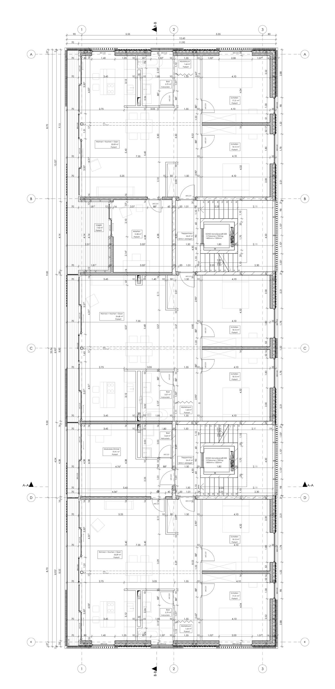
Construction Drawings I Wood Construction
Technical University Munich
Prof. Fabian Musso
In Collaboration with: Laura Schmidel, Oyko Tok







Above: Long Section 1:50, Below: Short Section 1:50




San Francisco, California





Annexed Space
UC Berkeley
Prof. Georgios Eftaxiopoulos















After: Transformation through Community Storage Streets become space for community gadering, houses have space for living


