Skip to main content

Daniela Mita Arch Portfolio 2023

Page 1

PORTFOLIO Daniela Mita

Introduction

Welcome to Daniela Mita’s Academic Portfolio.

Currently I am enrolled In Drexel’s Part time Architectural Program and anticipating to graduate in 2025. This portfolio is selection of projects that showcase and give insight into my passion for architecture.

This projects feature selected plans, sections, details and photo realistic renderings, physical models and a few of the hobbies that I developed over the years.

I am often inspired from nature, buildings that got stuck into my mind and human experience both positive and negative.

Creative Village

ARCH 482

Studio 4B

Winter 2023

CREATIVE VILLAGE PROJECT OFFERS TO THE MEMBERS OF THE COMMUNITY INCLUSIVE, SUSTAINABLE AND ARTISTIC ENVIRONMENT FOR A THRIVING AND SAFE LIFE. THIS IS A COMMUNITY / PEOPLE CENTERED SPACE. AS ALL THINGS IN LIFE SOONER OR LATER COME FULL CIRCLE, THIS PROJECT REPRESENT AND PROMOTE EXACTLY THE SAME METAPHOR, IN THE SAME TIME THE CIRCLE IS ENVISIONED AS A SAFE, NURTURING SPACE WHERE ALL PARTICIPANT COULD EXPLORE THEIR CREATIVITY AND SUPPORT OTHERS IN THEIR JOURNEY.

STREET PATH PROMENADE
REFINERY SITE CREATIVE VILLAGE COMMUNITY CORE

COMMUNITY GARDEN & FARM

ENTERTAINMENT

ENVIRONMENT & SUSTAINABILITY

OUTDOOR LITERACY PROGRAM

ART SPORTS
CORE

ARTISTS RESIDENCES & STUDIOS

SCHOOL

ENVIRONMENTAL INSTITUTE

ART GALLERY CONCERT & EVENT HALL

LIBRARY

COMMUNITY CENTER

WELLNESS CENTER

LITERACY CENTER

The Meeting Point

learn through watching learn through exploring

learn through touching

KEY PLAN

1 2 3 4 5 6 7 8 9
1. PROTECTED WILD LIFE AREA & ELEVATED BOARD WALK 2. MEADOW 3. BEEHIVES 4. BEEHIVES SUPPORT PAVILION 5. BIKE PARKING 6. OBSERVATION TOWER 7. PLAYGROUND 8. PICNIC AREA
Spring
9. PARKING
2022 ARCH 383
3C protected wildlife area
Studio

HIGHT: 135 FT

CORE DIAMETER: 30 FT

STAIRWELL WIDTH: 10 FT

TOP FLOOR DIAMETER: 80 FT FIVE OBSERVATION DECK ONE 360 VIEW

OBSERVATION TOWER
CITY UPPER OBSERVATION ELEVATED BOARDWALK MEADOW NATURE WALK BIKE PATH EXPLORATION PATHS
CITY VIEW RIVER VIEW UPPER LEVEL SPIRAL STAIR OBSERVATION TOWER INTERIOR

ARCH 382

Winter 2022

IS A JOURNEY TROUGH DISCOVERY. THIS CONCEPT CAME ALONG AFTER REVELING SEVERAL TREASURES ON BARTRAM’S SITE AND HOW DISCRETELY NATURE IS TUCKING THEM AWAY, NOT TO HIDE THEM BUT TO MAKE THE JOURNEY AND THE REVEAL MORE PRECIOUS TO THE SPECTATOR. THE PROJECT CONSISTS OF A SERIES OF STRUCTURES THAT ARE ETHER VEIL UNDER THE GROUND IN ORDER TO VISUALLY AND PHYSICALLY PRESERVE THE INTEGRITY OF THE MEADOW OR SURROUNDED BY SCREENS/PERGOLAS TO MIMIC THE ORGANIC FORM OF THE DREAMING FIELDS ART INSTALLATION AND SITE LANDSCAPE.

Unveil Studio 3B
0 25 50 100 KEY PLAN ABOVE GROUND STRUCTURES EXISTING/HISTORIC BUILDINGS PARTIALLY UNDERGROUND STRUCTURE PICNIC OR PLAYGROUND AREA MAIN CIRCULATION PEDESTRIAN ONLY CIRCULATION HISTORIC AREA FARM AREA MEADOW AREA LAND RIVER INTERCONNECTION 1 2 3 4 5 6 7 8 9 10 11 12 13 14 15 1. INN 2. EVENT SPACE/ART WORKSHOP 3. UNDERGROUND PARKING 4. AMPHITHEATER 5. BOATHOUSE 6. PICNIC FOR 50 PEOPLE 7. PARKING ON THE GRASS 8. ORCHARD 9. PLAYGROUND 10. GREENHOUSE 11. MARKET 12. FARM 13. LAB, CLASS ROOM 14. FARM PICNIC AREA 15. MUSSELS FARM PROGRAM
Scale Date Drawn By Checked By Project Number Address Phone Consultant Address Address Address Phone 1/16" = 1'-0" 3/16/2022 10:18:30 PM A101 Unnamed Owner Project Name Checker Author Issue Date Project Number No.DescriptionDate 1/16" 1'-0" Level 1 www.autodesk.com/revit Scale Date Drawn By Checked By Project Number Consultant Address Address Address Phone Consultant Address Address Address Phone Consultant Address Address Address Phone Consultant Address Address Address Phone Consultant Address Address Address Phone 1/16" = 1'-0" 3/16/2022 10:18:30 PM A101 Unnamed Owner Project Name Checker Author Issue Date Project Number No.DescriptionDate 1/16" 1'-0" Level 1 1/16" 1'-0" Level 1

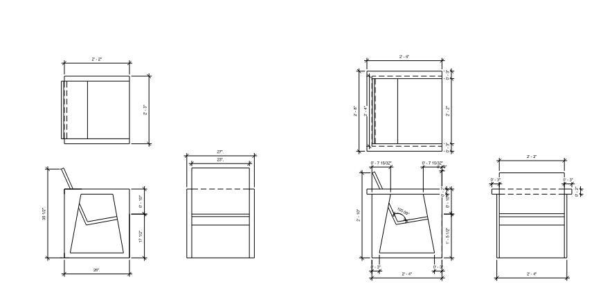
FRANK - The Chair

ARCH T-480

Furniture Making

Fall 2022

10500° 9527° 10500 ° WEEK 5 1' - 0" 0 - 2" 0'2" DETAIL 1
2 TOP FRONT SIDE INSIDE TOP BACK SIDE INSIDE 0'1 1/2" 0' 8 7/32" 0' - 1 23/32" 10500 ° 25 00° 1 1/2" = 1'-0" 1 DETAIL DETAIL 2 TOP BACK SIDE INSIDE 0'1 1/2" 0' - 8 7/32" 0' 1 23/32" 10500 ° 25 00°
DETAIL

Theater Set Stair Tower

ADC 273

Advanced CAD Aplications

Summer 2020

FOR THIS PROJECT I CHALLENGED TO CHOOSE ONE OF MY PREVIOUS PROJECT IN ORDER TO BUILD A REVIT MODEL THAT IT WOULD BE RENDERED AND TOUCHED UP ON ILLUSTRATOR AND PHOTOSHOP. I CHOOSE TO WORK ON THE THEATER SET STAIR TOWER PROJECT, THAT I COMPLETED ON DESIGN STUDIO II, BUT

Chapel of Peace and Center of Conversation

ADC 259

Design Studio IV SECTION

Fall 2019

FOR THIS PROJECT I WAS CHALLENGED TO DESIGN A CHAPEL AND AN OUTDOOR CONTEMPLATIVE GARDEN/MEDITATION/GATHERING SPACE. THE FACILITY IS TO BE USED BY STUDENTS AT CCP AND OTHERS FROM ALL WALKS OF LIFE AND FROM ALL FAITHS (AND EVEN ATHEISTS AND AGNOSTICS, IF THEY CHOOSE) FOR WORSHIP, MEDITATION, AND VARIETY OF STRUCTURED AND UNSTRUCTURED ACTIVITIES. SPACES THAT WOULD INCLUDE AN OUTDOOR GATHERING SPACE FOR A MINIMUM 100 OCCUPANTS AND 4 SMALL GARDEN ROOMS OF PERSONAL CONTEMPLATION. THE INSPIRATION BEHIND THIS PROJECT WAS TEMPLE BETH SHOLOM BY FRANK LLOYD WRIGHT. I ENVISIONED THIS CHAPEL AS A SACRED MOUNTAIN THAT HAS THE TREE OF LIFE IN ITS HIDDEN GARDEN, WHERE ANY PERSON COULD FEEL SAFE AND PEACEFUL. I DESIGNED THE INTERIOR OF THE MAIN CHAPEL IN A SUCH A WAY THAT DIRECT SUN LIGHT WOULD GO THOUGHT JUST AT THE SOLAR NOON, WHICH IT WOULD GIVE THE VISITORS THE FEELING THAT THEY ARE BEING TOUCHED BY THE DIVINE LIGHT.

SITE PLAN
FLOOR PLAN 10 9 9 1 3 2 11 4 4 4 5 6 7 8
1. LOBBY 2. CHAPEL 3. GALLERY 4. UTILITY ROOM/ STORAGE 5. KITCHEN 6. GROOM’S SUIT 7. OFFICE 8. BRIDE’S ROOM 9. BATHROOMS 10. COAT ROOM 11. COURTYARD

I WAS FULLY ENCOURAGED TO USE PASSIVE SOLAR PRINCIPLES AND INTEGRATE SUSTAINABLE TECHNIQUES. I PLACED A WATER RESERVOIR ON ROOF OF THE CHAPEL TO COLLECT RAIN WATER THAT WILL FURTHER BE TRANSFERRED INTO THE UNDERGROUND TANK, WHICH LATER WOULD BE USED TO SERVICE THE BATHROOMS IN THE BUILDING. TO CREATE A MORE ENERGY EFFICIENT BUILDING I USED TRANSPARENT SOLAR CELLS FILM ON ALL THE WINDOWS. I DESIGNED A GREEN ROOF TO INSULATE THE BUILDING AND MITIGATE THE THERMAL HEAT GAIN. I OPTED FOR PERVIOUS SURFACES AROUND THE BUILDING TO LIMIT THE AMOUNT OF WATER RUNOFF AND TO REDUCE HEAT ISLAND EFFECT. I DECIDED TO USE COTTON INSULATION, BECAUSE IS A GOOD THERMAL INSULATION AND IS RECYCLED MATERIAL FROM OLD CLOTHING SCRAPS. I USED THE DOUBLE ENVELOPE PRINCIPAL FOR THE CHAPEL DESIGN IN ORDER TO COLLECT THE SOLAR ENERGY AND SLOWLY LET IT TRAVEL THOUGHT THE ENTIRE SPACE.

1. RAIN WATER RESERVOIR

2. RAIN WATER TANK

3. TRANSPARENT SOLAR CELLS (SOLAR WINDOWNS)

4. GREEN ROOF

5. PERVIOUS SURFACE

6. DOUBLE ENVELOPE

7. COTTON INSULATION

1 2 3 4
SUSTAINABILITY SECTION
2019 - Present Photography

FIFTEEN Inpatient Hospice

Summer 2022

DRAFTED ARCHITECTURAL DRAWINGS, ASSISTED WITH LAYOUT, SELECTING FINISHES AND FURNITURE. CREATED RENDERINGS FOR CLIENT PRESENTATION

FIFTEEN Woodlynde School Literacy Institute

Winter 2023

CREATED RENDERINGS FOR CLIENT PRESENTATION

Turn static files into dynamic content formats.

Create a flipbook