Skip to main content

Portafolio Daniela

Page 1

DM
Daniela Minano

Daniela Minano

I have a Bachelor of Architecture from Lima, Peru, with 3 years of experience in developing residential projects, offices and commercial premises.

EDUCATION

• Universidad de San Martin de Porres – School of Engineering and Architecture

2013– 2018

Bachelor of Architecture 2019

KNOWLEDGE

• Microsoft / Office

• AutoCAD - 10 year experience

• SketchUP – 5 year experience

• Autodesk Design Review Revit

• VRAY

LANGUAGES

• English

• Spanish (native)

DM

EXPERIENCE

Paraclete Realty, LLC - Freelance Architect (November 2022 – present)

- Master Plans - design and distribution.

- AutoCAD Designer

• The Deck and Fence Company LLCCAD Drafter / Designer (February 2022 – July 2023)

- Preparation of plans

- TakeOff – Order materials

- County procedures

• Real Estate Huanwil S.A.– Architecture Assistance (March 2019 – December 2019)

- Preparation of cutting plans, project elevations.

- County procedures.

- Working with contractors.

- Office design and distribution.

- Leed Certification

Projects: MORE Office Premium- Surco

• AirBnb Projects Cabins Jauja Junin–Junior Architect ( 2019)

- Preliminary project: research and design

• In360 corp. –Architecture Practitioner (August 2017 – February 2019)

- Preparation of cutting plans, project elevations.

- Presentations and preparation of multifamily blueprints for clients.

- Descriptive Memories, project lifting.

- Office design and distribution.

Preliminary projects: Houses Punta Cana

Projects: HYDE – San Isidro and MOON –Surco

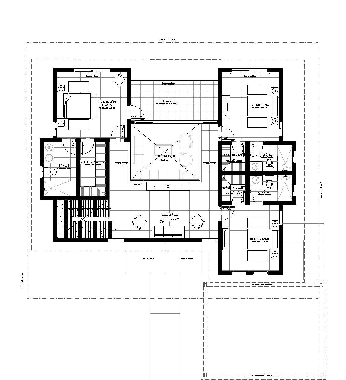
HOUSE Punta Cana FIRST LEVEL

SECOND LEVEL

PROJECT X

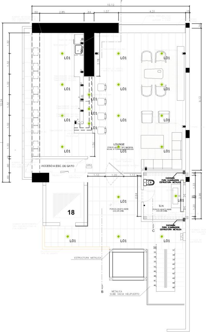
Graduation project HOTEL 5
M O R E Office Premium - First Level - Mezzanine - Basement First Level Basement Mezzanine
area
Coffee

PROJECTS

DECK & PORCH

Turn static files into dynamic content formats.

Create a flipbook