UTP Taller Arquitectónico IX -CRITERIOS DE DISEÑO PARTE III-DISTRITO DE PISCO

Page 1

UNIDAD: HOSPITALIZACION CRITERIOS DE DISEÑO

8

CRITERIOS DE DISEÑO

UNIDAD: HOSPITALIZACIÓN 8

SALA DE HOSPITALIZACIÓN

Área mínima requerida: 21 m2

A)Usuarios

B)Actividades

Pacientes hospitalizados Visitas

Administrar Visitar Hospitalizar paciente

C)Flujograma

SALA DE HOPITALIZACIÓN

ESTACION DE ENFERMERAS

CONCLUSION:

El consultorio de odontología es parte de la unidad de consulta externa en el que los pacientes ambulatorios para realizan su diagnóstico.

TALLER DE ARQUITECTURA

CRITERIO DE DISEÑO

DOCENTE:

GRUPO #5

El flujograma muestra la relación de la atención inmediata al recién nacido respecto a su hospitalización

LEYENDA

Relación alta

Relación Baja

ELABORACIÓN PROPIA

FUENTE: Guía de diseño arquitectónico para establecimiento de salud-OPS Y OMS

LAMINA:

IX
+ PROGRAMA ARQUITECTONICO
-SAICO CRISANTE, EBERTH MAC GYVER -TORRES GAMBOA, DANIELA -TORRES QUISPE, OMAR PAUL
01 -MG. ARQ OMAR WINCHOCHILQUILLO
Personal

CRITERIOS DE DISEÑO

UNIDAD:

FUENTE: Guía de diseño arquitectónico para establecimiento de salud-OPS Y

OMS
TALLER DE ARQUITECTURA IX CRITERIO DE DISEÑO + PROGRAMA ARQUITECTONICO DOCENTE: -SAICO CRISANTE, EBERTH MAC GYVER -TORRES GAMBOA, DANIELA -TORRES QUISPE, OMAR PAUL GRUPO #5 LAMINA: 01 -MG. ARQ OMAR WINCHOCHILQUILLO
CONCLUSION:
D) Zonas 12.96 m2
hospitalización Área de cuna Área de ingreso Área de estadía en hospitalización Área de SSHH Área de ingreso 4.32 m2 4.32m2
LEYENDA Área de estadía en
DE HOSPITALIZACIÓN
HOSPITALIZACIÓN 8 SALA

Circulación de Unidad de hospitalización es 1.80 m según reglamento.

Circulación de la sala de hospitalización a es de 1.20 m.

LEYENDA

Circulación de corredor principal de unidad Circulación de sala de mamografía

FUENTE: Guía de diseño arquitectónico para establecimiento de salud-OPS Y OMS CONCLUSION:

GRUPO #5

ARQUITECTURA IX CRITERIO DE DISEÑO + PROGRAMA ARQUITECTONICO DOCENTE: -SAICO CRISANTE, EBERTH MAC GYVER -TORRES
DANIELA -TORRES QUISPE, OMAR PAUL
LAMINA: 01 -MG. ARQ OMAR WINCHOCHILQUILLO
HOSPITALIZACIÓN 8 SALA DE HOSPITALIZACIÓN
TALLER DE
GAMBOA,
CRITERIOS DE DISEÑO UNIDAD:
E) Circulación

CRITERIOS DE DISEÑO

UNIDAD: HOSPITALIZACIÓN

SALA DE HOSPITALIZACIÓN

F) Equipos

CONCLUSION:

Debe de contar los equipamientos necesarios para un análisis de laboratorio en buen estado.

TALLER DE

CRITERIO DE DISEÑO

LISTADO DE EQUIPOS

FUENTE: Guía de diseño arquitectónico para establecimiento de salud-OPS Y OMS

IX
ARQUITECTURA
+ PROGRAMA ARQUITECTONICO DOCENTE: -SAICO CRISANTE, EBERTH MAC GYVER -TORRES
DANIELA -TORRES
OMAR PAUL
01 -MG. ARQ OMAR WINCHOCHILQUILLO
GAMBOA,
QUISPE,
GRUPO #5 LAMINA:
8
Cama quirúrgica rodable Porta suero rodable

CRITERIOS DE DISEÑO UNIDAD:

SALA DE HOSPITALIZACIÓN

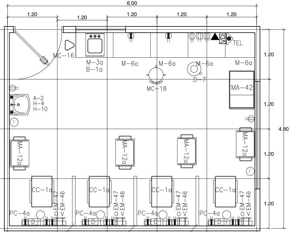
Lado mínimo: El lado mínimo es de 3.60 m

Piso: El piso de porcelanato antideslizante

Modulación:

Sala de hospitalización modulada de 1.20 m

Puerta:

La puerta es de 1.00 m de ancho.

Ventana: Cuenta con una ventana de 2.40 m de largo.

Iluminación: La iluminación es artificial con luminarias LED.

FUENTE: Guía de diseño arquitectónico para establecimiento de salud-OPS Y

DE ARQUITECTURA IX CRITERIO DE DISEÑO + PROGRAMA ARQUITECTONICO DOCENTE: -SAICO CRISANTE, EBERTH MAC GYVER -TORRES
DANIELA -TORRES
OMAR PAUL
OMS CONCLUSION: TALLER
GAMBOA,
QUISPE,
01 -MG. ARQ OMAR WINCHOCHILQUILLO
GRUPO #5 LAMINA:
HOSPITALIZACIÓN 8

CRITERIOS DE DISEÑO

UNIDAD: HOSPITALIZACIÓN 8

SALA DE ADAPTACIÓN NEONATAL

Área mínima requerida: 23 m2

A)Usuarios

Pacientes hospitalizados

B)Actividades

Atender al recién nacido

Hacer examinación

C)Flujograma

CONCLUSION:

El consultorio de odontología es parte de la unidad de consulta externa en el que los pacientes ambulatorios para realizan su diagnóstico.

TALLER DE ARQUITECTURA

CRITERIO DE DISEÑO

GRUPO #5

El flujograma muestra la relación de la atención inmediata al recién nacido respecto a su hospitalización

LEYENDA

Relación alta

Relación Baja

ELABORACIÓN PROPIA

FUENTE: Guía de diseño arquitectónico para establecimiento de salud-OPS Y OMS

LAMINA:

IX
+ PROGRAMA ARQUITECTONICO
-SAICO CRISANTE, EBERTH MAC GYVER -TORRES GAMBOA, DANIELA -TORRES QUISPE, OMAR PAUL
DOCENTE:
01 -MG. ARQ OMAR WINCHOCHILQUILLO
Personal

CRITERIOS DE DISEÑO

UNIDAD: HOSPITALIZACIÓN 8

SALA DE ADAPTACIÓN NEONATAL

D) Zonas

Área de control y examinación

11.50 m2

CONCLUSION:

Área de succión y humificador

2 88 m2

Área de cuna

2.88 m2

LEYENDA

Área de control y examinación

Área de cuna

Área de succión y humificador

FUENTE: Guía de diseño arquitectónico para establecimiento de salud-OPS Y OMS

GRUPO #5

IX
+ PROGRAMA ARQUITECTONICO DOCENTE: -SAICO CRISANTE, EBERTH MAC GYVER -TORRES GAMBOA, DANIELA -TORRES QUISPE, OMAR PAUL
TALLER DE ARQUITECTURA
CRITERIO DE DISEÑO
01 -MG. ARQ OMAR WINCHOCHILQUILLO
LAMINA:

CRITERIOS DE DISEÑO

UNIDAD: HOSPITALIZACIÓN 8

SALA DE ADAPTACIÓN NEONATAL

E) Circulación

Circulación de Unidad de hospitalización es 1.80 m según reglamento.

CONCLUSION:

TALLER DE ARQUITECTURA

Circulación de la sala de adaptación neonatal a es de 1.20 m.

LEYENDA

Circulación de corredor principal de unidad

FUENTE: Guía de diseño arquitectónico para establecimiento de salud-OPS Y OMS

CRITERIO DE DISEÑO

IX
+ PROGRAMA ARQUITECTONICO
-SAICO CRISANTE, EBERTH MAC GYVER -TORRES GAMBOA, DANIELA -TORRES QUISPE, OMAR PAUL
01 -MG. ARQ OMAR WINCHOCHILQUILLO
DOCENTE:
GRUPO #5 LAMINA:

CRITERIOS DE DISEÑO

UNIDAD: HOSPITALIZACIÓN 8

SALA DE ADAPTACIÓN NEONATAL

F) Equipos

Mesa metálica para exámenes y cambiar pañales

Cuna acrílica rodable

LISTADO DE EQUIPOS

CONCLUSION:

Debe de contar los equipamientos necesarios para un análisis de laboratorio en buen estado.

TALLER DE ARQUITECTURA

CRITERIO DE DISEÑO

GRUPO #5

FUENTE: Guía de diseño arquitectónico para establecimiento de salud-OPS Y OMS

LAMINA:

IX
+ PROGRAMA ARQUITECTONICO
-SAICO CRISANTE, EBERTH MAC GYVER -TORRES GAMBOA, DANIELA -TORRES QUISPE, OMAR PAUL
DOCENTE:
01 -MG. ARQ OMAR WINCHOCHILQUILLO

CRITERIOS DE DISEÑO

UNIDAD: HOSPITALIZACIÓN

SALA DE ADAPTACIÓN NEONATAL

Piso: El piso de porcelanato antideslizante

Iluminación: La iluminación es artificial con luminarias LED.

Puerta:

La puerta es de 1.00 m de ancho.

Lado mínimo: El lado mínimo es de 3.80 m

Modulación:

Sala de adaptación neonatal es modulada de 1.20 m

Ventana: Cuenta con una ventana de 2 40 m de largo

FUENTE: Guía de diseño arquitectónico para establecimiento de salud-OPS Y

OMS
ARQUITECTURA IX
DE DISEÑO + PROGRAMA ARQUITECTONICO
-SAICO CRISANTE, EBERTH MAC GYVER -TORRES
DANIELA -TORRES QUISPE, OMAR PAUL
CONCLUSION: TALLER DE
CRITERIO
DOCENTE:
GAMBOA,
01 -MG. ARQ OMAR WINCHOCHILQUILLO
GRUPO #5 LAMINA:
8

UNIDAD: CONFORT PERSONAL CRITERIOS DE DISEÑO

9

CRITERIOS DE DISEÑO

UNIDAD:CONFORT PERSONAL 9

SALA DE ESPERA

Área mínima requerida:

A)Usuarios

PACIENTE PERSONAL DE APOYO

B)Actividades

• Descanso y recuperación

• Apoyo psicológico

• Alimentación y nutrición

• Terapia física

• Recursos terapeuticos

C)Flujograma

LEYENDA

Relación alta

Relación Baja

FUENTE: CONCLUSION:
DE ARQUITECTURA IX ANÁLISIS DE CASOS NACIONAL DOCENTE: -SAICO CRISANTE, EBERTH MAC GYVER -TORRES GAMBOA, DANIELA -TORRES QUISPE, OMAR PAUL
03 -MG. ARQ OMAR WINCHOCHILQUILLO
TALLER
GRUPO #5 LAMINA:

CRITERIOS DE DISEÑO

UNIDAD:CONFORT PERSONAL

SALA DE ESPERA

D) Zonas

Sala de espera

Sala de espera

Almacenamiento de sillas y recepción

CIRCULACION

Area administrativs

SALA DE ESPERA

LEYENDA RECEPCION

FUENTE: CONCLUSION:
DE ARQUITECTURA IX ANÁLISIS DE CASOS NACIONAL DOCENTE: -SAICO CRISANTE, EBERTH MAC GYVER -TORRES GAMBOA, DANIELA -TORRES QUISPE, OMAR PAUL
#5
04 -MG. ARQ OMAR WINCHOCHILQUILLO
TALLER
GRUPO
LAMINA:
9

CRITERIOS DE DISEÑO E)

La circulación es amplia para ubicar los asientos y mantenerlos ordenados

Circulación amplia y común para la ubicación de recepción

LEYENDA

Circulación de corredor principal de unidad

Circulación de consultorio de médico general

FUENTE: CONCLUSION: TALLER DE ARQUITECTURA IX ANÁLISIS DE CASOS NACIONAL DOCENTE: -SAICO CRISANTE, EBERTH MAC GYVER -TORRES GAMBOA, DANIELA -TORRES QUISPE, OMAR PAUL GRUPO #5 LAMINA: 05 -MG. ARQ OMAR WINCHOCHILQUILLO
Circulación
SALA DE ESPERA UNIDAD:CONFORT PERSONAL 9

CRITERIOS DE DISEÑO

FUENTE: CONCLUSION: TALLER DE ARQUITECTURA IX ANÁLISIS DE CASOS NACIONAL DOCENTE: -SAICO CRISANTE, EBERTH MAC GYVER -TORRES GAMBOA, DANIELA -TORRES QUISPE, OMAR PAUL GRUPO
LAMINA: 06 -MG. ARQ OMAR WINCHOCHILQUILLO
#5
F) Equipos Silla de ruedas Equipos Usos tecnologio
DE EQUIPOS SALA DE ESPERA UNIDAD:CONFORT PERSONAL 9
Sillas de espera
LISTADO

CRITERIOS DE DISEÑO

G) Consideraciones

Iluminación : se busca una iluminación adecuada por las ventanas

Ventilación y climatización adecuada

La accesibilidad de ingreso y salida Mantiene unas dimensiones correctas

FUENTE: CONCLUSION: TALLER DE ARQUITECTURA IX ANÁLISIS DE CASOS NACIONAL DOCENTE: -SAICO CRISANTE, EBERTH MAC GYVER -TORRES GAMBOA, DANIELA -TORRES QUISPE, OMAR PAUL
LAMINA: 07 -MG. ARQ OMAR WINCHOCHILQUILLO
GRUPO #5
DE ESPERA UNIDAD:CONFORT PERSONAL 9
SALA

CRITERIOS DE DISEÑO

UNIDAD:CONFORT PERSONAL 9

SALA DE TRATAMIENTO

Área mínima requerida:

A)Usuarios

PACIENTE PERSONAL DE APOYO

B)Actividades

• Descanso y recuperación

• Apoyo psicológico

• Alimentación y nutrición

• Terapia física

• Recursos terapeuticos

C)Flujograma

LEYENDA

Relación alta

Relación Baja

ARQUITECTURA IX ANÁLISIS
CASOS NACIONAL
-SAICO CRISANTE, EBERTH
-TORRES
DANIELA -TORRES
PAUL
LAMINA: 03 -MG. ARQ OMAR WINCHOCHILQUILLO
FUENTE: CONCLUSION: TALLER DE
DE
DOCENTE:
MAC GYVER
GAMBOA,
QUISPE, OMAR
GRUPO #5

CRITERIOS DE DISEÑO

UNIDAD:CONFORT PERSONAL 9

SALA DE TRATAMIENTO

D) Zonas

Area de rehabilitación

Área de máquina para tratamientos físico

Zona de terapia fisica

Circulacion

Alfombras de terapia física

LEYENDA

AREA DE MAQUENAS DE TRATAMIENTOFISICO

ALFOBRAS EJERCISIOS DE REHABLITACION

ARQUITECTURA IX ANÁLISIS DE CASOS NACIONAL
-SAICO CRISANTE, EBERTH
GYVER -TORRES
DANIELA -TORRES QUISPE,
PAUL
04 -MG. ARQ OMAR WINCHOCHILQUILLO
FUENTE: CONCLUSION: TALLER DE
DOCENTE:
MAC
GAMBOA,
OMAR
GRUPO #5 LAMINA:

CRITERIOS DE DISEÑO

Las maquinas de ejercicio están ubicadas de manera estratégica para su uso adecuado

UNIDAD:CONFORT

La ubicación de la área terapéutica es de fácil acceso

Circulación general es amplia.

LEYENDA

Circulación de corredor principal de unidad

Circulación de consultorio de médico general

FUENTE: CONCLUSION: TALLER DE ARQUITECTURA IX ANÁLISIS DE CASOS NACIONAL DOCENTE: -SAICO CRISANTE,
-TORRES
-TORRES
GRUPO
LAMINA: 05 -MG. ARQ OMAR WINCHOCHILQUILLO
EBERTH MAC GYVER
GAMBOA, DANIELA
QUISPE, OMAR PAUL
#5
Circulación
E)
PERSONAL 9
SALA DE TRATAMIENTO

CRITERIOS DE DISEÑO

FUENTE: CONCLUSION: TALLER DE ARQUITECTURA IX ANÁLISIS DE CASOS NACIONAL DOCENTE: -SAICO CRISANTE, EBERTH MAC GYVER -TORRES GAMBOA, DANIELA -TORRES QUISPE, OMAR PAUL
LAMINA: 06 -MG. ARQ OMAR WINCHOCHILQUILLO
GRUPO #5
F) Equipos Equipos Área de ejercicio Maquina de ejerció
LISTADO DE EQUIPOS
UNIDAD:CONFORT PERSONAL 9 SALA DE TRATAMIENTO
Área de ejercicio Maquina de ejerció

CRITERIOS DE DISEÑO

UNIDAD:CONFORT PERSONAL 9

SALA DE TRATAMIENTO

G) Consideraciones

El espacio es libre para una circulación flexible

La circulación es muy practica para los pacientes y los licenciados

La zoana es libre para las terapias físicas

El ingreso es amplio para los usuarios

FUENTE: CONCLUSION: TALLER DE ARQUITECTURA IX ANÁLISIS DE CASOS NACIONAL DOCENTE: -SAICO CRISANTE, EBERTH MAC GYVER -TORRES GAMBOA, DANIELA -TORRES QUISPE, OMAR PAUL GRUPO
LAMINA: 07 -MG. ARQ OMAR WINCHOCHILQUILLO
#5

UNIDAD:SERVICIOS GENERALES CRITERIOS DE DISEÑO

10

CRITERIOS DE DISEÑO

NUCLEO: SERVICIOS GENERALES

TRATAMIENTO DE RESIDUOS

Área mínima requerida: 131.04 m2

A)Usuarios

Personal

B)Actividades

C)Flujograma

LEYENDA

Relación alta

Tratamiento y desinfección

Clasificación de residuos

Documentos y registros

Cumplimiento normativo Manipulación segura

CONCLUSION: Se debe desarrollar el flujograma de manera de que la distribucióneste de manera correcta.

El flujograma muestra el flujo de circulación de los tratamientos de residuos. TALLER DE

Relación Baja

FUENTE: Guía de diseño arquitectónico para establecimiento de salud-OPS Y OMS

ARQUITECTURA IX CRITERIO DE DISEÑO + PROGRAMA ARQUITECTONICO DOCENTE: -SAICO CRISANTE, EBERTH MAC GYVER -TORRES GAMBOA, DANIELA -TORRES QUISPE, OMAR PAUL GRUPO #5 LAMINA: 01 -MG. ARQ OMAR WINCHOCHILQUILLO
10

CRITERIOS DE DISEÑO

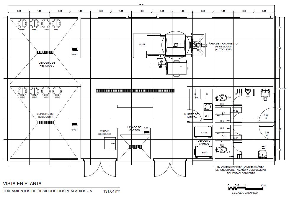
ÁREA MÍNIMA REQUERIDA: 131.04 M2

NUCLEO: SERVICIOS GENERALES

TRATAMIENTO DE RESIDUOS

D) Zonas

Depósito de residuos 36.26 m2

Área de depósito de carros 3.16 m2

CONCLUSION: Los ambientes son amplios y con buena ventilación.

Área de tratamiento de residuos 49.02 m2

Área de cuarto de limpieza 3.14 m2

LEYENDA

Depósito de recursos

Área de tratamiento

Cuarto de limpieza

Depósito de carros

FUENTE: Guía de diseño arquitectónico para establecimiento de salud-OPS Y OMS

TALLER DE ARQUITECTURA IX CRITERIO DE DISEÑO + PROGRAMA ARQUITECTONICO DOCENTE: -SAICO CRISANTE, EBERTH MAC GYVER -TORRES GAMBOA, DANIELA -TORRES QUISPE, OMAR PAUL GRUPO #5 LAMINA: 01 -MG. ARQ OMAR WINCHOCHILQUILLO
10

NUCLEO: SERVICIOS GENERALES

TRATAMIENTO DE RESIDUOS

E) Circulación

La circulación de 1.20 permite el libre movimiento de una persona.

Circulación de Unidad de consulta externa es 1.80 m según reglamento.

LEYENDA

Circulación de corredor principal de unidad

Circulación de consultorio de médico general

CONCLUSION: Se concluye que la distribución debe ser de manera con pasillos amplios e ingresos de dos vanos.

FUENTE: Guía de diseño arquitectónico para establecimiento de salud-OPS Y OMS

TALLER DE ARQUITECTURA IX CRITERIO DE DISEÑO + PROGRAMA ARQUITECTONICO DOCENTE: -SAICO CRISANTE, EBERTH MAC GYVER -TORRES GAMBOA, DANIELA -TORRES QUISPE, OMAR PAUL GRUPO #5 LAMINA: 01 -MG. ARQ OMAR WINCHOCHILQUILLO
10
CRITERIOS DE DISEÑO

CRITERIOS DE DISEÑO

NUCLEO: SERVICIOS GENERALES

TRATAMIENTO DE RESIDUOS

Autoclave para residuos hospitalarios con triturador y accesorios

Cilindro de plástico con tapa de valven 140 L

Carro para el transporte de basura

CONCLUSION:

LISTADO DE EQUIPOS

FUENTE: Guía de diseño arquitectónico para establecimiento de salud-OPS Y OMS

F)
TALLER DE ARQUITECTURA IX CRITERIO DE DISEÑO + PROGRAMA ARQUITECTONICO DOCENTE: -SAICO CRISANTE, EBERTH MAC GYVER -TORRES GAMBOA, DANIELA -TORRES QUISPE, OMAR PAUL GRUPO #5 LAMINA: 01 -MG. ARQ OMAR WINCHOCHILQUILLO
10

NUCLEO: SERVICIOS GENERALES

TRATAMIENTO DE RESIDUOS

G) Consideraciones

Ventilación: Cuenta con varias ventanas para tener una buena ventilación

Rejillas: Cuenta con rejillas para evitar llenado de agua y fácil de trapear.

Normativa

CONCLUSION:

Lado mínimo: Cuenta con un lado mínimo de 8 40 m

FUENTE:

Iluminación: Cuenta con varias ventanas para aprovechar la iluminación natural.

Puerta y vanos: Cuentas con puertas de dos hojas que se abren para afuera.

TALLER DE ARQUITECTURA IX CRITERIO DE DISEÑO + PROGRAMA ARQUITECTONICO DOCENTE: -SAICO CRISANTE, EBERTH MAC GYVER -TORRES GAMBOA, DANIELA -TORRES QUISPE, OMAR PAUL GRUPO #5 LAMINA: 01 -MG. ARQ OMAR WINCHOCHILQUILLO
10
CRITERIOS DE DISEÑO

NUCLEO: SERVICIOS GENERALES

MANTENIMIENTO

Área mínima requerida: 138.23 m2

A)Usuarios Personal

B)Actividades

Gestión de inventario y suministro

Mantenimiento preventivo Reparaciones y solución de problemas

C)Flujograma

Gestión de la infraestructura

LEYENDA

Relación alta

Relación Baja

El flujograma muestra el flujo de circulación del área de mantenimiento.

CONCLUSION: Se puede tomar estar consideraciones para aplicar en nuestro futuro proyecto.

FUENTE: Guía de diseño arquitectónico para establecimiento de salud-OPS Y OMS

DE ARQUITECTURA IX CRITERIO DE DISEÑO + PROGRAMA ARQUITECTONICO DOCENTE: -SAICO CRISANTE, EBERTH MAC GYVER -TORRES GAMBOA, DANIELA -TORRES QUISPE, OMAR PAUL GRUPO #5 LAMINA: 01 -MG. ARQ OMAR WINCHOCHILQUILLO
TALLER
CRITERIOS DE DISEÑO
10

CRITERIOS DE DISEÑO 10

NUCLEO: SERVICIOS GENERALES

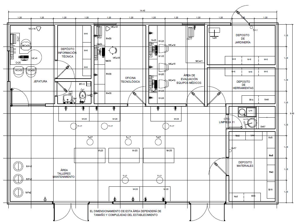
ÁREA MÍNIMA REQUERIDA: 138.23 M2

Oficina Tecnológica

12.76 m2

MANTENIMIENTO

D) Zonas

Jefatura 19.27 m2

Área talleres de mantenimiento 62.22 m2

CONCLUSION: Se puede tomar estar consideraciones para aplicar en nuestro futuro proyecto.

Área de evaluación de equipos médicos

13.54 m2

Depósito de herramientas

16.34 m2

SS.HH. 3.65 m2

LEYENDA

Sala de espera

Informes

Servicios

Área de observación

Área de curación

Área de yeso Deposito

Depósito de materiales

10.45 m2

FUENTE: Guía de diseño arquitectónico para establecimiento de salud-OPS Y OMS

LAMINA:

TALLER DE ARQUITECTURA IX CRITERIO DE DISEÑO + PROGRAMA ARQUITECTONICO DOCENTE: -SAICO CRISANTE, EBERTH MAC GYVER -TORRES GAMBOA, DANIELA -TORRES QUISPE, OMAR PAUL
GRUPO #5
01 -MG. ARQ OMAR WINCHOCHILQUILLO

NUCLEO: SERVICIOS GENERALES

MANTENIMIENTO

E) Circulación

Circulación de Unidad de consulta externa es 1.80 m según reglamento.

CONCLUSION: Se puede tomar estar consideraciones para aplicar en nuestro futuro proyecto.

La circulación de 1.20 permite el libre movimiento de una persona.

LEYENDA

Circulación de corredor principal de unidad

Circulación de consultorio de médico general

FUENTE: Guía de diseño arquitectónico para establecimiento de salud-OPS Y OMS

TALLER DE ARQUITECTURA IX CRITERIO DE DISEÑO + PROGRAMA ARQUITECTONICO DOCENTE: -SAICO CRISANTE, EBERTH MAC GYVER -TORRES GAMBOA, DANIELA -TORRES QUISPE, OMAR PAUL GRUPO #5 LAMINA: 01 -MG. ARQ OMAR WINCHOCHILQUILLO CRITERIOS DE DISEÑO 10

CRITERIOS DE DISEÑO

NUCLEO: SERVICIOS GENERALES

MANTENIMIENTO

Escritorio modular en L

Mesa de madera para reuniones

Mesa de madera y banco de trabajo con cajones para talleres

Cilindro de plástico con tapa de valven 140 L

CONCLUSION: Se puede tomar estar consideraciones para aplicar en nuestro futuro proyecto.

LISTADO DE EQUIPOS

FUENTE: Guía de diseño arquitectónico para establecimiento de salud-OPS Y OMS

GRUPO #5

F) Equipos
DE ARQUITECTURA IX CRITERIO DE DISEÑO + PROGRAMA ARQUITECTONICO DOCENTE: -SAICO CRISANTE, EBERTH MAC GYVER -TORRES GAMBOA, DANIELA -TORRES QUISPE, OMAR PAUL
LAMINA: 01 -MG. ARQ OMAR WINCHOCHILQUILLO
TALLER
10

Iluminación: Cuenta con ventilación en espacios de oficina.

NUCLEO: SERVICIOS GENERALES

MANTENIMIENTO

G) Consideraciones

Puerta y vanos: Cuenta con puertas de 1 m de ancho.

Normativa

CONCLUSION: Se puede tomar estar consideraciones para aplicar en nuestro futuro proyecto.

Lado mínimo: Cuenta con un lado mínimo de 9.60 m

Puertas: Puertas de dos hojas que se abren para afuera.

FUENTE: Guía de diseño arquitectónico para establecimiento de salud-OPS Y OMS

TALLER DE ARQUITECTURA IX CRITERIO DE DISEÑO + PROGRAMA ARQUITECTONICO DOCENTE: -SAICO CRISANTE, EBERTH MAC GYVER -TORRES GAMBOA, DANIELA -TORRES QUISPE, OMAR PAUL GRUPO #5 LAMINA: 01 -MG. ARQ OMAR WINCHOCHILQUILLO CRITERIOS DE DISEÑO 10

02 PROGRAMA ARQUITECTONICO

TALLER DE ARQUITECTURA IX CRITERIO DE DISEÑO + PROGRAMA ARQUITECTONICO DOCENTE: -SAICO
-TORRES
-TORRES
LAMINA: 01 -MG. ARQ OMAR WINCHOCHILQUILLO
CRISANTE, EBERTH MAC GYVER
GAMBOA, DANIELA
QUISPE, OMAR PAUL GRUPO #5
PROGRAMA ARQUITECTONICO
TALLER DE ARQUITECTURA IX CRITERIO DE DISEÑO + PROGRAMA ARQUITECTONICO DOCENTE: -SAICO
-TORRES
-TORRES
LAMINA: 01 -MG. ARQ OMAR WINCHOCHILQUILLO
CRISANTE, EBERTH MAC GYVER
GAMBOA, DANIELA
QUISPE, OMAR PAUL GRUPO #5
PROGRAMA ARQUITECTONICO

CONCLUSIONES

03

1 Se llego a la conclusión de que, si implementamos distribuciones de fuentes confiables, podremos tener un mejor punto de vista de la parte antropométrica del desarrollo de los ambientes de cada unidad, esto nos brindará un guía firme y sustentable.

CONCLUSIONES

REFERENCIAS

04

REFERENCIAS

1 Organización Panamericana de la Salud (2015) Guía de diseño Arquitectónico para establecimiento de Salud. Recuperado de: https://iris.paho.org/bitstream/handle/10665.2/28585/guia_disenos_arquitectonicos.pdf

2 Norma A 050 SALUD

¡¡¡GRACIAS!!!

Turn static files into dynamic content formats.

Create a flipbook
Issuu converts static files into: digital portfolios, online yearbooks, online catalogs, digital photo albums and more. Sign up and create your flipbook.