Skip to main content

Simeoni Portfolio 2024

Page 1


portfolio.

ARCHITECTURE

DANA SIMEONI 2024

Dana Simeoni

Sudbury, Ontario / Ottawa, Ontario

DOB: July 16th, 2001

E: dana4824@gmail.com

Educations

2024-2026

Laurentian University

Sudbury, ON

MArch - Masters of Architectural Design with 8 Month Co-op

2019 - 2024

Carleton University, Ottawa, ON

BAS - Bachelor of Architectural Design with 16 Month Co-op

2015 - 2019

Lockerby Composite School

Sudbury, ON

Highschool Diploma

Achievements

June, 2023

RDNO Housing Design Competition Design plans sold to the public

2020 / 2021

Building 22 Project Nomination

Azreli School of Architecture and Urbanism student works are published into a book of prestigious projects

2019 - Present

Deans’ Honour List

CurriculumVitae

About Me

Hello! My name is Dana Simeoni, and I am an Master of Architecture student at Laurentian University. I was born and raised in Sudbury, Ontario, until my first year of University when I moved to Ottawa, ON. I chose Carleton for its teaching of architectural history, the program's connection to urbanism, and its location within the larger city of Ottawa.

I often find that my hometown influences my design strategies, as they involve connections with nature and the topography they are built from. I choose to design with compassion and critical thought and think of the spectator experience within the atmosphere of the spaces I form. I enjoy telling the story of how I first experienced architecture when people ask why I chose a career in it. Around the age of 6, I had all of my toys lying on the floor, to my mother's dismay. My father told me to draw a "hotel" for all of my toys, and he would build it for me out of wood. I grabbed my markers and pencils and scribbled a tornado-shaped design with an elevator and many colourful rooms. My father's laughter and warm smile told me I had done an excellent job. He began constructing a hotel, which looked nothing like my original! However, once completed, he presented it to me to decorate. Although this innocent story shows the love of a family, I realize that I was thinking of spaces and architecture even from the start. I sometimes think of this memory when I struggle with a concept today and remember that I can sketch my ideas directly to the paper.

Work Experience

2024

Luciw Boudreau Architecture

Summer Intern (4 Months)

Revitalized educational facility interiors into modern and high tech spaces to meet client needs. Coordinated Architectural with Electrical, Mechanical and Structural Engineers on large scale ICI projects.

2022 - 2023

Centreline Architecture

Co-op Student (16 Months)

Tasked to complete designs from site measurements, design development, construction drawings and submission to the city. Modelled existing and new projects in Revit.

2019 - 2021

Lougheeds

Florist Apprentice

Tasked to make floral arrangements and deliver them to consumers. Experienced completing office work, and organized historical records.

Skills Related to Architecture

Autodesk Revit

Adobe Cloud

Drafting

Photography

Model Building

Painting

Wood Shop Craft

Problem-Solving

Amisk Indigenous Community Centre

Winter 2024 - Studio 7

ACSA Steel Competition: Category II

Institutional Building for Immigrant Arrival, Accommodation, & Training Centre

Community Centre and Temporary Stay Residences - Parliament Hill, Ottawa, ON

Sonder Gardens - Sparrow Hotel

Fall 2023 - Studio 6

Housing, Community, City Building and Placemaking

Library, Water Building, and Theatre1 Chome Hanakawado, Taito City, Tokyo 111-0033, Japan 01

Adaptive Reuse Hotel and Urban Site1500 Bronson Ave, Ottawa, ON

Islands of Montréal: Infill Site

Fall 2020 - Studio 2

Living Studios – On the Island(s) of Montreal

Art Gallery and Private Residences - 2456 Notre-Dame St W, Montreal, QC 03

Studio Beyond

Winter 2024 - Charette Competition

The Operative Feilds of Architecture: House for Music

Educational Studio - 1125 Colonel By Drive, Ottawa, ON

Rhythm & Wings Theatre

Winter 2021 - Studio 3

The Operative Feilds of Architecture: House for Music

Community Theatre - 1213 Wellington St. W, Ottawa, ON 02

Walking Trail of Water - Sumida Park

Winter 2022 - Studio 5

Global Studio: Building in The City Sumida Park

Acrylic Paintings

The Night Owl 2023

The Colloseum 2019

A Scotish Castle 2019

Amisk Indigenous Community Centre

Winter 2024 - Studio 7

ACSA Steel Competition: Category II

New Build - Parliament Hill, Wellington St, Ottawa, ON

Partnered with Hannah Robertson, Oksana Tkach, and Tanis Warne

Historically Ottawa is a significant site to the Cree, Haudenosaunee, and Anishinaabeg Nations, who would interact with the Chaudiere Falls for its strong spiritual energy. The building was inspired by an artwork of a beaver by the Anishinaabe artist Norval Morrisseau. Coined as the creator of the Woodlands Style of painting, Morriseau uses “spirit lines” to draw connections between all living things; the movement of the building we created employs a curvilinear facade to expand boundaries of occupied space, letting in the natural world and blurring the lines between exterior and interior.

The use of the beaver references Anishinaabe intellectual traditions that place great value on humans’ responsibilities and obligations to our planet. The beaver motif is also internationally recognized as a symbol of Canada, and so we intend that newcomers to Ottawa, who often arrive by plane, will become immediately aware of the natural laws and treaties established since time immemorial on unceded and unsurrendered Algonquin Territory.

Our building is massed in tiers, embedded into the side of Parliament Hill, while also echoing existing pathways from the riverside walkway to the Parliament. A playful meandering circulation implores users to explore the whole building to reach the celebrated space. Some spaces are designed to allow rock to creep into the interior. The use of wood and Corten Steel integrate traditional building materials of both Indigenous and settler cultures. Considerable glazing offers users substantial natural light and a constant view to the river which acts as a wayfinder, further anchoring the users’ reliance on the natural elements.

Parti
Building Model

Level 1

Level 8 Loft

LoftSpaceinFamilyHousingTwoKingBedsPerRoom

Level 8

CelebratedSpace-Conference RoomMezzanine, Family Housing

Level 7

CelebratedSpace-Conference RoomEntrance, FamilyHousing, Cafeteria

Level 6

PublicArtSpace,ArtClassroom, DayCare

Level 5

Pro-bonoClinic, ArtGallery

Level 4

EventHall, Library, ArtGallery

Level 3

Exhibition, Archive, ArtGallery

Level 2

Administration,ArtGallery

Level 1

Lounge, ArtGallery, Under GroundParking

Level 2

The upper floors of the Amisk Community Center are mean to resemble the back and tail of the beaver. Within the tail, and located at the highest point of the building is the celebrated space. The double height space is intended to be a gathering space for indigenous visitors. The diagrid steel structure frame encompasses the space and allows for 270 degree views towards the water and surrounding trees on the mountain.

Level 8 features double height spaces. To our advantage, we used these high ceilings to allow for units to have lofts. As occupants might travel with their families, it is intended to be able to accommodated more than 4 people per room. The floor plate of the lofts follows a curved form, mimicking a journey and the lines throughout the entire structure.

The main supports of the diagrid are to resemble trees growing from the ground and used to form shelter, just as trees do in nature.

Green Roof
Interior Meeting Room

Sonder Gardens

Sparrow Hotel

Fall 2023 - Studio 6

Housing, Community, City Building and Placemaking

Adaptive Reuse - 1500 Bronson Ave, Ottawa, ON

Partnered with Hannah Robertson

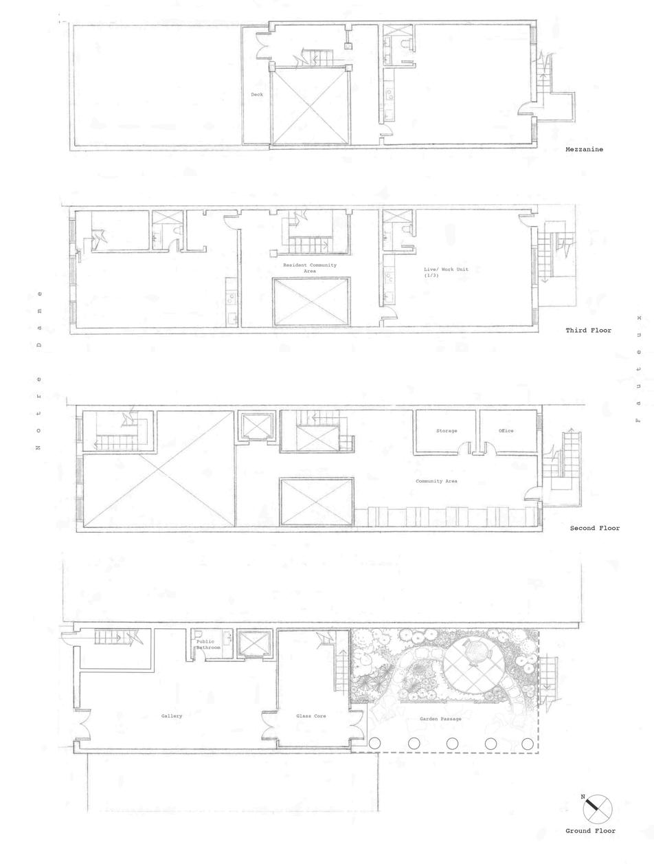
The Housing Studio (6) asked students to take the former CBC Headquarters located in Ottawa at 1500 Bronson Ave and bring densities of housing, commercial spaces, and most importantly, new and diverse communities to the site through placemaking. The site's proximity to Carleton University meant it could offer students housing. Additionally, its proximity to the newly developed Mooney's Bay LRT station also meant that it could be easily accessible to residents by train. The site's location shaped the demographics of our development because we could build higher without tailoring to the requirements of the car alone. Pedestrian pathways and cyclists were crucial concepts in the development of our project. Our approach began by addressing the heritage rights of the former CBC, specifically its protected views. I chose an adaptive reuse of a hotel for the former CBC building, which I will now refer to as the Sparrow Hotel.

Existing Site Plan

Preposed Site Plan

We began by placing massing circulating the Sparrow, which would act as housing developments; however, because of their massive sizes, we needed to elevate or move elements of these buildings to, at minimum, provide glimpses of the Sparrow. Please see the diagram that elevates the central core of our main housing development, titled the Skylark, so that passersby can view the Sparrow from travelling on Bronson Ave.

As the hotel's appearance was bound to its protection rights, I was permitted to provide an addition. I chose to add an addition that did not invade the sightline of the Sparrow but instead used the existing topographical elevations of the site to conceal partial elements of the addition itself.

RIVERSIDEDR

HERONRD
BRONSONAVE

The restaurant is accessed from grade or through interior stairs and elevators connected to the first floor of the Sparrow. The first level of the hotel used as an entrance, guest services, concierge, and public spaces, connects to the second floor of the addition's conference spaces and venue spaces. The second floor is divided into 30 hotel rooms, each arm of the Sparrow being symmetrical.

Hotel rooms differ by being a single king-size bed, two queen-size beds, and accessible rooms. There are approximately three accessible rooms per floor, but this could be changed to six per floor if requested. Floors three through six remain the same.

The final rendering displays the restaurant's outdoor patio space formed from the radial core of the addition attaching to the Sparrow.

Studio Beyond

Winter 2024 - Studio 7

Canadian Centre for Architecture

Charrette Competition

Beyond the Roof - 1125 Colonel By Drive, Building 22, Ottawa, ON

Partnered with Hannah Robertson, Oksana Tkach, and Sarah Rath

This year’s contest was based on the idea that the spaces that exist on the world's rooftops are underutilized and remain uninvested. As invisible landscapes from the street, and difficult spaces to access, constructions on rooftops are places of possibility.

Each participating team was tasked to choose the roof of an existing building and propose an intervention that may take advantage of, or challenge, the roof as a fifth façade.

Although an ostentatious structure, the new roof proudly seeks the attention of passersby as it notifies them, that they are in the presence of an architecturally advanced building. This contemporary asymmetrical design allows Carleton University’s Azrieli School of Architecture and Urbanism building to expand its studio spaces beyond the heights of its traditional walls and soar into the fields of modern design.

The program underneath the new roof is meant to provide students with flexible open-concept spaces reserved for studios, galleries, lounges, and outdoor gardens. The roof is anchored by the existing cores of the building - four perimeter egresses and central elevator extended from the fifth floor. The space welcomes the architectural adaptation of the students who inhabit it and is meant to reflect the potential of the students who work within it.

Rhythm & Wings Theatre

Winter 2021 - Studio 3

The Operative Feilds of Architecture: House for Music

Community Theatre - 1213 Wellington St. W, Ottawa, ON

The Rhythm and Wings theatre was a second-year studio project which challenged my modelling and creative initiative.

Through a massing study, I began looking at how to divide and concur the program into a configuration that balances the ideas of circulation, light, exterior, and interior appeal, and experience. A harmony of private and public spaces meant that the music house could be used by multiple people at once, making it a successful and multipurpose environment for students, staff, and visitors.

By completing multiple variations of massing, an understanding of the importance of displaying the exterior facades concerning the street and fitting the program within the buildings was achieved. The lesson adapted to most from this project was the importance of not becoming too attached to a singular idea. Although you may think it is perfect, the first idea can always be modified or rethought to change your viewpoint. The massing taught me to find the correct rhythm and balance of designing.

Islands of Montréal: Infill Site

Islands of Montréal: Infill Site

Fall 2020 - Studio 2

Living Studios – on the Island(s) of

The roaring town of Little Burgundy is the site for my private and public gallery infill. Before designing, I needed to investigate its history. Trains were the primary source of movement in Little Burgundy, stopping at three main stations. By looking at train history, I could study town movement, which later helped me develop a strong circulation within my design. I studied the sleeping car porters, who were primarily men who worked to assist the wealthy occupants travelling by train, working long hours for little pay to bring home to their families, increasing slum conditions within Little Burgundy. From the site analysis, I chose to design humble buildings and only to express necessity, not desire.

Each model, plan, section and elevation package challenged a new idea, some similar or vastly different from the previous one. The development method and direct feedback allowed me to understand architectural concepts like sun pattern, circulation, scale, density, and appearance.

Walking Trail of Water - Sumida Park

Winter 2022 - Studio 5

Global Studio: Building in The City Sumida Park

Library, Water Building, and Theatre, 1 Chome Hanakawado, Taito City, Tokyo 111-0033, Japan

Studio 5 tittles “Design Studies Abroad” asked students to develop a thoughtful mixed-use, large-scale building program on a given site by focusing on architecture as participating within the complexity of a larger urban context. I was able to explore urban issues and theories through assignments that consider buildings as interrelated additions into the existing urban fabric.

The Journey of the Eye and Foot brings the topographical landscape of Sumida Park to all-new levels. Water and Sakura cherry trees are the prime residents of the park.

The library's architecture acts as a gateway building for incoming visitors to the park; after walking through the glass threshold, you are brought to a courtyard with views of the water, the path following the site, and across to the urban city. Upon your walk on the site, your eyes and feet divide from interaction with each other. Your path can be lowered, but your view of a destination in front of you can still be dominant. The Ferry Building acts as a bridge between land and water. As you travel across the serpentine paths and into the glass lower level, you are greeted with a sculptural gallery and views of the Koi fish pond surrounding its foundation. The walls guide visitors back to the water and out on the dock.

The park will conceal and reveal things as you experience them. Water should be visible from every view, no matter your location in the park. The park is sacred to over 60 Sakura cherry trees, grass pavilions, and preserved natural spaces.

07

Acrylic Paintings

The Colosseum 2019

A Scottish Castle 2019

The Night Owl 2023

Seeing the world from the ground up makes everything look larger than life. The sun filtering through the ceilings and tops of history casts long, downward shadows that eclipse the photographs. Painting was my way of serenity. I find peace while my brush is against the canvas. I have loved art my entire life, and art through the lens of architecture gives it more meaning than simply a beautiful image. I've enjoyed gifting my paintings to people who have influenced and helped me. The Night Owl was a gift to my former boss, The Colosseum was a gift to my art teacher, and A Sottish Castle was a gift to my mom. Each work is proudly displayed and a reminder of the fantastic people I have in my life.

ARCHITECTURE

DANA SIMEONI

Turn static files into dynamic content formats.

Create a flipbook
Simeoni Portfolio 2024 by danasimeoni - Issuu