PORTFOLIO
CPPARC 2023-2024
D A L I A
S A N D O V A L
Selected Works
LEIMERT PARK
CENTER
SCHOOL OF ARCHITECTURE
PG. 03
PG. 13
PG. 23
MT. WILSON HENGE
PG. 29

![]()
CPPARC 2023-2024
S A N D O V A L
LEIMERT PARK
CENTER
SCHOOL OF ARCHITECTURE
PG. 03
PG. 13
PG. 23
MT. WILSON HENGE
PG. 29

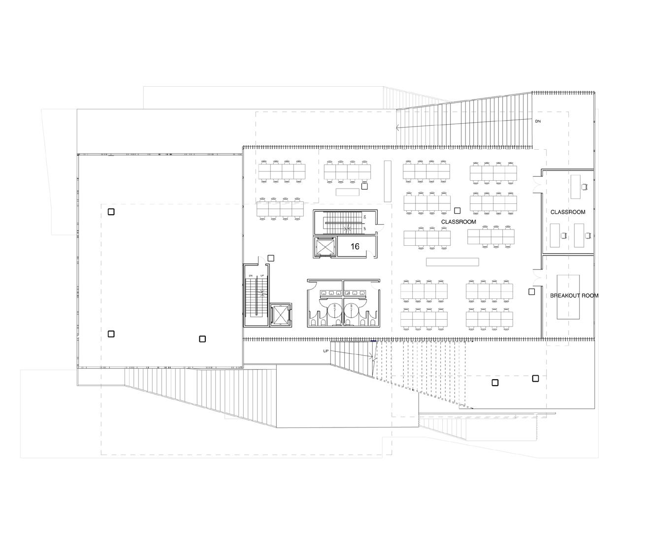
Leimert park is really known for its close knit commmunity with the use of large windows and large double height spaces people are really able to look out to its community and really connect ot the public life . In leimert park people were constantly socializing ,I was able to incorporate this in my spaces as welly by having a main large double height space this way people are able to branch out in their own groups and socialize just like they were outside. Even through the double height space with the catwalk people can wave and connect with one another not only looking outside to the outside community but also looking down to the inside communuty . No matter whereone is one can connect to its commmunity. he open spaces facilitate the infusion of light into the area, making it ideal for displaying paintings. This space os very direct as it there is only one point of entrance through the stairs but overall intorduces a grand space that one can explore and overall enjoy The layout also gives you a high and spacious view that lets you see everything around you. This wide perspective allows you to take in the entire space, making it feel big and impressive, giving you a full and immersive experience








1.AUDITORIUM








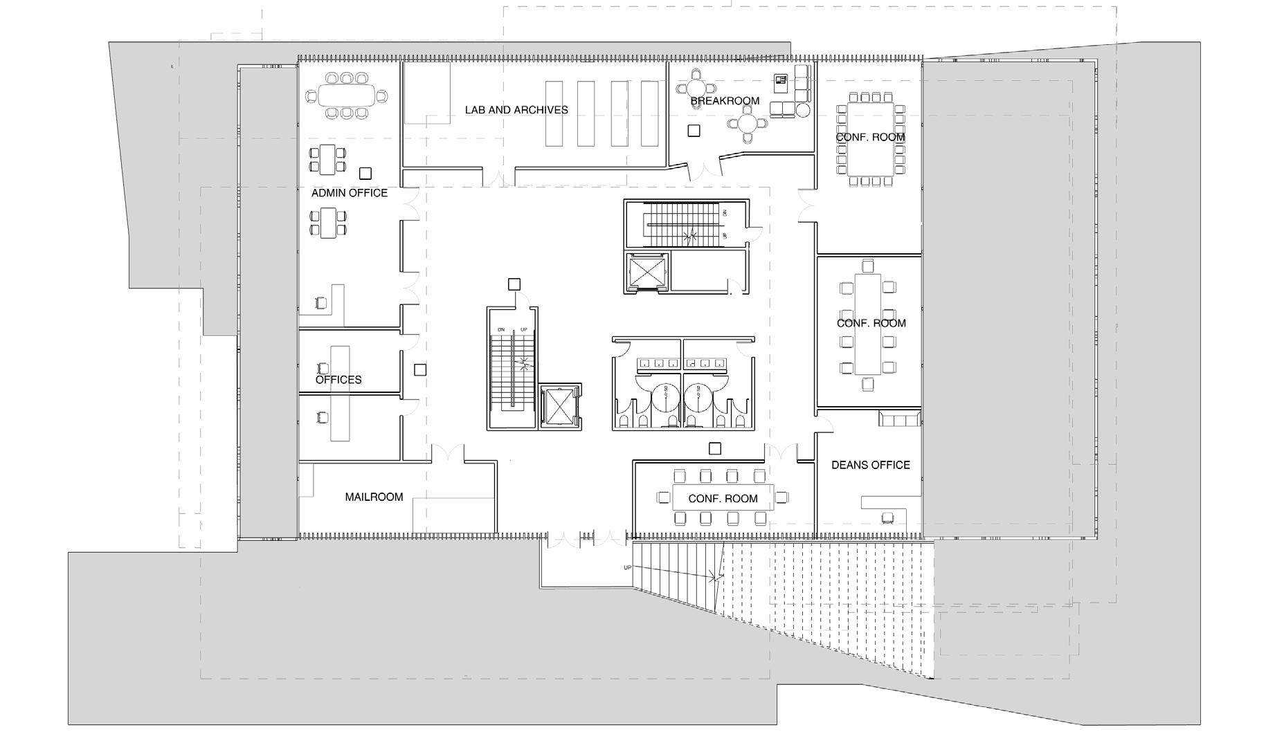
This project explores the concept of lifitng the community to into its halls of art, culture, and learning through a series of ramps scattered throughout the levels. These sectional specialties tie the floors togehter while also keeping the spaces onpen and light allowing for a transparency in the experience of being in the school. By offsetting the floor massings, we add another level of sectional interest in the horizontal plane. These shifts further develop the vertical connections by creating overhangs and double height spaces further connceting and strenghtening the idea of community not just as a school but as a community and as the city of Pomona itself. This permiability and interconnectedness transcends this building from a school to an iconic landmark and destination of the historcially and culturally rich community it is meant to represent. By altering the alignment of the floor levels, we introduce additional layers of visual interest horizontally. These adjustments enhance the vertical connections by forming overhangs and double-height spaces, reinforcing the concept of community within the school and extending it to embrace the city of Pomona. This seamless flow and interconnection elevate the building beyond just a school, transforming it into a prominent symbol and gathering place for the vibrant local community it embodies.


SITE PLAN
Scale: 1/32” = 1’ - 0”

GROUND FLOOR PLAN
Scale: 1/16” = 1’ - 0”














The Nottingham Contemporary is the focus of an assigned group case study that emphasizes the importance of teamwork and collaboration in architectural practice. Our task involves working together to produce detailed drawings, including floor plans and sections, based on reference photographs sourced from the internet. To achieve this, we apply standard construction codes and architectural measurements, which streamline the process and ensure the accuracy of our work. Collaboration plays a pivotal role throughout this exercise, as it allows us to divide tasks effectively, cross-check each other’s contributions, and ensure consistency in the final drawings. By coordinating efforts and sharing responsibilities, we aim to create near-original representations of the building, reflecting its design and spatial qualities.







Mount Wilson is known for its telescopes and technological adavnacements this project uses the telescope as both inspiration and structural metaphor, embodying a sense of discovery and celestial alignment. Each of the three components of the building acts like segments of a telescope, extending outward with purpose and form. This separation creates distinct spaces: a private retreat, a dedicated workspace, and a shared communal area at the core. The central communal space serves as both a literal and symbolic focal point, connecting the structure’s elements and providing a place for gathering, contemplation, and observation. This project features a thoughtfully designed pathway that guides visitors toward the building’s central focal point, creating a sense of discovery. Inspired by the way a telescope narrows light to a single focus, the path begins wide, offering open views of the landscape. Incorporating the winter solstice alignment, the building transforms into a temporal marker, allowing natural light to shine through its central axis at the solstice. This feature brings a seasonal rhythm to the building, echoing ancient architectural traditions that connect built spaces to celestial cycles. The alignment of sunlight through the structure on this day adds a dynamic interaction between light and architecture, highlighting the transition of time and nature’s impact on the space.







LATERAL X-DIRECTION
LATERAL Y-DIRECTION FOOTINGS





LEGEND









