Skip to main content

Dalia Atie Levin Portfolio

Page 1


Architecture Portfolio 2025

DALIA ATIE LEVIN

INFO

PERSONAL

March 19, 2003

Panamanian

Based in Downtown Toronto

CONTACT

daliaatielevin@gmail.com

+1 (647) 608-5928

www.linkedin.com/in/daliaatie

2024 SUMMER

Architecture Internship: Scotiabank

2023 SUMMER

Architecture Internship: Mallol

2022 FALL

Render Designer: Build the Park TO

2022 SUMMER

Architecture Internship: Henkin Shavit

EDUCATION TECHNICAL SKILLS

2021 - 2025 UNIVERSITY OF TORONTO

Specialist HBA in Architectural Studies

Certificate in Business Fundamentals

Minor in Urban Studies

2025 SENECA COLLEGE

Revit Architecture Course - Fundamentals

LANGUAGE

English Fluent

Spanish Fluent

Hebrew Half-Fluent

PROFESSIONAL

Communication Skills

Critical Thinking

Teamwork & Collaboration

Attention to Detail

Leadership Skills

DESIGN TOOLS

AutoCad Rhino 7

Revit

Grasshopper

ArcGIS

RENDERING SOFTWARES

Photoshop

SOFT SKILLS EXPERIENCE

Illustrator InDesign Enscape

Sketchup D5 Render

WORKSHOP + TRAINING

Laser Cutter

Band Saw Table Saw Router

Chop Saw

As a designer I have a mission to create empathic design. To create spaces that serve the well-being of people and help individuals feel connected, safe, and inspired.

Spaces that reflect the needs of diverse cultures, children, and communities, crafting environments that foster growth, inclusion, and comfort to its maximum potential.

THE SANCTUARY STUDENT

RESIDENCE

Embodying Sim Van der Ryn’s principles of empathic design, this student housing project places the inhabitant at the center of every design element. From the panel façade that adapts to sun exposure, to thoughtfully crafted balconies, common areas, landscape, and terraces, the design prioritizes student well-being. The existing building’s form adapts to the existing landscape, and the design creates a natural haven from the stressful university atmosphere.

Six elements of design that focused on the user’s needs to create a natural atmosphere to counteract the stressful university campus

APRIL 2024| UNIVERSITY OF TORONTO, 4 MONTHS INSTRUCTOR MAURICIO QUIROS

Rhino 7, Grasshopper, Illustrator, Photoshop, D5 Render, Laser Cutting Machine, Workshop Tools

CONNECTED LEARNING

Capstone Project for the TDSB

In today’s educational landscape—reshaping how students learn, think, and interact— it’s essential to rethink school design to accomodate the evolving educational system. I n collaboration with the Toronto District School Board, which manages over 500 public schools, this project reimagines common areas into transition points that strengthen connections between students, learning environments, and the broader community to create a more engaging and interactive learning experience.

Grounded in engagement and research on the educational landscape, we recognize the key to enriching education is connection. By bridging the gaps between the often-isolated networks of students with their peers, community, learning, and the outdoors, with either small or large scale interventions, educational facilities can be transformed into spaces of collaboration and interaction. This approach integrates community partnerships into the curriculum and fosters an inclusive, community-oriented learning using the framework outlined above.

Connecting Community: Engaging Surroundings
Connecting Outdoors: Open Educational Space
Connecting Learning: Supporting Diverse Methods
Connecting Students: Interaction & Identity
Sir
Cafeteria used as a Community Kitchen Food Festival for Neighbourhood
Gymansium used as an Event Hall Performance for Nursing Home
Common Area used as a Sewing Workshop for Students

2025 APRIL | UNIVERSITY OF TORONTO, 8 MONTHS

INSTRUCTOR MICHAEL PIPER, SNEHA MANDHAN

Rhino 7, Adobe Illustrator & Photoshop, Vray CNC Machine, Plywood, Acrylic Paint

SHIFTSPACE LIBRARY

STUDY SPACE ON CAMPUS

The design derives from the verb “shift.” Every element from the building form—from its volume to the floor plates and façade—is inspired by the concept of shifting, where a simple cuboid transforms into dynamic forms.

Situated beside UofT’s Goldring Centre, the structure subtly guides individuals to their destinations, showcasing the architect’s ability to shape landscape.

This cuboid analysis is a complete study of all forms transformed from a shift in a cube by moving its 6 faces, 12 vertices and 8 edges. It was used to generate the building form .

The following analysis (next page) shows all directional movements from each point in the diagram, inspiring the design of stairs and façade.

2022 MARCH | UNIVERSITY OF TORONTO, 4 MONTHS

INSTRUCTOR QUAN THAI

Rhino 7, Adobe Illustrator & Photoshop, Grasshopper

Laser Cutter Machine, Workshop Tools

DON RIVER WATERSHED

CONTOUR MAPS + GRADING PLAN

A hydrological analysis of a segment in the Don River Watershed at three different scales to evaluate how topography can improve drainage patterns. The study included a watershed plan at 1:10,000 with 10-meter contours, a regional watershed plan at 1:5,000 with 1-meter contours, and a local plan at 1:500 with 0.5-meter contours, which were used to inform the new grading plan.

2024 APRIL | UNIVERSITY OF TORONTO, 4 MONTHS INSTRUCTOR MEGAN ESOPENKO

ARCGIS, AutoCad, Rhino 7, Grasshopper, Illustrator, Photoshop

Based on the findings, a grading plan was developed to optimize drainage patterns for the new development and roads by extending the steep incline toward the watershed, incorporating two levels of retaining ponds, and designing two terraces within the first level near the development. This approach effectively slows water flow towards the river and away from the development, prevents soil erosion, and enhances the visual appeal of the surrounding landscape.

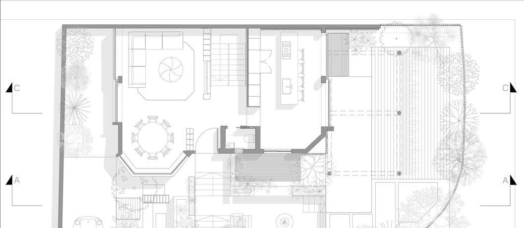
HENKIN SHAVIT

BEST WORKS: RESIDENTIAL PROJECTS

Designed graphics, plans and renders for the newly planned homes for clients, assisting the architects in refining ideas and adjusting structures, including the placement of the backyard pergola and outdoor lounge.

While collaborating with Henkin Shavit Design Studios, I gained a deep understanding of the architectural process, appreciating its complexities, patience, and creative rewards.

Ground Floor Plan: Variation 1
Ground Floor Plan: Variation 2

HENKIN SHAVIT DESIGN STUDIOS

AutoCad, Rhino 7, Enscape, Illustrator, Photoshop

CULTURAL CROSSROADS

ANALYSIS + DESIGN INTERVENTION

Parkdale, a vibrant multicultural hub in Toronto, often serves as a landing point for new immigrants. This research explores the cultural beacons within the community, highlighting its diversity and multiple ethnicities. The study of Masaryk Park led to a design intervention that expands its use, revitalizing the local farmer’s market. An alternative pathway and a newly designed cart were introduced to support the market’s growth that utilizes modular components and slide-in design to allow for flexible configurations based on specific needs.

2022 NOVEMBER| UNIVERSITY OF TORONTO, 4 MONTHS INSTRUCTOR SIMON RABYNIUK

Rhino 7, Grasshopper, Enscape, Illustrator, Photoshop

Slide-In Concept

daliaatielevin@gmail.com

+1 (647) 608-5928 www.linkedin.com/in/daliaatie

Turn static files into dynamic content formats.

Create a flipbook
Dalia Atie Levin Portfolio by DALIA ATIE - Issuu