NGHIÊN CỨU CHUYÊN ĐỀ - SPA

Page 1

NGHIÊN CỨU

CHUYÊN ĐỀ ĐỒ ÁN SPA

GIÁO VIÊN HƯỚNG DẪN:

NGUYỄN PHÚC TIẾN ĐẠT

SINH VIÊN THỰC HIỆN:

HUỲNH HỒ PHÚ TRÍ

MSSV: 12006002

MUSH SPA

Địa điểm: 144 đường Nguyễn Trỗi – Quận Phú Nhuận- TP. Hồ Chí Minh

Với cuộc sống hiện đại ngày càng bận rộn, làm cho con người bị căng thẳng hơn. Vì thế sự nhận thức tốt của mọi người về sức khỏe và làm đẹp được ưu tiên hàng đầu. Do đó, nhu cầu về sức khỏe như việc ăn uống, tập thể dục hay đến với Spa để được thư giãn, cân bằng sức khỏe ngày càng được chú trọng. Hiện nay, Spa không chỉ dành cho những người giàu có. Mà Spa đã trở thành một phần tất yếu của cuộc sống. Nhu cầu về sức khỏe và làm đẹp hiện nay ngày càng được nâng cao, với mong muốn mang đến cho phái đẹp vẻ đẹp tự nhiên, hoàn hảo, an toàn nhất.

Sự thân thiện và thư giãn là cảm nhận đầu tiên khi bạn ghé thăm MushSpa. Với không gian tinh khiết ngập tràn các hương thơm từ tinh dầu thảo dược thiên nhiên và âm nhạc du dương đánh thức mọi giác quan, giúp bạn như lạc vào thế giới riêng thật hài hòa, trang nhã. Các vật dụng được trang trí trong căn phòng cũng được phối hợp một cách tinh tế làm cho không gian thêm thoáng mát, sống động nhưng không kém phần lịch sự.

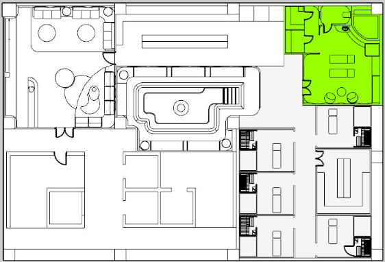
Locker

Phòng VIP Khu massage

Jacuzzi

Reception

Quytrìnhhoạtđộngspa:

1 Đón tiếp khách.

2 Tư vấn sản phẩm, dịch vụ và thăm khám tình trạng khách hàng.

3 Thực hiện dịch vụ đã thống nhất với khách hàng.

4 Hướng dẫn khách cách chăm sóc sau liệu trình, thanh toán và tiễn khách.

Sơđồgiaothông Sơđồphânkhu

WABI SABI

Wabi sabi trong tiếng Nhật về căn bản được hiểu là tìm kiếm nét đẹp chưa hoàn thiện. Nó phối hợp từ 2 từ riêng biệt Wabi và Sabi.

Wabi nghĩa là khi nhận ra sự đủ đầy trong tâm hồn qua những nhu cầu sống đơn sơ, khiêm tốn về vật chất. Cũng giống như việc bạn tận hưởng điều tuyệt vời từ sự tĩnh lặng từ thiên nhiên, tìm về cốt lõi của cuộc sống hạnh phúc.

Sabi là vẻ đẹp được mài giũa qua đôi bàn tay của không gian và thời gian. Các chi tiết của đồ vật, nội thất như được khoác lên mình chiếc áo bụi bặm sạm màu nhưng đủ độ chín muồi. Những phẩm chất đẹp và khí chất tao nhã dường như đều nép mình đằng sau tấm áo ấy. Để rồi những sứt mẻ tạo nên nét quyến rũ và hoài cổ mà ai cũng muốn được một lần nghiền ngẫm.

Phongcáchnộithấtwabisabi

Phong cách nội thất wabi-sabi truyền cảm hứng cho chủ nghĩa tối giản, tập trung vào chính những người sống trong không gian hơn bất kỳ thứ gì khác.

Đ ồ đạc được lựa chọn dựa trên một trong ba yếu tố: Tiện ích, vẻ đẹp hay hoài cổ (hoặc là sự kết hợp của cả ba yếu tố).

Đốitượngkháchhàng

Đối với dịch vụ spa, khách hàng chủ yếu thường là những chị em phụ nữ thích làm đẹp và chăm sóc bản thân. Đối với ngành nghề spa, chúng ta có 4 nhóm khách hàng:

- Khách hàng lần đầu sử dụng dịch vụ.

- Nhóm đối tượng khách hàng trung thành.

- Đối tượng có tiềm năng lớn.

- Đối tượng khách hàng có giá trị nhỏ.

DRAWING NAME ISSUE DATE NGÀY HT DRAWING STATUS DRAWING No. HIỆU CHỈNH STT NGÀY MÔ TẢ NỘI THẤT THIẾT KẾ THI CÔNG SVTH TÊN BẢN VẼ SỐ BẢN VẼ LOẠI BẢN VẼ TRƯỜNG TRONG QUÁ TRÌNH THI CÔNG CÓ SAI LỆCH KÍCH THƯỚC GIỮA BẢN VẼ VÀ HIỆN TRẠNG, ĐỀ NGHỊ KIỂM TRA KÍCH THƯỚC THỰC TẾ TẠI CÔNG TRÌNH TRƯỚC KHI THI CÔNG, TRÁNH XẨY RA SAI SÓT. HUỲNH HỒ PHÚ TRÍ GVHD LÊ QUANG NHẤT TRƯỜNG ĐẠI HỌC YERSIN ĐÀ LẠT NGÀNH KIẾN TRÚC - NT KHOA KT MTCN 12006002
THAM QUAN KIẾN TẬP DRAWING NAME ISSUE DATE NGÀY HT DRAWING STATUS DRAWING No. HIỆU CHỈNH STT NGÀY MÔ TẢ NỘI THẤT THIẾT KẾ THI CÔNG SVTH TÊN BẢN VẼ SỐ BẢN VẼ LOẠI BẢN VẼ TRƯỜNG TRONG QUÁ TRÌNH THI CÔNG CÓ SAI LỆCH KÍCH THƯỚC GIỮA BẢN VẼ VÀ HIỆN TRẠNG, ĐỀ NGHỊ KIỂM TRA KÍCH THƯỚC THỰC TẾ TẠI CÔNG TRÌNH TRƯỚC KHI THI CÔNG, TRÁNH XẨY RA SAI SÓT. HUỲNH HỒ PHÚ TRÍ GVHD LÊ QUANG NHẤT TRƯỜNG ĐẠI HỌC YERSIN ĐÀ LẠT NGÀNH KIẾN TRÚC - NT KHOA KT MTCN 12006002 RECEPTION LOCKER VIP XÔNG HƠI ƯỚT JACUZZI 1 1 2 3 4 2 3 4 A A B B C C MẶT BẰNG CẢI TẠO TỈ LỆ 1/150

RECEPTION

JACUZZI

PHÒNG VIP

Turn static files into dynamic content formats.

Create a flipbook
Issuu converts static files into: digital portfolios, online yearbooks, online catalogs, digital photo albums and more. Sign up and create your flipbook.