











![]()





































































090-9115-3110
e1222048@oit.ac.jp































My Achievements y
1年前期課題 透視図法による外観パース 学内講評会選出
1年後期課題 図面模写課題「静岡の家」 学内講評会選出 最優秀
2年前期第一課題 住宅 学内講評会選出
2年前期第二課題 セカンドハウス 01 学内講評会選出 最優秀 バーティカルレビュー Grandjury2023 10選 近畿学生住宅大賞 企業賞
2年後期第一課題 集合住宅 02 学内講評会選出 最優秀 (バーティカルレビュー Grandjury2024
1 次選考通過)
2年後期第二課題 ラーニングセンター 学内講評会選出
3年前期第一課題 道の駅 学内講評会選出
3年前期第二課題 区庁舎 03 学内講評会選出 最優秀 バーティカルレビュー Grandjury2024 30選
02 03



2年前期第二課題






























学内講評会選出 最優秀作品
バーティカルレビュー グランドジュリー2023選出 10選
近畿学生住宅大賞 企業賞
2年前期 第二課題 「翳の羽」
自然が生い茂る敷地に建つセカンドハウス。そこに悠々と羽 (は)が翳 (かざ)されている。
その羽は自然を繋ぐものとして、空間にグラデーションをもたらす。
そんな場所に休日に来る親夫婦、若夫婦の2世帯による通しから離れた非日常の建築を提案する。
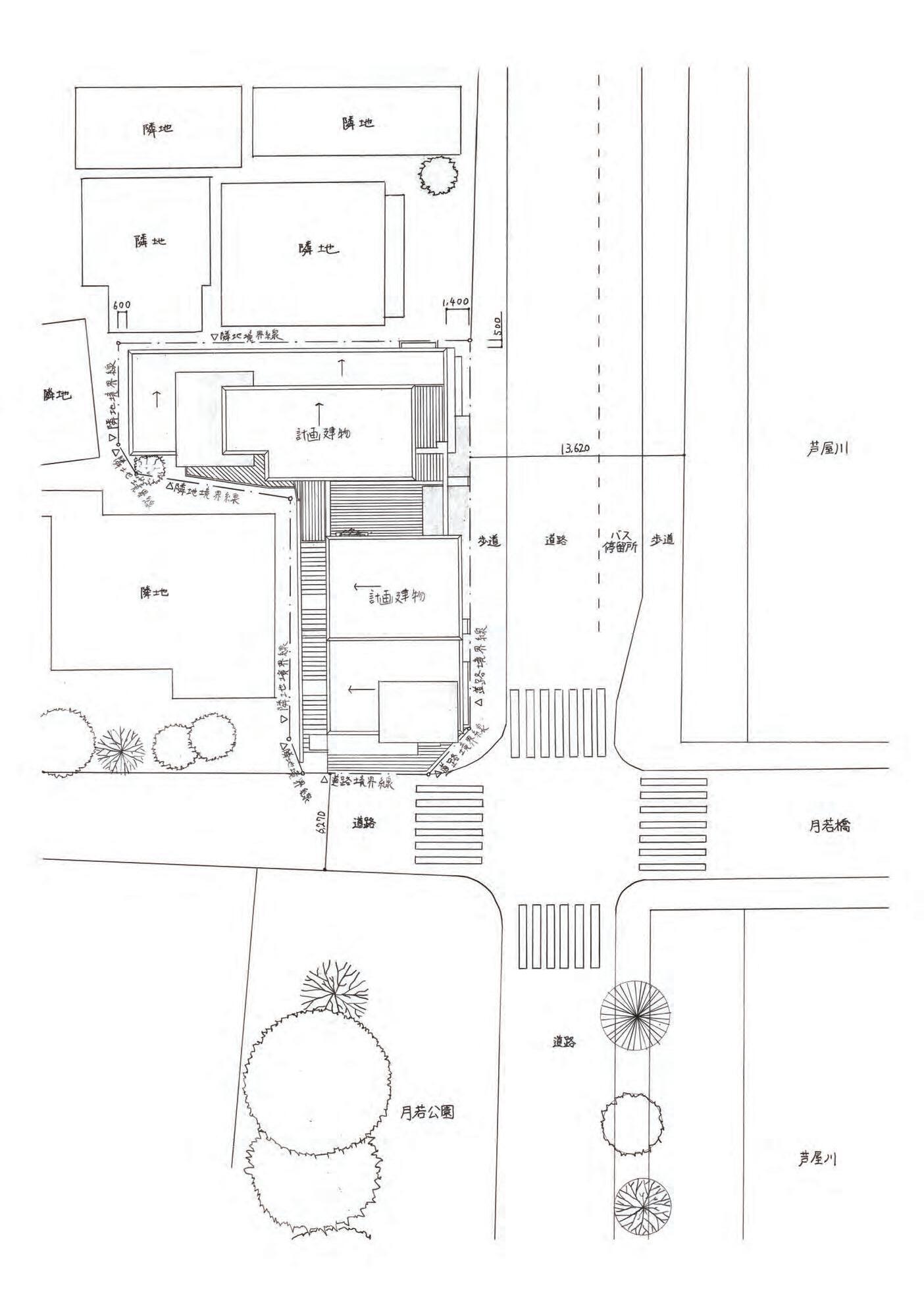
所在地 :兵庫県灘区六甲山町
構造 :木造
家族構成 :夫(44)弁護士事務所主宰
妻(42)翻訳家
父(62)弁護士事務所顧問
母(60)主婦
使用用途 :休日にセカンドハウスに訪れる。






















■全体造形

南北の山なりにそって自然と一致させている。







そうすることで自然の中に空間が生まれ、生活の一部が溶け込む。



























































































配置図兼屋根伏図1/500 1階平面図1/150













集合住宅
学内講評会選出 最優秀作品 バーティカルレビュー グランドジュリー2024 1 次選考通過
近畿学生住宅大賞’24 提出作品
2年後期 第一課題
芦屋に集う額縁。 額縁に集う芸術家たち。
それらが集うことで集合住宅という作品が出来上がる。
刻々と変化してゆく彼らの生活は額縁によりアートとなり、街の住民 や街の景観は額縁に集う。
そのような額縁によって切り取られた行為、 自然、アート、時間 との共生が叶えられる建築を提案する。


兵庫県芦屋市月若町の一角
敷地周辺は周辺住民の散歩道になっていたりしており、 交通量も多い。また駅が近くにあり、敷地周辺であり を止め、 立ち止まる人が多いイメージ。だからこそ敷 地に建築が建つと人々の目に残ることになるだろう。
バス停で待っている時




この集合住宅は芸術家たちが集う場所である。
しかし、調査を重ねていくうちに作品(アート)を見てもらう機会 が少ないという声が多かった。
そこで作品を住民以外の通りすがりの人にも目に入るように額縁 (集合住宅) を設計した。
そんな額縁での彼らの生活をもアートの一部になることを願う。








ラーメンで額縁を表現

人をラーメンで切り取る















個性で額縁を表現 【 IN. 】


人を個性で切り取る
芸術家たち
個性を額縁で切り取る







カフェ(in額縁)
一般の方でも芸術を体 感できるような額縁。
階段を切り取ることで人 の不意な行為もアートと なる。

西立面図1/200

南立面図1/200
水廊
水の上の足場を最小限 にすることで水面や音 から自然を感じれる。

Saito Portfolio

1階平面図1/100


段廊(朝から昼)
段廊(昼から夜)
1階から3階まで連なっている段は人に期待感を与える。
また光や陰によって、時間のうつろいを感じれる。

2階平面図1/100


画廊
奥まで続くギャラリーは各アトリエに 面しており、自然と住民がつながる。
個性を額縁で 切り取った様子
内からは感覚的に個性がつながり、 外 からは個性を 俯瞰的 に読み取る ことができる。


奥行きのある画廊に壁廊という行き止 まりを作ることで特別館が生まれる。



4階平面図1/100


上から壁や階段、梁など 非日常的 な眺望 が可能。3階にある画廊や壁廊が見れる。







この集合住宅では彼らでも気づきえない額縁があるのかもしれない…

























学内講評会選出 最優秀作品 バーティカルレビュー グランドジュリー2024 30選
3年前期 第二課題 「余白は街から」
様々な公共性の中にある庁舎。
それはCommon(公的場所)、Official(たまり場)、Open(余白 )の3つの公共性だ。
様々な方向に開かれた敷地に街からワンクッションの余白を入れ、 街からの連続性が生まれ、 透ける庁舎としてそこに建つ。
そして複雑に絡み合う要素によって普段出会うはずのないものの繋がりが演出される建築を提案する。






































→行政機関が業務を行うための建物を指す。また庁舎は 般的に、住民が公共のサ ビス を受けるために訪れる場所でもある。



本計画地は東西南北に多方向に開いており、街を受け止める存在ともなっている。そういう敷地 だからこそ区役所に適している敷地だ。
また周辺は小学校や公園があり、どの時間帯でもにぎわう様子が見られる。





行政機関というイメ ジが強くなっているため、手続きなどの目的がないと行かない現状 がある。
↓







そうすることで街の在り方が市民や従業員の日常から決まるという本来の庁舎で在れる?
行政という official の場に、市民や従業員の common や空間の余白 (open) を混ぜること で様々な人の日常が行政の場で築けるのではないか? と





【形状ダイアグラム】




































都会という整備された街並みを表現する。










様々なスケ ルに変換











【構造計画】











付近見取図1:4000





〇枠組みによる減増築の可能性
街のシンボルとなる庁舎として、 減増築できる更新可能なものとなり街に残り続ける。
〇均一なグリッドによる耐震性


均 な並びにすることで力の流れが生まれ 、 耐震性が上がる。
〇好縁による新たなコミュニティ
枠組みによる複雑な連なりが市民と役員を繋げ、 出会うはずのないものによる視線、匂い、 光の繋がりが生まれる。

空間的な繋がり、
身体的に繋がるスケ ルを様々当てはめる。





















北区という街並みを見立てた景観 様々なスケールに変換 2 つの「こうえん」
公園と好縁

扇町公園と連続させ、木材と緑を立体的に巻き込み、 公園による好縁が可能だ。
































バインド工法」










生活












る ずれれと金具に具による よ 剛接
ずれと金具による 剛接合


空間を纏い、様々な方向へ広がり繋がる。
「やぐら組構造」 「レシプロカル やぐら組による柱と梁のずれにより構造材 の勝ち負けがないため、自由度が高い 木組みの連なりは人のスケール、 様々な方向へ広がり繋がる。






災害 季節






木造の枠組みが残り、余白の模様替えをする建築。 ここは透ける庁舎として人の目に残っていくだろう。





























扇町公園沿いの北面道路から見た様子




























駐車場の様子(奥はイベントスペース)


























JR大阪環状線から見た様子





















扇町公園から見た様子






























































上部のハイサイドライト によって昼間は常に木 漏れ日によって照らさ れる。ここでは死人を中 心にイベントができ、森 の中にいるような非日 常が市民ホールで体験 することができる。





【交流テラス】
このテラスは街と庁舎に ある休憩場所。これはあ る日の朝の様子であり、 仕事前の時間である。こ
このテラスは街と庁舎に




こでは従業員同士の会 話が生まれ、心地よい 環境の中で会議もする ことができる。
環境の中で会議もする















夕方ごろの総合窓口前 のテラス。差し込む夕日 に照らされながら、学 校帰りの子連れの家族 や仕事帰りのサラリー マンが集う。そこにはふ としたコミュニティが生 まれるだろう。







【屋外テラス】
ここは一階の屋外テラ
ス。外部からのアクセス
のしやすいように通り沿 いに配置している。また
、ライブラリーやイベン
トスペースとも隣接して いるので、気軽に休憩 できる。














屋根











【従業員用テラス】
ここは従業員しか入ること のできないテラスになって いる。使用用途は主に従 業員の休憩場所。オフィス ンの風景に対面しており、 間に 間がある。近いよう で遠い。そのようにしてON とOFFが切り替えれる。


















この建物の最上階にある
がコアしかなくほとんどが おり、架構の中を歩ける、
この建物の最上階にある 屋上テラス。ここでは内部 がコアしかなくほとんどが 外部空間となっている。木 造グリッドが空まで伸びて おり、架構の中を歩ける、 一種の公園となる。また屋 上から扇町を俯瞰できる。














【ビオトープ】
ここは南面に位置する場所 。南にはキッズプラザがあり、 かなり環境的に悪くなって いる。そこでため池を作りビ オトープにしている。現在の キッズプラザの軸に合わせ て入り口があり、敷地外から 人の流れを受け入れる。




展望ロードは西沿いの扇 町公園に向かって開いて いる。木調の雰囲気の中 に立体的に緑地が広が り、風に揺られる。木造グ リッドの中に複雑に構成 される出会いを促す。


展望ロードは西沿いの扇 リッドの中に複雑に構成






































































































































































































建築合宿2024 山口賞(審査員賞)









1年絵画演習

1年パース課題

1年PBL課題

2年住宅課題2年ラーニングセンター課題グランドジュリー2024



建築文化研究部(部員120名)ー shu-mai班班長(班員82名)




















































090-9115-3110
e1222048@oit.ac.jp




























