Architecture Portfolio Dagoberto Escobar

Page 1

PROFILE

DAGOBERTO ESCOBAR CONTACT

ARCHITECT

EMAIL: dagoberto.escobarcastillo@gmail.com (+505) 8758-4944 MANAGUA, NICARAGUA

CV

CURRENT EMPLOYMENT

-JUNIOR ARCHITECT AT INDENICSA

EXPERIENCE

-SMART MINIMUM HOUSING DESIGN (COAN) -UPDATE OF EMERGENCY BLUEPRINTS AND LOCATION OF FIRE EXTINGUISHERS AT UNIVERSIDAD CENTROAMERICANA (UCA) -3D VISUALIZATION, ARCHITECTURAL PROJECT LA GARNACHA - RENDER -SOCIAL HOUSING DESIGN TO FAMILIES FROM BARRIO EL KILOMBO, CIUDAD SANDINO, MANAGUA, NICARAGUA

EDUCATION

-BACHELOR (2016) -CENTRO CULTURAL NICARAGÜENSE NORTEAMERICANO (2016-2018)

-UNIVERSIDAD CENTROAMERICANA (2017-2022) -COURSE OF REVIT 2021 CASTUDIO

LANGUAGES

-ENGLISH / INTERMEDIATE PROFIENCY -SPANISH / NATIVE PROFIENCY

VH MINIMAL

INTRODUCTION

The sustainable designs are an integral part in solving enviromental challenges which our planet faces; the urgency of generate mechanism that helps living in armony with the surrounding enviroment become more latent.

The principal idea of this minimum housing design is to use a modular grid allowing it’s construction and development if it’s necessary; this house tries to solve the needs properly, under a progressive growth.

House VH has use of technological and sustainables alternatives as water saving, electric energy, recycling, and efficient use of materials along with the implementation of a boneyard and the respect of trees and existing vegetation.

PROJECT LOCATION CONCEPT

The project is located in Vista Hermosa neighborhood, Ciudad Sandino, Managua, Nicaragua. It’s accessed by Nueva a León roadway; as land use we can find medium density housing, stores and mixes uses like housing and services. This zone has a particular and fast development, in industries, education, health sector, recreation and entertainment.

04 PORTFOLIO DAGOBERTO ESCOBAR 01
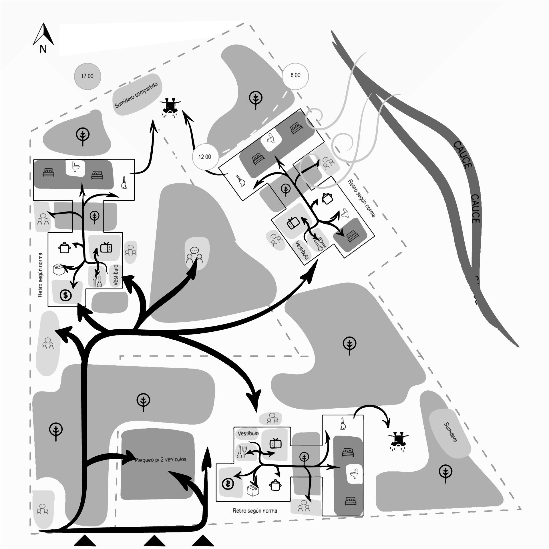
SMART
MINIMAL HOUSING DESIGN - 2021
BASIC FORM 1- SUBS. & EXTRACTIONS 2- 3-ADDITIONS SOLAR ANALISIS 4- VEGETATION AREAS 5- FINAL RESULT 6-
05 ARCHITECTURE PORTFOLIO
Render 1: Isometric exterior Render 2: Living room & Kitchen design

1st.

06 PORTFOLIO DAGOBERTO ESCOBAR
ELEVATIONS
FLOOR PLANS
room
Floor Plan: 1-Foyer/Living
2-Kitchen 3-Hallway/Staircase 4-Bathroom
1 2 3 4 5 6 7
2nd. Floor Plan: 5-Hallway 6-Bedroom area 7-Closet

The main idea of this design was to create a house that can respect and use of natural resources, trying to connect with the enviroment, that’s the reason to use hay bales and bamboo as constructive system.

ARCHITECTURAL SECTIONS

SUSTAINABLES ELEMENTS

07 ARCHITECTURE PORTFOLIO
WATER SAVE LIGHT AND VENTILATION
Render 3: Bedroom

VH MINIMAL

SMART MINIMAL HOUSING DESIGN - 2022

LOCATION

SITE ANALYSIS

BRIEF

The foundation of the neighborhood El Kilombo-Nuevo Amanecer, in the municipality of Ciudad Sandino in the city of Managua, arises from the housing deficit that has been plaguing the country for a while; the cases that were selected in the neighborhood represent a percentage of inadequate housing, due to construction systems, materials and/or location.

For this reason, a model of social housing with progressive growth is proposed containing elements from the bioclimatic architecture with the aim of building comfortable and functional spaces, improving the quality of life of the selected families and providing an answer to the housing deficit and the environmental impact generated by new constructions.

The houses contemplate sustainable criteria such as the use of local and ecofriendly materials, as well as the use of natural ventilation and lighting to help generate a positive impact on the environment and serve as a model for housing development in the neighborhood.

08 PORTFOLIO DAGOBERTO ESCOBAR
02

FORMAL CONCEPT

09 ARCHITECTURE PORTFOLIO
Render 1: Exterior facade w/ commercial area

SUSTAINABLE CRITERIA FLOOR PLAN

The solution is divided by three types of families, the ones who wants to get an progressive house with commercial area, the ones to have a big home for a crowded family and the ones whom needs to resolve the last two social problems.

The formal concept of this design relies in growth and transformations than this house can get since it’s 1st stage to the final phase; as first, the principal form is given by the abstraction of an rectangle making cuts out & subtractions. This model look forward connections and interaction with the surrounding enviroment by solar analysis, ventilations and leveraging of natural resources which can increase the satisfaction and familiar life quality, by bioclimatic architecture.

10 PORTFOLIO DAGOBERTO ESCOBAR

The construction of this model is proposed using progressive criteria, allowing it to growth as much as it users does. As principal materials we find, concrete blocks, adobe flooring, re-use of metallic structures like zinc for facades and the use of natural resources that permit habitants to live respecting the enviroment

11 ARCHITECTURE PORTFOLIO
Render 2: Bedroom Render 3: Exterior area non-commercial

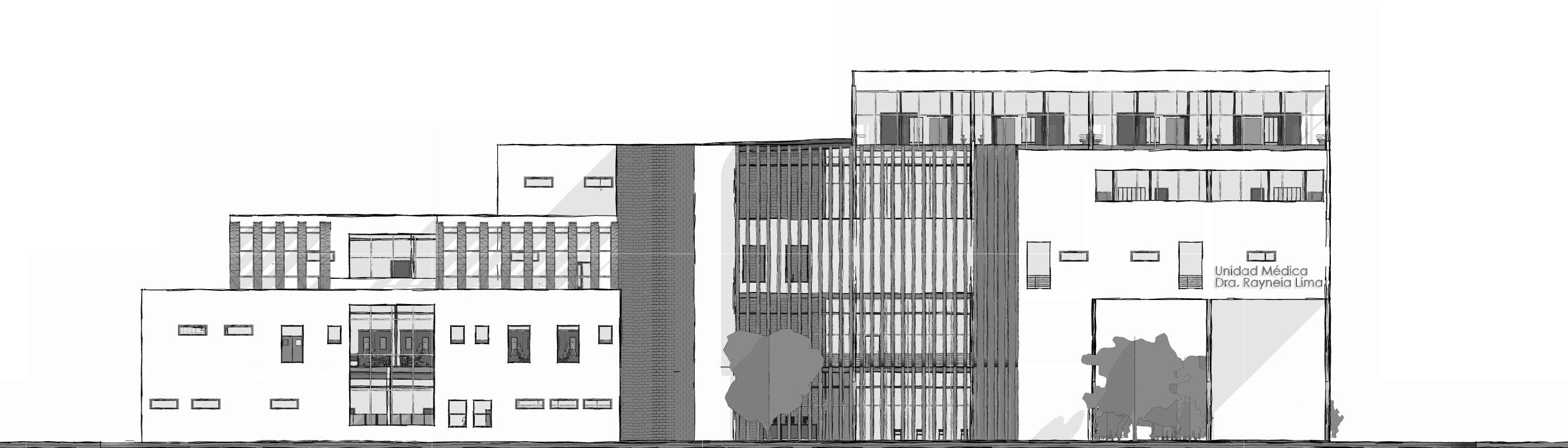
03 Dra Rayneia lima

MEDICAL UNIT - 2020

PROJECT LOCATION

Contagious illness like Covid 19, made human realized that anyone is not prepared for anything out of the ordinary. The principal idea from this building, is to create an especific space that can host infectious and contagious diseases whom need inmediatly and quality atenttion.

The whole idea of this medical unit is to save nicaraguans life through immediate attetion; the design

process contemplate connections with exterior areas like terraces and inner patios.

The project is located at III district next to Juan Pablo II CRT in the neighborhood called Tierra Prometida, Managua, Nicaragua.

12 PORTFOLIO DAGOBERTO ESCOBAR
13 ARCHITECTURE PORTFOLIO
Render 1: Intensive care unit Render 2: Terrace

BRIEF

This building has it own ecumenical hall, designed to pray and ask for the people in dangerous, with a minimal and modern concept, using wood, porcelain floor and marble sculptures, & having direct natural lighting to save energy during the day.

The whole space was planned to meet peace and relaxation to familiars even if they are fighting against the worry to lose a beloved. The form of the cross was designed to contemplate the space out of the ordinary using Sheetrock and LED tapes marked by a marble altar and sculptures with the same material.

Also, this building include a terrace in hospitalization area where the patient can be souronded by nature and warm elements; all this to take care and help the recovery of each person, using natural resources joined by architecture principles.

Also, this building include a terrace in hospitalization area where the patient can be souronded by nature and warm elements; all this to take care and help the recovery of each person, using natural resources joined by architecture principles.

14

Render 3: Ecumenical hall

15 ARCHITECTURE PORTFOLIO

04 Urban Improvement

URBAN PLANNING, OMETEPE ISLAND, RIVAS, NICARAGUA - 2021

PROJECT LOCATION

Moyogalpa is a municipality in the department of Rivas on Ometepe Island, Nicaragua. The municipal seat has a distance of 17 kms to the Port of San Jorge, located on the shores of Cocibolca lake.

Economic Distribution

The main economic activities of the municipality are: agriculture & livestock, depending mainly on basic crops such as rice, beans, corn and bananas. Exactly in the study area the principal activity is the turism by the port that connect Ometepe island with others departments of Nicaragua.

Infrastructure

The communication system on Ometepe Island and the rest of the country is made up of the terrestrial and aquatic systems, the first strip of study it’s divided by paved and dirt roads. Also Ometepe had once it’s own airport but this is not working anymore.

16 PORTFOLIO DAGOBERTO ESCOBAR
Map planing Moyogalpa, Ometepe Island
17 ARCHITECTURE PORTFOLIO
Render 1: Seaport & bus station

INFRAESTRUCTURE &SERVICES

The community in the study area of the city of Moyogalpa needs some changes in the architectural and urban distribution, to invite more tourists to stay in the area, taking advantage of the natural views and the commercial sector. Icons were found in The Noun Project by different digital creators.

18
care & preservation Natural dykes Coastal clean-up
lighting
mobility Social security Commerce &
restoration Enhanced walkability Modern urban image
needs
E N V I
ECON O M I LAC
COMMUNITY NEEDS
Enviromental
Public
Sustainable
tourist
Increase commerce Improving tourism Building restoration Integration Human
Green approach
ROMENTALPROPOSALS
SLASOPORP

Transportation proposal: Alternatives methods as byke lines & improving public transportation from all the area.

Connection proposals: Roads were proposed to increase visitors in the zone & to connect people who live in it’s surronds.

Cleaning: Natural filters for air & water contamination and finding ways of recycling.

Going green: The study area is surrounded by trees & natural resources, the idea is try to live & respect it.

Lights & more lights:

As part of the security in the zone, the project contemplate lights fittings

The proposed guidelines for the study sector are based on the preservation and care of green areas and Lake Cocibolca, along with the regeneration of the urban-environmental setting, the implementation of natural levees to protect the area from flooding and improve the connection of the strip with other areas through the implementation of safe, efficient and integrated mobility.

19 ARCHITECTURE PORTFOLIO
Render 2: Park & arboretum

The main concept of this design is to make the first strip of the city unique, respecting the existing organization and the natural resources it possesses. This generated exclusive pedestrian zones next to the seaport, to provide security & increase walkability and commerce around the strip.

According to reports in the area the zone has been affected by flooding, being an important key for the intervention proposal, that is the reason of natural dykes all around the first strip to protect people and their dwellings.

20
Land use Vacant properties Institutional Housing uses Leisure areas Lodging & hotels Lakeside port Main streets Cobbled streets Dirt roads Equipments Roadways
Urban
Dykes Recreation
Areas
LANDSCAPING INTERVENTION
78.7% 4.2% 5. 4% 60 % 10% %03 67.2% 1 .1 %4 12 4. %
Cleaning Lighting
connection
areas Enhancement
Care
AREAS

In adittion of the improvement to the existing streets in the sector, it’s proposed the implementation of four circulation elements which are:

1. Cobblestone roadway to vehicular circulation.

2. Bi-directional asphalt bicycle lanes.

3. Increase walkability and healthy lifestyle propossing pedestrian walkways.

4. Dirt nature trails through existing green areas.

21 ARCHITECTURE PORTFOLIO
Render 3: Park & views of the Concepcion Volcano

FUNCTIONAL URBAN PLAN

Lakeside port

Natural dyke

Building removal

Upgraded roads

Main streets

Bike lanes

Pedestrian walkways

Lighting Connection points

Green spaces & recreation

Cocibolca park: in front of the Cocibolca Lake, reusing this space and turning into peaceful and green area.

As final result, the concept aims at the recovery of the 1st strip through sustainable interventions that provide an improvement in both the urban and environmental areas, mainly focusing on the rehabilitation of the ecosystem and the recovery of mobility and public safety.

22
23
Render 4: Cocibolca park & atracctions Render 5: Close up lake & streets Render 6: Lake observatory Render 7: Main park and commerce area

RENDERS

CONHITA’S STORE

SOFITEL ART GALLERY

EMERGENCY HOUSING DESIGN THE VOLCANO

25
Showroom Varieties Conchita's store
Emergency housing design The Volcano 26
27
Sofitel art gallery

Turn static files into dynamic content formats.

Create a flipbook
Issuu converts static files into: digital portfolios, online yearbooks, online catalogs, digital photo albums and more. Sign up and create your flipbook.
Architecture Portfolio Dagoberto Escobar by José EC - Issuu