Skip to main content

Portfolio of Selected Works

Page 1


fire house no. 7 two to nine

four sets of models thirty-eight to forty-five C O N T E N T S

public access vitrine ten to fifteen

a catalogue of spaces sixteen to twenty-one

madeley tower house twenty-two to twenty-nine

thermae nuovi di grosetto thirty to thirty-seven

FIRE STATION NO. 7

Columbus, Indiana, USA

Spring 2023

Collaborator: Karl Pietsch

and a public institution a private residence

This design responds to the role of the firefighter as both a public servant and a private volunteer. The three elements of the fire station (a garage, a residence, and a working space) are mirrored in the three masses which compose the design. On the ground floor, the apparatus bay and living spaces are rotated to create a series of outdoor gardens, while more private sections, like the sleeping area, are located upstairs. The second floor, a glass cantilever, provides a contrast to the dense brick used throughout the ground floor. Some of the walls which alternately puncture and define the project’s three masses thicken to become occupiable and functional elements. They contain Fire Station No. 7’s circulation, structure, and seating as well as space for firefighting-related activities, storage, repair, and training.

detail from the ground floor plan of fire house no. 7; the apparatus bay (bottom left) is separated from the residence (top right) by an occupiable wall system

a b o v e

the rear of the fire house, viewed across the parking lot and garden

c e n t e r

an outdoor space for public use, formed by the intersection of the apparatus bay and office block

b e l o w

the interior of the apparatus bay, looking towards the elevator, lockers, and entrance to the residential wing entrance

a b o v e

a series of vignettes showing ways in which the main walls are occupied or used by firefighters on a daily basis

b e l o w

diagrams summarizing the form, organization, and usage of fire house no. 7

the site plan, showing a neighborhood in the western portion of columbus, indiana

the ground floor plan, showing the apparatus bay, outdoor areas, and the lower floor of the residence areas

the second floor plan, containing the sleeping area, gymnasium, and bathrooms

3.5”

p r e v i o u s

this sectional axonometric shows the point at which the glass enclosure of the apparatus bay meets the occupiable brick wall; the steel beam system which supports the cantilevered second floor is also visible

a b o v e

a detail section cut through the brick walls of the ground floor, showing the construction of the footing, wall, and green roof

b e l o w

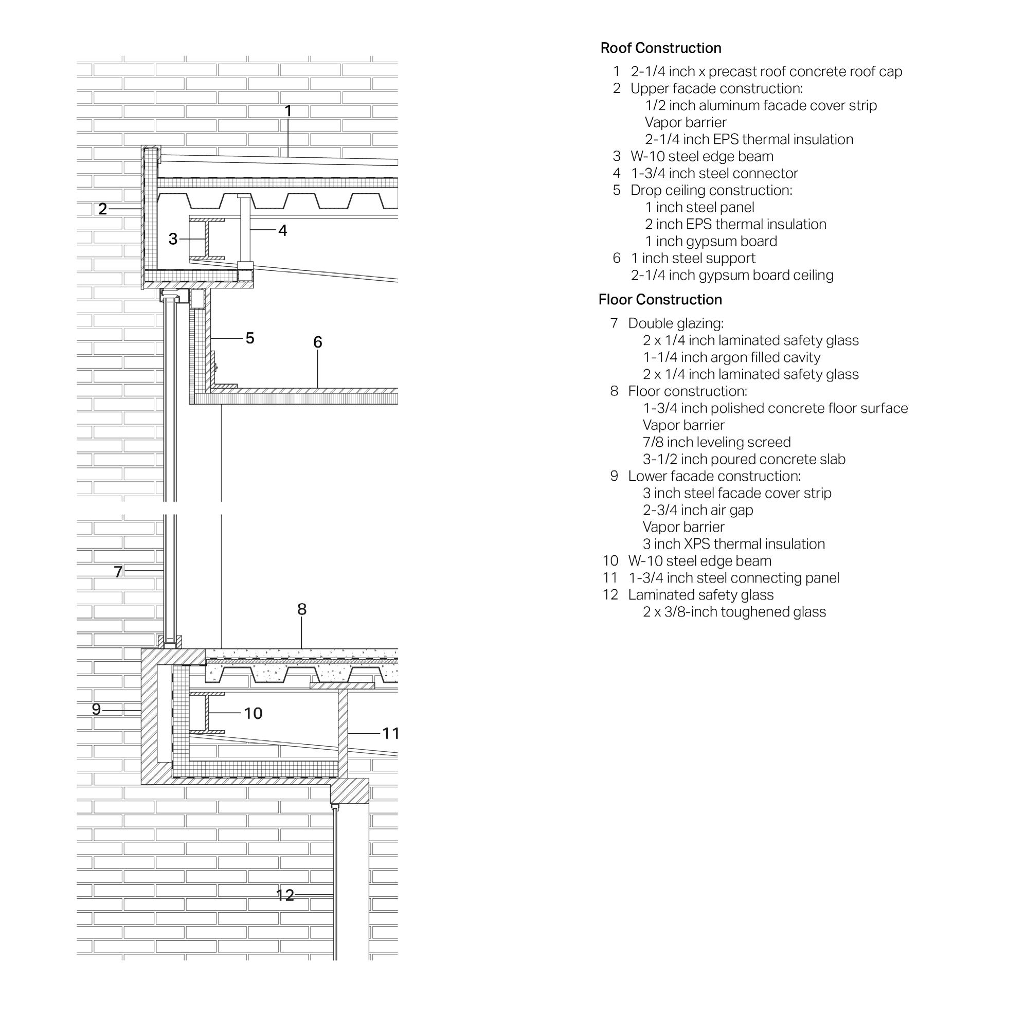
a detail section cut through the residential wing and apparatus bay, showing two glazing systems and the construction of the second floor and roof

PUBLIC ACCESS VITRINE

Manhattan, New York, USA

Summer 2022

Internship

Gluckman

Tang Architects

a face-lift for a heritage auction house

These drawings were executed as part of Gluckman Tang’s winning entry for a competition to redesign the New York headquarters of Christie’s Auction House at Rockefeller Center. The public side of the renovation includes the addition of vitrines and front galleries with movable walls. Inside, a totally redesigned layout is crowned by a translucent auction hall perched above a new lobby, while the existing atrium is expanded into the architectural heart of the project. My work on this project initially consisted of research, sketches, and diagram production. I was later asked to complete the design for the prominent facade vitrines and produced multiple drawings and renderings which appeared in the firm’s entry.

a b o v e the left portion of this section cuts through the atrium and the exhibition spaces; the art which populates the image was chosen from Christie’s auctions which were ongoing at the time

a b o v e the right side of this section cuts through the lobby, showing the glass-enclosed auction hall and the bronzed staircase which connects the lobby to the upper floors

a b o v e a partial elevation of the proposed facade redesign; in this image, the vitrines display electronic poster advertisements rather than individual works for auction

A CATALOGUE OF SPACES

Boston, Massachusetts, USA

the national gallery of architectural design

Autumn 2021

p r e v i o u s this model of boston’s north end was built as a whole-studio effort; the need for the gallery to blend into the existing fabric of this historic neighborhood is reflected in the shape and materials of the final design

The National Gallery of Architectural Design is an exhibition space and an archive for architectural work. Inspired by the Belvedere del Cortile at the Vatican Museums, this project takes the form of a vessel from which courtyards are extracted. The project is organized around the contours of its site in Boston’s North End. The Gallery takes an L-shape anchored by a slab containing a staircase at one end and a tower housing the library at the other. In the museum wing, long galleries run on either side of internal courtyards. This horizontal element is contrasted by the tower, from which visitors can see across the historic neighborhood and harbor. A large public space, structured around a reflecting pool which permeates the mass of the building, serves as the heart of the complex.

b e l o w

a site plan of the North End with the proposed National Gallery; Copps’ Hill Burial Ground is the large open space immediately adjacent to the project; the water is further to the north

b e l o w

an axonometric drawing of the project seen from the southeast; the public space and reflecting pool are at the center of the image

a b o v e

a plan of the ground

library

b e l o w

[top] the elevation of the courtyard facade viewed from the cemetery

[bottom] the street facade viewed from the northeast

floor, showing the
entrance (top left), the main entrance and the oval lobby (top right), and the atrium and skylight (bottom right)

a b o v e

[top] a section cut through the gallery wing, showing the nodal courtyards and tower staircase

[bottom] a section cut through the reading room in the tower and the main lobby

b e l ow

a perspective view of the courtyard, looking over the reflecting pool into northernmost courtyard of the gallery wing

MADELEY TOWER HOUSE

Argyll and Bute, Scotland, UK

Summer 2020present

a scottish castle in lego brick and mortar

This ongoing project will, when completed, represent a complete pre-war Scottish tower house in Lego. Work began with on the service areas in the basement and the ground floor entrance hall. Lego was chosen as a building material because its creative and tactile qualities could eventually enable the model to be built in real life. The following renderings were made in the Studio application from BrickLink. These rooms are historically accurate and reference the work of architects like Sir Edwin Lutyens and Sir Robert Lorimer. The exterior walls can be removed from the model, revealing a cross-section of the meticulously detailed interior. More than a thousand bricks were used to create each rooms; work continues on the first upstairs bedroom.

p r e v i o u s

[top] the exterior portion of the model, showing sinks and counters running along the windows

[bottom] the interior portion of the model, showing the oven, dish racks, and connecting doors

l e f t a plan of the three rooms when joined; the inspiration for the layout of this area came from Sir Edwin Lutyen’s restoration of Lambay Castle, near Dublin

a b o v e

the left side of the kitchen, showing the cabinets and showing the door to the scullery; the recessed fittings were inspired by period kitchens in the British Isles

b e l o w

the scullery, with the telephone and bell system connecting the kitchen area to the upstairs rooms; the cabinets contain dishes, glasses, and serving equipment

p r e v i o u s

[top] the exterior portion of the entrance hall, showing the front door and umbrella stand

[bottom] the interior of the entrance hall, showing the turkish rug, georgian revival fireplace, and lamps

a b o v e

the interior of the entrance hall; the position and size of the windows reflects the austerity of a typical tower house while the georgian revival paneling comes from an imagined 20th century renovation

b e l o w

a worm’s eye view of the entrance hall, showing the interior of the fireplace and the roof, inspired by the carvings of grinling gibbons

THERMAE NUOVI DI GROSETTO

Roselle, Grosetto, Italy

Spring 2022

Collaborators: Yixing Liu and Jediel Henrik Ponnudurai

a public bath in a disused marble quarry

The Thermae Nuovi, or New Baths, of Grosetto respond to two Italian cultural precedents: firstly, the buonifica, the system of land reclamation most prominent under Mussolini, and secondly, the tradition of bathing associated mainly with ancient Rome. These baths are a public architectural feature which provide revenue to the town of nearby Roselle and are rooted in the idea of public ownership of public space. Carved into a disused quarry, the Thermae Nuovi facilitate large crowds and public bathing, while a smaller wing contains private bathing areas. Baths, fountains, and circulation in spaces paneled with the quarry’s pink marble all contribute to a uniquely beautiful interior experience.

a b o v e an axon of the thermae nuovi; the observation tower is at left, the two bathing blocks are at center, and the private baths on the right; in the foreground the swimming pool and entry blocks is visible

a b o v e

a section through the main baths, showing the stepped forms of the structure and the elevation of the private baths in the background

a discontinuous sectional axonometric through the private swimming pool, lobby, and caldarium

a sectional axonometric through the secondary bathing block, showing individual bathing cells

a discontinuous sectional axonometric through the main bathing block, showing the reflecting room, main bath, sauna, and changing rooms

a sectional axonometric through the main entry, showing the lobby, monumental staircase, and central fountain

r i g h t a diagrammatic drawing juxtaposing the unfolded facades with the interiors they enclose

a perspective of the main bathing space

a perspective of the observation tower staircase, showing rainfall entering the central atrium

a perspective within the secondary bathing block, showing the passage between private bath cells

an perspective view of the thermae nuovi, viewed from the lower terrace

a b o v e

a plan of the main level of the thermae nuovi; the hatched space is the loggia, anchored (from left to right) by the tower, two bathing blocks, and private baths; the dashes show the geometric logic behind the shape of the piazza

FOUR SETS OF MODELS

London, England and Florence, Italy

SpringAutumn 2022

Collaborators: Yixing Liu, Jediel Henrik Ponnudrai, and Yeh Yeh

analytical models recent study, sketch, and

These three sets of architectural models were produced while studying abroad in London and Florence. The first two sets, in white foam core, were produced by hand in London along as part of a group effort with Yeh Yeh and Yixing Liu. They are analytical models depicting two existing buildings in London, Chester Terrace and Laban Dance Center. These models study the facades of these buildings and do not show the complete interiors of the spaces. The third set of models are of the Thermae Nuovi di Grosetto scheme and were made digitally with a laser cutter and 3-D printer. The last set of study models, showing the main entry pathway and a bathing cell at the Thermae Nuovi, were made with plaster in blue foam casts. The Thermae Nuovi models were produced, like the project itself, in collaboration with Jediel Ponnudurai and Yixing Liu.

a b o v e

the model of a portion of the laban dance center facade; the structure is gradually revealed; at right, the facade is as built, at center, the structure is revealed under the cladding; at left, the rear wall stands alone

p r e v i o u s

the full model of chester terrace; it measures approximately 1.1 meters long by .9 meters high and .8 meters wide

a b o v e the laban dance center in the dark, showing the translucency of the facade with the help of a phone flashlight

a b o v e

the project model of the thermae nuovi, showing the masses almost in plan; the yellow sections are additive, while the wood contours are all pre-existing topography

b e l o w

this view more clearly shows the hill into which the quarry was dug; at bottom center, the cut containing the swimming pool

a b o v e

this model shows the sectional cut through the central circulation path: from the entry block, on the left, through the lobbies and up the stairs to the sacred fountain space

b e l o w

a section cut through one of the bathing cells in the secondary bathing block, showing the steps down to the pool

26 - 53 202 Street Bayside, New York 11360

1 (917) 488 - 8365

dafromm@syr.edu

https://issuu.com/dafromm/docs dylan_fromm_portfolio

Turn static files into dynamic content formats.

Create a flipbook