Y4S2-Transforming Traditions

Page 1

TAM CHI WAN CYNTHIA

ARCHITECTURAL PORTFOLIO
OF ARCHITECTURE 2024-25 TRANSFORMING TRADITIONS - YEAR 4 SEMESTER 2
MASTER

PROJECT INFORMATION

TRANSFORMING TRADITONS

Academic Work, The Chinese University Of Hong Kong (CUHK)

Individual Project Spring 2023

Instructor: Ms. Ioana Alexandra Pricop

*Nominated To Asian Congress Of Architects (ACA) 20

CONTENTS

INTRODUCTION

BACKGROUND

IDEA GENERATION

PROCESS AND ARRANGEMENT

SITE ANALYSIS AND DESIGN CONCEPT

ARCHITECTURAL DRAWINGS

MODELS

14-15 16-19
12-13
6-7 10-11
4-5 8-9
2

TRANSFORMING TRADITIONS

The Hakka Culture Learning Centre

The Hakka Culture Learning Centre aims to raise the level of understanding of Hakka culture by transforming traditions into an interactive way of learning. Looking into Tung Chung, Hakka village acts as a threshold between town and nature and has a significant role in shaping culture. However, with the diminishing of culture nowadays from the interviews, there is a need to teach the public and people from nearby public estates by building a Hakka Culture Learning Centre in this accessible location in Ha Ling Pei. Moreover, Hakka knowledge is important in general to the Tung Chung area because it influences the culture of the old Tung Chung area very much where village houses remain to be built with wood, people gathering in the circular central plaza and different traditions such as dancing dragons during Hau Wong Festival etc. It is expected that the educational facility can be self-sustained while maximizing the number of public activities to encourage the exchange of Hakka knowledge.

4
5

BACKGROUND

TUNG CHUNG - FROM THE LARGEST TO THE SMALLEST PAST (1970s)

My site is in Ha Ling Pei Village, close to Yat Tung Estate and Mun Tung Estate where people can arrive via this bridge opposite my site. By studying the population composition and history of the Tung Chung, possible locations for a new education facility are investigated. It is concluded that Tung Chung is a historically important district with a mix of newly developed public housing estates (Yat Tung Estate and Mun Tung Estate). Most of the population lived around the public housing around the Hakka villages. Although they are living very closely, the younger generations are unsure about the vibrant historic value o-f Hakka villages, such as the Hau Wong Festival and temples around. Therefore I decided to drill on the history of Tung Chung West where these two seemingly unrelated groups.

Moreover, the new Tung Chung West station provides opportunities to the village area by introducing people form different districts to understand about the history of Tung Chung, the connectivity, densities, preexisting educational facilities and occupation opportunities are studied to search for opportunities to build an educational facility focusing on the history of Tung Chung. In conclusion, I hope that this project transforms traditions to allow urban residents to learn more about Hakka culture and have a place to gather in the social condenser within the Hakka Culture Learning Centre. In Collaboration with Cheng Nga Man, Fan Mei Sho

PRESENT FUTURE

HUMAN DENSITY AND EYE-LEVEL VIEW HERITAGE
HISTORY

OCCUPATIONS

NOMINATED TO ASIAN CONGRESS OF ARCHITECTS (ACA) 20 - SPRING 2023 7
HERITAGE AND HUMAN ACTIVITIES
1:2500 RESIDENTIAL ANALYSIS
1:5000 FUTURE CONNECTIVITY (NEW EXTENSIONS)
1:500 EDUCATIONAL FACILITIES ANALYSIS DIMINISHING CULTURE AND LIFESTYLE IN THE NEIGHBOURHOODS
1:2500 RESIDENTIAL DENSITIES AND CULTURAL HERITAGES

IDEA GENERATION

CASE STUDY AND CONCEPT SKETCH

WEST LOUISVILLE FOOD PORT | OMA

THE HAKKA CULTURE LEARNING CENTRE

01 / MASSING
/ RENDERINGS 10 BEFORE AFTER
PROCESS
02

ARRANGEMENT

01 / PROGRAMME

After deciding on the massing to move forward, the programme arrangement is investigated. First the proportion and sizes of different programmes are decided according to the attraction, experience and learning part. Hence, they are arranged with the concept to guide people from town to village or vice versa, with the back of house supporting different front of house activities.

Also, different ways and active times of the programmes are studied to ensure that the Learning Centre can be functioned effectively, in other words, support different activities during different times of the day.

02 / STRUCTURE

After having the preliminary scheme of the Hakka Culture Learning Centre, structures to support the activities of it are investigated. In order to support the flexible spaces and activities of my building, I investigated a timber structure with trusses to create a column-free interior space and responding to the traditions of Hakka architectures at the same time. I took references to The Rolex Learning Center by Sanna to use very thin columns to support the whole curved roof.

NOMINATED TO ASIAN CONGRESS OF ARCHITECTS (ACA) 20 - SPRING 2023 11
SECTION EXPLODED AXONOMETRIC PLAN ACTIVITY PEAK TIMES
PROGRAMME SIZE

SITE ANALYSIS

POTENTIAL

SITE CONNECTIVITY, STAKEHOLDERS ANALYSIS,

SUSTAINABILITY

HAKKA VILLAGE ACTIVITIES, VIRTUOUS CYCLE

ARCHITECTURE

PROGRAMME ARRANGEMENT, HAKKA ARCHITECTURE

FEATURES

2 3
1

01 / SITE CONDITIONS

There is a huge tree to be conserved within the site and the site is connected to the two estates by bridge and park.

03 / CIRCULATION

The two major circulations connect the village and estate respectively, with the intersection beside the old tree. The intersection point hence acts as a social condenser for villagers and residents to gather.

02 / MASSING

The massing is defined by the boundaries of the village and estate, which is a sharp cut towards the estate side and an irregular village edge.

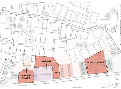
04 / PROGRAMME DISTRIBUTION

Programmes are distributed from public to private and from attraction, to experience, to learning. This allows residents from the public estates to gain interests then learn about Hakka culture.

05 / VILLAGE MORPHOLOGY

The arrangement of programmes within the site is according to village morphology. People can freely circulate within the building and enter the area designated for different programmes.

06 / FAÇADE

The façade of the building is made of freely operable panels. Wood sliding doors are on the sides facing the road and village while glass panels are used in the interior to introduce lighting to the building.

VILLAGE MASSING SPORTS FIELD CIRCULATION VILLAGE MORPHOLOGY PROGRAMME DISTRIBUTION FACADE ESTATE RESTAURANT MULTIPURPOSE HALL SOCIAL CONDENSER LIBRARY STUDY SPACES WORKSHOPS OUTDOOR WORKSHOP PRIVATE KITCHEN OFFICE PUBLIC ATTRACTION EXPERIENCE LEARN BRIDGE EXISTING RESTAURANT ENTRY VILLAGERS ENTRY VILLAGERS LEGEND WOOD SLIDING DOORS GLASS SLIDING DOORS GLASS DOORS The Hakka Culture Learning Centre aims to raise the level of understanding of Hakka culture by transforming traditions into an interactive way of learning. Looking into Tung Chung, Hakka village acts as threshold between town and nature and has significant role in shaping culture. However,with the diminishing of culture nowadays, there is need to teach the general public and people from nearby public estates by building Hakka Culture Learning Centre in this accessible location in Ha Ling Pei. From the precedent studies, it is important for the center to be self-sustained. When looking into the potential users, villagers can prepare exhibitions and hands-on workshops for visitors. Regular and festive performances are conducted in the auditorium to increase exposure to the general public. The revenue generated from retail can be used to support daily operations. Moreover, to facilitate the journey of learning Hakka culture, the programs are therefore arranged accordingly from attracting (bazaar, cafeteria), to experiencing (auditorium, multimedia learning workshops) and learning (library, exhibition hall). The form reminisces the rows of village typography, by aligning itself as new row and following the heights of village houses. It aims to blend in with surroundings and provide more public space to villagers by having several semi-outdoor spaces for gatherings and a walkable green roof of the learning center. The vibrancy in the learning center established will soon active the area and acts as social condenser to Tung Chung residents. TAM Chi Wan Cynthia VILLAGE 110 m 30 m MASSING VILLAGE SITE SITE ESTATE ESTATE ENTRY VILLAGERS 050 250 500m 500 mins 50 mins 150 mins 200 mins 20 mins SITE CONNECTIVITY SHEUNG LING PEI VILLAGE YAT TUNG ESTATE MUN TUNG ESTATE SITE CIRCULATION VILLAGE MORPHOLOGY PROGRAMME DISTRIBUTION FACADE RESTAURANT MULTIPURPOSE HALL SOCIAL CONDENSER LIBRARY STUDY SPACES WORKSHOPS OUTDOOR WORKSHOP PRIVATE KITCHEN OFFICE PUBLIC ATTRACTION EXPERIENCE LEARN ENTRY 2 VILLAGERS LEGEND WOOD SLIDING DOORS GLASS SLIDING DOORS GLASS DOORS VILLAGE 110 m 30 m MASSING SPORTS FIELD CIRCULATION VILLAGE MORPHOLOGY PROGRAMME DISTRIBUTION VILLAGE SITE SITE ESTATE ESTATE RESTAURANT MULTIPURPOSE HALL SOCIAL CONDENSER LIBRARY STUDY SPACES WORKSHOPS OUTDOOR WORKSHOP PRIVATE KITCHEN OFFICE PUBLIC ATTRACTION EXPERIENCE LEARN BRIDGE EXISTING RESTAURANT ENTRY 2 VILLAGERS ENTRY VILLAGERS LEGEND WOOD SLIDING GLASS SLIDING GLASS DOORS MASSING SPORTS FIELD CIRCULATION VILLAGE MORPHOLOGY PROGRAMME DISTRIBUTION FACADE RESTAURANT MULTIPURPOSE HALL SOCIAL CONDENSER LIBRARY STUDY SPACES WORKSHOPS OUTDOOR WORKSHOP PRIVATE KITCHEN OFFICE PUBLIC ATTRACTION EXPERIENCE LEARN BRIDGE EXISTING RESTAURANT ENTRY VILLAGERS ENTRY 1 VILLAGERS LEGEND WOOD SLIDING DOORS GLASS SLIDING DOORS GLASS DOORS VILLAGE 110 m 30 m MASSING SPORTS FIELD CIRCULATION VILLAGE MORPHOLOGY PROGRAMME DISTRIBUTION VILLAGE SITE SITE ESTATE ESTATE RESTAURANT MULTIPURPOSE HALL SOCIAL CONDENSER LIBRARY STUDY SPACES WORKSHOPS OUTDOOR WORKSHOP PRIVATE KITCHEN OFFICE PUBLIC ATTRACTION EXPERIENCE LEARN BRIDGE EXISTING RESTAURANT ENTRY 2 VILLAGERS ENTRY 1 VILLAGERS LEGEND
DESIGN CONCEPT
SITE DETAILS PROGRAM
ARCHITECTURAL DRAWINGS
ROOF PLAN (1:200 in A1) EXPLODED AXONOMETRIC (1:100 in A0) TRANSFORMING TRADITIONS 14
GROUND FLOOR PLAN (1:200 In A1)

A SOCIAL CONDENSER - AN ARCHITECTURAL FORM THAT CAN INDUCE AND PROMOTE SOCIAL FUNCTION

The special intersection point of the major circulations is the circular central plaza where the old tree is located. It is a symbol to the village and hence can be activated as a social condenser. Then people can gather in the social condenser while having operable glass panels leading to flexible usage of the space during different events. By creating a social condenser space, it is expected that the number of public activities can be maximized, and exchange of Hakka knowledge can be facilitated.

MODELS

TURF ROOF

COURTYARD WHEN AUDITORIUM NOT IN USED

OPERABLE FAÇADE

OPERABLE FAÇADE

COURTYARD WHEN AUDITORIUM NOT IN USED

16 TRANSFORMING TRADITIONS 01 / 1:50 AUDITORIUM
1:50 MODEL

ACCESSIBLE ENTRY TO AUDITORIUM

NOMINATED TO ASIAN CONGRESS OF ARCHITECTS (ACA) 20 - SPRING 2023 02 / 1:200 AUDITORIUM STRUCTURAL MODEL
STAIRS TO AUDITORIUM
03 / 1:200 SITE MODEL PLAN VIEW RELATION OF GLASS FAÇADE AND WOODEN SCREEN DOORS
18
GLASS FAÇADE
“DESIGNING A FUTURE-READY COMMUNITY RESPONDING TO THE MOST CHALLENGING SOCIAL CONDITION”
--------- by preserving the culture and connecting the people
04 / ARCASIA STUDENT JAMBOREE (ACA 20)
ASIAN CONGRESS OF ARCHITECTS (ACA) 20 NOMINATED TO ASIAN CONGRESS OF ARCHITECTS (ACA) 20 - SPRING 2023
1:200 MODEL

TRANSFORMING TRADITIONS - YEAR 4 SEMESTER 2

MASTER OF ARCHITECTURE 2024-25

TAM CHI WAN CYNTHIA'S PORTFOLIO

Turn static files into dynamic content formats.

Create a flipbook
Issuu converts static files into: digital portfolios, online yearbooks, online catalogs, digital photo albums and more. Sign up and create your flipbook.
Y4S2-Transforming Traditions by Cynthia Tam - Issuu