

![]()












Calculated height and Drew section of the existing underground tunnels, based on plans and coordination
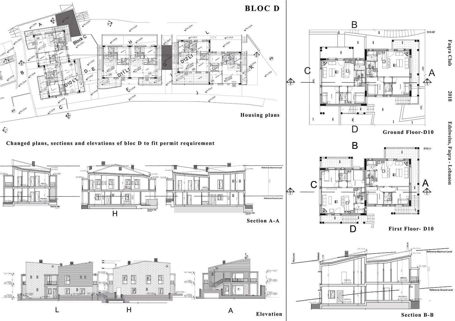
Drew Ceiling Plan
Drew, annotated and drew the dimensions of different elements that we will use in the construction phase
Detail Drawing
Drew detail Drawing for the construction phase, with annotation and dimension























