portfólio 2025 _
Olá, sou Priscylla Mendonça, Arquiteta e Urbanista formada pela Uninassau, mas também sou Designer de Moda, costureira, artesã, escritora e mãe nas horas vagas.
Como profissional da área de arquitetura tenho atuado desde 2019, ainda como estudante, nas áreas de interiores, detalhamento de projeto executivo, projetos de reforma, cenografia e coordenação de obras.
Considero esta uma das profissões mais empolgantes, na qual se pode experimentar um mundo de possibilidades. Gosto muito do processo criativo, mas sou apaixonada pela mão na massa e em ver um projeto ganhar vida e ser ocupado por pessoas. Essa é a maior motivação do meu trabalho: as pessoas.
A seguir apresento minhas experiências e alguns dos meus projetos.
currículo _
Cylla Mendonça
Arquiteta e Urbanista
Recife - Pernambuco
cylla83@gmail com 81 991313751
rua copacabana, 395
Boa Viagem, Recife/PE contato _ formaçao
Ensino Médio Colégio Salesiano Sagrado Coração
2001
Faculdade de Comunicação Social Universidade Católica de Pernambuco
2002-2003
Inglês
Espanhol
Corel Draw idiomas _ programas
AUTOCAD 2D
Sketchup Pro
Revit
Adobe Photoshop
Adobe Illustrator
Faculdade de Serviço Social Universidade Federal de Pernambuco
2002-2005
Faculdade de Arquitetura e Urbanismo
UNINASSAU
2018-2022
cursos
Desenho de Moda
Senac - Pernambuco
2008 Curadoria
Museu do Mamulengo - Olinda/PE
2018
experiência profissional
Estágio - Sociedade
Sis. Arquitetura
2019-2025
Desenvolvimento projetos de interiores
residencial e comercial
Levantamento, plantas, imagens 3D
Orçamento de materiais.
Acompanhamento de obra
Estágio
Caroá Arquitetura
2022
Levantamento arquitetônico Projeto executivo
residencial e comercial. Plantas, vistas, cortes.
Layout, demolir/construir, elétrica, hidráulica, iluminação, forro e etc
Estágio
ArqLuz Projetos - Widimar Ligeiro
2021
Projeto executivo residencial e comercial
Plantas, vistas, cortes
Layout, demolir/construir, elétrica, hidráulica, iluminação, forro e etc
Estágio
Cenografia - Arquiteta Mary Rached
2021
Desenvolver, fabricar e montar e desmontar cenorafia da Peça “Frozrn” no Teatro Luiz
Menonça, pela compania de teatro Grupo Vida.
Estágio
EMAU - Escritório Modelo de Arquitetura
UNINASSAU
2019
Desenvolvimento projetos de interiores para residência a ser executado, com plantas baixas, planilha de materiais e imagens 3D
Estágio
Arquiteta Marília Machado
2018-2020
Modelagem 3D para projetos de Arquitetura de interiores utilizando o software Revit
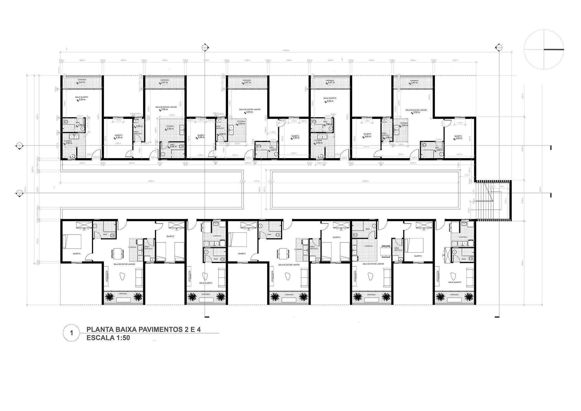
casa do pé de manga_
Quando o projeto dessa casa começou, nossos clientes deixaram muito claro o que eles não queriam que a gente tirasse. O piso de granilite, o azulejo cheio de charme da cozinha e, claro, o pé de manga
Foi uma conjunção perfeita entre as ideias das arquitetas e os desejos dos donos da casa
Sombrear e ventilar, como manda o “Roteiro Para Construir no Nordeste” de Armando de Holanda, também nos deu o mote pra escolhas como a colocação de cobogós na entrada da antiga garagem e na sala de estar Até a caixa d’água ganhou seu charme com o material
A integração da cozinha com as salas de estar e jantar se deu com a retirada de paredes e um arco marca a passagem da área de brincar do filho do casal e dos gatinhos pra área de estar da família.
O azulejo tão amado pela dona da casa, foi mantido numa cristaleira que ganhou portas de vidro emolduradas com a mesma cor de madeira do armário da ilha que separa a cozinha e sala de jantar
A escolha das cores nas paredes também estão relacionadas e trazem pontos de destaque pra essa casa que nós amamos reformar
As grades foram substituídas por cobogós, transformanddo a antiga garagem em Hall de Entrada com chapelaria e brinquedoteca para o filho o casal e os gatos da família Manteno a iluminação e a ventilação do cômodo
O Jardim de inverno foi atualizado e espaço ganhou um mobiliário especial para os gatos.
Plantas e cortes feitos no Revit.
Integração dddas salas de jantar, estar e cozinha.
O azulejo original da casa mantio na cristaleira atualizada com portas em marcenaria planejada.
RISO galeria_
Esse projeto de reforma de uma casa pré existente foi um desafio delicioso. Transformar a velha casa em seis lojas com espaço agradável e funcional, fazer toda parte de elétrica, hidráulica para os banheiros e tornar o lugar um espaço comercial com carinha de quintal foi um prazer e um exercício do que a arquitetura é capaz de fazer
A casa ficava nos fundos de uma outra, já transformada no Café Com Dengo, que pertencia a família O desejo era ar uma nova cara e um novo uso ao imóvel. Foi assim que surgiu o projeto e uma galeria.
Durante a obra, os entulhos gerados pela demolição das paredes existentes viraram contrapiso para a área dde circulação de clientes.
Foram criadas novas paredes de gesso acartonado para delimitar a área das lojas As vigas da fachada das lojas e o telhado também foram todos refeitos para este projeto.
e cortes feitos no Autocad
Plantas
Foi necessário criar espaços como os BWCs para os clientes em atendimento E foram feitos dentro das recomendações a NBR 9050.
A galeria foi inaurada em 2021 e segue em funcionamento contando com seis lojas.
Sie beleza descomplicada_
Plantas e cortes feitos no Revit.
Plantas e cortes feitos no Revit
concursos _

Mais Cinquenta anos se passaram desde a criação do Movimento Armorial, com a missão de valorizar os elementos culturais populares do Nordeste Brasileiro De lá pra cá, temos a certeza de que essa missão foi cumprida na multiplicidade da arte, e celebramos a singularidade desse movimento artístico com a Praça de Descanso: Dizidos das horas no Sertão, em homenagem a música de Jesser Quirino A concepção do espaço parte do pontear do relógio do sertanejo antigo, dividindo o dia em três momentos, que correspondem aos três ambientes da praça, e dos quais extraímos a cartela de cor e luz, e desenha o painel de fundo com figuras da xilogravura, tão celebradas no movimento armorial O primeiro ambiente, A manhã braça de sol, com a cor a amarela; em seguida A tarde da hora branda sem calor, recebe o azul claro que logo se despedirá do sol Esses dois ambientes que representam o dia tem iluminação de cor quente no painel Já o terceiro ambiente é A noite ou o fim do versejar, o azul escuro toma o painel E o céu estrelado do sertão então é construído com teto de fio de luz pisca-pisca fazendo as estrelas e de fios de barbante em textura natural, que remetem a forma com que literatura armorial era vendida O ambiente conta ainda nuvens luminárias suspensas que lembram o quanto a chuva é bem-vinda no dia de São José Junto ao painel, um tablado de cor terrosa representando a terra, une essas horas sertanejas A escolha dos móveis de pinos remetem aos móveis das bancas de feiras que acontecem aos sábados e reúnem as pessoas na cidade. Cactos construídos em canos PVC recebem as tomadas para carregar dispositivos móveis, e representam a vegetação da Caatinga O layout distinto na área de assento, com tais mobiliários, se alinha a dualidade do dia e da noite A praça é uma celebração do universo popular do Nordeste Brasileiro, e proporciona em cada um dos seus ambientes um momento para tirar um retrato e lembrar da experiência de estar na 21° Feneart




Plantas e Cortes feitos no Autocad.
Plantas e Cortes feitos no Autocad
Plantas e Cortes feitos no Autocad.
A estrutura do pergolado foi feita em madeira pinus e o traçado com corda amarrada em pregos que foram fixados em cima e em baixo a 5cm de distância cada, dando o efeito listrado que desejávamos.
Os painéis foram pintados a mão pelos alunos participantes do concurso e a praça foi premiada com o primeiro lugar.
Todas as peças foram idealizadas pela professora Mary Rached e produzidas pelas alunas estagiárias manualmente. Cortadas, lixadas e devidamente pintadas para compor o cenário da peça.
Um trabalho realizado em tempo recorde pois a estréia seria em quinze dias. Aqui a cabeceira da cama da personagem Ana, de Frozen.
A montagem também foi realizada pelas estagiárias juntamente com a professora, após visitas técnicas realizadas para medir e planejar tudo.
A peça estreou e esteve em cartaz durante dois dias em maio e 2022, no Teatro Luiz Mendonça.
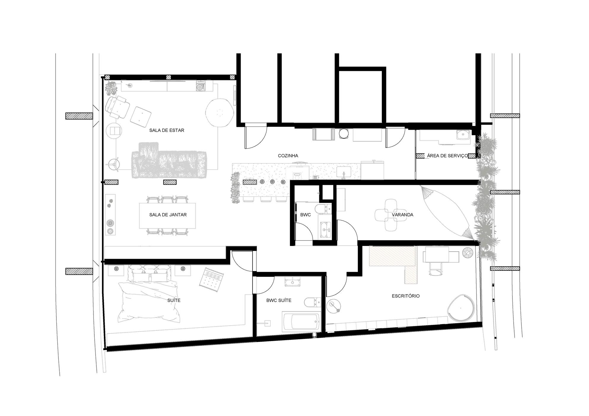
projeto residencial projetodeinterioresparaapartamentoresidencial
neste projeto para um apartamento no edifício Copan, em São Paulo, a verdade dos materiais foi o mote para a decisão dos móveis e paleta de cores. utilizando o concreto aparente, metais pretos e bastante madeira, a atmosfera desejada tinha a ideia mais aconchegante para atender o desejo de uma moradora jovem e bastante cosmopolitana foi feito a integração da sala de estar com a de jantar e cozinha, com um conceito aberto e bastante contemporâneo além desses ambientes, foi estudado também o layout da suíte e do escritório, de acordo com a necessidade e perfil da cliente.
softwares: Revit + Photoshop
elementos contrastantes na sala de jantar com o uso do azul marinho como alternativa aos tons neutros coloridos
balcão criado em concreto para atender a necessidade de mesa de apoio para a cozinha integrada à sala de jantar
para o quarto a feminilidade minimalista fica por conta do uso de poucas cores e da madeira enquanto elemento acolhedor contrastando com a cor preta e os acabamentos em concreto de piso e teto.
projeto de arquitetura_
projetoacadêmicodehabitaçãosocial

o projeto proposto visava atender as demandas por moradia digna das famílias que ainda vivem em situação precária, priorizando aqueles em piores condições de salubridade a ideia era que essas pessoas não precisassem deixar a área em que vivem hoje para ter moradia de qualidade, com condições de convivência, trabalho e segurança a área onde estavam localizadas a famílias da comunidade que não foram contempladas com a primeira etapa do Programa de Requalificação Urbanística e Inclusão Social, da Prefeitura do Recife, foi completamente esvaziada com a promessa de que seria dado continuidade e logo as famílias poderiam contar com suas novas moradias. isso não aconteceu e eles ainda esperam até hoje por uma posição da prefeitura alguns contam com auxílio moradia, outros refizeram suas “casas” nas áreas externas ao terreno desapropriado desejávamos trabalhar neste terreno que compreende uma área de 6 200m², localizado entre as ruas Bernardo Vieira de Melo, Primavera e Ocidente. tendo como destaque a Igreja Nossa Senhora do Pilar que ganhará uma praça para destaque e usufruto de toda a comunidade

a Comunidade do Pilar está localizada entre as ruínas do Forte São João Batista do Brum e a Igreja de Nossa Senhora do Pilar, a menos de um quilômetro do Marco Zero, cartão postal da cidade de Recife, Pernambuco o lugar foi se formando com pessoas que trabalhavam no porto, por volta de 1600
existe, desde 2009, um Plano de Requalificação Urbana e Inclusão Social para o Pilar, com a previsão inicial de construção de 588 unidades habitacionais e equipamentos como escola, creche, mercado público e praça.
das habitações, 192 foram entregues as outras tiveram a obra interrompida em função de achados arqueológicos, entre 2013 e o fim do ano passado (2018) até hoje, há pessoas sobrevivendo do auxílio-moradia de R$ 200 há quase 10 anos no fim de 2017, houve uma readequação do projeto, que foi licitado por meio do financiamento do Minha Casa Minha Vida os moradores passaram então a questionar o porquê de alguns pagarem o imóvel enquanto outros não os comerciantes vivem a incerteza de ter o ganha-pão garantido, já que essa modalidade de financiamento não contempla comércios
projeto de arquitetura_ projetoacadêmicodemercadopúblico
softwares: Revit + Photoshop
obrigada