Information Memorandum - 8/15 Howleys Road, Notting Hill

Page 1


As Melbourne’s leading independent commercial property agency, we take pride in creating worth across all four points of this city.

01. Point of Interest 02. Point of View 03. Property Features 04. Property Particulars

05. Location

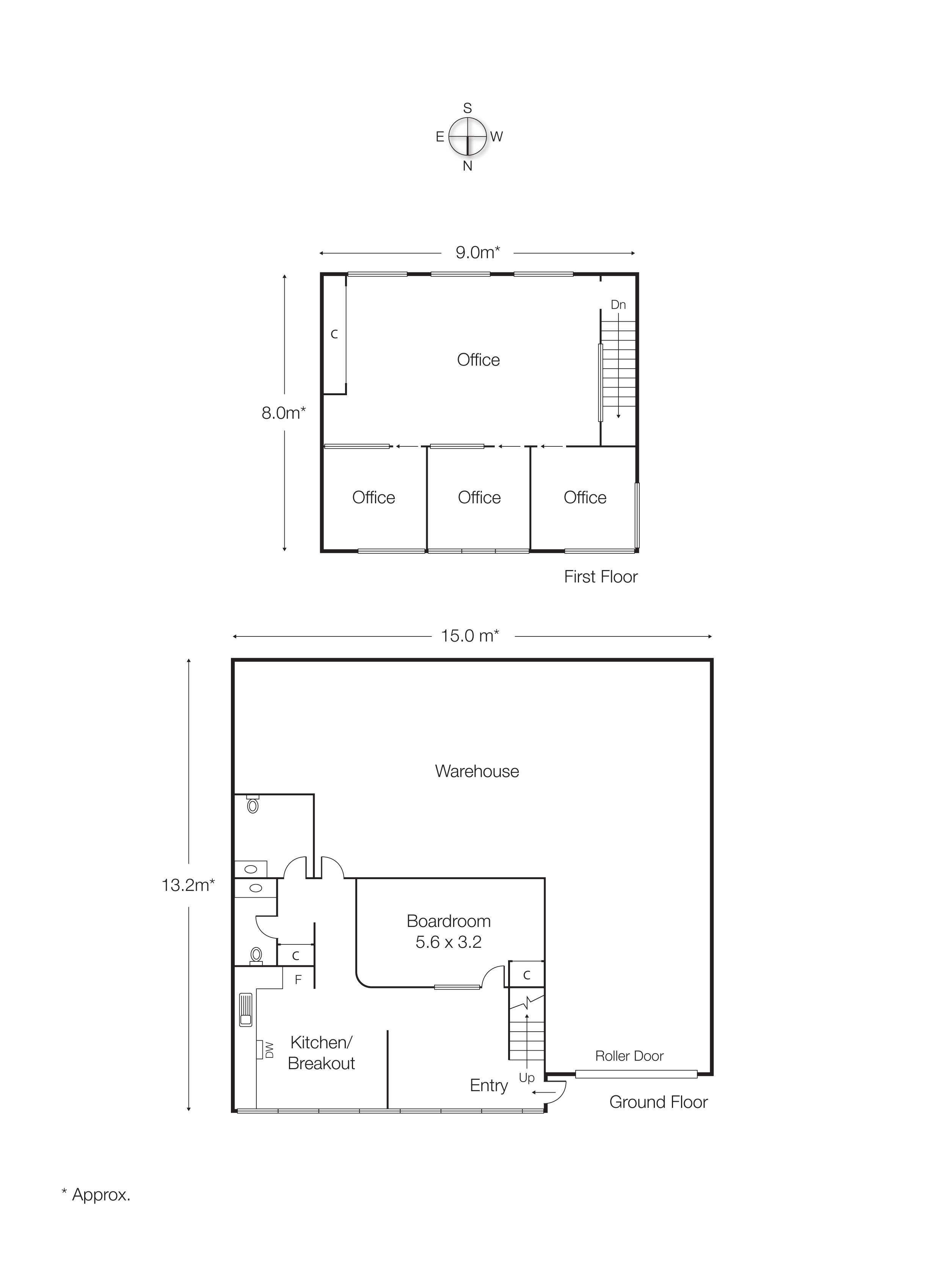
06. Floor Plan

For businesses that move fast, this Notting Hill base keeps pace — smart, connected, and ready to go.

Tucked into one of Notting Hill’s most accessible pockets, this smartly configured 273 sqm* premises blends showroom style, warehouse practicality, and professional office appeal — just moments from the Monash Freeway and a lineup of Melbourne’s key arterials.

Positioned in the shadow of Monash University and surrounded by national retailers like Bunnings, you also have daily lunch favourites like Subway, Little Collins Café, and Monash Pizza around the corner.

Total building area
Total office area
Container height roller shutter door
To Dandenong Road
to Eastlink Ground floor showroom
Zoning
To Monash Freeway

Set in a corridor where demand rarely dips, this sharp, lowmaintenance asset delivers all the right signals — professional fitout, prime access, and the kind of efficiency tenants stick around for.

Tim Cooney | 0468 860 737 tim.cooney@cva.melbourne

“Work smarter, grow faster — this versatile base ticks all the right boxes”

After five years spent working in commercial real estate in London, Tim is home in 2021. Melbourne born and bred with more than 5 years’ experience locally, there aren’t many who are better suited to this business. Diligent. Proactive. An honest communicator. Tim knows it’s in the face-toface where deals are won and lost for all parties. Because of this, he takes great care in building rapport and learning the long-term strategy of his clients to enable the best advice not just shortterm, but for life. Meticulously detailed and across all of the numbers, you’ll be glad you have Tim’s on hand – plus his support across all points of your deal.

Jordan Carroll | 0467 628 951

“Whether you’re scaling up or streamlining, this is a ready-to-go solution for businesses that value visibility, efficiency, and a professional edge”

Some things about real estate can’t be taught — like innovative marketing tactics, effortless relationship building, and unwavering ethical standards — and Jordan has naturally brought all of these to the table. Passionate. Principled. Charismatic. His personable and genuine nature will see your trust in him stay sky-high, while your needs and ambitions get the same treatment at the top of his priority list. Jordan’s deep commitment to excellence and continuous improvement underpins his every move, making your next one in the market the strongest so far.

This exceptional office and warehouse facility has been thoughtfully upgraded to cater to the needs of modern businesses. The light-filled office area showcases a sleek, contemporary design with high-quality finishes, ergonomic workstations, and full-height glass partitioning that promotes both collaboration and privacy. The open-plan layout is complemented by natural light and views of the landscaped surrounds, enhancing employee wellbeing and productivity. The adjoining kitchenette is equally impressive—featuring premium cabinetry, stone benchtops, a breakfast bar with seating, and modern appliances—making it an ideal breakout space for staff or informal meetings.

The warehouse component has been optimized for operational efficiency, with excellent internal clearance, high bay lighting, and extensive racking for organized storage. The polished concrete flooring and wide access aisles ensure seamless movement of goods, while the roller door access accommodates larger deliveries. Whether for logistics, storage, or light manufacturing, the warehouse provides a functional and professional space that supports

business scalability and day-to-day functionality. This versatile combination of stylish office space and robust warehouse infrastructure positions the property as a standout solution for a wide range of business users.

Principle Outgoings

p.a.*

p.a.*

Site

Title particulars

Certificate of Title — Volume 10567 Folio 481

Lot 8 on Plan of Subdivision 4370002

Zoning Special Use Zone - Schedule 6 (SUZ6)

Planning Overlays

Design And Development Overlay - Schedule 1 (DDO1)

Municipality City of Melbourne

All signs point to: Howleys Road

Howleys Road is a high-quality commercial property located in one of southeast Melbourne’s most established industrial and business precincts. Here are some notable aspects and benefits of buying property in this area:

Prime Location in Southeast Melbourne:

Positioned close to the Monash Freeway, Ferntree Gully Road, and Blackburn Road, the site offers easy access across Melbourne. It’s also near Monash University and the Monash Technology Precinct, providing strong business and networking opportunities.

Modern Office & Warehouse Layout:

The property combines a high-clearance warehouse with modern, air-conditioned office spaces. Glass partitions, natural lighting, and a flexible layout make it ideal for a variety of business operations.

Strong Investment Appeal:

Situated in a tightly held industrial precinct with rising property values. Low vacancy rates and high demand for well-maintained properties in the area. Offers reliable rental income and long-term capital growth potential.

Secure, Well-Maintained Business Park:

Set within a gated complex with controlled access, ample on-site parking, and clean landscaped surrounds. The park offers a professional and secure setting ideal for growing businesses.

Investment Growth & Rental Demand:

Located in one of Melbourne’s most in-demand industrial zones with strong rental demand. The area’s limited supply and growing commercial interest ensure solid longterm investment returns.

AND THE POINT?

Established. Evolving. In-Demand.

Investing in property in Notting Hill places you at the heart of southeast Melbourne’s thriving industrial and business corridor. Just moments from the Monash Freeway and key arterials, this tightly held suburb blends connectivity, commercial strength, and long-term potential. With Monash University and the Monash Technology Precinct close by, the area attracts consistent demand from professionals, students, and growing businesses alike. A rare mix of modern residential development and high-performance commercial assets, Notting Hill offers investors a unique balance of steady rental income, capital growth, and strategic exposure.

All signs point to: Notting Hill

Notting Hill (VIC 3168) is a compact and wellconnected suburb located 19 km southeast of Melbourne’s Central Business District, within the City of Monash. With a population of approximately 2,895 residents, it offers a blend of residential, educational, and industrial spaces. The area is home to Monash University and is adjacent to the Monash Business Park, making it attractive to students, professionals, and investors .

Historically, Notting Hill was a rural area with dairy and poultry farms, but it has since transformed into a predominantly residential community. The suburb features a mix of housing styles, including modern townhouses and apartments, catering to various lifestyles. The median house price is around $1.1 million, with a median unit price of approximately $350,000 .

Notting Hill offers convenient access to major shopping centers like The Glen and Chadstone, as well as excellent public transport options, including bus services and nearby train stations. The area is also known for its proximity to quality

schools and recreational facilities, making it a desirable location for families and students alike

And the point?

Investing in Notting Hill, VIC 3168, offers several attractive advantages, including its central location with easy access to major shopping centers like The Glen and Chadstone, as well as proximity to Monash University and the Monash Business Park, which ensures a steady demand from students, professionals, and families. The area benefits from strong infrastructure and public transport links, making it appealing for both renters and buyers. With a mix of residential and commercial development, Notting Hill offers diverse housing options, from townhouses to apartments, catering to various demographics. The suburb’s continued growth and gentrification provide opportunities for long-term capital gains, while its proximity to major employment hubs and solid rental demand further enhance its investment potential. Overall, Notting Hill combines capital growth potential with steady rental income, making it a solid choice for investors.

Notting Hill Train Station

NOTTING HILL – BIG BUILD & SRL IMPACT

VICTORIA’S BIG BUILD is transforming Notting Hill into a major hub for employment, education, and innovation. A key pillar of this transformation is the Suburban Rail Loop (SRL) East, which includes the upcoming SRL Monash Station, located just minutes from Unit 8, 15 Howleys Road.

A GAME-CHANGER FOR CONNECTIVITY

The SRL Monash Station will provide Notting Hill with a direct, high-capacity underground rail connection to Melbourne’s broader rail network for the first time. This major infrastructure investment will:

Enhance access to Monash University, Australia’s largest university by student numbers.

Connect talent and employers via faster travel times to the growing employment hubs in Clayton, Glen Waverley, Box Hill, and beyond.

Encourage investment by linking Notting Hill to a wider pool of workers, students, and residents.

DRIVING ECONOMIC GROWTH

By 2050, jobs around Monash are forecast to triple, with SRL East creating a thriving, transit-oriented precinct. New cycling and pedestrian links will encourage active transport, while improved road and bus connections will enhance overall accessibility.

Located near the intersection of Howleys Road and Ferntree Gully Road, this property is ideally positioned to benefit from:

- Proximity to the SRL Monash southern entrance, enabling quick access to the new rail network.

- The emergence of a connected employment cluster including Monash University, CSIRO, and Monash Technology Precinct.

- Increased demand for housing and services driven by growing commuter and student populations.

Notting Hill Train Station

STRATEGIC ADVANTAGE FOR UNIT 8, 15 HOWLEYS ROAD

Located near the intersection of Howleys Road and Ferntree Gully Road, Unit 8, 15 Howleys Road is ideally positioned to benefit from:

Proximity to the SRL Monash Station, enabling quick access to the new rail network.

Integration into a connected employment cluster including Monash University, CSIRO, and the Monash Technology Precinct.

Increased demand for housing and services driven by growing commuter and student populations.

The SRL is not just a rail project—it is catalyzing development in Notting Hill. Properties in this zone will experience uplift in accessibility, desirability, and long-term value as the precinct becomes one of Melbourne’s key innovation and education districts.

Turn static files into dynamic content formats.

Create a flipbook
Issuu converts static files into: digital portfolios, online yearbooks, online catalogs, digital photo albums and more. Sign up and create your flipbook.