As Melbourne’s leading independent commercial property agency, we take pride in creating worth across all four points of this city.
01. Point of Interest 02. Point of View 03. Property Features
04. Property Particulars
05. Location
06. Sales Process
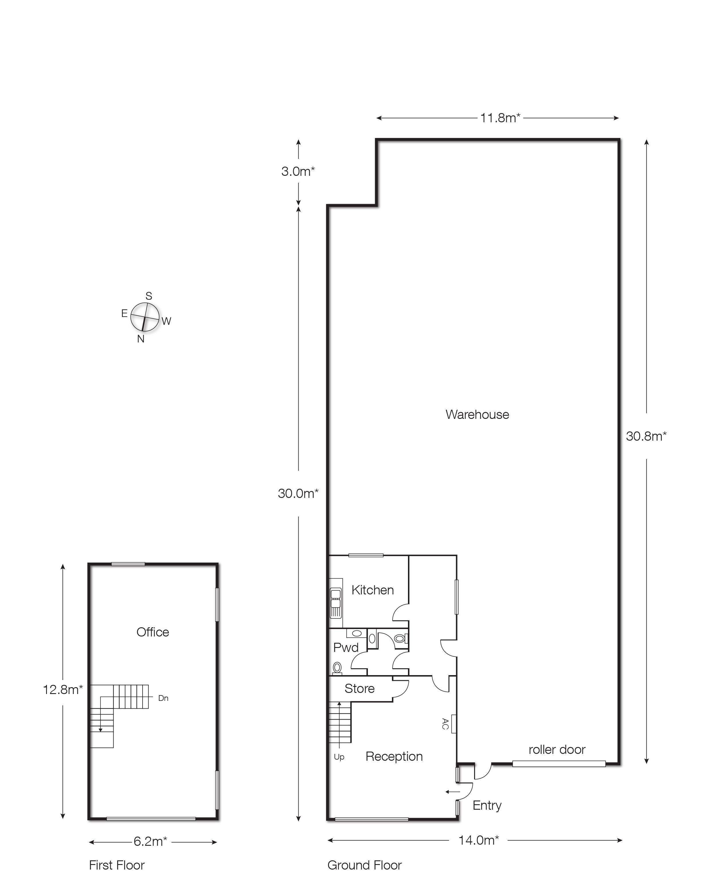
07. Appendices Floor Plan
Located in the heart of Tullamarine’s tightly held industrial zone, this versatile property puts your business on the map — and on the move — with the airport, freeways, and major freight links all within reach. With a total building area of 524 sqm*, including 366 sqm* of highclearance warehousing and factory space and a 158 sqm* modern office area, this property suits small to medium businesses looking to turn their logistics and operations large.
A reception area welcomes clients with professionalism, while the office spaces benefit from heating and cooling to keep staff comfortable year-round. Added amenities include a kitchenette, male and female toilets, and five on-site car spaces. Positioned within Commercial 2 Zoning and just minutes from Melbourne Airport, the Tullamarine Freeway, Calder Freeway, and the M80 Ring Road, it offers unbeatable access to the entire north-west corridor and beyond.
Total building Area.
Factory Area.
Allocated On-Site car parks.
To Melbourne Airport.
To the Calder Freeway. Zoning.
To the Tullamarine Freeway.
Office, warehouse, access, and parking — it’s not just turnkey, it’s the kind of asset that turns heads and opens doors. Third suite’s the charm.
Luca Angelico | 0447 772 782 luca.angelico@cva.melbourne
“Logistically speaking, this package has the fitout, floorplan, and neighbours to catapult it to the top of the commercial charts in the area. Tactically speaking, inquiring earlier rather than later will allow you to inspect how valuable this freehold really is.”
With an interest in commerce and experience in construction management, Luca has both the creativity and practical problem-solving skills needed to cut it in this industry. Enthusiastic. Committed. Diligent. Having joined CVA in 2017, it was 2020 that saw him become a Sales and Leasing Executive. A role in which Luca is able to showcase his enthusiastic side, fixated on even the smallest of details which make all the difference in helping both developers and investors alike. It’s all of this that will keep you interested in working with him, well beyond the point at which your transaction concludes.
Max Nicolaci | 0401 813 355
max.nicolaci@cva.melbourne
“Big power, big space, and even bigger possibilities! With 300kVA on-site and plenty of room to expand, this is a rare opportunity to secure a versatile industrial property in a prime location. Whether you’re looking to move straight in, redevelop, or reconfigure, this site has the infrastructure and flexibility to support your vision.”
A big-picture operator with astute attention to the fine print, Max’s vantage point in property is defined by his experience on both sides of the industry. Coming from residential real estate, the relationships he’s built over the years are a testament to his dedication, outstanding results and charismatic nature. Bringing this unwavering standard to commercial property, he advocates for each investment like it’s his own; it’s this approach that reflects his professionalism and deep market knowledge, allowing him to navigate complexities with confidence. He provides unwavering support, ensuring clients feel valued and understood, making each transaction a partnership rooted in trust and excellence.

Located at 3/84-86 Lambeck Drive, Tullamarine, this highly functional industrial facility is a rare find in one of Melbourne’s most tightly held industrial precincts. Offering a total building area of 524 sqm*, the property features 366 sqm of highclearance warehouse/factory space* and a 158 sqm modern office component*, making it ideal for a range of small to medium-sized businesses seeking operational efficiency and a professional presentation. The front reception area provides a welcoming first impression, while the well-appointed offices come with heating and cooling to ensure year-round comfort for staff. Additional amenities include a kitchenette, male and female toilets, and five allocated on-site car parks for convenience.
Strategically positioned within Industrial 3 zoning, this property enjoys immediate access to key transport infrastructure. It is located just 2 km from Melbourne Airport*, 1.85 km to the Calder Freeway*, 3.2 km to the Tullamarine Freeway*, and
moments from the M80 Ring Road, offering seamless connectivity across Melbourne’s north-west industrial corridor and beyond. Whether you’re expanding, relocating, or establishing a new base of operations, 3/84-86 Lambeck Drive provides an unbeatable combination of space, accessibility, and business potential.
Title particulars
Certificate of Title — Volume 10639 Folio 677 Lot 3 on Plan of Subdivision 512525H
Zoning Industrial 3 Zone (IN3Z)
Planning Overlays
Municipality City of
All signs point to: Lambeck Drive
Prime Industrial Location:
Lambeck Drive is situated in the heart of Tullamarine’s tightly held industrial precinct, renowned for its strong industrial presence. This ensures a thriving business environment surrounded by complementary industries and services.
Excellent Transport Connectivity:
The location offers unbeatable access to major transport routes, including the Tullamarine Freeway, Calder Freeway, and the M80 Ring Road. Plus, it’s just about 2 km from Melbourne Airport, making logistics and freight movement seamless and efficient.
Versatile Property Options:
The properties along Lambeck Drive, like 3/84-86 Lambeck Drive, provide a mix of highclearance warehousing, factory space, and modern office areas — ideal for businesses requiring both operational space and professional office facilities.
Proximity to Melbourne Airport:
Being close to Melbourne’s main international and domestic airport makes it an ideal location for businesses involved in import-export, freight forwarding, and logistics industries.
Strong Zoning Support for Industrial Growth:
Lambeck Drive benefits from Industrial 3 zoning, which supports a range of light to medium industrial uses while offering a buffer from residential areas. This zoning flexibility makes it attractive for a variety of commercial and industrial businesses looking to establish or expand operations.
Strategic. Visible. Connected. Whether you’re scaling up, streamlining logistics, or planting roots in Melbourne’s industrial heart — Lambeck Drive delivers the location, access, and versatility your business needs to thrive. Opportunities like this don’t sit still — secure your space in Tullamarine’s powerhouse precinct today AND THE POINT?
All signs point to: Tullamarine
Tullamarine is a strategic hub for business and investment thanks to its prime location within Melbourne’s north-west industrial corridor. Its proximity to Melbourne Airport, just a few kilometers away, makes it a critical gateway for importers, exporters, and logistics companies seeking efficient freight and transport solutions. The suburb boasts excellent connectivity with major freeways including the Tullamarine Freeway, Calder Freeway, and the M80 Ring Road, ensuring seamless access to the broader Melbourne metropolitan area and beyond. This infrastructure advantage reduces transit times and costs, which is a major draw for companies involved in distribution, warehousing, manufacturing, and supply chain operations.
Beyond its logistical strengths, Tullamarine offers a well-established industrial precinct with a mix of modern facilities and flexible zoning that supports diverse business activities. The area is known for its supportive local government policies under the City of Hume, fostering a business-friendly
environment with opportunities for growth and development. With an abundance of commercial and industrial properties available, investors can find versatile spaces tailored to various operational needs. Overall, Tullamarine’s combination of accessibility, infrastructure, and business support makes it an attractive destination for businesses looking to thrive and for investors seeking longterm value in a dynamic market.
And the point?
Tullamarine’s close proximity to Melbourne Airport and major freeways offers unbeatable logistics and transport advantages, cutting costs and improving efficiency. The area’s industrial zoning and modern infrastructure support a wide range of businesses from manufacturing to warehousing.
With a skilled workforce nearby and strong local government support, Tullamarine provides the perfect environment to grow your business and tap into Melbourne’s expanding market.
Expressions of Interest Process
At CVA, we provide prospective purchasers full transparency, fairness, and respect during the EOI process.
To make our point, we’ve defined and outlined the process below so you’re across it prior to submitting an offer.
1. Submitting Offers
Offers are due no later than the date and time advertised for the EOI campaign. They must be submitted through this form with every section completed, signed and emailed to the relevant contact persons by campaign closure. Any offers submitted after this time will be deemed as noncompliant and rejected. Our point of view: we strongly encourage all interested parties to submit their best offer, as the vendor reserves the right to accept an initial offer or to deal exclusively with certain offers in a second round.
2. Review Process
All offers will be compiled and presented to the vendor for their consideration after the closing of the EOI campaign.
Upon feedback, we will contact all parties promptly to communicate the vendors instructions relating to their offer.
In the event of a second round, we will request all offers to be provided on a contract of sale with a deposit to CVA for the vendor’s consideration.
For more information, contact
Luca Angelico
0447 772 782
luca.angelico@ cva.melbourne
Max Nicolaci
0401 813 355 max.nicolaci@ cva.melbourne