Information Memorandum - 3-8 Bromham Place, Richmond

Page 1


As Melbourne’s leading independent commercial property agency, we take pride in creating worth across all four points of this city.

01. Point of Interest

02. Point of View

03. Property Features

04. Property Particulars

05. Location

06. Appendices Floor Plan

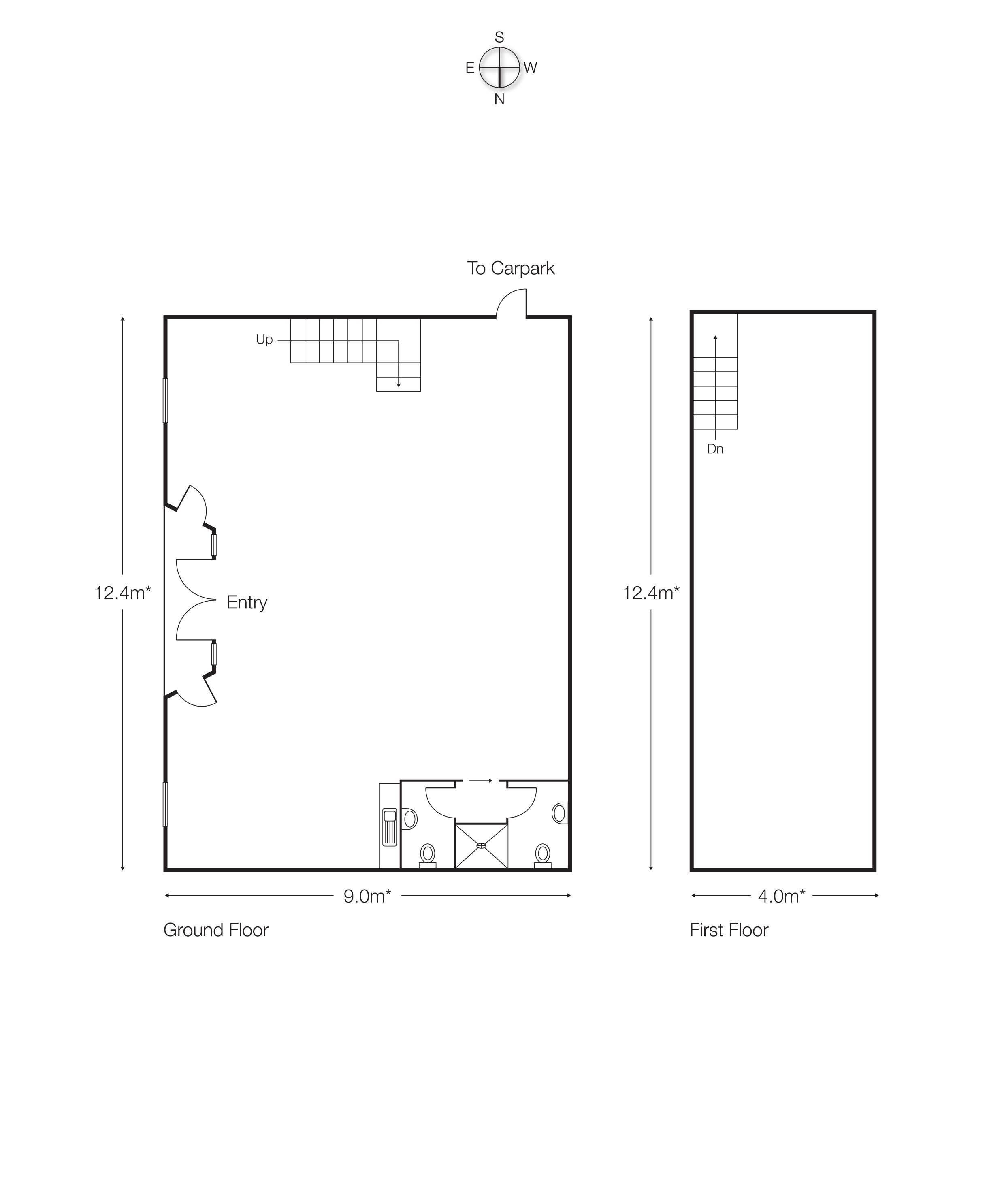
From the striking industrial-chic brickwork to the top-shelf food options surrounding the premises, this fully self-contained chameleon is a Richmond classic. Versatility pours through the 155 sqm* floorplan with space for an open-plan office and a showroom, or take cues from the previous tenant and utilise the space as a boutique gym.

The mezzanine adds another layer of spatial functionality, plenty of natural light, and shower facilities for staff or clients. Two on-site car spaces are a rare commodity in Richmond, but so is an opening within a commercial pocket this close to Bridge Road and Hoddle. You’re also 400 m* from Victoria Street, 500 m* from Richmond Traders, and a 5-minute walk to the Church Street trams, justifying the number of enquiries we’ve already received just from the rumour mill.

self contained with shower facilities Zoning
meters From Bridge Road and Richmond Traders

What’s the point of owning and operating out of one of Richmond’s best commercial precincts if you can’t show and tell? Utilise the direct street access, signage space, and signature brickwork façade to your advantage, and the strategic investment will speak for itself.

Jarrod Moran | 0413 251 621

“Brick by brick, your business legacy starts here”

The key word you’re looking for is knowledge. It’s Jarrod’s established market understanding, extensive business experience and strong work ethic defined by motivation and dedication, that makes him a seasoned asset not just to CVA but to your day to day. And it’s this energy that amplifies opportunity — in Melbourne, in the market and in the minds of his clients.

Charlie Hicks | 0420 643 202

“Where exposed beams meet bold business dreams”

Naturally business and strategy minded, but with the credentials to back it up — Charlie has a Bachelor of Business and Arts that keeps his processes sharp and campaigns organised. In saying that, his intuition has driven a large part of his success, from his relationship-building to the trust he fosters between colleagues and clients alike. It’s why CVA knew they had a leading Property Executive on their hands, and why Charlie channelled his media experience into creating worth across all points of Melbourne. Hardworking. Organised. Reliable. But those around him for more than a moment would say that he has a way of getting along with everyone. And while the saying ‘fail to plan, plan to fail’ is used by many, they’re words Charlie lives by — and it’s exactly how he got here.

With exposed brickwork, steel beams, and quality finishes throughout, this approx. 155 sqm* selfcontained space offers a versatile footprint in one of Richmond’s most accessible commercial pockets. Zoned Commercial 2, it’s well-suited for a variety of uses—whether you’re envisioning a creative office, boutique showroom, or even a fitness studio, as demonstrated by the previous tenant.

Natural light filters throughout the space, and the additional mezzanine level enhances functionality while also housing a convenient shower facility— ideal for businesses with active staff or clientfacing services. Two on-site car spaces provide rare convenience in an area where parking is often limited.

Positioned just 400 metres* from both Victoria Street and Hoddle Street, and only 500 metres* from Bridge Road and Richmond Traders, the location connects easily to Church Street trams and nearby retail precincts. With strong street visibility, direct access, and a signature industrial aesthetic, this opportunity offers both presence and practicality in a highly sought-after Richmond locale.

Principle Outgoings Council

Owners Corporation:

Title particulars

p.a* (2025)

p.a* (2025)

p.a* (2025) Land Tax (Single Holding): $2,610 per p.a* (2025)

Certificate of Title — Volume 08447 Folio 978 Lot 3 on Plan of Subdivision 505239Y

Zoning Commercial 2 Zone (C2Z)

Planning Overlays

Municipality

Development Contributions Plan Overlay - Schedule 1 (DCPO1) Heritage Overlay (Ho462)

Yarra City Council

All signs point to: Bromham Place

Bromham Place in Richmond is a prime inner-city location offering stylish workspaces, modern amenities, and strong investment potential. Here are some notable aspects and benefits of buying property in this area:

Prime Inner-City Location:

Situated just 2.2 km from Melbourne’s Central Business District, Bromham Place provides excellent connectivity. It’s within walking distance to Church Street and Bridge Road retail precincts and is easily accessible via public transport, including tram services along Church Street and nearby North and West Richmond railway stations.

Architecturally Distinctive Workspaces:

Located at 8 Bromham Place, the area boasts industrial-style office spaces that blend historical charm with modern amenities. These warehouse-style offices often feature red brick facades, exposed trusses, polished concrete floors, and abundant natural light, creating inspiring and functional work environments.

Modern Amenities and Infrastructure:

Properties in Bromham Place are equipped with contemporary facilities, including high-speed NBN internet, heating and cooling systems, kitchenettes, bathrooms with showers, and secure parking spaces. Some offices also feature mezzanine levels and open-plan layouts, catering to diverse business needs.

Vibrant Community and Lifestyle:

Richmond is renowned for its dynamic community, offering a blend of cultural, historical, and modern amenities. The area features parks, diverse dining options, shopping districts, and a vibrant nightlife, contributing to a balanced work-life environment.

Strong Investment Potential:

The demand for commercial properties in Bromham Place is robust, with developments like the 24 industrial-style offices at 6-8 Bromham Place experiencing high occupancy rates. The area’s popularity and strategic location suggest promising long-term capital growth and rental yields for investors

Strategic. Visible. Connected.

Just minutes from Melbourne’s CBD, Bromham Place offers stylish industrial workspaces, modern amenities, and unbeatable connectivity. Set in vibrant Richmond, it’s the perfect blend of lifestyle and strong investment potential. AND THE POINT?

All signs point to: Richmond

Richmond is a highly attractive suburb for business and investment primarily because of its strategic location near Melbourne CBD. Being close to the city allows companies to access a large urban market while avoiding the higher costs typically found in the heart of the CBD. This proximity also benefits businesses by providing easy access to clients, suppliers, and a broad customer base. Coupled with excellent transport infrastructure— including multiple train stations, tram lines, and major roads—Richmond offers superb connectivity that makes commuting straightforward for employees and customers alike. This accessibility enhances daily business operations and increases the area’s desirability for both commercial tenants and investors looking for strong rental returns.

The commercial environment in Richmond is vibrant and diverse, combining retail, hospitality, and creative industries. The suburb features an array of retail outlets, cafes, restaurants, and boutique shops that attract a varied clientele, especially young professionals and families who live and work nearby.

In addition to retail and hospitality, Richmond has transformed many former industrial and warehouse spaces into creative studios, coworking hubs, and startup offices, fostering an innovative and entrepreneurial community.

This mix supports a dynamic local economy and offers ample opportunities for small and medium enterprises (SMEs) and tech-driven businesses.

The real estate market in Richmond has shown consistent growth due to ongoing urban renewal and gentrification, offering investors strong capital appreciation prospects alongside attractive rental yields.

The suburb also benefits from high-quality lifestyle amenities such as parks, schools, healthcare facilities, and cultural attractions, including the famous Melbourne Cricket Ground (MCG), which drives event-related tourism and foot traffic. Overall, Richmond’s blend of location, infrastructure, economic diversity, and lifestyle appeal makes it an excellent choice for business and investment.

PLAN SCHEDULE:

TOTAL BUILDING AREA 155 sqm*

*All measurements and sizes are approximate only.

Turn static files into dynamic content formats.

Create a flipbook
Issuu converts static files into: digital portfolios, online yearbooks, online catalogs, digital photo albums and more. Sign up and create your flipbook.