As Melbourne’s leading independent commercial property agency, we take pride in creating worth across all four points of this city.
01. Point of Interest 02. Point of View 03. Property Features 04. Property Particulars
05. Location
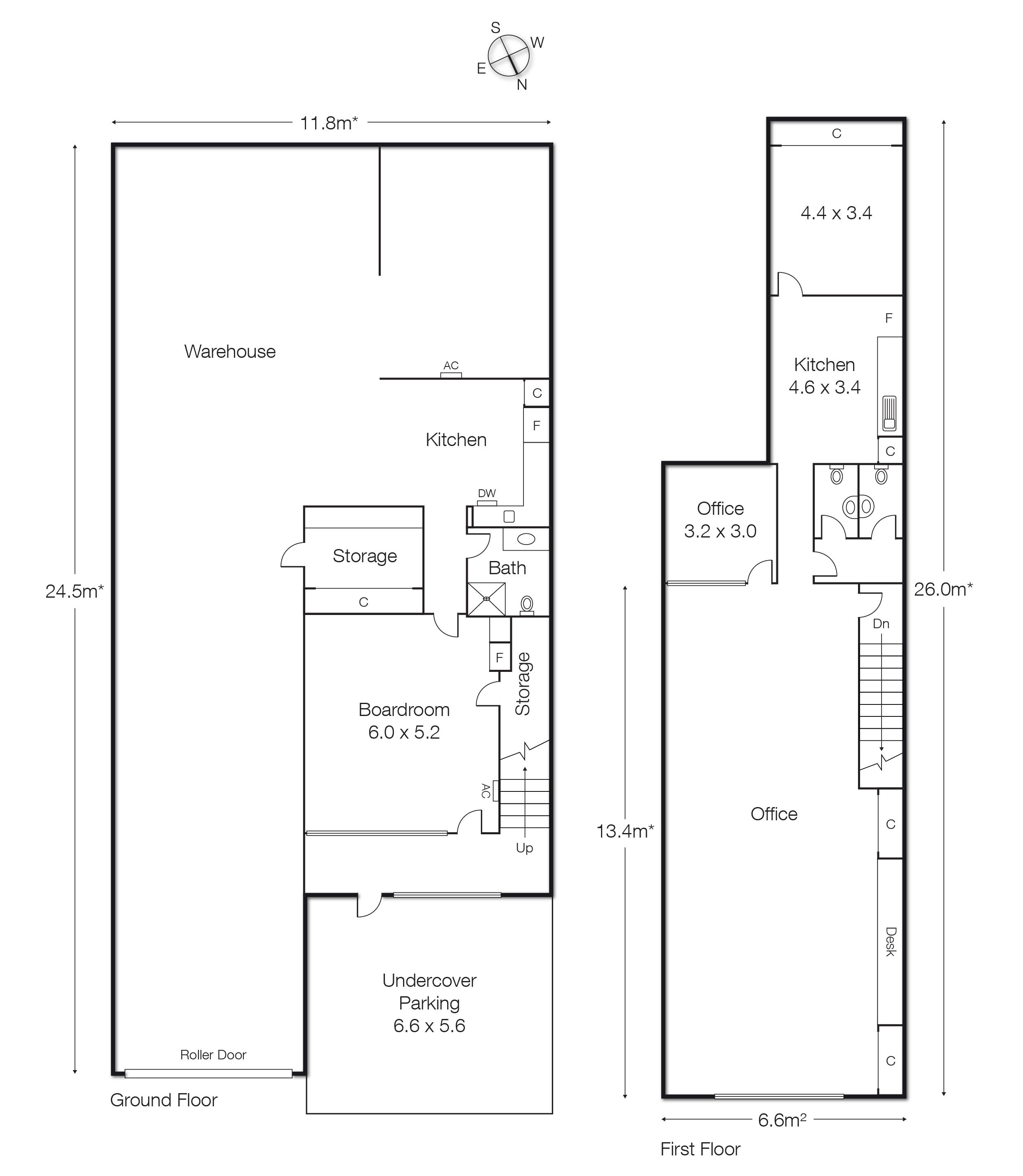
06. Floor Plan

In the heart of Oakleigh’s tightly held industrial precinct, this high-spec space delivers everything a modern business needs — flexibility, functionality, and a first-class finish. Spanning 398 sqm*, the property combines a 7 m* high-clearance warehouse with a fully fitted showroom or conference zone, a golf simulator/training room, and secure storage — all on the ground floor.
Upstairs, the layout supports productivity with an open-plan office, private executive suite, generous staff kitchen, and dedicated print/storage room, plus roof access. With 8 car parks (including 2 undercover), full amenities including a bathroom with a shower, and security features like FOB access, bollards, CCTV and monitored alarm, this is a one-of-a-kind turnkey headquarters — or hobby-home away from home — in one of Melbourne’s most connected commercial locations, just minutes from Huntingdale Station, Eaton Mall, and Oakleigh Central.

398 sqm*
Recreational

Car Spaces

A Grade Fit Out


Far beyond being just another warehouse, this is a meticulously crafted space in one of Oakleigh’s most tightly held estates. With premium finishes, unmatched connectivity, and unbeatable amenities, it’s the kind of asset you would have to build yourself to create.



Jarrod Moran | 0413 251 621
jarrod.moran@cva melbourne
“A warehouse unlike any other that seamlessly transforms work into play”.
The key word you’re looking for is knowledge. It’s Jarrod’s established market understanding, extensive business experience and strong work ethic defined by motivation and dedication, that makes him a seasoned asset not just to CVA but to your day to day. And it’s this energy that amplifies opportunity — in Melbourne, in the market and in the minds of his clients.
Charlie Hicks | 0420 643 202 charlie.hicks@cva.melbourne
“Think inside the box — this one’s built to impress.”
Naturally business and strategy minded, but with the credentials to back it up — Charlie has a Bachelor of Business and Arts that keeps his processes sharp and campaigns organised. In saying that, his intuition has driven a large part of his success, from his relationship-building to the trust he fosters between colleagues and clients alike. It’s why CVA knew they had a leading Property Executive on their hands, and why Charlie channelled his media experience into creating worth across all points of Melbourne. Hardworking. Organised. Reliable. But those around him for more than a moment would say that he has a way of getting along with everyone. And while the saying ‘fail to plan, plan to fail’ is used by many, they’re words Charlie lives by — and it’s exactly how he got here.

Positioned within a tightly held boutique industrial estate, this ultra-modern facility offers approximately 398 sqm* of high-quality showroom, warehouse and office space with rare park frontage to Jack Edwards Reserve. Designed for functionality and versatility, this space is ideally suited to owner-occupiers seeking a standout position with premium features and finish.
The ground floor includes a fully fitted conference/showroom area, high-clearance warehouse with up to 7m clearance, a private gym and recreation room, golf simulator/training room, full kitchen, bathroom with shower, and secure storage spaces. The upper level features a spacious open-plan office, a private executive office, multiple amenities, large staff kitchen/meals area, and a dedicated print/ storage room with roof access. Eight car parks (including two undercover), secure electronic FOB access, bollards, monitored alarm and CCTV ensure both convenience and peace of mind.
Located moments from Huntingdale Road and just a short distance to Huntingdale Station, Oakleigh Centro, Eaton Mall and a wide selection of cafes, eateries and retail, this is a rare opportunity to secure a functional, future-proof space in one of Melbourne’s most sought-after industrial precincts.






Principle Outgoings:
Title particulars
$3,204.75 p.a* (2025) Water Rates: $1,200 p.a* (2025)
Owners Corporation: $6,027.90 p.a* (2025)
Land Tax (Single Holding): $1,695 p.a* (2025)
Certificate of Title — Volume 11571 Folio 783
Lot 17 on Plan of Subdivision 720054L
Zoning Industrial 1 Zone (IN1Z)
Planning Overlays
Municipality
Design And Development Overlay - Schedule 1
City of Monash





