As Melbourne’s leading independent commercial property agency, we take pride in creating worth across all four points of this city.
of
Tenancy Schedule 05. Property Particulars 06. Location 07. Infrastucture Investments
08. Appendices Title Plan


![]()
As Melbourne’s leading independent commercial property agency, we take pride in creating worth across all four points of this city.
of
Tenancy Schedule 05. Property Particulars 06. Location 07. Infrastucture Investments
08. Appendices Title Plan


With over 8 million* commuters passing by annually, this corner-block gem is an attention collector. 2,265 sqm* of land, three interconnected buildings, and a heavy-weight crane for good measure, whether you’re looking to expand, reimagine, or simply claim your corner of Sunbury’s future, this opportunity doesn’t just knock — it demands you answer.

2,265
8




John Nockles | 0404 530 393 john.nockles@cva.melbourne
“A prolific freehold that speaks to the masses, both byversatility and by overt exposure. The point: Make haywhile the Sun-bury shines.”
John’s experience in commercial real estate is now pushing a decade and over that time he’s proud to see change when it comes to property in Melbourne. By adopting a lateral approach within a linear industry, John understands success within Melbourne’s commercial real estate market occurs by looking beyond what has been done, to what can be. It’s an approach that mirrors this city’s originality, commercially—and with it, creativity that extends beyond St Kilda Road.

Leo Mancino | 0418 343 147 leo.mancino@cva.melbourne
“Exposure positions like this simply do not come up in Sunbury. Take advantage now. Who knows when the next one will be.”
It’s the expertise accumulated over three decades paired with a realistic outlook on life, that makes Leo not just a seasoned director to the CVA team, but a significant asset when it comes to dealing with yours. From personable first impressions to successful business transactions, he has not just built a solid and loyal client base, but developed negotiation techniques that have earned him great respect in this city’s industry.

Vineyard Road is no wallflower. The explicitly exposed asset speaks to over 8 million Sunbury commuters annually thanks to its position on the main thoroughfare. This selling point, paired with the corner-block advantage of wrapping around Commerce Court, means that in addition to formally having a second address here (2 Commerce Court is also correct), the huge land area has a dual entry for ease of access.
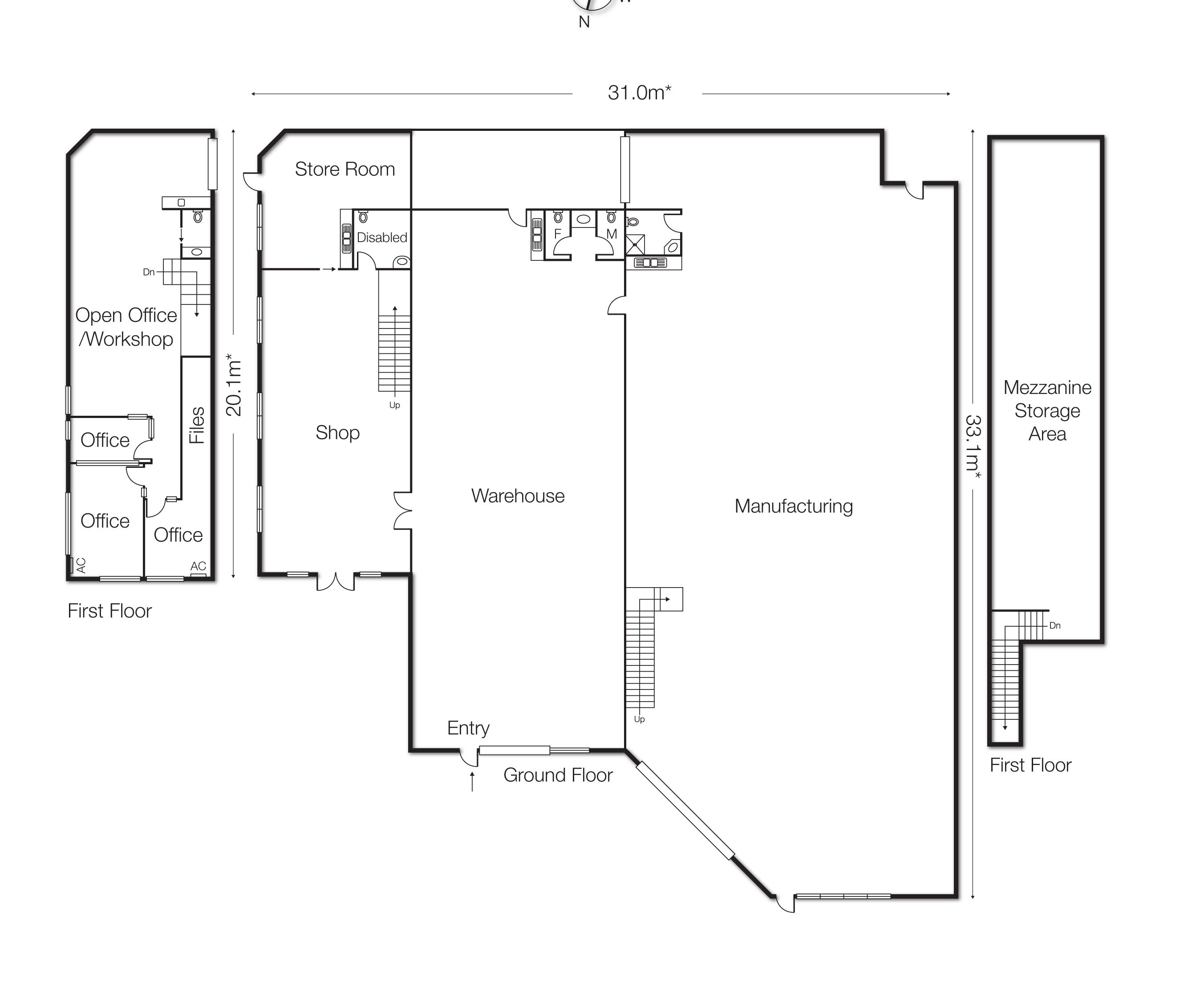
Speaking of, there’s an impressive 2,265 sqm* of land to work with, with three interconnected buildings amassing 961 sqm* plus additional mezzanine storage. The southeast building, closest to Commerce Court, features a ground and first-floor office or showroom of approximately 260 sqm* with both open plan and partitioned areas as well as a ground and first-floor small loading Dock.
The middle building is an original industrial shed of 231 sqm* in excellent condition, with an internal height clearance of 3 – 3.5 m*. Onto the South-West building, a high bay industrial floorplan of 470 sqm* plus an additional severely weight-rated storage mezzanine, accessible via stairs. The building also has a crane installed with a 2 – 5 tonne* weight capacity to be sold with the premises.
Beyond the industrious nature of the site, the facility features multiple staff amenities like ample bathrooms, kitchenettes, and the office / showroom comforts like heating and cooling. A lot of effort has gone into protecting the asset too, with security systems, external lighting, and fencing installed.
Unsurprisingly, there’s a significant development upside here. Due to the underutilised land coverage of just 43%, the property could be further built into the land facing Vineyard Road, refurbished as it stands, or totally reimagined and redesigned based on the owner’s requirements.







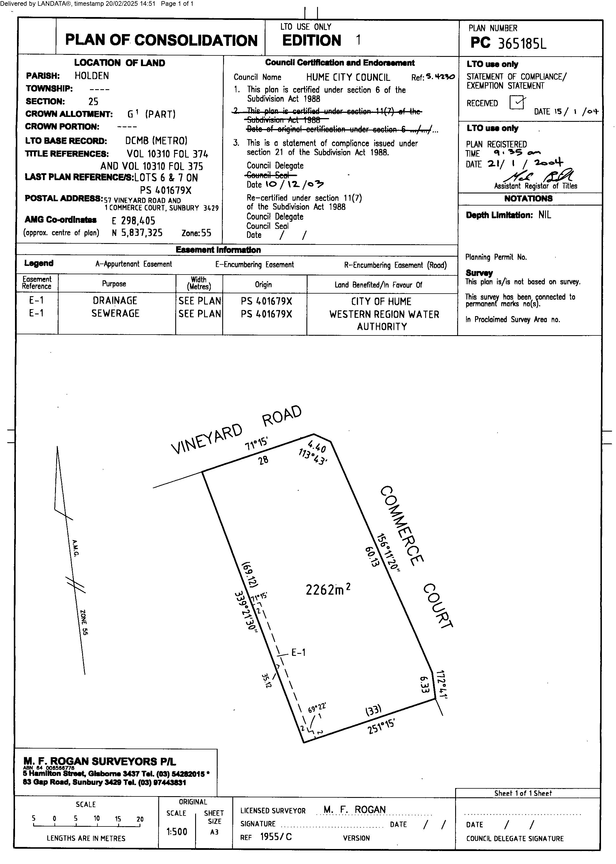
Title particulars Certificate of Title — Volume 10778 Folio 727
Land In Plan of Consolidation 365185L
Zoning Industrial 1 Zone (IN1Z)
Municipality City of Hume

Since the late 1800s, Sunbury has been known for its vineyards, landscapes, and independent charm — so much so it held the first Australian ‘Woodstock’ in the 70s. Lately, infrastructure upgrades and population growth have led to a burgeoning commercial scene commanding the attention of every major retailer and operator.
Namely, Bunnings is 400 m* away, Woolworths is 650 m*, and the Sunbury Square Shopping Centre is a quick 5 minutes down the road. Well-known names like Target, Harris Scarfe, and Big W service the community here, and so does the Sunbury railway station in the centre of it all.
The Metro Tunnel project is set to open in 2025, connecting Sunbury to the Cranbourne and Pakenham lines with five sleek new stations. This game-changing development is expected to skyrocket accessibility and economic activity, making the region one to watch.
Spanning 132 square km*, Sunbury is steadily growing, with the population climbing from 34,030 in 2011 to 36,073 in 2016. The prime age group? 40-49, with families in tow. This mix fuels demand for a wide range of commercial services, from retail to healthcare and beyond.
With its unbeatable location, infrastructure upgrades, and swelling population, Sunbury is quickly becoming a hotspot for commercial real estate. A bustling market full of listings and sales shows that the region is gearing up for even more growth.
AND THE POINT?
Strategic. Visible. Connected. Sunbury is about to have an envious 2025. With a booming population, top-tier infrastructure upgrades, and the kind of strategic location that practically guarantees growth, this is where it pays to succeed by association.
Sunbury is on the brink of a transformation, with a lineup of game-changing infrastructure projects set to redefine the region’s commercial and residential future. Over the next decade, enhanced connectivity, improved amenities, and a surge in economic opportunities will reshape the landscape.
One of the headliners: The expansion of the Sunbury Railway Line, which will fast-track commuter access to Melbourne’s CBD, fueling property development and investment along the way. Road upgrades, like the widening of Sunbury Link Road, will smooth out traffic and open up even more business potential.
The social scene is levelling up too, with new community centres and recreational facilities making Sunbury an even more desirable spot for families and businesses. Eco-friendly initiatives, including green spaces and pedestrian zones, will ensure the area remains both livable and forward-thinking.
Add to that the development of tech hubs and business districts, and Sunbury is primed to become an economic powerhouse. In short, the next 10 years are Sunbury’s time to shine, and we’re your partners to get you into the spotlight.


The document following this cover sheet is an imaged document supplied by LANDATA®, Secure Electronic Registries Victoria.
Document Type
Document Identification
Number of Pages
(excluding this cover sheet)
Document Assembled
20/02/2025 14:51
Copyright and disclaimer notice: © State of Victoria. This publication is copyright. No part may be reproduced by any process except in accordance with the provisions of the Copyright Act 1968 (Cth) and for the purposes of Section 32 of the Sale of Land Act 1962 or pursuant to a written agreement. The information is only valid at the time and in the form obtained from the LANDATA® System. None of the State of Victoria, LANDATA®, Secure Electronic Registries Victoria Pty Ltd (ABN 86 627 986 396) as trustee for the Secure Electronic Registries Victoria Trust (ABN 83 206 746 897) accept responsibility for any subsequent release, publication or reproduction of the information.
The document is invalid if this cover sheet is removed or altered.
