Information Memorandum_1-3 Hossack Avenue, Coburg North

Page 1


As Melbourne’s leading independent commercial property agency, we take pride in creating worth across all four points of this city.

01. Point of Interest 02. Point of View

Property Features 04. Property Particulars 05. Location

06. Sales Process

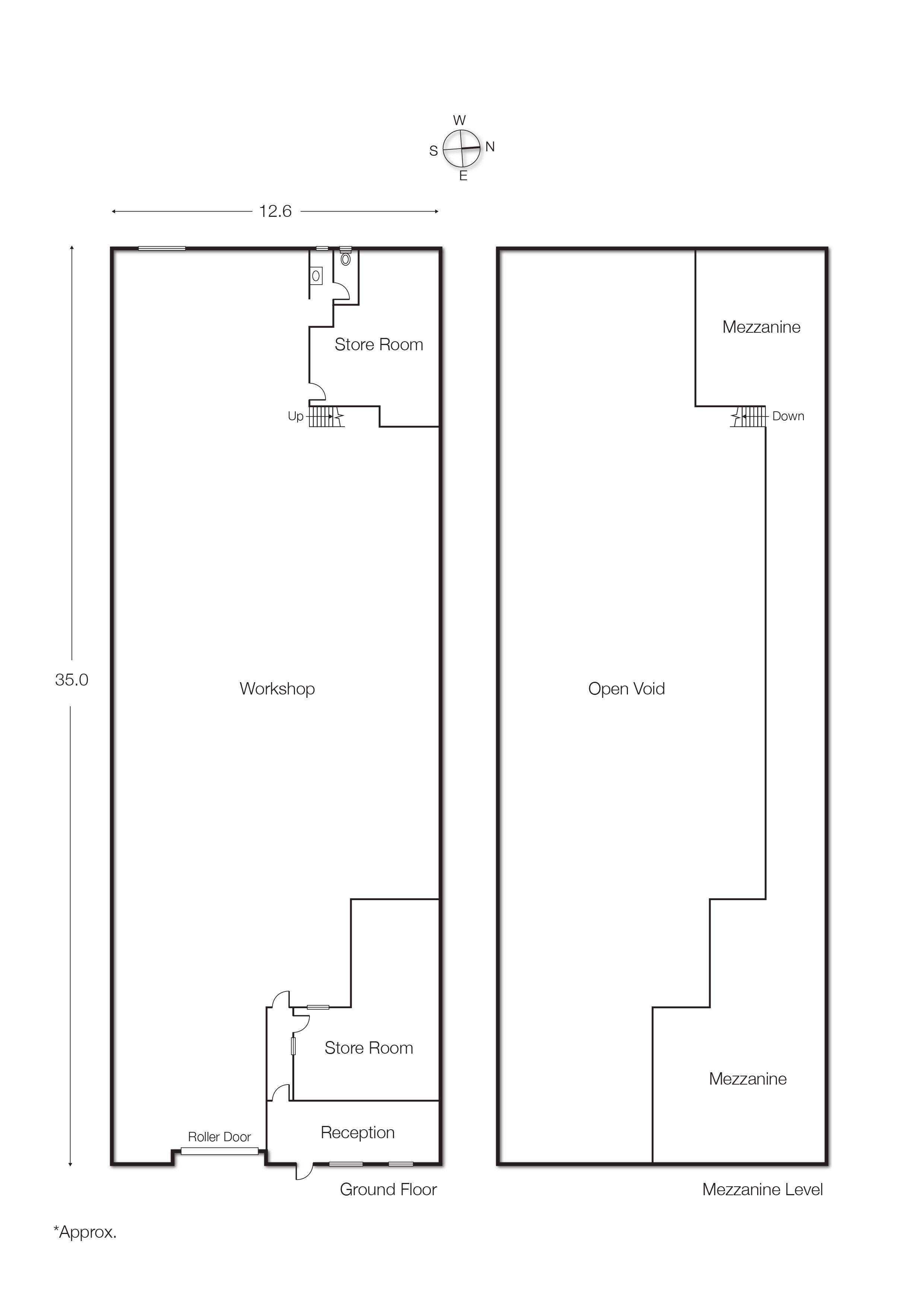
07. Appendices Expressions of Interest Form Floorplan

Whether you’re buying for yield, planning your operational move, or simply parking your money in the north while there’s a rare opening, Hossack holds the cards you didn’t know were still in the deck. This tightly held industrial pocket just 9 km* from the CBD plays host to two side-by-side warehouses totalling 888 sqm*, fully leased to long-term operator Cab Connect Pty Ltd. With a combined income of $78,000 per annum* and lucrative renewal options in place, the property offers secure, CPI-linked income from day one, with future flexibility to subdivide or occupy. The tenant operates across the two adjoining sites, running a mechanical workshop and taxi depot at 1 Hossack and a car rental and vehicle storage facility at 3. The business provides automotive services like vehicle maintenance, fleet management, and storage, catering to both private and commercial clients.

Set on a prestigious corner block with six car spaces, heating and cooling throughout, and roller door access, the asset is a bit of an industrious show-off. But it’s the location that really gets a zoom in: moments from Bell Street, Sydney Road and the CityLink, close to Batman and Merlynston railway stations, and surrounded by the kind of retail clout — Bunnings, Coles, Officeworks — that keeps real estate demand high. Even lunch is sorted, with cult favourites like 300 Grams, Joy Coburg, and Paninoteca S.p.A just a few hundred metres away.

sqm*

Total building area

428 sqm*

Building Area at 1

Proximate

$78,000.00 per annum

Net Return To Sydney Road 800 m*

Industrial 3 Zone

Building Area at 3 Hossack
To Batman Railway Station
sqm*
m*
Zoning
Hossack
Walking distance to Bunnings, Officeworks, Petbarn, and Goodlife Health Clubs

With two side-by-side freehold buildings and one solid tenant, this is a neat industrial package with a built-in exit strategy — unless you get comfortable with making yourself comfortable from the investment.

Daniel Philip | 0439 977 121 daniel.philip@cva.melbourne

“Side-by-side and set to thrive — Hossack holds the winning hand.”

An agent that turns first impressions into lasting commitments. Since the early days of his career, Daniel has established a level of service that is defined by in-depth market knowledge, expert advice and responsive communication. Committed to creating value in the commercial real estate opportunities he matches with his clients’ objectives, and the ability to think outside the square. Especially if that extends well beyond Melbourne’s inner-city grid.

Luca Angelico | 0447 772 782 luca.angelico@cva.melbourne

“ Double frontage, triple threat: location, income, flexibility. ”

With an interest in commerce and experience in construction management, Luca has both the creativity and practical problem-solving skills needed to cut it in this industry. Enthusiastic. Committed. Diligent. Having joined CVA in 2017, it was 2020 that saw him become a Sales and Leasing Executive. A role in which Luca is able to showcase his enthusiastic side, fixated on even the smallest of details which make all the difference in helping both developers and investors alike. It’s all of this that will keep you interested in working with him, well beyond the point at which your transaction concludes.

The property at 1–3 Hossack Avenue, Coburg North, comprises two high-clearance industrial warehouses designed for automotive and mechanical operations. Warehouse 1 features a modern double-storey office and reception space with excellent visibility from the main entry, and a well-organised workshop providing space for multiple vehicle hoists. The space benefits from concrete flooring, a clear-span layout, skylights for natural light, and high roller door access. Warehouse 2 offers a dedicated panel and spray booth area, with generous vehicle storage capacity, extensive shelving, and front roller door access. Both warehouses are equipped with insulated metal roofing, ample lighting, staff amenities, and customer service areas, with a strategic layout that separates mechanical and panel operations for efficiency — making this an ideal asset for automotive businesses, mechanical workshops, or as a high-appeal investment.

Principle Outgoings

Site

Title particulars

Certificate of Title — Volume 10213 Folio 821 Plan PC355521

Zoning Industrial 3 Zone (IN3Z)

Planning Overlays

Municipality

Development Contributions Plan Overlay — Schedule 1 (DCP01)

City of Merri-bek

All signs point to: Hossack Avenue

Hossack Avenue in Coburg North offers a prime business address that blends strategic accessibility with a thriving commercial environment. Here are some notable aspects and benefits of buying property in this area:

Strategic Location:

Positioned within the thriving suburb of Coburg North, Hossack Avenue enjoys excellent connectivity to Sydney Road, Bell Street, and major freeways like the M31 Hume Freeway. This prime location allows for quick transportation of goods, easy client access, and efficient delivery routes to both metropolitan Melbourne and regional areas.

Industrial & Commercial Hub:

The property sits within an established commercial and light-industrial precinct, surrounded by a diverse range of businesses including manufacturing, logistics, automotive, and wholesale operations. This creates a vibrant commercial ecosystem that fosters networking, collaboration, and strong supplier–client relationships.

Proximity to Amenities:

With nearby shopping centres, cafés, fuel stations, banks, and service providers, the area offers convenience not only for customers but also for staff. Easy access to everyday essentials helps support a healthy work–life balance for employees and makes the location more appealing to potential tenants or buyers.

Growing Local Economy:

Coburg North is experiencing steady economic development, with ongoing infrastructure upgrades, new residential estates, and revitalised commercial strips. This growth translates into increased foot traffic, greater consumer demand, and long-term investment stability for businesses operating in the area.

Established Workforce:

The surrounding suburbs provide a large and skilled workforce across various industries, ensuring businesses can find qualified staff with ease. The area’s mix of trade professionals, administrative talent, and service workers reduces recruitment challenges and supports operational efficiency.

AND THE POINT?

Strategic. Thriving. Connected.

Owning property on Hossack Avenue, Coburg North, places you in one of Melbourne’s most dynamic industrial and commercial precincts, just 11 km from the CBD. With seamless links to Sydney Road, Bell Street, and the M31 Hume Freeway, the location offers exceptional access for freight, clients, and suppliers. Surrounded by a vibrant mix of manufacturing, logistics, automotive, and wholesale businesses—and with essential amenities, dining, and public transport close at hand—this is a prime setting for operational efficiency, staff convenience, and customer reach. Ongoing local growth and infrastructure upgrades further enhance long-term investment potential, making Hossack Avenue a smart move for businesses and investors alike.

All signs point to: Coburg North

Coburg North is one of Melbourne’s most promising commercial and industrial hubs, offering a unique combination of strategic location, economic growth, and community development. Positioned just 11 km from the CBD, the area benefits from excellent transport links via Sydney Road, Bell Street, and the M31 Hume Freeway, providing efficient connectivity to both metropolitan Melbourne and regional markets.

The suburb has a well-established industrial base, with thriving manufacturing, logistics, automotive, and wholesale sectors creating a strong commercial network for collaboration and supply chain opportunities. Its proximity to essential amenities—including shopping centres, dining options, fuel stations, and service providers— makes it attractive for both staff and customers.

Coburg North’s local economy continues to expand, supported by infrastructure upgrades, urban renewal projects, and an increasing

residential population. This growth is driving consumer demand and boosting property values, making it a compelling choice for both business operators and investors. With access to a skilled workforce and a community that values local enterprise, Coburg North offers a stable, growthready environment where businesses can thrive and investments can appreciate over time.

The point?

Coburg North offers an ideal environment for business and investment, with its prime location just 11 km from Melbourne CBD and excellent access via Sydney Road, Bell Street, and the M31 Hume Freeway. The area boasts a strong industrial and commercial base, proximity to essential amenities, and a skilled local workforce. With ongoing infrastructure upgrades, a growing residential population, and rising demand for commercial spaces, Coburg North presents both immediate business opportunities and strong long-term investment potential.

Expressions of Interest Process

At CVA, we provide prospective purchasers full transparency, fairness, and respect during the EOI process.

To make our point, we’ve defined and outlined the process below so you’re across it prior to submitting an offer.

1. Submitting Offers

Offers are due no later than the date and time advertised for the EOI campaign. They must be submitted through this form with every section completed, signed and emailed to the relevant contact persons by campaign closure. Any offers submitted after this time will be deemed as noncompliant and rejected. Our point of view: we strongly encourage all interested parties to submit their best offer, as the vendor reserves the right to accept an initial offer or to deal exclusively with certain offers in a second round.

2. Review Process

All offers will be compiled and presented to the vendor for their consideration after the closing of the EOI campaign.

Upon feedback, we will contact all parties promptly to communicate the vendors instructions relating to their offer.

In the event of a second round, we will request all offers to be provided on a contract of sale with a deposit to CVA for the vendor’s consideration.

For more information, contact

Daniel Philip 0439 977 121 daniel.philip@cva.melbourne

Luca Angelico 0447 772 782 luca.angelico@cva.melbourne

Expressions of Interest Form

Point of interest: 1-3 Hossack Avenue, Coburg

Complete this form and return it to our office via email or post by Thursday 18th September 3.00PM

ADDRESS TO: CVA Property Consultants Attention: Daniel Philip, Luca Angelico

POST or HAND DELIVER 18-20 Russell Street, Melbourne VIC 3000

E-MAIL

Please submit your offer to the agent you have been working with throughout the campaign. daniel.philip@cva.melbourne luca.angelico@cva.melbourne

Purchasing Entity Entity/Individual: Address:

Attention:

ABN: Telephone: Email:

Proposed Purchase Terms

Purchase Price: Deposit (%): Settlement Period: Conditions:

Solicitor Company: Attention:

Address:

Telephone:

Email:

Additional information or special conditions, which supports or clarifies a Registrant’s submission, may be annexed to this ‘Expressions of Interest Form’. The Contract of Sale & Vendor’s Statement has been available during the marketing campaign and parties acknowledge that they have received a copy

NOTE: The Vendor has the right, at its sole discretion, to vary the sales process, to postpone or cancel the sale of the property and to modify or add any terms and conditions to any proposed contract of sale or Vendor’s Statement which may be made available to a potential purchaser.

Turn static files into dynamic content formats.

Create a flipbook
Issuu converts static files into: digital portfolios, online yearbooks, online catalogs, digital photo albums and more. Sign up and create your flipbook.
Information Memorandum_1-3 Hossack Avenue, Coburg North by CVA Property Consultants - Issuu