Skip to main content

Aronoff Center Technical Specifications 03.16.2026

Page 1


Figure

Figure

Figure

Figure 64. Green Room located on the loge level of the Aronoff Center.

Figure 65. The Alice F. and Harris K. Weston Art Gallery upper-level interior.

Figure 66. Weston Art Gallery upper level.

Figure 67. Weston Art Gallery lower level.

Figure

Cincinnati Arts Association

Founded in 1992, the Cincinnati Arts Association (CAA) is a not-for-profit organization that oversees the programming and management of two performing arts venues – the Aronoff Center for the Arts and Music Hall – in the heart of Cincinnati, Ohio.

Each year, CAA presents a diverse schedule of events; serves upwards of 600,000 people in its venues; features the work of talented local, regional, and national artists in the Weston Art Gallery; and supports the work of more than one dozen local performing arts organizations through residencies. Since the inception of its acclaimed arts education programs in 1995, CAA has reached more than two million students.

CAA is proud to be a member of Ohio Citizens for the Arts, Cincinnati USA Regional Chamber, Greater Cincinnati Convention & Visitors Bureau, Greater Cincinnati & Northern Kentucky African American Chamber of Commerce, Hispanic Chamber of Commerce, Over-the-Rhine Chamber of Commerce, and Performing Arts Center Consortium.

A ronoff Center for the Arts

Resident Companies of The Aronoff Center

Broadway in Cincinnati

Cincinnati Arts Association

Cincinnati Ballet

Cincinnati Boychoir

Cincinnati Music Theatre

Cincinnati Playwrights Initiative

Exhale Dance Tribe

Mutual Dance Theatre and Arts Centers

Revolution Dance Theatre

The Aronoff Center for the Arts is better known to Cincinnatians as simply The Aronoff – a nod to Senator Stanley Aronoff, whose vision for a performing arts center in his hometown came to fruition in 1995. Designed by internationally renowned architect Cesar Pelli, the dramatic glass, stainless steel, and brick facades are a vibrant modern counterpoint to neighboring buildings T he Aronoff Center is just a block away from the heart of Cincinnati, Fountain Square, and many of the area’s finest restaurants and hotels.

The Aronoff Center is home to three versatile performance spaces, a gallery, and special event locations. The 2,700-seat Procter & Gamble Hall hosts major events and touring Broadway productions; the 437-seat Jarson-Kaplan Theater is the ideal setting for local theater and dance presentations; the Fifth Third Bank Theater seats up to 150 and can be configured for more intimate events. With galleries on two levels, the acclaimed Weston Art Gallery showcases an eclectic mix of exhibits by prominent, emerging, and local artists. The Green Room and Rehearsal Hall spaces of The Aronoff are often used as special event and hospitality support venues. The Aronoff Center Campus also includes the upscale contemporary Mexican restaurant, Nada

Figure 1. Aronoff Center for the Arts exterior view.

General Information

An Event Manager is assigned to upcoming events five weeks prior to install. They, along with the Technical Director, will reach out for advancing all needs. Prior to that, inquires may be sent to RentalAC@cincinnatiarts.org

General operations of the Aronoff Center may be reached at OperationsAC@cincinnatiarts.org https://www.cincinnatiarts.org/ • info@cincinnatiarts.org

Location & Access

Public Entrances by Venue

• Procter & Gamble Theater, enter through Walnut Street, North Plaza, or South Plaza.

• Jarson-Kaplan Theater, enter through South Plaza by Nada

• Fifth Third Bank Theater, enter at the corner of 7th and Main Streets.

• Weston Art Gallery, enter through the gallery doors on 7th Street

• Box Office, enter through South Plaza by Nada

• Administration and Stage Door, enter through labeled doors on 7th Street

Figure 2. Aronoff Center for the Arts entrance map.

Main Entrance

650 Walnut Street

Cincinnati, OH 45202

Shipping Address & Stage Door

123 E. 7th Street

Cincinnati, OH 45202

Hours: 7AM–11PM* daily

Administrative Offices

121 E. 7th Street

Cincinnati, OH 45202

Phone: (513) 721-3344

Fax: (513) 977-4150

Hours: Monday–Friday, 9:00AM– 5:00PM

Shipping & Receiving

All deliveries should be made to:

Aronoff Stage Door

ATTN: [Production, Recipient Name]

123 East 7th Street

Cincinnati, Ohio 45202

Box Office

Phone: (513) 621-2787 [ARTS]

Email: ticketing@cincinnatiarts.org

Hours: Monday–Friday, 10:00AM–5:00PM* in person & via phone Saturday, 11:00AM–2:00PM via phone

Weston Art Gallery

Phone: (513) 977-4165

Email: WestonArtGallery@CincinnatiArts.org

Hours: Tuesday–Saturday, 10:00AM– 5:30PM Sunday, 12:00PM–5:00PM*

*Extended hours for performances and holiday hours may vary

Packages are kept at stage door under surveillance until picked up by the intended recipient.

Figure 3. Stage Door located on Seventh Street.

Guest Parking

The Aronoff Center is situated in the urban core of downtown Cincinnati. With more than 6,000 parking spaces within a two-block radius, there are a variety of parking options for guests attending performances at the Aronoff Center.

A rideshare drop-off zone is available on the Walnut Street side of the Aronoff Center. Independently operated valet parking is available for most evening performances at establishments adjacent to the Aronoff Center on 6th Street and Walnut Street.

Guests attending performances are also encouraged to use the Aronoff Center’s designated drop-off and pick-up zone located on the south side of 7th Street between Walnut and Main Streets. This location provides quick and easy access to the venue through the Aronoff’s North Plaza and Weston Art Gallery entrances. The gallery entrance is handicap accessible and leads to an elevator that stops on all levels of Procter & Gamble Hall.

Please note that the Aronoff Center does not own or manage any parking facilities. To access an interactive parking map, please visit our online parking resources

Production

Aronoff Center Production may be reached at ProductionAC@cincinnatiarts.org.

Union Affiliations

The CAA is proud to employ individuals within the following unions in alignment with collective bargaining agreements:

• Stagehands and Technicians through I.A.T.S.E. Local 5

• Theatrical Wardrobe, Hair & Makeup Technicians through I.A.T.S.E. Local 864

• Ticket Takers through I.A.T.S.E. Local B-38

Figure 4. Nearby public parking.

Production Vehicle Access

The Aronoff Center has a concrete pad accessible from Main Street which allows access to both of its loading docks and provides space adequate for 53’ semitrailers to maneuver in and out of the dock spaces. This space is referred to as the turnaround. The turnaround is accessed by turning left onto Gano Street, an alley located between 6th and 7th street.

Dependent on venue scheduling, permitting with the city, and specific production needs, The Aronoff Center can provide limited parking on Seventh Street, Main Street, on the exterior concrete pad for vehicles necessary to the event. Parking requests for trucks and trailers, buses, motorcoaches, vans and personal vehicles must be discussed in advance with an Event Manager and the Technical Director to coordinate what spaces may be available during the event. The venue has two locations with shore power. Access to these must also be discussed during the advance process.

Figure 5. Map indicating vehicle access to loading dock.
Figure 6. Turn-by-turn images indicating vehicle access to loading docks.

Driving Directions to Loading Docks

General Note: After turning right onto Main Street from Sixth Street, semitruck drivers must make a difficult left turn down an alley. For adequate turning radius and maneuvering space, this turn must be done from the right lane of Main Street. Many trucks must jump the right curb to have adequate turning radius to make the corner turn into the alley Driving down this alley is necessary to access the loading docks of The Aronoff Center.

From the North via I-75

Proceed south on I-75; take the Seventh Street exit east; proceed down Seventh Street to Walnut (about five blocks); right on Walnut St.; take the second left turn on Fifth St.; take the first left turn on Main St.; proceed down Main St. for two blocks; and turn left down the first alley after Sixth St. This alley leads to the loading area for all the venues at the Aronoff Center.

From the North via I-71

Proceed south on I-71, take the Gilbert St. exit, which becomes Eighth St.; turn left on Sycamore St.; turn right on Sixth St.; turn right on Main St. and immediately left down the first alley after Sixth Street. This alley leads to the loading area for all the venues at the Aronoff Center.

From the South via I-71/I-75

Proceed north on I-71/I-75 and follow I71 / Second St. sign after you cross the Ohio river; take Second St. exit; turn left on Main St.; proceed North on Main St. (about four blocks); and turn left down the first alley after Sixth St. This alley leads to the loading area for all the venues at the Aronoff Center.

From the Airport (CVG) via I-275 / I-471

Look for signs to I-275 East. Follow I-275 eastbound; take exit 471N about 6 miles (note that this is a left exit off 275); follow 471 N over the bridge; take the Sixth St. exit and proceed down Sixth St.(about 3 blocks); turn right on Main St. and immediately left down the first alley after Sixth St. This alley leads to the loading area for all the venues at the Aronoff Center.

Production Vehicle Staging

Trucks and buses being staged for timed access to the turnaround are often held on Seventh Street alongside the north perimeter of The Aronoff (near Stage Door). Staged vehicles will drive past The Aronoff, turn right on Sycamore Street; turn right on Sixth Street; turn right on Main Street and immediately left down the first alley after Sixth Street. This alley leads to the loading area for all the venues at the Aronoff Center.

Figure 7 Map for vehicles staged on Seventh Street to access the turnaround.

Merchandise

All merchandise sales are subject to the current local sales tax in Hamilton County, Ohio and a venue commission Local sellers may be coordinated at the request of a touring company during the advancing process

Procter & Gamble Hall

Standard Set-Up

Orchestra Lobby (Floor 2) Top of Grand Staircase, Between Doors 4 & 5

Jarson-Kaplan Theater

Standard Set-Up

Center of Orchestra Lobby, Between Doors 1 & 2

Fifth-Third Theater

Standard Set-Up

House Left Corner or House Right side of Lobby, Depending on other Lobby Needs

Figure 8. Merchandise sales locations.

Security

Stage Door Access

To maintain safe and secure backstage spaces, only authorized personnel are permitted through the Stage Door entrance. Productions provide a list of authorized personnel during their advance process and/or provide security a list of approved production-supplied credentials that will enable access into secured spaces. Entry approval is at the discretion of Aronoff Security in conjunction with approved production representatives.

Guest Access

All guests entering CAA facilities are required to go through a security screening which includes passing through metal detectors, complying with bag checks, coat inspections, and other precautions as necessary.

Concessions

The CAA runs a comprehensive concessions operation for all venues under its purview. Concessions include a wide variety of beverages (Pepsi products, wine, beer, liquor, coffee, tea, and juice) and snacks (chips, crackers, candy, chocolates, etc.). For morning and corporate functions, concessions offerings may be adjusted to better serve guests. Concessions offerings are at the discretion of the CAA

Catering

The Aronoff Center invites clients to use a caterer of their choosing while renting its facility. A selection of recommended caterers with a strong history of success with the CAA may be provided by the Rentals or Concessions Manager if requested. The Aronoff Center provides ice, refrigeration, tables, and chairs for catered service. Tablecloths, utensils, and glassware, if needed, are provided by the caterer For hot food service, the use of sterno, heat lamps, and portable warmers are permitted. Cooking, propane, and butane are not permitted at the Aronoff Center If portable fuel is being used, an attendant must always be present. The Aronoff Center does require all caterers to execute a catering agreement, be fully insured, and appropriately licensed.

A variety of concessions and beverages are available. The CAA exclusively serves Pepsi products. Concession services yield a 7.8% sales tax (as of 2026) and incur an 18% gratuity. Selection and inventory are subject to change.

Standard Beverage Offerings

Liquor

Maker's Mark Bourbon

Woodford Reserve Bourbon

New Riff Bourbon

Jamerson Irish Whiskey

Crown Royal Blended Whiskey, Glenlivet

Scotch

Hennessy Cognac

Courvoisier Cognac

Tito's Vodka

Grey Goose Vodka

Bailey's Irish Cream

Kahlua

Bombay Sapphire Gin

Bacardi Light Rum

Captain Morgan Spiced Rum

Jack Daniel's Whiskey

Jim Beam Bourbon

Seagrams 7 Whiskey

Dewars White Label Scotch

Amaretto

Peach Schnapps

Wine

Pacific Rim Reisling

William Hill Chardonnay

J Vinyard Pinot Gris

Starborough Sauvignon Blanc

Storypoint Pinot Noir

Prophecy Red Blend

William Hill Cabernet

Clou de Bois Merlot

Capsaldo Rose

LaMarca Sparkling

Hayes Ranch Chardonnay

Canyon Road Moscato

Hayes Ranch Cabernet

Frontera After Midnight Blend

Beer & Seltzer

Budweiser

Bud Light

Yuengling

Michelob Ultra

Rhinegeist Cheetah

Rhinegeist Truth

High Noon Peach

High Noon Pineapple

Non-Alcoholic

Aquafina Water

Coffee

Tea (Iced & Hot)

Juice

Soda

All beverage service, alcoholic and non-alcoholic, must be provided by the CAA. Standard beverage services include plastic cups, napkins, ice, mixers, and garnishes. Outside beverages are prohibited, and alcoholic beverages are not permitted to leave the premises. For events requiring a bar tender, there is a fee of $80 for the first two hours and $20 for every hour or any part thereof following (as of 2026) If you have special product requests, please inform the designated Event Manager, who will determine availability and provide pricing details.

Rental Equipment

Along with the many spaces available for rent, the Aronoff Center can provide many essential resources to make any event successful. Below is a list of many pieces of equipment and furniture included in the rental inventory. Quantities, photographs, and other details regarding items of interest will be provided up on request.

Note: Stage and wardrobe equipment may fall under the purview of union agreements.

Audio/Visual Equipment

Flat Screen TV on Portable Cart

DVD Player

Epson Projector

Projection Screen, 72” x 72” and 96” x 96”

JBL Portable Speaker (Bluetooth and AUX inputs)

Podium

Audio Equipment

Lavalier wireless & receiver

Handheld wireless & receiver

Countryman E6 & receiver

Portable PA System

Stage Equipment

Z-Racks

Marley Dance Floor

Follow Spotlights

Platforms, 4’ x 8’ (adjustable height 8”, 16”, 24”, 32”)

Front Projection Screen, 16’ x 9’

Laser Projector, 20K Lumen Panasonic

Towels (black and white, washcloth, hand and bath size)

Event & Meeting Equipment

Dry Ease Board

Easels & Display Stands

Flip Chart on Easel

6’ x 30” Tables

5’ Round Tables

High Top Tables

Cafe Tables

Conference Tables

Lounge Furniture

Banquet Chairs

Silver Coat Racks and hangers

Mini Fridge

Full size Fridge (no Freezer)

Lighted Makeup Mirrors

Music & Orchestral Equipment

Grand Piano Steinway 6’ 2”

Studio Vertical (Black Boston)

Studio Vertical (Brown Baldwin)

Choral Shell

Choral Risers

Music Stands and Lights

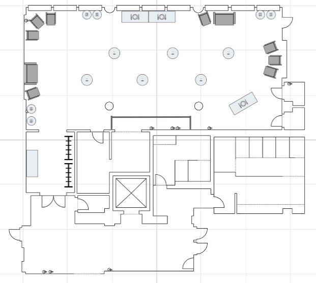
Figure 9. Fifth Third Bank Theater classroom setup.

Safety & Security

Evacuation Protocols

The Aronoff Center is equipped with audible and visual alarms, security systems, and trained personnel that can deliver facility-wide messaging to indicate the need to evacuate the facility. Evacuation should proceed in a calm and orderly manner. Immediately exit the building by the nearest exit. Exit routes and emergency response plans are provided to rental clients upon request. Re-entry is permitted after the facility is cleared by responding authorities.

Assembly Areas: Fifth Third Theater Plaza (located at the intersection of Main and 7th Streets) 580 Building (located across Sixth Street from the loading dock alley)

Emergency Preparedness

The majority of Aronoff Center Operations Staff are CPR, first aid, and AED certified. Resources available onsite include:

1. First Aid Stations at the Box Office, North Plaza Coat Room, South Plaza Coat Room, Stage Door, Star Corridor

2. AED Stations at Stage Door, Star Corridor Backstage, Rehearsal Hall, First Aid Room in Main Lobby

3. Fire Extinguishers & Manual Alarm Stations throughout the facility

4. Material Safety Data Sheet Library in the Engineering Office

In addition to the training and resources provided by the Aronoff Center staff, public safety professionals are engaged on a regular basis to provide safe and healthy experiences for Aronoff Center guests, artists, and personnel. For events in the Procter & Gamble Hall and Jarson-Kaplan Theater, the Aronoff Center contracts the Hamilton County Sheriff Department to provide crowd control, vehicle traffic, and loading dock access management. Events in the Procter & Gamble Hall also have a medic scheduled to provide real-time medical assistance for patrons, staff, and volunteers. The Aronoff Center schedules Fire Marshals as required by the City of Cincinnati based on content of its programming offerings. Fire Marshals oversee pyrotechnic effects, crowd control, egress standards, and other elements of operations to ensure a safe experience for Aronoff Center guests.

Local Emergency Services

Emergency Medical Facilities

• Christ Hospital: 2139 Auburn Ave., Cincinnati, OH 45219, 513 585 2000

• University of Cincinnati Medical Center: 234 Goodman St., Cincinnati, OH 45219, 513 548 1000

• Mt. Auburn Urgent Care: 2230 Auburn Ave., Cincinnati, OH 45219, 513.621.2200

• Cincinnati Children’s Hospital: 3333 Burnet Ave., Cincinnati, OH 45229, 513.636.4200

Physical Therapy Resources

• Good Sam Hospital Rehabilitation: 375 Dixmyth Ave., Cincinnati OH 45220, 513.862.2484

• Christ Hospital Physical & Occupational Therapy: 2139 Auburn Ave. Suite C902A, Cincinnati OH 45219, 513.585.0545

Public Safety Branches

• Cincinnati Fire Department: 430 Central Ave., Cincinnati, OH 45202, 513.352.6242

• Cincinnati Police Department District 1: 310 Ezzard Charles Dr., Cincinnati, OH 45214, 513.352.3505

• Local FBI Bureau: 2012 Ronald Reagan Dr., Suite 9000 Cincinnati, OH 45236, 513 421 4310

Procter & Gamble Hall

Seating

Capacity

Total Capacity: 2,719

Orchestra: 1,351

Loge: 567

Balcony: 801

Arts for All Requires Accessibility

Performances in Procter & Gamble Hall are supported by Sennheiser MobileConnect assistive listening devices which communicate over Wi-Fi.

Figure 10. Procter & Gamble Hall View of the House from the Stage.

Seating Chart: Full Venue

PROCTER
Figure 11. Procter & Gamble Hall full seating chart.

Seating Chart: Orchestra Level

Figure 12. Procter & Gamble Hall orchestra-level seating chart.

Seating Chart: Loge Level

Figure 13 Procter & Gamble Hall loge-level seating chart.

Seating Chart: Balcony Level

Figure 14 Procter & Gamble Hall balcony-level seating chart.

Accessible Seating

Accessible location without accessible seating added

Procter & Gamble Hall provides accessible seating and loose chair options (extended width, armed/armless, and removable) to accommodate its guests.

Accessible Seating

Armless Banquet Chair
Freestanding Chair with Armrest
Extended Chair
Figure 15 Procter & Gamble Hall accessible seating location and chair options.

Front of House Audio Configurations

To accommodate different configurations for a front of house audio engineering set-up, variable sections of seats are removed from the last three rows of the orchestra level. Removing seats is typically done in two configurations (permanent and expanded). These configurations carefully consider which seats are connected in a singular unit and which portions of the rows are not removable.

Connected Seats are [indicated by brackets].

Row X:

Row Y:

Row Z:

• 201–210 are not removable.

• [211, 212] removed in expanded kill.

• 213–220 are always removed.

• 201–210 are not removable.

• [211, 212, 213] removed in expanded kill.

• 214–221 are always removed.

• 201–211 are not removable.

• [212, 213, 214] removed in expanded kill.

• 215–222 are always removed

Figure 16. FOH audio position view of the stage

Permanent Kill

The standard kill accommodates a FOH set-up that is up to 8’ x 12’ and eliminates 24 seats from the sellable inventory.

Expanded Kill

The expanded front of house seating kill accommodates a set up that is 8’ x 18’ and eliminates 36 seats from the sellable inventory. This set-up is often used for added recording, lighting, or video equipment if necessary.

Figure 17. FOH audio position layout and set-up.

Loading Dock

The loading dock is accessed from Main Street through Gano Alley which ends at the turnaround (see Production Vehicle Access.) There are two interior bays, each of which can park a 53’ trailer without tractors within the dock door.

Dock Height: 44½” adjustable with lifts/levelers; one lift has full range to street level

Dock Doors: 8’-8” wide x 10’-0” high

Stage Loading Door: 13’-0” wide x 20’-0” high (from dock to stage)

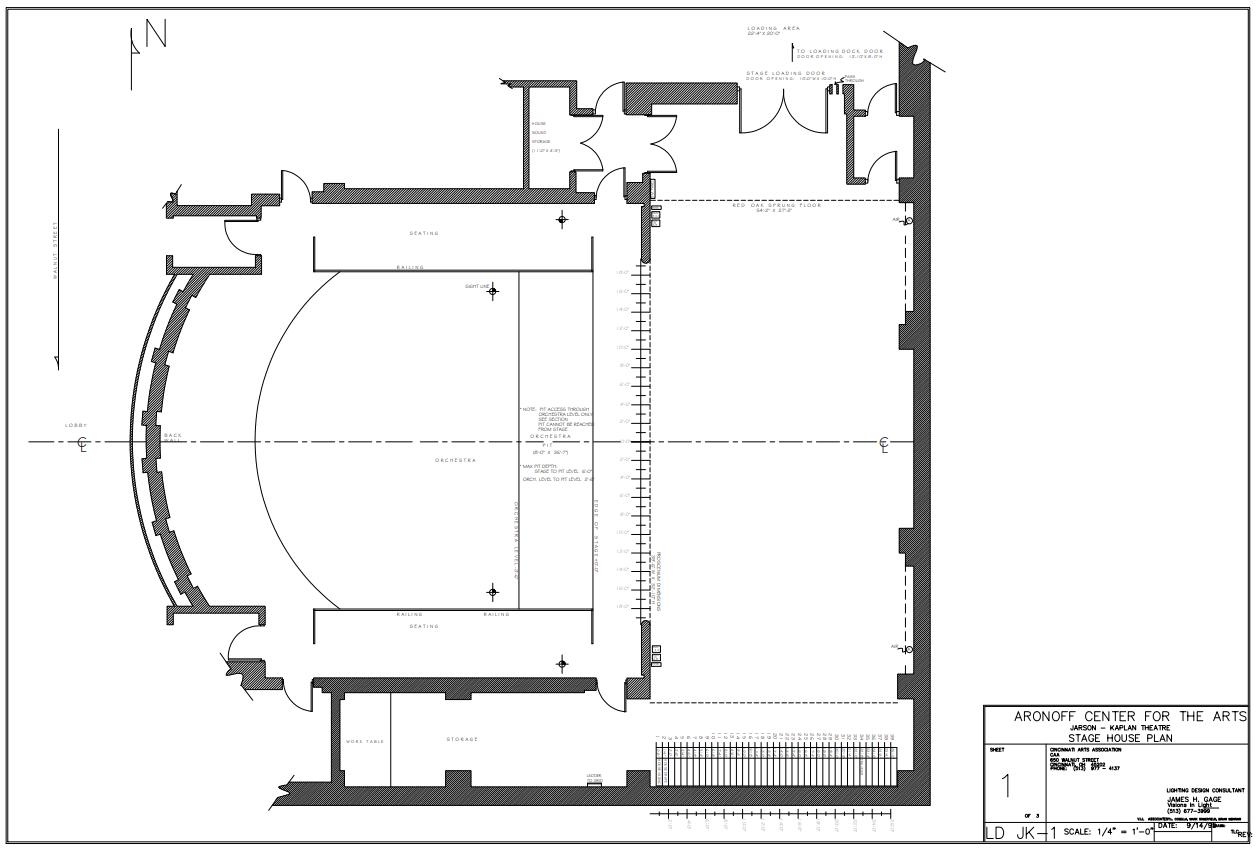
Stage Specifications

Essential Dimensions

Proscenium Opening

53’-4” wide with a curved overhead arch.

34’-2” high at top of curve at center, 26’-3” high at SL & SR at bottom of curve.

Stage Space

Depth: 55’-0” (plaster line to structural steel columns), 57’-8” (plaster line to back wall)

Width: 112’-0” wide, 61’-0” to SL of center, 51’-0” to SR of center

Height: 82’-0” to grid

Stage Floor

Height from Orchestra to Stage 41½” Red oak painted satin black.

Orchestra Pit

Rows AA, BB, and CC need to be completely removed to use the Orchestra Pit.

Seats DD 101–102, DD 130–131 and EE 101–102, EE 133–134 need to be removed to accommodate steps to stage that are set-up on top of the orchestra pit.

Dimensions: 10’-6” deep at center, 56’-0” wide

Trim Heights: Flexible positioning, typically either:

• level with stage

• level with audience seating (can add 64 seats in rows AA, BB, CC)

• lowered 8’-0” for orchestra

• lowered 17’-0” for storage

A high-resolution version of this document and other technical drawings may be found online here:

Procter & Gamble Hall Specifications | https://www.cincinnatiarts.org/rentals/pg-specs/

Figure 18. Procter & Gamble Hall Groundplan.

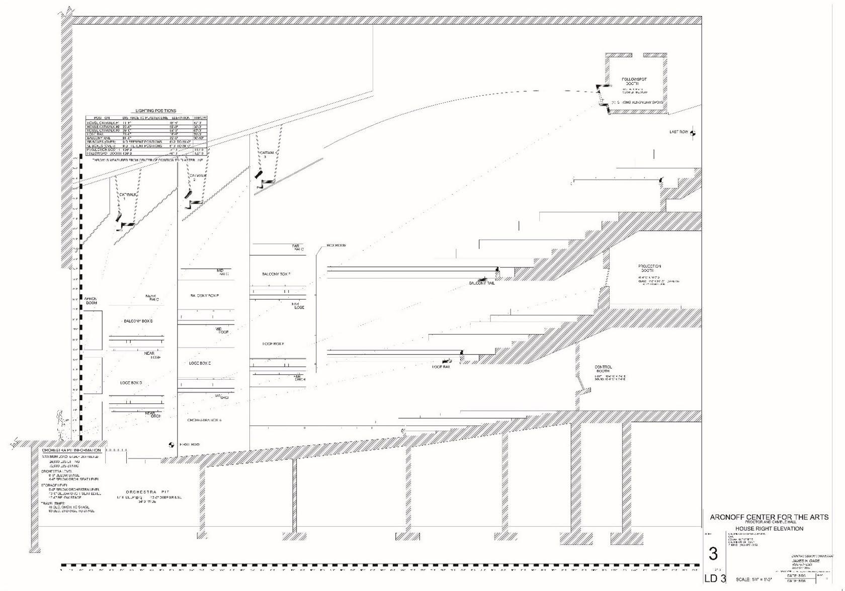
Centerline Section Drawing

A high-resolution version of this document and other technical drawings may be found online here:

Procter & Gamble Hall Specifications | https://www.cincinnatiarts.org/rentals/pg-specs/

PROCTER & GAMBLE HALL
Figure 19. Procter & Gamble Hall Centerline Seciton.

Rigging

Procter & Gamble Hall has a single purchase counterweight s ystem (Secoa) that can be operated from SR at either stage floor or pin rail.

System Overview

• Pin rail:

o SL and SR at 44’ 6”

• Linesets:

o 87 linesets

o Capacity: 2,000 lb

o Dedicated linesets:

 Lineset # 1 (10” US of datum line) dedicated to house valance.

 Lineset # 2 dedicated to g rand drape which flies or travels.

 Lineset # 84 dedicated to house black traveler

o Most on 6” centers

• Pipe:

o Length 67’-2” extendable to 72’-6” with 7 pickups

o Travel: 4’ Low Trim, 80’ High Trim

o 1½” schedule 80

Side Masking

Two linesets are permanently muled to run up and down stage.

• 38’-6” SL of Center and 37’-0” SR of Center

• Pipe length 41’-0” extendible to 48’-0”

Soft Goods Inventory

Available inventories are subject to change; arrangements to use house equipment need to be confirmed during technical advance.

Lineset Schedule

Lighting

Company Switches

4 *

Amp, 3 Phase, 4 Wire SL Wall 34’ US of Prosc., 61’ SL of Ctr.

1 * 200 Amp,3 Phase, 4 Wire+Gr.+Iso Gr SR Scene Dock (Isolated Ground)

1 400 Amp, 3 Phase, 4 Wire

Loading Dock Wall

Additional Power: 12-100 Amp 3 Phase, 4 Wire throughout the stage house and front of house.

Lighting Positions

Prosc. Torm. SR 12 (20A)

Prosc. Torm. SL 12 (20A)

Projection Booth

Note: Throw is measured from center of position to curtain line at center.

Lighting Control

Console: ETC ION XE

Dimming: 502 @ 20 Amp, 2.4 Kw, 36 @ 50 Amp; hardwired to production lighting circuits throughout the theater. All terminate in grounded stage pin connectors.

DMX: Ample universes are accessible throughout the backstage area as well as the FOH lighting positions; universes 1 & 2 are occupied by house systems.

Lighting Inventory

Available inventories are subject to change; arrangements to use house equipment need to be confirmed during technical advance. All fixtures have safety cables and 2 P&G stage pin connectors. Adequate cable and 2-fers are available; no gels are provided.

Repertory Light Plot

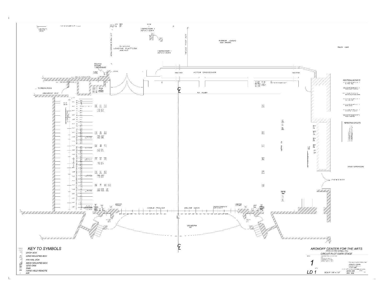
A high resolution version of this document and other technical drawings may be found online here:

Procter & Gamble Hall Specifications | https://www.cincinnatiarts.org/rentals/pg-specs/

Figure 20. Procter & Gamble Hall Repertory Lighting Plot.

Sound

Control

Console: Yamaha DM7

FOH Position: In front of audio booth, rear orchestra level. 103’ from plaster line; 150’ of snake required.

Seat Kills: Detailed in FOH Seating Kills

Amplification

Crest CA6, Crest CA9, Crest P1001A, additional amplifiers for stage monitors and side fill

Loudspeakers

(2) 14-cabinet Meyer Leopard Arrays (25’ L&R 1’ DS of proscenium)

Fulcrum Acoustics RX5 Speakers (front fill)

Fulcrum acoustic RX6 Speakers (under balcony fill)

(3) Meyer ULTRA-X80 (balcony fill and balcony center)

(6) Meyer MJF-208 wedge monitors.

Record & Playback

Denon DN-C635 CD Player; Denon DN-500R SD/USB Playback/Recorder

Microphones

An adequate assortment of vocal and instrument microphones are available in addition to (4) ULX Microphones.

A substantial inventory of straight stands, boom stands, cabling is available as well as equalizers, delays, reverbs, compressors, limiters, and noise gates.

Communication

Clear-Com 2 channel power supply, 16 single channel belt packs, 18 headsets. Clear-Com outlets are distributed throughout the house and stage. Cue light system available.

Fire Permit & Live Flame Procedures

Events using any open flame or pyrotechnics require a state fire permit which is coordinated through Aronoff Production Staff. Clients are encouraged to disclose such effects as early in their advance process as possible to increase the likelihood of successful permitting and thus effect integration. Atmospheric effects (such as haze or fog), require a Fire Marshal provided by the City of Cincinnati to be onsite for all rehearsals and performances. This service is coordinated by Aronoff Security Staff at the request of the Event Manager or Technical Director assigned to the event

Depending on the complexity of the effects, further permitting and inspection processes may be required by an authority having jurisdiction. All costs of permitting and staffing are billed directly to clients.

Video

(1) Vaddio HD Pan/Tilt/Zoom Camera (Balcony Rail)

(2) Panasonic WV-BL202 Black & White Camera with Motorized Lens

(1) in orchestra pit (conductor camera) & (1) at loge rail

(1) Panasonic WVCD EL-2 Infra-Red Emitter (for loge rail B&W camera)

(6) Black & White Monitors/Receivers

Video distribution available throughout stage and house

Live stage audio & video feed is distributed to the lobby and backstage spaces throughout the facility.

Dressing Rooms & Backstage Spaces

Wi-Fi is available in all backstage spaces

Stage Level

Figure 21 Stage level star dressing room corridor layout.

Star Dressing Room 1: 2 Stations

Private restroom (includes one sink, one toilet, and a shower stall)

2 internet ports, 8 outlets

1 leather sofa, 1 leather armchair, 1 leather ottoman

Star Dressing Room 2: 2 Stations

Private restroom (includes one sink, one toilet, and a shower stall)

2 internet ports, 8 outlets

1 leather sofa, 1 leather armchair, 1 leather ottoman

Star Dressing Room 3: 2 Stations

Private restroom (includes one sink, one toilet, and a shower stall)

2 internet ports, 8 outlets

1 leather sofa, 1 leather armchair, 1 leather ottoman

Dressing Room 4: 4 Stations

Private restroom (includes one sink, one toilet, and a shower stall)

2 internet ports, 12 outlets

Dressing Room 5: 4 Stations

Private restroom (includes one sink, one toilet, and a shower stall)

1 internet port, 12 outlets

Dressing Room 6: 4 Stations

Private restroom (includes one sink, one toilet, and a shower stall)

1 internet port, 12 outlets

Dressing Room 7: 4 Stations

Private restroom (includes one sink, one toilet, and a shower stall)

1 internet port, 12 outlets

Figure 22. Star dressing room.
Figure 23. Star dressing room bathroom.
Figure 24. Star corridor 4-station dressing room.

Lower Level

Dressing Room 8: 12 Stations

Connected to Men’s Restroom (5 sinks, 3 toilets, 2 urinals, and 3 showers) 2 internet ports, 48 outlets

Figure 25 Lower-level dressing room layout.
Figure 27 Lower-level Dressing Room 8 & 10 connected restroom.
Figure 26 Lower level 12-station Dressing Room 8 & 10

Dressing Room 9: 13 Stations

No restroom

No internet ports

52 outlets

Dressing Room 10: 12 Stations

Connected to Women’s Restroom (5 sinks, 4 toilets, and 3 showers)

No internet ports

52 outlets

Layout Note

Dressing rooms 8, 9, and 10 are a suite connected by lockable doors. These dressing rooms connect to shared restroom facilities.

Dressing Room 11: 13 Stations

Note: This dressing room is primarily allocated to rentals of the Fifth Third Bank Theater. If there is no event requiring its use, Dressing Room 11 may be assigned to other rental packages within The Aronoff.

Restroom (2 sinks, 2 toilets, no shower)

2 internet ports

56 outlets

Figure 28. Dressing Room 9.
Figure 29. Dressing Room 11

Dressing Room 12: Wig Room

Restroom (3 sinks, 1 toilet, 1 urinal, no shower)

Deep sink

2 internet ports

28 outlets

Production Office A

Window on hall

4 internet ports

6 outlets

Production Office B

1 internet port

4 outlets

Production Office C

This room is often used for musicians

2 internet ports

12 outlets

Figure 30 Lower-level Production Office A.
Figure 31 Lower-level Production Office B.
Figure 32 Lower-level Production Office C.

Performer’s Lounge

Sink

Refrigerator

Freezer

Counter

Windows on wall

4 internet ports

12 outlets

Wardrobe Work Room

Wardrobe office

2 internet ports 10 outlets

Laundry Room

3 washers

3 dryers, Laundry sink

2 internet ports, 10 outlets

Figure 33. Lower-level performers lounge.
Figure 34. Lower-level wardrobe work room.
Figure 35. Lower-level laundry room.

Jarson-Kaplan Theater

Seating

Capacity

Capacity: 437

Orchestra: 260

Balcony 1: 90

Balcony 2: 87

Flexible Seating

Arts for All Requires Accessibility

Performances in the Jarson-Kaplan Theater are supported by Sennheiser MobileConnect assistive listening devices which communicate over Wi-Fi.

• Orchestra box seats are loose, removable chairs (10 on each side).

• Orchestra has 36 seats on the orchestra pit that are rows AA and BB.

• Balcony 1 box seats are loose, removable chairs (10 on each side).

• Balcony 2 box seats are loose, removable chairs (10 on each side).

Figure 36. Jarson-Kaplan Theater view of the house from the stage.

Seating Chart: Full Venue

Note: All box seats in the

JARSON
Figure 37. Jarson-Kaplan Theater seating chart.
Jarson-Kaplan Theater are accessible.

Seating Chart: Orchestra Level

Seating Chart: Balcony 1

JARSON
Figure 38. Jarson-Kaplan Theater orchestra-level seating chart.
Figure 39. Jarson-Kaplan Theater balcony 1-level seating chart.

Seating Chart: Balcony 2

Loading Dock

The loading dock is accessed from Main Street through Gano Alley which ends at the turnaround (see Production Vehicle Access.) There is one exterior bay with lift/leveler allowing access to street level.

Dock Height: 3’-9”

Stage Loading Door: 12’-0” W x 8’-0” H

Loading Dock Door: 10’-0” W x 10-0” H

Stage Specifications

Essential Dimensions

Proscenium Opening

39’-4” W x 32’-10” H

Stage Space

Apron: 6’ 7” Deep (plaster line to DS edge) by 37’ wide (Orch. Box to Orch. Box)

Depth: 27 ’8” (Plaster line to columns), 28’ 5” (Plaster line to back wall)

Width: 69’ 0” wide (33’ to SL of center, 36’ to SR of center)

Height: 49’ 0” to grid or 41’ 0” (certain linesets limited by grid catwalks)

Pit Lift: 8’ 0” Deep x 37’ 0” Wide, travels 3’ 6” down to orchestra (main) level

Stage Floor

Red oak painted satin black

Figure 40. Jarson-Kaplan Theater balcony 2 level seating chart.

Ground Plan & Section

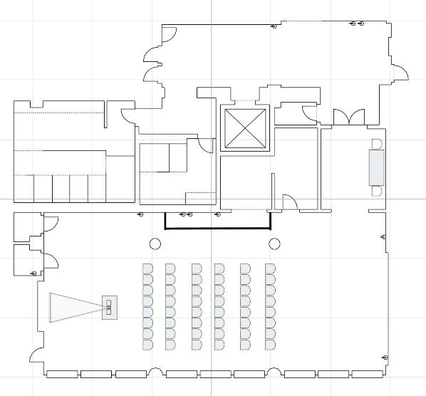
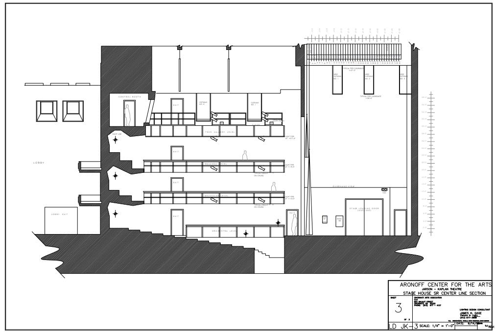
High resolution versions of these documents and other technical drawings may be found online here: Jarson-Kaplan Theater Specifications | https://www.cincinnatiarts.org/rentals/aronoff-center-2/jk-specs

JARSON
Figure 41. Jarson-Kaplan Groundplan.
Figure 42. Jarson-Kaplan Centerline Section.

Rigging

Single Purchase Counterweight System (Secoa); operated from SL stage level

Height of Pin rail: 40’-0”

39 Linesets 8” on center, 1400 lb. capacity, (1½” schedule 80 pipe); dedicated linesets include:

• lineset #1(8” upstage of datum) dedicated to house valance

• lineset #2 (16” upstage of datum) dedicated to g rand drape

• lineset #34 dedicated to house traveler

Length of Pipes: 48’ 0”

Pipe Travel: 4’ low trim, 46’-6” or 40’ high trim (varies based on lineset)

Soft Goods Inventory

Lineset Schedule

#4 Legs

18’-0” 41’ 28 18’-8” 41’ #5 Border 29 19’-4” 48’ #5 Legs 16’ off center 30 20’-0” 48’

Cyclorama Electric (Colorforce II)

35 23’-4” 48’ Blackout Drop

36 24’-0” 48’ Cyclorama

37 24’-8” 38’ Crossover Border

38 25’-4” 41’

39 26’-0” 41’

Lighting

Company Switches

1

Amp, 3 Phase, 4 Wire

only (no tails)

1 100 Amp, 120/240 Volt, Single Phase, 3 Wire, with ground and isolated ground Camlock only (no tails)

* Camlock only (no tails)

Lighting Positions

Lighting Control

Console: ETC ION XE.

Dimming: 348 @ 20-amp ETC Sensor 3 dimmers hardwired throughout the theater. All circuits terminate in grounded stage pin connectors. DMX: Adequate DMX ins and outs located throughout the stage house.

Lighting Inventory

Available inventories are subject to change; arrangements to use house equipment need to be confirmed during technical advance. All fixtures have safety cables, color frames, and 2 P&G stage pin connectors. Adequate cable and 2fers are available; no gels are provided. Pattern holders are available for all profile lights.

Repertory Light Plot

A high-resolution version of this document and other technical drawings may be found online here: Jarson-Kaplan Theater Specifications | https://www.cincinnatiarts.org/rentals/aronoff-center-2/jk-specs

JARSON
Figure 43. Jarson-Kaplan Theater repertory lighting plot.

Sound

System & Inventory

Console

Yamaha DM7 Compact

Amplification

Nexo NX4

Loudspeakers

Center Cluster Array: (6) total- (3) Nexo 1012, (3) Nexo 1025

Side Under Balconies: (2) Nexo ID 24 – Orch Level L&R

(2) Nexo ID 24 – 1st Balc. Level L&R

Subs: (2) Nexo MSUB18 L&R on proscenium.

Monitors: (4) Nexo P12

Record and Playback

Denon DN-C635 CD Player; Denon DN-501C CD/Media Player

Microphones

A range of microphones, accessories, and cabling are available for rent

Communication

Clear-Com 2 Channel power supply, 8 belt packs, 10 headsets

Clear-Com outlets distributed throughout house and stage

Dressing Rooms & Backstage Spaces

Wi-Fi is available in all backstage spaces. 39 dressing room stations are available if all dressing rooms assigned to the Jarson-Kaplan Theater are used at maximum capacity.

Backstage Access from Front-of-House

Authorized personnel may move from the Jarson-Kaplan lobby to the backstage space through a pair of securityenabled doors. The door facing the lobby uses key card access, and the interior door uses keypad access. Clients, upon request, will be issued a code for use during their rental.

JARSON
Figure 44. Jarson-Kaplan Theater access to backstage from lobby.

Lower Level

There are seven steps from the stage level to the lower level dressing rooms and front of house access hallway. A chairlift, as pictured, is available for accessibility.

Dressing Room 1: 4 Stations

Private restroom (includes one sink, one toilet, and a shower stall)

1 internet port

16 outlets

Dressing Room 2: 4 Stations

Private restroom (includes one sink, one toilet, and a shower stall)

1 Internet port

16 outlets

Figure 45. Jarson-Kaplan lower-level room layout.
Figure 47. Jarson-Kaplan lower-level dressing rooms.
Figure 46. Jarson-Kaplan lift and stairs from lower level to backstage.

Upper Level

JARSON
Figure 48. Jarson-Kaplan upper level room layout.

Dressing Room 3: 10 Stations

Restroom (2 sinks, 2 toilets, 2 showers)

0 internet ports

40 outlets

Dressing Room 4: 10 Stations

Restroom (2 sinks, 2 toilets, 2 showers)

0 internet ports

40 outlets

Dressing Room 5: 8 Stations

No restroom

0 internet ports

24 outlets

Dressing Room 6: 3 Stations

No restroom

Requires portable mirrors

2 internet ports

4 outlets

Upper-Level Additional Spaces

Performers Lounge

Unisex Bathroom (1 toilet, 1 sink)

Fridge with freezer and microwave 0 Internet Ports, 6 Outlets

Laundry Note

Standard rentals come with 1 washer and 1 dryer, and the other pair is retained for venue use.

Wardrobe Room

2 Washers, 2 Dryers, and a Laundry Sink 0 Internet Ports, 2 Outlets

JARSON
Figure 52. Jarson-Kaplan Performers Lounge.
Figure 53. Jarson-Kaplan Wardrobe Room..
Figure 49 Jarson-Kaplan Theater Dressing Rooms 3 & 4
Figure 50. Jarson-Kaplan Theater Dressing Room5
Figure 51. Jarson-Kaplan Theater Dressing Room 6

Fifth Third Bank Theater

The Fifth Third Bank Theater is a street-level studio space that can be configured for a wide variety of functions, including theatrical performances, dinners, dances, receptions, and meetings. With its own standalone entrance and plaza at the corner of Seventh and Main Streets, this versatile black box space offers a more exclusive and private experience for guests

Arts for All Requires Accessibility

Performances in the Fifth Third Bank Theater are supported by Sennheiser MobileConnect assistive listening devices which communicate over Wi-Fi.

Figure 54. Fifth Third Bank Theater interior without set-up
Figure 55. Fifth Third Bank Theater main entrance.

Seating & Layout Configurations

The CAA’s experienced Event Managers can guide clients through their options and tailor the room to the event’s needs. With a wall of windows and surrounding black traveling curtains, the orientation, layout, and use of the space is versatile. While room configurations are flexible, seating plans must be approved in advance to ensure compliance with local fire codes and egress requirements.

The Fifth Third Bank Theater has lower-level audience restrooms that are accessible by elevator or stair.

Capacity

The street-side wall of windows in the Fifth Third Bank Theater can be covered with black drapes or remain open for a view of Seventh Street.

The seating capacity of the Fifth Third Bank Theater is dependent on the room configuration designed by the client. Typical capacity guidelines include:

120 Theater Style

150 Standing Reception

80 Seated Dinner

Figure 56. Fifth Third Bank Theater presentation set-up and luncheon set-up.

Configuration Examples

Theatrical Performances

Figure 57 Fifth Third Bank Theater theater-style layout examples.
Cabaret Performances
Figure 58 Fifth Third Bank Theater cabaret-style layout examples.

Corporate & Social Gatherings

Loading

• Loading into the Fifth Third Bank Theater is through the main dock accessed by the turnaround.

• All equipment must move through three sets of double doors.

• The smallest doorway that equipment must fit through measures 6’-10” H x 5’-4” W.

Space Specifications

Floor Area: 57’-0”x 44’-0” (2508 sq. ft.)

Flooring Material: Red Oak, Blonde in color with a polyurethane finish.

Lighting Grid: Elevation: 19’-10” above finished floor Size: 50’-10” x 36’-3” (approximately 7’ x 7’ matrix)

Technical Gallery: Approximately 6’ wide along two walls at 12’ above finished floor The technical gallery borders the lighting grid.

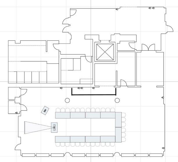
Figure 59. Fifth Third Bank Theater meeting layout examples.

Lighting

A high-resolution version of this document and other technical drawings may be found online here:

Fifth Third Bank Theater Specifications | https://www.cincinnatiarts.org/rentals/aronoff-center-2/fifththird-specs

Lighting Positions

The grid (1½” schedule 80 pipe) is configured in an approximate 7’ x 7’ matrix over all the area of the floor which does not have a technical gallery.

Lighting Control

Lighting Control Console: ETC ION

Dimming: 96 @ 20 amp 2.4 ETC SENSOR3 series dimmers hardwired to production lighting circuits throughout the theater (90 evenly distributed about the grid, 6 at stage level). All circuits terminate in grounded stage pin connectors. DMX in and out is available on the technical gallery.

Figure 60. Fifth Third Bank Theater repertory lighting plot.

Lighting Inventory

• All fixtures have color frames and safety cables.

• Adequate cables are provided.

• Pattern holders are available for all profile lights.

Sound

Sound System & Inventory Control

Yamaha MG16XU: 16 inputs, 2 main outs. Mix position is in the tech booth.

Amplification

Crest CC 151

Loudspeakers EV SX200

Playback CD player

Communication

Clear-Com power supply, belt packs, and headsets provided.

Dressing Room

Dressing Room 11 on the lower level is designated for events using the Fifth Third Bank Theater. If there is no event in the Fifth Third Bank Theater, or the event does not necessitate use of a dressing room, Dressing Room 11 may be allocated to other rentals within The Aronoff.

Dressing Room 11: 13 Stations

This dressing room is primarily assigned to the Fifth Third Bank Theater

Restroom (2 sinks, 2 toilets, no shower)

2 internet ports

56 outlets

Figure 61 Fifth Third Bank Theater Dressing Room 11

Rehearsal Hall

Features

The Rehearsal Hall is approximately 50’x38’ (1900 sf), has a white oak floor, a mirrored wall with traveling curtain, and access to restrooms and a water fountain. The space is very flexible and often used for performing arts rehearsals, auditions, and catered events.

Occupancy Limits

Based on the configuration, the Rehearsal Hall accommodates up to 120 occupants. Theatrical, seated layouts can accommodate up to 80 individuals.

REHEARAL
Figure 62. Rehearsal Hall interior
Figure 63. Rehearsal Hall ground plan

Green Room

A few steps away from the Loge Level Lobby of the Procter & Gamble Hall, this elegant reception room may be set up for sit-down dinners, stand-up receptions, meetings, or presentations. Overlooking Seventh Street and the Weston Art Gallery, the space includes lovely one-of-a-kind fabric walls trimmed with cherry wood and two glass walls of windows that may be darkened for screenings.

Capacity

• Standing reception: 120

• Seated dinner: 64

• Meeting: 90

Note: Capacities listed are maximums and contingent on event furnishing and layout.

Features

• Built-in bar with granite buffet counter

• CD playback-based internal sound system

• 28 ft. x 57 ft. (1,596 sq. ft.)

Figure 64. Green Room located on the loge level of the Aronoff Center.

Event Layout Options

Standing Reception

Corporate Retreat

Seated Dinner

Presentation

Orientation & Training

GREEN ROOM

Alice F. and Harris K. Weston Art Gallery

The Alice F. and Harris K. Weston Art Gallery is a 3,500 square-foot art gallery that hosts local, regional, and national artists, and creates a unique setting for cocktail parties, charity events, and pre-show receptions.

The Gallery is on two levels, each having a sophisticated, distinctive look, and can accommodate small or large events.

Specifications

1,100 Sq. Ft. Lower Level

2,200 Sq. Ft. Upper Level

The capacity of the Weston Art Gallery is dependent on current exhibitions in the Gallery.

Figure 65. The Alice F. and Harris K. Weston Art Gallery upper-level interior.

Groundplans

WESTON
Figure 66. Weston Art Gallery upper level.
Figure 67. Weston Art Gallery lower level.

Cincinnati Highlights

Cincinnati is a thriving city with a vibrant cultural scene, world class culinary offerings, major league stadiums, and a tremendous wealth of public spaces to enjoy. A digital visitors guide by Visit Cincy is available here.

Local Treasures

• Cincinnati Connector is the local service streetcar. The streetcar is free to ride and travels a 3.6-mile loop connecting major employment centers, arts, entertainment and businesses between The Banks, Downtown and Over-the-Rhine. The streetcar operates 365 days a year per the following core schedule with extended service hours for select events:

Monday-Friday, 7:30AM - 11:30PM

Saturday, 8:30 AM - 11:30PM

Sunday, 9:30 AM - 9:30PM

• Findlay Market is Ohio's oldest surviving municipal market house and was listed on the National Register of Historic Places in 1972. Still operating as a open air market, you can find all the grocery staples you need in addition to flower stands, eateries, spice shops, and other delightful wares. Worth a visit just to explore the market, its history, and its culture.

• Foutain Square is a public gathering place two blocks from the Aronoff. Featuring free concerts from Spring through Fall, an ice rink from November through February, and hosting large City events including the Christmas Tree Lighting, Fourth of July Fireworks, and New Years Celebrations, there is always something going on at The Square!

• Black Music Walk of Fame welcomes you to a family-friendly interactive musical experience that brings history to life through immersive technology. Black music has a long and wide-ranging history in Cincinnati, Hamilton County, and Southwest Ohio. We celebrate this extraordinary l egacy. This entertaining, interactive, and enriching multi-layered attraction is open to the public and accessible for all to enjoy.

• Bengals, Reds, and FC Cincinnati sporting events! All these sport stadiums are within walking distance of the Aronoff Center or an easy streetcar ride away. With varying seasonal schedules, there is always a sporting event in town that’s worth attending, tailgating, or watching at a local sports bar!

• Cultural powerhouses including the Cincinnati Museum Center, Contemporary Arts Center, Music Hall, Taft Museum of Art, Mercantile Library, and more!

Dining

Cincinnati boasts a vibrant and diverse culinary scene, renowned for its regional specialties and a growing number of innovative restaurants. From classic Cincinnati chili to world-class fine dining, the city offers a wide range of flavors and experiences. The city's food scene is also characterized by its thriving beer culture and the gateway to the Kentucky Bourbon Trail. If you’re keen to try the Cincinnati essentials, you’ll snag a bite of goetta and a scoop of Graeter’s Ice Cream while you’re here.

Staff Picks

What the team at the Aronoff Center says you shouldn’t miss within walking distance of the venue:

• Emma’s Pick: Onolicious – Specializes in classic Hawaiian recipes using the highest quality ingredients prepared in the healthiest ways ; located just a block from the Aronoff Center and serves brunch, lunch & dinner

• Mykayla’s Pick: Pepp & Dolores – Inspired by the spirit and sense of hospitality experienced at Sunday supper in the home of their grandparents, Pepp & Dolores is a casual Italian restaurant that pays homage to family and to the food that brings people together. Featuring housemade pastas, carefully curated wines, and a balance of cherished family recipes with fresh, vibrant flavors About ¾ of a mile from the Aronoff Center in the heart of Over the Rhine. Serves dinner daily and lunch Friday, Saturday & Sunday.

• MaLeah’s Pick: Zundo Ramen & Donburi – Serving ramen and other Japanese offerings that balances authenticity and modernism. Open for lunch and dinner Tuesday through Sunday. Note they do have a few hours of closure between meal services on weekdays.

• Brian’s Pick: The Eagle – Where house-brined and dredged fried c hicken and southern sides are the stars of the show. The bar features carefully curated cocktails, along with a select list of local craft beers. Offering lunch and dinner daily.

• Grace’s Pick: Prime Cincinnati – Where you may experience the finest in steakhouse and seafood dining, complete with an extensive wine selection and exceptional service. Serves lunch on weekdays and dinner daily.

• Jenn’s Pick: Sotto – A basement dining spot next door to the Aronoff Center with an austere brick and wood interior serving inventive rustic Italian cuisine. Serves lunch on weekdays and dinner daily; reservations recommended.

• Charlie’s Pick: Street City Pub – This bar specializes in expertly crafted bourbon cocktails, alongside a curated wine list and local brews. Open for lunch Tuesday through Friday, and dinner Tuesday through Sunday.

• Rane’s Pick: Teak – An authentic Thai cuisine and sushi restaurant with a modern, healthy twist. Open for lunch and dinner Tuesday through Sunday.

• Maddie’s Pick: Saigon Subs & Rolls – The best weekday lunch spot, this restaurant offers authentic Vietnamese cuisine including pho, banh mi, and goi cuon. Economical, delicious, and quick, it’s one of the best sit down or carryout bites in town.

Within Walking Distance

• First Watch (Breakfast & Lunch)

• Green District (Lunch)

• Nada (Lunch & Dinner)

• Bru Burger (Lunch & Dinner)

• Bourbon’s Craft Kitchen (Lunch & Dinner)

• Crown Republic (Brunch, Lunch, & Dinner)

• Mr. Sushi (Lunch & Dinner)

• Mazunte Centro (Lunch & Dinner)

• Harry and Shan Asian Cuisine (Lunch & Dinner)

Streetcar Ride Away

• Shanghai on Elm (Lunch & Dinner)

• Goodfellas Pizzeria (Lunch & Dinner)

• Aladdin’s (Lunch & Dinner)

• Taste of Belgium (Breakfast, Lunch, & Dinner)

• Nicholson’s Pub (Brunch, Lunch, & Dinner)

• Boca (Dinner)

• Rosie’s Italian (Dinner)

• Pata Roja (Lunch & Dinner)

• Chipotle (Lunch & Dinner)

• City Bird (Lunch & Dinner)

• Potbelly (Lunch & Dinner)

• Arnold’s Bar and Grill (Lunch & Dinner)

• Taqueria Mercado (Lunch & Dinner)

• Queen City Radio (Lunch & Dinner)

• Allez Cafe (Breakfast & Lunch)

• Lucious Q (Lunch & Dinner)

Grocery Stores

There are several supermarkets close to the Aronoff Center. A selection of nearby locations are listed below.

• Kroger on the Rhine: 100 E Court Street, Cincinnati, OH 45202

• Kroger - Corryville: 1 W Corry St, Cincinnati, OH 45219 (has a pharmacy)

• Kroger Marketplace - Newport: 130 Pavilion Pkwy, Newport, KY 41071

• Target – Newport: 160 Pavillion Pkwy, Newport, KY, 41071

• Whole Foods: 2693 Edmondson Rd, Cincinnati, OH 45209

Lodging

There are several hotels within walking distance of the Aronoff Center. A selection of nearby properties are listed below.

• 21c Museum Hotel: 609 Walnut Street, Cincinnati, OH 45202

• Kinley Hotel: 636 Race Street, Cincinnati, OH, 45202

• The Westin Cincinnati: 21 E 5th Street, Cincinnati, OH, 45202

• Hilton Netherland Plaza: 35 W 5th Street, Cincinnati, OH, 45202

• Hampton Inn & Suites Downtown: 617 Vine Street Suite A, Cincinnati, OH 45202

Cincinnati also has a large short-term rental inventory.

Contact Us

For general inquiries, please reach out to the email addresses below which will be distributed to groups of current and applicable staff members: OperationsAC@cincinnatiarts.org | RentalAC@cincinnatiarts.org | ProductionAC@cincinnatiarts.org

Administration

Maddie Regan General Manager mregan@cincinnatiarts.org 513.977.4120

Rental & Event Management

Rane Maul Rentals & Programming Manager rmaul@cincinnatiarts.org 513.977.4122

Jenn Picone Senior Event Manager jpicone@cincinnatiarts.org 513.977.4083

Scott Slucher Event Manager sslucher@cincinnatiarts.org 513.977.4124

Emma Garry Event Manager egarry@cincinnatiarts.org 513.977.4186

Charlie Lock Concessions Manager clock@cincinnatiarts.org 513.977.4139

Grace Miller House Manager gmiller@cincinnatiarts.org 513.977.4138

Cory Baldwin Safety & Security Manager cbaldwin@cincinnatiarts.org 513.977.4143

Production

E.J. Mechley Technical Director, Steward emechley@cincinnatiarts.org 513.977.4172

Steve Schofield Head Electrician sschofield@cincinnatiarts.org 513.977.4137

Jon Chevalier Head Carpenter & Rigger jchevalier@cincinnatiarts.org 513.977.4171

Michael Meuche Head Audio mmeuche@cincinnatiarts.org 513.977.4146

Figure 68. Procter & Gamble Hall lobby.

Turn static files into dynamic content formats.

Create a flipbook