



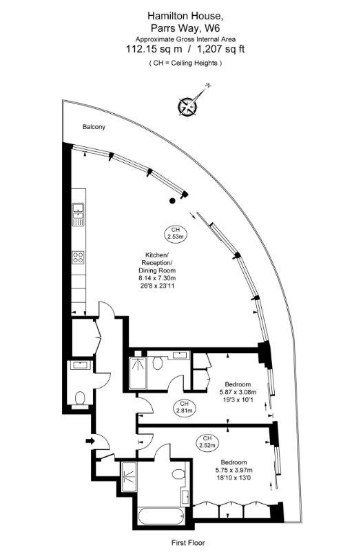
A spacious two double bedroom apartment located on the 1st Floor of Hamilton House. Fulham Reach is offering beautifully designed and impeccably finished premium apartments located directly on the River Thames.
Parking for 1 car in the underground garage.
Amenities include: 24 hour concierge, spa and leisure facilities, pool with sauna and steam, gym, cinema, wine cellar, snooker room and virtual golf. Shops, bars and restaurants are on-site,
Average Daily Rate: £400
A minimum occupancy of 65% is expected (check comparables).
A starting investment of £15,728 is needed to cover the deposit, sourcing fee and first months rent.
Orange highlighted boxes are the expected average minimum profits throughout the year.
Yellow highlighted box is the expected monthly profit during the upcoming summer season