PORTAFOLIO
Proyectos 2017 - 2025
![]()
Proyectos 2017 - 2025
Arquitecta BIM con experiencia en diseño arquitectónico y gestión de proyectos con enfoque en la coordinación BIM. Especializada en dibujo planimetrico y de detalle (2D), modelado 3D, simulación 4D, estimación de costos (5D) y visualización avanzada. A lo largo de mi trayectoria, he trabajado en la coordinación de equipos multidisciplinarios e intervenido en proyectos de pequeña y mediana escala gestionando de manera eficiente cada etapa del proceso, siempre desde una visión analítica, resolutiva y con gran atención al detalle. Me apasiona la integración de tecnologías emergentes a partir de protocolos de gestión de la información para mejorar la calidad y productividad de los procesos optimizando recursos al mismo tiempo que se cumple con las expectativas del cliente. Mi interés se centra en participar en iniciativas innovadoras que fusionen soluciones arquitectóncas con tecnologías de vanguardia.

2021-2024
Neutral Arquitectura
Bogotá D.C.
+57 302 330 48 31
cthernandezg@unal.edu.co
Bogotá D.C.
www.linkedin.com/in/ctherg
HABILIDADES
CONOCIMIENTOS APTITUDES INTERESES
Diseño arquitectónico
Modelado 3D-4D-5D
Dibujo técnico
Visualización
Coordinación BIM
COMPETENCIAS DIGITALES
Comunicación asertiva
Trabajo en equipo
Compromiso
Resolución de problemas
Gestión de la información IDIOMAS
GOOGLE SUITE
BIM
Eficiencia
Sostenibilidad
Innovación
Conciencia social Tecnología
Diseño arquitectónico, de interiores y apoyo en la gestión de más de 20 proyectos de vivienda y comercio de pequeña y mediana escala.
- Realicé el levantamiento de condiciones existentes para proyectos de remodelación.
- Desarrollé el dibujo de planimetría arquitectónica, técnica y de detalle para proyectos nuevos, de remodelación y para actos adiminstrativos.
- Me especialicé en modelado 3D y visualización de los proyecto a partir de imágenes fotorealistas.
- Participé en la interacción y coordinación entre contratistas, proveedores , residentes de obra y clientes apoyando al equipo durante todas las fases del proyecto ( SD,DD,CD ).
- Apoyé en la elaboración de presupuestos desde el cálculo de cantidades de obra hasta el trámite de cotizaciones comerciales con proveedores.
- Gestioné trámites administrativos como solicitud de licencias de construcción y otras actuaciones según la legislación Colombiana.
- Implementé estrategias BIM mediante el uso eficiente de herramientas tecnológicas, planificación estructurada para gestión de la información y estandarización de procesos a través de protocolos, optimizando la productividad del equipo lo que mejoró la calidad de los entregables reduciendo tiempos y reprocesos.
ESTUDENT TEAM LEADER - Estudiante auxiliar
UNOaA Team - Concurso Solar Decathlon LAC 2019
Universidad Nacional de Colombia
Bogotá D.C.
Representación de la UNAL en la competencia SDLAC 2019 con el equipo
UNoA y el proyecto de vivienda sostenible, ecoproductiva PV4.0
- Lider de gestión administrativa y coordinación del equipo desarrollando actividades de organización interna, tramites institucionales, manejo de presupuesto y contacto con patrocinadores.
- Apoyo en el diseño y ejecución del proyecto PV4.0.
2017 - 2019
SOLAR DECATHLON LATIN AMERICA AND CARIBBEAN 2019
UNOaA Team - PV Home
Construido - 3 premios
2021
CASA CULTURAL JAIME PARDO LEAL
Equipo independiente
Primera ronda
2021
CONCURSO PRIVADO ABIERTO DE ARQUITECTURA
PARA EL DISEÑO DE PROYECTOS EMBLEMÁTICOS DE ESPACIO
PÚBLICO Y JARDINES INTERIORES DEL COMPLEJO HOSPITA-
LARIO SAN JUAN DE DIOS
Sociedad Colombiana de Arquitectos
Equipo independiente
EDUCACIÓN
2024
DIPLOMADO BIM COORDINATOR
Naska Digital
Virtual
2014 - 2021
ARQUITECTA
Universidad Nacional de Colombia
Bogotá D.C.
2011 - 2012
TECNICO EN CONTABILIZACIÓN DE OPERACIONES FINANCIERAS
Servicio Nacional de Aprendizaje Sena
Bogotá D.C.
2007 - 2012
BACHILLER COMERCIAL
Centro Comercial Madre Elisa Roncallo
Bogotá D.C.
2024
BIM ADVANCED TECHNOLOGIES - REVIT 2024
Autodesk - Naska Digital
BIM ADVANCED COORDINATION - NAVISWORKS MANAGE 2024
Autodesk - Naska Digital
BIM COMMON DATA ENVIRONMENT - BIM 360 DOCS CLOUD
Autodesk - Naska Digital
BIM SIMULATION & BIM QUANTITY TAKE OFF - NAVISWORKS
MANAGE 2024
Autodesk - Naska Digital
SYNCHRO 4D Pro Training
Bentley- Naska Digital
AVANZADO TRABAJO SEGURO EN ALTURAS
Servicio Nacional de Aprendizaje Sena
Bogotá D.C.
AUTOCAD 2D
Servicio Nacional de Aprendizaje Sena
Complementario virtual (40hr)
RECONOCIMIENTOS
Solar Decathlon LAC 2019
Premios en Confort, Eficiencia energética, Diseño Universal.
Student Team Leader
UNAL compite por “La casa del futuro”
Agencia de noticias UN.
2017 - 2025
PROFESIONALES
CASA MOCOA
Obra Nueva ( 2023-2024)
Neutral Arquitectura

APARTAMENTO VRAPA
Remodelación (2023)
Neutral Arquitectura

CONCURSOS
CASA CULTURAL JAIME PARDO LEAL
Concurso de ideas (2021)
Equipo independiente - Primera ronda


CASA LEGO
PROFESIONALES
CASA TEUSAQUILLO
Remodelación (2023-2024)
Neutral Arquitectura
Obra Nueva (2021-2022)
Neutral Arquitectura

CASA PV 4.0 Open Architecture
Concurso Solar Decathlon LAC 2019
UNoA Team - UNAL



CONCURSOS
DISEÑO DE JARDINES INTERIORES CHSJD
Concurso Privado abierto (2021)
Equipo independiente
ACADÉMICOS ACADÉMICOS
LA FORMA SIGUE LA EVOLUCIÓN
Trabajo de grado 2020 - II UNAL
Neutral Arquitectura
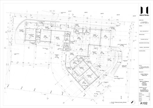
Vivienda campestre ubicada en zona rural de Mocoa, Colombia. Este proyecto integra el hábitat natural y la residencia humana mediante un diseño inspirado en la naturaleza. Estrategias bioclimáticas y sostenibles minimizan el impacto en el entorno y un diseño abierto conecta el interior con el exterior e integra todas la formas de vida presentes.


Datos del proyecto:
Año: 2023-2024
Tipo: Obra nueva
Ubicación: Mocoa, Colombia
Equipo: Neutral Arquitectura
Cargo: Arquitecta Diseñadora
Esta casa de 570 m² se emplaza en la zona alta del lote limitando en el costado occidental con una reserva forestal, de esta manera se aprovechan las visuales y se asegura una correcta asoleación y ventilación natural en función del confort y la funcionalidad.
También, se propone una vía interna que conecta la vivienda con la Avenida Colombia garantizando accesibilidad al mismo tiempo que se respeta la vegetación







El diseño, inspirado en las aves del Putumayo quienes con sus grandes alas se protegen a sí mismas y a sus crías de la lluvia el sol, se desarrolla en dos grandes cubiertas que cobijan zonas sociales y privadas, integrándolas como un único espacio familiar.
Una estructura metálica liviana, jardines interiores, amplios ventanales y una piscina natural en la que, a través de la re-circulación y filtración de aguas se consolida un estanque para peces, son algunas de las estrategias aplicadas para crear una conexión directa con la naturaleza minimizando el impacto.



Algunos conceptos de diseño:
El diseño garantiza accesibilidad para la movilidad reducida, atendiendo a las necesidades particulares de los propietarios.
Un diseño interior cálido y acogedor en el que la madera y el acero se convierten en los protagonistas.
Persianas móviles que ofrecen privacidad y protección del medio al mismo tiempo que permiten el paso de aire.
Entrada de luz natural y re-circulación del aire a través de grandes tragaluces en la cubierta.

Se realizó el modelado 3D y generación de planimetría técnica a través del software Revit 2022.






Para la visualización foto realista se usó el software Sketchup en colaboración con Enscape.
Finalmente se desarrollaron detalles constructivos, planos de acabados, despiece de carpintería y conteo de cantidades desde Revit lo que facilitó y optimizó los tiempos del proceso.
Este proyecto se convierte en el punto de partida para la compañía en términos de implementación de estrategias BIM al generar protocolos para el gestión de la información a través de las herramientas tecnológicas disponibles y el modelado 3D.










Neutral Arquitectura
Remodelación de un edificio de tres niveles. Esta propiedad designada como patrimonio cultural de Bogotano, consistió en el diseño arquitectónico, de interiores generación de planimetría constructiva y gestión para la aprobación de construcción por parte de las entidades correspondientes (IDPC-Curaduría).


Datos del proyecto:
Año: 2023-2024
Tipo: Remodelación
Ubicación: La Soledad, Teusaquillo, Bogotá.
Equipo: Neutral Arquitectura
Cargo: Arquitecta Diseñadora
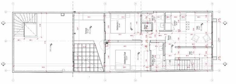
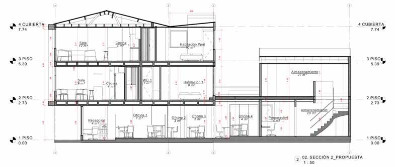
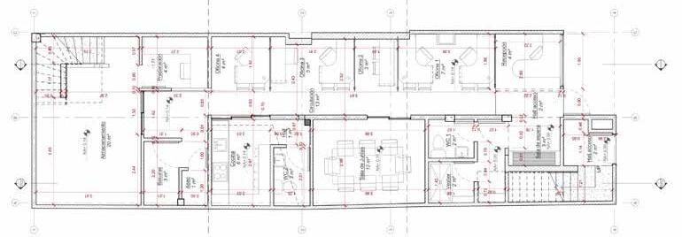
Este proyecto de 233.80 m² de área construida, repartida en tres niveles y que originalmente fue diseñado como vivienda, se adapta para transformar su uso en el primer nivel albergando oficinas, mientras que los niveles superiores se designan a apartamentos. Dicho proceso se realiza al mismo tiempo que se respetan las condiciones patrimoniales.




TERCER NIVEL:
Apartamento independiente que incluye:
- 2 Habitaciones
- Terraza abierta
- 2 Baños
- Cocina abierta
- Zona de ropas
- Espacio social




SEGUNDO NIVEL:
Apartamento independiente que incluye:
- 2 Habitaciones
- Terraza cubierta
- 2 Baños
- Cocina abierta
- Zona de ropas
- Espacio social
- Hall de circulación común




PRIMER NIVEL:
Espacio de oficinas que incluye:
- Recepción y sala de espera.
- 2 Baños
- Sala de juntas
- 5 Oficinas
- Cocineta
- Bodega y basuras
- Almacenamiento




Se realiza la planimetría técnica usando la herramienta Revit 2022, a partir de la segregación por fases es posible realizar la comparación entre el estado inicial del edificio y la propuesta, resaltando en color los elementos a demoler y los nuevos por construir. Esto favorece y agiliza el proceso constructivo al ser gráficamente claro para el constructor.



Generamos planos de detalle para acabados y zonas húmedas, se totalizan cantidades y junto a esquemas 3D se da apoyo al equipo de obra y a los contratistas responsables, de esta manera la obra finaliza de manera existosa en junio del 2024.
Neutral Arquitectura
Remodelación de apartamento antiguo en zona exclusiva de Bogotá. Se diseña bajo un concepto minimalista y elegante que responde a las expectativas y necesidades del cliente.


Datos del proyecto:
Año: 2023
Tipo: Remodelación
Ubicación: Chapinero, Bogotá.
Equipo: Neutral Arquitectura
Cargo: Arquitecta Diseñadora
En este apartamento de 200 m² se aprovechan al máximo los recursos disponibles, al mismo tiempo que se realiza una actualización en el estilo del diseño interior. Se diseña una cocina abierta y espacios iluminados que generan calidez y elegancia.








Diseño de estudio/oficina privada con división en panel de diseño, giratorio para TV.


Diseño de vivienda prefabricada de lujo que se basa en principios de eficiencia y optimización de recursos para lograr un diseño modular, estandarizado que permita una fácil y rápida construcción y que le permita adaptarse en cualquier ubicación.


Datos del proyecto:
Año: 2021-2022
Tipo: Obra Nueva
Ubicación: Flexible
Equipo: Neutral Arquitectura - 4 Puntos
Cargo: Arquitecta Diseñadora
En este diseño de vivienda prefabricada de 120 m² se utilizan medidas estándar y materiales seleccionados para la fabricación con el objetivo de garantizar un ensamblaje preciso en el que se optimicen tiempos y se minimicen desperdicios.
Este proyecto se caracteriza por ofrecer a los usuarios espacios habitables cómodos y adaptables, además de una construcción rápida y sencilla, permitiendo su ejecución en cualquier parte del país.
Se realiza el diseño en Autocad 2D, el modelado 3D en sketechup y el renderizado en Vray. Se genera la planimetría técnica y de detalle y despiece de elementos.








Primera ronda 5
Proyecto que busca contribuir a la consolidación de la identidad de la comunidad del Centro Poblado Las Colinas Jaime Pardo Leal, los procesos de reconstrucción de la memoria y construcción de tejido social a través de la apropiación del espacio por medio de la cultura.


Datos del proyecto:
Año: 2021
Enfoque: Diseño proyectual
Tema: Espacio cultural
Equipo: Camilo Ramírez, Sergio Cortés, Brayan Gamba
Categoría: Concurso de ideas
Jurados: COOJAPAL, ASOMUJAPAL, UniValle, Unal

La cultura se concibe en el marco de los Dere chos culturales inherentes a los habitantes de la comunidad en cuanto que son garantía de ejercer una ciudadanía efectiva y libre dentro de la sociedad luego de un proceso de reincorporación y reconciliación.
El diseño se organiza en torno a la configuración de espacios en el marco de la interacción social bajo 5 principios fundamentales: Interpretación y reinterpretación, Sensibilización, Formación, Creación y Co-creación. Juntos crean un ecosistema cultural mediante una intervención flexible, permitiendo una variedad de configuraciones espaciales que mezclan áreas con diferentes grados de privacidad para desarrollar actividades que permitan multiplicar la agenda lúdica, cultural y social integrando a la comunidad y a sus visitantes.
El objetivo es diseñar una arquitectura eco sostenible que promueva la enseñanza y conservación de las tradiciones a través de un lenguaje contemporáneo.





El proyecto se desarrolla con enfoque de inclusión de la diversidad y enfoque ambiental alrededor de un espacio que diluye los limites de un hall de acceso, un auditorio, un museo y una galería permitiendo un espacio público al interior, siendo este un espacio flexible, sensorial e incluyente para diferentes usos culturales y acciones espontáneas, este espacio es contenido por 3 volúmenes que disponen las aulas y servicios complementarios. Todo esto bajo un gran contendor que reutiliza la estructura y cubierta existente como idea de evolución y cambio a través de los elementos construidos para lograr el mayor alcance posible.








INTERIORES DEL CHSJD
Concurso de arquitectura para el diseño de proyectos emblemáticos de espacio público y jardines interiores del Complejo Hospitalario San Juan de Dios.
El proyecto busca “contribuir a la conservación, intervención y puesta en valor del sistema patrimonial constituido por el CHSJD, Bien de Interés Cultural de carácter Nacional y Distrital, en cumplimiento del Plan Especial de Manejo y Protección (PEMP), apoyando la revitalización del centro de Bogotá para el beneficio de los habitantes del sector, de las comunidades asociadas y de la ciudadanía en general” SCA


general
Datos del proyecto:
Año: 2021
Enfoque: Diseño proyectual
Tema: Restaruación, patrimonio y paisajis mo
Equipo: Joao Figueroa, María Peña, Valentina Díaz, Danna Ávila, Kevin García, Adriana Marquez, Paola Guevara
Categoría: Concurso privado abierto
Director: Andrés Ibañez G.
Jurados: SCA, ERU
La propuesta busca enfatizar el caracter emblemático de la arquitectura a través del vacío como elemento integrador. También promueve y potencia el cuidado de la biodiversidad y sensibilidad al agua manteniendo la continuidad de corredores biodiversos, sumado a esto fortalece el caracter terapéutico de los jardines a través de experiencias biofílicas en senderos elevados que respetan lo silvestre. Plantea accesos flexibles, movilidad multimodal para una gestión inteligente del complejo e integra a la comunidad planteando plazoletas activas y una delimitación que cierra sin aislar.







Para el planteamiento proyecto se considera su viabilidad e integración de acuerdo a la evolución de la ciudad y el sector a futuro, por esto se propone su ejecución en fases, en donde la quinta propone la apertura de espacio publico en el borde sur del complejo.










Los espacios se definen desde su caracter pasivo o activo de acuerdo a











Una propuesta de vivienda innovadora con la que el elquipo UNoA, compuesto por 65 estudiantes de 16 carreras diferentes, representó a la Universidad Nacional de Colombia en el marco de la competencia Solar Decathlon Latin America and Caribbean 2019, evento que se llevó a cabo en Cali, Colombia.


Datos del proyecto:
Año: 2017 - 2019
Enfoque: Sostenibilidad
Tema: Vivienda innovadora
Equipo: UNoA Team
Categoría: Concurso internacional
Director: Andrés Ibañez G.
Jurados: Organización Solar Decathlon LAC
Cargo: Estudiante líder
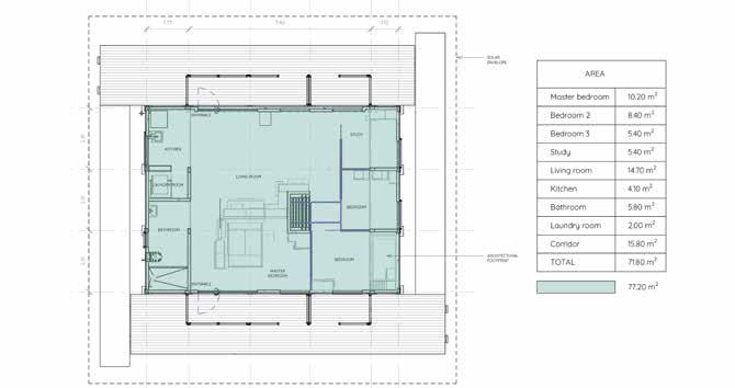
La Casa PV 4.0 , diseñada, construida, puesta a prueba en competencia y expuesta al público, se concibe como una propuesta para la vivienda del futuro.
Su diseño, de 77.2 m₆ está fundamentado en cuatro conceptos (PV):
1) Polivalencia, 2) Post-vierendeel, 3) Photovoltaic, 4) Productive Vicinities.


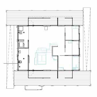
Espacios capaces de adpatarse a las necesidades de sus usuarios.

Posibles configuraciones espaciales
Dos de las posibles configuraciones interiores incluyen: Una planta completamente abierta en la se que libera el espacio interior y otra, en la que los espacios se cierran, permitiendo mayor privacidad para cada miembro de la familia.



tes posibles configuraciones del espa cio, que garantizan estándares de accesibilidad universal.
En el exterior, el sistema de persianas abatibles permite transformar la fachada de acuerdo a los requerimientos del usuario.



Espacios abiertos




Sistema estructural de módulos prefabricados que optimiza el funcionamiento y construcción de la vivienda.

Los módulos de soporte se ubican en los extremos laterales de la vivienda y cada uno se convierte en un nicho espacial que contiene y centraliza funciones, además de liberar el espacio central haciendolo más flexible.


2.

Módulos prefabrica-
Este sistema estructural permite una eficiente agrupación en bloques de vivienda, pues favorece la flexibilidad espacial permitiendo grandes luces para espacios comunes al tiempo que optimiza la materia prima.

Proceso constructivo



2




Al funcionar como “piezas lego”, cda elemento puede ser transportado ensamblado y desmontado con facilidad y con maquinaria sencilla. Cada fase está programada para tener una duración de dos semanas.






Bloque urbano ecoproductivo, proyectado en Cali que agrupa 120 viviendas en una hectara.
El plan maestro busca reactivar zonas deterioradas de la ciudad, por esto empieza su expansión desde el vértice en el que se encuentran dos importantes ejes de la estructura urbana: El río Cali como eje ambiental y la calle 25 como eje que conecta norte y sur.













Suelo natural Podium




Jardín
Pasarelas elevadas












Canopy









Superposición de capas que incluyen al ecosistema natural, al ser humano y el canopy como una mezcla de ambos.













Otros de los grandes retos del proyecto, estaban relacionados con la coordinación del equipo, la consecución de recursos para llevarlo a cabo y su difusión en medios.
Para esto, el equipo:
Mantuvo una organización interna basada en los intereses, capacidades y conocimientos de cada uno de sus miembros.
Participó y organizó eventos académicos y comerciales que lo dieron a conocer.
Contó con publicaciones en medios escritos, radiales y audiovisuales tanto institucionales como externos.
4.

Gestionó y obtuvo recursos económicos, materia prima y/o asesorías de 21 patrocinadores externos y consiguió apoyo institucional.
Creó un plan para la administración de los recursos y coordinó todas las actividades necesarias para la construcción del proyecto.


Trabajo de grado
“Microequipamiento metamórfico para cinco escenarios futuros en el municipio de Tumaco explorando el supraciclaje de edificios.”
Este proyecto nace de la reflexión sobre cómo estamos diseñando arquitectura en un mundo que no para de evolucionar y cómo estas decisiones afectan directamente al planeta y sus habitantes.


Datos del proyecto:
Año: 2020
Enfoque: Tecnológico - sostenibilidad
Tema: Supraciclaje de edificios
Equipo: Joao Figueroa
Categoría: Académico - Trabajo de grado
Director: Andrés Ibañez G.
Jurados: Angélica Chica S., Leonardo
Álvarez y Julio Abel S., Mauricio Romero M.

La “Forma sigue la evolución” es una apología que busca trascender una forma de diseño tradicional en la que no se ha considerado a la evolución como un criterio de diseño fundamental, ya que es precisamente esta omisión la causante de problemáticas como el deterioro ambiental y de las mismas limitaciones del diseño a la hora de responder eficientemente a las necesidades humanas.
Este proyecto explora, el concepto: “supraciclaje”, nacido del paradigma “cradle to cradle”, como una nueva perspectiva para diseñar desde la comprensión de que todo se transforma, tanto el mundo como sus necesidades.
Y lo hace desde una ógica de “reutilización programada” en la que todo lo que se produce se convierte en un recurso para un producto nuevo de igual o mejor calidad,nunca en residuo. Se diseña para “RENACER”





Se trata de hacer 5 edificios en uno, uno que tenga la capacidad de cambiar de forma y función para responder a diferentes situaciones en el tiempo. Un edificio con más de una vida.

Criterios de diseño Programa de usos

Luego de analizar a Tumaco, un lugar lleno de riquezas, de posibilidades y que a su vez vive una constante transformación y se encuentra en alto riesgo, se disañaron cinco programas arquitectónicos teniendo en cuenta una visión de las necesidades presentes y futuras del territorio y su población.

A partir de este análisis, los cinco programas se plantearon bajo una linea de tiempo hipotética y se ubicaron en diferentes puntos de la ciudad; Esto se hizo con el objetivo de evaluar la viabilidad de un edificio reutilizable, ya que se crean requerimientos tecnicos y espaciales complejos.


Para cumplir con estos requerimientos se siguieron parametros de diseño basados en las necesidades espaciales y tecnicas para cada vida, resultando dos unidades espaciales que serán la base del diseño y que están compuestas por elementos modulares de facil construcción, ensamblaje, desmonte y transporte. Cada unidad reune funciones tecnicas y a través de uniones estandarizadas, son compatibles entre ellas permitiendo realizar variaciones en planta y alzado. Siguiendo esta













Tipologías espaciales
La variedad de formas de agrupación que permiten las unidades hace posible la configuración de diversos tipos de espacios y así mismo de edificaciones distintas para cada uso.
El estudio de cada tipología, en contraste con las necesidades espaciales fue necesario para diseñar los cinco proyectos propuestos.
Finalmente, se emplean seis unidades de cada tipo (A y B) para resolver cada








Entorno de reconciliación colectiva y familiar
Atención psicosocial
Este proyecto responde a una necesidad actual de la comunidad que está orientada hacia la reconciliación, la paz

Basada en la psicología construccionista, la espacialidad busca crear tres escenarios, uno privado para la reparación individual, otro semi privado para la familiar y otro publico para reconciliación la colectiva. Para cada caso, se aplica una tipología espacial diferente lograda con la agrupación de




La tradición como oportunidad

Este segundo proyecto evoluciona a la par que una sociedad reconciliada y con el objetivo de mantener este estado de paz, ofrece alternativas para que a través de la cultura y la educación en saberes tradicionales, la comunidad cree oportunidades laborales y económicas.
Basada en la psicología constructivista, la espacialidad que se genera, responde a entornos de construcción de conocimiento individual o intra-personal y grupal o inter - personal.







Regeneración de bosques
Una vez las piezas modulares del proyecto cumplan con su función, retornarán como recurso, no como desecho. Algunas partes se destinarán para usos técnicos como contención de terrenos, otras como páneles para la construcción de acuarios para la crianza de peces, las unidades tipo A podran reutilizarse, como estructuras de bajo impacto para la observación de aves.


Y finalmente, las unidades tipo B, apoyarán la recuperación del ecosistema de manglar en el borde costero, por lo que se dispondrán sobre el agua dando soporte a nuevos individuos arboreos, aumentando la cobertura natural.







