CSO_SOQ_USA Gymnastics

Page 1


Qualifications

USA Gymnastics Training & Wellness Center and Office Headquarters

December 5, 2025 ARCHITECTURE |

Contents

Firm Profile

Market Sectors

Environmental Stewardship

Design Leadership

Advanced Design Technology

Branded Environments

Project Experience

Recent Recognition

Providing design and service excellence for the benefit of our clients, our people, our community, and our environment.

CSO is a team of architects and interior designers driven by the desire to provide design and service excellence for the benefit of our clients, our people, our community, and our environment. Our ability to form strategic, long-term partnerships has resulted in a lasting legacy in the region as well as the opportunity to serve clients nationwide. We are active listeners and trusted advisors with expertise in a wide range of market sectors. Our diverse expertise informs thoughtful, and technically sound design solutions delivered through unparalleled project management skills.

HISTORY

Since 1961, CSO has grown to be one of Indiana’s largest, most reputable design firms. Our diverse portfolio represents decades of innovative design solutions for a wide range of clients and project types. We have built a lasting legacy of excellence in design and service by playing key roles in many of the region’s iconic projects including the Indianapolis International Airport, the JW Marriott Complex, and the Palladium at the Center for the Performing Arts. These projects, along with many others, are a testament to the role CSO has played in the growth and development of the area.

A PPROACH

Our collaborative, people-focused design approach, integrated with cutting-edge design technology, ensures that our designs contribute to our clients’ unique environment in lasting and meaningful ways. While every project is unique, our project approach is consistent, straightforward and relies on proven concepts. We believe in the importance of leadership, continuity of team members throughout the project, collaboration, building consensus, and effective communication.

Capabilities:

Architecture

Interior Design

Project Management

Experiential Branding

Sustainable Design

Biophilic Design

Visioning & Master Planning

Artwork, Design & Procurement

3D Visualization

Digital Modeling and Fabrication

Market Sector Expertise

Our diverse portfolio highlights our continued success in targeted market sectors, and features our ability to deliver unique project types by relying on the individual talents of our team members. The size of our firm, coupled with the depth of our experience ensures that we are able to offer clients the opportunity to work with a team that brings significant, relevant expertise to each project.

K-12 Education

Higher Education

Workplace

Healthcare

Manufacturing + Logistics

Community

Hospitality

Housing + Mixed-Use

Environmental Stewardship

CSO values the natural world we share. We realize the importance of our role in reshaping the environment in a sustainable manner while creating spaces that enhance the ways that people interact with the natural and built environment.

SUSTAINABLE DESIGN

Regardless of whether or not a project includes the goal of seeking LEED or other certifications, we integrate sustainable design solutions into all of our projects.

By working with CSO to look holistically at sustainable design strategies, clients are able to determine their approach to reducing their ecological footprint and environmental impact.

BIOPHILIC DESIGN

The theory of biophilia, supported by three principles, suggests that humans have an innate tendency to seek a connection to nature and other living things. However, in modern times, people spend the majority of their time indoors. CSO uses a quantitative and qualitative approach to help clients articulate solutions to connect people to nature, which contributes to optimal productivity and well-being in the workplace.

Nature of the space replicates spatial relationships in nature to evoke typical human responses. For instance, humans need to have places of refuge. Creating a sense of calm, they allow us to disconnect from the outdoor environment. Ideally, places of refuge still provide a view of the surroundings.

Sustainable design benefits include higher recruitment and retention rates, increased employee productivity, improved employee morale due to access to daylight and cleaner air, and a reduction in operating costs due to increased energy efficiency.

Natural analogues are one step away from actual nature, incorporated using artwork or design features that are representative of nature along with the use of natural materials. To achieve this we may rely on images of plants or trees along with the use of patterns found in nature.

Nature in the space provides direct physical contact to nature from within the space, experienced in a multi-sensory way. Design opportunities can be very literal, such as the ability to see nature from inside.

BIM Technology

is used to streamline workflows, enhance collaboration, and add value throughout the design and construction process. By integrating BIM into every phase, we improve accuracy, reduce risk, and create a more connected experience for clients and project teams.

Community Support is often a vital aspect of our projects. CSO supports initiatives that help build strong communities and we help ensure your community supports your project.

Collaborative Design drives our approach to all projects. We welcome the exchange of ideas, we listen, and our designs reflect this.

Design Leadership

At CSO, we believe that leadership is defined as the ability to translate vision into reality. Our collaborative design approach begins with guiding clients through a process to define their vision. Then, as a team, we develop guiding principles for making that vision a reality. The guiding principles will inform each decision moving forward to ensure that the project is a success.

As a service-oriented design firm, we believe it is imperative that design strategies enhance business and operational goals. To ensure that we achieve this goal, a dedicated Managing Principal provides oversight for each of our projects. Our Principals are practitioners who foster a culture of mutual respect and support between all

members of the design team. A highly qualified Project Manager will lead the design team and manage the process with thoughtful guidance, while incorporating expertise and input from key stakeholders and consultants.

Advanced Design Technology

The CSO Team harnesses a powerful array of tools and technologies to elevate your projects. At the heart of our approach is our Innovation Lab where we test, refine, and perfect the latest in cuttingedge design technology. These advanced solutions aren’t just about keeping pace; they’re about setting the standard, ensuring communication is clear, collaboration is seamless, and your project benefits from the very best in design innovation.

Virtual Reality (VR) transforms the way clients experience architectural design. Instead of relying on 2D plans or static renderings, VR offers an immersive walkthrough of the space allowing clients to see scale, flow, and details as if the building were complete. This clarity improves decision-making, reduces misunderstandings, and minimizes costly changes later in the process.

Prototyping demonstrates how innovation and craftsmanship converge, turning concepts into tangible design solutions. Our custom light fixtures showcase the journey from cardboard mockups to walnut veneer pendants with 3D-printed components, including “twist-and-turn” locking mechanisms for easy bulb changes and interchangeable fixtures.

Photo-realistic renderings portray accurate, immersive views of building interiors and exteriors. CSO creates these for all projects as part of our base services to effectively communicate design intent and inspire client confidence.

Advanced 3D Printers are used to create precise, highly detailed models that bring designs to life. Using models accelerates decisionmaking, allowing teams to test ideas, refine details, and incorporate feedback quickly without significant cost or time penalties.

Branded Environments

Enhancing your brand identity through customized design solutions creates a highly positive, increased awareness of your organization’s brand. CSO’s designers use multiple approaches to create a unique experience, while reinforcing or redefining workplace culture.

We encourage clients to consider the design of their space holistically from the moment we begin to develop design concepts.

With proper consideration, your space provides a unique palette to positively impact the public’s perception of your brand. Our unique branding concepts are brought to life through idea exchanges designed to ensure that we capture the essence of your history and values, along with the message you hope to convey.

Clif Bar is guided by Five Aspirations: business, brand, people, community, and planet, it was crucial that CSO’s design embraced these aspirations.

The iconic “brand” of Clif Bar is evident upon entering the space. Visitors and Clifsters are greeted by locally sourced reclaimed wood, preserved moss, and a composition of natural materials. The blend of art and nature harkens back to the epiphany during a bicycle ride where Clif Bar was conceived. Brand identity is subtly incorporated throughout the facility.

The “people” - affectionately referred to as Clifsters - take center stage in this project. Clif Bar leaned into their diversity and put it on display. Uniquely branded shelves create a gallery to display art that reflects the unique background of many of their employees.

We incorporate environmental branding through the use of custom installations, graphics, and design elements that can build upon existing brand elements or create completely new ways to tell your story and enhance your workplace.

By express intention, every employee has the same arrival experience and amenities. Bakery staff and office workers are intermixed in social spaces and at critical building zones. The employee gathering plaza occupies the outer portion of the second floor to maximize views to the outdoors and positions this space at the center of business.

The “community” encompasses many things within the design of this facility: Clif Bar community, Indianapolis community, and Clif Bar’s extended family. Contributions to the space from community partners include: furniture from Purposeful Design and the antique skiff from a long term Clif Bar partner. These subtly branded items reinforce Clif’s commitment to community and reinforce the corporate brand.

Clif Bar Indianapolis, IN

Project Experience

Our diverse portfolio represents decades of experience across a variety of project types. A select number of examples are featured on the pages that follow.

Assembly Hall

Assembly Hall Game Day Locker Room

Memorial Stadium Weight Room

Irsay Family Sports Center for Health and Wellness

Westfield YMCA

Westfield Washington Schools Aquatic Center

Brownsburg High School Fieldhouse

Shondell Practice Center

DePauw Tennis Center

Purdue Tennis Center

SEP Headquarters

Allied Solutions Headquarters

Carr Workplaces

IBJ Media Group Headquarters

Hotel Nickel Plate

Hampton Inn and Suites

Ball State University North West Residence Hall

Ball State University North Dining Hall

Westfield, Indiana

WESTFIELD YMCA

PROJECT DETAILS

Location Bloomington, Indiana

Size

45,000 sf addition

Sustainability

Certified LEED Gold

Awards

ICACI Outstanding

Achievements in Concrete

ENR Midwest Sports/ Entertainment Best Project Award

Simon Skjodt Assembly Hall

Indiana University

Designed to significantly improve game day access while enhancing the patron experience, the South Lobby expansion and renovation enhances the character of the iconic Assembly Hall arena.

When Indiana University set out to improve the iconic Assembly Hall, they prioritized the preservation of the original aesthetic while challenging the design team to develop a bold, yet respectful expansion that closely aligned with the architectural character of the original structure. Contextual influences drove a design solution that integrated the new addition into the existing structure holistically with a reverent architectural expression that closely relates to the original.

A new atrium space allows views between the entry and main concourse. This is the center of the new space and features a reinvented version of Athlete’s Hall and a panoramic window

allowing views into the arena. The new arrival area supports existing traditions while offering a space for new traditions, events, and ceremonies to take place. The new entry is conveniently located, and visible escalators create a clear and efficient means for moving spectators through the space into the arena. A new Box Seat Club offers an exceptional viewing experience of events. CSO collaborated with SmithGroup to complete this project.

CSO subsequently completed the Roberts Family Indiana Basketball Team Center and Mark Cuban Center for Sports Technology located within Assembly Hall.

PROJECT DETAILS

Location Bloomington, Indiana

Size

5,370 sf

Men’s Basketball Locker Room

Indiana University

An underutilized space was reclaimed as the Roberts Family Indiana Basketball Team Center - a game day locker room and a recruiting tool for IU’s men’s basketball team.

Upon the successful completion of the Simon Skjodt Assembly Hall addition project, the Indiana University Athletic Department discovered an opportunity to enhance an area of underutilized space within the building. The space located under the lower bowl was being utilized for storage, back of house restrooms, and various ancillary needs. With direct access to the basketball court, it made sense to reclaim this space as game day locker rooms, a players lounge, shower/restrooms, and coaching conference spaces – all of which did not previously exist within the facility.

After early discussions with the University it became apparent this space needed to be on

par with many of the universities IU competes with for talent. The current coaching staff indicated that, while the space needed to be improved, there was also a strong desire to have it be modest. Above all requirements, the space needed to speak to the rich history of Indiana University Basketball with an eye to the future.

In order to meet the goals for the project, the design team incorporated wood, limestone, and back painted glass as the foundation of the finish palette. These finishes would serve as a clean backdrop to the iconic branding components found in the furnishings and implemented throughout the design. The overall composition created the motivational and

energetic space required to attract new athletes, while reminding them of the honor involved in representing IU.

In a press release, Coach Archie Miller stated, “As a program we want our players to experience the best of the best, and as we took inventory on how we wanted to do things as a new staff, one of the things we really approached was a new area for our team and creating an environment that is cutting edge and second to none. I think that’s what we have been able to create here.”

PROJECT DETAILS

Location Bloomington, Indiana

Memorial Stadium Weight Room Renovation

Indiana University

Renovations to Indiana University’s football-only weight room in Memorial Stadium enhance the student-athlete experience and create a high-performance training environment.

The renovations center on thoughtfully designed architectural upgrades that blend functionality with visual impact. A custom video bulkhead creates a dynamic focal point that energizes the space. An overhead glass garage door was added to provide a physical and visual connection to adjacent spaces, enhancing the facility’s flexibility. A striking curtain wall system frames the facility’s entry, promoting transparency and showcasing the program’s state-ofthe-art training resources.

One of the most unique design elements is the ceiling lighting concept inspired by football field hash marks. These custom lighting bands run the length of the room, echoing the markings on a football field. This subtle yet powerful design choice reinforces the identity and purpose of the space, reminding athletes of the game’s fundamentals with every workout.

PROJECT DETAILS

Location Indianapolis, Indiana

School District

Park Tudor

Size

71,300 sf

Irsay Family Sports Center for Health and Wellness

An important component of the school’s Campus Master Plan, this new facility promotes health and wellness for students.

The new Irsay Family Sports Center for Health and Wellness includes a fieldhouse, auxiliary gym, multipurpose studio, weight and cardio fitness room and seminar classroom, and community spaces for students to gather. Activities in the building are intentionally displayed to encourage interaction, communication, and

wellness on campus. The building design incorporates limestone, metal panel, and wood elements in keeping with the existing campus. The new wellness center replaces an existing sports facility. CSO partnered with Lake Flato on this exciting project.

PROJECT DETAILS

Location Westfield, Indiana

Size 54,500 sf

Ascension St. Vincent YMCA in Westfield

This community wellness hub is the result of a collaboration between the YMCA of Greater Indianapolis, the City of Westfield, Westfield Washington Schools, and the Ascension St. Vincent healthcare system.

The state-of-the-art facility completes a comprehensive two-phase construction initiative that began with the Westfield Washington Schools Aquatic Center, which CSO designed.

This new 2-story, 54,500 square foot addition to the Aquatic Center offers ample space for diverse community needs and activities. Features of this new facility include the following: 2-court gymnasium, indoor running track, wellness area, three fitness studios, childcare facilities, demonstration kitchen, community room, administrative areas, non-secular chapel, and locker rooms. Integral to the facility is an educational section of the building that Westfield Washington Schools will manage.

This portion of the building includes seven classrooms, conference spaces, and administrative offices.

The Ascension St. Vincent YMCA is more than just a fitness facility; it is a community cornerstone designed to enhance the quality of life for residents of Westfield and the surrounding areas. This project highlights a commitment to wellness, education, and community engagement, setting a new standard for recreational facilities in the region.

This project was designed in collaboration with Gro.

WHAT’S INSIDE?

2-Court Gymnasium: designed for various sports and activities, this gymnasium will serve as a vibrant center for fitness and recreation

Indoor Running Track: a dedicated track providing safe, year-round environment for walkers and runners of all levels

Wellness Area: equipped with modern fitness equipment, this area focuses on promoting health and wellness among members

Three Fitness Studios: versatile spaces for group classes, including yoga, Pilates, and spin

Childcare Facilities: safe and welcoming spaces for children, allowing parents to focus on their wellness goals while their children from infants to teenagers are cared for

Demonstration Kitchen: encourages healthy cooking and nutrition education

Community Room: a multipurpose space for meetings, events, and gatherings

Administrative Areas: dedicated offices to support the staff and operations of the YMCA

Non-Secular Chapel: a serene space for reflection and community gatherings

Shared Locker Rooms: conveniently located to enhance the experience at both the YMCA and the adjacent aquatic center

PROJECT DETAILS

Location

Westfield, Indiana

School District

Westfield Washington Schools

Size

34,812 sf

Westfield Washington Schools’ Aquatic Center

Westfield Washington Schools’ Aquatic Center includes an Olympicsized natatorium and connects to the new Ascension St. Vincent YMCA in Westfield.

The aquatic center supports the district’s swim teams and physical education classes as well as student-athletes who are recovering from injuries. The facility also includes locker rooms, support spaces, and bleachers that seat up to 650 spectators. The YMCA of Greater Indianapolis manages the facility.

A 54,500 square foot YMCA addition was completed in 2025. This addition includes a wellness center, gymnasium, running track, locker rooms, exercise studios, and child care facilities. Community members also have access to the pool through swim lessons and open swim sessions offered by the YMCA. The addition project was designed in collaboration with Gro.

PROJECT DETAILS

Location

Brownsburg, Indiana

School District

Brownsburg Consolidated

School Corporation

Size

80,000 sf

Grades 9-12

Brownsburg High School Fieldhouse

An expansive new, state-of-the-art fieldhouse accommodates Brownsburg High School’s extensive athletic programs.

The 80,000 sf fieldhouse features four fullsized basketball courts; an 8-lane, 200-meter indoor track; bleachers; and dedicated areas for long jump, pole vault, and high jump events. Designed to accommodate both competitive athletics and daily physical education classes, the fieldhouse serves as a dynamic, multi-functional space for students and the Brownsburg community.

The project also included new and renovated athletic support spaces, including: a new home football locker room, basketball locker room,

track and physical education locker rooms, a cardio/fitness room, batting cages, golf simulator, training room with a hydrotherapy tub, and other support spaces.

These transformational new spaces are designed to meet the needs of modern athletic programming and student wellness while showcasing the school’s brand and identity.

This project was completed in conjunction with the school’s Senior Academy addition and renovation - also designed by CSO.

PROJECT DETAILS

Location

Muncie, Indiana

Size

23,000 sf addition

Sustainability

Certified LEED Gold

Dr. Don Shondell Practice Center

Ball State University

This new facility provides a dedicated space for volleyball and basketball practices.

The Dr. Don Shondell Practice Center is a new building located adjacent to Worthen Arena which is home to the Ball State University Cardinal’s basketball and volleyball teams. The main area of the facility provides a new practice gymnasium and includes two, full-sized NCAAcompliant basketball and volleyball practice courts. The facility is accessible from Worthen Arena to provide access to existing locker and restroom facilities.

The connector between the two buildings has two levels. The main level provides an exterior

entrance to the Practice Center with access to the courts and space for a team room with tiered seating, a training room, and courtside storage space. The second level aligns with Worthen Arena’s concourse level where there is access to two new meeting rooms that overlook the new practice courts.

The namesake of the facility, Dr. Don Shondell, established an impressive legacy as a men’s volleyball coach as well as the founder of the volleyball team at Ball State University.

PROJECT DETAILS

Location Greencastle, Indiana

Size

130,000 sf

Awards

USTA Outstanding Tennis Facility

Indoor Tennis and Track Center

DePauw University

The goal of this new facility was to provide a state-of-the-art competitive and practice venue for several of DePauw’s athletic teams in addition to serving as a recreational facility for the community.

Prior to planning this new facility, CSO was hired to evaluate the feasibility of an addition to the Lilly Center at DePauw University, which is the university’s primary indoor fitness and recreation center. CSO’s study determined that the existing Lilly Center site could not handle an addition with the amount of space required for a new Indoor Tennis and Track Center. CSO worked with the University to determine the best site for the new facility and, ultimately, a site near the existing outdoor tennis courts was chosen.

During the schematic design, careful analysis determined that there was not a single floor surface that could adequately serve both tennis

and track and the design evolved into two, separate but conjoined pavilions with one primary entry location.

The entry of the facility includes 12,336 s.f. for offices, a multipurpose room, storage, restrooms, a training room and spectator seating. The main level is for performance activity. The track pavilion includes a 200-meter, six-lane track with Mondo Super-X spike proof surface. A complete netting system allows simultaneous use of the track and infield for a variety of team sports such as soccer, football, baseball, field hockey and softball. The tennis pavilion was sited just north of eight existing outdoor courts and includes six Deco-Turf courts.

PROJECT DETAILS

Location

West Lafayette, Indiana

Size

64,000 sf

Dennis J. and Mary Lou Schwartz Tennis Center

Purdue University

Purdue University’s first indoor tennis center provides Purdue tennis teams and the Tippecanoe County community with state-of-the-art, modern tennis courts in an upscale setting.

Twelve outdoor courts and six indoor courts, added to the original six variety courts to broaden the facility’s ability to hold large tournaments and groups, are available to the public. The main spine of the facility houses team and club locker rooms on the first level and spectator seating for 200 on the upper level. Offices for administrative staff and coaches as well as

recruiting areas are located at the west end adjacent to the two-story entry. In addition, the facility includes an athletic training room and pro shop located in the lobby. The elevation consists of metal panels accented with brick banding at the base and is designed to minimize the mass of the structure.

SEP Corporate Headquarters

Location Westfield, Indiana

sf

Chamber Monumental

Architecture

Inspired by the attributes of the site, designers seamlessly integrated natural elements with the SEP brand to create the design for the new company headquarters.

SEP is an Indianapolis-based company with a national footprint. When faced with the challenge of creating a new “forever home” for their headquarters, SEP and Pure Development turned to CSO. A site strategically placed along the US 31 corridor in Westfield became the front runner, and it aligned beautifully with their corporate culture and aspirations.

With the site selected, the design team worked hand in hand with key stakeholders to capture the essence of SEP and marry it with the natural environment of the site. Key architectural features, such as the random rhythm of the facade’s vertical lines, mimic the complexity, order and rhythms found in nature. This design statement allows the building to become one

with the site while simultaneously establishing a strong brand presence to passing traffic on US 31. In addition, the large ribbons of glazing provide views and capture reflections of the adjacent protected wetlands and wooded surroundings, reinforcing the connection of SEP’s “forever home” to nature.

CSO designed the project holistically, integrating the building’s design with its rolling site and context. The parking fields were strategically scaled and designed as a series of smaller areas of paving separated by stands of native plantings and grasses. This site master stroke, which mimics natural sedimentary rock outcroppings, worked with the site’s topography to minimize the visual impact of parking and to provide a

creative opportunity to address storm water management. The gentle bend in the building’s footprint also responds to and leverages the natural features of the site by nestling the building against the woodlands and pond in order to maximize views for the building’s inhabitants.

The design team worked seamlessly from exterior to interior to further enhance the user and visitor experiences. The symbolic rhythm found on the façade was “tuned” in order to contribute in specific ways to the various interior work environments - - enhancing collaborative spaces, peaking curiosity, and inspiring ingenuity. The natural assets of the site are further leveraged through the strategic placement of interior walls, the framing of views, and the selection of an intentionally restrained material palette.

SEP’s unique brand is on display throughout the design. Designers found inspiration and drew a connection between the view-accenting architecture and the company’s preferred style of work: scrum. In this method, employees will apply large numbers of post-its to walls. The

shape of a post-it on a wall mimicked the shape of the building footprint, and designers used this connection to influence key design features. Upon arrival visitors will notice an artful series of back-lit metal tabs peeling from a feature wall. This artistic expression pays homage to the scrum process while serving as a subtle branding component of the design. The design team further embraced the holistic design approach by crafting one of a kind furniture pieces from timbers sourced from the SEP site.

The unapologetic blend of nature and technology is evident within the new SEP headquarters. Today’s technology infuses a sense of hustle, and SEP challenged this notion by creating a space to be present within. It is a space in which to relax and find refuge. It is space in which to collaborate and nurture new ideas. It is space in which to entertain and to welcome clients and friends. It is a space that is uniquely SEP, and in their own words, it is their “Forever Home”.

Allied Solutions Corporate Headquarters

When Allied Solutions realized that they wanted a space that reflected a greater company-wide cultural transformation – rather than a standard tenant-finish solution – they relied on CSO to guide them through the process.

CSO designers conducted extensive visioning sessions with focus groups from Allied Solutions to guide and inspire the design for their new headquarters. The Allied Solutions team had the following to say about the visioning process: “When you ask employees what they want in a new space, they are limited to envisioning only the environments in which they have personally experienced. The Visioning exercise developed by CSO draws out attitudes and ideas that employees otherwise would not be able to voice when asked, ‘what do you want in your space?’ This was a key part in the overall design strategy for Allied Solutions’ new headquarters,

allowing our employees to voice their unique input for the company’s new space.”

The holistic interior design, and seamlessly incorporated branding elements are apparent immediately upon arrival to Allied’s second floor lobby. There, employees and visitors are enveloped by Allied Solutions’ “Blue Culture” with views to an atrium with a grand staircase, an informal mid-level conference room, social gathering spaces, and a 3rd level conference room. By design, the activity of the office is put on display in response to feedback provided by the user groups during their visioning sessions.

Research and careful dissection of information from the visioning sessions gave designers the opportunity to carefully parallel Allied Solution’s unique culture in its interior environment. The result is a unique space that embodies the company’s cultural and business aspirations.

Carr Workplaces Friendship Heights

Location Chevy Chase, Maryland

Carr Workplaces Friendship Heights provides an upscale co-working environment just outside of Washington, D.C.

Carr Workplaces asked CSO to develop a design to refresh their Friendship Heights location and breathe new life into their brand. CSO achieved this with a sophisticated, energetic approach that relies on a vibrant accent colors and artwork to bring the space to life. This combination paired with the exposed structure creates an urban feel, which is unique in the historic suburban neighborhood where the office is located.

The renovated space proudly displays Carr’s hospitality-focused roots, and emphasizes the arrival sequence with a casual café. The café serves visitors and the daily users of the workplace equally and brings a new, active energy to the lobby. Designers fine-tuned the conference spaces, adjacent to the lobby, and

reused glass entries of existing conference rooms to add dimension and sight lines to exterior views while artfully filtering the natural light.

The renovation has been widely praised by the diverse demographic of occupants. The mix of classic detailing with modern sophistication bridges multiple generations, and makes for a comfortable space for all. Carr Workplaces has deemed the Friendship Heights location their new flagship, and plans to incorporate the influence across the county.

IBJ Media Corporate Headquarters

In a time when some question the relevancy of newspapers, IBJ Media wanted to make a statement. Newspapers are not moving towards irrelevancy - they are more important than ever. CSO’s Interior Design studio collaborated with IBJ Media to tell this story.

After nearly 40 years in the same office, IBJ Media had the opportunity to move to a historic building overlooking the iconic Monument Circle in downtown Indianapolis. CSO designed a space that features unique branding elements referencing the history of the printing industry while giving IBJ’s workplace a fresh new look.

Cursed with low ceilings and odd angles, the space presented challenges for space planning and capturing natural light. CSO’s interiors team focused on the positive - great views of Monument Circle and raw building materials that told the story of the building’s past. The

designers embraced the odd building shape as an opportunity to carve out interesting spaces.

Upon entering the IBJ’s new offices, visitors are greeted by a custom art installation created from rolled up pieces of the IBJ’s past publications. Working closely with CSO, the artist took great care to highlight quirky references to Indiana, setting a sophisticated-but-fun tone from the very beginning. To the right, the receptionist sits in front of a black-on-black logo, representing printing press letters that, when used were raised and covered in ink, a reference to the history of the profession.

Other creative decisions were guided by the mostly-linear layout of a newspaper and by the idea of the old meeting the new. As we sit at a crossroads between digital and printed news consumption, this new office tells a beautiful story of those things working in harmony with each other both in function and aesthetic.

PROJECT DETAILS

Location Fishers, Indiana Size

Hotel Nickel Plate

The new Hotel Nickel Plate brings a high-end, boutique hotel experience to downtown Fisher’s Nickel Plate District.

Hotel Nickel Plate includes 116 rooms, with a full-service restaurant on the first floor and access to the Nickel Plate Trail – formerly the site of the Nickel Plate Railroad. Outdoor lounge spaces and a gathering stair encourage hotel guests to explore and engage with the local area.

The hotel’s design draws inspiration from the historic railroad and features black brick with limestone accents. The 5-story hotel is part of the Tapestry Collection by Hilton, which combines a boutique hotel experience with the reliability of the Hilton brand.

Hampton Inn & Suites

Location

The design of this contemporary hotel creates a distinct, comfortable experience that captures the essence of Hampton by Hilton’s philosophy to embrace local culture and give guests a true experience during their stay.

The 5-story, 158 key hotel is a shared site with a parking garage and office building. Upon arrival guests walk into an intimate atmosphere created by the use of harmonious cool colors, soft contrasting patterns, and delicate lighting. The lobby is designed as an extension of the common area which includes a breakfast and bar area that incorporates a variety of seating and lighting options for both leisure and business travelers. Additionally, a floor-to-ceiling fireplace wall provides a subtle divide between the lobby and common seating area as well as

encourages a free flow of movement. Interior spaces are infused with local photography and artwork and the sleek modern aesthetic creates a feeling of elegance. Natural materials include brick, limestone, wood, and glass.

Hotel features include support spaces, a business center, a full-service bar, heated indoor swimming pool and fitness center, a food and beverage shop, and two 273 square foot meeting spaces that can accommodate up to 20 people.

PROJECT DETAILS

Location

Muncie, Indiana

Size

Approx. 164,000 sf

Sustainability

Certified LEED Silver

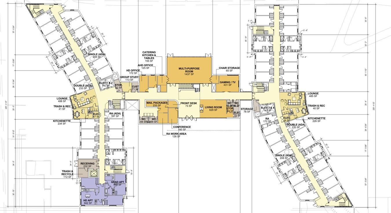
North West Residence Hall

Ball State University

Ball State University’s Education Living Learning Community provides a new home for over 500 students.

Located in the North Neighborhood Development of campus, the building is comprised of two residence towers, containing a community of 250 students per tower. Student rooms are mostly double configuration, with a mix of single and ADA compliant rooms per wing. Each floor contains approximately twenty-seven rooms, including one Resident Assistant room. Bathroom facilities are arranged in four groups per typical floor, containing shared lavatory space and private toilet/shower compartments. Each residential floor of each tower has a dedicated lounge and kitchen space.

A central connector between each tower houses shared facilities such as laundry, group study, lounge, fitness center, mail, and administrative office spaces. Included in this two-story connector is a large multi-purpose room for the community, as well as designated LivingLearning makerspaces for Education. This connector acts as the main entry to the complex. This project was designed in collaboration with Hanbury.

PROJECT DETAILS

Location Muncie, Indiana

Size

71,203 sf

Sustainability

Certified LEED Silver

North Dining Hall

Ball State University

Designed to invigorate Ball State University’s North Residential Neighborhood, this new dining facility is an integral part of the students’ campus experience.

During the planning process, careful consideration was given to the facility’s location in relation to campus, and nearby residence halls. The design includes spaces for dining, collaboration, and studying. The facility provides 685 seats in a variety of seating areas and offers MicroRestaurant style dining with eight different restaurant concepts. Centralized prep kitchen and dish washing areas, along with other backof-house spaces, support the dining operations. Dining and kitchen spaces are located on the main level.

In addition to dining, the facility houses the administrative offices for Dining & Food Services and Housing & Residence Life. These office facilities are on a second level, with a designated entrance along McKinley Ave. This project was designed in collaboration with Hanbury.

Recent Recognition

The Chicago Athenaeum –American Architecture Award Desert Storm and Desert Shield Memorial

Indy Chamber Monumental Awards –Achievement Award, Architecture SEP Headquarters

AIA Indiana – Citation Award, Preservation / Adaptive Reuse / Renovation 220 Meridian

U.S. Dept. of Education Green Ribbon School Tri-North Middle School

U.S. Dept. of Education Green Ribbon School Plainfield Community Middle School

AIA Indiana – Honor Award, New Construction Moravec Hall, Ivy Tech Community College

AIA Indiana – Citation Award, Preservation / Adaptive Reuse / Renovation Barnes & Thornburg Vault

AIA San Francisco – Merit Award, Architecture Moravec Hall, Ivy Tech Community College

AIA Indiana – Citation Award, Healthcare Design IU Health Bloomington Hospital at the Regional Academic Health Center

IIDA Indiana – IDEA Design Excellence Award, Compact Project Barnes & Thornburg Vault

Indy Chamber Monumental Awards Honor Award - Interior Design Barnes & Thornburg Vault

IIDA Indiana – IDEA Design Excellence Award, Compact Project The Taft Center

AIA Indiana – Citation Award, Interior Architecture Clif Bar

Indy Chamber Monumental Awards –Monumental Award, Interior Design Clif Bar

AIA Indiana – H. Roll McLaughlin 25 Year Award Circle Centre Mall

Indy Chamber Monumental Awards –Honor Award, Interior Design IBJ Media Corporate Headquarters

Top Architecture Firm

Top 50 K-12 School Architecture Firm

Top 100 Architecture Firm

Top 200 Design Firm

AIA Indiana – Merit Award, Interior Architecture IBJ Media Corporate Headquarters

Top 500 Design Firm

Indy Chamber Monumental Awards –Honor Award, Architecture Parkwood Amenity and Recreation Center

IIDA Indiana – IDEA Design Excellence Award, Compact Project Parkwood Amenity and Recreation Center

AIA Indiana – Merit Award, New Construction Parkwood Amenity and Recreation Center

IIDA Indiana – IDEA Design Excellence Award, K12 Education Remodel Imagination Lab, Plainfield Community School Corporation

IIDA Indiana – IDEA Design Excellence Award, Multi-Family / Residential Olivia on Main

Indy Chamber Monumental Awards –People’s Choice Award Allied Solutions Corporate Headquarters

Indy Chamber Monumental Awards –Innovative Reuse Achievement Award Center Grove Innovation Center

IIDA Indiana – IDEA Design Excellence Award, Corporate / Commercial New Construction Cummins Seymour Technology Center

American School & University –Architectural Portfolio, Outstanding Design Tri-North Middle School, Monroe County Community School Corporation

American School & University –Architectural Portfolio, Outstanding Design Deer Creek Elementary School, Hamilton Southeastern Schools

Indy Chamber Monumental Awards –Achievement Award, Innovative Reuse Center Grove Innovation Center, Center Grove Community School Corporation

AIA Indianapolis – Citation Award, Renovation / Addition

Columbus East High School, Bartholomew Consolidated School Corporation

The Center for Health Design –Touchstone Award, Evidence-based Design, Hospital Patient Room Prototype

IU Health New Downtown Hospital

ENR Midwest – Sports / Entertainment Award, Best Project

Simon Skjodt Assembly Hall, Indiana University

8831

317.848.7800 | csoinc.net

K-12 Education

Higher Education

Workplace

Healthcare

Manufacturing + Logistics

Community

Hospitality

Housing + Mixed-Use

Turn static files into dynamic content formats.

Create a flipbook
Issuu converts static files into: digital portfolios, online yearbooks, online catalogs, digital photo albums and more. Sign up and create your flipbook.
CSO_SOQ_USA Gymnastics by CSO Architecture and Interior Design - Issuu