Serena-Vivienda

Page 1

SERENA-VIVIENDA

CLIMATOLOGIA
Carlos Mora UACA
INDICE Introducción.................................. Objetivos....................................... Concepto....................................... Lista de necesidades................... Diagrama de funcionamiento..... Sujeto............................................ Plantas de distribución .............. Ambientacion............................... Techos........................................... Fachada........................................ Seccion bioclimatica................... Materiales.................................... Detalles........................................ Renders........................................ Técnicas Bioclimáticas.............. Conclusión................................... 1 2 3 4 5 6 7 8 9 10 11 12 13 14 15 16

NTRODUCCION

oyecto se basa en una vivienda para dos adultos mayores que estaran ados en Cerro Cedral, Escazu, Costa Rica. La vision que se tiene de este ecto es que sea agradable con su ambiente, ademas de que se adapte mejor forma a su clima tan característico a su zona.

OBJETIVOS

Crear un ambiente agradable dentro el proyecto.

Adaptar las actividades diarias del sujeto.

Brindar un zona basada en ley 7600.

Investigar metodos bioclimáticos y usarlos en la produccion del proyecto.

Crear un lugar donde la serenidad pueda ser percibida.

CONCEPTO

Un lugar donde su estadía será una experiencia de tranquilidad, adaptado a ser cómodo, tranquilo y sereno para sus huéspedes.

Dormitorio Principal

Dormitorio Visitas

Servicio Sanitario

Cuarto de pilas

de

1/2 Baño Sala Comedor Cocina
Terraza Bodega
Area (m2) 9 m2 7,5 m2 6 m2 4 m2 7,5 m2 6,5 m2 5 m2 6 m2 15 m2 4 m2 14,6 m2 10 m2
Espacio
parqueo Estudio Vivienda¨Garcia¨ Espacios LISTA DE NECESIDADES

LISTA DE NECESIDADES

Departamento para alquiler

Espacios

Dormitorio

Baño

1/2 Baño

Sala-Comedor

Cocina

Cuarto de pilas

Bodega

Oficina

Area
12 m2 6 m2 4 m2 10 m2 5 m2 6m2 4 m2 10 m2
(m2)

Diagrama

VIVIENDA ¨GARCIA¨

Baño

Estudio

Dormitorio Visitas

Circulaion Baño

Comedor

Sala de Tele

Cocina

Cuarto de pilas

Dormitorio Principal Vestíbulo 1/2 Baño
Entrada
Sala Sala
Principal

DEPARTAMENTO DE ALQUILER

Principal
1/2 Baño Baño Cuarto
Bodega
Diagrama Cocina Dormitorio
Vestíbulo
de pilas SalaComedor
Principal
Closet Oficina Entrada

SUJETO DE DISEÑO

70 Años

Pintora, especializada en retratos. Rosa es una mujer enérgica y aventurera. Le gusta probar cosas nuevas y tiene un espíritu emprendedor. Es una apasionada del arte y la pintura, y pasa muchas horas en su estudio creativo. También es una abuela cariñosa y dedica tiempo a disfrutar de sus nietos.

72 Años Contador (Retirado)

Javier es un hombre amable y reflexivo. Es un aficionado a la literatura y disfruta leer libros de diferentes géneros. También es un apasionado de la música clásica y toca el violín como pasatiempo. Javier es conocido por su buen sentido del humor y su capacidad para contar historias fascinantes.

Intereses en común: Rosa y Javier disfrutan viajar juntos y explorar diferentes países y culturas. Les encanta la naturaleza y han hecho numerosas caminatas y excursiones a lo largo de los años. También comparten el amor por la cocina y disfrutan de experimentar con recetas nuevas y sabores exóticos.

PROYECTO

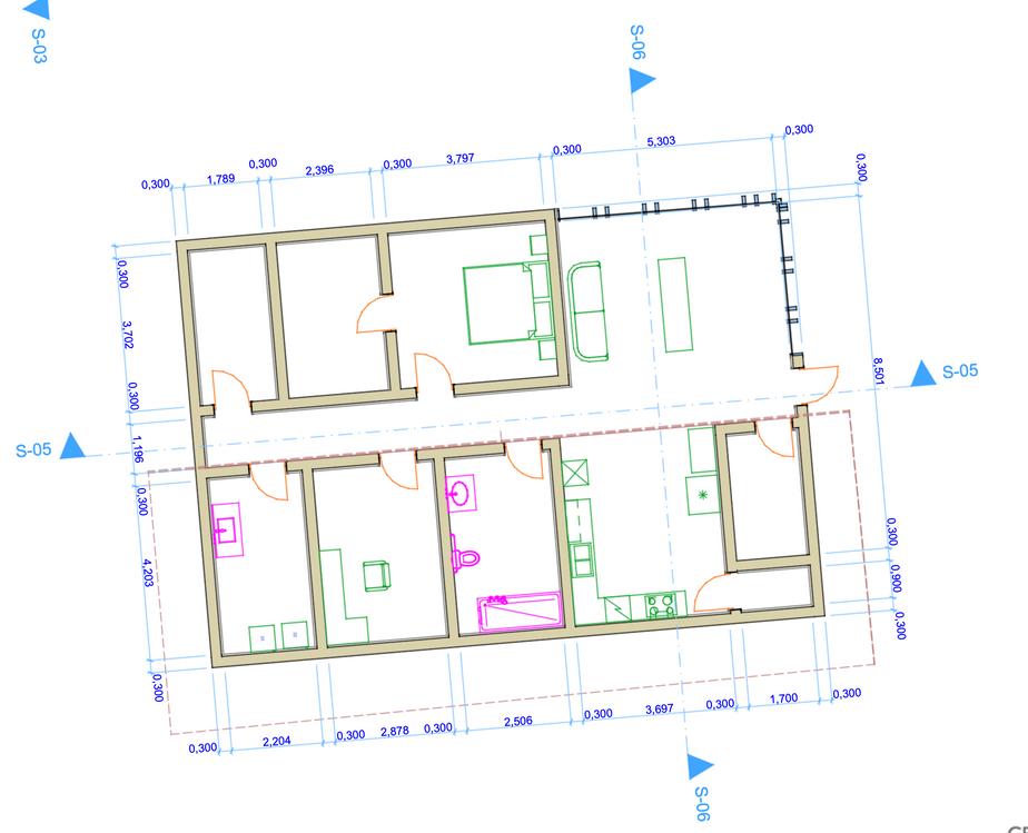
Distribución VIVIENDA

¨GARCIA¨

ENTRADA PRINCIPAL

Distribución

DEPARTAMENTO DE ALQUILER

ENTRADA PRINCIPAL

Distribución en Terreno

Cerro Cedral, Escazu, San José, Costa Rica

Latitud: 09o52’10.48oN

Longitud: 84o08’48.94

Altitud: 2366

Zona Climatica Temp Máxima Temp. Minima Humedad Relativa Brillo Solar Veloc. del viento
O
Bosque Húmedo Tropical 17,9 C 12 C 94% 3-4 Horas 16,5 km/h Carta Solar

PLANTA DE TECHOS

Fachada Vista Sur Fachada Vista Oeste

SECCIONES BIOCLIMATICAS

Vivienda Garcia

MuroTrombrehechodehormigón

SECCIONES BIOCLIMATICAS

Apartamento
E O
MuroTrombrehechodehormigón

SECCIONES BIOCLIMATICAS

Casa Garcia Pisoradianteinstalado

MATERIALES

Ladrillos Termoaislantes

Hormigón

Techos:

Celulosa

Concreto

TECHOS

MATERIALES

Ladrillos Termoaislantes

Mejora del aislamiento térmico: Los ladrillos termoaislantes están diseñados específicamente para proporcionar un alto grado de aislamiento térmico. Tienen una baja conductividad térmica, lo que significa que son muy eficaces para resistir la transferencia de calor. Esto ayuda a mantener el interior de un edificio más fresco en verano y más cálido en invierno, reduciendo así la necesidad de calefacción y refrigeración.

Reducción de costos de energía: Al mejorar el aislamiento térmico, los ladrillos termoaislantes pueden ayudar a reducir los costos de energía asociados con la calefacción y la refrigeración de un edificio. Esto puede llevar a un ahorro significativo a lo largo del tiempo y a una mayor eficiencia energética.

Mayor comodidad interior: Un mejor aislamiento térmico proporcionado por los ladrillos termoaislantes crea un ambiente interior más cómodo durante todo el año. Los cambios drásticos de temperatura se reducen, y la temperatura interior es más estable, lo que mejora la calidad de vida y la comodidad de los ocupantes.

MATERIAL DE TECHOS

Concreto ccon aislamiento de Celulosa

Aislamiento térmico efectivo: El aislante de celulosa utilizado en los techos de concreto proporciona un excelente aislamiento térmico. Ayuda a mantener la temperatura interior del edificio más estable, reduciendo la necesidad de calefacción y refrigeración. Esto puede resultar en ahorros significativos en los costos de energía a lo largo del tiempo.

Aislamiento acústico: Además de su capacidad para aislar térmicamente, la celulosa también ofrece propiedades de aislamiento acústico. Esto puede ayudar a reducir la transmisión de ruido desde el exterior y entre pisos o habitaciones dentro del edificio, mejorando así la comodidad interior.

Durabilidad: Los techos de concreto son conocidos por su durabilidad y resistencia a la intemperie. Cuando se combina con aislante de celulosa, se crea un sistema de techo robusto y de larga duración que requiere un mantenimiento mínimo.

PARQUEO

Cuenta con 3 estacionamientos adaptados a la ley 7600, donde el uso de una silla de ruedas será cómoda de usar.

RAMPAS

Rampas con descansos cada 9 metros con una inclinacion de 10%

RENDERS

FACHADA VIVIENDA ¨GARCIA¨

SALA PRINCIPAL-VIVIENDA ¨GARCIA¨

SALA DE TV-VIVIENDA ¨GARCIA¨

HABITACION-VIVIENDA ¨GARCIA¨

FACHADA-APARTAMENTO DE ALQUILER

SALA-APARTAMENTO DE ALQUILER

OFICINA-APARTAMENTO DE ALQUILER

RECAMARA-APARTAMENTO DE ALQUILER

TENICAS BIOCLIMATICAS

Ganancia Solar

El método bioclimático de las ganancias solares es una estrategia de diseño arquitectónico que aprovecha la energía solar para mejorar la eficiencia energética de un edificio y crear un ambiente interior cómodo. Este enfoque se basa en el uso inteligente de la radiación solar y considera las condiciones climáticas locales para lograr una temperatura y luminosidad adecuadas en el interior del edificio.

El método bioclimático de las ganancias solares es una estrategia de diseño arquitectónico que busca aprovechar de manera inteligente la radiación solar para mejorar la eficiencia energética y la comodidad en el interior de los edificios. Esta técnica combina la orientación adecuada, el diseño de aberturas, el control de sombra, los materiales apropiados y otras consideraciones para lograr un ambiente interior óptimo y sostenible.

Muro Trombe

El muro Trombe es una técnica de diseño arquitectónico pasivo que utiliza una pared de alta masa térmica y una abertura de vidrio para capturar y almacenar calor solar durante el día y liberarlo lentamente en el interior del edificio durante la noche. Este enfoque es eficaz para mejorar la eficiencia energética y mantener el confort térmico en un edificio.

El muro Trombe es una estrategia de diseño pasivo efectiva para aprovechar la energía solar y mejorar la eficiencia energética en edificios. Puede utilizarse en climas fríos para proporcionar calefacción adicional y en climas cálidos para reducir la carga de refrigeración. Es una técnica sostenible que aprovecha los recursos naturales para mantener un ambiente interior cómodo y eficiente en términos energéticos.

Piso Radiante

El sistema de calefacción por suelo radiante es una tecnología eficiente y cómoda que se utiliza en la climatización de edificios. Consiste en la instalación de tuberías o cables eléctricos debajo del suelo de una habitación o edificio, a través de los cuales se circula agua caliente o se genera calor eléctricamente.

Pozos Canadiences

Los pozos canadienses, también conocidos como pozos de tierra o pozos geotérmicos, son una tecnología de eficiencia energética que aprovecha la temperatura constante del suelo a cierta profundidad para calentar o enfriar un edificio. Estos sistemas funcionan mediante la circulación de aire a través de tuberías subterráneas o pozos, y pueden proporcionar calefacción en invierno y refrigeración en verano.

Son una tecnología de eficiencia energética que utiliza la temperatura constante del suelo para calefacción y refrigeración de edificios. Son una opción sostenible y económicamente atractiva para reducir el consumo de energía y mejorar el confort en el interior de los edificios.

NCLUCION

El proceso de este proyecto fue fundamental para el descubrimiento de técnicas bioclimáticas esenciales. Durante su desarrollo, se ha demostrado la importancia de diseñar espacios que se adapten al entorno y al clima local, lo que ha permitido crear un ambiente en el que la pareja García pueda disfrutar de plena serenidad en su lugar soñado. Estas lecciones aprendidas no solo enriquecen este proyecto, sino que también tienen el potencial de influir positivamente en futuros proyectos de diseño sostenible y eficiente.

SERENA-VIVIENDA

Turn static files into dynamic content formats.

Create a flipbook
Issuu converts static files into: digital portfolios, online yearbooks, online catalogs, digital photo albums and more. Sign up and create your flipbook.
Serena-Vivienda by Carlos Mora - Issuu