Professional Architecture Portfolio

Page 1

CRISTINA VALENCIA BACHELOR OF SCIENCE IN DESIGN MASTER OF ARCHITECTURE

PORTFOLIO OF CREATIVE WORK

Cristina Valencia Arizona State University, MArch, BSD, 2015, 2007

LOEWE VALLEY FAIR, SANTA CLARA

WE WORK SAN MATEO 1001 CALIFORNIA SAN FRANCISCO

RISE WALNUT CREEK
THE
FITZGERALD SAN FRANCISCO
COMMUNICATION
DRAWINGS 4 6 8 10 12 14 18
VISUAL
DESIGN
CONTENTS

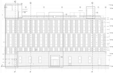
WALNUT CREEK THE RISE

Project: Mixed-Use Residential building. Client, Align Real Estate

Footprint: 28,980 sq.ft. , 8,200 sq.ft. retail, Height: 79’, 6 story, 3 Level below grade parking, 77 units, 20 hotel

Site: 1380 N. California Blvd., Walnut Creek, CA

Process: New mixed-use construction. Program included retail space on the ground-floor, residential units on floors 2-6. Terraces on the 4th and 6th floor. Courtyard on the 4th floor and a rooftop lounge and garden on the 6th floor. Type 1A and 11A construction. Project completed May 2023.

Role: Served as project manager through the construction phase of project. Visited job site bi-weekly and reported findings, through field reports and photo documentation. Coordinated with owner and contrator regularly. Provided as-built drawings using Revit software. Responsible for organizing meetings with consultants. Worked with Planning, Building, Fire and other departmental requirements. Developed close relationships with key individuals that helped expedite progress.

Site Plan

5
Decorative Metal Panel at Transformer Room
Corner
Detail
Wall Plan View Exterior Views Residential
Enlarged
Corner-Windows at Residential Units Interior - Kitchen
Window
at Metal Panel
Lounge
Details

SAN FRANCISCO FITZGERALD

Project: Urban Mixed-Use Residential building. Client, Align Real Estate

Footprint: 15,000 sq.ft., 10,520 sq.ft. commercial, Height: 68 ft., 6 story, 1 level below grade parking, 63 units

Site: 2095 N. 19th Street., San Francisco, CA

Process: New mixed-use construction. Program included commercial space on the ground-floor, residential units on floors 2-6. Courtyard on first and second floors. Rooftop garden including barbeque and lounge seating. Existing brick facade retained. Type 1A construction. Project completed Jan. 2023.

Role: Served as project BIM manager and provided project manager with design support. Responsible for preparing building permit drawings, and interior design drawings. Developed families in Revit and utilized BIM 360 for cloud sharing. Coordinated with project team regularly, both internal and external. Researched building codes and regulations to ensure compliance with applicable building codes, and other legal requirements.

Site Plan

7
Entrance Courtyard at First Level Interior - Kitchen
Exterior Views
East Elevation - Main Entrance Plan View Residential Level 02

SAN JOSE LOEWE

Project: Retail Tenant Improvement. Client, Loewe

Store Area: 3,011 sq.ft., Valley Fair Mall, First Level

Site: 2855 Stevens Creek Blvd., San Jose, CA

Process: Project scope included new storefront, interior partitions, floors, ceilings, millwork, and MEP work. Designed a new bathroom for customers and existing HVAC equipment replaced. Client provided all custom millwork and tile which was imported and shipped from Spain.

Role: Served as the client’s main point of contact and managed the project from schematic design through project completion. Coordinated with project team on a weekly basis providing progress updates. Organized the production and coordination of contract documents and permitting. Delegating work to design team as required. Researched building codes and regulations to ensure compliance with applicable standards, and other landlord specific requirements.

Plan
Site
9
Men’s
Area - Blue Room
Plan View Interior Views Residential Level 02
Women’s
Shoes Area Storefront Head Detail Storefront Elevation

SAN MATEO WE WORK

Project: Commercial Office. Client, Align Real Estate

Area: 16,167 sq.ft.

Site: 1825 S. Grant St., San Mateo, CA

Process: Interior Tenant Fit-out of one full floor for office space use. Scope of work included interior non-load bearing partitions, partial gypsum ceilings, lighting and finishes. Project completed Nov 2019.

Role: Served as the project designer, supporting the project architect. Worked closely with the design team, providing drafting and modeling support using Revit software. Coordinated with project consultants using BIM clash detection. Submitted drawings to the building department and handled permit review responses. Visited job site-walks and provided CA services. Responsible for answering RFI requests and submittal reviews using Fieldlens software.

Site Location

11 Shared Kitchen Area Lounge Area Partition Assembly Section Plan View Code Analysis Exterior Views We Work Co-Working Office - 9th Floor

SAN FRANCISCO 1001 CALIFORNIA

Project: Residential Restoration, Phase 1 & 2 - 7th floor and penthouse repairs.

Footprint: 4,120 sq.ft. Height: 83 ft., 8 stories, 15 units

Site: 1001 California, San Francisco, CA

Process: Phase 1 scope of work involved repair and replacement of existing sheet metal cornice and the concrete balustrade, structural reinforcement, and roof repairs.

Role: Assisted project manager with construction documents and administration. Developed design drawings and waterproofing details using vectorworks and AutoCad software. Researched materials and ASTM standards for waterproofing methods. Visited project site as required and reported findings.

Roof Plan Penthouse Terrace North Elevation South Elevation Beaux Arts Building, built in 1914.

13 1001 California Roof & Cornice Phase 1 & 2 Repairs 1001 California Street San Francisco CA 94108 Legends Symbols Project General Notes Project Information Scope of Workdriveways Project Directory Abbreviations Opposite Composition Douglas glass railing drawings .nsallp G-001 NOT FOR CONSTRUCTION Vicinity Map Baluster Deck Edge Typical Pier Deck Edge Typical .nsallp California & Cornice A-502 Glass Rail (N) Balustrade Deck to Wall Transition Deck to Wall Cast Concrete Elevation Balustrade Typical (N) Baluster Post Typical (N) Baluster Match (E) Balustrade Section Baluster Deck Edge SE Corner Baluster Deck Edge South Typical Deck Assembly .nsallp 1001 California Roof & Cornice A-504 Door Threshold Door Head Door Jamb Window Sill Stucco Window Head Stucco Window Jamb Stucco SLOPE .5% Proposed Window Sill Punched Opening Proposed Window Jamb Punched Opening Proposed Window Head at Punched Opening Door Pan Flashing 10 Head Flashing 11 CV 03/23/16 Proposed Window Jamb Punched Opening Scale: Size Window Sill Window Head Baluster at Deck Contract documents Architectural details

Typographic Latin Letter

Historical Marks

Trajans Column, Greek

Gutenburgs 42-line Bible Example is a recreation of Gutenbergs Blackletter.

Neoclassical Romantic Renaissance Renaissance Italic Roccoco

Example above Trajan based on the Greek inscriptions at the base of Trajans Column.

Bi Sheng invents movable type, Korea

Incunabula period Printing with Movable type in Germany

Jenson constructed after the Nicolas Jenson, Venice,1469

Garamond reconstructed by Robert Slimbach in 1988

Bembo based on the design of Francesco Griffo Venice,1499

Hendrik van der Keere recontsruction Antwerp, in 1575

Nicolas Jenson 1420–80

Claude Garamond F c.1485–1561

William Morris was the first to attempt to recreate Jensons Roman.

Francesco Griffo fl.1494–a1518

Monotype Arrighi reconstructed after Ludovico delgi Arrighi

Hendrik van der Keere reconstruction Antwerp, in 1575

Ludovico delgi Arrighi de Vincenza, fl.d.1527

Claude Garamond F c.1485–1561

Garamond Italic constructed by Adobe in 1989 in digital form. Poetica recent typeface by Robert Slimbach Flieschmann reconstructed by DTL Manerist tradition example of the chancery italics.

JM Flieshmann D c.1701–1738 Fournier based on original cuts

Pierre Simon Fournier F 1712–68 Baskerville versions reconstructed are not very close to the original design.

John Baskerville GB 1706–75

John Bell GB 1746–1841 Bell based on types cut in London about 1740

Bulmer based on the series cut in 1790

William Bulmer GB 1757–1830 Dido based on types cut in London about 1740

Medium abpfoe

H originally a metal type for hand composition

M originally for machine composition in metal

P originally designed for photosetting

D originally designed in digital form

Characteristics: hypermodulated stroke, rationalist and intensified axis, abrupt, thin serifs, small apeture ARQ

Characteristics: Modulated stroke, humanist axis modest contrast, penformed terminals.

Characteristics: modulated stroke, variable axis,moderate apeture, penstroke axis is normally oblique abfgn abpfoe

Characteristics: Stems vertical or even slope not exceeding 10° consistent Humanist axis, low contrast light, modulated stroke

Deeply Admired by Benjamin Franklin primarily because of taste abgofp

Characteristics: modulated stroke, rationalist and vertical axis refined serifs, moderate apeture

Bodoni H Based on types cut in Parma between 1803–1812

Francois Ambroise Didot F 1730–1804

Giambattista Bodoni I 1740–1813

More than punches are the Bodoni

INFORMATION DESIGN VISUAL COMMUNICATION
History of the
afojop agnop abefop H M H H H M H H H H H H H H H
1 0 4 0 1 1 4 1 4 6 5 1 6 0 0 1 7 0 0 1 8 0 0 1 5 0 0 1 4 5 0 1 4 0 0

v is ta s communities

15
Poster Logos Calendar Timeline

Information design

ASU Destination & Activities guide

Arizona State University Main

Resorts

1 Arizona Biltmore 24 St Missouri

2 The Ritz Carlton 2401 E Camelback Rd

3 Pointe South Mountain 7777 S Pointe Parkway

4 The Phoenician 6000 E Camelback Rd

Hiking

1 Squaw Peak

2 Camelback Mountain

3 South Mountain

Dinning

1 Cibo Italian 603 N. 5th Ave Phoenix, 85003

2 Elis American Grille 7000 E Shea Blvd Scottsdale, 85254

3 Mucho Gusto Taqueria

Mexican Bistro

603 W. University Drive Tempe, 85281

4 Golden Buddha 668 N. 44th St Phoenix, 85008

Leisure

1 Phoenix Art Museum 1625 N Central Ave Phoenix, 85004

2 Heard Museum 2301 N.Central Ave #1 Phoenix, 85008

3 Scottsdale Museum

7374 E 2nd St Scottsdale, 85251

Cactus Rd

Peoria Rd

Olive/ Dunlap Ave

Northern Ave Glendale Ave

Bethany Home Rd

Camelback Rd

Indian School Rd

Thomas Rd

McDowell Rd

1 10 Freeway

Van Buren St Jefferson

Buckeye Rd

Lower Buckeye Broadway Rd

Northern Ave

Baseline Rd

Continental 1 nonstop 1st class $1,365

Cactus Rd

Shea Blvd

Indian Bend Rd

McDonald Chapparral Rd

Indian School Rd

Thomas Rd

McDowell Rd

McKellips Rd

Washington St Brown Rd University Dr Apache Blvd Broadway Rd

Southern Ave Baseline Rd

The Arizona State University students in the Graphic Design Program are proud to invite Mr.Edward R Tufte to our final reviews on Dec.9th, 2005

Finals will be held through out the day, during 1:00 - 8:00 pm.

This guide was created to provide different options of travel, restaurant, and leisure while visiting the valley.

I 10 Papago Fwy I 10 Loop 202 Loop 202 Red Mtn Fwy US 60 Superstition Estimated time, does not reflect traffic delays 1/2 hour relative to 1 mile Sky Harbor Airport SR 14 83 rd Ave 75th Ave 67th Ave 59th Ave 51st Ave 43rd Ave 35th Ave 27th Ave 19th Ave 7th Ave Central Ave 7th St 16th St Cave Creek Rd 24th St 32nd St 40th St Tatum Blvd 56th St 64th St Scottsdale Rd Pima Rd 1 1 1 1 2 2 2 2 3 3 3 3 4 4 Squaw Peak Pkwy
US Airways nonstop $439 America West nonstop $567
AZ 85287 South Camelback Squaw Peak 7th Ave 7th St height sq ft 1,200 2,330 1,190
Tempe,
17

DRAWING IN PLACE MOROCCO, SPAIN, AND PORTUGAL

Ronda Bullring Riad Dar Doukkala in Marrakesh
19
DRAWINGS

cvalenciask@gmail.com, 480 319-1791

Turn static files into dynamic content formats.

Create a flipbook
Issuu converts static files into: digital portfolios, online yearbooks, online catalogs, digital photo albums and more. Sign up and create your flipbook.